← Back to Adur & Worthing Councils
Status
Registered
New housing
Full Proposal
Removal of roof and erection of additional storey to provide two residential units (Use Class C3)
Documents
28/01/2026
Consultation Response
APPLICATION FORM
Application Form
DESIGN & ACCESS STATEMENT
Design and Access Statement
ENVIRONMENTAL HEALTH
Consultation Response
EXISTING EAST & NORTH ELEVATIONS
Latest plan
EXISTING FIRST FLOOR & ROOF PLAN
Latest plan
EXISTING GROUND FLOOR PLAN
Latest plan
EXISTING WEST & SOUTH ELEVATIONS
Latest plan
Linzi Quinnell
Representation
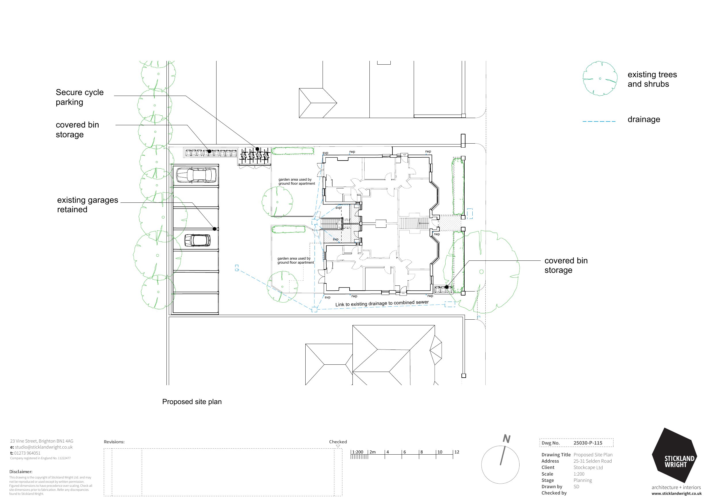
LOCATION & BLOCK PLAN
Site Location/Block Plan
Map
Consultation Response
Miss Emily McCunn
Representation
Miss Linzi Quinnell
Representation
Mr Dan Hawes
Representation
Nicola Strickland
Representation
PROPOSED EAST & NORTH ELEVATIONS
Latest plan
PROPOSED FIRST FLOOR PLAN
Latest plan
PROPOSED GROUND FLOOR PLAN
Latest plan
PROPOSED SECOND FLOOR & ROOF PLANS
Latest plan
PROPOSED SECTIONS
Latest plan
PROPOSED WEST & SOUTH ELEVATIONS
Latest plan
Response Letter
Consultation Response
WSP response
Consultation Response
Take Action
Make your voice heard. Authorities need to hear from people who support new homes.