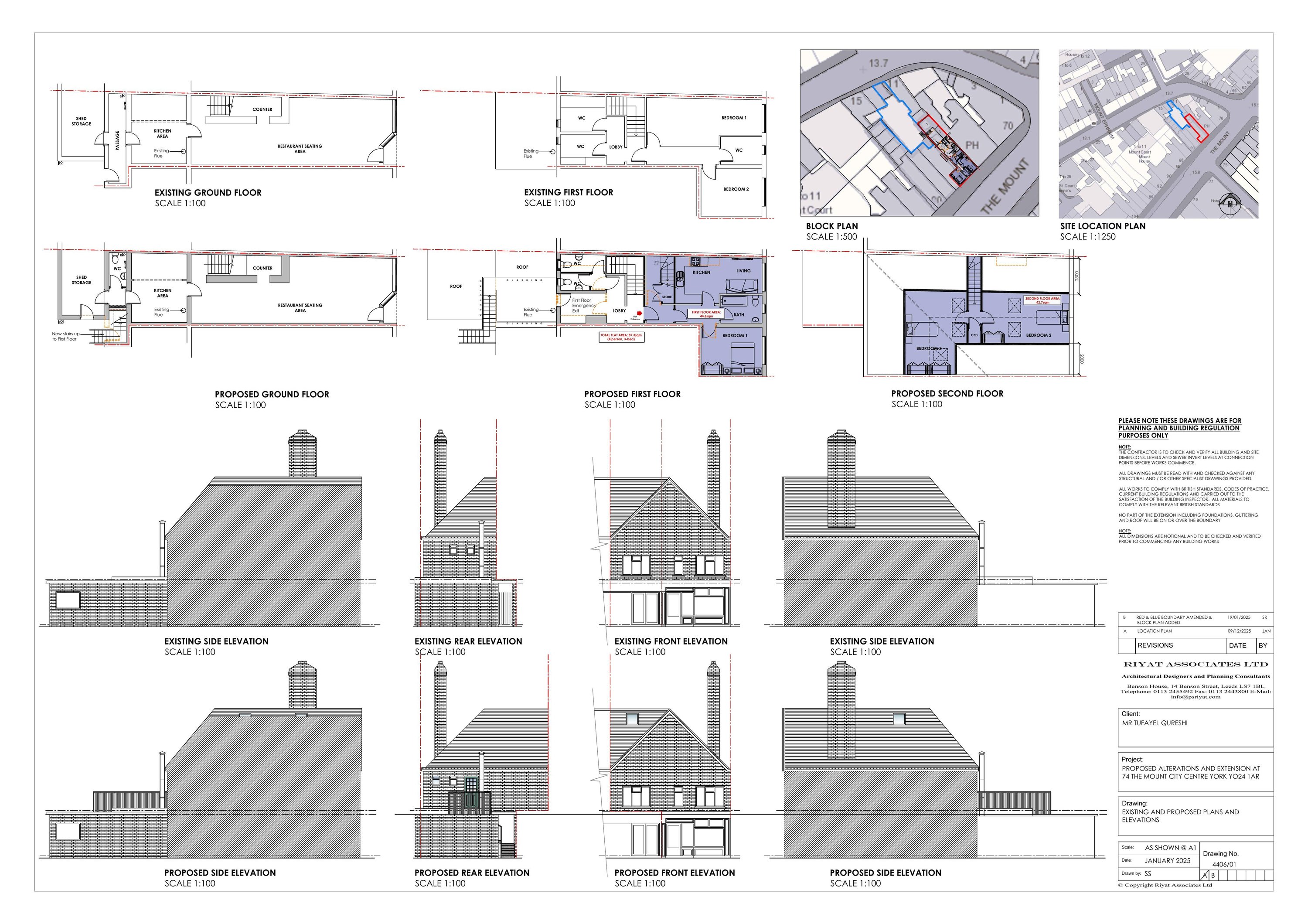
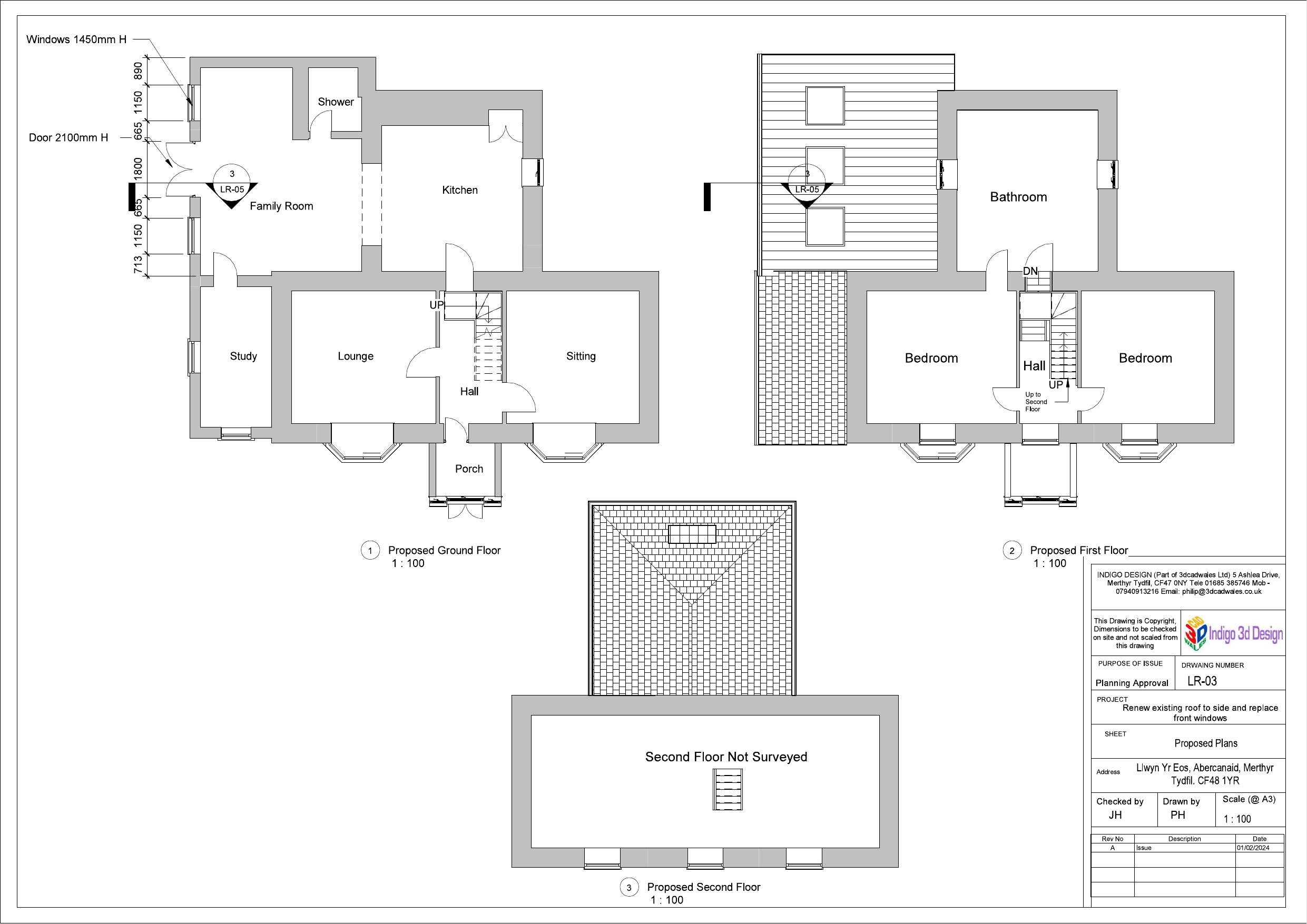
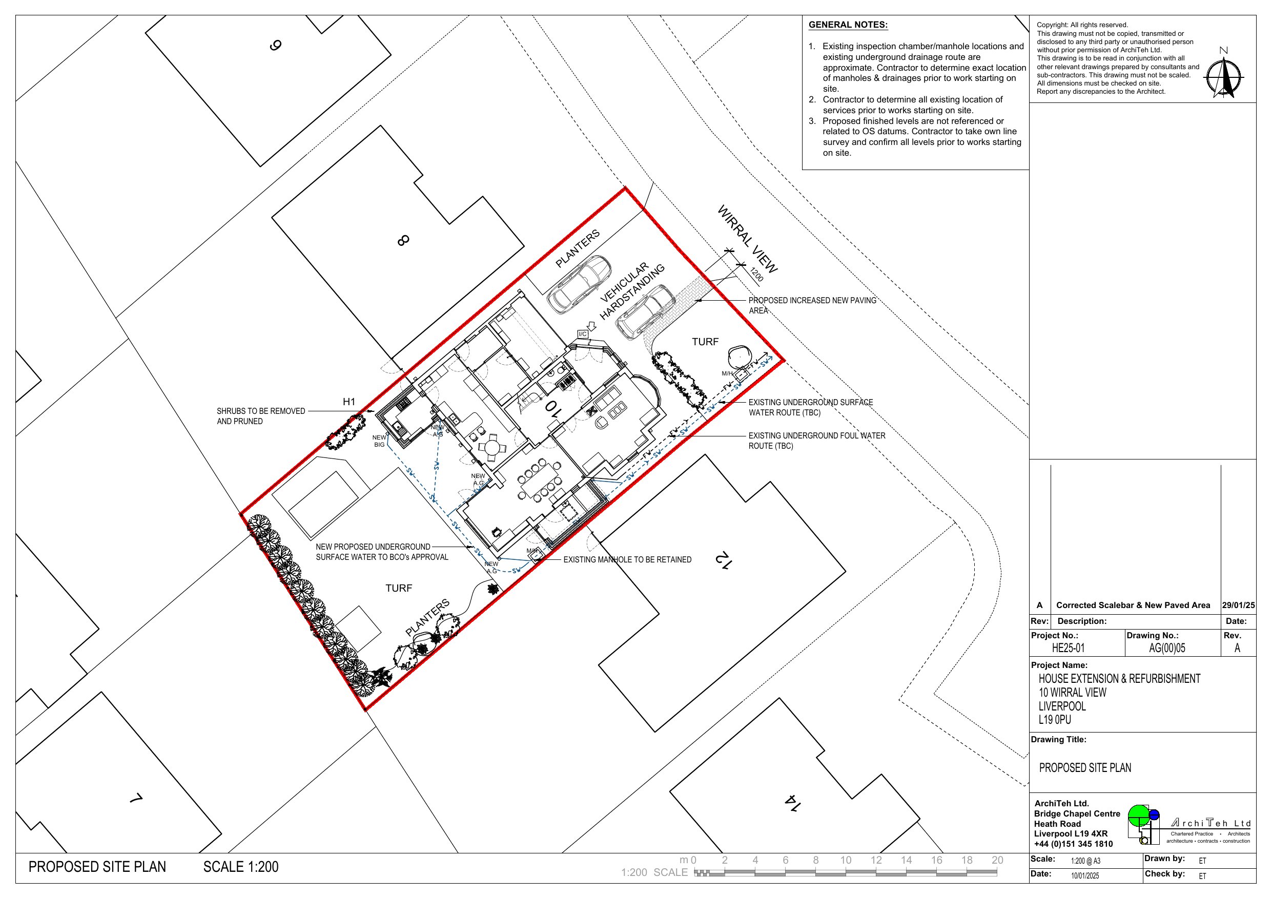
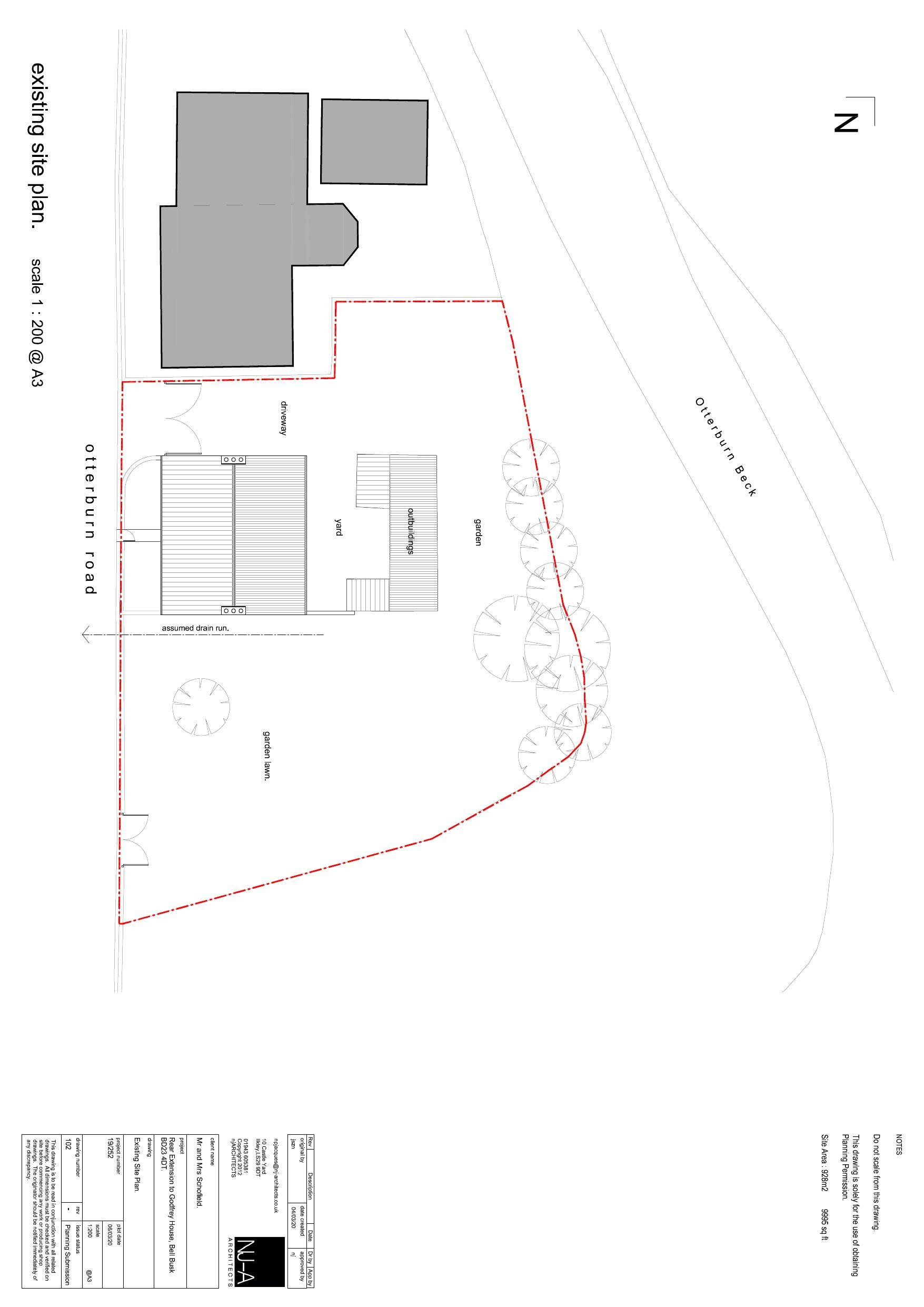
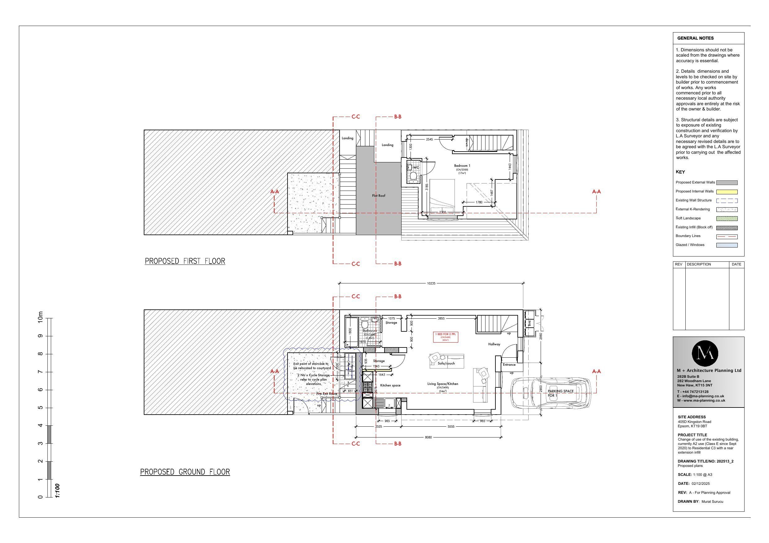
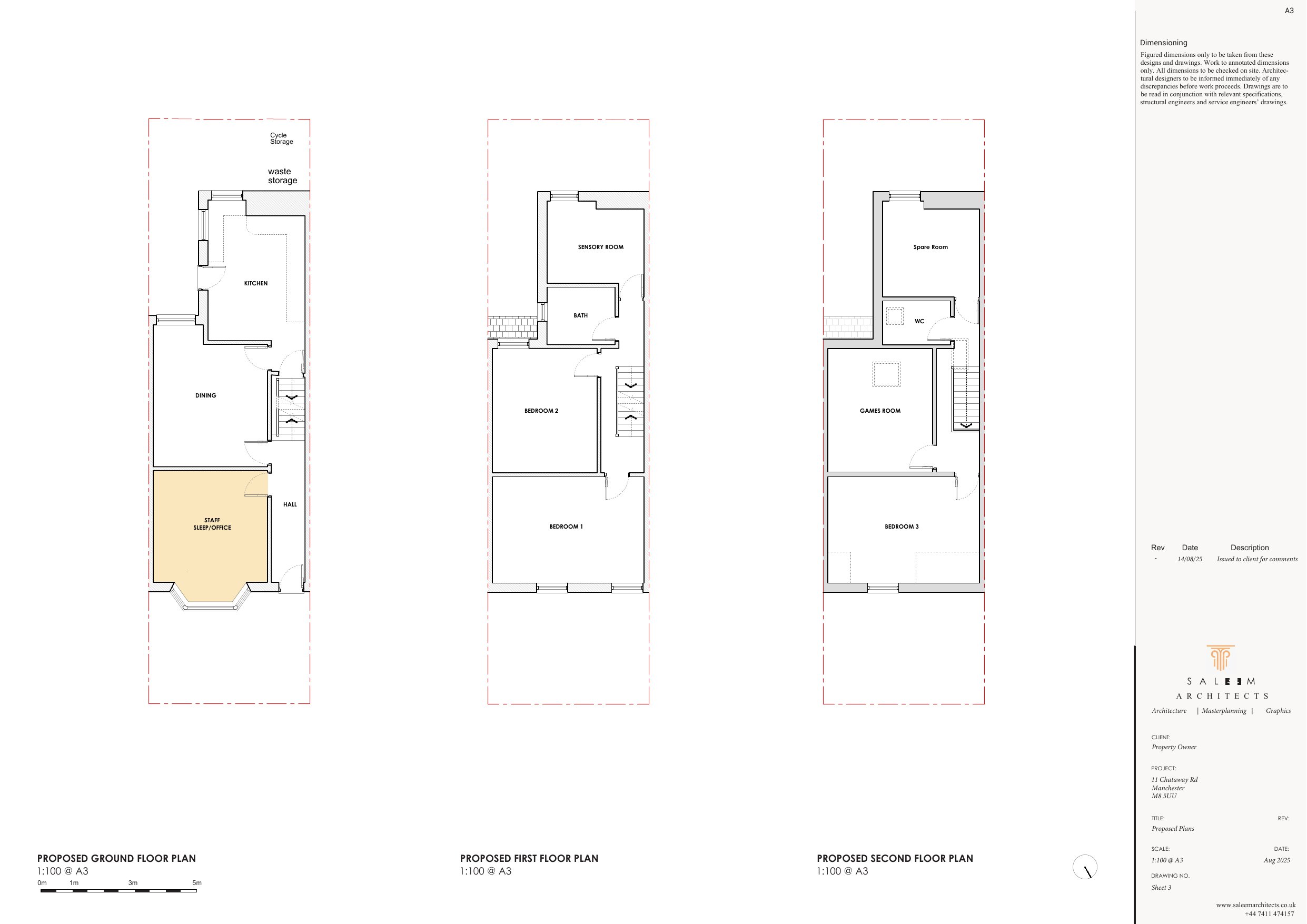
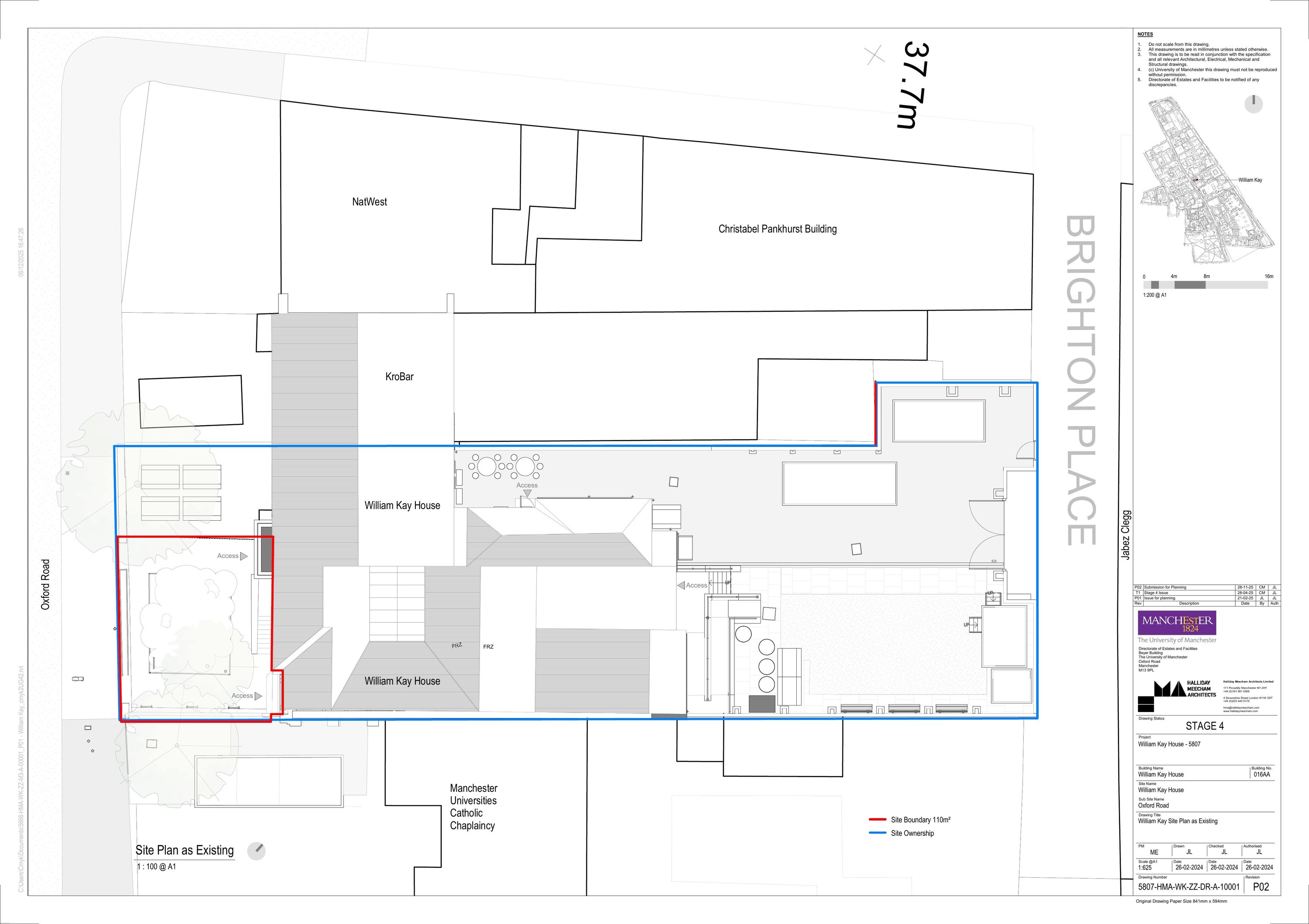
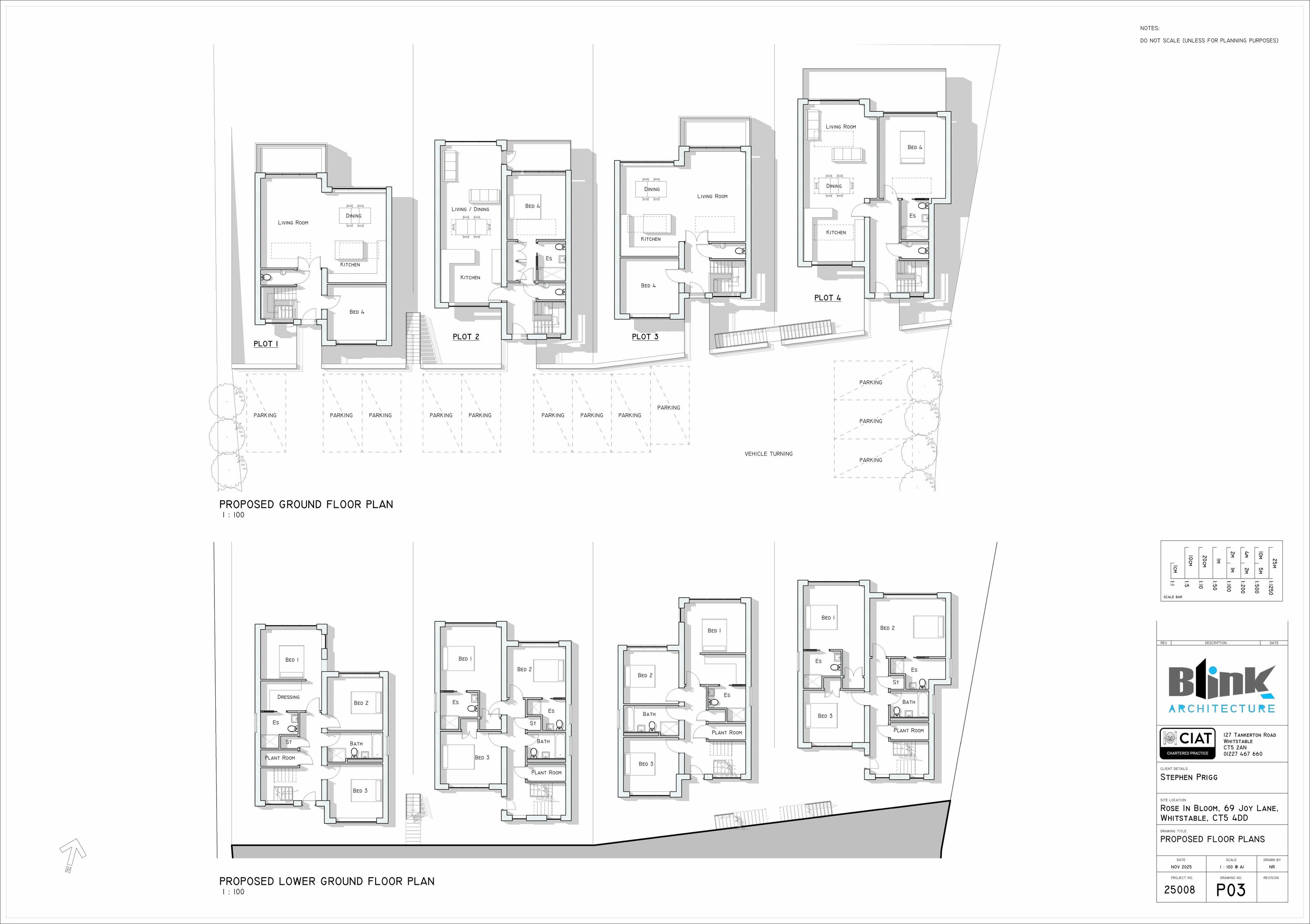
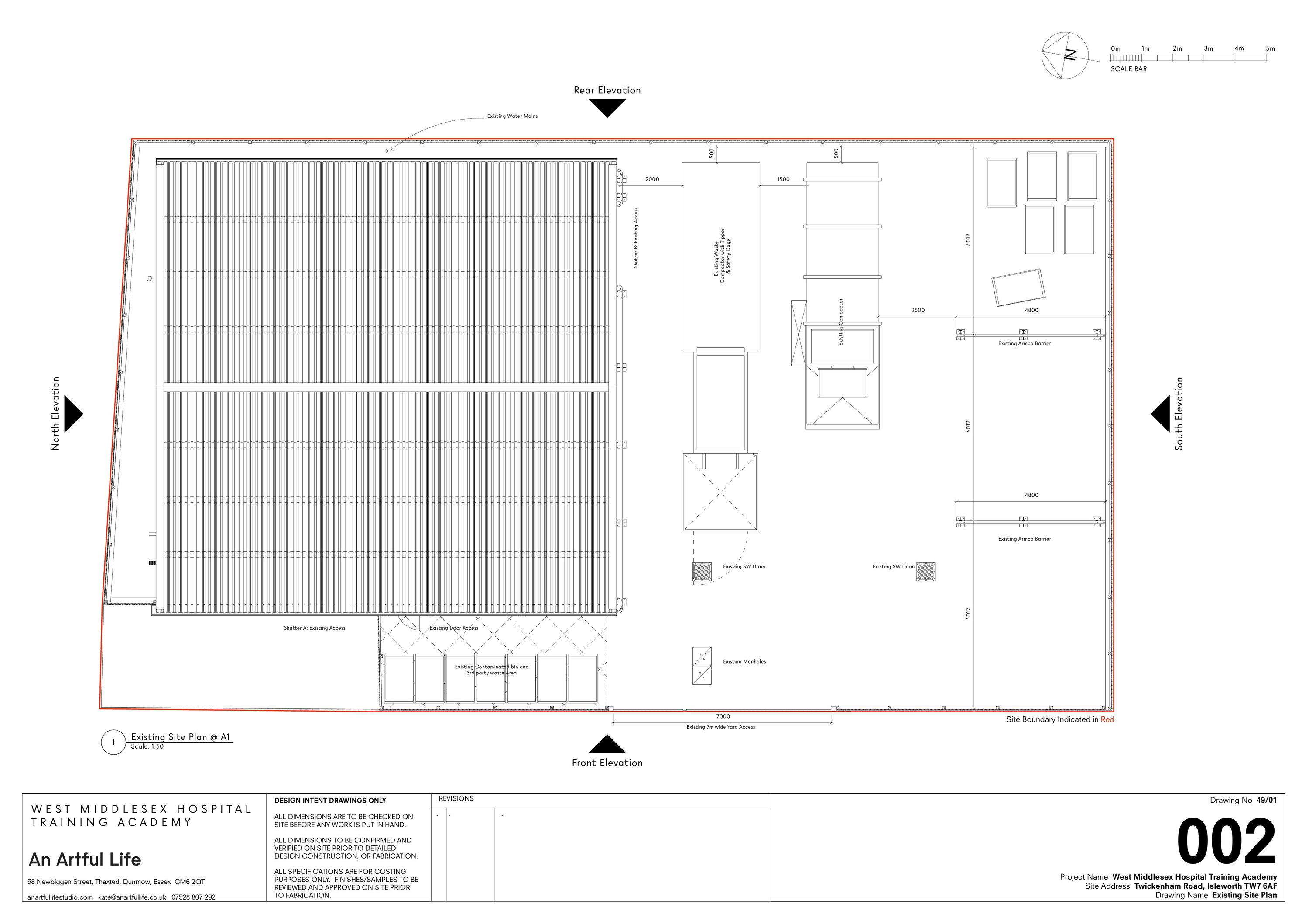
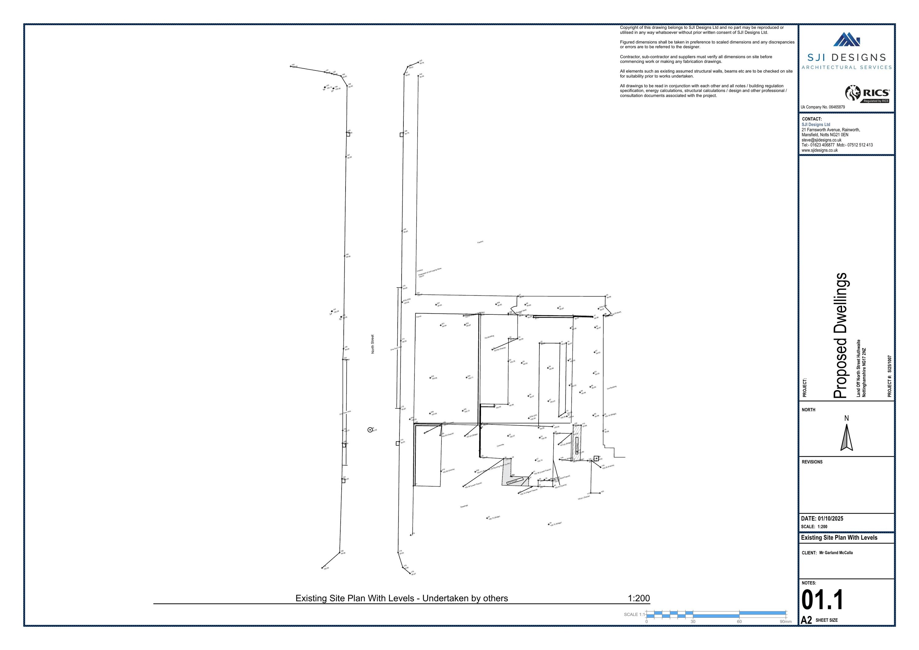
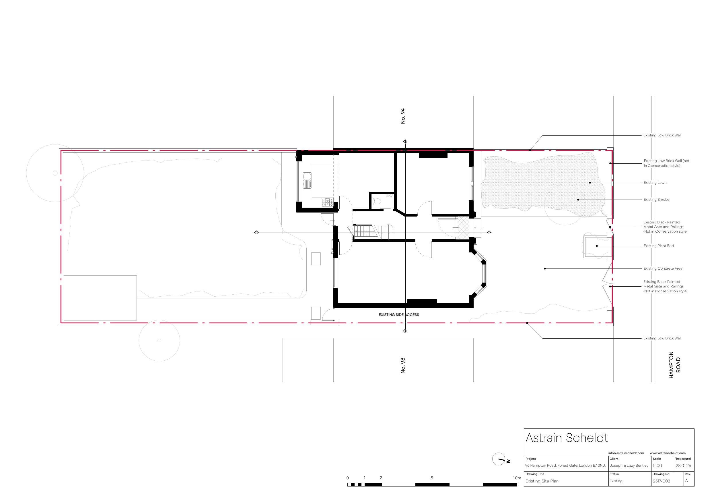
Application Reference HGY/2026/0326 Proposal Erection of rear side extension at ground floor level Application Status Under Consultation Sit...

Type n/a
Status Unknown
Date Date not available

Application Reference HGY/2025/2836 Proposal Change of Use from dwelling (class C3) to HMO (Class c4) Application Status Under Consultation ...

Type n/a
Status Unknown
Date Date not available

Application Reference HGY/2026/0379 Proposal Replacement side infill extension with oriel window. Reinstatement of window to cellar to front...

Type n/a
Status Unknown
Date Date not available

Application Reference HGY/2026/0090 Proposal Erection of a ground floor rear extension at no. 21 and erection of a first floor rear extensio...

Type n/a
Status Unknown
Date Date not available

Application Reference HGY/2026/0410 Proposal Ground floor extension with rooflights to rear of property and 3 new rooflights to existing roo...

Type n/a
Status Unknown
Date Date not available

Application Reference HGY/2026/0414 Proposal Loft conversion with rear dormer, roof extension, and two Velux window to front elevation. Appl...

Type n/a
Status Unknown
Date Date not available

Application Reference HGY/2026/0250 Proposal Replacement of windows and door and installation of a new opening with door on the north side. ...

Type n/a
Status Unknown
Date Date not available

Application Reference HGY/2026/0427 Proposal Display of 1no. internally illuminated projecting sign and 2no. internally illuminated fascia s...

Type n/a
Status Unknown
Date Date not available

Application Reference HGY/2026/0231 Proposal Installation of new signage and shopfront including replacement of 2no. ATMs. Application Statu...

Type n/a
Status Unknown
Date Date not available

Application Reference HGY/2026/0340 Proposal Erection of ground floor rear/ side extension with roof lights and erection of roof level rear ...

Type n/a
Status Unknown
Date Date not available

Application Reference HGY/2026/0403 Proposal Lawful certificate for existing use as three self-contained flats. Application Status Valid Sit...

Type n/a
Status Unknown
Date Date not available

Application Reference HGY/2026/0374 Proposal Erection of a single-storey rear/side return extension, with mono-pitched roof, parapet walls a...

Type n/a
Status Unknown
Date Date not available

Application Reference HGY/2026/0392 Proposal Erection of single storey extension which extends beyond the rear wall of the original house by...

Type n/a
Status Unknown
Date Date not available

Application Reference HGY/2026/0316 Proposal Erection of a single storey side extension Application Status Under Consultation Site Address 4...

Type n/a
Status Unknown
Date Date not available

Application Reference HGY/2026/0291 Proposal Lawful development certificate for existing use as a House in Multiple Occupation (HMO) by thre...

Type n/a
Status Unknown
Date Date not available

Application Reference HGY/2026/0259 Proposal Alteration to shop front including removal of existing signage and advertisements, installation...

Type n/a
Status Unknown
Date Date not available

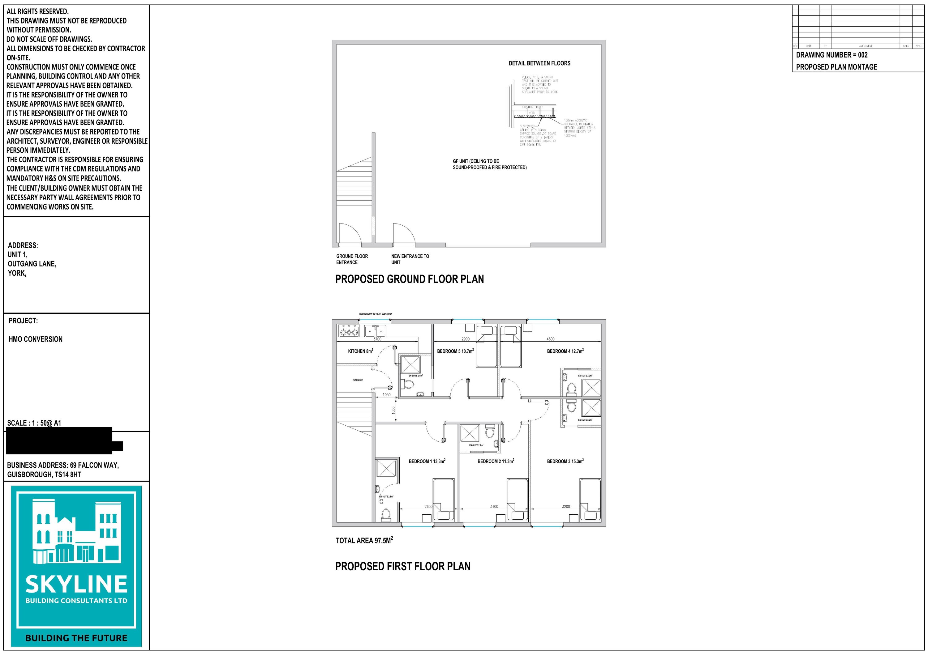
Application Reference HGY/2026/0063 Proposal Change of use of upper floors from a 3-bedroom flat (Use Class C3) to a small house in multiple...

Type n/a
Status Unknown
Date Date not available

Application Reference HGY/2026/0412 Proposal Proposed replacement garden annexe with a new single‑storey building. Works include new brick b...

Type n/a
Status Unknown
Date Date not available

Application Reference HGY/2026/0395 Proposal Proposed Hip-to-Gable and Rear/Side Dormer Roof Extension. Velux Windows Application Status Val...

Type n/a
Status Unknown
Date Date not available

Application Reference HGY/2026/0426 Proposal Erection of single storey extension which extends beyond the rear wall of the original house by...

Type n/a
Status Unknown
Date Date not available

Application Reference HGY/2026/0413 Proposal Retrospective application for the change of use of the existing flat/maisonette occupying the r...

Type n/a
Status Unknown
Date Date not available

Application Reference HGY/2026/0404 Proposal Demolition of the existing row of 2 garages and store at the rear of 33 Priory Road, erection o...

Type n/a
Status Unknown
Date Date not available

Application Reference HGY/2026/0376 Proposal Erection of a 2m deep single storey extension to the rear of existing residential annexe, creat...

Type n/a
Status Unknown
Date Date not available

Application Reference HGY/2026/0365 Proposal Installation of no.1 velux window to the front roof slope and no.3 velux windows to the rear ro...

Type n/a
Status Unknown
Date Date not available

Application Reference HGY/2026/0332 Proposal Part renewal, repair and lower existing brick boundary wall to match existing brick work. Appli...

Type n/a
Status Unknown
Date Date not available

Weavers Cottage, Rough Hey Gate, Oswaldtwistle, BB5 3SF | Householder | Householder: Erection of single storey side extension (Retrospective...

Type n/a
Status Unknown
Date Date not available

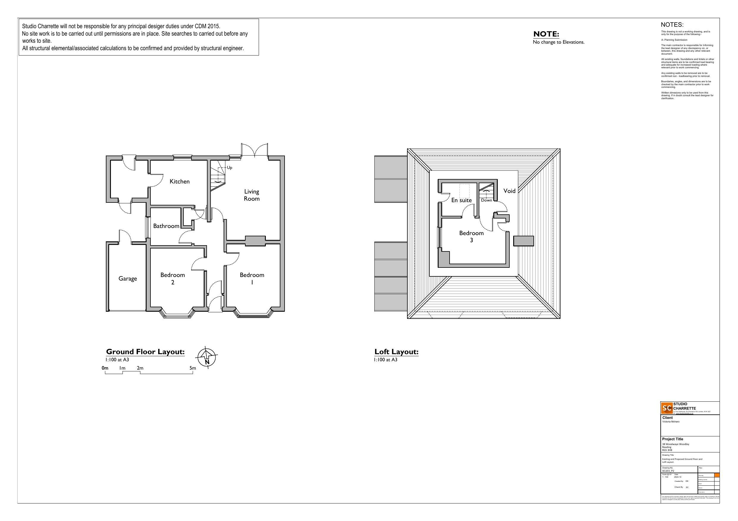
Certificate of lawful development for proposed change of use from shop to dwelling and single storey rear extension.

Type n/a
Status Crewe Central
Date Date not available

Prior approval of a single storey rear extension extending 4.5 metres beyond the rear wall, maximum height of 3.87 metres and eaves height o...

Type n/a
Status Macclesfield Hurdsfield
Date Date not available

Advertisement consent for installation of new shop signage to the front and side elevation; including an internally illuminated fascia sign

Type n/a
Status Handforth
Date Date not available

Certificate of proposed lawful development for The stationing of a mobile home within the residential curtilage of a dwellinghouse, for purp...

Type n/a
Status Wilmslow West and Chorley
Date Date not available

Listed building consent for full external re-pointing of the front and rear elevations of the Grade II listed mid-terrace property, together...

Type n/a
Status Knutsford
Date Date not available

Proposed two storey rear extension, first floor side extension, and internal and external alterations.

Type n/a
Status Nantwich South and Stapeley
Date Date not available

Application Reference PA/2026/0147 Site Address 70 Cradlebridge Drive, Willesborough, TN24 0RF Proposal Proposed single storey rear & side e...

Type n/a
Status Unknown
Date Date not available

Application Reference PA/2026/0265 Site Address Little Greenfield, School Road, Appledore, TN26 2BA Proposal Erection of a single-storey det...

Type n/a
Status Unknown
Date Date not available

Application Reference PA/2026/0252 Site Address The Shack, Stalisfield Church Road, Charing, Ashford, TN27 0NJ Proposal Erection of replacem...

Type n/a
Status Unknown
Date Date not available

Application Reference PA/2026/0241 Site Address Littlehaven, Bromley Green Road, Ruckinge, TN26 2EQ Proposal Single storey side extension an...

Type n/a
Status Unknown
Date Date not available

Application Reference PA/2026/0170 Site Address Unit 2, Arrowhead Road, Waterbrook Park, Sevington, TN24 0FL Proposal Planning permission fo...

Type n/a
Status Unknown
Date Date not available

Application Reference PA/2026/0251 Site Address 1 Bargates, Kingsnorth, Ashford, TN23 5UD Proposal Erection of a 1.8m high composite boundar...

Type n/a
Status Unknown
Date Date not available

Application Reference PA/2026/0247 Site Address 35 Lower Road, Woodchurch, Ashford, TN26 3SQ Proposal Single storey rear extension Date Vali...

Type n/a
Status Unknown
Date Date not available

Application Reference PA/2025/2184 Site Address 122 Bridge Street, Wye, Ashford, TN25 5EA Proposal Installation of replacement conservation ...

Type n/a
Status Unknown
Date Date not available

Application Reference PA/2026/0240 Site Address 11 Oak View, Shadoxhurst, Ashford, TN26 1AS Proposal Single-storey rear extension and fenstr...

Type n/a
Status Unknown
Date Date not available

Application Reference PA/2025/2346 Site Address 11, Barley Way, Kingsnorth, TN23 3JA Proposal Conversion of garage to a habitable room (retr...

Type n/a
Status Unknown
Date Date not available

Reference 26/0225/FH Site address Flats 1 & 2 20 St Johns Church Road, Folkestone, CT19 5BH Proposal Lawful Development Certificate (propose...

Type n/a
Status Unknown
Date Date not available

Reference 26/0217/FH Site address Woodpeckers, School Road, Saltwood, Hythe, CT21 4PP Proposal Removal of front and side extensions. Erectio...

Type n/a
Status Unknown
Date Date not available

Reference 26/0201/FH Site address 35 Victoria Road, Hythe, CT21 6DR Proposal First floor extension, single storey side and rear extension, a...

Type n/a
Status Unknown
Date Date not available

Reference 26/0181/FH Site address 18 Darby Road, Folkestone, CT20 1EN Proposal Change of use from residential (Class C3) to a five bed HMO. ...

Type n/a
Status Unknown
Date Date not available

Reference PA/2026/0069 Application type Full planning permission Site address 10 Modwen Road, Salford, M5 3EZ Description Change of use of a...

Type n/a
Status Unknown
Date Date not available

Reference PA/2026/0226 Application type Householder planning permission Site address 24 Ellenbrook Road, WORSLEY, MANCHESTER, M28 1FZ Descri...

Type n/a
Status Unknown
Date Date not available

Reference PA/2025/1602 Application type Householder planning permission Site address 2 Hollyhurst, WORSLEY, MANCHESTER, M28 2WG Description ...

Type n/a
Status Unknown
Date Date not available

Reference PA/2026/0202 Application type Householder planning permission Site address 35 Beatrice Road, WORSLEY, MANCHESTER, M28 2TW Descript...

Type n/a
Status Unknown
Date Date not available

Reference PA/2026/0133 Application type Consent to display an advertisement Site address Embankment East Tower, 100 Cathedral Approach, Salf...

Type n/a
Status Unknown
Date Date not available

Reference PA/2026/0206 Application type Householder planning permission Site address 1 Cartmel Grove, WORSLEY, MANCHESTER, M28 2SF Descripti...

Type n/a
Status Unknown
Date Date not available

Reference PA/2026/0108 Application type Householder planning permission Site address 4 Penrice Fold, WORSLEY, MANCHESTER, M28 1ZB Descriptio...

Type n/a
Status Unknown
Date Date not available

Reference PA/2025/1687 Application type Full planning permission Site address 84, No. 84 & No. 84A, Rocky Lane, Monton, Salford, M30 9LY Des...

Type n/a
Status Unknown
Date Date not available

Reference PA/2026/0227 Application type Householder planning permission Site address 75 Nevile Road, SALFORD, M7 3PP Description Erection of...

Type n/a
Status Unknown
Date Date not available

Reference PA/2026/0228 Application type Householder planning permission Site address 7 Kiel Close, ECCLES, MANCHESTER, M30 0LE Description E...

Type n/a
Status Unknown
Date Date not available

Reference OTH/2026/0129 Application type Approval of details reserved by a condition Site address Regent Trading Estate, Oldfield Road, SALF...

Type n/a
Status Unknown
Date Date not available

Reference BC/BN/26/00913 Application type Building Notice Site address 3 FAR LAWRENCE, MOULSOE, MILTON KEYNES, MK16 0FF Description of works...

Type n/a
Status Unknown
Date Date not available

Reference BC/BN/26/01684 Application type Building Notice Site address 4 SWIMBRIDGE LANE, FURZTON, MILTON KEYNES, MK4 1JT Description of wor...

Type n/a
Status Unknown
Date Date not available

Reference BC/BN/26/01830 Application type Building Notice Site address 67 LINFORD AVENUE, NEWPORT PAGNELL, MK16 8BX Description of works INT...

Type n/a
Status Unknown
Date Date not available

Reference BC/FP/26/01827 Application type Full Building Regulations Site address 36 ST JAMES CLOSE, HANSLOPE, MILTON KEYNES, MK19 7LF Descri...

Type n/a
Status Unknown
Date Date not available

Reference BC/NOT/26/01814 Application type Initial Notice Site address STONEWAYS, HIGH STREET, WESTON UNDERWOOD, OLNEY, MK46 5JS Description...

Type n/a
Status Unknown
Date Date not available

Reference BC/NOT/26/01833 Application type Initial Notice Site address T C UK LTD, GROUND HOUSE, 4-6 WORCESTER WAY, OLNEY, MILTON KEYNES, MK...

Type n/a
Status Unknown
Date Date not available

Reference BC/NOT/26/01834 Application type Initial Notice Site address LSU1, LSU2, SU301, SU302 , MISC ANCILLARY AREAS AND LSU6A, MIDSUMMER ...

Type n/a
Status Unknown
Date Date not available

Reference BC/NOT/26/01839 Application type Initial Notice Site address 20 THE COPSE, MAVONCLIFF DRIVE, TATTENHOE, MILTON KEYNES, MK4 3GF Des...

Type n/a
Status Unknown
Date Date not available

Reference BC/NOT/26/01844 Application type Initial Notice Site address 83 TOWER DRIVE, NEATH HILL, MILTON KEYNES, MK14 6JX Description of wo...

Type n/a
Status Unknown
Date Date not available
Plan thumbnail

Unit 6 Ground Floor, Planet Centre, Armadale Road, Feltham, TW14 0LW | PF-Full Applications | Installation and excavation of new external e...

Type n/a
Status Unknown
Date Date not available

71 A Lampton Road,Hounslow,TW3 4DH | Details pursuant to a planning condition | Details of parking permit restriction measures submitted pur...

Type n/a
Status Unknown
Date Date not available

Erection of rear facing dormer extension; outrigger roof extension; new roof lights to the front roof slope; installation of solar panels to...

Type n/a
Status Unknown
Date Date not available

Proposed Change of Use of first and second floors of number 16 Water Lane from Commercial/Retail to a 2 bedroom apartment together with exte...

Type n/a
Status Wilmslow West and Chorley
Date Date not available

Garage at the side of the property that I may also turn part of this into a Study.

Type n/a
Status Mobberley
Date Date not available

OUTLINE PLANNING APPLICATION (INCLUDING DETAILS OF ACCESS WITH ALL OTHER MATTERS RESERVED) FOR THE ERECTION OF UP TO 120 DWELLINGS AND OTHER...

Type n/a
Status Awaiting decision
Date Date not available

CHANGE OF USE OF RESIDENTIAL DWELLING (USE CLASS C3) TO CHILDRENS CARE HOME (USE CLASS C2), FOR A MAXIMUM OF 2 NO. CHILDREN

Type n/a
Status Awaiting decision
Date Date not available

Change of use of land and buildings to day nursery (Use Class Ef). Demolition of an existing timber clubhouse and construction of a new sing...

Type n/a
Status Pending Consideration
Date Date not available

Two-storey side extension, first-floor front extension and porch, single-storey rear extension, and alterations to garage roof and partial c...

Type n/a
Status Unknown
Date Date not available

Removal of chimney and garage extension. Replace roof with larger roof form to accommodate first-floor level. Heat pump at rear of dwelling.

Type n/a
Status Unknown
Date Date not available

Use of land as a holiday camping, caravanning and motorhome site with up to 30 pitches between 1 April and 31 October each year.

Type n/a
Status Unknown
Date Date not available

Demolition of existing rear extension and erection of a two-storey rear extension, adjoining a proposed single-storey extension to No. 17 wi...

Type n/a
Status Unknown
Date Date not available

Proposed garage conversion with front extension to habitable accommodation and new pitch roof over to cover the conversion and extension, to...

Type n/a
Status Unknown
Date Date not available

To demolish the existing house and to erect a new house on the same site. Garage to be erected to the rear to replace demolished garage.

Type n/a
Status Unknown
Date Date not available

Erection of 12 recycled shipping containers over part-one and part-two storeys with stairs, access walkways and outdoor terrace to provide n...

Type n/a
Status Unknown
Date Date not available

Proposed single storey front extension to enlarge the existing front porch. Addition of cladding at first floor level to the north, east and...

Type n/a
Status Unknown
Date Date not available

Continued occupation in excess of 10 years in breach of outline ref: A/60/43 and subsequent application A/61/420 condition no.2.

Type n/a
Status Unknown
Date Date not available

Extension into loft space to create second flat with new dormer extensions and external terrace. Alterations to first floor flat and shared ...

Type n/a
Status Unknown
Date Date not available

Remove existing rear extensions and replace with two single-storey rear extensions with associated restoration, proposed renovation and land...

Type n/a
Status Unknown
Date Date not available

Change of use of former yard and proposed erection of 2no. new dwellings, together with garden land, parking, landscaping and biodiversity e...

Type n/a
Status Unknown
Date Date not available

Proposed extension to front of dwelling, reroofing at rear to replace flat roof with pitched roof, new external covered porch to side elevat...

Type n/a
Status Unknown
Date Date not available

Works to facilitate the change of use to one dwelling with alterations to sections of the building which are attached to the listed building...

Type n/a
Status Pending Consideration
Date Date not available

Demolition of coal store and out-building on the South elevation. Demolition of lean-to on West elevation and replaced with 3 storey extensi...

Type n/a
Status Pending Consideration
Date Date not available

Demolition of coal store and out-building on the South elevation. Demolition of lean-to on West elevation and replace with 3 storey extensio...

Type n/a
Status Pending Consideration
Date Date not available

To erect 30m high 5G telecommunications mast supporting 6no. antennas, 15no. remote radio units and 2no. dishes, operator equipment cabinet,...

Type n/a
Status Unknown
Date Date not available

Reference 26/00620/HPA Received Date 17/2/2026 Application type Householder planning permission Site address 108 RIDGEWAY DRIVE, BROMLEY, BR...

Type n/a
Status Unknown
Date Date not available

Reference 26/00623/HPA Received Date 17/2/2026 Application type Householder planning permission Site address 74 GODDINGTON LANE, ORPINGTON, ...

Type n/a
Status Unknown
Date Date not available

Reference 26/00624/HPA Received Date 17/2/2026 Application type Householder planning permission Site address 7 INGLEBY WAY, CHISLEHURST, BR7...

Type n/a
Status Unknown
Date Date not available

Reference 26/00590/HPA Received Date 16/2/2026 Application type Householder planning permission Site address 8 BROOMHILL ROAD, ORPINGTON, BR...

Type n/a
Status Unknown
Date Date not available

Reference 26/00595/HPA Received Date 16/2/2026 Application type Full planning permission Site address 16 GLEN VIEW ROAD, BICKLEY, BROMLEY, B...

Type n/a
Status Unknown
Date Date not available

Reference 26/00615/HPA Received Date 16/2/2026 Application type Householder planning permission Site address 9 BRIAR LANE, WEST WICKHAM, BR4...

Type n/a
Status Unknown
Date Date not available

Reference 26/00566/HPA Received Date 13/2/2026 Application type Householder planning permission Site address BEREA, SUNDRIDGE AVENUE, BROMLE...

Type n/a
Status Unknown
Date Date not available

Reference 26/00567/HPA Received Date 13/2/2026 Application type Householder planning permission Site address 11A LAKESWOOD ROAD, PETTS WOOD,...

Type n/a
Status Unknown
Date Date not available

Reference 26/00556/HPA Received Date 12/2/2026 Application type Householder planning permission Site address 63 CROFTON AVENUE, ORPINGTON, B...

Type n/a
Status Unknown
Date Date not available

Reference 26/00559/HPA Received Date 12/2/2026 Application type Householder planning permission Site address 22 ST JOHN'S ROAD, PETTS WOOD, ...

Type n/a
Status Unknown
Date Date not available

Reference 26/00565/LDC Received Date 12/2/2026 Application type Lawful development: Proposed use Site address 35 ST GEORGES ROAD, PETTS WOOD...

Type n/a
Status Unknown
Date Date not available

Reference 26/00536/FPA Received Date 11/2/2026 Application type Full planning permission Site address 93-97 HOMESDALE ROAD, BROMLEY, BR2 9LE...

Type n/a
Status Unknown
Date Date not available

Reference 26/00512/HPA Received Date 10/2/2026 Application type Householder planning permission Site address CERISES, MOTTINGHAM LANE, MOTTI...

Type n/a
Status Unknown
Date Date not available

Reference 26/00481/LDC Received Date 09/2/2026 Application type Lawful development: Existing use Site address 8 BROKE FARM DRIVE, ORPINGTON,...

Type n/a
Status Unknown
Date Date not available

Reference 26/00485/HPA Received Date 09/2/2026 Application type Householder planning permission Site address 70 The Drive, Beckenham, BR3 1E...

Type n/a
Status Unknown
Date Date not available

Reference 26/00465/HPA Received Date 06/2/2026 Application type Householder planning permission Site address 4 WOLSEY MEWS, ORPINGTON, BR6 6...

Type n/a
Status Unknown
Date Date not available

Reference 26/00448/HPA Received Date 05/2/2026 Application type Householder planning permission Site address 18 SCOTTS AVENUE, SHORTLANDS, B...

Type n/a
Status Unknown
Date Date not available

Reference 26/00426/HPA Received Date 04/2/2026 Application type Householder planning permission Site address 17 THE GLADE, WEST WICKHAM, BR4...

Type n/a
Status Unknown
Date Date not available

Reference 26/00442/HPA Received Date 04/2/2026 Application type Householder planning permission Site address 59 WESTGATE ROAD, BECKENHAM, BR...

Type n/a
Status Unknown
Date Date not available

Reference 26/00467/ADV Received Date 04/2/2026 Application type Consent to display an advertisement Site address 135 HIGH STREET BR3 1AG Des...

Type n/a
Status Unknown
Date Date not available

Reference 26/00417/FPA Received Date 03/2/2026 Application type Full planning permission Site address LAND OUTSIDE 60, HIGH STREET, WEST WIC...

Type n/a
Status Unknown
Date Date not available

Reference 26/00373/FPA Received Date 02/2/2026 Application type Full planning permission Site address LAND OUTSIDE 165 TO 169, HIGH STREET, ...

Type n/a
Status Unknown
Date Date not available

Reference 26/00372/FPA Received Date 02/2/2026 Application type Full planning permission Site address LAND OUTSIDE UNIT 1B TO 3 COLMAN HOUSE...

Type n/a
Status Unknown
Date Date not available

Reference 26/00379/FPA Received Date 02/2/2026 Application type Full planning permission Site address Land Outside 145, High Street, Bromley...

Type n/a
Status Unknown
Date Date not available

Reference 26/00380/FPA Received Date 02/2/2026 Application type Full planning permission Site address Land Outside 100, High Street, Bromley...

Type n/a
Status Unknown
Date Date not available

Reference 26/00381/FPA Received Date 02/2/2026 Application type Full planning permission Site address Land Outside 21 Chatsworth Parade, Pet...

Type n/a
Status Unknown
Date Date not available

Reference 26/00382/FPA Received Date 02/2/2026 Application type Full planning permission Site address Land Outside 171 To 173, High Street, ...

Type n/a
Status Unknown
Date Date not available

Reference 26/00374/FPA Received Date 02/2/2026 Application type Full planning permission Site address LAND OUTSIDE 5 TO 7 CRANLEY PARADE, BE...

Type n/a
Status Unknown
Date Date not available

Reference 26/00378/FPA Received Date 02/2/2026 Application type Full planning permission Site address LAND OUTSIDE 135, HIGH STREET, ORPINGT...

Type n/a
Status Unknown
Date Date not available

Reference 26/00359/LDC Received Date 02/2/2026 Application type Lawful development: Proposed use Site address 14 BEVINGTON ROAD, BECKENHAM, ...

Type n/a
Status Unknown
Date Date not available

Reference 26/00402/ADV Received Date 02/2/2026 Application type Consent to display an advertisement Site address LAND OUTSIDE UNIT 1B TO 3 C...

Type n/a
Status Unknown
Date Date not available

Reference 26/00390/NOT Received Date 02/2/2026 Application type Prior approval Part 1 Class A.1(ea): Larger home extension Site address 73 A...

Type n/a
Status Unknown
Date Date not available

Reference 26/00375/FPA Received Date 02/2/2026 Application type Full planning permission Site address LAND ADJACENT 95 TO 97, HIGH STREET, C...

Type n/a
Status Unknown
Date Date not available

Reference 26/00377/FPA Received Date 02/2/2026 Application type Full planning permission Site address LAND AT JUNCTION WITH UPPER ELMERS END...

Type n/a
Status Unknown
Date Date not available

Reference 26/00376/FPA Received Date 02/2/2026 Application type Full planning permission Site address LAND OUTSIDE 143 TO 147, CROYDON ROAD,...

Type n/a
Status Unknown
Date Date not available

Reference 26/00329/LDC Received Date 29/1/2026 Application type Lawful development: Proposed use Site address 16 OAKFIELD GARDENS, BECKENHAM...

Type n/a
Status Unknown
Date Date not available

Reference 26/00341/FPA Received Date 29/1/2026 Application type Full planning permission Site address WENDOVER TENNIS CLUB, GLANVILLE ROAD, ...

Type n/a
Status Unknown
Date Date not available

Reference 26/00319/HPA Received Date 28/1/2026 Application type Householder planning permission Site address 7 Bickley Road, Bickley, Bromle...

Type n/a
Status Unknown
Date Date not available

Reference 26/00316/LDC Received Date 28/1/2026 Application type Lawful development: Proposed use Site address 17 GLOAD CRESCENT, ORPINGTON, ...

Type n/a
Status Unknown
Date Date not available

Reference 26/00297/LDC Received Date 27/1/2026 Application type Lawful development: Proposed use Site address 39 GODWIN ROAD, BROMLEY, BR2 9...

Type n/a
Status Unknown
Date Date not available

Reference 26/00300/HPA Received Date 27/1/2026 Application type Householder planning permission Site address 65 KENWOOD DRIVE, BECKENHAM, BR...

Type n/a
Status Unknown
Date Date not available

Reference 26/00276/LDC Received Date 26/1/2026 Application type Lawful development: Proposed use Site address 92 MERLIN GROVE, BECKENHAM, BR...

Type n/a
Status Unknown
Date Date not available

Reference 26/00257/FPA Received Date 23/1/2026 Application type Full planning permission Site address UNIT A, CROYDON ROAD INDUSTRIAL ESTATE...

Type n/a
Status Unknown
Date Date not available

Reference 26/00318/NOT Received Date 22/1/2026 Application type Prior approval Part 3 Class MA: Commercial, business and service uses to dwe...

Type n/a
Status Unknown
Date Date not available

The application seeks a Lawful Development Certificate to confirm the lawful existing use of Legal & General House and St Monica's House as ...

Type n/a
Status Registered
Date Date not available

Erection of a sculpture. This application is in CIL Zone 3 (Zero Rated) as other development.

Type n/a
Status Unknown
Date Date not available

Conversion of existing dwelling into 6 bedroom, 10 person HMO. This application is in CIL Zone 4 (Zero Rated) as other development.

Type n/a
Status Unknown
Date Date not available

Change of use from ancillary accommodation for a residential care home (Use Class C2) to a standalone residential unit (Use Class C3) at the...

Type n/a
Status Awaiting decision
Date Date not available

Erect single storey extension to rear and side with flat roof, roof lantern, installation of window to front and associated works

Type n/a
Status Pending Consideration
Date Date not available

Erect first floor extension to rear to create three self-contained flats to include installation of external staircases and creation of exte...

Type n/a
Status Pending Consideration
Date Date not available

Application Reference OT/0136/25 Application Type Reversion Application Site Address 69 Roundmead Avenue, Loughton, IG10 1PZ Proposal Propos...

Type n/a
Status Unknown
Date Date not available

Application Reference NOT/1283/26 Application Type Initial Notice Site Address 29 Durnell Way, Loughton, IG10 1TG Proposal Initial Notice - ...

Type n/a
Status Unknown
Date Date not available

Application Reference NOT/1284/26 Application Type Initial Notice Site Address 12 Riverside Avenue, Nazeing, Waltham Abbey, Broxbourne, EN10...

Type n/a
Status Unknown
Date Date not available

Application Reference BN/0061/26 Application Type Building Notice Site Address 55 Morgan Crescent, Theydon Bois, Epping, CM16 7DU Proposal R...

Type n/a
Status Unknown
Date Date not available

Application Reference BN/0064/26 Application Type Building Notice Site Address 39 London Road, Lambourne, Romford, RM4 1XA Proposal Removal ...

Type n/a
Status Unknown
Date Date not available

Application Reference FP/0056/26 Application Type Full Building Regulations Site Address 26 Ladyfields, Loughton, IG10 3RP Proposal Proposed...

Type n/a
Status Unknown
Date Date not available

Application Reference BN/0063/26 Application Type Building Notice Site Address Honeysuckle House, Back Lane, Nazeing, Waltham Abbey, EN9 2RS...

Type n/a
Status Unknown
Date Date not available

Application Reference BN/0057/26 Application Type Building Notice Site Address 3 Upshire Road, Waltham Abbey, EN9 3NP Proposal Roof replacem...

Type n/a
Status Unknown
Date Date not available

Application Reference FP/0069/26 Application Type Full Building Regulations Site Address The Farmhouse, Warlies Park Farm, Woodgreen Road, W...

Type n/a
Status Unknown
Date Date not available

Application Reference BN/0067/26 Application Type Building Notice Site Address 57 Fairfield Road, Epping, CM16 6ST Proposal Single storey re...

Type n/a
Status Unknown
Date Date not available

Application Reference NOT/1267/26 Application Type Initial Notice Site Address 39 Lower Queens Road, Buckhurst Hill, IG9 6DN Proposal Initia...

Type n/a
Status Unknown
Date Date not available

Application Reference NOT/1269/26 Application Type Initial Notice Site Address 1 The Avenue, Loughton, IG10 4PT Proposal Initial Notice -- S...

Type n/a
Status Unknown
Date Date not available

Application Reference NOT/1268/26 Application Type Initial Notice Site Address Land to the side of 11 Crossfields, Loughton, IG10 3PY Propos...

Type n/a
Status Unknown
Date Date not available

Application Reference FP/0012/26 Application Type Full Building Regulations Site Address 27 Conyers Way, Loughton, IG10 2AB Proposal Rear ex...

Type n/a
Status Unknown
Date Date not available

Application Reference BN/0008/26 Application Type Building Notice Site Address Roseleigh, High Road, Epping, CM16 5HW Proposal Plant Room & ...

Type n/a
Status Unknown
Date Date not available

Application Reference FP/0055/26 Application Type Full Building Regulations Site Address 94 York Hill, Loughton, IG10 1JA Proposal Two store...

Type n/a
Status Unknown
Date Date not available

Application Reference BN/0058/26 Application Type Building Notice Site Address 20 Lambourne Crescent, Chigwell, IG7 6EY Proposal Rear extens...

Type n/a
Status Unknown
Date Date not available

Application Reference NOT/1243/26 Application Type Initial Notice Site Address 105 Roding Road, Loughton, IG10 3EJ Proposal Initial Notice -...

Type n/a
Status Unknown
Date Date not available

Application Reference OT/0023/26 Application Type Reversion Application Site Address 122 Hainault Road, Chigwell, IG7 5DL Proposal Proposed ...

Type n/a
Status Unknown
Date Date not available

Application Reference NOT/1244/26 Application Type Initial Notice Site Address 80 Bracken Drive, Chigwell, IG7 5RD Proposal Initial Notice -...

Type n/a
Status Unknown
Date Date not available

Application Reference OT/0025/26 Application Type Reversion Application Site Address 25 Devon Close, Buckhurst Hill, IG9 5LF Proposal Single...

Type n/a
Status Unknown
Date Date not available

Application Reference OT/0024/26 Application Type Reversion Application Site Address 147 Epping New Road, Buckhurst Hill, IG9 5TZ Proposal S...

Type n/a
Status Unknown
Date Date not available

Application Reference NOT/1266/26 Application Type Initial Notice Site Address 81 Oakwood Hill, Loughton, IG10 3EP Proposal Initial Notice -...

Type n/a
Status Unknown
Date Date not available

Proposed demolition of the existing garages and the erection of replacement garages

Type n/a
Status Unknown
Date Date not available

Change of use of a dwellinghouse (Class C3) to GP surgery (Class E.e), single storey rear extension and and associated work

Type n/a
Status Unknown
Date Date not available

Partial change of use from Use Class E(a) (retail) to Use Class Sui Generis (hot food takeaway), installation of a commercial kitchen extrac...

Type n/a
Status Unknown
Date Date not available

Single storey side and rear extensions, following demolition of existing single storey extension to rear

Type n/a
Status Unknown
Date Date not available

Prior approval for a change of use from office use to residential dwelling.

Type n/a
Status Awaiting decision
Date Date not available

Prior Approval under the provisions of Schedule 2, Part 3, Class MA of The Town and Country Planning (General Permitted Development) (Englan...

Type n/a
Status Pending Consideration
Date Date not available

Blocks G3 and G4, Lampton Parkside, Hounslow, TW3 4DJ | PF-Full Applications | Change of use of nine self contained units within block G3 an...

Type n/a
Status Unknown
Date Date not available

Millennium House, 51 High Street, Feltham, TW13 4AB | PF-Full Applications | Erection of a three-storey detached house with undercroft car p...

Type n/a
Status Unknown
Date Date not available

Certificate of Existing Lawful Development for the use of the Annexe as a seperate dwellinghouse for in excess of 5 years.

Type n/a
Status Pending Consideration
Date Date not available

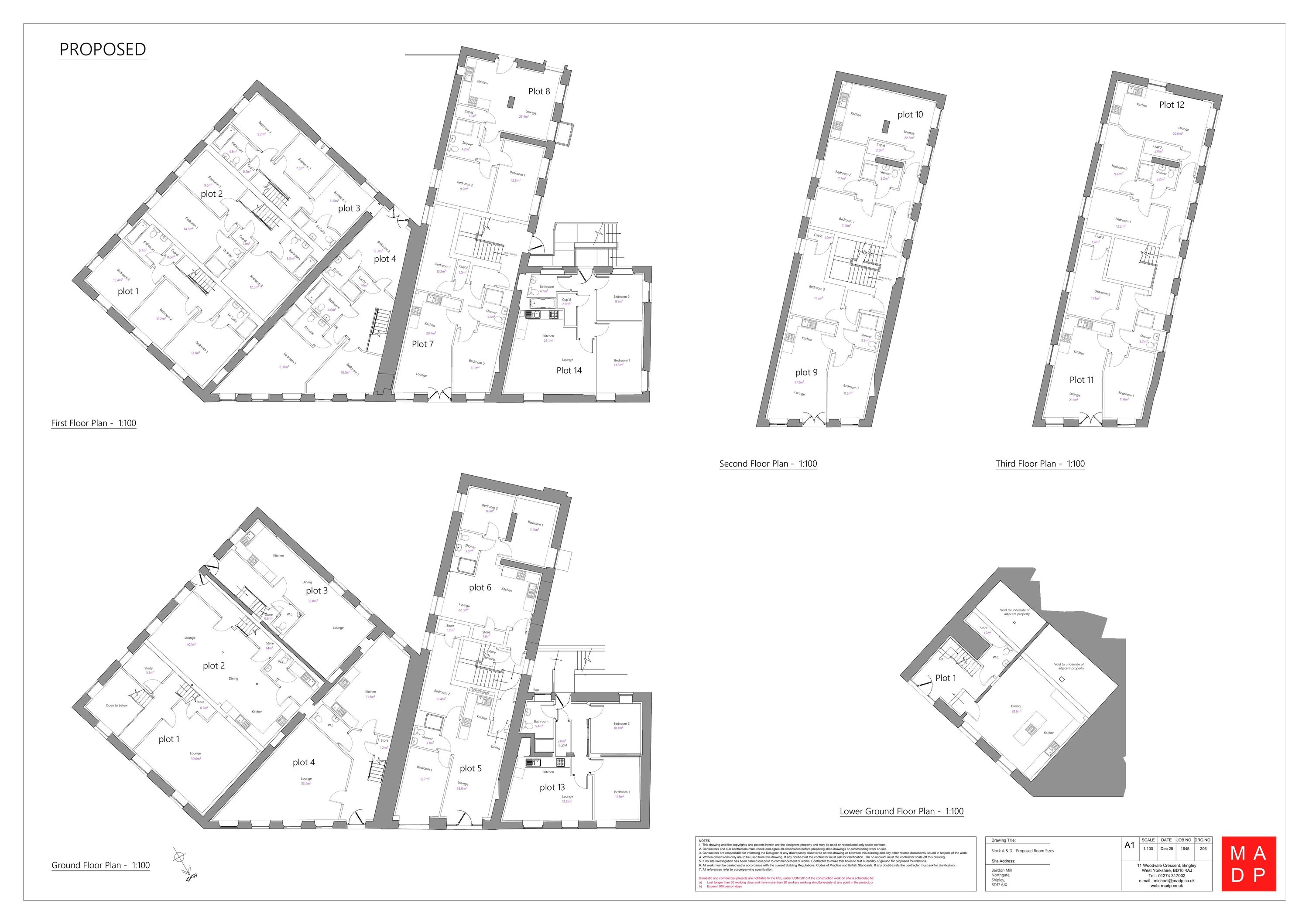
Reserved Matters submission in respect of appearance, landscaping, layout and scale following outline consent 0332/19 for the erection of 29...

Type n/a
Status Teignbridge
Date Date not available

Conversion of coach house to holiday unit, extension to existing outhouse for additional storage, plus double garage with additional parking...

Type n/a
Status West Devon
Date Date not available

Retrospective application for change of use from agricultural to F1 (learning and non-residential institutions)

Type n/a
Status Teignbridge
Date Date not available

T1 Oak - Fell  T2 Sycamore - Fell  T3 Lime - Pollard  T4 Sycamore - Remove Dead Wood  T5 Holly - Reduce Dead Wood

Type n/a
Status Teignbridge
Date Date not available

Rear two storey extension to form utility room on ground floor and enlarge existing first floor bathroom to provide disabled shower

Type n/a
Status Teignbridge
Date Date not available

T1 Sycamore - 5m crown lift  T2 Sycamore -5m crown lift  T3 Mixed stand of hedge trees which requires crown lifting

Type n/a
Status Teignbridge
Date Date not available

Repair and renovate box-sash windows including one replacement  to rear with openable window and balcony and alterations to stairwell

Type n/a
Status Teignbridge
Date Date not available

Construction of a single storey rear extension projecting 4M from the original rear wall of the dwelling, comprising new foundations, extern...

Type n/a
Status Pending Consideration
Date Date not available

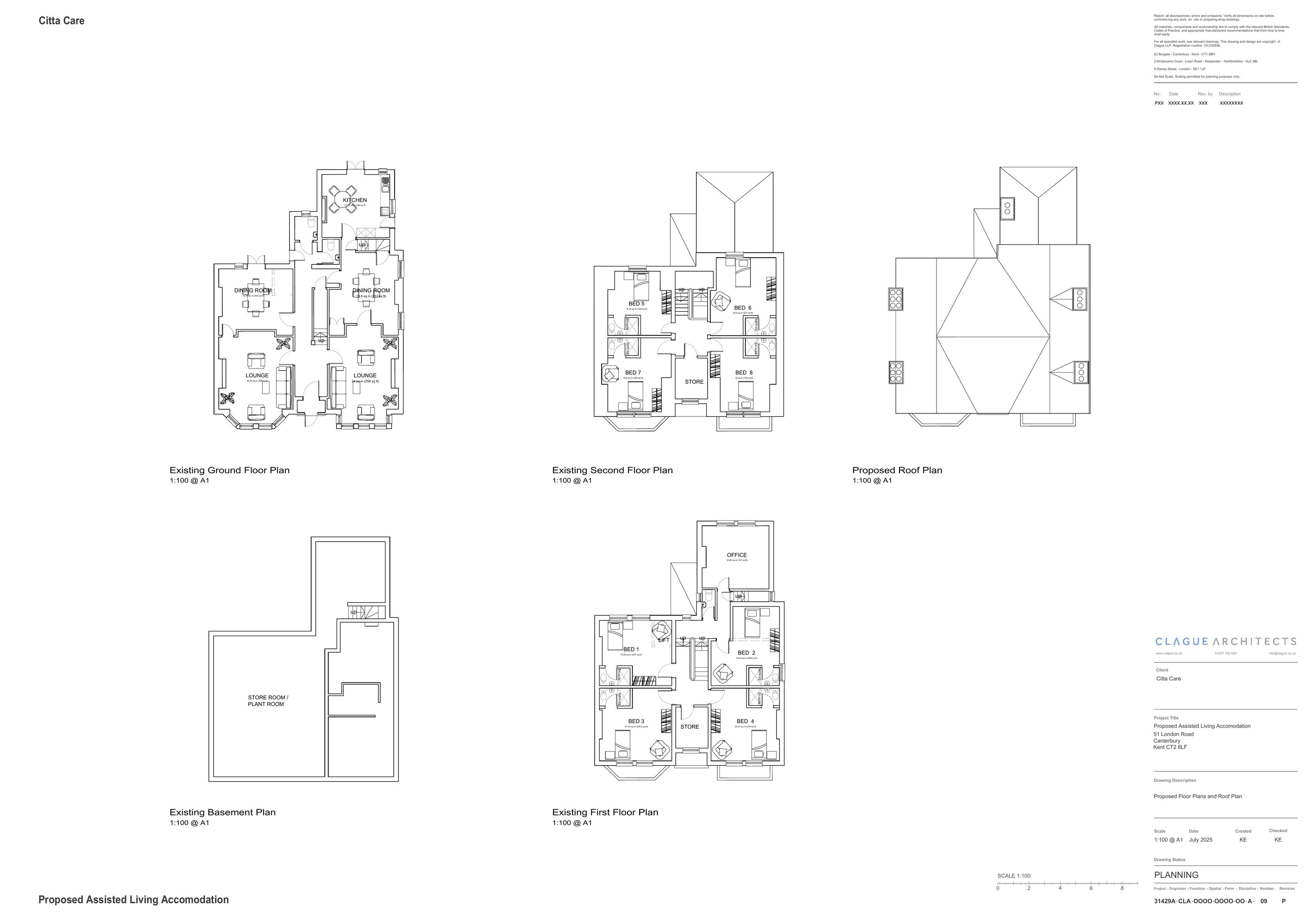
Erection of four units for residential care for children (Use Class C2) with associated development comprising access, parking, landscaping ...

Type n/a
Status Pending Consideration
Date Date not available

Erection of a two-storey, 66-bedroom care home for older people (Use Class C2), with associated access, parking, open space, landscaping and...

Type n/a
Status Unknown
Date Date not available

Demolition of redundant chimney stack and making good tiled roof and part tiled, part brick elevation to match existing.

Type n/a
Status Unknown
Date Date not available

Change of use from Class C3 to C4 (5 Bedroom HMO) comprising of up 5 bedrooms including rear extension and internal alterations.

Type n/a
Status Unknown
Date Date not available

Proposed single & two story front and rear extensions, proposed roof extension & rear dormer and proposed garage alterations

Type n/a
Status Unknown
Date Date not available

Retrospective planning permission for the siting of a non-residential, non-habitable welfare unit used during daytime hours in connection wi...

Type n/a
Status Unknown
Date Date not available

Reserved matters application for the formation of access following outline permission RR/2022/1246/P for the erection of an inpatient mental...

Type n/a
Status Unknown
Date Date not available

Revised scheme to RR/2024/1369/P for external and internal alterations including recladding exterior of building, new windows and doors, con...

Type n/a
Status Unknown
Date Date not available

Proposals to extend to the front and rear of the property and link the detached garage to the house complete with new roof along with intern...

Type n/a
Status Unknown
Date Date not available

Erection of a single storey, timber frame garage and workshop to the rear of the property to replace an existing shed and greenhouse.

Type n/a
Status Unknown
Date Date not available

Proposed erection of a double garage within the rear garden and internal alterations to the existing dwelling.

Type n/a
Status Unknown
Date Date not available

Part demolition of workshop and making good to allow new access into Rother Valley Caravan Park. Swap warden Lodge location approved under R...

Type n/a
Status Unknown
Date Date not available

Proposed 2 Storey Front and Rear Extensions to Building and change of surface material to roof. Rear extension to include first floor balcon...

Type n/a
Status Unknown
Date Date not available

Remove existing rear extensions and replace with two single-storey rear extensions with associated restoration, proposed renovation and land...

Type n/a
Status Unknown
Date Date not available

Request to enter into a Deed of Variation to modify a Planning Obligation dated 3.12.21 relating to planning application BN/142/20/OUT to mo...

Type n/a
Status Unknown
Date Date not available

Notification under extended permitted development rights for a single storey rear extension extending 4m beyond the rear wall of the origina...

Type n/a
Status Unknown
Date Date not available

Proposed two storey rear extension and single storey side porch and new windows to side north elevation.

Type n/a
Status Unknown
Date Date not available

Lawful development certificate for a proposed new front door entrance replacing an existing window on the front elevation of the house and n...

Type n/a
Status Unknown
Date Date not available

Change of use from 10 bedroom guest house, to 8 bedroom House in Multiple Occupation, with associated alterations.

Type n/a
Status Unknown
Date Date not available

Two storey side extension with first floor over existing garage to create a habitable room.

Type n/a
Status Unknown
Date Date not available

Proposal for the installation of two rapid electric vehicle charging stations, ancillary equipment and signage within the car park of Tranme...

Type n/a
Status Unknown
Date Date not available
Plan thumbnail

Installation of a multifunctional communication Hub including defibrillator and advertisement display

Type n/a
Status Registered
Date Date not available

Replacement of the existing aluminium glazed lean to roof with a like-for-like thermally broken aluminium system, matching the current pitch...

Type n/a
Status Registered
Date Date not available

Demolition of shed and erection of single-storey rear extension with associated internal works. Replacement outrigger roof coverings with sl...

Type n/a
Status Registered
Date Date not available

Demolition of shed and erection of single-storey rear extension with associated internal works. Replacement outrigger roof coverings with sl...

Type n/a
Status Registered
Date Date not available

Proposal for erection of a second floor mansard roof extension with associated works.

Type n/a
Status Registered
Date Date not available

Installation of a multifunctional communication Hub including defibrillator and advertisement display.

Type n/a
Status Registered
Date Date not available

Certificate of lawful development (proposed): Conversion of dwelling into house of multiple occupancy for upto 6 persons (Use class C4)

Type n/a
Status Unknown
Date Date not available

Certificate of Lawful Development (Proposed): Conversion of single dwelling to six person HMO (no external alterations)

Type n/a
Status Unknown
Date Date not available

Single and two storey front and rear extensions; conversion of garage to habitable room; single storey side extension; alterations to window...

Type n/a
Status Unknown
Date Date not available

Certificate of lawful development (proposed): Rear dormer; installation of three rooflight in front roofslope

Type n/a
Status Unknown
Date Date not available

Conversion of dwelling from a single flat to 2 x 1 bed flats; Installation of door in side elevation; Refuse and cycle storage

Type n/a
Status Unknown
Date Date not available

Determination as to whether the prior approval of the local authority is required for the change of use of 3 no. agricultural barns on the w...

Type n/a
Status Pending Consideration
Date Date not available

Variation to conditions 2 & 5 to approved planning application 25/01007/FUL (Demolition of two agricultural buildings and construction of ne...

Type n/a
Status Pending Consideration
Date Date not available

Demolition of existing stable and barn. Relocation and extension of an existing building and erection of a new building to provide one dwell...

Type n/a
Status Pending Consideration
Date Date not available

Change of use from cafe to dwelling including altering the facade, new boundary treatment to the front and new pitched roof to replace the f...

Type n/a
Status Awaiting decision
Date Date not available

Retrospective application for the retention of a rear extension at second floor level, on top of the existing back addition and retention of...

Type n/a
Status Pending Consideration
Date Date not available
Plan thumbnail

Erection of a timber clad garden building to be used as an office to the rear of the rear garden, following the removal of the existing gard...

Type n/a
Status Pending Consideration
Date Date not available

Change of use of the existing property from a single dwellinghouse (Class C3) into a large HMO (Class Sui Generis) to accommodate up to 7 pe...

Type n/a
Status Pending Consideration
Date Date not available

De-conversion of the existing building from 3no self-contained flats into a single family dwellinghouse; erection of an additional floor at ...

Type n/a
Status Pending Consideration
Date Date not available

Change of use of the existing building from offices (Class E) into 27 self-contained residential flats (Class C3) comprising of 11 x 1 bedro...

Type n/a
Status Pending Consideration
Date Date not available

Change of use of the existing building from offices (Class E) into 2 x 1 bedroom and 2 x 2 bedroom self-contained residential flats (Class C...

Type n/a
Status Pending Consideration
Date Date not available

Erection of a rear roof extension; erection of a part one, part two storey rear extension at ground and first floor level to the side and re...

Type n/a
Status Pending Consideration
Date Date not available

Continued use of the front part of the flat roof at first floor level as a roof terrace.

Type n/a
Status Pending Consideration
Date Date not available

Application for reserved matters relating to 20/02064/OUT (Outline application for residential development for up to 512 dwellings including...

Type n/a
Status Pending Consideration
Date Date not available

Erection of a rear roof extension, involving an increase in the ridge height by 350mm; erection of a rear extension at second floor level, o...

Type n/a
Status Pending Consideration
Date Date not available

Erection of a two storey rear extension at first and second floor level, over part of the existing back addition in connection with the conv...

Type n/a
Status Pending Consideration
Date Date not available

Change of use of the basement and ground floor level from office use (Class E) into 2no. self-contained flats (Class C3), comprising of a se...

Type n/a
Status Pending Consideration
Date Date not available

Sycamore - rear garden - Remove - Poor specimen growing too close to the house Buddleia - rear garden - Remove - Destroying garden wall. Bec...

Type n/a
Status Pending Consideration
Date Date not available

Discharge of Condition 5. (Landscaping)7. (Biodiversity Enhancement Strategy) Planning permission ref: 2025/00195/FUL - Proposed extensions ...

Type n/a
Status Unknown
Date Date not available

Demolition of existing outbuilding/ utility room and replacement with a full width single storey extension at the back of the house, and a g...

Type n/a
Status Unknown
Date Date not available

Outline planning application for the construction of 3 dwellinghouses (matters to be considered at this stage: access).

Type n/a
Status Registered
Date Date not available
Plan thumbnail

Prior approval submission for a proposed rear extension projecting 5.29 metres from the rear wall of the original dwellinghouse with a heigh...

Type n/a
Status Registered
Date Date not available
Plan thumbnail

Change of use of Housing Manager's Flat to be used as an age-restricted dwelling

Type n/a
Status Registered
Date Date not available

Certificate of Existing Lawful Development for Use as a house in multiple occupation

Type n/a
Status Current
Date Date not available

Proposed side dormer, the renewal of the roof slates; the installation of 2no. Conservation roof lights to the front and rear roofs; a roofl...

Type n/a
Status Unknown
Date Date not available

Prior approval for a larger home extension for the erection of a single-storey rear extension, measuring up to 6m in depth, with an eaves he...

Type n/a
Status Unknown
Date Date not available

Erection of single-storey extension to third floor; installation of external play area at proposed roof level in association with existing u...

Type n/a
Status Unknown
Date Date not available

Change of use of existing ground and first floor office space (Use Class E) to provide four residential units (Use Class C3), together with ...

Type n/a
Status Unknown
Date Date not available

New self build single storey dwelling to rear of Beverley House with amended access and parking.

Type n/a
Status Registered
Date Date not available

Construction of single storey rear extension of the following dimensions: Depth of proposed extension from rear wall of original dwellinghou...

Type n/a
Status Pending Consideration
Date Date not available

Construction of a single storey rear extension to accommodate a commercial unit (office/shops) including associated access with the existing...

Type n/a
Status Pending Consideration
Date Date not available

DEMOLITION OF EXISTING STABLES AND ANCILLARY BUILDINGS AND ERECTION OF TWO DETACHED BUNGALOWS

Type Full planning
Status Awaiting a Decision
Date Date not available

Lawful Development Certificate (proposed) ERECTION OF REAR DORMER EXTENSION

Type Lawful development certificate (ldc)
Status Awaiting a Decision
Date Date not available

Conversion of the existing garage into a Guest Bedroom and Utility, changes to the existing window and door openings and additional roofligh...

Type Householder planning
Status Awaiting a Decision
Date Date not available

Loft conversion with rear dormer, single storey rear extension and new front porch, front roof lights

Type Householder planning
Status Awaiting a Decision
Date Date not available

Erection of a single storey side/rear extension and extension to existing patio.

Type Householder planning
Status Awaiting a Decision
Date Date not available

Outline planning application with all matters reserved (other than principal means of access to the highway) for the construction of up to 1...

Type Outline planning
Status Awaiting a Decision
Date Date not available

Removal of of temporary buildings and extension of the existing school building, including associated works, parking areas and laying of all...

Type Lawful development certificate (ldc)
Status Awaiting a Decision
Date Date not available

Erection of single storey rear extension and 1st floor side extension, replacement/enlargement of windows.

Type Householder planning
Status Awaiting a Decision
Date Date not available

Change of use from Use Class C2 (institutional) to Use Class C3 (residential dwellinghouse)

Type Full planning
Status Awaiting a Decision
Date Date not available

Erection of small bike store and timber pergola in rear garden, erection of timber fences at front and rear of the site.

Type Lawful development certificate (ldc)
Status Awaiting a Decision
Date Date not available

Erection of detached garage in front garden to serve existing house and associated landscaping works including soil infilling (approx 450mm)...

Type Householder planning
Status Awaiting a Decision
Date Date not available

Demolition of the existing building and erection of 1 x dwelling, parking and landscaping

Type Full planning
Status Awaiting a Decision
Date Date not available

Single storey front, side and rear extensions to dwelling (hall, kitchen, living room and enlargement of bedroom)

Type n/a
Status Pending Consideration
Date Date not available

Demolition of rear section of existing building. Single storey side and rear extensions to dwelling house with new external decking area

Type n/a
Status Pending Consideration
Date Date not available

Demolition of rear section of existing building. Single storey side and rear extensions to dwelling house with new external decking area

Type n/a
Status Pending Consideration
Date Date not available

Two storey side extension to dwellinghouse (kitchen, dining. utility area and two bedrooms)

Type n/a
Status Pending Consideration
Date Date not available

Erection of 4 x five-bedroom and 1 x two-bedroom dwellings and 4 single garages, inclusive of new access, associated car parking spaces and ...

Type n/a
Status Pending Consideration
Date Date not available

Single storey side/rear extension to dwelling house (kitchen and cloaks) and installation of a new roof to the existing single storey rear e...

Type n/a
Status Pending Consideration
Date Date not available

Use of the building as a large house in multiple occupation (Sui Generis)

Type n/a
Status Pending Consideration
Date Date not available

Single storey side and rear extension, render to all walls, addition of pitched tiled roof, enlarged residential garden to serve dwelling an...

Type n/a
Status Pending Consideration
Date Date not available

Construction of residential development - 1 No 3 bed detached house, 2 No 2 bed flats, 3 No 2 bed semi-detached houses and 2 No 3 bed semi-d...

Type n/a
Status Pending Consideration
Date Date not available

Use of dwellinghouse (Use Class C3) as a small children's home (Use Class C2) for up to two children (aged 7-18 years old).

Type n/a
Status Awaiting decision
Date Date not available

Retrospective application for alterations to front elevation at ground floor level, erection of part two storey, part first floor, part sing...

Type n/a
Status Pending Consideration
Date Date not available
Plan thumbnail

Installation of an electric vehicle charge point on the front of the dwelling, with associated cable channel in the footway outside the prop...

Type n/a
Status Under consideration
Date Date not available

Outline planning with all matters reserved (except access and layout) for the phased development of five open market / custom-build / self-b...

Type n/a
Status Under consideration
Date Date not available

Proposed change of use of first floor from kitchen showroom (A1) to fitness studio (D2)

Type n/a
Status Unknown
Date Date not available

Resubmission of proposed single storey front extension to include porch, rear extension to include shower room and utility room, and associa...

Type n/a
Status Unknown
Date Date not available

Installation of a proposed new Global street hub, including the associated display of advertisements on both side of the unit

Type n/a
Status Unknown
Date Date not available

Installation of a proposed new Global street hub, including the associated display of advertisements on both sides of the unit

Type n/a
Status Unknown
Date Date not available

Prior approval for the construction of a single storey rear extension which would extend 4.00m beyond the rear wall of the existing dwelling...

Type n/a
Status Unknown
Date Date not available

Prior approval for the construction of a single storey rear extension which would extend 6.00m beyond the rear wall of the existing dwelling...

Type n/a
Status Unknown
Date Date not available

Lawful Development Certificate (Proposed) - Construction of a mansard roof extension to main rear roof.

Type n/a
Status Unknown
Date Date not available

Prior approval for the construction of a single storey rear extension which would extend 4.00m beyond the rear wall of the existing dwelling...

Type n/a
Status Unknown
Date Date not available

Lawful Development Certificate (Proposed) - Construction of dormer roof extension to main rear roof (with Juliette balcony and safety surrou...

Type n/a
Status Unknown
Date Date not available

Prior approval for the construction of a single storey rear infill extension which would extend 5.72m beyond the original rear wall of the e...

Type n/a
Status Unknown
Date Date not available

Lawful Development Certificate (Proposed) - Construction of a hip to gable side roof extension, and dormer roof extension to main rear roof,...

Type n/a
Status Unknown
Date Date not available

Reference BC/26/0800 Application type Regularisation Application Site address 285 BASINGSTOKE ROAD, READING, RG2 0JA Description of works Lo...

Type n/a
Status Unknown
Date Date not available

Reference BC/26/0817 Application type Full Building Regulations Site address 1 FALMOUTH ROAD, READING, RG2 8QR Description of works Single S...

Type n/a
Status Unknown
Date Date not available

Reference BC/26/0820 Application type Full Building Regulations Site address 26 MILMAN ROAD, READING, RG2 0AY Description of works Single si...

Type n/a
Status Unknown
Date Date not available

Reference BC/26/0821 Application type Building Notice Site address 59 HONEY END LANE, READING, RG30 4EL Description of works Conversion of a...

Type n/a
Status Unknown
Date Date not available

Reference BC/26/0828 Application type Initial Notice Site address 5B PARKSIDE ROAD, READING, RG30 2DA Description of works Garage conversion...

Type n/a
Status Unknown
Date Date not available

Reference BC/26/0829 Application type Initial Notice Site address AQUIS HOUSE, BLAGRAVE STREET, Reading, RG1 1PL Description of works REPLAC...

Type n/a
Status Unknown
Date Date not available

Reference BC/26/0830 Application type Initial Notice Site address 126 & 128 Blandford Road, Reading, RG2 8RX Description of works Constructi...

Type n/a
Status Unknown
Date Date not available

Lawful development certificate for the proposed replacement of fence panels to metal fencing.

Type n/a
Status Unknown
Date Date not available

Change of use from equestrian to secure dog exercising and associated development. This application is a Departure from the Development Plan...

Type n/a
Status Unknown
Date Date not available

To erect a single storey extension to front, side and rear with dropped kerb to front creating 1no. parking space following demolition of ex...

Type n/a
Status Unknown
Date Date not available

Installation of external wall insulation with silicone render finish to rear/gable elevations and to increase the height of the eaves level ...

Type n/a
Status Unknown
Date Date not available

I nstallation of external wall insulation with silicone render finish to rear/gable elevations and to increase the height of the eaves level...

Type n/a
Status Unknown
Date Date not available

Installation of external wall insulation with silicone render finish to rear/gable elevations and to increase the height of the eaves level ...

Type n/a
Status Unknown
Date Date not available

Installation of External Wall Insulation with silicone render finish to rear/gable elevations and to increase the height of the eaves level ...

Type n/a
Status Unknown
Date Date not available

To erect a first-floor extension above existing office accommodation to provide ancillary meeting rooms and welfare facilities.

Type n/a
Status Unknown
Date Date not available

Proposed change of use from C3 single family dwelling to C2 childrens care home (residential) for a maximum of three children and up to six ...

Type n/a
Status Unknown
Date Date not available

Proposed change of use from C3 single family dwelling to C2 childrens care home (residential) for a maximum of three children and up to six ...

Type n/a
Status Unknown
Date Date not available

Retention of holiday let to unrestricted residential dwelling and change of use of agricultural land to residential garden

Type n/a
Status Awaiting decision
Date Date not available

Roof repairs, window repairs and alterations, and repairs and redecoration of render and decorative metalwork.

Type n/a
Status Unknown
Date Date not available

Relocation of entrance, replacement of shop-front, fascia, signage, roller shutter, installation of folding canopy and external wall art pai...

Type n/a
Status Unknown
Date Date not available

Application under Prior Approval for single storey rear extension. The extension will be 5.66 metres away from the original rear wall of the...

Type n/a
Status Unknown
Date Date not available

Network House,Hounslow Road,Feltham,TW14 9AD | Advertisement Application | Installation of 1no. internally illuminated 48 sheet digital LED ...

Type n/a
Status Unknown
Date Date not available

5 Upper Butts,Brentford,TW8 8DA | Works to Trees in Conservation Area | Works to trees in a Conservation Area - 1 X Bay tree (no.1 on plan) ...

Type n/a
Status Unknown
Date Date not available

68 Southcote Avenue, Feltham, TW13 4EG | Prior Approval Larger Home Extension | Ground floor rear extension 6.00 metres deep, maximum height...

Type n/a
Status Unknown
Date Date not available

Certificate of Proposed Lawful Development for childminding at residential property

Type n/a
Status Current
Date Date not available

Change of use and conversion of the existing Roundhouse to provide indoor and outdoor leisure facilities inclusive of enclosed Padel courts,...

Type n/a
Status Current
Date Date not available
Plan thumbnail

Change of use of existing ground floor retail unit with offices above, to hospitality research and development with offices above; installat...

Type n/a
Status Current
Date Date not available

Single storey rear extension; new roof to existing flat roof extension, including removal of balustrade to rear

Type n/a
Status Current
Date Date not available

Change of use of the first floor level into five flats with creation of new entrance door to front; new windows to first floor

Type n/a
Status Current
Date Date not available

Change of use from dwelling house (use Class C3) to House in Multiple Occupation (use Class C4), dormer to rear and other elevational altera...

Type n/a
Status Awaiting decision
Date Date not available

Erection of single storey extension extending 4.74 metres beyond the rear wall of the original house, with a height to the eaves of 2.80 met...

Type n/a
Status Awaiting decision
Date Date not available

Demolition of existing domestic office, workshop and storage building and construction of new two bedroom house

Type n/a
Status Pending Consideration
Date Date not available

T1 Beech - Reduce by 3m max, remaining 9m height *approximately. Removing end loading, secondary growth only. For garden light allowance due...

Type n/a
Status Pending Consideration
Date Date not available

Construction of single storey rear extension of the following dimensions: Depth of proposed extension from rear wall of original dwellinghou...

Type n/a
Status Pending Consideration
Date Date not available

Construction of a self-build detached dwellinghouse and vehicular access from Victoria Road together with associated hardstanding and landsc...

Type n/a
Status Registered
Date Date not available

Notification of agricultural or forestry development under Schedule 2, Part 6 of the Town and Country Planning (General Permitted Developmen...

Type n/a
Status Registered
Date Date not available

Single storey rear extension to dwelling house (kitchen/dining space)

Type House extension
Status Pending Consideration
Date Date not available

Change of use from a chiropractic clinic (Use Class E) to a dwelling house (Use Class C3)

Type Change of use
Status Pending Consideration
Date Date not available

Change of use from a house in multiple occupation (Use Class C4) to a residential children's home (Use Class C2)

Type Change of use
Status Pending Consideration
Date Date not available

Change of use of the first floor flat from a five bedroom (five occupant) flat in multiple occupation (Use Class C4) to a six bedroom (six o...

Type Change of use
Status Pending Consideration
Date Date not available

Two storey and first floor rear extensions to dwelling house (living space, bedroom and enlargement of bedroom)

Type House extension
Status Pending Consideration
Date Date not available

Single storey rear extension to dwelling house (kitchen and living room)

Type House extension
Status Pending Consideration
Date Date not available

Change of use from vacant Massage Parlour/Thai Spa to a residential flat; external alterations including new and replacement windows and doo...

Type Change of use
Status Current
Date Date not available

Change of use from hotel (use class C1) to house of multiple occupancy (use class C4) and construction of cycle store

Type Change of use
Status Registered
Date Date not available

Application for permission in principle for the erection of minimum of 1 and a maximum of 2 dwellings

Type New housing
Status Registered
Date Date not available

Application for Permission in Principle for extensions and redevelopment of the existing house and the creation of an additional detached dw...

Type New housing
Status Registered
Date Date not available

Refurbishment of Flat 2 (internal residential works).

Type Other
Status Unknown
Date Date not available

Installation of cavity wall insulation at 72 Charterhouse Road.

Type Other
Status Unknown
Date Date not available

Cavity wall insulation works at Blake House, Keates House and Byron House.

Type Other
Status Unknown
Date Date not available

Installation of cavity wall insulation at Oast House Cottage.

Type Other
Status Unknown
Date Date not available

Install new piled raft and reconstruct six garages.

Type Industrial
Status Unknown
Date Date not available

Demolition of industrial unit (Unit 20) at Gardner Industrial Estate.

Type Demolition
Status Unknown
Date Date not available

Two-storey extension and internal alterations to house at 6 Wilderness Road.

Type House extension
Status Unknown
Date Date not available

Two-storey side and part one/two-storey rear extension at 156 Homesdale Road.

Type House extension
Status Unknown
Date Date not available

Erection of a seven-bedroom dwelling house at Steadhurst, St. Nicolas Lane.

Type New housing
Status Unknown
Date Date not available

Demolition of 111–117 Star Lane, St Mary's Cray.

Type Demolition
Status Unknown
Date Date not available

Reference 00/00001/DEXFP3 Application type Full Building Regulations Site address 17 Old Manor Way, Chislehurst, Kent, BR7 5XS Description o...

Type House extension
Status Unknown
Date Date not available

Reference 00/00003/OTHBN6 Application type Building Notice Site address 71 Clarendon Way, Chislehurst, BR7 6RG Description of works Conversi...

Type House extension
Status Unknown
Date Date not available

Reference 00/00004/DEXBN2 Application type Building Notice Site address 30 Goldfinch Close, Orpington, Kent, BR6 6NF Description of works Si...

Type House extension
Status Unknown
Date Date not available

Reference 00/00005/DEXBN2 Application type Building Notice Site address Land R/O Fairy Hall Cottage , Court Farm Road, London, SE9 4JL Descr...

Type House extension
Status Unknown
Date Date not available

Reference 00/00006/MULFP Application type Full Building Regulations Site address 21 Bramerton Road, Beckenham, Kent, BR3 3NZ Description of ...

Type House extension
Status Unknown
Date Date not available

Reference 00/00007/OTHFP6 Application type Full Building Regulations Site address 1A Westholme, Orpington, Kent, BR6 0AN Description of work...

Type Change of use
Status Unknown
Date Date not available

Reference 00/00008/OTHFPA Application type Full Building Regulations Site address 220-222 High Street, Bromley, BR1 1PW Description of works...

Type Commercial
Status Unknown
Date Date not available

Reference 00/00009/DEXFP3 Application type Full Building Regulations Site address 23 Fontwell Drive, Bromley, BR2 8AB Description of works T...

Type House extension
Status Unknown
Date Date not available

Reference 00/00010/DEXFP3 Application type Full Building Regulations Site address 6 Cheriton Avenue, Bromley, BR2 9DD Description of works S...

Type House extension
Status Unknown
Date Date not available

Reference 00/00011/DEXFP3 Application type Full Building Regulations Site address 34 Ancaster Road, Beckenham, Kent, BR3 4DY Description of ...

Type House extension
Status Unknown
Date Date not available

Reference 00/00013/OTHFPS Application type Full Building Regulations Site address 10-14 High Street, Bromley, BR1 1EA Description of works I...

Type Other
Status Unknown
Date Date not available

Reference 00/00015/CAVNF Application type Competent Person Site address 9 Barham Close, Bromley, BR2 8LU Description of works Cavity wall in...

Type Other
Status Unknown
Date Date not available

Reference 00/00016/CAVNF Application type Competent Person Site address 86 Parish Lane, London, SE20 7NP Description of works Cavity wall in...

Type Other
Status Unknown
Date Date not available

Reference 00/00017/CAVNF Application type Competent Person Site address 166 Court Road, Orpington, Kent, BR6 0PY Description of works Cavity...

Type Other
Status Unknown
Date Date not available

Reference 00/00020/CAVNF Application type Competent Person Site address 5 Ravendale , Spencer Road, Bromley, BR1 3SX Description of works Ca...

Type Other
Status Unknown
Date Date not available

Reference 00/00021/CAVNF Application type Competent Person Site address Ashgrove , Luxted Road, Orpington, Kent, BR6 7JX Description of work...

Type Other
Status Unknown
Date Date not available

Reference 00/00022/CAVNF Application type Competent Person Site address 18 Rushdene Walk, Biggin Hill, Westerham, Kent, TN16 3UG Description...

Type Other
Status Unknown
Date Date not available

Reference 00/00023/CAVNF Application type Competent Person Site address Pippins , Cherrycot Rise, Orpington, Kent, BR6 7DL Description of wo...

Type Other
Status Unknown
Date Date not available

Reference 00/00024/CAVNF Application type Competent Person Site address 107 Rangefield Road, Bromley, BR1 4RG Description of works Cavity wa...

Type Other
Status Unknown
Date Date not available

Reference 00/00025/CAVNF Application type Competent Person Site address 7 Aycliffe Close, Bromley, BR1 2LX Description of works Cavity wall ...

Type Other
Status Unknown
Date Date not available

Reference 00/00026/CAVNF Application type Competent Person Site address 20 Ash Close, London, SE20 7RE Description of works Cavity wall insu...

Type Other
Status Unknown
Date Date not available

Reference 00/00027/CAVNF Application type Competent Person Site address 18 Pawleyne Close, London, SE20 8JH Description of works Cavity wall...

Type Other
Status Unknown
Date Date not available

Reference 00/00029/CAVNF Application type Competent Person Site address 10 Pawleyne Close, London, SE20 8JH Description of works Cavity wall...

Type Other
Status Unknown
Date Date not available

Reference 00/00031/CAVNF Application type Competent Person Site address Cranford , Leafy Grove, Keston, Kent, BR2 6AH Description of works C...

Type Other
Status Unknown
Date Date not available

Reference 00/00034/CAVNF Application type Competent Person Site address 34 Wickham Road, Beckenham, Kent, BR3 5JT Description of works Cavit...

Type Other
Status Unknown
Date Date not available

Reference 00/00035/CAVNF Application type Competent Person Site address 1 Ringmer Way, Bickley, Bromley, BR1 2TY Description of works Cavity...

Type Other
Status Unknown
Date Date not available

Reference 00/00036/CAVNF Application type Competent Person Site address Fieldview , Hawthorne Avenue, Biggin Hill, Westerham, Kent, TN16 3SG...

Type Other
Status Unknown
Date Date not available

Reference 00/00037/CAVNF Application type Competent Person Site address 2 Corn Mill Drive, Orpington, Kent, BR6 0TB Description of works Cav...

Type Other
Status Unknown
Date Date not available

Reference 00/00038/OTHBN6 Application type Building Notice Site address 42 Murray Avenue, Bromley, BR1 3DQ Description of works Recovering o...

Type Other
Status Unknown
Date Date not available

Reference 00/00039/OTHBN6 Application type Building Notice Site address 418 Southborough Lane, Bromley, BR2 8BH Description of works Convers...

Type Other
Status Unknown
Date Date not available

Reference 00/00040/DEXBN3 Application type Building Notice Site address 64 Ridgeway Drive, Bromley, BR1 5DQ Description of works Single stor...

Type House extension
Status Unknown
Date Date not available

Reference 00/00041/OTHFP6 Application type Full Building Regulations Site address Flat 65, Riverside Walk , The Alders, West Wickham, Kent, ...

Type Other
Status Unknown
Date Date not available

Reference 00/00042/DEXFP3 Application type Full Building Regulations Site address 12 Coates Hill Road, Bromley, BR1 2BJ Description of works...

Type House extension
Status Unknown
Date Date not available

Reference 00/00043/DEXFP4 Application type Full Building Regulations Site address 42 Oxhawth Crescent, Bromley, BR2 8BL Description of works...

Type House extension
Status Unknown
Date Date not available

Reference 00/00045/DEXFP1 Application type Full Building Regulations Site address 41 Dawson Avenue, Orpington, Kent, BR5 3AY Description of ...

Type House extension
Status Unknown
Date Date not available

Reference 00/00046/DEXFP3 Application type Full Building Regulations Site address 120 Greenview Avenue, Beckenham, Kent, BR3 3RU Description...

Type House extension
Status Unknown
Date Date not available

Reference 00/00048/CAVNF Application type Competent Person Site address 66 Rolleston Avenue, Orpington, Kent, BR5 1AL Description of works C...

Type Other
Status Unknown
Date Date not available

Reference 00/00049/CAVNF Application type Competent Person Site address Maywood , Hawthorne Road, Bromley, BR1 2HG Description of works Cavi...

Type Other
Status Unknown
Date Date not available

Reference 00/00050/CAVNF Application type Competent Person Site address 43 Andover Road, Orpington, Kent, BR6 8BW Description of works Cavit...

Type Other
Status Unknown
Date Date not available

Reference 00/00051/CAVNF Application type Competent Person Site address 4 Lindsey Close, Bromley, BR1 2HE Description of works Cavity wall i...

Type Other
Status Unknown
Date Date not available

Reference 00/00054/CAVNF Application type Competent Person Site address 8 Priorsford Avenue, Orpington, Kent, BR5 2EW Description of works C...

Type Other
Status Unknown
Date Date not available

Reference 00/00058/CAVNF Application type Competent Person Site address 24 Kemble Drive, Bromley, BR2 8PZ Description of works Cavity wall i...

Type Other
Status Unknown
Date Date not available

Reference 00/00062/CAVNF Application type Competent Person Site address 3 Ladycroft Gardens, Orpington, Kent, BR6 7DE Description of works C...

Type Other
Status Unknown
Date Date not available

Reference 00/00063/CAVNF Application type Competent Person Site address 71 Southover, Bromley, BR1 4SL Description of works Cavity wall insu...

Type Other
Status Unknown
Date Date not available

Reference 00/00064/CAVNF Application type Competent Person Site address 7 Kingsdown Way, Bromley, BR2 7PT Description of works Cavity wall i...

Type Other
Status Unknown
Date Date not available

Reference 00/00066/CAVNF Application type Competent Person Site address 82 Hayes Lane, Bromley, BR2 9EE Description of works Cavity wall ins...

Type Other
Status Unknown
Date Date not available

Reference 00/00068/CAVNF Application type Competent Person Site address 29 Broadcroft Road, Orpington, Kent, BR5 1ET Description of works Ca...

Type Other
Status Unknown
Date Date not available

Reference 00/00069/CAVNF Application type Competent Person Site address 20 Foxearth Close, Biggin Hill, Westerham, Kent, TN16 3HQ Descriptio...

Type Other
Status Unknown
Date Date not available

Reference 00/00070/CAVNF Application type Competent Person Site address 8 Phoenix Drive, Keston, Kent, BR2 8HS Description of works Cavity w...

Type Other
Status Unknown
Date Date not available

Reference 00/00073/CAVNF Application type Competent Person Site address 30 Shoreham Way, Bromley, BR2 7PU Description of works Cavity wall i...

Type Other
Status Unknown
Date Date not available

Reference 00/00074/CAVNF Application type Competent Person Site address 16 Eresby Drive, Beckenham, Kent, BR3 3SL Description of works Cavit...

Type Other
Status Unknown
Date Date not available

Reference 00/00075/CAVNF Application type Competent Person Site address 42 Kingsdown Way, Bromley, BR2 7PT Description of works Cavity wall ...

Type Other
Status Unknown
Date Date not available

Reference 00/00076/CAVNF Application type Competent Person Site address 84 Eresby Drive, Beckenham, Kent, BR3 3SL Description of works Cavit...

Type Other
Status Unknown
Date Date not available

Reference 00/00079/CAVNF Application type Competent Person Site address 66 Eresby Drive, Beckenham, Kent, BR3 3SL Description of works Cavit...

Type Other
Status Unknown
Date Date not available

Reference 00/00080/CAVNF Application type Competent Person Site address 24 Eresby Drive, Beckenham, Kent, BR3 3SL Description of works Cavit...

Type Other
Status Unknown
Date Date not available

Reference 00/00081/CAVNF Application type Competent Person Site address 33 Church Hill Wood, Orpington, Kent, BR5 2JD Description of works C...

Type Other
Status Unknown
Date Date not available

Reference 00/00082/CAVNF Application type Competent Person Site address 58 Eresby Drive, Beckenham, Kent, BR3 3SL Description of works Cavit...

Type Other
Status Unknown
Date Date not available

Reference 00/00083/CAVNF Application type Competent Person Site address 52 Eresby Drive, Beckenham, Kent, BR3 3SL Description of works Cavit...

Type Other
Status Unknown
Date Date not available

Reference 00/00084/DEXBN2 Application type Building Notice Site address 47 Mead Way, Bromley, BR2 9EN Description of works Enclose front por...

Type House extension
Status Unknown
Date Date not available

Reference 00/00085/CAVNF Application type Competent Person Site address 88 Eresby Drive, Beckenham, Kent, BR3 3SL Description of works Cavit...

Type Other
Status Unknown
Date Date not available

Reference 00/00087/CAVNF Application type Competent Person Site address 8 Moselle Road, Biggin Hill, Westerham, Kent, TN16 3HS Description o...

Type Other
Status Unknown
Date Date not available

Reference 00/00089/DEXFP3 Application type Full Building Regulations Site address 32 Grosvenor Road, West Wickham, Kent, BR4 9PY Description...

Type House extension
Status Unknown
Date Date not available

Reference 00/00090/DEXFP5 Application type Full Building Regulations Site address 74 South Eden Park Road, Beckenham, Kent, BR3 3BD Descript...

Type House extension
Status Unknown
Date Date not available

Reference 00/00091/DEXFP2 Application type Full Building Regulations Site address 188 Crofton Road, Orpington, Kent, BR6 8JG Description of ...

Type House extension
Status Unknown
Date Date not available

Reference 00/00092/CAVNF Application type Competent Person Site address 112 Pickhurst Lane, Bromley, BR2 7JD Description of works Cavity wal...

Type Other
Status Unknown
Date Date not available

Reference 00/00093/CAVNF Application type Competent Person Site address 9 Arundel Drive, Orpington, Kent, BR6 9JF Description of works Cavit...

Type Other
Status Unknown
Date Date not available

Reference 00/00095/DEXFP1 Application type Full Building Regulations Site address 85 Beddington Road, Orpington, Kent, BR5 2TE Description o...

Type House extension
Status Unknown
Date Date not available

Reference 00/00096/CAVNF Application type Competent Person Site address 32 Eastry Avenue, Bromley, BR2 7PF Description of works Cavity wall ...

Type Other
Status Unknown
Date Date not available

Reference 00/00100/CAVNF Application type Competent Person Site address 19 Manor Park Road, West Wickham, Kent, BR4 0JY Description of works...

Type Other
Status Unknown
Date Date not available

Reference 00/00101/CAVNF Application type Competent Person Site address 34 Rookesley Road, Orpington, Kent, BR5 4HJ Description of works Cav...

Type Other
Status Unknown
Date Date not available

Reference 00/00102/CAVNF Application type Competent Person Site address 6 Hardres Terrace, Mosyer Drive, Orpington, Kent, BR5 4PJ Descriptio...

Type Other
Status Unknown
Date Date not available

Reference 00/00103/CAVNF Application type Competent Person Site address 3 Englefield Path, Orpington, Kent, BR5 2HU Description of works Cav...

Type Other
Status Unknown
Date Date not available

Reference 00/00104/CAVNF Application type Competent Person Site address 81 Breakspears Drive, Orpington, Kent, BR5 2RY Description of works ...

Type Other
Status Unknown
Date Date not available

Reference 00/00105/CAVNF Application type Competent Person Site address 52 Ascot Road, Orpington, Kent, BR5 2JF Description of works Cavity ...

Type Other
Status Unknown
Date Date not available

Reference 00/00106/CAVNF Application type Competent Person Site address 62 Sherborne Road, Orpington, Kent, BR5 1RF Description of works Cav...

Type Other
Status Unknown
Date Date not available

Reference 00/00107/CAVNF Application type Competent Person Site address 79 Midfield Way, Orpington, Kent, BR5 2QN Description of works Cavit...

Type Other
Status Unknown
Date Date not available

Reference 00/00108/CAVNF Application type Competent Person Site address 21 Hillcrest Road, Biggin Hill, Westerham, Kent, TN16 3UA Descriptio...

Type Other
Status Unknown
Date Date not available

Reference 00/00110/CAVNF Application type Competent Person Site address 65 Tillingbourne Green, Orpington, Kent, BR5 2EX Description of work...

Type Other
Status Unknown
Date Date not available

Reference 00/00111/CAVNF Application type Competent Person Site address 86 Kedleston Drive, Orpington, Kent, BR5 2DS Description of works Ca...

Type Other
Status Unknown
Date Date not available

Reference 00/00112/CAVNF Application type Competent Person Site address 32 Tillingbourne Green, Orpington, Kent, BR5 2HS Description of work...

Type Other
Status Unknown
Date Date not available

Reference 00/00113/CAVNF Application type Competent Person Site address 29 Church Hill Wood, Orpington, Kent, BR5 2JD Description of works C...

Type Other
Status Unknown
Date Date not available

Reference 00/00116/CAVNF Application type Competent Person Site address 9 Englefield Path, Orpington, Kent, BR5 2HU Description of works Cav...

Type Other
Status Unknown
Date Date not available

Reference 00/00119/CAVNF Application type Competent Person Site address 69 Tillingbourne Green, Orpington, Kent, BR5 2EX Description of work...

Type Other
Status Unknown
Date Date not available

Reference 00/00120/CAVNF Application type Competent Person Site address 70 Faringdon Avenue, Bromley, BR2 8BU Description of works Cavity wa...

Type Other
Status Unknown
Date Date not available

Reference 00/00121/CAVNF Application type Competent Person Site address 74 Faringdon Avenue, Bromley, BR2 8BU Description of works Cavity wa...

Type Other
Status Unknown
Date Date not available

Reference 00/00122/CAVNF Application type Competent Person Site address 27 Dyke Drive, Orpington, Kent, BR5 4LY Description of works Cavity ...

Type Other
Status Unknown
Date Date not available

Reference 00/00123/CAVNF Application type Competent Person Site address 13 Dyke Drive, Orpington, Kent, BR5 4LY Description of works Cavity ...

Type Other
Status Unknown
Date Date not available

Reference 00/00124/CAVNF Application type Competent Person Site address 112 Oakdene Road, Orpington, Kent, BR5 2AW Description of works Cavi...

Type Other
Status Unknown
Date Date not available

Reference 00/00125/DEXBN3 Application type Building Notice Site address 41 Holbrook Lane, Chislehurst, Kent, BR7 6PE Description of works Si...

Type House extension
Status Unknown
Date Date not available

Reference 00/00126/DEXRG1 Application type Regularisation Application Site address 26B Thicket Road, London, SE20 8DD Description of works L...

Type Other
Status Unknown
Date Date not available

Reference 00/00127/DISABL Application type Building Notice Site address 316 Eden Park Avenue, Beckenham, Kent, BR3 3JL Description of works ...

Type House extension
Status Unknown
Date Date not available

Reference 00/00128/INO Application type Initial Notice Site address 2A Farwig Lane, Bromley, BR1 3RB Description of works Internal alteratio...

Type Commercial
Status Unknown
Date Date not available

Reference 00/00129/CAVNF Application type Competent Person Site address 50 Barnesdale Crescent, Orpington, Kent, BR5 2AX Description of work...

Type Other
Status Unknown
Date Date not available

Reference 00/00131/CAVNF Application type Competent Person Site address 33 Whitebeam Avenue, Bromley, BR2 8DJ Description of works Cavity wa...

Type Other
Status Unknown
Date Date not available

Reference 00/00132/DEXBN4 Application type Building Notice Site address 34 Forest Ridge, Keston, Kent, BR2 6EQ Description of works Single s...

Type House extension
Status Unknown
Date Date not available

Reference 00/00133/CAVNF Application type Competent Person Site address 15 Whitebeam Avenue, Bromley, BR2 8DJ Description of works Cavity wa...

Type Other
Status Unknown
Date Date not available

Reference 00/00136/CAVNF Application type Competent Person Site address 5 Larch Way, Bromley, BR2 8DT Description of works Cavity wall insul...

Type Other
Status Unknown
Date Date not available

Reference 00/00138/CAVNF Application type Competent Person Site address 105 Faringdon Avenue, Bromley, BR2 8BT Description of works Cavity w...

Type Other
Status Unknown
Date Date not available

Reference 00/00139/OTHBN6 Application type Building Notice Site address 19 Wood Lodge Lane, West Wickham, Kent, BR4 9LY Description of works...

Type Other
Status Unknown
Date Date not available

Reference 00/00140/CAVNF Application type Competent Person Site address 81 Faringdon Avenue, Bromley, BR2 8BT Description of works Cavity wa...

Type Other
Status Unknown
Date Date not available

Reference 00/00142/CAVNF Application type Competent Person Site address 21 Westbrook Drive, Orpington, Kent, BR5 4QB Description of works Ca...

Type Other
Status Unknown
Date Date not available

Reference 00/00144/CAVNF Application type Competent Person Site address 62 Petten Grove, Orpington, Kent, BR5 4PU Description of works Cavit...

Type Other
Status Unknown
Date Date not available

Reference 00/00145/DEXBN2 Application type Building Notice Site address 128 Burnt Ash Lane, Bromley, BR1 5AF Description of works Single sto...

Type House extension
Status Unknown
Date Date not available

Reference 00/00146/CAVNF Application type Competent Person Site address 49 Plantation Drive, Orpington, Kent, BR5 4NZ Description of works C...

Type Other
Status Unknown
Date Date not available

Reference 00/00147/CAVNF Application type Competent Person Site address 7 Laburnum Way, Bromley, BR2 8BY Description of works Cavity wall in...

Type Other
Status Unknown
Date Date not available

Reference 00/00148/CAVNF Application type Competent Person Site address 71 Lovelace Avenue, Bromley, BR2 8EA Description of works Cavity wal...

Type Other
Status Unknown
Date Date not available

Reference 00/00149/CAVNF Application type Competent Person Site address 68 Lovelace Avenue, Bromley, BR2 8EB Description of works Cavity wal...

Type Other
Status Unknown
Date Date not available

Reference 00/00150/CAVNF Application type Competent Person Site address 5 Petten Close, Orpington, Kent, BR5 4QD Description of works Cavity...

Type Other
Status Unknown
Date Date not available

Reference 00/00152/DEXFP5 Application type Full Building Regulations Site address 7 Hillview Crescent, Orpington, Kent, BR6 0SL Description ...

Type House extension
Status Unknown
Date Date not available

Reference 00/00153/CAVNF Application type Competent Person Site address 67 Horsell Road, Orpington, Kent, BR5 3BG Description of works Cavit...

Type Other
Status Unknown
Date Date not available

Reference 00/00154/DEXBN2 Application type Building Notice Site address Hamara , Shortlands Grove, Bromley, BR2 0LS Description of works Sin...

Type House extension
Status Unknown
Date Date not available

Reference 00/00156/CAVNF Application type Competent Person Site address 16 Frinstead Grove, Orpington, Kent, BR5 3SF Description of works Ca...

Type Other
Status Unknown
Date Date not available

Reference 00/00157/CAVNF Application type Competent Person Site address 10 Yalding Grove, Orpington, Kent, BR5 3SE Description of works Cavi...

Type Other
Status Unknown
Date Date not available

Reference 00/00160/OTHBN6 Application type Building Notice Site address 19 Kingswood Avenue, Bromley, BR2 0NT Description of works Internal ...

Type Other
Status Unknown
Date Date not available

Reference 00/00161/CAVNF Application type Competent Person Site address 13 Edenbridge Close, Orpington, Kent, BR5 3SL Description of works C...

Type Other
Status Unknown
Date Date not available

Reference 00/00163/CAVNF Application type Competent Person Site address 9 Palmarsh Road, Orpington, Kent, BR5 3SJ Description of works Cavit...

Type Other
Status Unknown
Date Date not available

Reference 00/00164/CAVNF Application type Competent Person Site address 47 Sweeps Lane, Orpington, Kent, BR5 3PE Description of works Cavity...

Type Other
Status Unknown
Date Date not available

Reference 00/00167/DEXBN2 Application type Building Notice Site address 84 Southlands Road, Bromley, BR2 9QS Description of works Single sto...

Type House extension
Status Unknown
Date Date not available

Reference 00/00168/CAVNF Application type Competent Person Site address 59 Broom Avenue, Orpington, Kent, BR5 3BU Description of works Cavit...

Type Other
Status Unknown
Date Date not available

Reference 00/00169/OTHBN6 Application type Building Notice Site address 98 White Horse Hill, Chislehurst, Kent, BR7 6DJ Description of works...

Type Other
Status Unknown
Date Date not available

Reference 00/00170/CAVNF Application type Competent Person Site address 49 Chesterfield Close, Orpington, Kent, BR5 3PG Description of works...

Type Other
Status Unknown
Date Date not available

Reference 00/00172/DEXFP5 Application type Full Building Regulations Site address 34 Bushey Way, Beckenham, Kent, BR3 6TB Description of wor...

Type House extension
Status Unknown
Date Date not available

Reference 00/00174/CAVNF Application type Competent Person Site address 11 Chesterfield Close, Orpington, Kent, BR5 3PG Description of works...

Type Other
Status Unknown
Date Date not available

Reference 00/00175/CAVNF Application type Competent Person Site address 6 Okemore Gardens, Orpington, Kent, BR5 3PJ Description of works Cav...

Type Other
Status Unknown
Date Date not available

Reference 00/00178/CAVNF Application type Competent Person Site address 62 Francis Road, Orpington, Kent, BR5 3LZ Description of works Cavit...

Type Other
Status Unknown
Date Date not available

Reference 00/00180/CAVNF Application type Competent Person Site address 55 Malvern Road, Orpington, Kent, BR6 9HA Description of works Cavit...

Type Other
Status Unknown
Date Date not available

Reference 00/00181/CAVNF Application type Competent Person Site address 130 Eton Road, Orpington, Kent, BR6 9HF Description of works Cavity ...

Type Other
Status Unknown
Date Date not available

Reference 00/00183/DEXFP3 Application type Full Building Regulations Site address 20 Goddard Road, Beckenham, Kent, BR3 4BN Description of w...

Type House extension
Status Unknown
Date Date not available

Reference 00/00184/DEXFP4 Application type Full Building Regulations Site address 15 Hayes Chase, West Wickham, Kent, BR4 0HU Description of...

Type House extension
Status Unknown
Date Date not available

Reference 00/00185/DEXFP3 Application type Full Building Regulations Site address 64 Woodhurst Avenue, Orpington, Kent, BR5 1AS Description ...

Type House extension
Status Unknown
Date Date not available

Reference 00/00187/CAVNF Application type Competent Person Site address 1 Ravensworth Road, London, SE9 4LN Description of works Cavity wall...

Type Other
Status Unknown
Date Date not available

Reference 00/00189/DEXFP1 Application type Full Building Regulations Site address 155 Hayes Lane, Bromley, BR2 9EJ Description of works Loft...

Type House extension
Status Unknown
Date Date not available

Reference 00/00192/DEXFP1 Application type Full Building Regulations Site address 20 Uplands, Beckenham, Kent, BR3 3NB Description of works ...

Type House extension
Status Unknown
Date Date not available

Reference 00/00200/CAVNF Application type Competent Person Site address 20 Ravensworth Road, London, SE9 4LW Description of works Cavity wal...

Type Other
Status Unknown
Date Date not available

Reference 00/00203/CAVNF Application type Competent Person Site address 34 Ravensworth Road, London, SE9 4LW Description of works Cavity wal...

Type Other
Status Unknown
Date Date not available

Reference 00/00204/CAVNF Application type Competent Person Site address 37 Ravensworth Road, London, SE9 4LT Description of works Cavity wal...

Type Other
Status Unknown
Date Date not available

Reference 00/00206/CAVNF Application type Competent Person Site address 39 Ravensworth Road, London, SE9 4LT Description of works Cavity wal...

Type Other
Status Unknown
Date Date not available

Reference 00/00208/CAVNF Application type Competent Person Site address 45 Ravensworth Road, London, SE9 4LT Description of works Cavity wal...

Type Other
Status Unknown
Date Date not available

Reference 00/00209/CAVNF Application type Competent Person Site address 47 Ravensworth Road, London, SE9 4LT Description of works Cavity wal...

Type Other
Status Unknown
Date Date not available

Reference 00/00210/CAVNF Application type Competent Person Site address 48 Ravensworth Road, London, SE9 4LW Description of works Cavity wal...

Type Other
Status Unknown
Date Date not available

Reference 00/00211/CAVNF Application type Competent Person Site address 50 Ravensworth Road, London, SE9 4LW Description of works Cavity wal...

Type Other
Status Unknown
Date Date not available

Reference 00/00212/CAVNF Application type Competent Person Site address 53 Ravensworth Road, London, SE9 4LT Description of works Cavity wal...

Type Other
Status Unknown
Date Date not available

Reference 00/00215/OTHFPS Application type Full Building Regulations Site address 6-8 Gladstone Road, Orpington, Kent, BR6 7EA Description o...

Type Commercial
Status Unknown
Date Date not available

Reference 00/00216/DEXFP4 Application type Full Building Regulations Site address 17 Park Avenue, Bromley, BR1 4EF Description of works Firs...

Type House extension
Status Unknown
Date Date not available

Reference 00/00217/DEXFP5 Application type Full Building Regulations Site address 38 Longdon Wood, Keston, Kent, BR2 6EW Description of work...

Type House extension
Status Unknown
Date Date not available

Reference 00/00219/DEXFP3 Application type Full Building Regulations Site address 12 Stock Hill, Biggin Hill, Westerham, Kent, TN16 3TJ Desc...

Type House extension
Status Unknown
Date Date not available

Reference 00/00220/DEXFP4 Application type Full Building Regulations Site address Grey Thorn , Grays Road, Westerham, Kent, TN16 2HX Descrip...

Type House extension
Status Unknown
Date Date not available

Reference 00/00221/DEXBN3 Application type Building Notice Site address 17 Rusland Avenue, Orpington, Kent, BR6 8AU Description of works Sin...

Type House extension
Status Unknown
Date Date not available

Reference 00/00223/CAVNF Application type Competent Person Site address 54 Ravensworth Road, London, SE9 4LW Description of works Cavity wal...

Type Other
Status Unknown
Date Date not available

Reference 00/00225/CAVNF Application type Competent Person Site address 58 Ravensworth Road, London, SE9 4LW Description of works Cavity wal...

Type Other
Status Unknown
Date Date not available

Reference 00/00226/CAVNF Application type Competent Person Site address 61 Ravensworth Road, London, SE9 4LT Description of works Cavity wal...

Type Other
Status Unknown
Date Date not available

Reference 00/00227/CAVNF Application type Competent Person Site address 71 Ravensworth Road, London, SE9 4LX Description of works Cavity wal...

Type Other
Status Unknown
Date Date not available

Reference 00/00228/DEXBN1 Application type Building Notice Site address 100 Eden Way, Beckenham, Kent, BR3 3DH Description of works Loft con...

Type House extension
Status Unknown
Date Date not available

Reference 00/00229/OTHBN6 Application type Building Notice Site address 1 The Chase, Bromley, BR1 3DE Description of works Internal alterati...

Type Other
Status Unknown
Date Date not available

Reference 00/00230/DEXBN1 Application type Building Notice Site address 8 Lower Camden, Chislehurst, Kent, BR7 5HX Description of works Loft...

Type House extension
Status Unknown
Date Date not available

Reference 00/00232/CAVNF Application type Competent Person Site address 77 Ravensworth Road, London, SE9 4LX Description of works Cavity wal...

Type Other
Status Unknown
Date Date not available

Reference 00/00234/CAVNF Application type Competent Person Site address 93 Ravensworth Road, London, SE9 4LX Description of works Cavity wal...

Type Other
Status Unknown
Date Date not available

Reference 00/00236/OTHRG6 Application type Regularisation Application Site address 12 Ascot Road, Orpington, Kent, BR5 2JF Description of wo...

Type Other
Status Unknown
Date Date not available

Reference 00/00237/CAVNF Application type Competent Person Site address 155 Star Lane, Orpington, Kent, BR5 3LN Description of works Cavity ...

Type Other
Status Unknown
Date Date not available

Reference 00/00238/CAVNF Application type Competent Person Site address 46 Broom Avenue, Orpington, Kent, BR5 3BU Description of works Cavit...

Type Other
Status Unknown
Date Date not available

Reference 00/00239/DEXBN3 Application type Building Notice Site address 93 Amherst Drive, Orpington, Kent, BR5 2ES Description of works Sing...

Type House extension
Status Unknown
Date Date not available

Reference 00/00240/CAVNF Application type Competent Person Site address 48 Broom Avenue, Orpington, Kent, BR5 3BU Description of works Cavit...

Type Other
Status Unknown
Date Date not available

Reference 00/00241/CAVNF Application type Competent Person Site address 73 Burrfield Drive, Orpington, Kent, BR5 4BY Description of works Ca...

Type Other
Status Unknown
Date Date not available

Reference 00/00242/CAVNF Application type Competent Person Site address 13 Oldbury Close, Orpington, Kent, BR5 3TH Description of works Cavi...

Type Other
Status Unknown
Date Date not available

Reference 00/00243/CAVNF Application type Competent Person Site address 8 Shorne Close, Orpington, Kent, BR5 3TG Description of works Cavity...

Type Other
Status Unknown
Date Date not available

Reference 00/00244/CAVNF Application type Competent Person Site address 118 Whitebeam Avenue, Bromley, BR2 8DW Description of works Cavity w...

Type Other
Status Unknown
Date Date not available

Reference 00/00246/CAVNF Application type Competent Person Site address 1 Arundel Drive, Orpington, Kent, BR6 9JF Description of works Cavit...

Type Other
Status Unknown
Date Date not available

Reference 00/00248/CAVNF Application type Competent Person Site address 32 Daleside, Orpington, Kent, BR6 6EQ Description of works Cavity wa...

Type Other
Status Unknown
Date Date not available

Reference 00/00252/CAVNF Application type Competent Person Site address 215 Orchard Way, Beckenham, Kent, BR3 3EJ Description of works Cavit...

Type Other
Status Unknown
Date Date not available

Reference 00/00254/CAVNF Application type Competent Person Site address 209 Orchard Way, Beckenham, Kent, BR3 3EJ Description of works Cavit...

Type Other
Status Unknown
Date Date not available

Reference 00/00255/DEXFP3 Application type Full Building Regulations Site address Foxdene , Wilderness Road, Chislehurst, Kent, BR7 5EZ Desc...

Type House extension
Status Unknown
Date Date not available
Plan thumbnail

Single storey rear elevation extension with flat roof, partially accessible as a balcony.

Type n/a
Status Registered
Date Date not available
Plan thumbnail

Proposed single storey side extension at rear of house.

Type n/a
Status Registered
Date Date not available

Proposed new self-build dwelling with associated external works using existing access.

Type New housing
Status Unknown
Date Date not available

Install cricket nets with AstroTurf, extend car park and add wooden emergency disabled access decking.

Type Other
Status Unknown
Date Date not available

Change garage/home office to a standalone dwellinghouse with residential garden area.

Type Change of use
Status Unknown
Date Date not available

Erection of a detached three-bay car barn with associated landscaping at Nimrod Hall Farm.

Type Other
Status Unknown
Date Date not available

Change land to residential and erect one self-build dwelling with detached car barn and access.

Type New housing
Status Unknown
Date Date not available

Retrospective change of use subdividing a single four-bed dwelling into two two-bed units.

Type Change of use
Status Unknown
Date Date not available

Two-storey rear extension with dormer windows following demolition of later side and rear additions.

Type House extension
Status Unknown
Date Date not available

Stationing of two additional mobile homes and two touring caravans, and relocation of site access.

Type Change of use
Status Unknown
Date Date not available

Erection of one self-build detached bungalow with associated parking and amenity space.

Type New housing
Status Unknown
Date Date not available

Ground-floor infill extension, fenestration changes, porch removal, new aluminium windows and oak two-bay car port (retrospective).

Type House extension
Status Unknown
Date Date not available

Erection of a garden store and greenhouse following demolition of existing structures.

Type Other
Status Unknown
Date Date not available

Convert two cottages into a single dwelling with two-storey extension and associated works.

Type Change of use
Status Unknown
Date Date not available

Outline for up to 75 dwellings and full application for replacement commercial building and infrastructure.

Type New housing
Status Unknown
Date Date not available

Erection of one self-build dwelling with access, parking, cart shed, landscaping and bike store.

Type New housing
Status Unknown
Date Date not available

Erection of three commercial buildings for B2/B8 and E(g)(i) uses with parking and external storage.

Type Commercial
Status Unknown
Date Date not available

Convert existing detached garage to provide annexe accommodation and a home gym.

Type Change of use
Status Unknown
Date Date not available

Front and rear infill extensions plus detached garage, pool house and swimming pool.

Type House extension
Status Unknown
Date Date not available

Application Reference PA/2025/1347 Site Address The Priory Home Farm Livery, Priory Road, Bilsington, TN25 7AU Proposal Change of use for th...

Type Change of use
Status Unknown
Date Date not available

Application Reference PA/2026/0167 Site Address Greenlands, Watery Lane, Westwell, TN25 4JJ Proposal Double bay garage with office space to ...

Type Other
Status Unknown
Date Date not available

Application Reference PA/2026/0090 Site Address Land Northwest of The Barn, Chilmington Green Road, Great Chart Proposal Erection of stable ...

Type Agricultural
Status Unknown
Date Date not available

Application Reference PA/2026/0152 Site Address Little Halden Farm, Barn At, Tenterden Road, Rolvenden, TN17 4JL Proposal Change of use of b...

Type Change of use
Status Unknown
Date Date not available

Application Reference PA/2025/2387 Site Address Land Northeast of The Glen, Nickley Wood Road, Shadoxhurst Proposal Two-storey self-build dw...

Type New housing
Status Unknown
Date Date not available

Application Reference NOT/2026/0136 Site Address Turks Head Farm, High Halden Road, Biddenden, Ashford, TN26 3HT Proposal Prior Approval for...

Type Change of use
Status Unknown
Date Date not available

Application Reference PA/2026/0079 Site Address 115, Osborne Road, Willesborough, TN24 0EG Proposal Single storey rear extension, front porc...

Type House extension
Status Unknown
Date Date not available

Application Reference PA/2026/0183 Site Address Focus House, Bridge Road, Ashford, TN23 1HA Proposal Change of use from vacant office use (C...

Type Change of use
Status Unknown
Date Date not available

Application Reference PA/2026/0186 Site Address 2 Cherry Gardens, Ashford, TN23 6LG Proposal Proposed dormer roof extension to rear pitched ...

Type House extension
Status Unknown
Date Date not available

Application Reference PA/2025/2339 Site Address High Halden Above Ground Installation, Woodchurch Road, High Halden Proposal Replacement of ...

Type Infrastructure
Status Unknown
Date Date not available

Application Reference PA/2026/0177 Site Address The Corn Store, Dover Place, Ashford, TN23 1HU Proposal Change of use of part of the ground ...

Type Change of use
Status Unknown
Date Date not available

Application Reference PA/2026/0109 Site Address 30, Tilden Close, High Halden, TN26 3LR Proposal Proposed first floor side extension and fro...

Type House extension
Status Unknown
Date Date not available

Application Reference PA/2025/2227 Site Address 56 Lower Vicarage Road, Kennington, Ashford, TN24 9AS Proposal Proposed extension to vehicle...

Type Infrastructure
Status Unknown
Date Date not available

Application Reference PA/2026/0156 Site Address 27-27a, Bank Street, Ashford, TN23 1DG Proposal External alterations to Bank Street and Norw...

Type Commercial
Status Unknown
Date Date not available

Application Reference PA/2026/0101 Site Address 120, Lakemead, Singleton, TN23 4XZ Proposal Single storey side extension (retrospective) Dat...

Type House extension
Status Unknown
Date Date not available

Application Reference PA/2026/0095 Site Address Barn At, Little Singleton Farm, Goldwell Lane, Great Chart, TN26 1JS Proposal Conversion of ...

Type Change of use
Status Unknown
Date Date not available

Application Reference PA/2026/0087 Site Address 4, Herons Close, Chilham, CT4 8DN Proposal Proposed single storey rear extension and porch e...

Type House extension
Status Unknown
Date Date not available

Application Reference PA/2026/0132 Site Address Orchard Rise, Warehorne Road, Hamstreet, TN26 2JW Proposal Single-storey rear extension and ...

Type House extension
Status Unknown
Date Date not available

Application Reference PA/2026/0048 Site Address 10 Church Road, Sevington, Ashford, TN24 0LE Proposal Proposed rear extension and front porc...

Type House extension
Status Unknown
Date Date not available

Application Reference PA/2026/0096 Site Address Leigh Green Fruit Farm, Appledore Road, Tenterden, TN30 7DH Proposal Proposed single storey ...

Type House extension
Status Unknown
Date Date not available

Application Reference PA/2026/0097 Site Address 5, Acorn Close, Kingsnorth, TN23 3HR Proposal Proposed rear single storey extension Date Val...

Type House extension
Status Unknown
Date Date not available

Application Reference PA/2026/0072 Site Address 264, Canterbury Road, Kennington, TN24 9QN Proposal Proposed single storey rear extension in...

Type House extension
Status Unknown
Date Date not available

Application Reference PA/2026/0093 Site Address 1 Three Fields Road, Tenterden, TN30 7AQ Proposal Garage Conversion (Retrospective) Date Val...

Type House extension
Status Unknown
Date Date not available

Application Reference PA/2025/2357 Site Address Glebe Orchard Barn, Bowerland Lane, Chilham, Ashford, CT4 8AT Proposal Proposed first floor ...

Type House extension
Status Unknown
Date Date not available

Application Reference PA/2025/2361 Site Address Church Elms Farm, Redbrook Street, Woodchurch, TN26 3QR Proposal Single storey side extensio...

Type House extension
Status Unknown
Date Date not available

Application Reference PA/2026/0034 Site Address 44 Orlestone View, Hamstreet, TN26 2LB Proposal Widening of access with gates Date Valid 13/...

Type Other
Status Unknown
Date Date not available

Application Reference PA/2026/0027 Site Address Unit A, Foster Road, Ashford Business Park, Sevington, TN24 0SH Proposal Erecting 2.5m high ...

Type Industrial
Status Unknown
Date Date not available

Application Reference NOT/2026/0042 Site Address Canal Farm, Hamstreet Road, Ruckinge, Ashford, TN26 2NT Proposal Prior approval for the cha...

Type Change of use
Status Unknown
Date Date not available

Application Reference PA/2026/0017 Site Address Hales Place Granary, Woodchurch Road, High Halden, TN26 3JQ Proposal Conversion of integral ...

Type House extension
Status Unknown
Date Date not available

Application Reference PA/2026/0006 Site Address Elm Tree Farm, South Stour Road, Mersham, TN25 7HS Proposal Proposed rear extension and deta...

Type House extension
Status Unknown
Date Date not available

Application Reference PA/2026/0022 Site Address Fairfield, Bromley Green Road, Ruckinge, TN26 2EG Proposal Proposed two storey and single st...

Type House extension
Status Unknown
Date Date not available

Application Reference PA/2025/2083 Site Address 3 The Rowans, Hillyfields Rise, Ashford, TN23 4WS Proposal Two additional windows to first f...

Type House extension
Status Unknown
Date Date not available

Application Reference PA/2026/0189 Site Address 18, Acorn Close, Kingsnorth, TN23 3HR Proposal Loft conversion including the erection of 2no...

Type House extension
Status Unknown
Date Date not available

Application Reference NOT/2025/0041 Site Address Land Parcel CH5, Chilmington Green, Ashford Road, Ashford, Kent Proposal Reserved matters a...

Type Other
Status Unknown
Date Date not available

Application Reference PA/2026/0094 Site Address Notus Industrial Estate, Chart Road, Chilmington Green, Great Chart Proposal Proposed extens...

Type Commercial
Status Unknown
Date Date not available

Application Reference PA/2025/1837 Site Address Geng House, 11 North Street, Ashford, TN24 8LF Proposal Proposed change of use from office t...

Type Change of use
Status Unknown
Date Date not available

Application Reference PA/2026/0157 Site Address Harleydene, Ashford Road, Bethersden, TN26 3BD Proposal Construction of Single storey rear e...

Type House extension
Status Unknown
Date Date not available

Application Reference PA/2026/0187 Site Address Meadowcroft, Green Lane, Challock, Ashford, TN25 4BL Proposal Proposed porch and rear extens...

Type House extension
Status Unknown
Date Date not available

Application Reference PA/2026/0174 Site Address Number One, Carlton Road, Ashford, TN23 1DP Proposal Change of use from Class B8 to Class E ...

Type Change of use
Status Unknown
Date Date not available

Application Reference PA/2026/0173 Site Address 34 William Judge Close, Tenterden, TN30 7DS Proposal Proposed single storey rear extension D...

Type House extension
Status Unknown
Date Date not available

Application Reference PA/2025/1936 Site Address Land East of, 112 The Street, Willesborough Proposal Laying of temporary surface to provide ...

Type Other
Status Unknown
Date Date not available

Application Reference PA/2026/0163 Site Address Little Bedgebury Farm, High Halden, Ashford, TN26 3HT Proposal Erection of a single-storey d...

Type Other
Status Unknown
Date Date not available

Application Reference PA/2026/0064 Site Address Mulberry House, Brisley Lane, Ruckinge, TN25 7JD Proposal Proposed detached triple garage wi...

Type Other
Status Unknown
Date Date not available

Application Reference PA/2026/0141 Site Address Regency Cottage, Biddenden Road, Smarden, TN27 8QG Proposal Erection of summer house. Date V...

Type Other
Status Unknown
Date Date not available

Application Reference PA/2026/0220 Site Address Orchardene, Frittenden Road, Biddenden, TN27 8LF Proposal Two-storey side extension with sin...

Type House extension
Status Unknown
Date Date not available

Application Reference PA/2026/0068 Site Address 5, Homewood Road, Tenterden, TN30 7AU Proposal Outline application for 2no single-storey cus...

Type New housing
Status Unknown
Date Date not available

Application Reference PA/2026/0139 Site Address Shorts Wood House, Tenterden Road, From Clapper Hill To Pb, Biddenden, TN27 8DW Proposal Sin...

Type House extension
Status Unknown
Date Date not available

Application Reference PA/2026/0208 Site Address Oakdene, Bromley Green Road, Ruckinge, TN26 2EG Proposal Proposed single storey rear extensi...

Type House extension
Status Unknown
Date Date not available

Application Reference PA/2026/0194 Site Address Balcony House, Brook Street, Woodchurch, TN26 3SX Proposal Erection of garden store. Date Va...

Type Other
Status Unknown
Date Date not available

Application Reference PA/2026/0162 Site Address 15, The Black Lion, The Street, Appledore, TN26 2BU Proposal Change of use and conversion to...

Type Change of use
Status Unknown
Date Date not available

Application Reference NOT/2025/0037 Site Address Land Parcels C2 and D2, Ashford Road, Great Chart, Ashford, Kent Proposal Reserved matters ...

Type New housing
Status Unknown
Date Date not available

Application Reference PA/2026/0237 Site Address 8 Goldfinch Drive, Finberry, Sevington, TN25 7FQ Proposal Installation of an Air Source Heat...

Type Renewable energy
Status Unknown
Date Date not available

Application Reference PA/2026/0222 Site Address Bank Farm, Bank Road, Aldington, Ashford, TN25 7DF Proposal Change of use of part of the exi...

Type Change of use
Status Unknown
Date Date not available

Application Reference PA/2026/0209 Site Address Ritoweg Farm, Kestrel Rest, Headcorn Road, Smarden, TN27 8PN Proposal Single-storey side ext...

Type House extension
Status Unknown
Date Date not available

Application Reference NOT/2026/0255 Site Address Agricultural Buildings B & C at, King Farm, Redbrook Street, Woodchurch, TN26 3QR Proposal ...

Type Change of use
Status Unknown
Date Date not available
Plan thumbnail

Prior Approval for the change of use of an agricultural building to 2 dwellings under Class Q

Type Change of use
Status Awaiting decision
Date Date not available

Reference OTH/2025/1782 Application type Approval of details reserved by a condition Site address 250-252 , Lower Broughton Road, Salford, M...

Type n/a
Status Unknown
Date Date not available

Reference PA/2026/0199 Application type Lawful development: Proposed use Site address 10 Burdale Drive, SALFORD, M6 8AE Description Applicat...

Type n/a
Status Unknown
Date Date not available

Reference OTH/2026/0222 Application type Approval of details reserved by a condition Site address 47-49 Cannon Street, Salford, M3 6EG Descr...

Type n/a
Status Unknown
Date Date not available

Reference PA/2026/0203 Application type Lawful development: Existing use Site address 46 Devonshire Road, SALFORD, M6 8HZ Description Applic...

Type n/a
Status Unknown
Date Date not available

Reference PA/2025/1501 Application type Householder planning permission Site address 27 Parsonage Road, WORSLEY, MANCHESTER, M28 3SJ Descrip...

Type n/a
Status Unknown
Date Date not available

Reference PA/2026/0183 Application type Full planning permission Site address Laburnum Court Nursing Home, Priory Grove, Salford, M7 2HT Des...

Type n/a
Status Unknown
Date Date not available

Reference PA/2026/0192 Application type Householder planning permission Site address 6 The Walled Garden, SWINTON, MANCHESTER, M27 0FR Descr...

Type n/a
Status Unknown
Date Date not available

Reference PA/2026/0208 Application type Consent to display an advertisement Site address Laburnum Court Nursing Home, Priory Grove, Salford,...

Type n/a
Status Unknown
Date Date not available

Reference 00/00003/DEXBN Application type Building Notice Site address 14 St James Street New Bradwell Milton Keynes MK13 0BL Description of...

Type House extension
Status Unknown
Date Date not available

Reference 00/00004/DEXBN Application type Building Notice Site address 13 Scott Drive, Newport Pagnell, Buckinghamshire, MK16 8PW Descriptio...

Type House extension
Status Unknown
Date Date not available

Reference 00/00005/OTH Application type Full Building Regulations Site address B.T. Training Centre Durgate Kents Hill Milton Keynes MK7 6TT...

Type Other
Status Unknown
Date Date not available

Reference 00/00007/OTH Application type Full Building Regulations Site address Coca Cola & Schweppes Beverages Ltd Northfield Drive Northfie...

Type Commercial
Status Unknown
Date Date not available

Reference 00/00008/OTH Application type Full Building Regulations Site address Xscape Sports Village Avebury Boulevard Central Milton Keynes...

Type Commercial
Status Unknown
Date Date not available

Reference 00/00010/DEX Application type Full Building Regulations Site address 14 Wolverton Road Newport Pagnell Buckinghamshire MK16 8HU De...

Type House extension
Status Unknown
Date Date not available

Reference 00/00011/DEX Application type Full Building Regulations Site address 14 Walnut Drive Bletchley Milton Keynes MK2 2JA Description o...

Type House extension
Status Unknown
Date Date not available

Reference 00/00012/CWI Application type Cavity Wall Fill Site address 5 Wordsworth Avenue Newport Pagnell Buckinghamshire MK16 8RT Descripti...

Type Other
Status Unknown
Date Date not available

Reference 00/00014/OTH Application type Full Building Regulations Site address Kwik Fit (Formerly Pilling (MK) Ltd) Saxon Street Bletchley M...

Type Commercial
Status Unknown
Date Date not available

Reference 00/00015/OTH Application type Full Building Regulations Site address Wardens Flat Jonathans Court Coffee Hall Milton Keynes MK6 5E...

Type Change of use
Status Unknown
Date Date not available

Reference 00/00016/DEX Application type Full Building Regulations Site address 32 Coneygere Olney Buckinghamshire MK46 4AF Description of wo...

Type House extension
Status Unknown
Date Date not available

Reference 00/00017/OTHFP Application type Full Building Regulations Site address 4 Angstrom Close Shenley Lodge Milton Keynes MK5 7AT Descri...

Type Other
Status Unknown
Date Date not available

Reference 00/00018/OTHFP Application type Full Building Regulations Site address 60 Buckingham Road Bletchley Milton Keynes MK3 5HL Descript...

Type House extension
Status Unknown
Date Date not available

Reference 00/00019/DEX Application type Full Building Regulations Site address 4 Kaplan Close Shenley Lodge Milton Keynes MK5 7ED Descriptio...

Type House extension
Status Unknown
Date Date not available

Reference 00/00020/DEX Application type Full Building Regulations Site address 64 Milford Avenue Stony Stratford Milton Keynes MK11 1HE Desc...

Type House extension
Status Unknown
Date Date not available

Reference 00/00022/OTHBN Application type Building Notice Site address 4 Pettingrew Close Walnut Tree Milton Keynes MK7 7LL Description of w...

Type House extension
Status Unknown
Date Date not available

Reference 00/00025/IN Application type Initial Notice Site address Tibbett & Britten Group Plc Clarke Road Bletchley Milton Keynes MK1 1LG D...

Type Commercial
Status Unknown
Date Date not available

Reference 00/00026/OTHBN Application type Building Notice Site address 36 Church Street Stony Stratford Milton Keynes MK11 1BD Description o...

Type Other
Status Unknown
Date Date not available

Reference 00/00028/IN Application type Initial Notice Site address Land Fronting Whalley Drive Bletchley Milton Keynes Description of works ...

Type New housing
Status Unknown
Date Date not available

Reference 00/00029/OTH Application type Full Building Regulations Site address 2 Maryland Road Tongwell Milton Keynes MK15 8HF Description o...

Type Other
Status Unknown
Date Date not available

Reference 00/00030/OTHFP Application type Full Building Regulations Site address 72 Windmill Hill Drive Bletchley Milton Keynes MK3 7RR Desc...

Type House extension
Status Unknown
Date Date not available

Reference 00/00031/DEX Application type Full Building Regulations Site address 16 Eridge Green Kents Hill Milton Keynes MK7 6JE Description ...

Type House extension
Status Unknown
Date Date not available

Reference 00/00032/DEX Application type Full Building Regulations Site address 10 Priors Park Emerson Valley Milton Keynes MK4 2BT Descripti...

Type House extension
Status Unknown
Date Date not available

Reference 00/00033/DEX Application type Full Building Regulations Site address 11 Cowdray Close Woolstone Milton Keynes MK15 0AP Description...

Type House extension
Status Unknown
Date Date not available

Reference 00/00034/OTHFP Application type Full Building Regulations Site address 9 Hoylake Close Bletchley Milton Keynes MK3 7RH Description...

Type Other
Status Unknown
Date Date not available

Reference 00/00035/OTHBN Application type Building Notice Site address 101 Mithras Gardens Wavendon Gate Milton Keynes MK7 7SY Description o...

Type House extension
Status Unknown
Date Date not available

Reference 00/00037/OTHBN Application type Building Notice Site address 24 Cambridge Street Wolverton Milton Keynes MK12 5AJ Description of w...

Type Other
Status Unknown
Date Date not available

Reference 00/00038/DEXBN Application type Building Notice Site address 28 Minton Close Blakelands Milton Keynes MK14 5JB Description of work...

Type House extension
Status Unknown
Date Date not available

Reference 00/00040/CWI Application type Cavity Wall Fill Site address 37 St Johns Road Bletchley Milton Keynes MK3 5DU Description of works ...

Type Other
Status Unknown
Date Date not available

Reference 00/00042/IN Application type Initial Notice Site address Sites 1, 2, 10 And 12 Rusland Circus Emerson Valley Milton Keynes Descrip...

Type New housing
Status Unknown
Date Date not available

Reference 00/00043/OTH Application type Full Building Regulations Site address Witan Gate House 500-600 Witan Gate Central Milton Keynes Mil...

Type Other
Status Unknown
Date Date not available

Reference 00/00046/DOM Application type Full Building Regulations Site address Land Adj 32 Foxgate Newport Pagnell Buckinghamshire Descripti...

Type New housing
Status Unknown
Date Date not available

Reference 00/00047/DEX Application type Full Building Regulations Site address 38 Bradwell Road Loughton Milton Keynes MK5 8AJ Description o...

Type House extension
Status Unknown
Date Date not available

Reference 00/00048/OTHFP Application type Full Building Regulations Site address 26 Park Road Sherington Newport Pagnell Buckinghamshire Des...

Type House extension
Status Unknown
Date Date not available

Reference 00/00049/OTHFP Application type Full Building Regulations Site address 17 AND 19 Mount Pleasant Stoke Goldington Newport Pagnell B...

Type Other
Status Unknown
Date Date not available

Reference 00/00051/OTHBN Application type Building Notice Site address 19 Woodward Place Loughton Lodge Milton Keynes Description of works I...

Type Other
Status Unknown
Date Date not available

Reference 00/00053/CWI Application type Cavity Wall Fill Site address 48 Mill Road Bletchley Milton Keynes MK2 2LD Description of works CWI ...

Type Other
Status Unknown
Date Date not available

Reference 00/00054/CWI Application type Cavity Wall Fill Site address 22 Warwick Road Bletchley Milton Keynes MK3 6AN Description of works C...

Type Other
Status Unknown
Date Date not available

Reference 00/00057/DEX Application type Full Building Regulations Site address 97 Crowborough Lane Kents Hill Milton Keynes MK7 6JN Descript...

Type House extension
Status Unknown
Date Date not available

Reference 00/00058/DEX Application type Full Building Regulations Site address 5 Beech Road Newport Pagnell Buckinghamshire MK16 0AZ Descrip...

Type House extension
Status Unknown
Date Date not available

Reference 00/00059/DEX Application type Full Building Regulations Site address 23 Newport Road Woolstone Milton Keynes MK15 0AB Description ...

Type House extension
Status Unknown
Date Date not available

Reference 00/00060/DGA Application type Full Building Regulations Site address 45 High Street Stoke Goldington Newport Pagnell Buckinghamshi...

Type Other
Status Unknown
Date Date not available

Reference 00/00061/OTHBN Application type Building Notice Site address 1 Dulwich Close Newport Pagnell Buckinghamshire MK16 0PA Description ...

Type Other
Status Unknown
Date Date not available

Reference 00/00063/IN Application type Initial Notice Site address McKey Foods Ltd Northfield Drive Northfield Milton Keynes MK15 0DQ Descri...

Type Commercial
Status Unknown
Date Date not available

Reference 00/00064/CWI Application type Cavity Wall Fill Site address Springbank Cottage, 1a Mount Pleasant Stoke Goldington Newport Pagnell...

Type Other
Status Unknown
Date Date not available

Reference 00/00066/MUL Application type Full Building Regulations Site address 2 Long Street Road Hanslope Milton Keynes MK19 7LZ Descriptio...

Type New housing
Status Unknown
Date Date not available

Reference 00/00067/DEX Application type Full Building Regulations Site address 2 Pinkard Court Woughton On The Green Milton Keynes MK6 3ET D...

Type House extension
Status Unknown
Date Date not available

Reference 00/00068/OTH Application type Full Building Regulations Site address Land At Balmerino Close/ Ulverscroft Monkston Milton Keynes D...

Type Commercial
Status Unknown
Date Date not available

Reference 00/00069/DEXBN Application type Building Notice Site address 11 Leon Avenue Bletchley Milton Keynes MK2 2HL Description of works T...

Type House extension
Status Unknown
Date Date not available

Reference 00/00070/OTHBN Application type Building Notice Site address 6 Mow Mead Olney Buckinghamshire MK46 5EF Description of works Conver...

Type Change of use
Status Unknown
Date Date not available

Reference 00/00071/CWI Application type Cavity Wall Fill Site address 21 Boycott Avenue Oldbrook Milton Keynes MK6 2PN Description of works ...

Type Other
Status Unknown
Date Date not available

Reference 00/00072/CWI Application type Cavity Wall Fill Site address 78 Boycott Avenue Oldbrook Milton Keynes MK6 2QD Description of works ...

Type Other
Status Unknown
Date Date not available

Reference 00/00076/DEX Application type Full Building Regulations Site address 31 Park Road Stony Stratford Milton Keynes MK11 1LF Descripti...

Type House extension
Status Unknown
Date Date not available

Reference 00/00077/DEX Application type Full Building Regulations Site address 18 Archers Wells Bletchley Milton Keynes MK3 6JG Description ...

Type House extension
Status Unknown
Date Date not available

Reference 00/00078/OTH Application type Full Building Regulations Site address 409 Secklow Gate East Central Milton Keynes Milton Keynes MK9...

Type Commercial
Status Unknown
Date Date not available

Reference 00/00079/OTH Application type Full Building Regulations Site address Crown House Chippenham Drive Kingston Milton Keynes MK10 0AT ...

Type Commercial
Status Unknown
Date Date not available

Reference 00/00081/OTHBN Application type Building Notice Site address 2 Elthorne Way Newport Pagnell Buckinghamshire MK16 0JQ Description o...

Type Change of use
Status Unknown
Date Date not available

Reference 00/00084/IN Application type Initial Notice Site address DTS Logistics PLC Etheridge Avenue Brinklow Milton Keynes Description of ...

Type Commercial
Status Unknown
Date Date not available

Reference 00/00087/CWI Application type Cavity Wall Fill Site address 43 Appleyard Place Oldbrook Milton Keynes MK6 2PW Description of works...

Type Other
Status Unknown
Date Date not available

Reference 00/00088/CWI Application type Cavity Wall Fill Site address 47 Appleyard Place Oldbrook Milton Keynes MK6 2PW Description of works...

Type Other
Status Unknown
Date Date not available

Reference 00/00089/DEX Application type Full Building Regulations Site address 6 Arlott Crescent Oldbrook Milton Keynes MK6 2RB Description ...

Type House extension
Status Unknown
Date Date not available

Reference 00/00090/DEXBN Application type Building Notice Site address 3 Hodgemore Court Giffard Park Milton Keynes MK14 5JR Description of ...

Type House extension
Status Unknown
Date Date not available

Reference 00/00092/OTHFP Application type Full Building Regulations Site address Magdalen House Magdalen Close Stony Stratford Milton Keynes...

Type Other
Status Unknown
Date Date not available

Reference 00/00093/DEX Application type Full Building Regulations Site address Water Pump Cottage 67 High Street Lavendon Buckinghamshire De...

Type House extension
Status Unknown
Date Date not available

Reference 00/00094/OTHBN Application type Building Notice Site address 5 Wilton Avenue Bletchley Milton Keynes Description of works Installa...

Type Other
Status Unknown
Date Date not available

Reference 00/00095/OTHFP Application type Full Building Regulations Site address 250 Beadlemead Netherfield Milton Keynes MK6 4JA Descriptio...

Type Change of use
Status Unknown
Date Date not available

Reference 00/00096/DEX Application type Full Building Regulations Site address 15 Overhills Olney Buckinghamshire MK46 5PP Description of wo...

Type House extension
Status Unknown
Date Date not available

Reference 00/00097/DEX Application type Full Building Regulations Site address Swan House Gold Street Hanslope Milton Keynes MK19 7LU Descri...

Type House extension
Status Unknown
Date Date not available

Reference 00/00098/DEX Application type Full Building Regulations Site address 4 Bennet Close Stony Stratford Milton Keynes MK11 1HW Descrip...

Type House extension
Status Unknown
Date Date not available

Reference 00/00099/DEX Application type Full Building Regulations Site address 22 Butterfield Close Woolstone Milton Keynes MK15 0BZ Descrip...

Type House extension
Status Unknown
Date Date not available

Reference 00/00101/OTHBN Application type Building Notice Site address 132 Redbridge Stantonbury Milton Keynes MK14 6DJ Description of works...

Type Other
Status Unknown
Date Date not available

Reference 00/00103/CWI Application type Cavity Wall Fill Site address 145 Middlesex Drive Bletchley Milton Keynes MK3 7EY Description of wor...

Type Other
Status Unknown
Date Date not available

Reference 00/00104/DEX Application type Full Building Regulations Site address 10 Carolus Creek Pennyland Milton Keynes MK15 8AZ Description...

Type House extension
Status Unknown
Date Date not available

Reference 00/00105/DEX Application type Full Building Regulations Site address 33 Cross End Wavendon Milton Keynes MK17 8AQ Description of w...

Type House extension
Status Unknown
Date Date not available

Reference 00/00106/DEX Application type Full Building Regulations Site address 22 St Catherines Avenue Bletchley Milton Keynes MK3 5EE Descr...

Type House extension
Status Unknown
Date Date not available

Reference 00/00107/IN Application type Initial Notice Site address 29 Gregories Drive Wavendon Gate Milton Keynes MK7 7RL Description of wor...

Type New housing
Status Unknown
Date Date not available

Reference 00/00109/OTHFP Application type Full Building Regulations Site address 34 Western Road Bletchley Milton Keynes MK2 2PT Description...

Type House extension
Status Unknown
Date Date not available

Reference 00/00110/DEXBN Application type Building Notice Site address 7 Boyce Crescent Old Farm Park Milton Keynes MK7 8PG Description of w...

Type House extension
Status Unknown
Date Date not available

Reference 00/00111/OTHBN Application type Building Notice Site address 18 Nursery Gardens Bradwell Milton Keynes MK13 9HU Description of wor...

Type Other
Status Unknown
Date Date not available

Reference 00/00112/DEXBN Application type Building Notice Site address 10 Eaton Avenue Bletchley Milton Keynes MK2 2HN Description of works ...

Type House extension
Status Unknown
Date Date not available

Reference 00/00113/OTHFP Application type Full Building Regulations Site address 2B Yardley Road Olney MK46 5DX Description of works Convers...

Type Other
Status Unknown
Date Date not available

Reference 00/00114/DEX Application type Full Building Regulations Site address 36 Hobart Crescent Willen Park Milton Keynes MK15 9HH Descrip...

Type House extension
Status Unknown
Date Date not available

Reference 00/00116/DEX Application type Full Building Regulations Site address 4 Osier Lane Shenley Lodge Milton Keynes MK5 7EP Description ...

Type House extension
Status Unknown
Date Date not available

Reference 00/00118/OTH Application type Full Building Regulations Site address Atlantic House Foxhunter Drive Linford Wood Milton Keynes Des...

Type Other
Status Unknown
Date Date not available

Reference 00/00120/DEX Application type Full Building Regulations Site address 73 Northcroft Shenley Lodge Milton Keynes MK5 7AR Description...

Type House extension
Status Unknown
Date Date not available

Reference 00/00121/DEX Application type Full Building Regulations Site address 24 Shorham Rise Two Mile Ash Milton Keynes MK8 8BS Descriptio...

Type House extension
Status Unknown
Date Date not available

Reference 00/00122/IN Application type Initial Notice Site address Sites 21 And 22 Hengistbury Lane Tattenhoe Milton Keynes Description of w...

Type New housing
Status Unknown
Date Date not available

Reference 00/00124/DEX Application type Full Building Regulations Site address The Old Thatch 4 Newport Road Woughton On The Green Milton Ke...

Type House extension
Status Unknown
Date Date not available

Reference 00/00125/OTHFP Application type Full Building Regulations Site address 4 Stevens Field Wavendon Gate Milton Keynes Description of ...

Type House extension
Status Unknown
Date Date not available

Reference 00/00126/OTHBN Application type Building Notice Site address 4 Hillway Woburn Sands Milton Keynes MK17 8UL Description of works Ne...

Type Other
Status Unknown
Date Date not available

Reference 00/00127/OTHBN Application type Building Notice Site address 105 Ramsons Avenue Conniburrow Milton Keynes MK14 7BD Description of ...

Type House extension
Status Unknown
Date Date not available

Reference 00/00128/OTHBN Application type Building Notice Site address 120 Ramsons Avenue Conniburrow Milton Keynes MK14 7BH Description of ...

Type Change of use
Status Unknown
Date Date not available

Reference 00/00130/OTHBN Application type Building Notice Site address 100 East Street Olney Buckinghamshire MK46 4DJ Description of works C...

Type Other
Status Unknown
Date Date not available

Reference 00/00131/ARC Application type Regularisation Application Site address 8 Beaumaris Grove Shenley Church End Milton Keynes MK5 6EN D...

Type Other
Status Unknown
Date Date not available

Reference 00/00132/OTH Application type Full Building Regulations Site address Milton Keynes Hospital Standing Way Eaglestone Milton Keynes ...

Type Commercial
Status Unknown
Date Date not available

Reference 00/00133/OTH Application type Full Building Regulations Site address Kiln Farm Sports & Social Club Ltd Tilers Road Kiln Farm Milt...

Type Commercial
Status Unknown
Date Date not available

Reference 00/00134/DEXBN Application type Building Notice Site address 39 Milton Drive Newport Pagnell Buckinghamshire MK16 9AS Description ...

Type House extension
Status Unknown
Date Date not available

Reference 00/00135/OTHBN Application type Building Notice Site address 17 Greenhill Close Loughton Milton Keynes MK5 8DQ Description of work...

Type Other
Status Unknown
Date Date not available

Reference 00/00136/OTHBN Application type Building Notice Site address 46 Stanton Avenue Bradville Milton Keynes MK13 7AP Description of wor...

Type Other
Status Unknown
Date Date not available

Reference 00/00137/OTH Application type Full Building Regulations Site address Pets At Home (formerly Petsmart) Patriot Drive Rooksley Milto...

Type Other
Status Unknown
Date Date not available

Reference 00/00138/OTH Application type Full Building Regulations Site address 40 Barton Road Bletchley Milton Keynes MK2 3LJ Description of...

Type Commercial
Status Unknown
Date Date not available

Reference 00/00140/DEX Application type Full Building Regulations Site address 15 Plowman Close Greenleys Milton Keynes MK12 6AG Description...

Type House extension
Status Unknown
Date Date not available

Reference 00/00141/OTHFP Application type Full Building Regulations Site address Pembroke House 5 Bridge Street Olney Milton Keynes Buckingh...

Type Other
Status Unknown
Date Date not available

Reference 00/00142/DEX Application type Full Building Regulations Site address 14 Wilmin Grove Loughton Milton Keynes MK5 8EU Description of...

Type House extension
Status Unknown
Date Date not available

Reference 00/00143/OTHFP Application type Full Building Regulations Site address 61 Glenwoods Newport Pagnell Buckinghamshire MK16 0ND Descr...

Type Other
Status Unknown
Date Date not available

Reference 00/00144/OTHFP Application type Full Building Regulations Site address 10 Pyke Hayes Two Mile Ash Milton Keynes MK8 8PG Descriptio...

Type House extension
Status Unknown
Date Date not available

Reference 00/00145/OTHFP Application type Full Building Regulations Site address 199 Simpson Milton Keynes MK6 3AD Description of works Conv...

Type Change of use
Status Unknown
Date Date not available

Reference 00/00146/OTHBN Application type Building Notice Site address 3 Bacon Hill Olney Buckinghamshire MK46 5QJ Description of works Conv...

Type House extension
Status Unknown
Date Date not available

Reference 00/00147/CWI Application type Cavity Wall Fill Site address 33 Larwood Place Oldbrook Milton Keynes MK6 2PZ Description of works C...

Type Other
Status Unknown
Date Date not available

Reference 00/00150/OTH Application type Full Building Regulations Site address Volkswagon Group (UK) Ltd Yeomans Drive Blakelands Milton Key...

Type Commercial
Status Unknown
Date Date not available

Reference 00/00153/OTH Application type Full Building Regulations Site address British Home Stores 116 Silbury Arcade Central Milton Keynes ...

Type Commercial
Status Unknown
Date Date not available

Reference 00/00154/OTHFP Application type Full Building Regulations Site address 25 Severn Way Bletchley Milton Keynes MK3 7QG Description o...

Type House extension
Status Unknown
Date Date not available

Reference 00/00155/DEX Application type Full Building Regulations Site address 21 Weston Road Olney Buckinghamshire MK46 5BD Description of ...

Type House extension
Status Unknown
Date Date not available

Reference 00/00156/DEX Application type Full Building Regulations Site address 15 Trent Drive Newport Pagnell Buckinghamshire MK16 9DB Descr...

Type House extension
Status Unknown
Date Date not available

Reference 00/00161/CWI Application type Cavity Wall Fill Site address 21 Waterside Peartree Bridge Milton Keynes MK6 3DE Description of work...

Type Other
Status Unknown
Date Date not available

Reference 00/00166/CWI Application type Cavity Wall Fill Site address 57 Ashfield Stantonbury Milton Keynes MK14 6AU Description of works CW...

Type Other
Status Unknown
Date Date not available

Reference 00/00167/CWI Application type Cavity Wall Fill Site address 22 Magdalen Close Stony Stratford Milton Keynes MK11 1PW Description o...

Type Other
Status Unknown
Date Date not available

Reference 00/00168/CWI Application type Cavity Wall Fill Site address 26 St Johns Crescent Wolverton Milton Keynes MK12 5EE Description of w...

Type Other
Status Unknown
Date Date not available

Reference 00/00170/DEX Application type Full Building Regulations Site address 7 Overhills Olney Buckinghamshire MK46 5PP Description of wor...

Type House extension
Status Unknown
Date Date not available

Reference 00/00172/DEX Application type Full Building Regulations Site address 5 Morrell Close Shenley Church End Milton Keynes MK5 6DT Desc...

Type House extension
Status Unknown
Date Date not available

Reference 00/00173/OTHFP Application type Full Building Regulations Site address 2A Cottingham Grove Bletchley Milton Keynes MK3 5AX Descrip...

Type Other
Status Unknown
Date Date not available

Reference 00/00174/DEX Application type Full Building Regulations Site address 12 Stainton Drive Heelands Milton Keynes MK13 7NW Description...

Type House extension
Status Unknown
Date Date not available

Reference 00/00175/DEX Application type Full Building Regulations Site address 1A Cranfield Road Astwood Newport Pagnell Buckinghamshire MK1...

Type House extension
Status Unknown
Date Date not available

Reference 00/00176/DEX Application type Full Building Regulations Site address 7 Lennox Road Bletchley Milton Keynes MK2 2HH Description of ...

Type House extension
Status Unknown
Date Date not available

Reference 00/00177/DEX Application type Full Building Regulations Site address 11 Kipling Road Bletchley Milton Keynes MK3 5AT Description o...

Type House extension
Status Unknown
Date Date not available

Reference 00/00178/DEX Application type Full Building Regulations Site address 2 Kipling Drive Newport Pagnell Buckinghamshire MK16 8EB Desc...

Type House extension
Status Unknown
Date Date not available

Reference 00/00179/OTH Application type Full Building Regulations Site address The Old Schoolroom London Road Broughton Milton Keynes MK10 9...

Type House extension
Status Unknown
Date Date not available

Reference 00/00180/OTH Application type Full Building Regulations Site address Larch House Breckland Linford Wood Milton Keynes MK14 6FG Des...

Type Other
Status Unknown
Date Date not available

Reference 00/00182/DEX Application type Full Building Regulations Site address 69 Willen Road Newport Pagnell Buckinghamshire MK16 0DE Descr...

Type House extension
Status Unknown
Date Date not available

Reference 00/00183/OTHFP Application type Full Building Regulations Site address 11 Walnut Drive Bletchley Milton Keynes MK2 2JA Description...

Type House extension
Status Unknown
Date Date not available

Reference 00/00184/DOM Application type Full Building Regulations Site address Astwood Park Farm Now The Quince House Main Road Astwood Newp...

Type New housing
Status Unknown
Date Date not available

Reference 00/00185/DEXBN Application type Building Notice Site address 20 Bilbrook Lane Furzton Milton Keynes Description of works Single st...

Type House extension
Status Unknown
Date Date not available

Reference 00/00186/DEX Application type Full Building Regulations Site address 7 Lowndes Grove Shenley Church End Milton Keynes MK5 6EE Desc...

Type House extension
Status Unknown
Date Date not available

Reference 00/00187/OTHFP Application type Full Building Regulations Site address 83 Burgess Gardens Newport Pagnell Buckinghamshire MK16 0NU...

Type House extension
Status Unknown
Date Date not available

Reference 00/00188/DEX Application type Full Building Regulations Site address 7 Oakwood Drive Bletchley Milton Keynes MK2 2JG Description o...

Type House extension
Status Unknown
Date Date not available

Reference 00/00190/OTHBN Application type Building Notice Site address 80 Penryn Avenue Fishermead Milton Keynes MK6 2BG Description of work...

Type House extension
Status Unknown
Date Date not available

Reference 00/00191/OTHBN Application type Building Notice Site address 54 Penryn Avenue Fishermead Milton Keynes MK6 2BG Description of work...

Type House extension
Status Unknown
Date Date not available

Reference 00/00192/OTHBN Application type Building Notice Site address 46 Huntsman Grove Blakelands Milton Keynes MK14 5HS Description of wo...

Type House extension
Status Unknown
Date Date not available

Reference 00/00193/OTHBN Application type Building Notice Site address 39 Boycott Avenue Oldbrook Milton Keynes MK6 2PQ Description of works...

Type Other
Status Unknown
Date Date not available

Reference 00/00194/DEX Application type Full Building Regulations Site address 96 Wolverton Road Newport Pagnell Buckinghamshire MK16 8JG De...

Type House extension
Status Unknown
Date Date not available

Reference 00/00195/DEXBN Application type Building Notice Site address 16 St James Street New Bradwell Milton Keynes MK13 0BL Description of...

Type House extension
Status Unknown
Date Date not available

Reference 00/00196/OTH Application type Full Building Regulations Site address Jaguar Racing Bradbourne Drive Tilbrook Milton Keynes MK7 8BJ...

Type Commercial
Status Unknown
Date Date not available

Reference 00/00197/OTHFP Application type Full Building Regulations Site address 72 High Street Olney Buckinghamshire MK46 4BE Description o...

Type Other
Status Unknown
Date Date not available

Reference 00/00199/OTHBN Application type Building Notice Site address 16 Hartwell Road Hanslope Milton Keynes MK19 7BZ Description of works...

Type Other
Status Unknown
Date Date not available

Reference 00/00201/OTHFP Application type Full Building Regulations Site address 11 Bow Brickhill Road Woburn Sands Milton Keynes MK17 8QD D...

Type House extension
Status Unknown
Date Date not available

Reference 00/00203/IN Application type Initial Notice Site address 14 Clarke Road Bletchley Milton Keynes MK1 1LG Description of works Insta...

Type Commercial
Status Unknown
Date Date not available

Reference 00/00205/CWI Application type Cavity Wall Fill Site address 38 Magdalen Close Stony Stratford Milton Keynes MK11 1PW Description o...

Type Other
Status Unknown
Date Date not available

Reference 00/00206/CWI Application type Cavity Wall Fill Site address 202 Favell Drive Furzton Milton Keynes MK4 1AU Description of works Ca...

Type Other
Status Unknown
Date Date not available

Reference 00/00207/OTHFP Application type Full Building Regulations Site address Crabtree Cottage Lower End Wavendon Milton Keynes MK17 8AP ...

Type House extension
Status Unknown
Date Date not available

Reference 00/00208/DEX Application type Full Building Regulations Site address 35 Belsize Avenue Springfield Milton Keynes MK6 3LB Descripti...

Type House extension
Status Unknown
Date Date not available

Reference 00/00209/DEX Application type Full Building Regulations Site address 10 Tidbury Close Woburn Sands Milton Keynes MK17 8QW Descript...

Type House extension
Status Unknown
Date Date not available

Reference 00/00210/OTHFP Application type Full Building Regulations Site address 10 Haydock Close Bletchley Milton Keynes MK3 5LL Descriptio...

Type Other
Status Unknown
Date Date not available

Reference 00/00211/OTHFP Application type Full Building Regulations Site address 892 North Row Central Milton Keynes Milton Keynes MK9 3NS D...

Type Other
Status Unknown
Date Date not available

Reference 00/00212/OTHBN Application type Building Notice Site address Fair Haven 23 Wheelers Lane Bradville Milton Keynes MK13 7HN Descript...

Type Other
Status Unknown
Date Date not available

Reference 00/00213/DEXBN Application type Building Notice Site address 7 Belvoir Avenue Emerson Valley Milton Keynes MK4 2AE Description of ...

Type House extension
Status Unknown
Date Date not available

Reference 00/00215/OTH Application type Full Building Regulations Site address Phoenix House 1 Market Square Stony Stratford Milton Keynes M...

Type House extension
Status Unknown
Date Date not available

Reference 00/00216/DEX Application type Full Building Regulations Site address 22 Blackwood Crescent Blue Bridge Milton Keynes MK13 0LP Desc...

Type House extension
Status Unknown
Date Date not available

Reference 00/00217/DEX Application type Full Building Regulations Site address 24 Greenhill Close Loughton Milton Keynes MK5 8DG Description...

Type House extension
Status Unknown
Date Date not available

Reference 00/00218/DEX Application type Full Building Regulations Site address 4 Brill Place Bradwell Common Milton Keynes MK13 8EQ Descript...

Type House extension
Status Unknown
Date Date not available

Reference 00/00219/CWI Application type Cavity Wall Fill Site address 4 Tyburn Avenue Springfield Milton Keynes MK6 3HZ Description of works...

Type Other
Status Unknown
Date Date not available

Reference 00/00221/OTH Application type Full Building Regulations Site address 37 Stilebrook Road Olney Buckinghamshire MK46 5EA Description...

Type Other
Status Unknown
Date Date not available

Reference 00/00222/DEX Application type Full Building Regulations Site address 32 Gloucester Road Wolverton Milton Keynes MK12 5DX Descripti...

Type House extension
Status Unknown
Date Date not available

Reference 00/00223/DEX Application type Full Building Regulations Site address 14 Ridgway Woburn Sands Milton Keynes MK17 8UT Description of...

Type House extension
Status Unknown
Date Date not available

Reference 00/00224/OTHFP Application type Full Building Regulations Site address 11 Brendon Court Furzton Milton Keynes MK4 1DH Description ...

Type House extension
Status Unknown
Date Date not available

Reference 00/00225/DEXBN Application type Building Notice Site address 21 Abbey Way Bradville Milton Keynes MK13 7AL Description of works Fi...

Type House extension
Status Unknown
Date Date not available

Reference 00/00226/DEXBN Application type Building Notice Site address 21 Cline Court Crownhill Milton Keynes MK8 0DB Description of works T...

Type House extension
Status Unknown
Date Date not available

Reference 00/00227/DOMBN Application type Building Notice Site address The Cottage High Street Great Linford Milton Keynes MK14 5AX Descript...

Type Change of use
Status Unknown
Date Date not available

Reference 00/00228/DEX Application type Full Building Regulations Site address 7 Yeats Close Newport Pagnell Buckinghamshire MK16 8RD Descri...

Type House extension
Status Unknown
Date Date not available

Reference 00/00229/OTH Application type Full Building Regulations Site address Site B Presley Way Crownhill Milton Keynes Description of wor...

Type Industrial
Status Unknown
Date Date not available

Reference 00/00230/DEX Application type Full Building Regulations Site address 6 Rhodes Place Oldbrook Milton Keynes MK6 2LU Description of ...

Type House extension
Status Unknown
Date Date not available

Reference 00/00231/DEX Application type Full Building Regulations Site address 22 Southern Way Wolverton Milton Keynes MK12 5ED Description ...

Type House extension
Status Unknown
Date Date not available

Reference 00/00232/DEX Application type Full Building Regulations Site address 81 Melrose Avenue Bletchley Milton Keynes MK3 6PW Description...

Type House extension
Status Unknown
Date Date not available

Reference 00/00234/OTHBN Application type Building Notice Site address 2 Rossal Place Hodge Lea Milton Keynes MK12 6JE Description of works ...

Type Other
Status Unknown
Date Date not available

Reference 00/00235/OTHBN Application type Building Notice Site address 18 Nursery Gardens Bradwell Milton Keynes MK13 9HU Description of wor...

Type Other
Status Unknown
Date Date not available

Reference 00/00237/OTH Application type Full Building Regulations Site address Unit E Former Homebase Patriot Drive Rooksley Milton Keynes D...

Type Commercial
Status Unknown
Date Date not available

Reference 00/00238/DEX Application type Full Building Regulations Site address 96 Aylesbury Street West Wolverton Milton Keynes MK12 5BU Des...

Type House extension
Status Unknown
Date Date not available

Reference 00/00239/DEX Application type Full Building Regulations Site address 8 Whetstone Close Heelands Milton Keynes MK13 7PP Description...

Type House extension
Status Unknown
Date Date not available

Reference 00/00240/OTHBN Application type Building Notice Site address 1 Sutleye Court Shenley Church End Milton Keynes MK5 6EA Description ...

Type Other
Status Unknown
Date Date not available

Reference 00/00242/OTH Application type Full Building Regulations Site address S M C Pneumatics (UK) Ltd Vincent Avenue Crownhill Milton Key...

Type Other
Status Unknown
Date Date not available

Reference 00/00245/OTH Application type Full Building Regulations Site address 17c Challenge House Sherwood Drive Bletchley Milton Keynes MK...

Type Other
Status Unknown
Date Date not available

Reference 00/00247/DEX Application type Full Building Regulations Site address 40 Walkhampton Avenue Bradwell Common Milton Keynes MK13 8NJ ...

Type House extension
Status Unknown
Date Date not available

Reference 00/00248/DEX Application type Full Building Regulations Site address 9 Slated Row Old Wolverton Milton Keynes MK12 5NJ Description...

Type House extension
Status Unknown
Date Date not available

Reference 00/00249/OTHBN Application type Building Notice Site address 14 Chepstow Drive Bletchley Milton Keynes MK3 5NB Description of work...

Type Change of use
Status Unknown
Date Date not available

Reference 00/00250/CWI Application type Cavity Wall Fill Site address 5 Parkway Bow Brickhill Milton Keynes MK17 9JZ Description of works CW...

Type Other
Status Unknown
Date Date not available

Reference BC/21/0042 Application type Initial Notice Site address 14 Dulverton Gardens Reading RG2 7NX Description of works Two storey side ...

Type n/a
Status Unknown
Date Date not available

Reference BC/21/0049 Application type Initial Notice Site address 19 Chalgrove Way Emmer Green Reading RG4 8SJ Description of works Single s...

Type n/a
Status Unknown
Date Date not available

Reference BC/21/0171 Application type Initial Notice Site address 5 Littlecote Drive Reading RG1 6JD Description of works Garage conversion ...

Type n/a
Status Unknown
Date Date not available

Reference BC/21/0174 Application type Initial Notice Site address 393 London Road Reading RG1 3PB Description of works Part rear dormer exte...

Type n/a
Status Unknown
Date Date not available

Reference BC/21/0283 Application type Initial Notice Site address 7 Hamilton Road Reading RG1 5RA Description of works Rear Dormer extension...

Type n/a
Status Unknown
Date Date not available

Reference BC/21/0317 Application type Initial Notice Site address 2 Ripley Road Tilehurst Reading RG30 6UD Description of works Single store...

Type n/a
Status Unknown
Date Date not available

Reference BC/21/0764 Application type Initial Notice Site address Fobney Treatment Works Rose Kiln Lane Reading RG2 0HP Description of works...

Type n/a
Status Unknown
Date Date not available

Reference BC/21/0802 Application type Initial Notice Site address 15 Cockney Hill Tilehurst Reading RG30 4HF Description of works First floo...

Type n/a
Status Unknown
Date Date not available

Reference BC/21/0810 Application type Initial Notice Site address 58 Southcote Lane Reading RG30 3AD Description of works Ground floor rear ...

Type n/a
Status Unknown
Date Date not available

Reference BC/21/0815 Application type Initial Notice Site address 9 Lorne Street Reading RG1 7YW Description of works Upgrade & refurbishmen...

Type n/a
Status Unknown
Date Date not available

Reference BC/21/0819 Application type Initial Notice Site address 70 Cressingham Road Reading RG2 7JS Description of works Single storey fro...

Type n/a
Status Unknown
Date Date not available

Reference BC/21/0846 Application type Initial Notice Site address 5 Grosvenor Road Caversham Reading RG4 5EJ Description of works Single sto...

Type n/a
Status Unknown
Date Date not available

Reference BC/21/0903 Application type Initial Notice Site address 38 Alexandra Road Reading RG1 5PF Description of works Single storey side ...

Type n/a
Status Unknown
Date Date not available

Reference BC/21/0935 Application type Initial Notice Site address 23 Peppard Road Caversham Reading RG4 8JP Description of works Structural ...

Type n/a
Status Unknown
Date Date not available

Reference BC/21/0999 Application type Initial Notice Site address 229 Oxford Road Reading RG1 7PX Description of works Proposed loft convers...

Type n/a
Status Unknown
Date Date not available

Reference BC/21/1045 Application type Initial Notice Site address 37 Woodcote Road Caversham Reading RG4 7BB Description of works Two storey...

Type n/a
Status Unknown
Date Date not available

Reference BC/22/0022 Application type Initial Notice Site address 17 Harlech Avenue Caversham Reading RG4 6RN Description of works Garage Co...

Type n/a
Status Unknown
Date Date not available

Reference BC/22/0044 Application type Initial Notice Site address 4 Champlain Street Reading RG2 6AF Description of works Single storey exte...

Type n/a
Status Unknown
Date Date not available

Reference BC/22/0310 Application type Initial Notice Site address 17 Marlborough Avenue Reading RG1 5JB Description of works Single storey w...

Type n/a
Status Unknown
Date Date not available

Reference BC/22/0379 Application type Initial Notice Site address 11 Midsummer Meadow Caversham Reading RG4 7XD Description of works Single ...

Type n/a
Status Unknown
Date Date not available

Reference BC/22/0471 Application type Initial Notice Site address 51 Shepherds Lane Caversham Reading RG4 7JJ Description of works Single st...

Type n/a
Status Unknown
Date Date not available

Reference BC/22/0514 Application type Initial Notice Site address 21 Tintern Crescent, Reading, Berkshire, RG1 6HB Description of works Sing...

Type n/a
Status Unknown
Date Date not available

Reference BC/22/0540 Application type Initial Notice Site address Kidmore End Road Emmer Green Reading RG4 8SQ Description of works 223 resi...

Type n/a
Status Unknown
Date Date not available

Reference BC/22/0558 Application type Initial Notice Site address 16 Westdene Crescent Caversham Reading RG4 7HD Description of works Propos...

Type n/a
Status Unknown
Date Date not available

Reference BC/22/0582 Application type Initial Notice Site address 27a Maytree Walk Caversham Reading RG4 6LZ Description of works 1 x detach...

Type n/a
Status Unknown
Date Date not available

Reference BC/22/0631 Application type Full Building Regulations Site address 29 Warnford Road Tilehurst Reading RG30 4LA Description of work...

Type n/a
Status Unknown
Date Date not available

Reference BC/22/0641 Application type Full Building Regulations Site address 35 Balmore Drive Caversham Reading RG4 8NL Description of works...

Type n/a
Status Unknown
Date Date not available

Reference BC/22/0769 Application type Initial Notice Site address 87 Foxhays Road Reading RG2 8NA Description of works Sewerage Consultation...

Type n/a
Status Unknown
Date Date not available

Reference BC/22/0877 Application type Initial Notice Site address 63-86 ROWE COURT GROVELANDS ROAD READING RG30 2HZ Description of works CON...

Type n/a
Status Unknown
Date Date not available

Reference BC/22/0884 Application type Initial Notice Site address 1 Hewett Close Caversham Reading RG4 7ER Description of works Single store...

Type n/a
Status Unknown
Date Date not available

Reference BC/22/0928 Application type Initial Notice Site address 21 Mason Street Reading RG1 7PD Description of works Proposed refurbsihmen...

Type n/a
Status Unknown
Date Date not available

Reference BC/22/1029 Application type Initial Notice Site address 2nd floor The Atrium Health Club Scours Lane Reading Berkshire RG30 6AY De...

Type n/a
Status Unknown
Date Date not available

Reference BC/22/1034 Application type Initial Notice Site address 87 Southampton Street Reading RG1 2QU Description of works Construction of...

Type n/a
Status Unknown
Date Date not available

Reference BC/23/0059 Application type Full Building Regulations Site address 53-55 Argyle Road Reading RG1 7YL Description of works Re submi...

Type n/a
Status Unknown
Date Date not available

Reference BC/23/0151 Application type Initial Notice Site address 33 Gravel Hill Emmer Green Reading RG4 8QN Description of works Conversion...

Type n/a
Status Unknown
Date Date not available

Reference BC/23/0152 Application type Initial Notice Site address Weldale Street Reading Description of works Phase 2 construction of a new ...

Type n/a
Status Unknown
Date Date not available

Reference BC/23/0215 Application type Full Building Regulations Site address 162 Henley Road Caversham Reading RG4 6DJ Description of works ...

Type n/a
Status Unknown
Date Date not available

Reference BC/23/0253 Application type Full Building Regulations Site address 190 Rodway Road Tilehurst Reading RG30 6EE Description of works...

Type n/a
Status Unknown
Date Date not available

Reference BC/23/0287 Application type Full Building Regulations Site address 86 Kidmore Road Caversham Reading RG4 7NA Description of works ...

Type n/a
Status Unknown
Date Date not available

Reference BC/23/0296 Application type Full Building Regulations Site address 21 Derby Road Caversham Reading RG4 5HE Description of works Re...

Type n/a
Status Unknown
Date Date not available

Reference BC/23/0387 Application type Initial Notice Site address 254 Southcote Lane Reading RG30 3BA Description of works INTERNAL ALTERATI...

Type n/a
Status Unknown
Date Date not available

Reference BC/23/0461 Application type Full Building Regulations Site address 35 Patrick Road Caversham Reading RG4 8DD Description of works ...

Type n/a
Status Unknown
Date Date not available

Reference BC/23/0463 Application type Initial Notice Site address 95 Northumberland Avenue Reading RG2 7PT Description of works Proposed sin...

Type n/a
Status Unknown
Date Date not available

Reference BC/23/0497 Application type Initial Notice Site address 10 St Lukes Way Emmer Green Reading RG4 8QB Description of works Single st...

Type n/a
Status Unknown
Date Date not available

Reference BC/23/0550 Application type Full Building Regulations Site address 10 Windermere Road Reading RG2 7HP Description of works Single ...

Type n/a
Status Unknown
Date Date not available

Reference BC/23/0561 Application type Full Building Regulations Site address 10 Venetia Close Emmer Green Reading RG4 8UG Description of wor...

Type n/a
Status Unknown
Date Date not available

Reference BC/23/0604 Application type Full Building Regulations Site address 48 Balmore Drive Caversham Reading RG4 8NN Description of works...

Type n/a
Status Unknown
Date Date not available

Reference BC/23/0623 Application type Initial Notice Site address 24 Coniston Drive Tilehurst Reading RG30 6XS Description of works Single S...

Type n/a
Status Unknown
Date Date not available

Reference BC/23/0710 Application type Partnership Application Site address 59 Sherman Road Reading RG1 2PP Description of works Single Store...

Type n/a
Status Unknown
Date Date not available

Reference BC/23/0795 Application type Initial Notice Site address 342 Peppard Road Emmer Green Reading RG4 8UY Description of works Dormer e...

Type n/a
Status Unknown
Date Date not available

Reference BC/23/0823 Application type Full Building Regulations Site address 3 Cockney Hill Tilehurst Reading RG30 4HF Description of works ...

Type n/a
Status Unknown
Date Date not available

Reference BC/23/0864 Application type Initial Notice Site address 10 Alexandra Road Reading RG1 5PD Description of works Alterations to exis...

Type n/a
Status Unknown
Date Date not available

Reference BC/23/0941 Application type Partnership Application Site address 142 Winton Road Reading RG2 8HL Description of works Loft convers...

Type n/a
Status Unknown
Date Date not available

Reference BC/23/0965 Application type Building Notice Site address 66 Rosehill Park Emmer Green Reading RG4 8XF Description of works Replace...

Type n/a
Status Unknown
Date Date not available

Reference BC/23/1021 Application type Full Building Regulations Site address Natwest 7 Bridge Street Caversham Reading RG4 8AE Description o...

Type n/a
Status Unknown
Date Date not available

Reference BC/23/1043 Application type Full Building Regulations Site address 29 Talfourd Avenue Reading RG6 7BP Description of works Single ...

Type n/a
Status Unknown
Date Date not available

Reference BC/23/1055 Application type Initial Notice Site address 7 Aberaman Emmer Green Reading RG4 8LD Description of works Part two store...

Type n/a
Status Unknown
Date Date not available

Reference BC/23/1060 Application type Full Building Regulations Site address 70 Eastern Avenue Reading RG1 5SF Description of works Internal...

Type n/a
Status Unknown
Date Date not available

Reference BC/23/1061 Application type Initial Notice Site address 2 Send Road Caversham Reading RG4 8EH Description of works Proposed develo...

Type n/a
Status Unknown
Date Date not available

Reference BC/23/1091 Application type Full Building Regulations Site address 10 Banbury Gardens Caversham Reading RG4 5HX Description of wor...

Type n/a
Status Unknown
Date Date not available

Reference BC/23/1128 Application type Full Building Regulations Site address HSBC 26-28 Broad Street Reading RG1 2BU Description of works Co...

Type n/a
Status Unknown
Date Date not available

Reference BC/23/1187 Application type Building Notice Site address 389 London Road Reading RG1 3PB Description of works Loft conversion with...

Type n/a
Status Unknown
Date Date not available

Reference BC/23/1196 Application type Full Building Regulations Site address 76 Elmhurst Road Reading RG1 5HY Description of works single st...

Type n/a
Status Unknown
Date Date not available

Reference BC/23/1223 Application type Full Building Regulations Site address 14 Fraser Avenue Caversham Reading RG4 6RT Description of works...

Type n/a
Status Unknown
Date Date not available

Reference BC/23/1229 Application type Full Building Regulations Site address 10 Courtenay Drive Emmer Green Reading RG4 8XH Description of w...

Type n/a
Status Unknown
Date Date not available

Reference BC/23/1234 Application type Full Building Regulations Site address 23 Blenheim Road Caversham Reading RG4 7RT Description of works...

Type n/a
Status Unknown
Date Date not available

Reference BC/24/0080 Application type Initial Notice Site address 2 South Drive Reading RG2 7DP Description of works Single Storey Front Ext...

Type n/a
Status Unknown
Date Date not available

Reference BC/24/0099 Application type Initial Notice Site address 32 Waverley Road Reading RG30 2PX Description of works Internal alteration...

Type n/a
Status Unknown
Date Date not available

Reference BC/24/0101 Application type Full Building Regulations Site address 32 Kentwood Hill Tilehurst Reading RG31 6DE Description of work...

Type n/a
Status Unknown
Date Date not available

Reference BC/24/0102 Application type Initial Notice Site address Wenlock Upper Warren Avenue Caversham Reading RG4 7EJ Description of works...

Type n/a
Status Unknown
Date Date not available

Reference BC/24/0185 Application type Initial Notice Site address 10 Exwick Square Reading RG2 8NB Description of works Single storey rear e...

Type n/a
Status Unknown
Date Date not available

Reference BC/24/0200 Application type Full Building Regulations Site address 40 Crawshay Drive Emmer Green Reading RG4 8SY Description of wo...

Type n/a
Status Unknown
Date Date not available

Reference BC/24/0210 Application type Initial Notice Site address 150 Upper Woodcote Road RG4 7LD Description of works Single storey side an...

Type n/a
Status Unknown
Date Date not available

Reference BC/24/0228 Application type Full Building Regulations Site address 46 Grosvenor Road Caversham Reading RG4 5EN Description of work...

Type n/a
Status Unknown
Date Date not available

Reference BC/24/0229 Application type Initial Notice Site address 4 Maitland Road Reading RG1 6NL Description of works Proposed single store...

Type n/a
Status Unknown
Date Date not available

Reference BC/24/0233 Application type Regularisation Application Site address 23 Hatford Road Reading RG30 3JA Description of works Rear Dor...

Type n/a
Status Unknown
Date Date not available

Reference BC/24/0263 Application type Full Building Regulations Site address 66 Ambrook Road Reading RG2 8SN Description of works 2 Storey E...

Type n/a
Status Unknown
Date Date not available

Reference BC/24/0272 Application type Initial Notice Site address Unit 30 Worton Grange Reading Berkshire RG2 0TG Description of works Strip...

Type n/a
Status Unknown
Date Date not available

Reference BC/24/0275 Application type Full Building Regulations Site address 8 Picton Way Caversham Reading RG4 8NJ Description of works Sin...

Type n/a
Status Unknown
Date Date not available

Reference BC/24/0284 Application type Initial Notice Site address Royal Berkshire Hospital London Road Reading RG1 5AN Description of works ...

Type n/a
Status Unknown
Date Date not available

Reference BC/24/0285 Application type Full Building Regulations Site address 6 St Johns Road Reading RG1 4EB Description of works Applicatio...

Type n/a
Status Unknown
Date Date not available

Reference BC/24/0296 Application type Initial Notice Site address 40-48 Mount Pleasant Reading Berkshire RG1 2TD Description of works Constr...

Type n/a
Status Unknown
Date Date not available

Reference BC/24/0307 Application type Initial Notice Site address 27 Normanstead Road Tilehurst Reading RG31 5BY Description of works Single...

Type n/a
Status Unknown
Date Date not available

Reference BC/24/0310 Application type Full Building Regulations Site address 16 Foxhays Road Reading RG2 8NP Description of works Single sto...

Type n/a
Status Unknown
Date Date not available

Reference BC/24/0312 Application type Full Building Regulations Site address 15 Park Lane Tilehurst Reading RG31 5DJ Description of works Pr...

Type n/a
Status Unknown
Date Date not available

Reference BC/24/0313 Application type Regularisation Application Site address 38 Catherine Street Reading RG30 1DN Description of works We h...

Type n/a
Status Unknown
Date Date not available

Reference BC/24/0329 Application type Full Building Regulations Site address 20 The Ridgeway Caversham Reading RG4 8NX Description of works ...

Type n/a
Status Unknown
Date Date not available

Reference BC/24/0335 Application type Full Building Regulations Site address 289 Hemdean Road Caversham Reading RG4 7QP Description of works...

Type n/a
Status Unknown
Date Date not available

Reference BC/24/0342 Application type Full Building Regulations Site address 47 Morlais Emmer Green Reading RG4 8PQ Description of works Fir...

Type n/a
Status Unknown
Date Date not available

Reference BC/24/0344 Application type Demolition Notice Site address 55 Vastern Road Reading RG1 8BU Description of works Demolition Status ...

Type n/a
Status Unknown
Date Date not available

Reference BC/24/0345 Application type Partnership Application Site address 27 Fernbrook Road Caversham Reading RG4 7HG Description of works ...

Type n/a
Status Unknown
Date Date not available

Reference BC/24/0357 Application type Full Building Regulations Site address 20 Devonshire Park Reading RG2 7DX Description of works Single ...

Type n/a
Status Unknown
Date Date not available

Reference BC/24/0359 Application type Initial Notice Site address 23 Conisboro Avenue Caversham Reading RG4 7JB Description of works Additio...

Type n/a
Status Unknown
Date Date not available

Reference BC/24/0368 Application type Initial Notice Site address 29 Highdown Hill Road Emmer Green Reading RG4 8QR Description of works Sin...

Type n/a
Status Unknown
Date Date not available

Reference BC/24/0390 Application type Full Building Regulations Site address 2 Little Woodcote Close Caversham Reading RG4 7EX Description o...

Type n/a
Status Unknown
Date Date not available

Reference BC/24/0391 Application type Initial Notice Site address 75-81 Southampton street Reading RG1 2QU Description of works New four sto...

Type n/a
Status Unknown
Date Date not available

Reference BC/24/0407 Application type Full Building Regulations Site address 7 Tower Close Emmer Green Reading RG4 8UU Description of works ...

Type n/a
Status Unknown
Date Date not available

Reference BC/24/0428 Application type Initial Notice Site address 17 Heath Road Reading RG6 1ND Description of works Proposed internal alter...

Type n/a
Status Unknown
Date Date not available

Reference BC/24/0462 Application type Full Building Regulations Site address 87 Balmore Drive Caversham Reading RG4 8NN Description of works...

Type n/a
Status Unknown
Date Date not available

Reference BC/24/0463 Application type Full Building Regulations Site address Telscombe Upper Warren Avenue Caversham Reading RG4 7EB Descrip...

Type n/a
Status Unknown
Date Date not available

Reference BC/24/0468 Application type Regularisation Application Site address 65 Audley Street Reading RG30 1BS Description of works 1) addi...

Type n/a
Status Unknown
Date Date not available

Reference BC/24/0475 Application type Full Building Regulations Site address 18 The Horse Close Emmer Green Reading RG4 8TT Description of w...

Type n/a
Status Unknown
Date Date not available

Reference BC/24/0491 Application type Initial Notice Site address 188 Hartland Road Reading RG2 8DR Description of works Single Storey Rear ...

Type n/a
Status Unknown
Date Date not available

Reference BC/24/0534 Application type Initial Notice Site address 53 Brixham Road Reading RG2 7RA Description of works Single storey side/re...

Type n/a
Status Unknown
Date Date not available

Reference BC/24/0543 Application type Initial Notice Site address 31 Cockney Hill Tilehurst Reading RG30 4HF Description of works Single Sto...

Type n/a
Status Unknown
Date Date not available

Reference BC/24/0572 Application type Full Building Regulations Site address 41 Bramshaw Road Tilehurst Reading RG30 6AT Description of work...

Type n/a
Status Unknown
Date Date not available

Reference BC/24/0579 Application type Full Building Regulations Site address 35 Brooksby Road Tilehurst Reading RG31 6LZ Description of work...

Type n/a
Status Unknown
Date Date not available

Reference BC/24/0586 Application type Full Building Regulations Site address 55 Curzon Street Reading RG30 1DA Description of works Single S...

Type n/a
Status Unknown
Date Date not available

Reference BC/24/0588 Application type Initial Notice Site address 14 Buxton Avenue Caversham Reading RG4 7BU Description of works Single sto...

Type n/a
Status Unknown
Date Date not available

Reference BC/24/0595 Application type Full Building Regulations Site address 16 Bramble Crescent Tilehurst Reading RG30 4TX Description of w...

Type n/a
Status Unknown
Date Date not available

Reference BC/24/0596 Application type Regularisation Application Site address 3 Greenleas Avenue Emmer Green Reading RG4 8TA Description of ...

Type n/a
Status Unknown
Date Date not available

Reference BC/24/0603 Application type Full Building Regulations Site address 30 Armour Road Tilehurst Reading RG31 6HN Description of works ...

Type n/a
Status Unknown
Date Date not available

Reference BC/24/0615 Application type Initial Notice Site address 10 The Ridgeway Caversham Reading RG4 8NX Description of works SINGLE STOR...

Type n/a
Status Unknown
Date Date not available

Reference BC/24/0630 Application type Full Building Regulations Site address 1 Stone Street Reading RG30 1HU Description of works First floo...

Type n/a
Status Unknown
Date Date not available

Reference BC/24/0645 Application type Full Building Regulations Site address 50 Grosvenor Road Caversham Reading RG4 5EN Description of work...

Type n/a
Status Unknown
Date Date not available

Reference BC/24/0650 Application type Full Building Regulations Site address 6 Kelmscott Close Caversham Reading RG4 7DG Description of work...

Type n/a
Status Unknown
Date Date not available

Reference BC/24/0651 Application type Building Notice Site address 128 Salisbury Road Reading RG30 1BN Description of works Proposed removal...

Type n/a
Status Unknown
Date Date not available

Reference BC/24/0652 Application type Full Building Regulations Site address Flats 1-3 92 Albert Road Caversham Reading RG4 7PL Description ...

Type n/a
Status Unknown
Date Date not available

Reference BC/24/0654 Application type Full Building Regulations Site address 32 Marsack Street Caversham Reading RG4 5AP Description of work...

Type n/a
Status Unknown
Date Date not available

Reference BC/24/0671 Application type Full Building Regulations Site address 13 Southcote Lane Reading RG30 3AA Description of works 4m flat...

Type n/a
Status Unknown
Date Date not available

Reference BC/24/0676 Application type Initial Notice Site address 28 Hogarth Avenue Reading RG30 4QW Description of works Rear single storey...

Type n/a
Status Unknown
Date Date not available

Reference BC/24/0680 Application type Initial Notice Site address 90 Burghfield Road Reading RG30 3LP Description of works Single Storey Rea...

Type n/a
Status Unknown
Date Date not available

Reference BC/24/0689 Application type Initial Notice Site address Maria Mallaband Care Group River View Court Care Home Rodway Road Tilehurs...

Type n/a
Status Unknown
Date Date not available

Reference BC/24/0698 Application type Initial Notice Site address 19 Tofrek Terrace, Reading, Berkshire, RG30 2JS Description of works Singl...

Type n/a
Status Unknown
Date Date not available

Reference BC/24/0699 Application type Building Notice Site address 26 FULMEAD ROAD, READING, RG30 1JX Description of works Single integral g...

Type n/a
Status Unknown
Date Date not available

Reference BC/24/0705 Application type Initial Notice Site address 54 Westbourne Terrace Reading, Berkshire, RG30 2RP Description of works lo...

Type n/a
Status Unknown
Date Date not available

Reference BC/24/0706 Application type Initial Notice Site address 9, Ormsby Street, Reading, Berkshire, RG1 7YR Description of works Loft co...

Type n/a
Status Unknown
Date Date not available

Reference BC/24/0709 Application type Initial Notice Site address Primark Stores Ltd, 116-117 Broad Street, Reading, Berkshire, RG1 2BD Desc...

Type n/a
Status Unknown
Date Date not available

Reference BC/24/0710 Application type Initial Notice Site address Argos LFC Reading Unit B Island Road Reading RG2 0RP Description of works ...

Type n/a
Status Unknown
Date Date not available

Reference BC/24/0713 Application type Initial Notice Site address 16 Washington Road, Caversham, Reading, Berkshire, RG4 5AA. Description of...

Type n/a
Status Unknown
Date Date not available

Reference BC/24/0715 Application type Initial Notice Site address 151 St. Peters Road, Reading, Berkshire, RG6 1PG Description of works Sing...

Type n/a
Status Unknown
Date Date not available

Reference BC/24/0716 Application type Initial Notice Site address 21 Winton Road, Reading, Berkshire, RG2 8HJ. Description of works side gab...

Type n/a
Status Unknown
Date Date not available

Reference BC/24/0717 Application type Building Notice Site address 21 HEATH ROAD, READING, RG6 1ND Description of works Single Storey extens...

Type n/a
Status Unknown
Date Date not available

Reference BC/24/0718 Application type Initial Notice Site address 91 St Peters Avenue, Caversham, Reading, RG4 7DP Description of works Bay ...

Type n/a
Status Unknown
Date Date not available

Reference BC/24/0719 Application type Full Building Regulations Site address CIVIC OFFICES, BRIDGE STREET, READING, RG1 2LU Description of w...

Type n/a
Status Unknown
Date Date not available

Reference BC/24/0720 Application type Initial Notice Site address 33, Cholmeley Road, Reading, RG1 3NQ Description of works Conversion of ex...

Type n/a
Status Unknown
Date Date not available

Reference BC/24/0721 Application type Initial Notice Site address 153 Friar Street, Reading, RG1 1HE Description of works Change of use from...

Type n/a
Status Unknown
Date Date not available

Reference BC/24/0722 Application type Building Notice Site address 3 Greenleas Avenue, Caversham, Reading, RG4 8TA Description of works Part...

Type n/a
Status Unknown
Date Date not available

Reference BC/24/0723 Application type Full Building Regulations Site address 14 Fraser Avenue, Caversham, Reading, RG4 6RT Description of wo...

Type n/a
Status Unknown
Date Date not available

Reference BC/24/0725 Application type Full Building Regulations Site address 9 Shepherds Lane, Caversham, Reading RG4 7JJ Description of wor...

Type n/a
Status Unknown
Date Date not available

Reference BC/24/0726 Application type Building Notice Site address 10 WESTWOOD ROAD, TILEHURST, READING, RG31 5PW Description of works Load ...

Type n/a
Status Unknown
Date Date not available

Reference BC/24/0731 Application type Full Building Regulations Site address 94 HALLS ROAD, TILEHURST, READING, RG30 4PU Description of work...

Type n/a
Status Unknown
Date Date not available

Reference BC/24/0732 Application type Regularisation Application Site address 21 Gordon Place, RG30 1LA Description of works Formation of a ...

Type n/a
Status Unknown
Date Date not available

Reference BC/24/0733 Application type Full Building Regulations Site address 36 NEW ROAD, READING, RG1 5JD Description of works Existing two...

Type n/a
Status Unknown
Date Date not available

Reference BC/24/0737 Application type Building Notice Site address 15 Fawley Road, READING RG30 3EN Description of works Removing the chimne...

Type n/a
Status Unknown
Date Date not available

Reference BC/24/0740 Application type Building Notice Site address 5 WINDRUSH COURT READING RG30 2NF Description of works conversion of exis...

Type n/a
Status Unknown
Date Date not available

Reference BC/24/0742 Application type Full Building Regulations Site address 38 CHILTERN ROAD, CAVERSHAM, READING, RG4 5JB Description of wo...

Type n/a
Status Unknown
Date Date not available

Reference BC/24/0743 Application type Initial Notice Site address 41 Boston Avenue, Reading, Berkshire, RG1 6JU Description of works Single ...

Type n/a
Status Unknown
Date Date not available

Reference BC/24/0745 Application type Full Building Regulations Site address 2 Templeton Gardens Reading RG2 8AN Description of works Rear s...

Type n/a
Status Unknown
Date Date not available

Reference BC/24/0746 Application type Full Building Regulations Site address 10 De Montfort Road, Reading, Berkshire RG1 8DL Description of ...

Type n/a
Status Unknown
Date Date not available

Reference BC/24/0748 Application type Regularisation Application Site address 105 WANTAGE ROAD, READING, RG30 2SN Description of works Refit...

Type n/a
Status Unknown
Date Date not available

Reference BC/24/0750 Application type Initial Notice Site address 24, Winser Drive, Reading, Berkshire, RG30 3EQ Description of works Rear a...

Type n/a
Status Unknown
Date Date not available

Reference BC/24/0752 Application type Full Building Regulations Site address 2 SYCAMORE ROAD, READING, RG2 7LY Description of works Proposed...

Type n/a
Status Unknown
Date Date not available

Reference BC/24/0753 Application type Building Notice Site address 4 Cardiff Road , Reading RG18ET Description of works Changing the Roof ti...

Type n/a
Status Unknown
Date Date not available

Reference BC/24/0755 Application type Initial Notice Site address 133 Kingsbridge Road RG2 7RG Description of works Single storey rear exten...

Type n/a
Status Unknown
Date Date not available

Reference BC/24/0756 Application type Initial Notice Site address One Station Hill, Station Hill Road, Reading, Berkshire. RG1 1N Descriptio...

Type n/a
Status Unknown
Date Date not available

Reference BC/24/0758 Application type Partnership Application Site address 12 Rhigos, Emmer Green, RG4 8LF Description of works Single store...

Type n/a
Status Unknown
Date Date not available

Reference BC/24/0761 Application type Initial Notice Site address 71 Barnsdale Road, Reading, RG2 7JG Description of works Single Storey Rea...

Type n/a
Status Unknown
Date Date not available

Reference BC/24/0762 Application type Initial Notice Site address 4 Gratwicke Road, Tilehurst, Reading, Berkshire, RG30 4TT Description of w...

Type n/a
Status Unknown
Date Date not available

Reference BC/24/0763 Application type Initial Notice Site address 13 Spencer Road, Reading, Berkshire, RG2 8TW Description of works Single s...

Type n/a
Status Unknown
Date Date not available

Reference BC/24/0764 Application type Initial Notice Site address 6 Winser Drive, Reading, Berkshire, RG30 3EQ Description of works loft con...

Type n/a
Status Unknown
Date Date not available

Reference BC/24/0766 Application type Building Notice Site address 155 Park Lane RG31 4DR Description of works Internal alterations, interna...

Type n/a
Status Unknown
Date Date not available

Reference BC/24/0767 Application type Initial Notice Site address 3 Lancaster Close, Reading, Berkshire, RG1 5HB Description of works First ...

Type n/a
Status Unknown
Date Date not available

Reference BC/24/0770 Application type Regularisation Application Site address 21 HEATH ROAD, READING, RG6 1ND Description of works Loft conv...

Type n/a
Status Unknown
Date Date not available

Reference BC/24/0771 Application type Building Notice Site address 82 Chester Street, Reading RG30 1LP Description of works Single storey re...

Type n/a
Status Unknown
Date Date not available

Reference BC/24/0772 Application type Full Building Regulations Site address 12 COURTENAY DRIVE, EMMER GREEN, READING, RG4 8XH Description o...

Type n/a
Status Unknown
Date Date not available

Reference BC/24/0773 Application type Full Building Regulations Site address 103 South View Avenue, Reading, RG4 5BB Description of works Pr...

Type n/a
Status Unknown
Date Date not available

Reference BC/24/0774 Application type Full Building Regulations Site address 18 Elm Road, Reading, RG6 5TS Description of works Proposed lof...

Type n/a
Status Unknown
Date Date not available

Reference BC/24/0779 Application type Full Building Regulations Site address 37 KINGSWAY, CAVERSHAM, READING, RG4 6RA Description of works G...

Type n/a
Status Unknown
Date Date not available

Reference BC/24/0780 Application type Building Notice Site address 53 ROTHERFIELD WAY, EMMER GREEN, READING RG4 8PJ Description of works Con...

Type n/a
Status Unknown
Date Date not available

Reference BC/24/0781 Application type Full Building Regulations Site address 1 WINCHENDON PLACE, KIDMORE END ROAD, EMMER GREEN, READING, RG4...

Type n/a
Status Unknown
Date Date not available

Reference BC/24/0782 Application type Full Building Regulations Site address 16 CHILTERN ROAD, CAVERSHAM, READING, RG4 5HT Description of wo...

Type n/a
Status Unknown
Date Date not available

Reference BC/24/0783 Application type Full Building Regulations Site address 5 GEOFFREYSON ROAD, CAVERSHAM, READING, RG4 7HS Description of ...

Type n/a
Status Unknown
Date Date not available

Reference BC/24/0787 Application type Building Notice Site address 151 HEMDEAN ROAD, CAVERSHAM, READING, RG4 7QU Description of works Conver...

Type n/a
Status Unknown
Date Date not available

Reference BC/24/0788 Application type Full Building Regulations Site address 12 FOUNDRY PLACE, KATESGROVE LANE, READING, RG1 2HS Description...

Type n/a
Status Unknown
Date Date not available

Reference BC/24/0801 Application type Full Building Regulations Site address 16 THORNBRIDGE ROAD, READING, RG2 8RL Description of works Part...

Type n/a
Status Unknown
Date Date not available

Reference BC/24/0803 Application type Full Building Regulations Site address 110 ST MICHAELS ROAD, TILEHURST, READING, RG30 4SE Description ...

Type n/a
Status Unknown
Date Date not available

Reference BC/24/0805 Application type Initial Notice Site address 23, Grove Hill, Emmer Green, Reading, Berkshire, RG4 8PN Description of wo...

Type n/a
Status Unknown
Date Date not available

Reference BC/24/0808 Application type Full Building Regulations Site address 36 BALMORE DRIVE, CAVERSHAM, READING, RG4 8NL Description of wo...

Type n/a
Status Unknown
Date Date not available

Reference BC/24/0809 Application type Initial Notice Site address 3 Exwick Square Reading Berkshire RG2 8NB Description of works Proposed si...

Type n/a
Status Unknown
Date Date not available

Reference BC/24/0810 Application type Full Building Regulations Site address 99 HARTLAND ROAD, READING, RG2 8AF Description of works Two sto...

Type n/a
Status Unknown
Date Date not available

Reference BC/24/0812 Application type Full Building Regulations Site address 17 ST BARNABAS ROAD, EMMER GREEN, READING, RG4 8RA Description ...

Type n/a
Status Unknown
Date Date not available

Reference BC/24/0815 Application type Full Building Regulations Site address 83 ALEXANDRA ROAD, READING, RG1 5PS Description of works Single...

Type n/a
Status Unknown
Date Date not available

Reference BC/24/0816 Application type Full Building Regulations Site address 32 BOSTON AVENUE, READING, RG1 6JU Description of works Side an...

Type n/a
Status Unknown
Date Date not available

Reference BC/24/0817 Application type Full Building Regulations Site address 11 HIGHDOWN AVENUE, EMMER GREEN, READING, RG4 8QT Description o...

Type n/a
Status Unknown
Date Date not available

Reference BC/24/0822 Application type Initial Notice Site address 6 Lincoln Road, Reading, Berkshire, RG2 0EX Description of works Single st...

Type n/a
Status Unknown
Date Date not available

Reference BC/24/0824 Application type Initial Notice Site address 8 LINCOLN ROAD, READING, RG2 0EX Description of works Single storey rear e...

Type n/a
Status Unknown
Date Date not available

Reference BC/24/0826 Application type Full Building Regulations Site address 150 Beecham Road RG30 2RE - Resubmission Description of works P...

Type n/a
Status Unknown
Date Date not available

Reference BC/24/0827 Application type Building Notice Site address 34 Beresford Road, Reading RG30 1BX Description of works Internal alterat...

Type n/a
Status Unknown
Date Date not available

Reference BC/24/0830 Application type Initial Notice Site address 11 WINDRUSH WAY, READING, RG30 2NQ Description of works Loft conversion an...

Type n/a
Status Unknown
Date Date not available

Reference BC/24/0831 Application type Initial Notice Site address Reading Cold Store Deacon Way , Tilehurst, RG30 6AZ Description of works T...

Type n/a
Status Unknown
Date Date not available

Reference BC/24/0832 Application type Initial Notice Site address 64 LONDON ROAD, READING, RG1 5AS Description of works Internal alterations...

Type n/a
Status Unknown
Date Date not available

Reference BC/24/0833 Application type Initial Notice Site address 181 HENLEY ROAD, CAVERSHAM, READING, RG4 6LH Description of works Loft con...

Type n/a
Status Unknown
Date Date not available

Reference BC/24/0834 Application type Initial Notice Site address 350 LONGWATER AVENUE, READING, RG2 6UH Description of works internal alter...

Type n/a
Status Unknown
Date Date not available

Reference BC/24/0838 Application type Regularisation Application Site address MILFORD, HARTLAND ROAD, READING, RG2 8AB Description of works ...

Type n/a
Status Unknown
Date Date not available

Reference BC/24/0839 Application type Regularisation Application Site address 64 CONISBORO AVENUE, CAVERSHAM, READING, RG4 7JE Description o...

Type n/a
Status Unknown
Date Date not available

Reference BC/24/0840 Application type Initial Notice Site address 208 WAVERLEY ROAD, READING, RG30 2QG Description of works Proposed part si...

Type n/a
Status Unknown
Date Date not available

Reference BC/24/0842 Application type Initial Notice Site address 114 KENDRICK ROAD, READING, RG1 5DP Description of works Ground floor inte...

Type n/a
Status Unknown
Date Date not available

Reference BC/24/0848 Application type Full Building Regulations Site address 50 GREENFIELDS ROAD, READING, RG2 8SG Description of works back...

Type n/a
Status Unknown
Date Date not available

Reference BC/24/0869 Application type Initial Notice Site address 19 KENSINGTON ROAD, READING, RG30 2SZ Description of works Conversion of a...

Type n/a
Status Unknown
Date Date not available

Reference BC/24/0885 Application type Full Building Regulations Site address 177 PEPPARD ROAD, EMMER GREEN, READING, RG4 8TS Description of ...

Type n/a
Status Unknown
Date Date not available

Reference BC/24/0905 Application type Initial Notice Site address 45 BALMORE DRIVE, CAVERSHAM, READING, RG4 8NL Description of works rear do...

Type n/a
Status Unknown
Date Date not available

Reference BC/24/0908 Application type Initial Notice Site address 10 WAVERLEY ROAD, READING, RG30 2PX Description of works Refurbishment of ...

Type n/a
Status Unknown
Date Date not available

Reference BC/24/0909 Application type Regularisation Application Site address 185 KIDMORE ROAD, CAVERSHAM, READING, RG4 7NW Description of w...

Type n/a
Status Unknown
Date Date not available

Reference BC/24/0910 Application type Building Notice Site address 913A OXFORD ROAD, TILEHURST, READING, RG30 6TP Description of works Insta...

Type n/a
Status Unknown
Date Date not available

Reference BC/24/0911 Application type Building Notice Site address 51 CIRCUIT LANE, READING, RG30 3HB Description of works Removal of intern...

Type n/a
Status Unknown
Date Date not available

Reference BC/24/0912 Application type Initial Notice Site address 507 BASINGSTOKE ROAD, READING, RG2 0SH Description of works Renovation of ...

Type n/a
Status Unknown
Date Date not available

Reference BC/24/0913 Application type Full Building Regulations Site address 10 CHEPSTOW ROAD, TILEHURST, READING, RG31 6LS Description of w...

Type n/a
Status Unknown
Date Date not available

Reference BC/24/0914 Application type Initial Notice Site address 10 PENTLAND CLOSE, READING, RG30 4QS Description of works Single Storey Si...

Type n/a
Status Unknown
Date Date not available

Reference BC/24/0916 Application type Full Building Regulations Site address Ridgeway Primary School Hillbrow, Reading, Berkshire. RG2 8JD D...

Type n/a
Status Unknown
Date Date not available

Reference BC/24/0917 Application type Full Building Regulations Site address Whitley Park Primary and Nursery School, Brixham Road, Reading,...

Type n/a
Status Unknown
Date Date not available

Reference BC/24/0919 Application type Full Building Regulations Site address 23-25 Oxford Road, Reading, RG1 7QG Description of works Conver...

Type n/a
Status Unknown
Date Date not available

Reference BC/24/0920 Application type Full Building Regulations Site address 28 GREYSTOKE ROAD, CAVERSHAM, READING, RG4 5EL Description of w...

Type n/a
Status Unknown
Date Date not available

Reference BC/24/0921 Application type Initial Notice Site address 43 PATRICK ROAD, CAVERSHAM, READING, RG4 8DD Description of works Loft con...

Type n/a
Status Unknown
Date Date not available

Reference BC/24/0922 Application type Initial Notice Site address 10 AUGUST END, READING, RG30 2JP Description of works Single storey rear e...

Type n/a
Status Unknown
Date Date not available

Reference BC/24/0923 Application type Initial Notice Site address 82 CRESCENT ROAD, READING, RG1 5SP Description of works Internal and exter...

Type n/a
Status Unknown
Date Date not available

Reference BC/24/0924 Application type Initial Notice Site address 83 WHITLEY WOOD ROAD, READING, RG2 8HY Description of works Part Two Store...

Type n/a
Status Unknown
Date Date not available

Reference BC/24/0926 Application type Building Notice Site address 3 CANTERBURY ROAD, READING, RG2 7TB Description of works Rear extension m...

Type n/a
Status Unknown
Date Date not available

Reference BC/24/0927 Application type Building Notice Site address 59 BROOKSBY ROAD, TILEHURST, READING, RG31 6LZ Description of works Inter...

Type n/a
Status Unknown
Date Date not available

Reference BC/24/0928 Application type Building Notice Site address 2 CALDER CLOSE, TILEHURST, READING, RG30 4XL Description of works Convers...

Type n/a
Status Unknown
Date Date not available

Reference BC/24/0931 Application type Initial Notice Site address 23-24, Market Place,, Reading, RG1 2DE Description of works Change of use ...

Type n/a
Status Unknown
Date Date not available

Reference BC/24/0932 Application type Initial Notice Site address 101 OXFORD ROAD, READING, RG1 7UD Description of works Construct one new d...

Type n/a
Status Unknown
Date Date not available

Reference BC/24/0935 Application type Building Notice Site address 9 MONTAGUE STREET, CAVERSHAM, RG4 5AU Description of works Moving the dow...

Type n/a
Status Unknown
Date Date not available

Reference BC/24/0938 Application type Full Building Regulations Site address 20 THE RIDINGS, EMMER GREEN, READING, RG4 8XL Description of wo...

Type n/a
Status Unknown
Date Date not available

Reference BC/24/0941 Application type Initial Notice Site address Unit 2 and 3 Apex Plaza Forbury Road, Reading, RG1 1AX Description of work...

Type n/a
Status Unknown
Date Date not available

Reference BC/24/0942 Application type Initial Notice Site address 915A OXFORD ROAD, TILEHURST, READING, RG30 6TP Description of works Loft c...

Type n/a
Status Unknown
Date Date not available

Reference BC/24/0943 Application type Building Notice Site address 51 BULMERSHE ROAD, READING, RG1 5RH Description of works Removal of one i...

Type n/a
Status Unknown
Date Date not available

Reference BC/23/0323 Application type Initial Notice Site address 97a-117 Caversham Road READING RG1 8AR Description of works 60 residential...

Type n/a
Status Unknown
Date Date not available

Application Reference HGY/2025/3324 Proposal Change of use from a single family dwellinghouse (Class C3) into a small scale HMO (Class C4) w...

Type Change of use
Status Unknown
Date Date not available

Application Reference HGY/2025/3503 Proposal Proposed Winter Garden and all associated works at Flat 24, Connaught House N10 3LH. Applicatio...

Type House extension
Status Unknown
Date Date not available

Application Reference HGY/2025/3524 Proposal Replacement of existing timber windows with triple-glazed, uPVC casement windows, replacement o...

Type Other
Status Unknown
Date Date not available

Application Reference HGY/2026/0068 Proposal Erection of a single storey rear extension Application Status Under Consultation Site Address 2...

Type House extension
Status Unknown
Date Date not available

Application Reference HGY/2026/0111 Proposal Part retrospective application for the subdivision of 307 Lordship Lane, London N17 6AB into 2 ...

Type Change of use
Status Unknown
Date Date not available

Application Reference HGY/2026/0141 Proposal Erection of single storey extension which extends beyond the rear wall of the original house by...

Type House extension
Status Unknown
Date Date not available

Demolish existing rear extension; erect single-storey rear extension, loft conversion and refurbishment.

Type House extension
Status Unknown
Date Date not available

Application Reference HGY/2026/0169 Proposal Removal of existing dilapidated pebbledash render for silicon render on front elevation only on...

Type Other
Status Unknown
Date Date not available

Application Reference HGY/2025/3593 Proposal Construction of ground floor rear extension, part first floor rear extension and a dormer exten...

Type House extension
Status Unknown
Date Date not available

Application Reference HGY/2026/0101 Proposal Erection of a hip to gable roof extension with rear dormer and front rooflights to create a new...

Type House extension
Status Unknown
Date Date not available

Application Reference HGY/2026/0304 Proposal Erection of single storey extension which extends beyond the rear wall of the original house by...

Type House extension
Status Unknown
Date Date not available

Application Reference HGY/2026/0204 Proposal Raising of ridge line of existing house, construction of rear L-Shaped dormer and formation of ...

Type House extension
Status Unknown
Date Date not available

Application Reference HGY/2026/0216 Proposal The erection of a ground floor wraparound extension. Application Status Under Consultation Site...

Type House extension
Status Unknown
Date Date not available

Application Reference HGY/2026/0297 Proposal Formal notification in writing of 28 days notice in advance, in accordance with Regulation 5 of...

Type Infrastructure
Status Unknown
Date Date not available

Application Reference HGY/2026/0075 Proposal Erection of a single storey rear extension. Application Status Under Consultation Site Address ...

Type Commercial
Status Unknown
Date Date not available

Application Reference HGY/2026/0100 Proposal Erection of a new two storey single family dwellinghouse on the rear garden of No. 83 Priory Ro...

Type New housing
Status Unknown
Date Date not available

Application Reference HGY/2026/0273 Proposal Retrospective application for the change of use of maisonette occupying the rear part of the gr...

Type Change of use
Status Unknown
Date Date not available

Application Reference HGY/2026/0033 Proposal Alterations, including two-storey side/rear extension, roof extensions ridge height increase, c...

Type House extension
Status Unknown
Date Date not available

Application Reference HGY/2026/0171 Proposal Sub-division of site, demolition of the existing garage for erection of three-storey residentia...

Type New housing
Status Unknown
Date Date not available

Application Reference HGY/2026/0205 Proposal Demolition and replacement of the existing front boundary wall, demolition and partial rebuildi...

Type Demolition
Status Unknown
Date Date not available

Application Reference HGY/2026/0283 Proposal Erection of single storey extension which extends beyond the rear wall of the original house by...

Type House extension
Status Unknown
Date Date not available

Application Reference HGY/2026/0337 Proposal Construction of basement and mansard roof extension to create 4 additional flats (use class C3:...

Type New housing
Status Unknown
Date Date not available

Application Reference HGY/2026/0301 Proposal Proposed two storey side extension to an existing single-family dwelling (Use Class C3), includ...

Type House extension
Status Unknown
Date Date not available

Application Reference HGY/2026/0067 Proposal Erection of single storey extension which extends beyond the rear wall of the original house by...

Type House extension
Status Unknown
Date Date not available

Application Reference HGY/2026/0078 Proposal Erection of three-storey building to create 3 self-contained flats, with associated bicycle sto...

Type New housing
Status Unknown
Date Date not available

Application Reference HGY/2026/0323 Proposal Erection of 4 signs around fencing of MUGA facility Application Status Under Consultation Site ...

Type Advertisement
Status Unknown
Date Date not available

Application Reference HGY/2026/0186 Proposal Relocation of 2 existing antennas, removal of 3 antennas, installation of 6 new antennas and up...

Type Infrastructure
Status Unknown
Date Date not available

Application Reference HGY/2026/0308 Proposal Loft conversion including a dormer extension to the rear roof slope and four rooflights to the ...

Type House extension
Status Unknown
Date Date not available

Application Reference HGY/2026/0265 Proposal Rear Facing Dormer and 2No, Roof Lights to Facilitate a Loft Conversion to an Existing First Fl...

Type House extension
Status Unknown
Date Date not available

Application Reference HGY/2026/0190 Proposal Proposed single storey, ground floor, rear and side extension. Application Status Under Consult...

Type House extension
Status Unknown
Date Date not available

Application Reference HGY/2026/0187 Proposal Single storey rear extension Application Status Under Consultation Site Address 3 Oldfield Mews...

Type House extension
Status Unknown
Date Date not available

Application Reference HGY/2026/0254 Proposal 2nd floor roof terrace, to existing flat roof. Application Status Under Consultation Site Addre...

Type House extension
Status Unknown
Date Date not available

Application Reference HGY/2026/0130 Proposal Extension to the 1st Floor of an existing rear outrigger. Application Status Under Consultation...

Type House extension
Status Unknown
Date Date not available

Application Reference HGY/2026/0268 Proposal L-shaped dormer roof extension to first floor flat and formation of roof terrace to existing ou...

Type House extension
Status Unknown
Date Date not available

Application Reference HGY/2026/0267 Proposal Demolition of existing rear side return extension. Erection of ground floor single storey rear ...

Type House extension
Status Unknown
Date Date not available

Application Reference HGY/2026/0256 Proposal Installation of two rooflights on the side roof slope Application Status Under Consultation Sit...

Type House extension
Status Unknown
Date Date not available

Application Reference HGY/2026/0252 Proposal Erection of a rear single-storey extension. Application Status Under Consultation Site Address ...

Type House extension
Status Unknown
Date Date not available

Application Reference HGY/2026/0064 Proposal Proposal for a single-storey rear infill extension to form a wrap-around extension Application ...

Type House extension
Status Unknown
Date Date not available

Application Reference HGY/2026/0247 Proposal Part demolition of rear single storey annex and construction of single storey rear extension an...

Type House extension
Status Unknown
Date Date not available

Application Reference HGY/2026/0236 Proposal Removal of a single garage and the erection of a 2 storey side extension; changes to rear fenes...

Type House extension
Status Unknown
Date Date not available

Application Reference HGY/2026/0232 Proposal Single-storey infil extension and L-shaped dormer extension Application Status Under Consultati...

Type House extension
Status Unknown
Date Date not available

Application Reference HGY/2025/3535 Proposal Replacement of windows and front entrance door, and refurbishment to roof and external walls. A...

Type Other
Status Unknown
Date Date not available

Application Reference HGY/2025/3525 Proposal Replacement of windows and front entrance door, and refurbishment to roof and external walls. A...

Type Other
Status Unknown
Date Date not available

Application Reference HGY/2026/0213 Proposal Erection of single storey rear extension and associated works. Application Status Under Consult...

Type House extension
Status Unknown
Date Date not available

Application Reference HGY/2026/0235 Proposal Change of use of ground floor flat from a single dwelling (Class C3 Use) to a house in multiple...

Type Change of use
Status Unknown
Date Date not available

Application Reference HGY/2026/0139 Proposal The proposed works include demolishing the current front boundary wall of 63 Mayfield road, and...

Type Demolition
Status Unknown
Date Date not available

Application Reference HGY/2026/0279 Proposal Installation of illuminated collar surround to a new ATM and existing ATM. New Legal signage on...

Type Advertisement
Status Unknown
Date Date not available

Application Reference HGY/2026/0147 Proposal Side and rear extension, part 1st floor side extension, hip to gable to outrigger, windows and ...

Type House extension
Status Unknown
Date Date not available

Application Reference HGY/2026/0199 Proposal Erection of a single storey upward extension and change of use from a redundant building to a t...

Type Change of use
Status Unknown
Date Date not available

Application Reference HGY/2025/3589 Proposal Single-storey rear extension Application Status Under Consultation Site Address 6 Baden Road Ho...

Type House extension
Status Unknown
Date Date not available

Application Reference HGY/2026/0177 Proposal Erection of single storey rear/side extension. Application Status Under Consultation Site Addre...

Type House extension
Status Unknown
Date Date not available

Application Reference HGY/2026/0157 Proposal Refurbishment of the building including the replacement of all existing timber casement windows...

Type Other
Status Unknown
Date Date not available

Application Reference HGY/2026/0175 Proposal Installation of street furniture at multiple locations in connection with the provision of an '...

Type Other
Status Unknown
Date Date not available

Application Reference HGY/2026/0165 Proposal Formation of a vehicle crossover with driveway accessing from the front of the property. Applic...

Type Other
Status Unknown
Date Date not available

Application Reference HGY/2026/0136 Proposal Loft conversion and addition of roof terrace. Application Status Under Consultation Site Addres...

Type House extension
Status Unknown
Date Date not available

Application Reference HGY/2025/3539 Proposal Proposed Rear Dormer Loft Conversion with 2 x Front Velux Rooflights to the Front Pitch of the ...

Type House extension
Status Unknown
Date Date not available

Application Reference HGY/2025/3113 Proposal Single storey rear extension Application Status Under Consultation Site Address 4 Rhodes Avenue...

Type House extension
Status Unknown
Date Date not available

Application Reference HGY/2026/0131 Proposal Proposed conversion of dwelling house (Use Class C3) into a House of Multiple Occupation (HMO) ...

Type Change of use
Status Unknown
Date Date not available

Application Reference HGY/2026/0133 Proposal Erection of a single-storey rear infill wraparound extension and associated works. Application ...

Type House extension
Status Unknown
Date Date not available

Application Reference HGY/2026/0135 Proposal Installation of a rooftop solar array, in compliance with the GPDO's Schedule 2, Part 14, Class...

Type Renewable energy
Status Unknown
Date Date not available

Application Reference HGY/2026/0113 Proposal Installation of new kitchen extract system to the rear of the building in association with the ...

Type Commercial
Status Unknown
Date Date not available

Application Reference HGY/2026/0134 Proposal Erection of single storey ground floor rear extension Application Status Under Consultation Sit...

Type House extension
Status Unknown
Date Date not available

Application Reference HGY/2026/0321 Proposal Construction of two side dormers and one rear gable dormer, insertion of a window to the existi...

Type House extension
Status Unknown
Date Date not available

Application Reference HGY/2026/0315 Proposal Removal of front entrance lobby space, replacement of garage door with window, enlarged single ...

Type House extension
Status Unknown
Date Date not available

Application Reference HGY/2026/0269 Proposal Removal of existing chimney stack, internal alterations to create a vaulted ceiling, installati...

Type House extension
Status Unknown
Date Date not available

Application Reference HGY/2026/0211 Proposal Demolition of existing ground floor extension and erection of single storey wrap around side an...

Type House extension
Status Unknown
Date Date not available

Application Reference HGY/2025/3091 Proposal Erection of a first floor rear extension to enlarge existing first floor flat and installation ...

Type House extension
Status Unknown
Date Date not available

Application Reference HGY/2025/2686 Proposal Erection of studio in rear garden Application Status Decision Made Site Address Flat D 22 Belmo...

Type House extension
Status Unknown
Date Date not available

Demolish barn and erect agricultural building for equipment storage and animal welfare; retrospective hardstand and access.

Type Agricultural
Status Unknown
Date Date not available

Reference 26/0128/FH Site address 82 Guildhall Street, Folkestone, CT20 1EQ Proposal Demolition of existing rear extension and erection of n...

Type House extension
Status Unknown
Date Date not available

Reference 25/2265/FH Site address THE YARD, NORTH LANE, SANDGATE, FOLKESTONE, CT20 3AS Proposal Erection of a sauna. Date valid 27/1/2026 St...

Type Other
Status Unknown
Date Date not available

Reference 26/0121/FH Site address 46 RADNOR PARK ROAD, FOLKESTONE, CT19 5AY Proposal Erection of a single storey rear extension. Date valid ...

Type House extension
Status Unknown
Date Date not available

Reference 26/0001/FH Site address FLAT 2B, 21 GRIMSTON GARDENS, FOLKESTONE, CT20 2PU Proposal Retrospective planning application for the rep...

Type House extension
Status Unknown
Date Date not available

Reference 26/0166/FH Site address GROUND FLOOR BUSINESS PREMISES, 14 SANDGATE ROAD, FOLKESTONE, CT20 1DP Proposal Advertisement consent for ...

Type Advertisement
Status Unknown
Date Date not available

Reference 26/0192/FH/GPD Site address 83 Kingfisher Avenue, Hythe, CT21 6QT Proposal Notification under the Town and Country Planning (Gener...

Type House extension
Status Unknown
Date Date not available

Reference 26/0158/FH Site address Martello Manor Care Home, 18 Farmer Road, Hythe, Kent, CT21 6FY Proposal Proposed internal & external alte...

Type Commercial
Status Unknown
Date Date not available

Reference 26/0169/FH Site address SEACROFT, BREWERS HILL, SANDGATE, FOLKESTONE, CT20 3DH Proposal New Gardeners Store Date valid 10/2/2026 S...

Type Other
Status Unknown
Date Date not available

Reference 25/2320/FH Site address DUTCH HOUSE, COAST ROAD, LITTLESTONE, NEW ROMNEY, TN28 8QZ Proposal Erection of a detached two-storey dwel...

Type New housing
Status Unknown
Date Date not available

Reference 26/0175/FH Site address BRIAR COTTAGE, 10 NORTH ROAD WEST CT21 4BD Proposal Extension to roof and alterations to the form, replace...

Type House extension
Status Unknown
Date Date not available

Reference 25/2316/FH Site address 2 THE ORCHARDS, ELHAM, CANTERBURY, CT4 6TR Proposal Single storey rear extension. Date valid 05/2/2026 Sta...

Type House extension
Status Unknown
Date Date not available

Reference 26/0167/FH Site address GREENFIELDS, MISLING LANE, STELLING MINNIS, CANTERBURY, CT4 6DE Proposal Demolition of rear garage/store a...

Type House extension
Status Unknown
Date Date not available

Reference 26/0157/FH/GPD Site address 39 NESS ROAD, LYDD, ROMNEY MARSH, TN29 9EL Proposal Notification under the Town and Country Planning (...

Type House extension
Status Unknown
Date Date not available

Reference 25/2080/FH Site address LOWER LEAS COASTAL PARK, LOWER SANDGATE ROAD, FOLKESTONE Proposal Replacement of main timber play structur...

Type Other
Status Unknown
Date Date not available

Reference 26/0132/FH Site address 11 FAIRWAY CLOSE, ST MARYS BAY, ROMNEY MARSH, TN29 0HG Proposal Garage with studio in roof void Date valid...

Type House extension
Status Unknown
Date Date not available

Reference 26/0159/FH Site address Cannongate View, 4A Cannongate Avenue, Hythe, CT21 5PS Proposal Change of use of garage into holiday let D...

Type Change of use
Status Unknown
Date Date not available

Reference 26/0077/FH Site address 20 CORBETT ROAD, HAWKINGE, FOLKESTONE, CT18 7SP Proposal Conversion of integral garage to ancillary living...

Type Change of use
Status Unknown
Date Date not available

Reference 26/0148/FH Site address 2 ROLFE COTTAGE, STOWTING HILL, STOWTING, ASHFORD, TN25 6BE Proposal Retrospective application for alterat...

Type House extension
Status Unknown
Date Date not available

Reference 25/2150/FH Site address FLAT 27, ST ANDREWS, THE DURLOCKS, FOLKESTONE, CT19 6AW Proposal Installation of flue and rooflight. Date ...

Type Other
Status Unknown
Date Date not available

Reference 26/0117/FH Site address 26 CANTERBURY ROAD, HAWKINGE, FOLKESTONE, CT18 7BW Proposal Erection of a first-floor extension and replac...

Type House extension
Status Unknown
Date Date not available

Reference 25/2303/FH Site address 87 HIGH STREET, HYTHE, CT21 5JH Proposal Change of use from first floor studio to one bedroom flat. Date v...

Type Change of use
Status Unknown
Date Date not available

Reference 26/0044/FH Site address SPINDLEWOOD, HILLCREST ROAD, HYTHE, CT21 5EX Proposal Single storey rear extension, pitched dormer to fron...

Type House extension
Status Unknown
Date Date not available

Reference 26/0130/FH Site address 26 PETREL WAY, HAWKINGE, FOLKESTONE, CT18 7GZ Proposal Replacement of cladding to front and side elevation...

Type Other
Status Unknown
Date Date not available

Reference 26/0099/FH/GPD Site address 29 ASHLEY AVENUE, FOLKESTONE, CT19 4PS Proposal Notification under the Town and Country Planning (Gene...

Type House extension
Status Unknown
Date Date not available

Reference 26/0091/FH/GPD Site address 7 FORGE CLOSE, SELLINDGE, ASHFORD, TN25 6ES Proposal Notification under the Town and Country Planning ...

Type House extension
Status Unknown
Date Date not available

Reference 25/2236/FH Site address COSY CORNER & PARK LODGE, BARRACK HILL, HYTHE, CT21 4BZ Proposal Change of use of Cosy Corner and Park Lod...

Type Change of use
Status Unknown
Date Date not available

Reference 26/0052/FH Site address 38 MOREHALL AVENUE, FOLKESTONE, CT19 4EF Proposal Change of Use of Church Hall to Dwelling (Use Class C3) ...

Type Change of use
Status Unknown
Date Date not available

Reference 25/2277/FH Site address WEST LODGE, NEWINGTON ROAD, PEENE, FOLKESTONE, CT18 8BA Proposal Redesign of front driveway and parking. D...

Type Other
Status Unknown
Date Date not available

Reference 25/2299/FH Site address 144 SANDGATE HIGH STREET, SANDGATE, FOLKESTONE, CT20 3BZ Proposal Retrospective application for reconfigur...

Type House extension
Status Unknown
Date Date not available

Reference 26/0012/FH Site address GROUND FLOOR BUSINESS PREMISES, 194 DOVER ROAD, FOLKESTONE, CT20 1NX Proposal Change Of Use of former offi...

Type Change of use
Status Unknown
Date Date not available

Reference 26/0060/FH Site address 57 ROLFE LANE, NEW ROMNEY, TN28 8JP Proposal Proposed side/rear extensions and conversion of garage to hab...

Type House extension
Status Unknown
Date Date not available

Reference 26/0040/FH Site address 24 COPPERFIELDS, LYDD, ROMNEY MARSH, TN29 9UT Proposal Conversion of existing integral garage to habitable...

Type House extension
Status Unknown
Date Date not available

Reference 26/0029/FH Site address 5 ASH TREE ROAD, FOLKESTONE, CT19 6ED Proposal Conversion of integral garage to provide annexe accommodati...

Type Change of use
Status Unknown
Date Date not available

Reference 26/0003/FH Site address 28 TAYLORS LANE, ST MARYS BAY, ROMNEY MARSH, TN29 0HB Proposal Ground floor side extension Date valid 05/1...

Type House extension
Status Unknown
Date Date not available

Reference 25/2208/FH Site address 143, 145, 147 & 147A DOVER ROAD, FOLKESTONE, CT20 1NS Proposal Change of use of ground floor flat to retai...

Type Change of use
Status Unknown
Date Date not available

Reference 25/2279/FH Site address 109-111 COAST DRIVE, GREATSTONE TN28 8NR Proposal Part Single storey and first floor front extension, rear...

Type House extension
Status Unknown
Date Date not available

Reference 25/2311/FH Site address 1 UPSTREET COTTAGES, CANTERBURY ROAD, ETCHINGHILL, FOLKESTONE, CT18 8BS Proposal Part two-storey and part ...

Type House extension
Status Unknown
Date Date not available

Reference 25/2073/FH Site address Land at Park Farm Road, Folkestone, CT19 5SG Proposal Change of use of site to self storage (Use Class B8)...

Type Change of use
Status Unknown
Date Date not available

Reference 25/2113/FH Site address HIGHFIELDS FARM, STOWTING HILL, STOWTING COMMON, ASHFORD, TN25 6BG Proposal Provision of access for joint ...

Type Agricultural
Status Unknown
Date Date not available

Reference 25/2232/FH Site address 39 STATION ROAD, FOLKESTONE, CT19 4AY Proposal Front extension, first floor extension including first floo...

Type House extension
Status Unknown
Date Date not available

Reference 25/2247/FH Site address 12 KESTREL WALK, HAWKINGE, FOLKESTONE, CT18 7RY Proposal Conversion of garage to lounge and two studies. D...

Type Change of use
Status Unknown
Date Date not available

Reference 25/2177/FH Site address 17 HIGH STREET, NEW ROMNEY, TN28 8BN Proposal Change of use of part ground & first floor to a flat and the...

Type Change of use
Status Unknown
Date Date not available

Reference 25/2243/FH Site address 12 TONTINE STREET, FOLKESTONE, CT20 1JU Proposal Proposed self-containment of upper floor residential acco...

Type Change of use
Status Unknown
Date Date not available

Reference 25/2267/FH Site address 6-6A East Cliff, Folkestone, CT19 6BU Proposal External alterations, rooflights & enlargement of rear dorm...

Type House extension
Status Unknown
Date Date not available

Reference 25/2268/FH Site address 12 FERNFIELD, HAWKINGE, FOLKESTONE, CT18 7EB Proposal Installation of front & rear dormers. Date valid 16/...

Type House extension
Status Unknown
Date Date not available

Reference 25/2266/FH Site address 6 BEACHMONT CLOSE, GREATSTONE, NEW ROMNEY, TN28 8UG Proposal Single storey side & rear extension. Date val...

Type House extension
Status Unknown
Date Date not available

Reference 25/2251/FH Site address 19 HASBOROUGH ROAD, FOLKESTONE, CT19 6BQ Proposal Rear and side extension with rooflights, with additional...

Type House extension
Status Unknown
Date Date not available

Reference 25/2252/FH Site address 14 BROOK LANE COTTAGES, SWAN LANE, SELLINDGE, ASHFORD, TN25 6HG Proposal Single storey rear extension & as...

Type House extension
Status Unknown
Date Date not available

Reference 25/2128/FH Site address BASEMENT FLAT, FOLKESTONE PRIME COURT, 9 TRINITY CRESCENT, FOLKESTONE, CT20 2ES Proposal Conversion of thr...

Type Change of use
Status Unknown
Date Date not available

Reference 25/2199/FH Site address 12 HIGH STREET, NEW ROMNEY, TN28 8DD Proposal Single-storey building containing a cafe; access gates; and ...

Type Commercial
Status Unknown
Date Date not available

Reference 25/2225/FH Site address Longage Manor Farm, Longage Hill, Lyminge, CT18 8HB Proposal Change of use of barn for the holding of even...

Type Change of use
Status Unknown
Date Date not available

Reference 26/0194/FH Site address 31 Lucy Avenue, Folkestone, CT19 5UF Proposal Erection of a single-storey side/rear extension to create an...

Type House extension
Status Unknown
Date Date not available

Reference 26/0197/FH Site address 8 Lynwood, Folkestone, CT19 5DB Proposal Conversion of existing garage into a bedroom en-suite. Date valid...

Type House extension
Status Unknown
Date Date not available

Reference 26/0191/FH Site address Penny Rose, 8 Mill Lane, Hawkinge, Folkestone, CT18 7BY Proposal Proposed detached annexe in rear garden, ...

Type House extension
Status Unknown
Date Date not available

Reference 26/0116/FH Site address 9 Orr Close, Hawkinge, CT18 7QT Proposal Single storey extension to the existing porch, single storey rear...

Type House extension
Status Unknown
Date Date not available

Application Reference CORGI/12604/07 Application Type Competent Person Site Address 1 Bowes Bungalows,Epping Road,ONGAR Essex, CM5 0BD Propo...

Type Other
Status Unknown
Date Date not available

Application Reference CORGI/12579/07 Application Type Competent Person Site Address Houblons House,Houblons Hill,Coopersale,EPPING Essex, CM...

Type Other
Status Unknown
Date Date not available

Application Reference CORGI/12474/07 Application Type Competent Person Site Address 364 Fencepiece Road,CHIGWELL Essex, IG7 5DY Proposal Ins...

Type Other
Status Unknown
Date Date not available

Application Reference CORGI/12596/07 Application Type Competent Person Site Address Ivy House,Coppice Row,Theydon Bois,EPPING Essex, CM16 7D...

Type Other
Status Unknown
Date Date not available

Application Reference CORGI/12427/07 Application Type Competent Person Site Address 15 BROADGATE,WALTHAM ABBEY, EN9 3NW Proposal Installed a...

Type Other
Status Unknown
Date Date not available

Application Reference CORGI/12393/07 Application Type Competent Person Site Address Anngate,Stapleford Road,Stapleford Abbotts,ROMFORD Essex...

Type Other
Status Unknown
Date Date not available

Reference BC/26/0003 Application type Full Building Regulations Site address 78B STAR ROAD, CAVERSHAM, READING, RG4 5BE Description of works...

Type n/a
Status Unknown
Date Date not available

Reference BC/26/0007 Application type Regularisation Application Site address 82 CHICHESTER ROAD, TILEHURST, READING Description of works Co...

Type n/a
Status Unknown
Date Date not available

Reference BC/26/0391 Application type Full Building Regulations Site address 5 SOUTHERNDENE CLOSE, TILEHURST, READING, RG31 6ND Description ...

Type n/a
Status Unknown
Date Date not available

Reference BC/26/0776 Application type Building Notice Site address 30 BIRDHILL AVENUE, READING, RG2 7JT Description of works Single storey r...

Type n/a
Status Unknown
Date Date not available

Reference BC/26/0789 Application type Full Building Regulations Site address 3 MILL ROAD, CAVERSHAM, READING, RG4 8DP Description of works S...

Type n/a
Status Unknown
Date Date not available

Reference BC/26/0793 Application type Full Building Regulations Site address 28 HOLYBROOK CRESCENT, READING, RG30 3LN Description of works O...

Type n/a
Status Unknown
Date Date not available

Reference BC/26/0799 Application type Regularisation Application Site address 29 PANGBOURNE STREET, READING Description of works CONVERSION ...

Type n/a
Status Unknown
Date Date not available

Reference BC/26/0804 Application type Building Notice Site address 61 CONNAUGHT ROAD, READING, RG30 2UD Description of works 1. Lintel to op...

Type n/a
Status Unknown
Date Date not available

Reference BC/26/0805 Application type Full Building Regulations Site address 4 KINGSGATE PLACE, KINGSGATE STREET, READING, RG1 3HA Descripti...

Type n/a
Status Unknown
Date Date not available

Reference BC/26/0807 Application type Full Building Regulations Site address 5 OAKDALE CLOSE, TILEHURST, READING, RG31 5BZ Description of wo...

Type n/a
Status Unknown
Date Date not available

Reference BC/26/0815 Application type Initial Notice Site address 11 WINSER DRIVE, READING, RG30 3EG Description of works Hip to gable loft ...

Type n/a
Status Unknown
Date Date not available

Reference BC/26/0816 Application type Initial Notice Site address 2 SEED GROVE, TILEHURST, READING, RG31 6PZ Description of works Single sto...

Type n/a
Status Unknown
Date Date not available

Application Reference OLD/1946/0095 Proposal Alterations to provide 4 self-contained flats. Application Status Decision Made Site Address 12...

Type Change of use
Status Unknown
Date Date not available

Application Reference OLD/1947/0141 Proposal Construction of additional sanitary accommodation. Application Status Decision Made Site Addres...

Type Other
Status Unknown
Date Date not available

Application Reference OLD/1948/0190 Proposal Conversion into flats 12 - 14. Application Status Decision Made Site Address 12-14 Mount View R...

Type Change of use
Status Unknown
Date Date not available

Application Reference OLD/1949/0374 Proposal Carrying out of alterations and the erection of an additional storey to the side addition. Appl...

Type House extension
Status Unknown
Date Date not available

Application Reference OLD/1949/0375 Proposal Carrying out of alterations and the erection of an additional storey to the side addition. Appl...

Type House extension
Status Unknown
Date Date not available

Application Reference OLD/1950/0355 Proposal 8 Erection of a garage. Application Status Decision Made Site Address 4-10 Mount View Road N4 D...

Type Other
Status Unknown
Date Date not available

Application Reference OLD/1951/0297 Proposal 4 Conversion of maisonette into 2 flats. Application Status Decision Made Site Address 4-10 Mou...

Type Change of use
Status Unknown
Date Date not available

Application Reference OLD/1952/0316 Proposal The demolition of existing garages and rebuilding. Application Status Decision Made Site Addres...

Type Demolition
Status Unknown
Date Date not available

Application Reference OLD/1953/0336 Proposal 25/11/52 Outline application site adjoining No.2 by the erection of lock-up garages. Applicatio...

Type Commercial
Status Unknown
Date Date not available

Application Reference OLD/1953/0350 Proposal Part use as Religious Centre and Guest House. Application Status Decision Made Site Address 106...

Type Change of use
Status Unknown
Date Date not available

Application Reference OLD/1953/0353 Proposal Erection of extension at rear. Application Status Decision Made Site Address 109 Nightingale La...

Type House extension
Status Unknown
Date Date not available

Application Reference OLD/1954/0337 Proposal Conversion of maisonette on lower ground floor and ground floors into two flats. Application St...

Type Change of use
Status Unknown
Date Date not available

Application Reference OLD/1954/0338 Proposal Severence of part of gardens and erection of one detached house. Application Status Decision Ma...

Type New housing
Status Unknown
Date Date not available

Application Reference OLD/1954/0355 Proposal Conversion into three self-contained flats. Application Status Decision Made Site Address 105 M...

Type Change of use
Status Unknown
Date Date not available

Application Reference OLD/1954/0356 Proposal Use of dwelling house as day nursery. Application Status Decision Made Site Address 182 Muswell...

Type Change of use
Status Unknown
Date Date not available

Application Reference OLD/1956/0388 Proposal Internal alterations to form kitchenette and conversion of basement flat into two flats. Applic...

Type Change of use
Status Unknown
Date Date not available

Application Reference OLD/1956/0389 Proposal Internal alterations to form kitchenette and conversion of basement flat into two flats. Applic...

Type Change of use
Status Unknown
Date Date not available

Application Reference OLD/1957/0372 Proposal Erection of retaining and fence wall on flank frontage of Onslow gardens. Application Status De...

Type Other
Status Unknown
Date Date not available

Application Reference OLD/1958/0347 Proposal Conversion of 2-2 bedroom flats & 2 bed-sitting rooms for a period of 10 years on re-developmen...

Type Change of use
Status Unknown
Date Date not available

Application Reference OLD/1958/0348 Proposal Conversion of 2-2 bedroom flats & 2 bed-sitting rooms for a period of 10 years on re-developmen...

Type Change of use
Status Unknown
Date Date not available

Application Reference OLD/1959/0372 Proposal Part reconstruction of garage premises to provide two storey motor showroom offices etc. Applic...

Type Commercial
Status Unknown
Date Date not available

Application Reference OLD/1960/0489 Proposal Demolition of house and erection of three storey block of 6 flats and group of 6 garages at rea...

Type New housing
Status Unknown
Date Date not available

Application Reference OLD/1960/0493 Proposal The rebuilding on bombed site of a house desinged as two self-contained flats. Application Stat...

Type New housing
Status Unknown
Date Date not available

Application Reference OLD/1960/0497 Proposal 3 storey block of 6 two room flats & 6 bedsits (completed 26/6/67). Application Status Decision...

Type New housing
Status Unknown
Date Date not available

Application Reference OLD/1961/0569 Proposal Addition to garage building in course of erection. Application Status Decision Made Site Addres...

Type Commercial
Status Unknown
Date Date not available

Application Reference OLD/1963/0456 Proposal Demolition of existing house and erection of flats not exceeding 4 storeys ( 24 habitable rooms...

Type New housing
Status Unknown
Date Date not available

Application Reference OLD/1963/0499 Proposal Use as wholesale warehouse for confectionery and tobacco. Application Status Decision Made Site...

Type Change of use
Status Unknown
Date Date not available

Application Reference OLD/1964/0522 Proposal Conversion of house into 4 self-contained flats. Application Status Decision Made Site Address ...

Type Change of use
Status Unknown
Date Date not available

Application Reference OLD/1964/0523 Proposal Erection of flats fronting on Mountview Road. Application Status Decision Made Site Address The...

Type New housing
Status Unknown
Date Date not available

Application Reference OLD/1965/0471 Proposal 14 16 Erection of garage at rear. Application Status Decision Made Site Address 14-16 Middle La...

Type Other
Status Unknown
Date Date not available

Application Reference OLD/1965/0477 Proposal Erection of 39 - 5 person houses, 35 - 4 person houses, 28 - 2 person flats, 116 garages/car sp...

Type New housing
Status Unknown
Date Date not available

Application Reference OLD/1965/0484 Proposal Conversion into two self-contained flats. Completed 5/9/66 Application Status Decision Made Sit...

Type Change of use
Status Unknown
Date Date not available

Application Reference OLD/1966/0469 Proposal Alteration and change of use to old persons rest home. Application Status Decision Made Site Ad...

Type Change of use
Status Unknown
Date Date not available

Application Reference OLD/1966/0478 Proposal Demolition of house and erection of flats with garages. Application Status Decision Made Site A...

Type Demolition
Status Unknown
Date Date not available

Application Reference OLD/1966/0512 Proposal Erection and display of illuminated projecting sign. Application Status Decision Made Site Addr...

Type Advertisement
Status Unknown
Date Date not available

Application Reference OLD/1966/0513 Proposal Erection and display of illuminated projecting sign. Application Status Decision Made Site Addr...

Type Advertisement
Status Unknown
Date Date not available

Application Reference OLD/1966/0514 Proposal Erection of temporary cover attached to joiners shop. Application Status Decision Made Site Add...

Type Commercial
Status Unknown
Date Date not available

Application Reference OLD/1967/0475 Proposal Demolition of two detached houses and erection of four storey block of 12 flats; terrace of six...

Type New housing
Status Unknown
Date Date not available

Application Reference OLD/1967/0506 Proposal Conversion into four self-contained flats. Application Status Decision Made Site Address 5 Musw...

Type Change of use
Status Unknown
Date Date not available

Application Reference OLD/1967/0510 Proposal Erection of kitchen extension. Application Status Decision Made Site Address 69 Myddleton Road ...

Type House extension
Status Unknown
Date Date not available

Application Reference OLD/1968/0434 Proposal 14-16 Erection of garage for parking of car and storage in connection with shop. Application St...

Type Commercial
Status Unknown
Date Date not available

Application Reference OLD/1968/0493 Proposal Redevelopment of the Seventh-Day Adventist Church. Application Status Decision Made Site Addres...

Type Other
Status Unknown
Date Date not available

Application Reference OLD/1970/0675 Proposal Conversion into 3 self-contained flats. Application Status Decision Made Site Address 174 Muswe...

Type Change of use
Status Unknown
Date Date not available

Application Reference OLD/1970/0680 Proposal Conversion into 2 self-contained flats. Application Status Decision Made Site Address 63 Nelson...

Type Change of use
Status Unknown
Date Date not available

Application Reference OLD/1970/0681 Proposal Conversion into 3 self-contained flats. Application Status Decision Made Site Address 101 Nelso...

Type Change of use
Status Unknown
Date Date not available

Application Reference OLD/1970/0682 Proposal Conversion into 2 self-contained flats. Application Status Decision Made Site Address 145 Nelso...

Type Change of use
Status Unknown
Date Date not available

Application Reference OLD/1971/0650 Proposal Conversion into 2 self-contained flats. Application Status Decision Made Site Address 5 Muswell...

Type Change of use
Status Unknown
Date Date not available

Application Reference OLD/1971/0671 Proposal Erection of single storey rear extension. Application Status Decision Made Site Address 10 Nort...

Type House extension
Status Unknown
Date Date not available

Application Reference OLD/1971/0672 Proposal Installation of new shopfront, erection of boiler flue and dute and erection of new boiler room...

Type Commercial
Status Unknown
Date Date not available

Application Reference OLD/1972/0746 Proposal Erection of two storey house with integral garage (Scheme B). Application Status Decision Made ...

Type New housing
Status Unknown
Date Date not available

Application Reference OLD/1973/0772 Proposal Conversion to 3 self-contained flats. Application Status Decision Made Site Address 9 Methuen P...

Type Change of use
Status Unknown
Date Date not available

Application Reference OLD/1973/0773 Proposal Erection into 3 self-contained maisonettes. Application Status Decision Made Site Address 17 Me...

Type New housing
Status Unknown
Date Date not available

Application Reference OLD/1973/0800 Proposal Conversion into four self-contained flats. Application Status Decision Made Site Address 30 Mil...

Type Change of use
Status Unknown
Date Date not available

Application Reference OLD/1973/0848 Proposal Erection of one 1-bedroom houses 2 two bedroom houses, two lock-up garages & two parking spaces...

Type New housing
Status Unknown
Date Date not available

Application Reference OLD/1973/0857 Proposal Conversion into 3 self-contained flats. Application Status Decision Made Site Address 176 Muswe...

Type Change of use
Status Unknown
Date Date not available

Application Reference OLD/1973/0858 Proposal Conversion into 3 self-contained flats. Application Status Decision Made Site Address 178 Muswe...

Type Change of use
Status Unknown
Date Date not available

Application Reference OLD/1973/0863 Proposal 116-120 Erection of extension at ground floor level, conversion of ground floor into one shop a...

Type Change of use
Status Unknown
Date Date not available

Application Reference OLD/1973/0881 Proposal Erection of new church. Application Status Decision Made Site Address Seven Day Adventist Churc...

Type Other
Status Unknown
Date Date not available

Application Reference OLD/1973/0894 Proposal Erection of single storey bathroom extension at rear & erection of bay window & porch at front....

Type House extension
Status Unknown
Date Date not available

Application Reference OLD/1973/0902 Proposal Conversion into four flats. Application Status Decision Made Site Address 44 Alexandra Park Roa...

Type Change of use
Status Unknown
Date Date not available

Application Reference OLD/1974/0772 Proposal Conversion into two self-contained flats. Application Status Decision Made Site Address 196 Mou...

Type Change of use
Status Unknown
Date Date not available

Application Reference OLD/1974/0786 Proposal Conversion of two house into four self-contained flats. Application Status Decision Made Site A...

Type Change of use
Status Unknown
Date Date not available

Application Reference OLD/1974/0817 Proposal Conversion into two self-contained flats with existing shop retained. Application Status Decisi...

Type Change of use
Status Unknown
Date Date not available

Application Reference OLD/1974/0819 Proposal Use as a coffee house. Application Status Decision Made Site Address 115 Myddleton Road N22 Dat...

Type Change of use
Status Unknown
Date Date not available

Application Reference OLD/1974/0820 Proposal Use as a coffee house. Application Status Decision Made Site Address 115 Myddleton Road N22 Dat...

Type Change of use
Status Unknown
Date Date not available

Application Reference OLD/1974/0821 Proposal Conversion into two self-contained flats. Application Status Decision Made Site Address 5 Napie...

Type Change of use
Status Unknown
Date Date not available

Erecting a two-storey side extension and converting the building into two self-contained flats.

Type Change of use
Status Unknown
Date Date not available

Application Reference OLD/1975/0654 Proposal Conversion of house into 4 self-contained flats. Application Status Decision Made Site Address ...

Type Change of use
Status Unknown
Date Date not available

Application Reference OLD/1975/0666 Proposal 4-6 Erection of residential development group 5 terraced 3 storey houses + 3 bungalows. Applica...

Type New housing
Status Unknown
Date Date not available

Application Reference OLD/1975/0709 Proposal Conversion into two self-contained flats. Application Status Decision Made Site Address 10 Nort...

Type Change of use
Status Unknown
Date Date not available

Application Reference OLD/1976/0683 Proposal 25/8/76 Conversion into 2 self-contained flats. Application Status Decision Made Site Address 1...

Type Change of use
Status Unknown
Date Date not available

Application Reference OLD/1977/0667 Proposal 27/4/77 Conversion into 3 self-contained flats. Application Status Decision Made Site Address 4...

Type Change of use
Status Unknown
Date Date not available

Application Reference OLD/1977/0750 Proposal 11/11/76 Conversion into 2 self-contained flats. Application Status Decision Made Site Address ...

Type Change of use
Status Unknown
Date Date not available

Application Reference OLD/1977/0751 Proposal Conversion into 2 self-contained flats. Application Status Decision Made Site Address 103 Night...

Type Change of use
Status Unknown
Date Date not available

Application Reference OLD/1978/0677 Proposal 22/7/77 Self-containing 2 existing flats and provision of external staircase access. Applicatio...

Type Other
Status Unknown
Date Date not available

Application Reference OLD/1978/0693 Proposal 19/12/77 Conversion into 4 self-contained flats. Application Status Decision Made Site Address ...

Type Change of use
Status Unknown
Date Date not available

Application Reference OLD/1978/0709 Proposal 29/3/78 Erection of s/s kitchen extension at the rear and s/s garage extension at side. Applica...

Type House extension
Status Unknown
Date Date not available

Application Reference OLD/1978/0749 Proposal 24/1/78 Conversion into 2 self-contained flats. Application Status Decision Made Site Address 9...

Type Change of use
Status Unknown
Date Date not available

Application Reference OLD/1978/0760 Proposal 3/5/78 Erection of brick structure for workshop and storage of building materials. Application ...

Type Industrial
Status Unknown
Date Date not available

Application Reference OLD/1978/0761 Proposal 14/7/78 Conversion of existing shop with flat, above into a single family house. Application St...

Type Change of use
Status Unknown
Date Date not available

Application Reference OLD/1979/0751 Proposal 20/2/79 Alteration to church premises, removal of existing porch, rendering of front elevation ...

Type Other
Status Unknown
Date Date not available

Application Reference OLD/1980/0753 Proposal 21/10/80 Conversion into 4 self-contained flats. Application Status Decision Made Site Address ...

Type Change of use
Status Unknown
Date Date not available

Application Reference OLD/1980/0764 Proposal 29/11/79 Erection of water sampling and telemetry house. Application Status Decision Made Site ...

Type Infrastructure
Status Unknown
Date Date not available

Application Reference OLD/1980/0765 Proposal 20/3/80 Erection of interwoven timber screen along road frontage. Application Status Decision M...

Type Other
Status Unknown
Date Date not available

Application Reference OLD/1980/0766 Proposal 4-10 Erection of 30 two person flats and 6 five person houses. Application Status Decision Made...

Type New housing
Status Unknown
Date Date not available

Application Reference OLD/1980/0810 Proposal 28/1/80 Conversion into 4 self-contained flats. Application Status Decision Made Site Address 1...

Type Change of use
Status Unknown
Date Date not available

Application Reference OLD/1980/0815 Proposal 10/3/80 Erection of single storey rear extension to provide store and installation of rear shop...

Type Commercial
Status Unknown
Date Date not available

Application Reference OLD/1980/0879 Proposal 19/2/80 Erection of single storey rear kitchen extension and two storey side extension to provi...

Type House extension
Status Unknown
Date Date not available

Application Reference OLD/1981/0810 Proposal 3/3/81 Erection of timber + glass infill at rear of house. Application Status Decision Made Sit...

Type House extension
Status Unknown
Date Date not available

Application Reference OLD/1981/0854 Proposal 31/3/81 Conversion into 2 self-contained flats. Application Status Decision Made Site Address 3...

Type Change of use
Status Unknown
Date Date not available

Application Reference OLD/1981/0855 Proposal 31/3/81 Conversion into 2 self-contained flats. Application Status Decision Made Site Address 3...

Type Change of use
Status Unknown
Date Date not available

Application Reference OLD/1981/0876 Proposal 12/2/81 Conversion into two self-contained flats. Application Status Decision Made Site Address...

Type Change of use
Status Unknown
Date Date not available

Application Reference OLD/1982/0808 Proposal 1/3/82 Conversion into 4 self-contained flats. Application Status Decision Made Site Address 32...

Type Change of use
Status Unknown
Date Date not available

Application Reference OLD/1982/0858 Proposal 1/2/82 Conversion to form 4 self-contained flats. Application Status Decision Made Site Address...

Type Change of use
Status Unknown
Date Date not available

Application Reference OLD/1982/0866 Proposal 12/7/82 Erection of extension at the rear of existing shop for storage purposes. Application St...

Type Commercial
Status Unknown
Date Date not available

Application Reference OLD/1982/0894 Proposal 23/11/81 Conversion to form 2 flats and alterations to ground floor flat to form bathroom. Appl...

Type Change of use
Status Unknown
Date Date not available

Application Reference OLD/1982/0895 Proposal 13/2/82 Erection of extension at first floor level for use as a meeting hall. Application Statu...

Type Other
Status Unknown
Date Date not available

Application Reference OLD/1982/0896 Proposal 11/8/82 Erection of single storey rear extension. Application Status Decision Made Site Address...

Type House extension
Status Unknown
Date Date not available

Application Reference OLD/1982/0957 Proposal 17/6/82 Conversion into 2 self-contained flats. Application Status Decision Made Site Address 2...

Type Change of use
Status Unknown
Date Date not available

Application Reference OLD/1983/0852 Proposal 17/6/83 Change of use from ancillary office use associated with the industrial estate to sepera...

Type Change of use
Status Unknown
Date Date not available

Application Reference OLD/1983/0853 Proposal 17/6/83 Change of use from ancillary office use associated with the industrial estate to sepera...

Type Change of use
Status Unknown
Date Date not available

Application Reference OLD/1983/0876 Proposal 18/11/82 Conversion into 2 self-contained flats. Application Status Decision Made Site Address ...

Type Change of use
Status Unknown
Date Date not available

Application Reference OLD/1983/0877 Proposal 21/4/83 Conversion into 2 self-contained flats. Application Status Decision Made Site Address 1...

Type Change of use
Status Unknown
Date Date not available

Application Reference OLD/1983/0878 Proposal 20/1/83 Conversion into two self-contained flats. Application Status Decision Made Site Address...

Type Change of use
Status Unknown
Date Date not available

Application Reference OLD/1983/0943 Proposal 10/10/83 Conversion into two self-contained flats. Application Status Decision Made Site Addres...

Type Change of use
Status Unknown
Date Date not available

Application Reference OLD/1984/0865 Proposal 29/8/84 Conversion into 4 self-contained flats. Application Status Decision Made Site Address 7...

Type Change of use
Status Unknown
Date Date not available

Application Reference OLD/1984/0886 Proposal 28/9/83 Conversion into one flats and one maisonette. Application Status Decision Made Site Add...

Type Change of use
Status Unknown
Date Date not available

Application Reference OLD/1984/0919 Proposal 16/2/84 Conversion to form 4 self-contained flats including formation of additional rear dormer...

Type Change of use
Status Unknown
Date Date not available

Application Reference OLD/1984/0926 Proposal 1/10/84 Conversion to four self-contained flats. Application Status Decision Made Site Address ...

Type Change of use
Status Unknown
Date Date not available

Application Reference OLD/1984/0941 Proposal 12/1/84 Erection of single storey extension. Application Status Decision Made Site Address 23 N...

Type House extension
Status Unknown
Date Date not available

Application Reference OLD/1985/0766 Proposal 4/12/84 Conversionof house into three self-contained units. Application Status Decision Made Si...

Type Change of use
Status Unknown
Date Date not available

Application Reference OLD/1948/0194 Proposal Extension of public bar on ground floor and the provision of staff accommodation on the first f...

Type Commercial
Status Unknown
Date Date not available

Application Reference OLD/1961/0582 Proposal New single storey extension at rear of shop. Application Status Decision Made Site Address 38 M...

Type Commercial
Status Unknown
Date Date not available

Application Reference OLD/1960/0491 Proposal Group of 6 garages with access from Montenotte Road. Application Status Decision Made Site Addr...

Type Other
Status Unknown
Date Date not available

Application Reference OLD/1961/0567 Proposal Six lock-up garages with access from Montenotte Road. Application Status Decision Made Site Add...

Type Other
Status Unknown
Date Date not available

Application Reference OLD/1961/0555 Proposal 14 Extension of consent to use of shop premises as a shopfitting work shop. Application Status ...

Type Change of use
Status Unknown
Date Date not available

Application Reference OLD/1980/0834 Proposal 7/2/80 Display of two 4-sheet advertisement display panels. Application Status Decision Made Si...

Type Advertisement
Status Unknown
Date Date not available

Application Reference OLD/1974/0811 Proposal Change of use to hostel for students. Application Status Decision Made Site Address 192 Muswell...

Type Change of use
Status Unknown
Date Date not available

Application Reference OLD/1976/0666 Proposal 21/1/76 Installatin of new enlarged rear dormer window to replace existing. Application Status ...

Type House extension
Status Unknown
Date Date not available

Application Reference OLD/1961/0566 Proposal Six lock-up garages with access from Montenotte Road. Application Status Decision Made Site Add...

Type Other
Status Unknown
Date Date not available

Application Reference OLD/1950/0373 Proposal Use of office for tailoring alterations and repairs. Application Status Decision Made Site Addr...

Type Change of use
Status Unknown
Date Date not available

Application Reference OLD/1960/0492 Proposal Group of 6 garages with access from Montenotte Road. Application Status Decision Made Site Addr...

Type Other
Status Unknown
Date Date not available

Application Reference OLD/1969/0448 Proposal Extension at rear to provide four bedsitting rooms, toilet accommodation, glazed verandah and c...

Type House extension
Status Unknown
Date Date not available

Application Reference OLD/1970/0621 Proposal Conversion into 2 self-contained flat. Application Status Decision Made Site Address 2 Montenot...

Type Change of use
Status Unknown
Date Date not available

Application Reference OLD/1963/0448 Proposal 14 Lock up garage at rear of shop. Application Status Decision Made Site Address 14-16 Middle L...

Type Commercial
Status Unknown
Date Date not available

Application Reference OLD/1971/0676 Proposal Installation of a bathroom and W.C. installation of new windows and renovation. Application Sta...

Type Other
Status Unknown
Date Date not available

Application Reference OLD/1977/0716 Proposal Change of use from shop to licensed Betting Office. Application Status Decision Made Site Addre...

Type Change of use
Status Unknown
Date Date not available

Application Reference OLD/1977/0693 Proposal 15/11/76 Conversion into 2 self-contained units. Application Status Decision Made Site Address ...

Type Change of use
Status Unknown
Date Date not available

Application Reference OLD/1974/0838 Proposal Conversion of existing alterations into leisane room and conversion of existing bedroom into a ...

Type Other
Status Unknown
Date Date not available

Application Reference OLD/1972/0648 Proposal 14-16 Installation of shopfront and conversion to launderette. Application Status Decision Made...

Type Change of use
Status Unknown
Date Date not available

Application Reference OLD/1968/0488 Proposal Installation of new shop front. Application Status Decision Made Site Address 141 Myddleton Roa...

Type Commercial
Status Unknown
Date Date not available

Application Reference OLD/1980/0806 Proposal (105A) - 19/12/79 Use of Chiropodists Surgery for residential purposes. Application Status Deci...

Type Change of use
Status Unknown
Date Date not available

Application Reference OLD/1984/0843 Proposal 13/7/84 Conversion into two self-contained maisonettes. Application Status Decision Made Site A...

Type Change of use
Status Unknown
Date Date not available

Application Reference OLD/1958/0307 Proposal 14 Extension of consent to use of shop premises as a shopfitting work shop. Application Status ...

Type Change of use
Status Unknown
Date Date not available

Application Reference OLD/1979/0771 Proposal 7/7/77 Change of use of railway land to residential and open spcae purposes. Application in acc...

Type Change of use
Status Unknown
Date Date not available

Application Reference OLD/1983/0856 Proposal 5/10/83 Change of use of front portion of unit as a cafe. (Unit 30). Application Status Decisio...

Type Change of use
Status Unknown
Date Date not available

Application Reference OLD/1949/0373 Proposal 14 16 Extension of consent to use of shop premises as a shopfitting work shop. Application Stat...

Type Change of use
Status Unknown
Date Date not available

Application Reference OLD/1971/0664 Proposal Installation of new shop front. Application Status Decision Made Site Address 117 Myddleton Roa...

Type Commercial
Status Unknown
Date Date not available

Application Reference OLD/1962/0505 Proposal Extension of garage premises, car lift. Application Status Decision Made Site Address Hill Moto...

Type Commercial
Status Unknown
Date Date not available

Application Reference OLD/1976/0713 Proposal 9/8/76 Installation of new shop front. Application Status Decision Made Site Address 70 Myddlet...

Type Commercial
Status Unknown
Date Date not available

Application Reference OLD/1983/0855 Proposal 12/10/83 Change of use from light industrial unit to restaurant cafeteria with take away facili...

Type Change of use
Status Unknown
Date Date not available

Application Reference OLD/1976/0718 Proposal 116 19/7/76 Installation of new shop front. Application Status Decision Made Site Address 116-1...

Type Commercial
Status Unknown
Date Date not available

Application Reference OLD/1983/0854 Proposal 12/10/83 Change of use from light industrial unit to restaurant cafeteria with take away facili...

Type Change of use
Status Unknown
Date Date not available

Application Reference OLD/1983/0983 Proposal 18/5/83 Change of use to clothing manufacture. Application Status Decision Made Site Address 24...

Type Change of use
Status Unknown
Date Date not available

Application Reference OLD/1956/0395 Proposal 8 Conversion of basement into self-contained flat. Application Status Decision Made Site Addres...

Type Change of use
Status Unknown
Date Date not available

Application Reference OLD/1983/0857 Proposal 5/10/83 Change of use of front portion of unit as a cafe. (Unit 30). Application Status Decisio...

Type Change of use
Status Unknown
Date Date not available

Application Reference OLD/1972/0721 Proposal Change of use from shop to use for assembly of light industrial equipment. Application Status D...

Type Change of use
Status Unknown
Date Date not available

Application Reference OLD/1959/0407 Proposal 4. Use of ground floor as offices; conversion of first floor into flat and use of timber buildi...

Type Change of use
Status Unknown
Date Date not available

Application Reference OLD/1965/0479 Proposal Roofing over open yard in front of garages. Application Status Decision Made Site Address Hill ...

Type Commercial
Status Unknown
Date Date not available

Application Reference OLD/1984/0848 Proposal 4/1/84 Change of use to office for employment agency. Application Status Decision Made Site Add...

Type Change of use
Status Unknown
Date Date not available

Application Reference OLD/1952/0320 Proposal Extension to existing chapel. Application Status Decision Made Site Address Seven Day Adventist...

Type Commercial
Status Unknown
Date Date not available

Application Reference OLD/1952/0290 Proposal 14 Extension of consent to use of shop premises as a shopfitting work shop. Application Status ...

Type Change of use
Status Unknown
Date Date not available

Application Reference OLD/1981/0821 Proposal 4/3/81 Conversion to form 3 self-contained units. Application Status Decision Made Site Address...

Type Change of use
Status Unknown
Date Date not available

Application Reference OLD/1976/0710 Proposal 28/5/76 Conversion into a hostel with nine bedsitting rooms. Application Status Decision Made S...

Type Change of use
Status Unknown
Date Date not available

Application Reference OLD/1965/0480 Proposal Roofing over open yard in front of garages. Application Status Decision Made Site Address 14-16...

Type Other
Status Unknown
Date Date not available

Application Reference OLD/1978/0743 Proposal 118 13/1/78 Installation of new shopfront. Application Status Decision Made Site Address 116-12...

Type Commercial
Status Unknown
Date Date not available

Application Reference OLD/1978/0744 Proposal 118 18/1/78 Installation of aluminium shopfront. Application Status Decision Made Site Address ...

Type Commercial
Status Unknown
Date Date not available

Application Reference OLD/1951/0312 Proposal A glass extension in front of existing garage. Application Status Decision Made Site Address 10...

Type House extension
Status Unknown
Date Date not available

Application Reference OLD/1955/0413 Proposal 14 Extension of consent to use of shop premises as a shopfitting work shop. Application Status ...

Type Change of use
Status Unknown
Date Date not available

Reference 25/2123/FH Site address Hoad Meadow, Hoad Road, Swingfield Proposal Retrospective application for use of land for residential purp...

Type Change of use
Status Unknown
Date Date not available

Reference 25/1815/FH Site address 2 FAIRFIELD, ELHAM, CANTERBURY, CT4 6UT Proposal Retaining wall and patio area to rear. Date valid 04/12/2...

Type Other
Status Unknown
Date Date not available

Reference 25/2146/FH Site address 9 HIND CLOSE, DYMCHURCH, ROMNEY MARSH, TN29 0LG Proposal Front, side and rear extension including store an...

Type House extension
Status Unknown
Date Date not available
Plan thumbnail

CHANGE OF USE OF THE EXISTING REDUNDANT PAVILION BUILDING TO A FLEXIBLE USE FALLING WITHIN USE CLASS E, (COMMERCIAL, BUSINESS AND SERVICE) F...

Type New housing
Status Awaiting decision
Date Date not available

Application Reference HGY/2025/3334 Proposal Erection of a single storey rear and side infill extension and alterations to the rear fenestra...

Type House extension
Status Unknown
Date Date not available

Application Reference HGY/2025/3427 Proposal Installation of a side rooflight in the front elevation. Application Status Under Consultation ...

Type Other
Status Unknown
Date Date not available

Application Reference HGY/2026/0092 Proposal Enlargement of existing window openings on rear elevation with new glazing, chimney stack remov...

Type House extension
Status Unknown
Date Date not available

Application Reference HGY/2025/2571 Proposal Change of Use from F1 (F - Public Worship or Religious Institution) to F2 (Community Use) Appli...

Type Change of use
Status Unknown
Date Date not available

Application Reference HGY/2026/0097 Proposal Erection of ground floor rear extension Application Status Under Consultation Site Address 169 ...

Type House extension
Status Unknown
Date Date not available

Application Reference HGY/2025/3595 Proposal Erection of rear dormer and roof extension to provide additional self-contained dwelling with t...

Type New housing
Status Unknown
Date Date not available

Application Reference HGY/2026/0070 Proposal Erection of a rear dormer window and two front facing conservation rooflights Application Statu...

Type House extension
Status Unknown
Date Date not available

Application Reference HGY/2025/3078 Proposal Change of use from a single-family 3-bedroom self-contained flat (Use Class C3) to small 3-bed ...

Type Change of use
Status Unknown
Date Date not available

Application Reference HGY/2026/0098 Proposal Enlargement of single storey rear extension. Application Status Valid Site Address 56 Carew Roa...

Type House extension
Status Unknown
Date Date not available

Application Reference PA/2025/1599 Site Address Wye Post Office, 33 The Green, Wye, Ashford, TN25 5AJ Proposal Installation of a box shutter...

Type Commercial
Status Unknown
Date Date not available

Application Reference PA/2025/2378 Site Address Unit 2C, Briar Close, Bramble Lane, Wye, Ashford, TN25 5HB Proposal Change of use from an Of...

Type Change of use
Status Unknown
Date Date not available

Application Reference PA/2025/2353 Site Address 17 Craythorne, Tenterden, TN30 6SD Proposal Proposed extension over the garage incorporating...

Type House extension
Status Unknown
Date Date not available
Plan thumbnail

503 Burnley Road, Accrington, Lancashire, BB5 6LD | Full Planning Application | Full: Demolition of existing out building, addition of 3No. ...

Type Demolition
Status Unknown
Date Date not available
Plan thumbnail

58 Station Road, Rishton, Lancashire, BB1 4HF | Householder | Householder: Erection of first floor rear extension and single storey side and...

Type House extension
Status Unknown
Date Date not available
Plan thumbnail

8 Richmond Crescent, Oswaldtwistle, Lancashire, BB1 3LU | Householder | Householder: Erection of hip to gable extension with rear dormer and...

Type House extension
Status Unknown
Date Date not available

12 Beech Close, Rishton, Lancashire, BB1 4HL | Householder | Householder: Erection of single storey rear extension | Application No: 11/25/0...

Type House extension
Status Unknown
Date Date not available

Baxenden Fold Cottage, Manchester Road, Accrington Lancashire, BB5 2RU | Full Planning Application | Full: Amalgamation of two dwellings int...

Type Other
Status Unknown
Date Date not available

School House, Burnley Road, Altham, Accrington, BB5 5UH | Householder | Householder: Erection of single storey side extension. | Application...

Type House extension
Status Unknown
Date Date not available

4 Hyndburn Road, Church, Lancashire, BB5 4AA | Householder | Householder: Erection of single storey side garage extension (retrospective) | ...

Type House extension
Status Unknown
Date Date not available

3 Wheat Street, Accrington, Lancashire, BB5 0AX | Householder | Householder: Erection of front step and rail access. | Application No: 11/25...

Type House extension
Status Unknown
Date Date not available
Plan thumbnail

4 Sawrey Court, Clayton-le-moors, Lancashire, BB5 5GD | Householder | Householder: Erection of a two-storey rear extension and front porch w...

Type House extension
Status Unknown
Date Date not available
Plan thumbnail

50 Greaves Street, Great Harwood, Lancashire, BB6 7DY | Householder | Householder: Erection of rear single storey extension | Application No...

Type House extension
Status Unknown
Date Date not available

Land adjacent to Burnley Road, Altham, | Permission in Principle (For Developers) | Permission in Principle for between 3no. and 5no. reside...

Type New housing
Status Unknown
Date Date not available

20-22 Whalley Road, Accrington, Lancashire, BB5 1AA | Full Planning Application | Full: Change of use from commercial to residential use at ...

Type Change of use
Status Unknown
Date Date not available

354 Union Road, Oswaldtwistle, Lancashire, BB5 3JD | Full Planning Application | Full:Installation of Portakabin building to be used as staf...

Type Industrial
Status Unknown
Date Date not available
Plan thumbnail

Chamdol House, Plane Tree Crescent, Feltham, TW13 7HF | PF-Full Applications | All external elevations to be painted in grey and all the win...

Type Industrial
Status Unknown
Date Date not available

723 Bath Road, Hounslow, TW5 9SZ | PF-Full Applications | Change of use from the existing residential house (C3) to a care home (C2). | Appl...

Type Change of use
Status Unknown
Date Date not available
Plan thumbnail

18 Elliott Road, Chiswick, London, W4 1PE | PF-Full Applications | Erection of a single storey rear infill extension to the house. | Applica...

Type House extension
Status Unknown
Date Date not available

3a Victor Villas, Chiswick Common Road, Chiswick, London, W4 1RS | PF-Full Applications | Erection of a rear roof extension with one front r...

Type House extension
Status Unknown
Date Date not available
Plan thumbnail

Haslemere Heathrow Estate, Silver Jubilee Way, Hounslow, TW4 6NF | PO-Outline Application | Outline planning permission with all matters res...

Type Industrial
Status Unknown
Date Date not available

Proposed two-storey front extension, single-storey rear extension, removal of an existing projecting volume and pitched roof over existing f...

Type n/a
Status Registered
Date Date not available

572 London Road, Isleworth, TW7 4EP | PF-Full Applications | Erection of a two storey ancillary office building for commercial, business and...

Type Commercial
Status Unknown
Date Date not available

83 Kingsley Road, Hounslow, TW3 4AH | PF-Full Applications | Erection of single storey rear extension with a rear roller shutter to the shop...

Type House extension
Status Unknown
Date Date not available

147-161 High Street, Hounslow, TW3 1QL | PF-Full Applications | Erection of a part third floor front extension to provide four additional fl...

Type New housing
Status Unknown
Date Date not available

88A Crispen Road, Feltham, TW13 6QR | PF-Full Applications | Erection of single storey rear extension, installation of a new window on the g...

Type Change of use
Status Unknown
Date Date not available

Ground Floor Flat, 9 Millbourne Road, Feltham, TW13 6NJ | PF-Full Applications | Erection of a single storey rear infill extension | Applica...

Type House extension
Status Unknown
Date Date not available

19 A Borough Road, Isleworth,TW7 5DT | PF-Full Applications | Installation of replacement double glazed windows to the front elevation of...

Type Other
Status Unknown
Date Date not available
Plan thumbnail

West Middlesex Hospital, Training Academy, Twickenham Road, Isleworth, TW7 6AF | Advertisement Application | Installation of an externally n...

Type Advertisement
Status Unknown
Date Date not available
Plan thumbnail

West Middlesex Hospital, Training Academy, Twickenham Road, Isleworth, TW7 6AF | PF-Full Applications | Change of use from a waste disposal ...

Type Change of use
Status Unknown
Date Date not available

Reference BA/0506/0216/ A Application type Rheoliadau Adeiladu Llawn / Full Building Regulations Site address TREVALYN GRANGE TREVALYN FARM,...

Type n/a
Status Unknown
Date Date not available

Reference BA/0607/0424/ A Application type Rheoliadau Adeiladu Llawn / Full Building Regulations Site address , RIVERSIDE COTTAGE, PONT LLYG...

Type n/a
Status Unknown
Date Date not available

Reference BA/0607/0925/ 6 Application type Rheoliadau Adeiladu Llawn / Full Building Regulations Site address Netherfield & Wychwood, Marfor...

Type n/a
Status Unknown
Date Date not available

Reference BA/0708/0917/ A Application type Rheoliadau Adeiladu Llawn / Full Building Regulations Site address 11 PARK ROAD, TANYFRON, WREXHA...

Type n/a
Status Unknown
Date Date not available

Reference BA/0809/0101/ A Application type Rheoliadau Adeiladu Llawn / Full Building Regulations Site address M F I, UNIT 2, MOUNT STREET, W...

Type n/a
Status Unknown
Date Date not available

Reference BA/0809/0176/ A Application type Rheoliadau Adeiladu Llawn / Full Building Regulations Site address GARTH, 12 WYNNSTAY LANE, MARFO...

Type n/a
Status Unknown
Date Date not available

Reference BA/0809/0629/ A Application type Rheoliadau Adeiladu Llawn / Full Building Regulations Site address LAKE COTTAGE, DARLANDS LANE, R...

Type n/a
Status Unknown
Date Date not available

Reference BA/0910/0003/ Application type Rheoliadau Adeiladu Llawn / Full Building Regulations Site address , KIMBERLEY, PEN Y GRAIG ROAD, B...

Type n/a
Status Unknown
Date Date not available

Reference BA/0910/0004/ Application type Rheoliadau Adeiladu Llawn / Full Building Regulations Site address HEALTH CENTRE, BROAD STREET, RHO...

Type n/a
Status Unknown
Date Date not available

Reference BA/0910/0008/ Application type Rheoliadau Adeiladu Llawn / Full Building Regulations Site address 3 HAWTHORN ROAD, MARFORD, WREXHA...

Type n/a
Status Unknown
Date Date not available

Reference BA/0910/0009/ Application type Rheoliadau Adeiladu Llawn / Full Building Regulations Site address THE WARREN, PANT LANE, GRESFORD,...

Type n/a
Status Unknown
Date Date not available

Reference BA/0910/0010/ Application type Rheoliadau Adeiladu Llawn / Full Building Regulations Site address , HILLOCK FARM, HILLOCK LANE, GR...

Type n/a
Status Unknown
Date Date not available

Reference BA/0910/0011/ Application type Rheoliadau Adeiladu Llawn / Full Building Regulations Site address 7 GERALD STREET, WREXHAM, LL11 1...

Type n/a
Status Unknown
Date Date not available

Reference BA/0910/0012/ Application type Rheoliadau Adeiladu Llawn / Full Building Regulations Site address THE NOOK, SHORT LANE, NEWBRIDGE,...

Type n/a
Status Unknown
Date Date not available

Reference BA/0910/0013/ Application type Rheoliadau Adeiladu Llawn / Full Building Regulations Site address SUNNYSIDE, WREXHAM ROAD, BRYNTEG...

Type n/a
Status Unknown
Date Date not available

Reference BA/0910/0014/ Application type Rheoliadau Adeiladu Llawn / Full Building Regulations Site address 45 WESTBURY DRIVE, PANDY, WREXHA...

Type n/a
Status Unknown
Date Date not available

Reference BA/0910/0015/ Application type Rheoliadau Adeiladu Llawn / Full Building Regulations Site address , WERN FARM, WERN, MINERA, WREXH...

Type n/a
Status Unknown
Date Date not available

Reference BA/0910/0018/ Application type Rheoliadau Adeiladu Llawn / Full Building Regulations Site address THE GRANGE, HALL STREET, PEN Y C...

Type n/a
Status Unknown
Date Date not available

Reference BA/0910/0019/ Application type Rheoliadau Adeiladu Llawn / Full Building Regulations Site address GRANGE NURSERY, RACKERY LANE, LL...

Type n/a
Status Unknown
Date Date not available

Reference BA/0910/0022/ Application type Rheoliadau Adeiladu Llawn / Full Building Regulations Site address , JESMOND, PANT LANE, GRESFORD, ...

Type n/a
Status Unknown
Date Date not available

Reference BA/0910/0023/ Application type Rheoliadau Adeiladu Llawn / Full Building Regulations Site address 19 ST MELLIONS CRESCENT, RHOSNES...

Type n/a
Status Unknown
Date Date not available

Reference BA/0910/0024/ Application type Rheoliadau Adeiladu Llawn / Full Building Regulations Site address , PENDORLAN, FRANCIS ROAD, MOSS,...

Type n/a
Status Unknown
Date Date not available

Reference BA/0910/0025/ Application type Rheoliadau Adeiladu Llawn / Full Building Regulations Site address , MAZDA HOUSE, MARKET STREET, WR...

Type n/a
Status Unknown
Date Date not available

Reference BA/0910/0026/ Application type Rheoliadau Adeiladu Llawn / Full Building Regulations Site address NEW BUNGALOW, MILL ROAD, BRONING...

Type n/a
Status Unknown
Date Date not available

Reference BA/0910/0029/ Application type Rheoliadau Adeiladu Llawn / Full Building Regulations Site address 36 THE RIDGEWAY, MARCHWIEL, WREX...

Type n/a
Status Unknown
Date Date not available

Reference BA/0910/0030/ Application type Rheoliadau Adeiladu Llawn / Full Building Regulations Site address 24 FFORDD ELAN, WREXHAM, LL12 7R...

Type n/a
Status Unknown
Date Date not available

Reference BA/0910/0031/ Application type Rheoliadau Adeiladu Llawn / Full Building Regulations Site address 51 ELDON GROVE, RHOSTYLLEN, WREX...

Type n/a
Status Unknown
Date Date not available

Reference BA/0910/0033/ Application type Rheoliadau Adeiladu Llawn / Full Building Regulations Site address , HOMESTEAD, STRYT LAS, RHOSLLAN...

Type n/a
Status Unknown
Date Date not available

Reference BA/0910/0034/ Application type Rheoliadau Adeiladu Llawn / Full Building Regulations Site address 9 Y FRON, JOHNSTOWN, WREXHAM, LL...

Type n/a
Status Unknown
Date Date not available

Reference BA/0910/0035/ Application type Rheoliadau Adeiladu Llawn / Full Building Regulations Site address 19 AEL Y BRYN, , WREXHAM, LL11 2...

Type n/a
Status Unknown
Date Date not available

Reference BA/0910/0036/ Application type Rheoliadau Adeiladu Llawn / Full Building Regulations Site address 54 FFORDD GLYN, WREXHAM, LL13 7Q...

Type n/a
Status Unknown
Date Date not available

Reference BA/0910/0037/ Application type Rheoliadau Adeiladu Llawn / Full Building Regulations Site address , SEACOP KENNELS, LYON LANE, BRY...

Type n/a
Status Unknown
Date Date not available

Reference BA/0910/0038/ Application type Rheoliadau Adeiladu Llawn / Full Building Regulations Site address , TOBACCO DOCK, WESTMINSTER ROAD...

Type n/a
Status Unknown
Date Date not available

Reference BA/0910/0040/ Application type Rheoliadau Adeiladu Llawn / Full Building Regulations Site address , THE OLD BARN, MINERA ROAD, BRY...

Type n/a
Status Unknown
Date Date not available

Reference BA/0910/0041/ Application type Rheoliadau Adeiladu Llawn / Full Building Regulations Site address 32 THE HAWTHORNS, WREXHAM, LL12 ...

Type n/a
Status Unknown
Date Date not available

Reference BA/0910/0043/ Application type Rheoliadau Adeiladu Llawn / Full Building Regulations Site address , BRYN NEWYDD COTTAGE, ROCK LANE...

Type n/a
Status Unknown
Date Date not available

Reference BA/0910/0045/ Application type Rheoliadau Adeiladu Llawn / Full Building Regulations Site address , 1, MAES ENION, RHOSLLANERCHRUG...

Type n/a
Status Unknown
Date Date not available

Reference BA/0910/0046/ Application type Rheoliadau Adeiladu Llawn / Full Building Regulations Site address 41 BODWYN CRESCENT, GRESFORD, WR...

Type n/a
Status Unknown
Date Date not available

Reference BA/0910/0048/ Application type Rheoliadau Adeiladu Llawn / Full Building Regulations Site address , BOD EIRION (LAND TO REAR OF), ...

Type n/a
Status Unknown
Date Date not available

Reference BA/0910/0054/ Application type Rheoliadau Adeiladu Llawn / Full Building Regulations Site address , WESTWOOD, HOLYHEAD ROAD, CHIRK...

Type n/a
Status Unknown
Date Date not available

Reference BA/0910/0055/ Application type Rheoliadau Adeiladu Llawn / Full Building Regulations Site address , RAGGS HILL SHIELING, WHITCHURC...

Type n/a
Status Unknown
Date Date not available

Reference BA/0910/0056/ Application type Rheoliadau Adeiladu Llawn / Full Building Regulations Site address 17 LINLEY AVENUE, JOHNSTOWN, WRE...

Type n/a
Status Unknown
Date Date not available

Reference BA/0910/0059/ Application type Rheoliadau Adeiladu Llawn / Full Building Regulations Site address , PENDINE PARK NURSING HOME, SUM...

Type n/a
Status Unknown
Date Date not available

Reference BA/0910/0064/ Application type Rheoliadau Adeiladu Llawn / Full Building Regulations Site address 10 THE GREEN, WREXHAM, LL12 8BH ...

Type n/a
Status Unknown
Date Date not available

Reference BA/0910/0065/ Application type Rheoliadau Adeiladu Llawn / Full Building Regulations Site address 7 ERDDIG CLOSE, RHOSTYLLEN, WREX...

Type n/a
Status Unknown
Date Date not available

Reference BA/0910/0066/ Application type Rheoliadau Adeiladu Llawn / Full Building Regulations Site address , THE BARN, FOXWOOD, WORTHENBURY...

Type n/a
Status Unknown
Date Date not available

Reference BA/0910/0069/ Application type Rheoliadau Adeiladu Llawn / Full Building Regulations Site address , THE HOLLIES , CADNEY LANE, BET...

Type n/a
Status Unknown
Date Date not available

Reference BA/0910/0071/ Application type Rheoliadau Adeiladu Llawn / Full Building Regulations Site address 5 BODWYN PARK, GRESFORD, WREXHAM...

Type n/a
Status Unknown
Date Date not available

Reference BA/0910/0073/ Application type Rheoliadau Adeiladu Llawn / Full Building Regulations Site address 24 ACTON ROAD, WREXHAM, LL11 2NA...

Type n/a
Status Unknown
Date Date not available

Reference BA/0910/0074/ Application type Rheoliadau Adeiladu Llawn / Full Building Regulations Site address 26 CEFN ROAD, WREXHAM, LL13 9NH ...

Type n/a
Status Unknown
Date Date not available

Reference BA/0910/0075/ Application type Rheoliadau Adeiladu Llawn / Full Building Regulations Site address 1 FIELDHEAD, CHIRK GREEN ROAD, C...

Type n/a
Status Unknown
Date Date not available

Reference BA/0910/0079/ Application type Rheoliadau Adeiladu Llawn / Full Building Regulations Site address 12 BROADOAKS, ROSSETT, WREXHAM, ...

Type n/a
Status Unknown
Date Date not available

Reference BA/0910/0080/ Application type Rheoliadau Adeiladu Llawn / Full Building Regulations Site address , TAN DDERWEN, DREFECHAN, PEN Y ...

Type n/a
Status Unknown
Date Date not available

Reference BA/0910/0082/ Application type Rheoliadau Adeiladu Llawn / Full Building Regulations Site address 4 GLYNDWR ROAD, WREXHAM, LL12 8D...

Type n/a
Status Unknown
Date Date not available

Reference BA/0910/0083/ Application type Rheoliadau Adeiladu Llawn / Full Building Regulations Site address WYNFORD, HIGH STREET, PENTRE BRO...

Type n/a
Status Unknown
Date Date not available

Reference BA/0910/0084/ Application type Rheoliadau Adeiladu Llawn / Full Building Regulations Site address 218 Y WERN, WREXHAM, LL13 8UB De...

Type n/a
Status Unknown
Date Date not available

Reference BA/0910/0087/ Application type Rheoliadau Adeiladu Llawn / Full Building Regulations Site address , HOLLY COTTAGE, MARFORD HILL, M...

Type n/a
Status Unknown
Date Date not available

Reference BA/0910/0088/ Application type Rheoliadau Adeiladu Llawn / Full Building Regulations Site address DARLAND GOLF COURSE, DARLAND LAN...

Type n/a
Status Unknown
Date Date not available

Reference BA/0910/0089/ Application type Rheoliadau Adeiladu Llawn / Full Building Regulations Site address , 6 COED RICHARD, ACREFAIR, WREX...

Type n/a
Status Unknown
Date Date not available

Reference BA/0910/0090/ Application type Rheoliadau Adeiladu Llawn / Full Building Regulations Site address 8 MYDDLETON TERRACE, BRON Y WAUN...

Type n/a
Status Unknown
Date Date not available

Reference BA/0910/0091/ Application type Rheoliadau Adeiladu Llawn / Full Building Regulations Site address 18 HARWD ROAD, BRYMBO, WREXHAM, ...

Type n/a
Status Unknown
Date Date not available

Reference BA/0910/0092/ Application type Rheoliadau Adeiladu Llawn / Full Building Regulations Site address LONG MEADOW, OLD WREXHAM ROAD, G...

Type n/a
Status Unknown
Date Date not available

Reference BA/0910/0093/ Application type Rheoliadau Adeiladu Llawn / Full Building Regulations Site address 79 FFORDD GLYN, WREXHAM, LL13 7Q...

Type n/a
Status Unknown
Date Date not available

Reference BA/0910/0101/ Application type Rheoliadau Adeiladu Llawn / Full Building Regulations Site address 41 BROOK STREET, RHOSLLANERCHRUG...

Type n/a
Status Unknown
Date Date not available

Reference BA/0910/0107/ Application type Rheoliadau Adeiladu Llawn / Full Building Regulations Site address 14 WESTMINSTER DRIVE, WREXHAM, L...

Type n/a
Status Unknown
Date Date not available

Reference BA/0910/0109/ Application type Rheoliadau Adeiladu Llawn / Full Building Regulations Site address 9 SOUTHLEIGH DRIVE, WREXHAM, LL1...

Type n/a
Status Unknown
Date Date not available

Reference BA/0910/0110/ Application type Rheoliadau Adeiladu Llawn / Full Building Regulations Site address , ROSE TREE COTTAGE, TALLARN GRE...

Type n/a
Status Unknown
Date Date not available

Reference BA/0910/0111/ Application type Rheoliadau Adeiladu Llawn / Full Building Regulations Site address , DOLGAN, RUTHIN ROAD, BWLCHGWYN...

Type n/a
Status Unknown
Date Date not available

Reference BA/0910/0117/ Application type Rheoliadau Adeiladu Llawn / Full Building Regulations Site address UNIT 2, LAND ADJ SENSOR HOUSE (U...

Type n/a
Status Unknown
Date Date not available

Reference BA/0910/0118/ Application type Rheoliadau Adeiladu Llawn / Full Building Regulations Site address UNIT 1, LAND ADJ SENSOR HOUSE (U...

Type n/a
Status Unknown
Date Date not available

Reference BA/0910/0119/ Application type Rheoliadau Adeiladu Llawn / Full Building Regulations Site address , THISTLEDEW HOUSE, SCHOOL STREE...

Type n/a
Status Unknown
Date Date not available

Reference BA/0910/0123/ Application type Rheoliadau Adeiladu Llawn / Full Building Regulations Site address , TURN O DEE COTTAGE, OVERTON RO...

Type n/a
Status Unknown
Date Date not available

Reference BA/0910/0128/ Application type Rheoliadau Adeiladu Llawn / Full Building Regulations Site address 39 ANNEFIELD PARK, GRESFORD, WRE...

Type n/a
Status Unknown
Date Date not available

Reference BA/0910/0129/ Application type Rheoliadau Adeiladu Llawn / Full Building Regulations Site address 51 SNOWDON DRIVE, WREXHAM, LL11 ...

Type n/a
Status Unknown
Date Date not available

Reference BA/0910/0141/ Application type Rheoliadau Adeiladu Llawn / Full Building Regulations Site address 5 RIDGEWAY AVENUE, MARFORD, WREX...

Type n/a
Status Unknown
Date Date not available

Reference BA/0910/0142/ Application type Rheoliadau Adeiladu Llawn / Full Building Regulations Site address , CRAB MILL, YELLOW OAK ROAD, PE...

Type n/a
Status Unknown
Date Date not available

Reference BA/0910/0144/ Application type Rheoliadau Adeiladu Llawn / Full Building Regulations Site address , LLETY YR EOS, WHITEHURST, CHIR...

Type n/a
Status Unknown
Date Date not available

Reference BA/0910/0145/ Application type Rheoliadau Adeiladu Llawn / Full Building Regulations Site address 20 BURTON RISE, GRESFORD, WREXHA...

Type n/a
Status Unknown
Date Date not available

Reference BA/0910/0146/ Application type Rheoliadau Adeiladu Llawn / Full Building Regulations Site address 18 LAURELS AVENUE, BANGOR ISYCOE...

Type n/a
Status Unknown
Date Date not available

Reference BA/0910/0147/ Application type Rheoliadau Adeiladu Llawn / Full Building Regulations Site address , FERNDALE VILLA, 25, MANLEY ROA...

Type n/a
Status Unknown
Date Date not available

Reference BA/0910/0148/ Application type Rheoliadau Adeiladu Llawn / Full Building Regulations Site address CADNANT UCHAF, CADNANT ROAD, GLY...

Type n/a
Status Unknown
Date Date not available

Reference BA/0910/0149/ Application type Rheoliadau Adeiladu Llawn / Full Building Regulations Site address 34 SPRING ROAD, WREXHAM, LL11 2L...

Type n/a
Status Unknown
Date Date not available

Reference BA/0910/0151/ Application type Rheoliadau Adeiladu Llawn / Full Building Regulations Site address 15 GERALD STREET, WREXHAM, LL11 ...

Type n/a
Status Unknown
Date Date not available

Reference BA/0910/0152/ Application type Rheoliadau Adeiladu Llawn / Full Building Regulations Site address 6 GLYNDWR ROAD, WREXHAM, LL12 8D...

Type n/a
Status Unknown
Date Date not available

Reference BA/0910/0154/ Application type Rheoliadau Adeiladu Llawn / Full Building Regulations Site address 12 HAFAN DEG (OFF TALWRN ROAD), ...

Type n/a
Status Unknown
Date Date not available

Reference BA/0910/0156/ Application type Rheoliadau Adeiladu Llawn / Full Building Regulations Site address 7 GLOUCESTER DRIVE, WREXHAM, LL1...

Type n/a
Status Unknown
Date Date not available

Reference BA/0910/0157/ Application type Rheoliadau Adeiladu Llawn / Full Building Regulations Site address 43 PRIMROSE WAY, WREXHAM, LL11 2...

Type n/a
Status Unknown
Date Date not available

Reference BA/0910/0162/ Application type Rheoliadau Adeiladu Llawn / Full Building Regulations Site address UNIT 1, ZENITH HOUSE, GRESFORD I...

Type n/a
Status Unknown
Date Date not available

Reference BA/0910/0165/ Application type Rheoliadau Adeiladu Llawn / Full Building Regulations Site address , THE SYCAMORE, PANT LANE, GRESF...

Type n/a
Status Unknown
Date Date not available

Reference BA/0910/0167/ Application type Rheoliadau Adeiladu Llawn / Full Building Regulations Site address 1 LESTER VILLAS, HEOL MAELOR, CO...

Type n/a
Status Unknown
Date Date not available

Reference BA/0910/0169/ Application type Rheoliadau Adeiladu Llawn / Full Building Regulations Site address , GARDEN COTTAGE, BETHANIA ROAD,...

Type n/a
Status Unknown
Date Date not available

Reference BA/0910/0170/ Application type Rheoliadau Adeiladu Llawn / Full Building Regulations Site address , CHERRY HILL CHILDRENS DAY NURS...

Type n/a
Status Unknown
Date Date not available

Reference BA/0910/0171/ Application type Rheoliadau Adeiladu Llawn / Full Building Regulations Site address 1 BERSHAM ROAD, WREXHAM, LL13 7U...

Type n/a
Status Unknown
Date Date not available

Reference BA/0910/0172/ Application type Rheoliadau Adeiladu Llawn / Full Building Regulations Site address 9 BIRCH DRIVE, GRESFORD, WREXHAM...

Type n/a
Status Unknown
Date Date not available

Reference BA/0910/0173/ Application type Rheoliadau Adeiladu Llawn / Full Building Regulations Site address , 10 ERW DEG, ACREFAIR, WREXHAM,...

Type n/a
Status Unknown
Date Date not available

Reference BA/0910/0174/ Application type Rheoliadau Adeiladu Llawn / Full Building Regulations Site address ROWAN, 6 REDWOOD CLOSE, HOLT, WR...

Type n/a
Status Unknown
Date Date not available

Reference BA/0910/0175/ Application type Rheoliadau Adeiladu Llawn / Full Building Regulations Site address 15 PLAS TIRION, JOHNSTOWN, WREXH...

Type n/a
Status Unknown
Date Date not available

Reference BA/0910/0176/ Application type Rheoliadau Adeiladu Llawn / Full Building Regulations Site address 13 PARK VIEW, CHESTER ROAD, ROSS...

Type n/a
Status Unknown
Date Date not available

Reference BA/0910/0179/ 1 Application type Rheoliadau Adeiladu Llawn / Full Building Regulations Site address , PLOT 1, 5 CEFN ROAD, WREXHAM...

Type n/a
Status Unknown
Date Date not available

Reference BA/0910/0179/ 2 Application type Rheoliadau Adeiladu Llawn / Full Building Regulations Site address , PLOT 2, 5 CEFN ROAD, WREXHAM...

Type n/a
Status Unknown
Date Date not available

Reference BA/0910/0179/MAST Application type Rheoliadau Adeiladu Llawn / Full Building Regulations Site address 5 CEFN ROAD, WREXHAM, LL13 9...

Type n/a
Status Unknown
Date Date not available

Reference BA/0910/0181/ Application type Rheoliadau Adeiladu Llawn / Full Building Regulations Site address 1 YEW TREE COURT, PANT LANE, GRE...

Type n/a
Status Unknown
Date Date not available

Reference BA/0910/0182/ Application type Rheoliadau Adeiladu Llawn / Full Building Regulations Site address 4 BEECH HOLLOWS, LAVISTER, WREXH...

Type n/a
Status Unknown
Date Date not available

Reference BA/0910/0183/ Application type Rheoliadau Adeiladu Llawn / Full Building Regulations Site address 3 GABRIEL CLOSE, WREXHAM, LL13 9...

Type n/a
Status Unknown
Date Date not available

Reference BA/0910/0184/ Application type Rheoliadau Adeiladu Llawn / Full Building Regulations Site address 10 GLYNDWR ROAD, WREXHAM, LL12 8...

Type n/a
Status Unknown
Date Date not available

Reference BA/0910/0186/ Application type Rheoliadau Adeiladu Llawn / Full Building Regulations Site address 196 CHESTER ROAD, WREXHAM, LL12 ...

Type n/a
Status Unknown
Date Date not available

Reference BA/0910/0188/ Application type Rheoliadau Adeiladu Llawn / Full Building Regulations Site address 71 STANCLIFFE AVENUE, MARFORD, W...

Type n/a
Status Unknown
Date Date not available

Reference BA/0910/0190/ Application type Rheoliadau Adeiladu Llawn / Full Building Regulations Site address 2 HOLLYFIELD, GRESFORD, WREXHAM,...

Type n/a
Status Unknown
Date Date not available

Reference BA/0910/0194/ Application type Rheoliadau Adeiladu Llawn / Full Building Regulations Site address 168 CROGEN, LODGEVALE PARK ESTAT...

Type n/a
Status Unknown
Date Date not available

Reference BA/0910/0195/ Application type Rheoliadau Adeiladu Llawn / Full Building Regulations Site address 1 WOODLAND ROAD, MOSS, WREXHAM, ...

Type n/a
Status Unknown
Date Date not available

Reference BA/0910/0196/ Application type Rheoliadau Adeiladu Llawn / Full Building Regulations Site address 28 CLARENCE ROAD, WREXHAM, LL11 ...

Type n/a
Status Unknown
Date Date not available

Reference BA/0910/0197/ Application type Rheoliadau Adeiladu Llawn / Full Building Regulations Site address , SANDAROSA, BARKERS LANE, BORRA...

Type n/a
Status Unknown
Date Date not available

Reference BA/0910/0198/ Application type Rheoliadau Adeiladu Llawn / Full Building Regulations Site address 1 PEN Y DYFFRYN, CEFN ROAD, BWLC...

Type n/a
Status Unknown
Date Date not available

Reference BA/0910/0199/ Application type Rheoliadau Adeiladu Llawn / Full Building Regulations Site address , WREXHAM ROAD FARM, WREXHAM ROA...

Type n/a
Status Unknown
Date Date not available

Reference BA/0910/0206/ Application type Rheoliadau Adeiladu Llawn / Full Building Regulations Site address 20 TAPLEY AVENUE, WREXHAM, LL12 ...

Type n/a
Status Unknown
Date Date not available

Reference BA/0910/0207/ Application type Rheoliadau Adeiladu Llawn / Full Building Regulations Site address ARGOED, 6 MAESYWAUN, CHIRK, WREX...

Type n/a
Status Unknown
Date Date not available

Reference BA/0910/0208/ Application type Rheoliadau Adeiladu Llawn / Full Building Regulations Site address 46 QUEENSWAY, WREXHAM, LL13 8UN ...

Type n/a
Status Unknown
Date Date not available

Reference BA/0910/0209/ Application type Rheoliadau Adeiladu Llawn / Full Building Regulations Site address , ROSE COTTAGE, PLEASANT LANE, B...

Type n/a
Status Unknown
Date Date not available

Reference BA/0910/0210/ Application type Rheoliadau Adeiladu Llawn / Full Building Regulations Site address 10 COED ABEN, WREXHAM, LL13 9NT ...

Type n/a
Status Unknown
Date Date not available

Reference BA/0910/0211/ Application type Rheoliadau Adeiladu Llawn / Full Building Regulations Site address 4 LISBURN GROVE, WREXHAM, LL13 9...

Type n/a
Status Unknown
Date Date not available

Reference BA/0910/0212/ Application type Rheoliadau Adeiladu Llawn / Full Building Regulations Site address , GWENFRO CP JUNIOR SCHOOL, QUEE...

Type n/a
Status Unknown
Date Date not available

Reference BA/0910/0215/ Application type Rheoliadau Adeiladu Llawn / Full Building Regulations Site address , RUSTIC LODGE, BOWLING BANK, WR...

Type n/a
Status Unknown
Date Date not available

Reference BA/0910/0218/ Application type Rheoliadau Adeiladu Llawn / Full Building Regulations Site address , PARK VIEW, WHEATSHEAF LANE, GW...

Type n/a
Status Unknown
Date Date not available

Reference BA/0910/0220/ Application type Rheoliadau Adeiladu Llawn / Full Building Regulations Site address 4 CASTLE STREET, PONCIAU, WREXHA...

Type n/a
Status Unknown
Date Date not available

Reference BA/0910/0224/ Application type Rheoliadau Adeiladu Llawn / Full Building Regulations Site address 3 OLD HALL CLOSE, RHOSTYLLEN, WR...

Type n/a
Status Unknown
Date Date not available

Reference BA/0910/0231/ 1 Application type Rheoliadau Adeiladu Llawn / Full Building Regulations Site address PLOT 1, LAND AT, CLAPPER LANE,...

Type n/a
Status Unknown
Date Date not available

Reference BA/0910/0231/ 2 Application type Rheoliadau Adeiladu Llawn / Full Building Regulations Site address PLOT 2, LAND AT, CLAPPER LANE,...

Type n/a
Status Unknown
Date Date not available

Reference BA/0910/0231/MAST Application type Rheoliadau Adeiladu Llawn / Full Building Regulations Site address , LAND AT, CLAPPER LANE, GRE...

Type n/a
Status Unknown
Date Date not available

Reference BA/0910/0233/ Application type Rheoliadau Adeiladu Llawn / Full Building Regulations Site address , MAES GWENITH, FENNANT ROAD, PO...

Type n/a
Status Unknown
Date Date not available

Reference BA/0910/0237/ Application type Rheoliadau Adeiladu Llawn / Full Building Regulations Site address , THE HAYLOFT, SONTLEY, WREXHAM,...

Type n/a
Status Unknown
Date Date not available

Reference BA/0910/0241/ 1A Application type Rheoliadau Adeiladu Llawn / Full Building Regulations Site address PLOT A, BEECH COTTAGE/SYCAMOR...

Type n/a
Status Unknown
Date Date not available

Reference BA/0910/0241/ 2A Application type Rheoliadau Adeiladu Llawn / Full Building Regulations Site address PLOT B, BEECH COTTAGE/SYCAMOR...

Type n/a
Status Unknown
Date Date not available

Reference BA/0910/0241/MAST Application type Rheoliadau Adeiladu Llawn / Full Building Regulations Site address , LAND TO REAR OF BEECH COTT...

Type n/a
Status Unknown
Date Date not available

Reference BA/0910/0241/MAST* Application type Rheoliadau Adeiladu Llawn / Full Building Regulations Site address , BEECH COTTAGE/SYCAMORE CO...

Type n/a
Status Unknown
Date Date not available

Reference BA/0910/0242/ Application type Rheoliadau Adeiladu Llawn / Full Building Regulations Site address , 31 GROSVENOR ROAD, WREXHAM, LL...

Type n/a
Status Unknown
Date Date not available

Reference BA/0910/0243/ Application type Rheoliadau Adeiladu Llawn / Full Building Regulations Site address , 169/171, CHESTER ROAD, WREXHAM...

Type n/a
Status Unknown
Date Date not available

Reference BA/0910/0244/ Application type Rheoliadau Adeiladu Llawn / Full Building Regulations Site address , AIR PRODUCTS FACTORY, LLANGOLL...

Type n/a
Status Unknown
Date Date not available

Reference BA/0910/0245/ Application type Rheoliadau Adeiladu Llawn / Full Building Regulations Site address , LLAN Y CEFN HALL, OSWESTRY ROA...

Type n/a
Status Unknown
Date Date not available

Reference BA/0910/0246/ Application type Rheoliadau Adeiladu Llawn / Full Building Regulations Site address , HENRWST SMITHY, HIGHER WYCH, M...

Type n/a
Status Unknown
Date Date not available

Reference BA/0910/0251/ Application type Rheoliadau Adeiladu Llawn / Full Building Regulations Site address , AUTUMN VILLA, CHAPEL STREET, N...

Type n/a
Status Unknown
Date Date not available

Reference BA/0910/0253/ Application type Rheoliadau Adeiladu Llawn / Full Building Regulations Site address 20 TREVALYN WAY, ROSSETT, WREXHA...

Type n/a
Status Unknown
Date Date not available

Reference BA/0910/0257/ Application type Rheoliadau Adeiladu Llawn / Full Building Regulations Site address , ISCOYD PARK, ISCOYD, WHITCHURC...

Type n/a
Status Unknown
Date Date not available

Reference BA/0910/0260/ Application type Rheoliadau Adeiladu Llawn / Full Building Regulations Site address 2 LAUREL COTTAGES, GARTH ROAD, G...

Type n/a
Status Unknown
Date Date not available

Reference BA/0910/0261/ Application type Rheoliadau Adeiladu Llawn / Full Building Regulations Site address 6 GRANGE COURT, CROSS LANES, WRE...

Type n/a
Status Unknown
Date Date not available

Reference BA/0910/0262/ * Application type Rheoliadau Adeiladu Llawn / Full Building Regulations Site address , TY BRYN HOVAH, OVERTON ROAD,...

Type n/a
Status Unknown
Date Date not available

Reference BA/0910/0262/ A Application type Rheoliadau Adeiladu Llawn / Full Building Regulations Site address , BRYN HOVAH, OVERTON ROAD, BA...

Type n/a
Status Unknown
Date Date not available

Reference BA/0910/0263/ Application type Rheoliadau Adeiladu Llawn / Full Building Regulations Site address , ALL SAINTS SCHOOL, SCHOOL LANE...

Type n/a
Status Unknown
Date Date not available

Reference BA/0910/0266/ Application type Rheoliadau Adeiladu Llawn / Full Building Regulations Site address 4 LINCOLN CLOSE, BORRAS PARK, WR...

Type n/a
Status Unknown
Date Date not available

Reference BA/0910/0269/ Application type Rheoliadau Adeiladu Llawn / Full Building Regulations Site address 4 THE HAVEN, PONCIAU, WREXHAM, L...

Type n/a
Status Unknown
Date Date not available

Reference BA/0910/0270/ Application type Rheoliadau Adeiladu Llawn / Full Building Regulations Site address , LLANGWRDD UCHA, GRAIG YR ORIN,...

Type n/a
Status Unknown
Date Date not available

Reference BA/0910/0271/ Application type Rheoliadau Adeiladu Llawn / Full Building Regulations Site address , WALKER SMITH & WAY, 23 CHESTER...

Type n/a
Status Unknown
Date Date not available

Reference BA/0910/0272/ Application type Rheoliadau Adeiladu Llawn / Full Building Regulations Site address , RA & CE PLATT LTD, MINERS PARK...

Type n/a
Status Unknown
Date Date not available

Reference BA/0910/0276/ Application type Rheoliadau Adeiladu Llawn / Full Building Regulations Site address 1 ACRE HOUSE, BOWERS ROAD, ACREF...

Type n/a
Status Unknown
Date Date not available

Reference BA/0910/0277/ Application type Rheoliadau Adeiladu Llawn / Full Building Regulations Site address , THE RACECOURSE, MOLD ROAD, WRE...

Type n/a
Status Unknown
Date Date not available

Reference BA/0910/0278/ Application type Rheoliadau Adeiladu Llawn / Full Building Regulations Site address 89 BANGOR ROAD, JOHNSTOWN, WREXH...

Type n/a
Status Unknown
Date Date not available

Reference BA/0910/0279/ Application type Rheoliadau Adeiladu Llawn / Full Building Regulations Site address FIELDSIDE, LLAY ROAD, ROSSETT, W...

Type n/a
Status Unknown
Date Date not available

Reference BA/0910/0282/ Application type Rheoliadau Adeiladu Llawn / Full Building Regulations Site address 9 LONGVIEW ROAD, PENTRE BROUGHTO...

Type n/a
Status Unknown
Date Date not available

Reference BA/0910/0283/ Application type Rheoliadau Adeiladu Llawn / Full Building Regulations Site address 63 JEFFREYS ROAD, WREXHAM, LL12 ...

Type n/a
Status Unknown
Date Date not available

Reference BA/0910/0286/ Application type Rheoliadau Adeiladu Llawn / Full Building Regulations Site address 1 BERWYN CLOSE, MARCHWIEL, WREXH...

Type n/a
Status Unknown
Date Date not available

Reference BA/0910/0289/ Application type Rheoliadau Adeiladu Llawn / Full Building Regulations Site address 19 BRYMBO ROAD, BWLCHGWYN, WREXH...

Type n/a
Status Unknown
Date Date not available

Reference BA/0910/0291/ Application type Rheoliadau Adeiladu Llawn / Full Building Regulations Site address , ABEROER FARM, ABEROER, RHOSTYL...

Type n/a
Status Unknown
Date Date not available

Reference BA/0910/0292/ Application type Rheoliadau Adeiladu Llawn / Full Building Regulations Site address 140 CROGEN, CHIRK, WREXHAM, LL14...

Type n/a
Status Unknown
Date Date not available

Reference BA/0910/0293/ Application type Rheoliadau Adeiladu Llawn / Full Building Regulations Site address 3 WILKINSON DRIVE, BERSHAM, WREX...

Type n/a
Status Unknown
Date Date not available

Reference BA/0910/0294/ Application type Rheoliadau Adeiladu Llawn / Full Building Regulations Site address 17 SYCAMORE DRIVE, MARFORD, WREX...

Type n/a
Status Unknown
Date Date not available

Reference BA/0910/0295/ Application type Rheoliadau Adeiladu Llawn / Full Building Regulations Site address , PRIMROSE COTTAGE, SMITHFIELD G...

Type n/a
Status Unknown
Date Date not available

Reference BA/0910/0299/ Application type Rheoliadau Adeiladu Llawn / Full Building Regulations Site address 12 CRISTIONYDD, PEN Y CAE, WREXH...

Type n/a
Status Unknown
Date Date not available

Reference BA/0910/0300/ Application type Rheoliadau Adeiladu Llawn / Full Building Regulations Site address 5 FFORDD HENDRE, WREXHAM, LL13 7...

Type n/a
Status Unknown
Date Date not available

Reference BA/0910/0302/ Application type Rheoliadau Adeiladu Llawn / Full Building Regulations Site address , ROSLYN, , PENLEY, WREXHAM, LL1...

Type n/a
Status Unknown
Date Date not available

Reference BA/0910/0303/ Application type Rheoliadau Adeiladu Llawn / Full Building Regulations Site address 40 THE BEECHES, WREXHAM, LL12 7B...

Type n/a
Status Unknown
Date Date not available

Reference BA/0910/0304/ Application type Rheoliadau Adeiladu Llawn / Full Building Regulations Site address , THE HOMESTEAD, PENTRE COED, OV...

Type n/a
Status Unknown
Date Date not available

Reference BA/0910/0306/ * Application type Rheoliadau Adeiladu Llawn / Full Building Regulations Site address , LAND ADJACENT TO THE RACECOU...

Type n/a
Status Unknown
Date Date not available

Reference BA/0910/0306/ A Application type Rheoliadau Adeiladu Llawn / Full Building Regulations Site address , LAND ADJACENT TO THE RACECOU...

Type n/a
Status Unknown
Date Date not available

Reference BA/0910/0306/ B Application type Rheoliadau Adeiladu Llawn / Full Building Regulations Site address , LAND ADJACENT TO THE RACECOU...

Type n/a
Status Unknown
Date Date not available

Reference BA/0910/0306/ C Application type Rheoliadau Adeiladu Llawn / Full Building Regulations Site address , LAND ADJACENT TO THE RACECOU...

Type n/a
Status Unknown
Date Date not available

Reference BA/0910/0306/ D Application type Rheoliadau Adeiladu Llawn / Full Building Regulations Site address , LAND ADJACENT TO THE RACECOU...

Type n/a
Status Unknown
Date Date not available

Reference BA/0910/0306/ E Application type Rheoliadau Adeiladu Llawn / Full Building Regulations Site address , LAND ADJACENT TO THE RACECOU...

Type n/a
Status Unknown
Date Date not available

Reference BA/0910/0306/ F Application type Rheoliadau Adeiladu Llawn / Full Building Regulations Site address , LAND ADJACENT TO THE RACECOU...

Type n/a
Status Unknown
Date Date not available

Reference BA/0910/0306/ G Application type Rheoliadau Adeiladu Llawn / Full Building Regulations Site address , LAND ADJACENT TO THE RACECOU...

Type n/a
Status Unknown
Date Date not available

Reference BA/0910/0306/ H Application type Rheoliadau Adeiladu Llawn / Full Building Regulations Site address STUDENT VILLAGE BLOCK A, LAND ...

Type n/a
Status Unknown
Date Date not available

Reference BA/0910/0310/ Application type Rheoliadau Adeiladu Llawn / Full Building Regulations Site address , UNIT 5, PANDY BUSINESS PARK, P...

Type n/a
Status Unknown
Date Date not available

Reference BA/0910/0311/ Application type Rheoliadau Adeiladu Llawn / Full Building Regulations Site address , THE WINDINGS, CAEPENTY ROAD, C...

Type n/a
Status Unknown
Date Date not available

Reference BA/0910/0314/ Application type Rheoliadau Adeiladu Llawn / Full Building Regulations Site address , LLWYN TEG, SMITHY LANE, PENTRE...

Type n/a
Status Unknown
Date Date not available

Reference BA/0910/0315/ Application type Rheoliadau Adeiladu Llawn / Full Building Regulations Site address BLOCK A STUDENT VILLAGE, GLYNDWR...

Type n/a
Status Unknown
Date Date not available

Reference BA/0910/0320/ * Application type Rheoliadau Adeiladu Llawn / Full Building Regulations Site address , KNOLTON VILLA FARM, KNOLTON ...

Type n/a
Status Unknown
Date Date not available

Reference BA/0910/0320/ A Application type Rheoliadau Adeiladu Llawn / Full Building Regulations Site address , KNOLTON VILLA FARM, KNOLTON ...

Type n/a
Status Unknown
Date Date not available

Reference BA/0910/0321/ Application type Rheoliadau Adeiladu Llawn / Full Building Regulations Site address CENTRE 67, CUNLIFFE HOUSE, RHOSD...

Type n/a
Status Unknown
Date Date not available

Reference BA/0910/0322/ Application type Rheoliadau Adeiladu Llawn / Full Building Regulations Site address 1 EYTON GRANGE, HILLOCK LANE, MA...

Type n/a
Status Unknown
Date Date not available

Reference BA/0910/0325/ Application type Rheoliadau Adeiladu Llawn / Full Building Regulations Site address , GWALIA, SCHOOL STREET, RHOSTYL...

Type n/a
Status Unknown
Date Date not available

Reference BA/0910/0326/ Application type Rheoliadau Adeiladu Llawn / Full Building Regulations Site address 9 TEGFAN, JOHNSTOWN, WREXHAM, LL...

Type n/a
Status Unknown
Date Date not available

Reference BA/0910/0332/ Application type Rheoliadau Adeiladu Llawn / Full Building Regulations Site address 29 TAN Y BRYN, RHOSLLANERCHRUGOG...

Type n/a
Status Unknown
Date Date not available

Reference BA/0910/0334/ Application type Rheoliadau Adeiladu Llawn / Full Building Regulations Site address 4 MEREDITH STREET, WREXHAM, LL13...

Type n/a
Status Unknown
Date Date not available

Reference BA/0910/0336/ Application type Rheoliadau Adeiladu Llawn / Full Building Regulations Site address , GER Y LLWYN, HALL LANE, RHOSLL...

Type n/a
Status Unknown
Date Date not available

Reference BA/0910/0337/ Application type Rheoliadau Adeiladu Llawn / Full Building Regulations Site address 3 FFORDD GLYN, WREXHAM, LL13 7QN...

Type n/a
Status Unknown
Date Date not available

Reference BA/0910/0338/ Application type Rheoliadau Adeiladu Llawn / Full Building Regulations Site address , LONG LANE FARM, LONG LANE, BRO...

Type n/a
Status Unknown
Date Date not available

Reference BA/0910/0339/ Application type Rheoliadau Adeiladu Llawn / Full Building Regulations Site address , CADNEY VIEW, CADNEY LANE, BETT...

Type n/a
Status Unknown
Date Date not available

Reference BA/0910/0341/ Application type Rheoliadau Adeiladu Llawn / Full Building Regulations Site address 1 WHITEWELL COTTAGES, WHITEWELL,...

Type n/a
Status Unknown
Date Date not available

Reference BA/0910/0348/ Application type Rheoliadau Adeiladu Llawn / Full Building Regulations Site address 20 CEFN ROAD, WREXHAM, LL13 9NH ...

Type n/a
Status Unknown
Date Date not available

Reference BA/0910/0349/ Application type Rheoliadau Adeiladu Llawn / Full Building Regulations Site address , HOMESTEAD, TY CANOL ROAD, PEN ...

Type n/a
Status Unknown
Date Date not available

Reference BA/0910/0351/ Application type Rheoliadau Adeiladu Llawn / Full Building Regulations Site address 35 CHATSWORTH GARDENS, PANDY, WR...

Type n/a
Status Unknown
Date Date not available

Reference BA/0910/0353/ Application type Rheoliadau Adeiladu Llawn / Full Building Regulations Site address 5 WHITEGATE ROAD, WREXHAM, LL13 ...

Type n/a
Status Unknown
Date Date not available

Reference BA/0910/0355/ Application type Rheoliadau Adeiladu Llawn / Full Building Regulations Site address , LAND ADJOINING BRYN CELYN, WRE...

Type n/a
Status Unknown
Date Date not available

Reference BA/0910/0361/ Application type Rheoliadau Adeiladu Llawn / Full Building Regulations Site address 50 VALE VIEW ESTATE, LLAY, WREXH...

Type n/a
Status Unknown
Date Date not available

Reference BA/0910/0363/ Application type Rheoliadau Adeiladu Llawn / Full Building Regulations Site address , THE LLANERCHS, HOLLYBUSH LANE,...

Type n/a
Status Unknown
Date Date not available

Reference BA/0910/0364/ Application type Rheoliadau Adeiladu Llawn / Full Building Regulations Site address , PANOPTEC CENTRE, BRYN LANE, RI...

Type n/a
Status Unknown
Date Date not available

Reference BA/0910/0366/ Application type Rheoliadau Adeiladu Llawn / Full Building Regulations Site address , ESCLUSHAM HALL FARM, LEGACY, W...

Type n/a
Status Unknown
Date Date not available

Reference BA/0910/0367/ Application type Rheoliadau Adeiladu Llawn / Full Building Regulations Site address 181 CHESTER ROAD, GARDEN VILLAGE...

Type n/a
Status Unknown
Date Date not available

Reference BA/0910/0368/ Application type Rheoliadau Adeiladu Llawn / Full Building Regulations Site address 10 DEAN ROAD, WREXHAM, LL13 9EH ...

Type n/a
Status Unknown
Date Date not available

Reference BA/0910/0370/ Application type Rheoliadau Adeiladu Llawn / Full Building Regulations Site address , DEE VIEW, LLANGOLLEN ROAD, TRE...

Type n/a
Status Unknown
Date Date not available

Reference BA/0910/0373/ Application type Rheoliadau Adeiladu Llawn / Full Building Regulations Site address 12 RHUDDLAN ROAD, ACREFAIR, WREX...

Type n/a
Status Unknown
Date Date not available

Reference BA/0910/0374/ Application type Rheoliadau Adeiladu Llawn / Full Building Regulations Site address 28 BRIGHT STREET, WREXHAM, LL13 ...

Type n/a
Status Unknown
Date Date not available

Internal and external alterations to erect front railing and gate, single storey rear extension to the public house and new emergency access...

Type n/a
Status Awaiting decision
Date Date not available
Plan thumbnail

Internal layout alterations along with conversion of 2x windows to external doors in S elevation (former school house) and 1x window to ext ...

Type n/a
Status Under consideration
Date Date not available

Confirmation of compliance with affordable housing condition for approved residential development (condition 15).

Type n/a
Status Unknown
Date Date not available

Confirmation of compliance with construction RAMS condition for approved development (condition 19).

Type n/a
Status Unknown
Date Date not available

Confirmation of compliance with skirting boards condition attached to approved planning permission.

Type n/a
Status Unknown
Date Date not available

Confirmation of compliance for reserved conditions including cycle parking, landscaping, waste, highways and affordable housing.

Type n/a
Status Unknown
Date Date not available

Confirmation of compliance for conditions relating to construction, cycle parking, landscaping and car park implementation.

Type n/a
Status Unknown
Date Date not available

Confirmation of compliance for construction method and contamination remediation conditions on redevelopment site.

Type n/a
Status Unknown
Date Date not available

Approval of construction method and surface water drainage conditions for housing permission.

Type n/a
Status Unknown
Date Date not available

Confirmation of compliance for accessible and adaptable dwellings condition attached to housing permission.

Type n/a
Status Unknown
Date Date not available

Erection of pitched roof to existing single storey rear extension with external alterations.

Type n/a
Status Unknown
Date Date not available

Modify office entrance with three ramps, disabled parking, access-controlled gates and two new parking bays.

Type n/a
Status Unknown
Date Date not available

Construct new industrial unit with associated car parking and accessible space.

Type n/a
Status Unknown
Date Date not available

Partial demolition and external modifications to existing unit for continued B2 (industrial) and B8 (storage) use.

Type n/a
Status Unknown
Date Date not available

Convert ground floor and basement dwelling to restaurant with extraction flue.

Type n/a
Status Unknown
Date Date not available

Construct raised external decked seating with glass balustrade and bi-fold doors.

Type n/a
Status Unknown
Date Date not available

Extend and regularise waste operations, change use, construct new building and revise storage layout.

Type n/a
Status Unknown
Date Date not available

Change of three-bedroom dwelling (C3) to a Children's Care Home (C2) for up to two children.

Type n/a
Status Unknown
Date Date not available

Permission in principle for residential development of up to nine dwellings.

Type n/a
Status Unknown
Date Date not available

Demolish light industrial premises and erect three two-bedroom houses (outline application).

Type n/a
Status Unknown
Date Date not available

Erection of a single-storey detached commercial/industrial building at Agecroft Commerce Park.

Type n/a
Status Unknown
Date Date not available

Front, side and rear extensions with raised roof height and new front boundary treatment.

Type n/a
Status Unknown
Date Date not available

Basement conversion, single-storey side extension and loft conversion with dormer.

Type n/a
Status Unknown
Date Date not available

Single storey infill extension and first floor rear dormer with balcony above existing extension.

Type n/a
Status Unknown
Date Date not available

Remove front dormer, add front and rear dormers and single-storey side/rear extension.

Type n/a
Status Unknown
Date Date not available

Convert property to two self-contained dwellings with rear dormer loft conversion (net gain one).

Type n/a
Status Unknown
Date Date not available

Demolition of the existing pedestrian bridge linking Sovereign Point Car Park to Quayside.

Type n/a
Status Unknown
Date Date not available

Create an access from Waterside Car Park directly into the Lower Mall of Quayside.

Type n/a
Status Unknown
Date Date not available

Proposed single storey rear extension and loft conversion with front and rear dormers.

Type n/a
Status Unknown
Date Date not available

Single-storey rear extension, first floor extension and two-storey front porch with roof lift.

Type n/a
Status Unknown
Date Date not available

Demolish garage and rear extension; erect single-storey rear and part single/part two-storey front and side extension.

Type n/a
Status Unknown
Date Date not available

Two-storey side extension and hip-to-gable loft conversion with rear dormer.

Type n/a
Status Unknown
Date Date not available

Lawful development certificate for existing House in Multiple Occupation (C4).

Type n/a
Status Unknown
Date Date not available

Lawful development certificate for dwelling as a 4-bedroom HMO for five residents (C4).

Type n/a
Status Unknown
Date Date not available

Reference PA/2026/0148 Application type Lawful development: Existing use Site address Land At Stervon House, North Of Broughton Road East An...

Type n/a
Status Unknown
Date Date not available

Reference PA/2026/0057 Application type Householder planning permission Site address 8 Kingsway, WORSLEY, MANCHESTER, M28 7FD Description Er...

Type n/a
Status Unknown
Date Date not available

Reference PA/2026/0139 Application type Householder planning permission Site address 29 Hayes Road, CADISHEAD, IRLAM, MANCHESTER, M44 5BU De...

Type n/a
Status Unknown
Date Date not available

Reference PA/2026/0149 Application type Full planning permission Site address Faulkner House, Elm Street, SWINTON, MANCHESTER, M27 6AJ Descr...

Type n/a
Status Unknown
Date Date not available

Reference PA/2025/1644 Application type Householder planning permission Site address 1 Lumns Lane, SWINTON, MANCHESTER, M27 8LN Description ...

Type n/a
Status Unknown
Date Date not available

Reference PA/2026/0157 Application type Lawful development: Existing use Site address 11 Haven Street, SALFORD, M6 5QR Description Applicati...

Type n/a
Status Unknown
Date Date not available

Reference PA/2026/0153 Application type Lawful development: Proposed use Site address 18 Rock Street, SALFORD, M7 2DQ Description Applicatio...

Type n/a
Status Unknown
Date Date not available

Reference PA/2026/0050 Application type Change of use Site address 32 Cecil Street, WORSLEY, MANCHESTER, M28 3LE Description Continued use a...

Type n/a
Status Unknown
Date Date not available

Reference PA/2026/0146 Application type Householder planning permission Site address 33 Normanby Road, WORSLEY, MANCHESTER, M28 7TS Descript...

Type n/a
Status Unknown
Date Date not available

Reference PA/2026/0099 Application type Full planning permission Site address 82 Chorley Road, SWINTON, MANCHESTER, M27 5XB Description Erec...

Type n/a
Status Unknown
Date Date not available

Reference PA/2026/0132 Application type Householder planning permission Site address 4 Cavendish Road, WORSLEY, MANCHESTER, M28 2TQ Descript...

Type n/a
Status Unknown
Date Date not available

Reference PA/2026/0130 Application type Householder planning permission Site address 456 Great Cheetham Street East, SALFORD, M7 4XL Descrip...

Type n/a
Status Unknown
Date Date not available

Reference PA/2026/0125 Application type Full planning permission Site address 422, and 422a and 424 Worsley Road, Eccles, M30 8HQ Descriptio...

Type n/a
Status Unknown
Date Date not available

Reference PA/2026/0040 Application type Householder planning permission Site address 20 Malvern Close, SWINTON, MANCHESTER, M27 8XJ Descript...

Type n/a
Status Unknown
Date Date not available

Reference PA/2025/1515 Application type Householder planning permission Site address 18 Merrydale Avenue, ECCLES, MANCHESTER, M30 9DS Descri...

Type n/a
Status Unknown
Date Date not available

Reference PA/2026/0041 Application type Householder planning permission Site address 10 Gilda Crescent Road, ECCLES, MANCHESTER, M30 9AG Des...

Type n/a
Status Unknown
Date Date not available

Reference PA/2026/0032 Application type Householder planning permission Site address 8 Bay Tree Avenue, WORSLEY, MANCHESTER, M28 2NW Descrip...

Type n/a
Status Unknown
Date Date not available

Reference PA/2026/0088 Application type Householder planning permission Site address 6 Priory Avenue, SALFORD, M7 2HA Description Proposed s...

Type n/a
Status Unknown
Date Date not available

Reference PA/2026/0102 Application type Householder planning permission Site address 61 Bradford Road, ECCLES, MANCHESTER, M30 9FF Descripti...

Type n/a
Status Unknown
Date Date not available

Reference PA/2026/0023 Application type Householder planning permission Site address 6 New Hall Road, SALFORD, M7 4EL Description Proposed t...

Type n/a
Status Unknown
Date Date not available

Reference PA/2026/0083 Application type Householder planning permission Site address 4 Enfield Road, ECCLES, MANCHESTER, M30 9NF Description...

Type n/a
Status Unknown
Date Date not available

Reference PA/2026/0110 Application type Householder planning permission Site address 14 Trent Drive, WORSLEY, MANCHESTER, M28 0TS Descriptio...

Type n/a
Status Unknown
Date Date not available

Reference PA/2026/0124 Application type Full planning permission Site address Pavement outside, 30 New Bailey Street, Salford, M3 5FS Descri...

Type n/a
Status Unknown
Date Date not available

Reference PA/2026/0166 Application type Consent to display an advertisement Site address 11, Trafford Road, Salford, M5 3FE Description Disp...

Type n/a
Status Unknown
Date Date not available

Reference OTH/2026/0197 Application type Approval of details reserved by a condition Site address Former McDonalds Regional Head Office, Cro...

Type n/a
Status Unknown
Date Date not available

Reference PA/2026/0186 Application type Lawful development: Proposed use Site address 223 Bolton Road, SWINTON, MANCHESTER, M27 8SY Descript...

Type n/a
Status Unknown
Date Date not available

Reference PA/2026/0185 Application type Full planning permission Site address 1 Peel Mount, SALFORD, M6 6AF Description Change of use from a...

Type n/a
Status Unknown
Date Date not available

Reference OTH/2026/0194 Application type Approval of details reserved by a condition Site address 20, Travis Perkins, James Cobbett Road, We...

Type n/a
Status Unknown
Date Date not available

Reference OTH/2026/0189 Application type Approval of details reserved by a condition Site address Land at Tully Street South, Salford Descri...

Type n/a
Status Unknown
Date Date not available

Reference PA/2026/0191 Application type Householder planning permission Site address 2 Gorse Road, SWINTON, MANCHESTER, M27 5QZ Description ...

Type n/a
Status Unknown
Date Date not available

Reference PA/2026/0170 Application type Householder planning permission Site address 18 Keswick Road, WORSLEY, MANCHESTER, M28 3HT Descripti...

Type n/a
Status Unknown
Date Date not available

Reference OTH/2026/0169 Application type Approval of details reserved by a condition Site address 88 Parrin Lane, ECCLES, MANCHESTER, M30 8B...

Type n/a
Status Unknown
Date Date not available

Reference OTH/2026/0175 Application type Approval of details reserved by a condition Site address Land North of Lankro Way, Eccles, M30 0SA ...

Type n/a
Status Unknown
Date Date not available

Reference OTH/2026/0135 Application type Approval of details reserved by a condition Site address 158 Derby Road, SALFORD, M5 5BB Descriptio...

Type n/a
Status Unknown
Date Date not available

Reference PA/2026/0155 Application type Full planning permission Site address 51 Barrfield Road, SALFORD, M6 7EL Description Proposed additi...

Type n/a
Status Unknown
Date Date not available

Reference PA/2026/0109 Application type Lawful development: Proposed use Site address 144 Chatsworth Road, Swinton, Manchester, M28 2NT Desc...

Type n/a
Status Unknown
Date Date not available

Reference OTH/2026/0147 Application type Approval of details reserved by a condition Site address 18 Shiel Street, WORSLEY, MANCHESTER, M28 ...

Type n/a
Status Unknown
Date Date not available

Reference OTH/2026/0145 Application type Approval of details reserved by a condition Site address Buile Hill Park, Eccles Old Road, SALFORD,...

Type n/a
Status Unknown
Date Date not available

Reference OTH/2026/0140 Application type Approval of details reserved by a condition Site address 223 Leigh Road, WORSLEY, MANCHESTER, M28 1...

Type n/a
Status Unknown
Date Date not available

Reference OTH/2026/0112 Application type Approval of details reserved by a condition Site address Bridgewater Street, Little Hulton, Worsley...

Type n/a
Status Unknown
Date Date not available

Reference PA/2026/0076 Application type Full planning permission Site address 192 Moor Lane, SALFORD, M7 3PZ Description Proposed single sto...

Type n/a
Status Unknown
Date Date not available

Reference PA/2026/0122 Application type Change of use Site address 206 Manchester Road East, LITTLE HULTON, WORSLEY, MANCHESTER, M38 9LG Des...

Type n/a
Status Unknown
Date Date not available

Reference PA/2025/1693 Application type Full planning permission Site address 47 Leicester Road, Salford, M7 4AS Description Proposed two st...

Type n/a
Status Unknown
Date Date not available

Reference OTH/2026/0127 Application type Approval of details reserved by a condition Site address Duncan Street, Salford, M5 3SQ Description...

Type n/a
Status Unknown
Date Date not available

Reference PA/2026/0111 Application type Change of use Site address 4 Worsley Court, High Street, Worsley, Manchester, M28 3NJ Description Co...

Type n/a
Status Unknown
Date Date not available

Reference PA/2026/0116 Application type Lawful development: Proposed use Site address 13 Gerrards Close, IRLAM, MANCHESTER, M44 6DX Descript...

Type n/a
Status Unknown
Date Date not available

Reference PA/2026/0114 Application type Lawful development: Proposed use Site address 9 Stranton Drive, WORSLEY, MANCHESTER, M28 2TB Descrip...

Type n/a
Status Unknown
Date Date not available

Reference PA/2026/0062 Application type Full planning permission Site address First Floor, 465 Chorley Road, SWINTON, MANCHESTER, M27 9RH De...

Type n/a
Status Unknown
Date Date not available

Reference OTH/2026/0089 Application type Approval of details reserved by a condition Site address Land To The North Of Lankro Way , Eccles ,...

Type n/a
Status Unknown
Date Date not available

Reference NOT/2025/1792 Application type Prior approval Part 14 Class J: Installation or alteration etc of solar equipment on non-domestic p...

Type n/a
Status Unknown
Date Date not available

Reference PA/2026/0086 Application type Lawful development: Existing use Site address The Riverside, Derwent Street, Salford Description App...

Type n/a
Status Unknown
Date Date not available

Reference PA/2025/1747 Application type Full planning permission Site address 59A Clifton Road, ECCLES, MANCHESTER, M30 9QS Description Chan...

Type n/a
Status Unknown
Date Date not available

Reference PA/2025/1819 Application type Full planning permission Site address Land at rear of 151 Swinton Hall Road, SWINTON, MANCHESTER, M2...

Type n/a
Status Unknown
Date Date not available

Reference OTH/2026/0075 Application type Approval of details reserved by a condition Site address Peru Street, Salford, M3 6EQ Description R...

Type n/a
Status Unknown
Date Date not available

Reference OTH/2026/0074 Application type Approval of details reserved by a condition Site address Peru Street, Salford , M3 6EQ Description ...

Type n/a
Status Unknown
Date Date not available

Reference PA/2026/0045 Application type Approval of details reserved by a condition Site address 69 Folly Lane, Swinton, Manchester, M27 0DE...

Type n/a
Status Unknown
Date Date not available

Reference PA/2026/0020 Application type Lawful development: Proposed use Site address 11 Back Hulme Street, Salford, M5 4RH Description Appl...

Type n/a
Status Unknown
Date Date not available

Reference OTH/2026/0053 Application type Approval of details reserved by a condition Site address St Johns Church, Bolton Rd, Pendlebury, Sa...

Type n/a
Status Unknown
Date Date not available

Reference OTH/2026/0134 Application type Approval of details reserved by a condition Site address Land At Regatta Street, Salford, M6 6JS De...

Type n/a
Status Unknown
Date Date not available

Reference NOT/2025/1780 Application type Prior approval Part 14 Class J: Installation or alteration etc of solar equipment on non-domestic p...

Type n/a
Status Unknown
Date Date not available

Reference PA/2025/1700 Application type Full planning permission Site address 267 Bury New Road, Salford, Manchester, M8 8DY Description Alt...

Type n/a
Status Unknown
Date Date not available

Reference OTH/2026/0036 Application type Approval of details reserved by a condition Site address Land East Of, Irlam Wharf Road, Irlam, M44...

Type n/a
Status Unknown
Date Date not available

Reference OTH/2026/0035 Application type Approval of details reserved by a condition Site address Land off Langley Road, Pendlebury, Salford...

Type n/a
Status Unknown
Date Date not available

Reference PA/2025/1793 Application type Full planning permission Site address Units 11 To 12, 325 Ordsall Lane, Salford, M5 3LW Description ...

Type n/a
Status Unknown
Date Date not available

Reference OTH/2026/0027 Application type Approval of details reserved by a condition Site address Buile Hill Mansion , Buile Hill Park, Eccl...

Type n/a
Status Unknown
Date Date not available

Reference OTH/2026/0028 Application type Approval of details reserved by a condition Site address Buile Hill Park, Eccles Old Road, SALFORD,...

Type n/a
Status Unknown
Date Date not available

Reference OTH/2026/0025 Application type Approval of details reserved by a condition Site address University Of Salford, Frederick Road, Sal...

Type n/a
Status Unknown
Date Date not available

Reference OTH/2026/0026 Application type Approval of details reserved by a condition Site address 277 Great Clowes Street, Salford, M7 2HE D...

Type n/a
Status Unknown
Date Date not available

Reference PA/2025/1762 Application type Full planning permission Site address 153 Manchester Road, PENDLEBURY, SWINTON, MANCHESTER, M27 4FH ...

Type n/a
Status Unknown
Date Date not available

Reference OTH/2026/0018 Application type Approval of details reserved by a condition Site address Car Park, Peru Street, SALFORD Description...

Type n/a
Status Unknown
Date Date not available

Reference PA/2025/1808 Application type Full planning permission Site address Quayside, Salford Quays, Salford, M50 3AH Description Change o...

Type n/a
Status Unknown
Date Date not available

Reference OTH/2025/1809 Application type Approval of details reserved by a condition Site address Land Formerly Harrop Fold High School, Lon...

Type n/a
Status Unknown
Date Date not available

Reference PA/2025/1801 Application type Full planning permission Site address 51 Swinton Hall Road, SWINTON, MANCHESTER, M27 4BL Description...

Type n/a
Status Unknown
Date Date not available

Reference PA/2025/1794 Application type Lawful development: Proposed use Site address 1 Cartmel Grove, WORSLEY, MANCHESTER, M28 2SF Descript...

Type n/a
Status Unknown
Date Date not available

Reference PA/2025/1417 Application type Change of use Site address Unit A4, Lyntown Trading Estate, Old Wellington Road, Eccles, Manchester,...

Type n/a
Status Unknown
Date Date not available

Reference OTH/2025/1785 Application type Approval of details reserved by a condition Site address Site Between Trinity Way And Audacious Chu...

Type n/a
Status Unknown
Date Date not available

Reference OTH/2025/1784 Application type Approval of details reserved by a condition Site address Land At, Brackley Golf Club, Bullows Road,...

Type n/a
Status Unknown
Date Date not available

Reference PA/2026/0200 Application type Householder planning permission Site address 5 Dalton Drive, SWINTON, MANCHESTER, M27 8UB Descriptio...

Type n/a
Status Unknown
Date Date not available

Reference OTH/2026/0209 Application type Approval of details reserved by a condition Site address Regent Trading Estate, Oldfield Road, SALF...

Type n/a
Status Unknown
Date Date not available

Reference OTH/2026/0196 Application type Approval of details reserved by a condition Site address Former McDonalds Regional Head Office, Cro...

Type n/a
Status Unknown
Date Date not available

Reference OTH/2026/0195 Application type Approval of details reserved by a condition Site address Former McDonalds Regional Head Office, Cro...

Type n/a
Status Unknown
Date Date not available

Application Reference HGY/2025/3437 Proposal Demolition of existing rear outrigger and extension and construction of new single storey rear ...

Type House extension
Status Unknown
Date Date not available

Application Reference HGY/2026/0081 Proposal Change of use from office to residential Application Status Under Consultation Site Address Off...

Type Change of use
Status Unknown
Date Date not available

Application Reference HGY/2026/0074 Proposal Erection of a ground floor rear extension Application Status Under Consultation Site Address 6 ...

Type House extension
Status Unknown
Date Date not available

Outline permission for construction of single self build dwelling. Access considered with all other matters reserved.

Type New housing
Status Awaiting decision
Date Date not available

Application Reference PA/2025/2340 Site Address 24, Bull Bridge Way, Chilmington Green, TN23 8AH Proposal Single-storey rear extension Date ...

Type House extension
Status Unknown
Date Date not available

Detached house with new access from Outwood Lane, parking and turning area. As amended on 17/12/2025, 22/01/2026 and on 30/01/2026.

Type n/a
Status Registered
Date Date not available

External alterations and also a proposed first floor rear extension providing for 1 flat and a new roof floor providing for 4 further flats....

Type n/a
Status Registered
Date Date not available

Demolition of the existing garage building to the rear and the erection of a rear extension to the main dwelling with associated improvement...

Type n/a
Status Registered
Date Date not available

Prior Approval Schedule 2, Part 3, Class MA: Change of Use from Commercial, Business and Service (E) to Residential (C3) to create 7 dwellin...

Type Change of use
Status Unknown
Date Date not available
Plan thumbnail

Full planning permission for the demolition of a 7-bedroom dwelling and construction of self-build 4-bedroom dwelling

Type New housing
Status Awaiting decision
Date Date not available
Plan thumbnail

Full planning permission to construct two new garden centre buildings and associated landscaping to create outdoors sales areas, parking and...

Type Commercial
Status Awaiting decision
Date Date not available

Demolish office, build 54-storey tower with 316 C3 homes, co-living, serviced apartments and commercial/community uses.

Type n/a
Status Registered
Date Date not available

Submission of detail pursuant to condition no 4 (Car Free) of planning permission ref. PA/22/00637 dated 15/02/2023

Type n/a
Status Registered
Date Date not available
Plan thumbnail

Erection of 14no. dwellings with associated access and landscaping following demolition of existing bungalow

Type n/a
Status Awaiting decision
Date Date not available
Plan thumbnail

Demolish building and erect 19‑storey residential building with ground‑floor community floorspace, access and cycle parking.

Type n/a
Status Registered
Date Date not available

Submission of detail pursuant to Condition 4 (Car Free) of planning permission ref: PA/13/02173 dated 24/10/2013

Type n/a
Status Registered
Date Date not available

Submission of detail pursuant to condition no.4 (Construction Management Statement ), 6 (Deliveries and Service Plan) and 7(Travel Plan) of ...

Type n/a
Status Registered
Date Date not available

Full planning application for the erection of a demountable terrace structure, with an extractable canopy and seating to ground floor unit

Type n/a
Status Registered
Date Date not available
Plan thumbnail

Erection of a detached 4-bed dwelling with integral double garage and associated landscaping and vehicular access (Amended description).

Type n/a
Status Under consideration
Date Date not available
Plan thumbnail

Conversion of existing workshop building (B2 use) into a single dwelling together with associated ancillary development works.

Type n/a
Status Awaiting decision
Date Date not available
Plan thumbnail

Alterations, Repairs and Refurbishment to the Manor Farmhouse to include replacement of all rainwater goods, construction of a dormer window...

Type n/a
Status Awaiting decision
Date Date not available
Plan thumbnail

Internal and external repairs and alterations to the Manor Farmhouse to include construction of a dormer window, external works to include r...

Type n/a
Status Awaiting decision
Date Date not available

Erection of 60 dwellings including access from Fieldhead Road with emergency vehicular access onto Caistor Road and associated works. (Trans...

Type New housing
Status Pending Consideration
Date Date not available
Plan thumbnail

Mixed-use building with commercial floors, 20 aparthotel units and nine residential apartments.

Type n/a
Status Awaiting decision
Date Date not available

Installation of one telegraph pole adjacent to Holgate House under Electronic Communications Code notification.

Type n/a
Status Awaiting decision
Date Date not available
Plan thumbnail

Change of use from dwelling house (use Class C3) to House in Multiple Occupation (use Class C4) - retrospective

Type n/a
Status Awaiting decision
Date Date not available

9 Harwood Lane, Great Harwood, Blackburn, BB6 7SN | Observations to Neighbouring LPA | LCC/2025/0024: A change of use from class C3 (dwellin...

Type Change of use
Status Unknown
Date Date not available
Plan thumbnail

36 Stanley Street, Oswaldtwistle, Lancashire, BB5 3PZ | Full Planning Application | Householder: Erection of single storey rear extension | ...

Type House extension
Status Unknown
Date Date not available

Henfield House, Blackburn Road, Clayton-Le-Moors, Lancashire, BB5 5JP | Full Planning Application | Full: Convert No.1 Henfield House and am...

Type Change of use
Status Unknown
Date Date not available
Plan thumbnail

Blacklaw Farm, Wilpshire Road, Rishton, Lancashire, BB1 4AD | Full Planning Application | Full: The proposal includes various elevation chan...

Type New housing
Status Unknown
Date Date not available

1-7 Broadway, Accrington, Lancashire BB5 1JZ | Full Planning Application | Full: Change of use to create 6no. new self-contained flats on th...

Type Change of use
Status Unknown
Date Date not available
Plan thumbnail

10 Foxwood Chase, Accrington, Lancashire, BB5 6XL | Full Planning Application | Householder: Erection of two storey and single storey rear e...

Type House extension
Status Unknown
Date Date not available
Plan thumbnail

Land West of Rhoden Road, Oswaldtwistle, BB5 3QQ | Full Planning Application | Full Major: Demolition of buildings and structures, erection ...

Type New housing
Status Unknown
Date Date not available

Pine Lodge Farm, Wilpshire Road, Rishton, Lancashire, BB1 4AH | Householder | Householder: Erection of single storey side extension (Retrosp...

Type House extension
Status Unknown
Date Date not available
Plan thumbnail

33 Queen Elizabeth Crescent, Accrington, Lancashire, BB5 2AS | Householder | Householder: Erection of part one storey and two storey rear ex...

Type House extension
Status Unknown
Date Date not available

39 Rutland Avenue, Oswaldtwistle, Lancashire, BB1 2DF | Householder | Householder: Erection of detached garage (Retrospective). | Applicatio...

Type House extension
Status Unknown
Date Date not available

First Floor Flat 39B Thorney Hedge Road, Chiswick, London, W4 5SB | PF-Full Applications | Erection of a rear roof extension with two front ...

Type House extension
Status Unknown
Date Date not available

98A Harlington Road West, Feltham TW14 0JJ | PF-Full Applications | Erection rear roof extension with two front roof windows and first floor...

Type House extension
Status Unknown
Date Date not available
Plan thumbnail

41 Arlington Gardens, Chiswick, London, W4 4EZ | PF-Full Applications | Conversion from a House in Multiple Occupation (C4) into a house (C3...

Type Change of use
Status Unknown
Date Date not available
Plan thumbnail

Land at Falcon House Central Way, Feltham | Major outline | Hybrid planning application comprising: of detailed planning application to comp...

Type Demolition
Status Unknown
Date Date not available
Plan thumbnail

Flats 1-6, 1 Peach Road, Feltham, TW13 4BA | PF-Full Applications | Replacing all the existing windows to UPVC. | Application No: P/2025/375...

Type Other
Status Unknown
Date Date not available
Plan thumbnail

5 Hawthorn Road, Feltham, TW13 4BE | PF-Full Applications | Replacement of existing windows and rear patio doors of the flats | Application ...

Type Other
Status Unknown
Date Date not available
Plan thumbnail

9 Hawthorn Road, Feltham, TW13 4BE | PF-Full Applications | Replacement of existing windows and rear patio doors of the flats | Application ...

Type Other
Status Unknown
Date Date not available
Plan thumbnail

2 Tilley Road, Feltham, TW13 4BB | PF-Full Applications | Replacement of existing windows of the flats | Application No: P/2025/3762 | Decid...

Type Other
Status Unknown
Date Date not available
Plan thumbnail

22 Tilley Road, Feltham, TW13 4BB | PF-Full Applications | Replacement of existing windows to the flats | Application No: P/2025/3763 | Deci...

Type Other
Status Unknown
Date Date not available
Plan thumbnail

40 Adelaide Terrace, Great West Road, Brentford, TW8 9PQ | PF-Full Applications | Erection of a single storey part rear and a part rear infi...

Type Change of use
Status Unknown
Date Date not available

5 Gresham Road, Hounslow, TW3 4BT | PF-Full Applications | Erection of a three storey house with associated private amenity space, car parki...

Type New housing
Status Unknown
Date Date not available

Great West House, 993 Great West Road, Brentford, TW8 9DF | PF-Full Applications | Installation of a link bridge at 11th, 12th and 13th floo...

Type Commercial
Status Unknown
Date Date not available

Flat 1, The Power House, 70 Chiswick High Road, Chiswick, London, W4 1SY | PF-Full Applications | Retrospective application for the insertio...

Type Other
Status Unknown
Date Date not available
Plan thumbnail

Units 4 And 10 Turnham Green Terrace Mews, Chiswick, London W4 1QU | PA: Commercial/Business/Service to Dwellinghouses | Prior approval for ...

Type Change of use
Status Unknown
Date Date not available

Roman House, 225-226 High Street, Brentford, TW8 8AH | Advertisement Application | Installation of an externally illuminated digital adverti...

Type Advertisement
Status Unknown
Date Date not available

Erection of dwelling with detached garage, associated landscaping and parking; alterations to access

Type New housing
Status Current
Date Date not available

Replace two bungalows with four two-storey semi-detached dwellings with parking, gardens and EV charging.

Type New housing
Status Application Permitted
Date Date not available

Demolish farm shop and storage buildings and construct two new dwellings.

Type New housing
Status Application Permitted
Date Date not available

Demolition of outbuildings and erection of five dwellings with new access.

Type New housing
Status Pending Consideration
Date Date not available

Demolition of an existing open fronted barn and replacement with a new building to house a vertical farm for education and supporting resear...

Type Commercial
Status Application Permitted
Date Date not available

Erection of 16 maisonettes,48 flats,2banks15 shops and office block with restaurant

Type New housing
Status Pending Consideration
Date Date not available

Change of use of part of inert waste recycling facility (as permitted by ESS/15/15/CHL) for the storage of road materials and retention of a...

Type Change of use
Status Unknown
Date Date not available

Single-storey rear extension (max 8m depth, 4m height, 2.8m eaves).

Type House extension
Status Prior Approval Not Required
Date Date not available

Single-storey rear extension (max 5m depth, 4m height, 3m eaves).

Type House extension
Status Prior Approval Not Required
Date Date not available

Conversion of agricultural barn into four self-contained dwellings with parking and landscaping.

Type Change of use
Status Application Permitted
Date Date not available

Demolition of existing buildings and erection of five detached dwellings with parking and amenity.

Type New housing
Status Application Permitted
Date Date not available

Change of use and conversion of two existing stable building to a single storey dwelling, including a connecting contemporary flat roof link...

Type Change of use
Status Application Permitted
Date Date not available

Single storey rear extension, new flat roof over and new and existing rear extension

Type House extension
Status Application Permitted
Date Date not available

Proposed single storey flat roof extension with associated internal alterations

Type House extension
Status Application Permitted
Date Date not available
Plan thumbnail

CHANGE OF USE FROM RESIDENTIAL DWELLING (USE CLASS C3) TO A CHILDREN'S HOME FOR UP TO 2 CHILDREN (USE CLASS C2).

Type Change of use
Status Awaiting decision
Date Date not available
Plan thumbnail

ERECTION OF 2NO. WAREHOUSE UNITS (USE CLASS B8) TO FACILITATE ADDITIONAL STORAGE SPACE TOGETHER WITH ALTERATIONS TO THE GOODS VEHICLE AND PE...

Type Industrial
Status Awaiting decision
Date Date not available

Second-floor extension to provide five residential units (C3).

Type House extension
Status Pending consideration
Date Date not available

Submission of pedestrian inter-visibility splay pursuant to condition 15 of permission 25/01154/F. Demolition of existing garage and erectio...

Type n/a
Status Registered
Date Date not available

Construction of single-storey front/side extension over existing front concrete plinth covering basement area, plus single-storey link walkw...

Type n/a
Status Registered
Date Date not available
Plan thumbnail

Proposals for ground floor single storey extension and two storey extension, along with remodelled entrance porch, and conversion of the exi...

Type n/a
Status Registered
Date Date not available

Installation of Optical Fibre Networks to Chertsey House, Marlow House, Shiplake House, Sunbury House, Taplow House & Wargrave House, within...

Type n/a
Status Registered
Date Date not available

Installation of Optical Fibre Networks to Chertsey House, Marlow House, Shiplake House, Sunbury House, Taplow House & Wargrave House, within...

Type n/a
Status Registered
Date Date not available

Submission of detail pursuant to condition no.16 (Details of Plant and Machinery) planning permission ref : PA/15/02671 dated: 23/03/2017

Type n/a
Status Registered
Date Date not available

Construction of single storey rear extension of the following dimensions: Depth of proposed extension from rear wall of original dwellinghou...

Type House extension
Status Unknown
Date Date not available

Convert veterinary practice and coach house to two dwellings; external repairs and landscaping.

Type Change of use
Status Current
Date Date not available

Convert veterinary practice and coach house to two dwellings; internal alterations and external repairs.

Type Change of use
Status Current
Date Date not available

Convert first-floor commercial space into two one-bedroom flats with new entrance and window alterations.

Type Change of use
Status Pending Consideration
Date Date not available

Subdivide existing dwelling into two semi-detached homes with roof alterations, rear extension and dormers.

Type New housing
Status Pending Consideration
Date Date not available

Change of use from dwelling (C3) to residential care home (C2) for up to four children.

Type Change of use
Status Application Permitted
Date Date not available

Change of use of first and second floor from Commerical Offices (Class E(g)(i)) to one-bedroom, two-person duplex apartment(Class C3) with a...

Type Change of use
Status Application Permitted
Date Date not available

Change of use to commercial use together with single-storey extension to existing warehouse following demolition of existing single-storey d...

Type Change of use
Status Awaiting decision
Date Date not available

Removal of existing shipping container building and erection of two-storey office and staff welfare building.

Type Commercial
Status Application Permitted
Date Date not available

Convert 3-bed house (C3) to children's residential institution (C2) with new access.

Type Change of use
Status Application Permitted
Date Date not available

Proposed two storey side extension to dwellinghouse, including car port

Type House extension
Status Application Permitted
Date Date not available

Change of Use from Residential Flat (Use Class C3) to Offices (Use Class E), as additional office space is required.

Type Change of use
Status Application Permitted
Date Date not available

Roof replacement of existing single storey rear extension (from Lean-to roof to Flat roof) & Internal Alteration

Type House extension
Status Application Permitted
Date Date not available
Plan thumbnail

Two-storey detached dwelling following the demolition of existing garage.

Type New housing
Status Awaiting decision
Date Date not available
Plan thumbnail

Convert first and second floors from retail to four residential dwellings; add independent door and rear window.

Type Change of use
Status Awaiting decision
Date Date not available
Plan thumbnail

Erection of 23 commercial units to be used for general industrial, storage and distribution and office and light industrial together with pa...

Type Industrial
Status Awaiting decision
Date Date not available

Roof extension creating two dwellings with dormers, external staircase, window/door replacements and shopfront alterations.

Type New housing
Status Awaiting decision
Date Date not available

Single storey side and rear extensions to dwelling house, installation of dormers to the front and rear elevations to form rooms in the roof...

Type House extension
Status Pending Consideration
Date Date not available

Single storey rear extension to dwelling house and installation of a dormer to the rear elevation (Retrospective Application)

Type House extension
Status Awaiting decision
Date Date not available

Demolition of industrial building. Erection of ten apartments (Use Class C3)

Type New housing
Status Pending Consideration
Date Date not available

Change of use from commercial, business and service (Use Class E) to a public house with outdoor seating area (Sui Generis)

Type Change of use
Status Awaiting decision
Date Date not available
Plan thumbnail

Change of use from single-family house to a residential home for children and young people (Class C2).

Type Change of use
Status Unknown
Date Date not available
Plan thumbnail

Change of use from Single dwelling (Use Class C3) to short-term holiday let (Use Class Sui Generis). (This application site is a Grade II Li...

Type Change of use
Status Unknown
Date Date not available

Proposed demolition of the existing shed and construction of a 1 storey new build to provide a 1 bedroom dwelling at the rear of no. 82 Henn...

Type New housing
Status Unknown
Date Date not available
Plan thumbnail

Part first-floor rear extension and loft conversion with rear dormer to create two one-bedroom flats.

Type New housing
Status Unknown
Date Date not available
Plan thumbnail

Construction of a rear dormer extension, including roof lights to the front, removal of chimney stack and change of use from a two-bed dwell...

Type Change of use
Status Unknown
Date Date not available
Plan thumbnail

Change of use from residential dwelling (Use Class C3) to a HMO (Use Class C4).

Type Change of use
Status Unknown
Date Date not available

Change of use from Residential Care Home (Class C2) to Family Contact Centre (Class E) and installation of 1no. pedestrian gate and fencing

Type n/a
Status Awaiting decision
Date Date not available

Erection of 8no. dwellings and conversion of No.80 Crown Street to create 3no. one-bedroom flats together with associated landscaping, parki...

Type n/a
Status Awaiting decision
Date Date not available

Outline planning application for proposed detached 1.5 storey 3 bed dwelling (all matters reserved except for access and scale)

Type New housing
Status Application Permitted
Date Date not available

Demolition of existing quadruple garage, erection of replacement garage with family annexe above ancillary to main dwelling.

Type Demolition
Status Application Permitted
Date Date not available

Construction of new flat roof extension to rear of property to provide specialist disabled accommodation, creation of new side door for inde...

Type House extension
Status Application Permitted
Date Date not available

Creation of 1 no self contained flat at first floor level with internal separating wall added at ground floor level (no external changes req...

Type New housing
Status Application Permitted
Date Date not available
Plan thumbnail

Outline application for erection of 1no. agricultural workers dwelling with access, landscaping and layout to be considered and all other ma...

Type n/a
Status Awaiting decision
Date Date not available
Plan thumbnail

Erection of 1no. dwelling to rear and subdivision of existing dwelling to create 2no. dwellings following removal of existing rear projectio...

Type n/a
Status Awaiting decision
Date Date not available
Plan thumbnail

Change of use to ground floor from public house (sui generis) to cafe (Class E)

Type n/a
Status Awaiting decision
Date Date not available
Plan thumbnail

Outline application (access and layout only) for the erection of a 2 storey detached dwellinghouse (Class C3) with associated parking and am...

Type New housing
Status Awaiting decision
Date Date not available
Plan thumbnail

Phased development for data centre and warehouse with infrastructure.

Type Industrial
Status Current
Date Date not available
Plan thumbnail

Erection of four two-storey semi-detached dwellings following demolition of existing dwelling.

Type New housing
Status Awaiting decision
Date Date not available

Outline for 21 dwellings with parking, access roads, open space and a play area.

Type New housing
Status Awaiting decision
Date Date not available

Construction of two dwellings with integral garages, solar panels, boundary treatments and associated works.

Type New housing
Status Pending Consideration
Date Date not available

Change of use from a shop to a dwelling house with alterations to door and window openings and associated works

Type Change of use
Status Pending Consideration
Date Date not available

Convert upper floors to create 18 residential apartments with associated services and minor external works.

Type Change of use
Status Current
Date Date not available

Demolition of existing dwelling and garage block and construction of a replacement two storey dwelling; associated hard and soft landscaping

Type Demolition
Status Current
Date Date not available

Retrospective planning permission for alterations to the external appearance of both the main house and the annexe through the application o...

Type Change of use
Status Application Permitted
Date Date not available

Proposed dwelling attached to existing semi-detached house of 60 Basford Park Road. Insertion of new window to front elevation of 60 Basford...

Type New housing
Status Pending Consideration
Date Date not available

Erection of detached two-storey dwelling with associated access, parking and landscaping

Type n/a
Status Awaiting decision
Date Date not available

Subdivision of property into two dwellings, with porch and external alterations.

Type n/a
Status Pending Consideration
Date Date not available
Plan thumbnail

Erection of replacement dwelling following demolition of agricultural building using class Q fallback position (23/01940/PNCOU)

Type New housing
Status Awaiting decision
Date Date not available
Plan thumbnail

Erection of two dwellings and conversion/extension of barn to form a further dwelling, with access and landscaping.

Type New housing
Status Awaiting decision
Date Date not available
Plan thumbnail

DEMOLITION OF EXISTING BUNGALOW TOGETHER WITH THE ERECTION OF 1NO. TWO-STOREY DETATCHED DWELLING AND DETACHED GARAGE (WITH NEW ACCESS FROM S...

Type New housing
Status Awaiting decision
Date Date not available
Plan thumbnail

ERECTION OF 136 DWELLINGS, ACCESS FROM SOUTHDEAN ROAD, CAR PARKING, OPEN SPACE AND LANDSCAPING

Type New housing
Status Awaiting decision
Date Date not available
Plan thumbnail

ERECTION OF DETACHED BUILDING IN REAR GARDEN TO FORM ANNEX ANCILLARY TO THE MAIN DWELLING HOUSE

Type House extension
Status Awaiting decision
Date Date not available
Plan thumbnail

Demolition of single storey rear extension. Erection of single storey rear extension with basement, second floor rear extension, upwards ext...

Type n/a
Status Registered
Date Date not available

Installation of Air Source Heat Pumps (VRF recovery units) and associated acoustic enclosure, secondary glazing, repair of existing windows,...

Type n/a
Status Registered
Date Date not available

Proposed works at Oast Courts involve the renewal of the main flat roofs, lower roofs, walkways, and balconies. Where necessary, thermal ins...

Type n/a
Status Registered
Date Date not available

Proposed works comprise the recovery of the main flat roofs, including the application of tapered insulation, as well as the refurbishment o...

Type n/a
Status Registered
Date Date not available

Residential development - one dwelling (Use Class C3) (Self and Custom Build)

Type New housing
Status Pending Consideration
Date Date not available

Two storey and first floor extensions to dwelling house (bedroom, en-suite and enlargement of garage)

Type House extension
Status Pending Consideration
Date Date not available

Erection of a single storey dwelling (Use Class C3)

Type New housing
Status Pending Consideration
Date Date not available

Two storey side extension to dwelling house (lounge and bedroom)

Type House extension
Status Pending Consideration
Date Date not available

Single storey side/rear extension to dwelling house (enlargement of kitchen), installation of a dormer to the rear elevation, installation o...

Type House extension
Status Pending Consideration
Date Date not available
Plan thumbnail

Prior approval for a part change of use from an office to residential dwelling to ground and first floor rear area of existing commercial sh...

Type Change of use
Status Awaiting decision
Date Date not available
Plan thumbnail

Single storey side and rear extension with first floor rear extension, erection of detached garage with office above and insertion of two fr...

Type House extension
Status Awaiting decision
Date Date not available
Plan thumbnail

Three storey rear extension together with fourth storey extension (appearing as second storey extension from front elevation) to provide add...

Type House extension
Status Awaiting decision
Date Date not available
Plan thumbnail

Amalgamation of two existing cottages (1 and 2 Whitehouse Farm Cottages) to create one single dwelling and associated refurbishment works to...

Type n/a
Status Under consideration
Date Date not available

Demolition of existing structures, removal of existing caravan and construction of new detached dwelling with associated works.

Type New housing
Status Application Permitted
Date Date not available

Outline application for construction of eight new dwellings; all matters reserved.

Type New housing
Status Pending Decision
Date Date not available

Proposed demolition of existing house and workshop and the construction of a replacement dwelling house and detached garage.

Type Demolition
Status Application Permitted
Date Date not available

Outline application for up to 325 homes with access, parking, open space and infrastructure.

Type New housing
Status No Objection
Date Date not available
Plan thumbnail

Change of use to two Class E commercial units and three one-bedroom residential apartments.

Type Change of use
Status Awaiting decision
Date Date not available
Plan thumbnail

Erection of 2no. dwellings and garages with associated internal access and removal of overflow car parking from the golf course.

Type n/a
Status Awaiting decision
Date Date not available
Plan thumbnail

Change of use from dwelling house (use Class C3) to House in Multiple Occupation (use Class C4) and elevational alterations to front

Type n/a
Status Awaiting decision
Date Date not available
Plan thumbnail

Single storey front, side and rear extensions, side dormer and render to existing dwelling

Type n/a
Status Awaiting decision
Date Date not available
Plan thumbnail

Phased outline to extend business park with 3.9ha employment land and up to 150 dwellings.

Type Other
Status Awaiting decision
Date Date not available

Change of use from offices (E(c)(ii)) to create 14 self-contained apartments (C3) and associated alterations

Type n/a
Status Awaiting decision
Date Date not available

External and Internal alterations to the existing dwelling, including conversion of garage and partial cladding

Type n/a
Status Unknown
Date Date not available

Proposed Change of Use and Redevelopment of West House to Form 12no. Residential Units and Associated Works

Type n/a
Status Unknown
Date Date not available

Discharge of Conditions 26.(drainage scheme) 27.(Proposed Perpetual Management and Maintenance). For planning ref 2014/01505/OUT - Detailed ...

Type n/a
Status Unknown
Date Date not available

Discharge of Conditions 3.(Historic Environment Mitigation) 5.(Details of windows and doors) 6.(Replication roof deatiling) 7.(Roof Materia ...

Type n/a
Status Unknown
Date Date not available

Discharge of Conditions 3 (Written Scheme of Historic Environment Mitigation) and 5 (Matching Roof Materials ) for Planning Ref. 2023/00330/...

Type n/a
Status Unknown
Date Date not available

Discharge of Condition 3.(Details / Additional Details) for planning ref 2018/00613/LBC - Replacement of existing windows of the windmill to...

Type n/a
Status Unknown
Date Date not available

Discharge of Conditions 3.(Materials Details) 4.(Details / Additional Details) for planning ref 2022/00212/FUL - Two storey extension and en...

Type n/a
Status Unknown
Date Date not available

The change of use is from a personal C3 Dwellinghouse to that of a care home categorized as a C2 Residential Institution.

Type n/a
Status Unknown
Date Date not available

Discharge of Condition 3.(Ecological Enhancement) 4.(Landscaping Scheme) 6.(Highways reinstatement) for planniNg ref 2024/00717/FUL - Retros...

Type n/a
Status Unknown
Date Date not available

Non Material Amendment - An amendemnt to the roof lights fitted to the front and rear main roofs Velux Heritage (VH) windows to Velux Conser...

Type n/a
Status Unknown
Date Date not available

Removal of 1st floor flat roof from rear extension, lowering the eaves and replacing with a pitched roof and setting in extension at 1st flo...

Type n/a
Status Unknown
Date Date not available

Discharge of condition 5. (Details of windows and doors) Full Planning ref. 2024/00607LBC. Revised scheme to recently approved extensions an...

Type n/a
Status Unknown
Date Date not available

Proposed addition of 3no, new homes and replacement of existing roof to extend the first floor flat, creating a duplex. Replacement of exist...

Type n/a
Status Awaiting decision
Date Date not available

Erection of 18 dwelling houses (Use Class C3)

Type New housing
Status Pending Consideration
Date Date not available

Two storey rear extension to dwelling house (kitchen/dining area and two bedrooms) - retrospective permission

Type House extension
Status Pending Consideration
Date Date not available

Internal alterations to dwelling to add a reversible timber stud partition within an existing first-floor room to subdivide it into two bedr...

Type Listed building
Status Awaiting decision
Date Date not available

Two storey and single storey rear extensions to dwelling house (lounge, kitchen and bedroom)

Type House extension
Status Pending Consideration
Date Date not available

Single storey side and rear extensions to dwelling and roof alterations and installation of front and side dormers to form rooms in the roof...

Type House extension
Status Pending Consideration
Date Date not available

Conversion of the existing dwelling to 4 self-contained flats.

Type n/a
Status Registered
Date Date not available
Plan thumbnail

Construction of nine residential units with parking, landscaping, and cycle stores.

Type n/a
Status Awaiting decision
Date Date not available

Reference PLN/2026/0191 Application type Full planning permission Site address Unit 1, Frogshall, Cranfield Road, Astwood, Newport Pagnell, ...

Type Industrial
Status Unknown
Date Date not available

Reference PLN/2026/0235 Application type Full planning permission Site address 20 HIGH STREET, OLNEY, MK46 4BB Description Change of use fro...

Type Change of use
Status Unknown
Date Date not available

Reference PLN/2026/0249 Application type Prior approval: Commercial, business and service uses to dwellinghouses Site address 4 Woodhouse Co...

Type Change of use
Status Unknown
Date Date not available

Reference PLN/2026/0146 Application type Full planning permission Site address Gemini Rail Services , Stratford Road, Milton Keynes, MK12 5N...

Type Industrial
Status Unknown
Date Date not available

Reference PLN/2026/0204 Application type Householder planning permission Site address 26 SILLSWOOD, OLNEY, MK46 5PL Description Erection of ...

Type House extension
Status Unknown
Date Date not available
Plan thumbnail

Outline application to erect one detached dwelling with associated access, parking and drainage with all matters reserved

Type New housing
Status Pending Consideration
Date Date not available
Plan thumbnail

Outline application to erect one detached dwelling with associated access and parking with all matters reserved

Type New housing
Status Pending Consideration
Date Date not available

New advertising on front entrance elevation includes 2 no. digidot screens 6.5 x 3.4m, illuminated sign reading 'lymelight' applied to new e...

Type Advertisement
Status Application Permitted
Date Date not available

Change of use from a dwelling house (Use Class C3(b)) to a children's residential care home for a maximum of two children (Use Class C2)

Type Change of use
Status Pending Consideration
Date Date not available

Two storey and single storey side extensions to dwelling house (sitting room, games room, two bedrooms, study and en-suite)

Type House extension
Status Pending Consideration
Date Date not available

Erection of dwelling house. Demolition of garage to enlarge vehicular access and erection of associated fencing (Self and Custom Build devel...

Type New housing
Status Pending Consideration
Date Date not available

Two storey side and rear and single storey rear extensions to dwelling house (garage, bedroom, W.C., kitchen/living space, bedrooms and bath...

Type House extension
Status Pending Consideration
Date Date not available

Change of use of first and second floors to a house in multiple occupation (Sui Generis)

Type Change of use
Status Pending Consideration
Date Date not available

Conversion of coachhouse to form habitable floor space including enclosure of the structure and installation of a new window to the first fl...

Type Change of use
Status Pending Consideration
Date Date not available

105 Hyndburn Road, Church, Lancashire, BB5 4AA | Householder | Householder: Alterations to boundary wall | Application No: 11/26/0024 | Regi...

Type Other
Status Unknown
Date Date not available

8 Sweet Briar Close, Clayton-le-Moors, Lancashire, BB5 5LZ | Householder | Householder: Replacement of windows and door | Application No: 11...

Type House extension
Status Unknown
Date Date not available

Reference BC/BN/26/01785 Application type Building Notice Site address 1 CHESTNUT CRESCENT, BLETCHLEY, MILTON KEYNES, MK2 2JZ Description of...

Type Other
Status Unknown
Date Date not available

Reference BC/BN/26/01799 Application type Building Notice Site address 13 CARTERET CLOSE, WILLEN, MILTON KEYNES, MK15 9LD Description of wor...

Type House extension
Status Unknown
Date Date not available

Reference BC/BN/26/01804 Application type Building Notice Site address 9 ANGSTROM CLOSE, SHENLEY LODGE, MILTON KEYNES, MK5 7AT Description o...

Type House extension
Status Unknown
Date Date not available

Reference BC/BN/26/01805 Application type Building Notice Site address 36 WOLVERTON ROAD, STONY STRATFORD, MILTON KEYNES, MK11 1DX Descripti...

Type Other
Status Unknown
Date Date not available

Reference BC/BN/26/01807 Application type Building Notice Site address 18 ROTHERSTHORPE, GIFFARD PARK, MILTON KEYNES, MK14 5JL Description o...

Type Other
Status Unknown
Date Date not available

Reference BC/FP/26/01789 Application type Full Building Regulations Site address 1 ALDERNEY AVENUE, NEWTON LEYS, MILTON KEYNES, MK3 5GX Desc...

Type House extension
Status Unknown
Date Date not available

Reference BC/FP/26/01802 Application type Partnership Inspections Site address 41 HENRY HOARE DRIVE, GLEBE FARM, MILTON KEYNES, MK17 8BZ Des...

Type House extension
Status Unknown
Date Date not available

Reference BC/FP/26/01809 Application type Full Building Regulations Site address 11 HAWKSWOOD, OLNEY, MK46 5NB Description of works Garage c...

Type Other
Status Unknown
Date Date not available

Reference BC/NOT/26/01791 Application type Initial Notice Site address 9 BULWARK WAY, BROOKLANDS, MILTON KEYNES, MK10 7JD Description of wor...

Type House extension
Status Unknown
Date Date not available

Reference BC/NOT/26/01792 Application type Initial Notice Site address 6 TURVEY ROAD, ASTWOOD, NEWPORT PAGNELL, MK16 9JX Description of work...

Type New housing
Status Unknown
Date Date not available

Reference BC/NOT/26/01800 Application type Initial Notice Site address 3 ALL SAINTS VIEW, LOUGHTON, MILTON KEYNES, MK5 8BB Description of wo...

Type House extension
Status Unknown
Date Date not available

Reference BC/NOT/26/01808 Application type Initial Notice Site address 32 WATER EATON ROAD, BLETCHLEY, MILTON KEYNES, MK2 3BX Description of...

Type House extension
Status Unknown
Date Date not available

Reference BC/NOT/26/01810 Application type Initial Notice Site address 2 BROMLEY GROVE, BROUGHTON, MILTON KEYNES, MK10 7EY Description of wo...

Type House extension
Status Unknown
Date Date not available

Reference BC/NOT/26/01811 Application type Initial Notice Site address 62 WINDMILL HILL DRIVE, BLETCHLEY, MILTON KEYNES, MK3 7RR Description...

Type Other
Status Unknown
Date Date not available

Reference BC/RC/26/01801 Application type Regularisation Application Site address 14 BEDFORD STREET, WOLVERTON, MILTON KEYNES, MK12 5HR Desc...

Type Other
Status Unknown
Date Date not available

114 Stanley Street, Accrington, Lancashire, BB5 6QD | Full Planning Application | Full: Change of use of single dwelling into 2. No flats an...

Type Change of use
Status Unknown
Date Date not available
Plan thumbnail

36 Tarn Avenue, Clayton Le Moors, BB5 5XU | Householder | Householder: Erection of detached annexe | Application No: 11/26/0009 | Registered...

Type House extension
Status Unknown
Date Date not available

14 Cut Lane, Rishton, Lancashire, BB1 4BQ | Householder | Householder: Erection of front porch. | Application No: 11/26/0011 | Registered : ...

Type House extension
Status Unknown
Date Date not available

339 Whalley Road, Accrington, Lancashire, BB5 5DF | Householder | Householder: Erection of boundary fence and electric gate to front | Appli...

Type House extension
Status Unknown
Date Date not available

73 Abbey Street, Accrington, Lancashire, BB5 1EH | Outline Planning Application | The proposed development comprises the demolition of a det...

Type House extension
Status Unknown
Date Date not available

Reference PL/26/0126 Application type Householder planning permission Site address 332 KIDMORE ROAD, CAVERSHAM, READING, RG4 7NG Description...

Type n/a
Status Unknown
Date Date not available

Reference PL/26/0186 Application type Householder planning permission Site address 8 WHITBY GREEN, CAVERSHAM, READING, RG4 6SL Description E...

Type n/a
Status Unknown
Date Date not available

Reference PL/26/0114 Application type Full planning permission Site address 7 EASTERN AVENUE, READING, RG1 5RU Description Proposed Change o...

Type n/a
Status Unknown
Date Date not available

Construction of new substation with changes to cable runs, provision of new ring main unit (RMU), transformer and switch house, boundary tre...

Type n/a
Status Awaiting decision
Date Date not available

26 Thornton Avenue, Chiswick, London, W4 1QG | PF-Full Applications | Erection of single storey side extension and rear extension. Enlargeme...

Type House extension
Status Unknown
Date Date not available

Change bank to retail unit with three dwellings above, new shopfront and rooflights.

Type Change of use
Status Current
Date Date not available
Plan thumbnail

Remodelling and extension for 16 apartments and 5 houses.

Type New housing
Status Current
Date Date not available

Land Rear Of 366 To 388 Bath Road, Hounslow, TW4 7HT | PF-Full Applications | Erection of a part single storey and part three storey buildin...

Type New housing
Status Unknown
Date Date not available
Plan thumbnail

Former Garden Centre, 462 Staines Road, Hounslow, TW4 5BD | Major Housing 10 units or more | Erection of a two storey building and a single ...

Type New housing
Status Unknown
Date Date not available

32 Sonia Gardens, Hounslow, TW5 0LZ | PF-Full Applications | Retrospective permission for the conversion of the existing residential house t...

Type Change of use
Status Unknown
Date Date not available

55 Sutton Lane South, Chiswick, London, W4 3JR | PF-Full Applications | Alterations to the existing single storey rear extension to allow th...

Type Change of use
Status Unknown
Date Date not available

56 Lyncroft Gardens, Hounslow, TW3 2QX | PF-Full Applications | Erection of a two storey side extension to allow the conversion into two sel...

Type House extension
Status Unknown
Date Date not available

10 A River Gardens,Feltham,TW14 0RE | PF-Full Applications | Erection of a rear roof extension with a front roof window to the first floor f...

Type House extension
Status Unknown
Date Date not available

10 River Gardens,Feltham,TW14 0RE | PF-Full Applications | Erection of a single storey rear extension to the ground floor flat. | Applicatio...

Type House extension
Status Unknown
Date Date not available

163 -165 Gunnersbury Lane, Acton, London, W3 8LJ | PF-Full Applications | Erection of a three storey house and a basement comprising of seve...

Type New housing
Status Unknown
Date Date not available

Griffin Brewery Chiswick Lane South, Chiswick, London, W4 2QB | Advertisement Application | Installation of an existing externally illuminat...

Type Advertisement
Status Unknown
Date Date not available

98 Whitton Road, Hounslow, TW3 2ES | PF-Full Applications | Conversion of the existing House in Multiple Occupation (HMO) to three self cont...

Type Change of use
Status Unknown
Date Date not available
Plan thumbnail

West Link House, 981 Great West Road, Brentford, TW8 9DN | PF-Full Applications | Erection of an additional floor on the two storey part of ...

Type Commercial
Status Unknown
Date Date not available

Single-storey front and rear extensions; convert first and second floors from offices into two flats.

Type Change of use
Status Awaiting decision
Date Date not available

Single-storey extension and internal alterations to create two one-bed and one two-bed flats.

Type House extension
Status Awaiting decision
Date Date not available

Formation of six space private residential car park with associated works and landscaping.

Type Other
Status Awaiting decision
Date Date not available

Change of use from single dwelling (C3) to residential institution (C2).

Type Change of use
Status Pending Decision
Date Date not available

The construction of a single storey rear extension, which would extend beyond the rear wall of the original house by a maximum depth of 8m, ...

Type House extension
Status Prior Approval Not Required
Date Date not available

Subdivision of one dwelling into two dwellings; retention of previously commenced extension.

Type Change of use
Status Application Permitted
Date Date not available

Conversion of existing tool hire shop to a cafe and a fast food takeaway. Addition of first floor to create four self-contained flats. Assoc...

Type Change of use
Status Pending Consideration
Date Date not available

Conversion of surgery into 2 self contained flats with first floor rear extension. Associated parking, bin and cycle store.

Type Change of use
Status Application Permitted
Date Date not available

Demolition of existing buildings and erection of one dwelling. Access being sought. Appearance, layout, landscaping and scale reserved.

Type New housing
Status Pending Decision
Date Date not available

Change of use of Unit 12 from Office and Storage (Use Class E and B8) to a Driving Test Centre (Use Class Sui Generis)

Type Change of use
Status Pending Consideration
Date Date not available

Non Material Amendment - An amendment to install integrated solar panels to the roof for planning ref 2019/01354/FUL - Demolition of existin...

Type n/a
Status Unknown
Date Date not available

Discharge of Condition 17.(Biodiversity Enhancement Details) for planning ref: 2024/00565/FUL - Conversion of the former Cowbridge Police St...

Type n/a
Status Unknown
Date Date not available

Discharge of Conditions 7.(potable water supply) 12.(Parking Layout) 17.(Lighting Strategy) for planning ref 2021/01081/FUL - Residential de...

Type n/a
Status Unknown
Date Date not available

Proposed single storey extension, removal of first floor flat roof, replacement with a pitched roof to the rear and change to boundary.

Type n/a
Status Unknown
Date Date not available

It is proposed to demolish the lean-to structure which is attached to a barn within the curtilage of the Grade II Listed Farmhouse (Ref. 878...

Type n/a
Status Unknown
Date Date not available

Proposal to replace the wooden structure as before with a balustrade at 1.1 metres high and extend it by 1.4 metres, creating an enclosed st...

Type n/a
Status Unknown
Date Date not available

Submission of detail pursuant to condition 8b (Post Installation Verification Report) of planning permission ref: PA/23/00950 dated 21/02/20...

Type n/a
Status Unknown
Date Date not available

Change of use from Children's Contact Centre (Use Class F1) to children's home (Use Class C2) serving as a permanent home for 5x Tower Hamle...

Type n/a
Status Registered
Date Date not available

Proposed erection of a second-floor mansard roof extension with x1 roof light, replacement of windows and other minor associated works

Type n/a
Status Registered
Date Date not available

Extension to existing WC and kitchen space, redecoration of vestry rooms including fitting handrail to staircase, installation of air coolin...

Type n/a
Status Registered
Date Date not available

Proposed works to include internal structural alterations, installation of new wiring with smoke alarms and a boiler upgrade, full bathroom ...

Type n/a
Status Registered
Date Date not available

Proposed works to include internal structural alterations, installation of new wiring with smoke alarms and a boiler upgrade, full bathroom ...

Type n/a
Status Registered
Date Date not available

Proposed erection of mansard roof extension with x2 front and x2 rear dormer, lower ground floor wrap around rear extension and first floor ...

Type n/a
Status Registered
Date Date not available
Plan thumbnail

Conversion and extension of the former Barclays Bank into a mixed-use development comprising 2 commercial units (Use Class E), 4 studio flat...

Type Change of use
Status Awaiting decision
Date Date not available
Plan thumbnail

Outline for up to 170 dwellings with pedestrian/cycle facilities, open space and SUDS drainage.

Type New housing
Status Awaiting decision
Date Date not available

Discharge of Conditions 9.(Tree Protection Details), 10.(Arboricultural Method Statement), 14.(CEMP), and 15.(CTMP) for planning ref: 2024/0...

Type n/a
Status Unknown
Date Date not available

Discharge of Conditions 5.(Tree Protection Details), 6.(CEMP) and 7.(CTMP) for planning ref 2024/00935/CAC - Proposed demolition of existing...

Type n/a
Status Unknown
Date Date not available

Discharge of Condition 3.(Building Recording) for planning ref 2024/00577/FUL - Demolition of portacabin units and extensions to existing bu...

Type n/a
Status Unknown
Date Date not available

Discharge of Conditions 16 (Condition Survey 2) 19 (Public Open Space/LAP) for planning ref 2022/00397/RG3 - Phase Two of the residential de...

Type n/a
Status Unknown
Date Date not available

Amendments to approved plans: Front elevation finish changed to render. Internal accommodation changed to better suit the house. Addition of...

Type n/a
Status Unknown
Date Date not available
Plan thumbnail

Construct supported living building (C2) and 14 residential dwellings with access, parking and landscaping.

Type New housing
Status Awaiting decision
Date Date not available
Plan thumbnail

Infill of former lake to create muti-use games area (MUGA), new stepped access linking to existing sports hall, installation of new gates to...

Type Other
Status Awaiting decision
Date Date not available

Demolish existing dwelling; change industrial land to residential to build two detached four-bed houses.

Type New housing
Status Awaiting decision
Date Date not available
Plan thumbnail

Demolition of the existing building and erection of a new building of up to 22 storeys, plus two storey basement, to provide office and reta...

Type n/a
Status Registered
Date Date not available

New single storey upward extension and additional first floor window.

Type n/a
Status Registered
Date Date not available

Permanent mooring of a barge at Millwall Cutting and use of the Barge for the purposes of bed and breakfast (6 cabins), venue and including ...

Type n/a
Status Registered
Date Date not available

Proposed single storey extension to rear and proposed dormer loft conversion to rear of existing domestic dwellinghouse

Type n/a
Status Unknown
Date Date not available

Under the "Solar Together' scheme we propose installation of photovoltaic panels to be sited on the flat roof of the property.

Type n/a
Status Unknown
Date Date not available

Reserved matters for the erection of a self build agricultural workers dwelling and garage following Outline approval 25/00347/OUT

Type Agricultural
Status Awaiting decision
Date Date not available
Plan thumbnail

Erection of five dwellings (four new and one replacement) following demolition of two barns.

Type New housing
Status Awaiting decision
Date Date not available

Erection of 1 self build dwelling following demolition of existing building utilising Class Q fallback

Type New housing
Status Awaiting decision
Date Date not available
Plan thumbnail

Replace elderly residential complex with two-storey building containing 21 self-contained flats, parking and landscaping.

Type n/a
Status Under consideration
Date Date not available
Plan thumbnail

Convert single dwelling into two 1-bed flats.

Type Change of use
Status Unknown
Date Date not available
Plan thumbnail

Construction of double-storey side extension including loft floor to create a 2-bedroom, 3-person dwelling house.

Type House extension
Status Unknown
Date Date not available

Conversion of the existing single dwellinghouse into 1no. 1-bed flat and 1no. 2-bed flat with a rear dormer roof extension with a raised rid...

Type Change of use
Status Unknown
Date Date not available
Plan thumbnail

Part retrospective, part proposed for the erection of a single storey rear infill extension and insertion of a separate front entrance door ...

Type New housing
Status Unknown
Date Date not available

Erection of a four-bedroom three storey detached family dwelling.

Type New housing
Status Unknown
Date Date not available
Plan thumbnail

Construction of a rear and side dormer extension including roof lights to the front and a single storey ground floor rear extension to facil...

Type House extension
Status Unknown
Date Date not available
Plan thumbnail

Demolish building and construct part 3/part 4-storey block providing four residential apartments.

Type New housing
Status Unknown
Date Date not available

The construction of an electronic security gate and associated fencing at the eastern entrance to Bridge 3 for the period up until the first...

Type Infrastructure
Status Unknown
Date Date not available

Display of freestanding advertising Council information panel with 2no. digital displays (H) 1635mm x (W) 925mm. Displays to portray static ...

Type Advertisement
Status Unknown
Date Date not available

Retention of the sub-division of the property into two flats and retention of rear extension.

Type Change of use
Status Unknown
Date Date not available

Proposed alterations and repairs to the catacombs including alterations to ventilation openings with cast-iron grilles, removal of redundant...

Type Listed building
Status Unknown
Date Date not available

Proposed alterations and repairs to the catacombs including alterations to ventilation openings with cast-iron grilles, removal of redundant...

Type Listed building
Status Unknown
Date Date not available
Plan thumbnail

Conversion of former doctors surgery to 1no. dwelling with associated external alterations and conversion of former water tower to 1no. dwel...

Type n/a
Status Awaiting decision
Date Date not available
Plan thumbnail

Replace shopfront, single-storey rear extension and convert rear warehouse to one dwelling.

Type n/a
Status Awaiting decision
Date Date not available
Plan thumbnail

Listed building alterations; replace shopfront, rear extension and convert rear warehouse to one dwelling.

Type n/a
Status Awaiting decision
Date Date not available
Plan thumbnail

Relevant demolition of unlisted buildings in a conservation area comprising Willow House, 4no. garage blocks, and a storage building.

Type n/a
Status Awaiting decision
Date Date not available
Plan thumbnail

Reserved matters for mixed-use development including 999 dwellings, hotel, retail, offices and public realm.

Type n/a
Status Awaiting decision
Date Date not available

Erection of single storey extension extending 6.0 metres beyond the rear wall of the original house, with a height to the eaves of 3.0 metre...

Type n/a
Status Unknown
Date Date not available
Plan thumbnail

Change of use of first and second floor from a House in Multiple Occupation (use class C4) to 4no. apartments (use class C3)

Type n/a
Status Awaiting decision
Date Date not available

Proposed demolition of existing rear flat roof extension and front lean-to porch and construction of a single storey front extension and two...

Type House extension
Status Registered
Date Date not available

Display of 1x externally illuminated pictorial hanging sign fixed to existing bracket with new linolites (Sign A), 2x externally illuminated...

Type Advertisement
Status Awaiting decision
Date Date not available

Removal of rear glass pitched roof from existing rear extension and replacement with a flat roof and rooflight to match existing flat roof r...

Type House extension
Status Registered
Date Date not available

Variation of Condition 1 (Time Limit) and Condition 2 (Approved Plans and Documents) of Planning Permission 2020/00788/FUL: Erection of a re...

Type n/a
Status Unknown
Date Date not available

Discharge of Conditions 3.(Materials Details) 4.(Means of Enclosure) 5.(Hard Landscaping) 9.(Biodiversity Enhancement Details) for planning ...

Type n/a
Status Unknown
Date Date not available

Non Material Amendment - An amendment to the window to side elevation. for plannig ref 2025/00554/FUL - Proposed two-storey extension to the...

Type n/a
Status Unknown
Date Date not available

Change of use from retail to residential including partial demolition of rear ground floor extension and extension of 2nd floor over section...

Type n/a
Status Unknown
Date Date not available

Listed Building Consent for proposed rear extension, conversion of the first and second floors with internal alterations to form flats.

Type n/a
Status Unknown
Date Date not available

Proposed rear extension, conversion of the first and second floors with internal alterations to form flats.

Type n/a
Status Unknown
Date Date not available

Reference 25/18080/RC Application type Regularisation Application Site address 4 DEVONSHIRE SQUARE, BROMLEY, BR2 9HX Description of works Lo...

Type Other
Status Unknown
Date Date not available

Reference 26/01957/FP Application type Full Building Regulations Site address 13 EYNSFORD CLOSE, PETTS WOOD, ORPINGTON, BR5 1DP Description ...

Type House extension
Status Unknown
Date Date not available

Reference 26/02026/BN Application type Building Notice Site address 4 MADEIRA AVENUE, BROMLEY, BR1 4AP Description of works Single storey si...

Type House extension
Status Unknown
Date Date not available

Reference 26/01923/BN Application type Building Notice Site address 5 HALLAM CLOSE, CHISLEHURST, BR7 6NQ Description of works Single storey ...

Type House extension
Status Unknown
Date Date not available

Reference 26/02022/BN Application type Building Notice Site address 40 DERRICK ROAD, BECKENHAM, BR3 3QQ Description of works Removal of load...

Type Other
Status Unknown
Date Date not available

Reference 26/02367/BN Application type Building Notice Site address 82 RAVENSBOURNE AVENUE, BROMLEY, BR2 0BP Description of works Removal of...

Type Other
Status Unknown
Date Date not available

Reference 26/02371/BN Application type Building Notice Site address 31 PATTERSON ROAD, ANERLEY, LONDON, SE19 2LE Description of works Loft c...

Type House extension
Status Unknown
Date Date not available

Reference 26/02398/NOT Application type Initial Notice Site address 178 FARNABY ROAD, BROMLEY, BR2 0BB Description of works Single storey re...

Type House extension
Status Unknown
Date Date not available

Reference 26/02399/BN Application type Building Notice Site address 43 MARLOW ROAD, PENGE, LONDON, SE20 7YG Description of works Removing on...

Type Other
Status Unknown
Date Date not available

Reference 26/02401/NOT Application type Initial Notice Site address 2A WOODLAND WAY, PETTS WOOD, ORPINGTON, BR5 1ND Description of works Rem...

Type Other
Status Unknown
Date Date not available

Reference 26/02403/BN Application type Building Notice Site address 42 BIRCHWOOD ROAD, PETTS WOOD, ORPINGTON, BR5 1NZ Description of works C...

Type House extension
Status Unknown
Date Date not available

Reference 26/02406/NOT Application type Competent Person Site address 40 Homestead Road, Orpington, BR6 6HW Description of works Scheme Cert...

Type Renewable energy
Status Unknown
Date Date not available

Reference 26/02416/BN Application type Building Notice Site address 28 Witham road London SE20 7YA Description of works Removal of a load be...

Type Other
Status Unknown
Date Date not available

Reference 26/02417/NOT Application type Initial Notice Site address 30 ANERLEY PARK, PENGE, LONDON, SE20 8ND Description of works New replac...

Type Other
Status Unknown
Date Date not available

Reference 26/02418/NOT Application type Initial Notice Site address 62 KEDLESTON DRIVE, ORPINGTON, BR5 2DS Description of works Single store...

Type House extension
Status Unknown
Date Date not available

Reference 26/02420/NOT Application type Initial Notice Site address LYNWOOD, ASHMERE AVENUE, BECKENHAM, BR3 6PQ Description of works Structu...

Type Other
Status Unknown
Date Date not available

Reference 26/02427/BN Application type Building Notice Site address 188 VENNER ROAD, SYDENHAM, LONDON, SE26 5HT Description of works Removal...

Type Other
Status Unknown
Date Date not available

Reference 26/02445/NOT Application type Competent Person Site address Flat 4 Cavendish House, Bromley, BR2 9TY Description of works Scheme C...

Type Other
Status Unknown
Date Date not available

Reference 26/02451/NOT Application type Competent Person Site address 18 Hawkinge Walk, Orpington, BR5 3SB Description of works Scheme Certi...

Type Other
Status Unknown
Date Date not available

Reference 26/02453/NOT Application type Initial Notice Site address GROUND FLOOR FLAT, 93 MARLOW ROAD, PENGE, LONDON, SE20 7XW Description o...

Type Other
Status Unknown
Date Date not available

Reference 26/02454/NOT Application type Initial Notice Site address 120 JAIL LANE, BIGGIN HILL, WESTERHAM, TN16 3SB Description of works Exi...

Type House extension
Status Unknown
Date Date not available

Reference 26/02455/NOT Application type Initial Notice Site address 55 EMPRESS DRIVE, CHISLEHURST, BR7 5BQ Description of works Single Store...

Type House extension
Status Unknown
Date Date not available

Reference 26/02456/NOT Application type Initial Notice Site address LAND AND GARAGES BETWEEN 17 AND 18, GARDINER CLOSE, ORPINGTON Descriptio...

Type New housing
Status Unknown
Date Date not available

Reference 26/02457/NOT Application type Initial Notice Site address COACH HOUSE, OLDFIELD ROAD, BICKLEY, BROMLEY, BR1 2LE Description of wor...

Type New housing
Status Unknown
Date Date not available

Reference 26/02458/NOT Application type Initial Notice Site address 42 BOLEYN GARDENS, WEST WICKHAM, BR4 9NQ Description of works Hip to gab...

Type House extension
Status Unknown
Date Date not available

Reference 26/02470/OT Application type Reversion Application Site address FLAT 2, 14 BECKENHAM GROVE, SHORTLANDS, BROMLEY, BR2 0JU Descripti...

Type House extension
Status Unknown
Date Date not available

Reference 26/02499/NOT Application type Competent Person Site address 295 Clock House Road, Beckenham, BR3 4LE Description of works Scheme C...

Type Other
Status Unknown
Date Date not available

Proposed Country Park to incorporate general footpaths and associated landscaping (including land re-profiling with importation of soil), a ...

Type Other
Status Registered
Date Date not available

Redevelopment to provide data centre with MV building, generators, substations, tanks, parking and security.

Type Industrial
Status Registered
Date Date not available

Application for permission in principle for the erection of minimum of 7 and a maximum of 7 dwelling

Type New housing
Status Registered
Date Date not available
Plan thumbnail

Change of use of former hotel to a 23 room House in Multiple Occupation (HMO)

Type Change of use
Status Awaiting decision
Date Date not available

Conversion and single storey side extension of existing stable building to create a one bedroom dwelling served by the existing vehicular ac...

Type Change of use
Status Registered
Date Date not available

Proposed replacement dwelling (retrospective) together with new garage and access with new boundary treatments and gates (Re-submission of 2...

Type New housing
Status Application Permitted
Date Date not available

Certificate of Lawfulness for the use of the building to the rear of 47 Arcot Street, aka as the Coach House, as a single dwelling.

Type n/a
Status Unknown
Date Date not available

Non Material Amendment - An amendment to fenestration, remove of proposed stone chimney and addition of lean to structure to house plant and...

Type n/a
Status Unknown
Date Date not available

Proposed demolition of the existing two-storey residential dwelling and the construction of a new replacement dwelling on the same site loca...

Type n/a
Status Unknown
Date Date not available

Proposed 1st storey extension above existing ground floor with internal alterations at existing domestic dwellinghouse

Type n/a
Status Unknown
Date Date not available

Variation of Condition 14 (Levels) of Planning Approval 2016/00369/OUT: Demolition of part demolished, fire damaged and derelict former C1 r...

Type n/a
Status Unknown
Date Date not available

Proposed single storey rear extension measuring 4 metres in length and 6 metres in width, attached to rear wall of the dwelling

Type n/a
Status Unknown
Date Date not available

Demolition of single storey detached garage and erection of a two storey outbuilding with Juliet balcony, to be used as garage and home offi...

Type n/a
Status Unknown
Date Date not available

Construction of a single-storey side extension with room within the roof and two front-facing dormers, and the construction of a single stor...

Type n/a
Status Unknown
Date Date not available

Discharge of Conditions 3.(Levels) 4.(Means of Enclosure) 5.(CEMP) 10.(Landscaping Scheme) 12.(Highways 1) 13.(Highways 2) for planning ref ...

Type n/a
Status Unknown
Date Date not available

Discharge of Conditions 3.(Levels) 4.(Means of Enclosure) 5.( CEMP) 10.(Landscaping Scheme) 12.(Highways 1) 13.(Highways 2) for planning ref...

Type n/a
Status Unknown
Date Date not available

Discharge of Condition 6 (Material Details). Planning Ref: 2020/01007/FUL. The reinstatement of a range of domestic garden buildings along w...

Type n/a
Status Unknown
Date Date not available

Discharge of Conditon 7 (Biodiversity Enhancement Provision). Planning Re: 2025/00217/FUL. Exhumation of existing below-ground fuel storage ...

Type n/a
Status Unknown
Date Date not available

Change of Use of dwelling to dental practice, extensions and alteration to existing building and associated car parking, access and landscap...

Type Change of use
Status Pending Consideration
Date Date not available

Glazed extension, redevelopment of stables to dwelling including glazed link to farmhouse and new stables within curtilage.

Type n/a
Status Unknown
Date Date not available

Discharge of Condition 2.(Historic Building Recording and Analysis) for planning ref 2024/00634/CAC - Demolition of portacabin units and ext...

Type n/a
Status Unknown
Date Date not available

Discharge of Condition 10 (Materials for Hardstanding) of Planning Permission 2019/01354/FUL - Demolition of existing dwelling and erection ...

Type n/a
Status Unknown
Date Date not available

The re-siting of a rural Enterprise Dwelling granted on appeal on the 8th March 2012, reference 2011/00095/OUT, to a more appropriate locati...

Type n/a
Status Unknown
Date Date not available

Change of use of land from private livery yard to commercial Yard for training Event horses and riders with Livery. 12 stables, 3 hay / stor...

Type n/a
Status Unknown
Date Date not available

Discharge of Condition 4.(Materials Details) for planning ref; 2023/00984/FUL - Single and two storey side and rear extension to existing de...

Type n/a
Status Unknown
Date Date not available

LBC for a glazed extension, redevelopment of stables to dwelling including glazed link to farmhouse and new stables within curtilage.

Type n/a
Status Unknown
Date Date not available

Discharge of Conditions 3.(Materials Details) 4.(Means of Enclosure) 10.(Landscaping Scheme) 14.(Non Standard Approval) for planning ref 202...

Type n/a
Status Unknown
Date Date not available

Proposed conversion of the upper floors of 91 Holton Road to provide 4no. residential flats, including proposed internal and external altera...

Type n/a
Status Unknown
Date Date not available

Discharge of Conditions 3.(Materials Details), 4.(Windows and Doors Details), 5.(Means of Enclosure), 9.(Biodiversity Enhancement Details), ...

Type n/a
Status Unknown
Date Date not available

Discharge of Condition 3.(Biodiversity Enhancement Details) for planning ref 2025/00636/FUL - Change of use of the ground floor of 79 Holton...

Type n/a
Status Unknown
Date Date not available

Reference HOU/2026/0019 Site address 22 The Meadows, High Harrington, Workington CA14 5NU Description First floor extension above existing g...

Type House extension
Status Unknown
Date Date not available

Reference LBC/2026/0010 Site address The Lodge, The Went, Greysouthen, Cockermouth, CA13 0UQ Description An underground cable to be laid at ...

Type Listed building
Status Unknown
Date Date not available

Reference HOU/2026/0015 Site address 8 Fletcher Street, Cockermouth CA13 0HA Description Demolition of existing two storey rear extension an...

Type House extension
Status Unknown
Date Date not available

Reference FUL/2026/0021 Site address 102A Senhouse Street, Maryport, CA15 6BS Description Replace aluminium shop front with traditional styl...

Type Commercial
Status Unknown
Date Date not available

Reference FUL/2026/0024 Site address Farfisa, Wiggonby, Wigton CA7 0JR Description Change of use of land from paddock to garden land and ext...

Type House extension
Status Unknown
Date Date not available

Reference REG5/2026/0079 Site address Bridge House, Wigton, CA7 0EU Description Proposed telecommunications installation: 23 x 9 metre mediu...

Type Infrastructure
Status Unknown
Date Date not available

Reference FUL/2026/0011 Site address Land South of Lowmoor Road, Wigton Description Residential development of 192 dwellings Valid Date 13/2...

Type New housing
Status Unknown
Date Date not available

Reference REG5/2026/0078 Site address Whins Hill, Micklethwaite, Wigton, CA7 0EY Description Proposed telecommunications installation: 8 x 9...

Type Infrastructure
Status Unknown
Date Date not available

Change of use from single dwelling to two flats; two-storey rear and single-storey side extensions; garage demolition for parking.

Type Change of use
Status Awaiting decision
Date Date not available
Plan thumbnail

Proposed construction of access road to serve 7 self-build plots together with temporary access for construction traffic following the demol...

Type Infrastructure
Status Awaiting decision
Date Date not available

Change of use from single dwellinghouse to supported living accommodation for up to five adults (aged 18+) with learning disabilities receiv...

Type Change of use
Status Unknown
Date Date not available

Single storey rear extension and conversion of garage to habitable space

Type House extension
Status Unknown
Date Date not available

Change of use from single dwelling house (C3) to residential care home (C2) for children in care.

Type n/a
Status Awaiting decision
Date Date not available

CHANGE OF USE FROM RESIDENTIAL DWELLING (USE CLASS C3) TO A DENTAL PRACTICE (USE CLASS E (E))

Type Change of use
Status Awaiting decision
Date Date not available
Plan thumbnail

SUBDIVISION OF EXISTING FIRST AND SECOND FLOOR FLAT TO FORM 2 NO. 1 BEDROOM FLATS.

Type Change of use
Status Awaiting decision
Date Date not available
Plan thumbnail

ERECTION TWO STOREY MIXED USE DEVELOPMENT COMPRISING OF 7NO. FIRST FLOOR FLATS (5NO ONE BED FLATS AND 2NO TWO BED FLATS) , 3NO. COMMERCIAL U...

Type New housing
Status Awaiting decision
Date Date not available
Plan thumbnail

Conversion of offices to 5 No self-contained flats at first and second floors including the replacement of timber widows with uPVC frames. R...

Type Change of use
Status Pending Consideration
Date Date not available

Single storey rear extension, roof extension with loft conversion and rooflights to sides/rear, front and side extensions, and alterations t...

Type House extension
Status Unknown
Date Date not available

Conversion of existing garage to form 2 No. Private parking spaces, a Class E office unit and refuse storage area, with a proposed first flo...

Type New housing
Status Awaiting decision
Date Date not available

Change of use of 1st Floor of Public House (Sui Generis) to a 6-Bed Guest House (Use Class C1)

Type Change of use
Status Awaiting decision
Date Date not available

Rooftop extension and conversion of floors 1–4 to create 8 apartments with a new entrance.

Type New housing
Status Awaiting decision
Date Date not available

Extensions and extra storey to existing block to create 8 apartments, courtyard work pods and landscaping.

Type New housing
Status Awaiting decision
Date Date not available
Plan thumbnail

Use of dwellinghouse (Use Class C3) to provide residential care accommodation (Use Class C2) for 3 young people (aged 8-18 years)

Type Change of use
Status Awaiting decision
Date Date not available

Remove mobile home and replace with one self-build dwelling and associated works.

Type New housing
Status Unknown
Date Date not available

Demolish garage and erect store plus residential annex to main house.

Type House extension
Status Unknown
Date Date not available

Change of use from C1 (9 bed) (Bed and Breakfast) to a 9 bedroom, 9 occupant HMO (Sui Generis) with minor internal alterations. This applica...

Type Change of use
Status Unknown
Date Date not available

Change of use of first floor to provide 5 No. guest bedrooms with ensuites for short term stays, replacement timber pergola and replacement ...

Type Change of use
Status Unknown
Date Date not available

Roof extension to include 2x cottage dormers and 1x velux rooflight to the front elevation with a flat roof dormer window to the rear elevat...

Type House extension
Status Unknown
Date Date not available

Roof gable extension, insertion of rooflights and installation of photovoltaic panels on dwelling in conservation area.

Type House extension
Status Unknown
Date Date not available

Outline permission for three Class E light industrial units with associated landscaping.

Type Industrial
Status Unknown
Date Date not available

Change of use from a residential dwelling to a small care facility for up to 2 children aged between 12 - 16 years old. This application is ...

Type Change of use
Status Unknown
Date Date not available

Single storey rear extension with steps, side extension to garage and alterations to front porch and fenestration.

Type House extension
Status Unknown
Date Date not available
Plan thumbnail

Change of use of agricultural buildings to three residential dwellings with garages.

Type Change of use
Status Awaiting decision
Date Date not available

Two storey side extension, front extension to garage and part two, part single storey rear extension

Type House extension
Status Unknown
Date Date not available

Change of use from a B8 storage to a clinical waste transfer centre. (Sui Generis)

Type Change of use
Status Unknown
Date Date not available

Demolition of existing side extension and replacement with two storey side extension. Front and rear dormers. Modernisation and alterations ...

Type n/a
Status Unknown
Date Date not available

Discharge of Conditions 3 (Levels) 6 (Boundary wall method statement) and 8 (CTMP) for planning ref. 2021/01100/FUL - Restoration and refurb...

Type n/a
Status Unknown
Date Date not available

Construction of a single storey contemporary glazed orangery extension to the rear of a double storey detached residential property.

Type n/a
Status Unknown
Date Date not available

Replacement of two existing windows with one large corner window. Removal of an existing lean-to roof and replacement with a flat roof. New ...

Type n/a
Status Unknown
Date Date not available

Proposed parapet wall to rear and side elevation (not facing neighbours) and raising flat roof level slightly.

Type n/a
Status Unknown
Date Date not available

Addition of second story to existing single storey part of the house, changes to fenestration and balcony to south elevation. Reroofing exis...

Type n/a
Status Unknown
Date Date not available

Non-Material Amendment - To flats 1, 2 & 3 as approved. Planning permission ref. 2017/00995/FUL: Retain front ground floor as retail and con...

Type n/a
Status Unknown
Date Date not available

275 kV Gas Insulated Switchgear (GIS) substation and 132kV GIS substation and associated infrastructure, referred to as the ‘Aberthaw Substa...

Type n/a
Status Unknown
Date Date not available
Plan thumbnail

Change of use of store, garage and dwelling to a butchery, shop and cafe to include the erection of a marquee and change of use of agricultu...

Type Change of use
Status Awaiting decision
Date Date not available
Plan thumbnail

Hybrid application for up to 650 dwellings (161 detailed, up to 489 outline), plus care home and commercial floorspace.

Type New housing
Status Awaiting decision
Date Date not available

Construction of one detached self-build dwelling and garage with parking.

Type New housing
Status Unknown
Date Date not available

Demolish storage container and erect single-storey office and welfare facilities.

Type Commercial
Status Unknown
Date Date not available

Installation of scissor lift and delivery landing with new stairs and gate to boundary wall. This application is in CIL Zone 2 (Zero Rated) ...

Type Commercial
Status Unknown
Date Date not available

Change of use of existing redundant storage building located at the South end of the pier to become a cafe/sauna. This application affects t...

Type Change of use
Status Unknown
Date Date not available

Non Material Amendment - An amendment to material, change of external finish to West and South Elevations - Limestone in lieu of dark brown ...

Type n/a
Status Unknown
Date Date not available

Variation of condition 2 (Plan Specification) of Planning Permission 2019/01354/FUL - Demolition of existing dwelling and erection of replac...

Type n/a
Status Unknown
Date Date not available

Non Material Amendment - An amendment to the feature window to second floor gable to front elevation. for planning ref 2021/00781/FUL - Plot...

Type n/a
Status Unknown
Date Date not available

Erection of two new buildings containing five garages for parking and domestic storage.

Type Other
Status Unknown
Date Date not available

Proposed part single, part double rear extension with roof terrace, two storey front extension, new side dormers.

Type House extension
Status Unknown
Date Date not available

Development of a 5m screening wall to western perimeter. This application is in CIL Zone 3 (Zero Rated) as other development.

Type Other
Status Unknown
Date Date not available

2 No single storey detached dwellings (with accommodation in the roof space) along with associated car and cycle parking (resubmission follo...

Type New housing
Status Unknown
Date Date not available

Application under Regulation 3 of the Town and Country Planning General Regulations 1992 for the installation of a modular building and asso...

Type Other
Status Unknown
Date Date not available

Change of Use from a Dog Grooming Parlour (Sui Generis) to Cafe (Class E(b)), installation of awning and outdoor seating. This application i...

Type Change of use
Status Unknown
Date Date not available

Refurbishment of restaurant to include a 5.6 sqm extension, replacement entrance door and the formation of an additional entrance with new g...

Type Commercial
Status Unknown
Date Date not available

Installation of a gate at the junction of Dell Cottage Access Road and Norton Lane. This application is in CIL Zone 3 (zero rated).

Type Infrastructure
Status Unknown
Date Date not available

Site alterations to include removal of pillar from canopy, installation of new smoking shelter and installation of new waste platform. This ...

Type Commercial
Status Unknown
Date Date not available

Removal of associated existing BT payphone(s) and kiosks and installation of 1 No BT Streethub unit. This application affects the setting of...

Type Infrastructure
Status Unknown
Date Date not available

Removal of existing BT Phone Kiosk and installation of 1 No new BT Street Hub, incorporating 2 No digital 1.905m internally illuminated LCD ...

Type Advertisement
Status Unknown
Date Date not available

Removal of existing BT Phone Kiosk and installation of 1 No new BT Street Hub, incorporating 2 No digital 1.905m internally illuminated LCD ...

Type Advertisement
Status Unknown
Date Date not available

Removal of associated existing BT payphone(s) and kiosks and installation of 1 No BT Streethub Unit. This application affects the setting of...

Type Infrastructure
Status Unknown
Date Date not available

Proposed extension to integral garage, replace existing conservatory, changes to fenestration and internal changes to existing domestic dwel...

Type n/a
Status Unknown
Date Date not available

Proposed single storey rear extension for habitable use to the existing dwelling is under General Permitted Development Order 1995.

Type n/a
Status Unknown
Date Date not available

Install air source heat pump and pv solar panels to serve existing dwelling. Replace existing kitchen door and dining room window to rear el...

Type n/a
Status Unknown
Date Date not available

Variation of Conditions 2 (Plans) and 12 (Windows and Noise Mitigation) of Planning Permission 2021/01482/FUL: Proposed partial demolition o...

Type n/a
Status Unknown
Date Date not available

Non Material Amendment - An amendment to the Inclusion of uPVC porch within extension to building frontage. For planning ref 2025/00825/FUL ...

Type n/a
Status Unknown
Date Date not available

Change of use from former Bank to multi use B1 Coworking space on ground and first floor levels with A3 cafe on ground floor and Class C1 (G...

Type n/a
Status Unknown
Date Date not available

Proposed two-storey side and rear extension with balcony to AFC Clubhouse, creation of extended car park and associated landscape works.

Type n/a
Status Unknown
Date Date not available

Use of land for siting of static caravan for a combination of daily welfare facilities/office/overnight accommodation for use during lambing...

Type n/a
Status Unknown
Date Date not available

Convert dwelling into four flats and build two 3-bed semi-detached houses (six units total).

Type New housing
Status Registered
Date Date not available
Plan thumbnail

Provision of additional hardstanding to create allocated car parking spaces for existing dwellings

Type Other
Status Registered
Date Date not available

Change of use from Use Class C3(a) (Dwellinghouse) to Use Class C3(b) (Supported accommodation) for supported living for up to four individu...

Type Change of use
Status Unknown
Date Date not available

Proposed single storey side and rear extension including hip to gable loft conversion with front dormer and front / rear roof lights

Type House extension
Status Unknown
Date Date not available
Plan thumbnail

Phased redevelopment of the site comprising demolition of all existing buildings (save for 46-48a Ashfield Street); and development includin...

Type n/a
Status Registered
Date Date not available

Replacement of rear windows, conversion of 1st floor bathroom into a bedroom and a wet room with associated works.

Type n/a
Status Unknown
Date Date not available

Replacement of rear windows, conversion of 1st floor bathroom into a bedroom and a wet room with associated works.

Type n/a
Status Unknown
Date Date not available

Submission of detail pursuant to condition no.5 (Car Free Agreement) of planning permission ref: PA/18/02963 dated 10/12/2018

Type n/a
Status Registered
Date Date not available

Change of use from class E(a) (Display or retail sale of goods, other than hot food) to E(b) (Sale of food and drink for consumption (mostly...

Type n/a
Status Registered
Date Date not available

Installation of air source heat pump units at roof level on the Assam Street building.

Type n/a
Status Registered
Date Date not available

Single-storey rear extension to form two dwellings with amenity space, shopfront and internal stair access.

Type New housing
Status Pending Decision
Date Date not available

Land To The Rear Of 41 To 65 Potash Road Billericay Essex - Demolition of two dwellinghouses at Nos. 41 and 65 Potash Road including ancilla...

Type New housing
Status No Objection
Date Date not available

Erection of two data centres (Use Class B8) with ancillary office space, public realm, hard and soft landscaping, vehicular/pedestrian/cycle...

Type Industrial
Status Pending Consideration
Date Date not available

Conversion of a part Class E offices/ dwelling to a dwelling and conversion of an office to an annexe

Type Change of use
Status Pending Consideration
Date Date not available

4 no. non-illuminated replacement fascia signs comprising 1x set of house name letters, 1x set of sign written house name letters and 2x set...

Type Advertisement
Status Registered
Date Date not available

Proposed single storey side extension, single / double storey rear extension including loft extension and conversion of existing dwelling ho...

Type House extension
Status Registered
Date Date not available

Demolition of dwelling and erection of two self-build detached houses with new access.

Type New housing
Status Registered
Date Date not available

Part single/part two storey front/side/rear extension with new roof to create two storey dwelling. Loft Conversion. Front boundary wall.

Type House extension
Status Awaiting decision
Date Date not available

Retrospective application for the conversion of existing garage and gymnasium to form two residential units including infilling of car port,...

Type Change of use
Status Pending Consideration
Date Date not available

Construction of a two bedroom dwelling with formation of access and amenity space

Type New housing
Status Application Permitted
Date Date not available

Conversion of existing brick-built barn to a single dwelling with associated parking, landscaping and ancillary works.

Type Change of use
Status Application Permitted
Date Date not available

Two-storey side, single-storey rear and porch extensions with south-facing solar panels and balcony.

Type House extension
Status Unknown
Date Date not available

Part change of use of east wing from dwelling (C3) to guest accommodation (6 en-suite rooms).

Type Change of use
Status Unknown
Date Date not available

Single-storey side/rear extension and fenestration alterations following demolition of existing garage.

Type House extension
Status Unknown
Date Date not available

Retention of change of use converting three terraced houses into one semi-detached house.

Type Change of use
Status Unknown
Date Date not available

Front canopy, two-storey side/rear and single-storey rear extensions with solar panels and flue.

Type House extension
Status Unknown
Date Date not available

Pitched dormer to side of property and loft conversion, consisting of two hip to gables and flat roofed first-floor extension to rear of pro...

Type House extension
Status Unknown
Date Date not available

Proposed demolition of existing double flat roofed garage, and erection of new rectangular garage and workshop and office for personal use, ...

Type n/a
Status Registered
Date Date not available

Replace thatched roof, alter windows and external finishes, add first-floor balcony and boundary treatments.

Type House extension
Status Unknown
Date Date not available

Single storey rear extension, cladding to some external walls and changes to fenestration.

Type House extension
Status Unknown
Date Date not available

Two-storey side extension following garage demolition, fenestration alterations and new vehicular crossover.

Type House extension
Status Unknown
Date Date not available

Installation of 2 No. additional rapid EV chargers, upgrade of the existing charging unit and the upgrade and relocation of the existing fee...

Type Infrastructure
Status Unknown
Date Date not available
Plan thumbnail

Change of use of a residential dwelling (C3) to a children's care home (C2) for one child

Type n/a
Status Awaiting decision
Date Date not available

Change of use from dwellinghouse (C3) to private residential children's home (C2) for one child (aged between 11-17)

Type n/a
Status Registered
Date Date not available
Plan thumbnail

Partial demolition of existing dwelling, single-storey rear extension and increase in roof height together with two-storey detached dwelling

Type New housing
Status Awaiting decision
Date Date not available
Plan thumbnail

Two-storey detached dwelling, and subsequent demolition of existing dwelling

Type New housing
Status Awaiting decision
Date Date not available
Plan thumbnail

Construction of four two-storey detached dwellings with access, parking and landscaping.

Type New housing
Status Awaiting decision
Date Date not available

Erection of single storey side extension with flat roof to provide ancillary annex accommodation

Type House extension
Status Unknown
Date Date not available

External alterations to fenestration and internal alterations to form 1 bedroom flat with study

Type Change of use
Status Unknown
Date Date not available

Installation of gates and railings facing the highway and reduction in height of existing pillars

Type Other
Status Unknown
Date Date not available

Change of use: first/second floors to one holiday let and one residential unit; ground floor divided into four retail units.

Type Change of use
Status Awaiting decision
Date Date not available
Plan thumbnail

Subdivision of 3 bed flat to create two 2 bed flats together with rear dormer.

Type New housing
Status Awaiting decision
Date Date not available

Two storey detached self build dwelling, detached garage together with office above following demolition of existing dwelling and garage.

Type New housing
Status Awaiting decision
Date Date not available

Waterproofing of roof, upgrading of ventilation system, and addition of air conditioning to first floor west wing.

Type Commercial
Status Unknown
Date Date not available

Waterproofing of roof, upgrading of ventilation system, and addition of air conditioning to first floor west wing.

Type Commercial
Status Unknown
Date Date not available

Part first floor front extension including removal of front dormers and raising of ridge height and conversion of loft to habitable use with...

Type House extension
Status Unknown
Date Date not available
Plan thumbnail

Construction of a three-storey, 2-bedroom dwelling house following demolition of existing detached double garage. Provision of car parking, ...

Type New housing
Status Awaiting decision
Date Date not available
Plan thumbnail

Change of use from dwelling house (use Class C3) to House in Multiple Occupation (use Class C4) - retrospective

Type n/a
Status Awaiting decision
Date Date not available
Plan thumbnail

Erection of 1no. replacement dwelling and a detached garden building following demolition of existing house

Type n/a
Status Awaiting decision
Date Date not available

Splitting the existing dwelling into two residential dwellings and internal alterations, the conversion and extension of an existing barn to...

Type n/a
Status Awaiting decision
Date Date not available

Change of use from residential garage to commercial hair salon (Class E) and extension of existing garage

Type n/a
Status Awaiting decision
Date Date not available

Change of use of ground floor from Class E (kitchen showroom) to Class F1 (non residential education) - Retrospective

Type n/a
Status Awaiting decision
Date Date not available
Plan thumbnail

Removal of rooftop plant equipment and antennas and addition of rooftop extension to provide communal roof garden. Alterations to the façade...

Type Change of use
Status Awaiting decision
Date Date not available
Plan thumbnail

Construction of a residential care home (Use Class C2) and associated communal spaces and services together with associated car parking and ...

Type Other
Status Awaiting decision
Date Date not available
Plan thumbnail

Change of use from office (E) to one-bedroom dwelling (C3) and erection of single storey rear infill extension.

Type Change of use
Status Awaiting decision
Date Date not available
Plan thumbnail

Single storey garage front extension adjacent to the host dwelling involving conversion of garage space to habitable space incorporating a n...

Type House extension
Status Awaiting decision
Date Date not available

Discharge of Conditions 5.(Means of Enclosure) 9.(Imported Aggregates) 10.(Imported Soil) for planning ref 2022/01072/FUL - Demolition of ex...

Type n/a
Status Unknown
Date Date not available

Retrospective planning application for an orangery to the rear of the dwelling and a therapy shed in the garden.

Type n/a
Status Unknown
Date Date not available

Proposed extension, alterations and creation of additional floor with rear balcony to existing dwelling.

Type n/a
Status Unknown
Date Date not available

Discharge of Condition 4.(Materials Details and samples) for planning ref 2023/00948/FUL - Full planning application for residential develop...

Type n/a
Status Unknown
Date Date not available

Discharge of Condition 9.(Gate, paving and Boundary wall. ) For planning ref 2024/00633/LBC - External and internal alterations to facilitat...

Type n/a
Status Unknown
Date Date not available

Non Material Amendment - An amendment to reduce size of extension. Planning ref; 2025/00879/FUL - Proposed single storey side house extensio...

Type n/a
Status Unknown
Date Date not available

Reserved matters for construction of the Interim Power Solution - a temporary new pylon and a substation - and the permanent Substation 2 (a...

Type n/a
Status Unknown
Date Date not available

New boundary fencing, hedging and two driveway entrance gates; alteration to driveway geometry.

Type Other
Status Unknown
Date Date not available

Change of use from guest house (C1) to children's residential home (C2).

Type Change of use
Status Unknown
Date Date not available
Plan thumbnail

Convert ground floor to commercial; upper floors and adjacent building to short-term holiday lets with alterations.

Type n/a
Status Awaiting decision
Date Date not available
Plan thumbnail

Convert ground floor to commercial; upper floors and adjacent building to short-term holiday lets with alterations.

Type n/a
Status Awaiting decision
Date Date not available
Plan thumbnail

Erection of single storey extension extending 5.47 metres beyond the rear wall of the original house, with a height to the eaves of 2.25 met...

Type n/a
Status Unknown
Date Date not available
Plan thumbnail

Conversion of vacant upper floors to eight residential apartments with roof terraces and rooflights.

Type n/a
Status Awaiting decision
Date Date not available
Plan thumbnail

Internal and external works to convert vacant upper floors into eight apartments with terraces.

Type n/a
Status Awaiting decision
Date Date not available
Plan thumbnail

Erection of 36no. dwellings (use class C3) with associated open space, landscaping, access and parking following demolition of existing care...

Type n/a
Status Awaiting decision
Date Date not available

Internal alterations, to include the change of use of the landlords residential accommodation at first floor into additional space for the e...

Type n/a
Status Awaiting decision
Date Date not available
Plan thumbnail

Change of use from residential (use class C3) to short term holiday let (Sui Generis), single storey rear extension, installation of 3no. do...

Type n/a
Status Awaiting decision
Date Date not available
Plan thumbnail

Internal and external alterations to include the change of use from residential (use class C3) to short term holiday let (Sui Generis), sing...

Type n/a
Status Awaiting decision
Date Date not available

Demolish existing single-storey rear extension and build new single-storey rear and side extension.

Type House extension
Status Unknown
Date Date not available

Single storey rear extension, replacement of balcony, and alterations to fenestration. This application may affect the setting of Grade II L...

Type House extension
Status Unknown
Date Date not available

Convert mixed C3 dwelling and C4 HMO into a single C3 residential dwelling (CIL liable).

Type Change of use
Status Unknown
Date Date not available

Change of use from public conveniences (Sui Generis) to commercial use (use class E). This application is in CIL Zone 4 (Zero Rated) as othe...

Type Change of use
Status Unknown
Date Date not available

Installation of a four-lane outdoor caged cricket net facility. This application is in CIL Zone 4 (Zero Rated) as other development.

Type Other
Status Unknown
Date Date not available

Refurbishment of the restaurant to include a between booth and front extension, replacement entrance door and the formation of an additional...

Type Commercial
Status Unknown
Date Date not available

Existing front porch to be replaced with a new single-storey extension, new external windows and doors throughout, new external cladding and...

Type House extension
Status Unknown
Date Date not available

Two storey front, rear and side extensions. Loft extension. Internal alterations.

Type House extension
Status Unknown
Date Date not available

Discharge of Condition 12.(Levels) & 14.(Internal Road Details) for planning ref 2020/00775/OUT - Residential development at the former sidi...

Type n/a
Status Unknown
Date Date not available

Non Material Amendment. An amendment to locations and proportions of windows and roof windows. Minor alterations to other external elements....

Type n/a
Status Unknown
Date Date not available
Plan thumbnail

Conversion of barns to a single dwelling, along with construction of a garage building, outdoor pool and associated works

Type n/a
Status Under consideration
Date Date not available

Demolition of the existing substandard ancillary structures attached to the stone barn. The conversion of the existing barn to a residential...

Type n/a
Status Unknown
Date Date not available

Extensions and alterations to dwelling, including ground and first-floor extensions, a linked single-storey annex, landscaping works and the...

Type n/a
Status Unknown
Date Date not available

Proposed change of use of 2 no. units from ancillary accomodation (residential) to C6, short term holiday lettings (max stay 31 days)

Type n/a
Status Unknown
Date Date not available

Change of use of the first and second floor from storage to 3no. self-contained flats. New Access to be created at the front elevation (High...

Type n/a
Status Unknown
Date Date not available

Change of use of the first and second floor from storage to 3no. self-contained flats. New Access to be created at the front elevation (High...

Type n/a
Status Unknown
Date Date not available

Part demolish ground, 1st and 2nd floor rear annex, internal alteration of ground, 1st and 2nd floor front original building, construction o...

Type n/a
Status Unknown
Date Date not available

To extend crossover for vehicular access at front of house to park cars on property as oppsed to highway

Type n/a
Status Unknown
Date Date not available

Two storey side/rear extension. Porch increased in size along with balcony above. New solar panels to front and rear. New air source heat pu...

Type n/a
Status Unknown
Date Date not available

Variation of Condition 2 (Opening Hours) of Planning Approval 2009/00910/FUL: Change of use of existing ground floor shop/office to hot food...

Type n/a
Status Unknown
Date Date not available

Retrospective application for a single storey side/rear extension and front porch

Type House extension
Status Unknown
Date Date not available

Change of use from dwelling house (Class C3) to 7-person house in multiple occupation (Sui Generis use class). (RETROSPECTIVE)

Type Change of use
Status Unknown
Date Date not available
Plan thumbnail

Erection of four-storey residential building to provide 13 apartments with access and parking.

Type New housing
Status Awaiting decision
Date Date not available

Two-storey side extension to create four two-bedroom flats, three parking spaces and landscaping.

Type House extension
Status Awaiting decision
Date Date not available
Plan thumbnail

Change of use of existing buildings to create four self-contained flats with external alterations.

Type Change of use
Status Awaiting decision
Date Date not available

AMENDED PLANS RECEIVED (Revised Description) Ground-floor extension to create a larger kitchen space, with a flat roof incorporating a roof ...

Type House extension
Status Pending Consideration
Date Date not available

Erection of a single storey rear extension to form kitchen and associated stores and office; installation of external flue.

Type House extension
Status Awaiting decision
Date Date not available

Change use from dwellinghouse to residential children's home for up to three children.

Type Change of use
Status Awaiting decision
Date Date not available

Change of use of the existing caretaker home (Use class C3) to a sui generis building to compromise: Community use (Use class F2b - communit...

Type Change of use
Status Awaiting decision
Date Date not available
Plan thumbnail

Part 2/part 6-storey residential building with communal facilities, parking and landscaping.

Type New housing
Status Awaiting decision
Date Date not available
Plan thumbnail

Extra-care and older persons apartments plus dwellinghouses, with parking and landscaping.

Type New housing
Status Awaiting decision
Date Date not available
Plan thumbnail

Apartments above ground-floor retail with landscaping, servicing, car and cycle parking.

Type New housing
Status Awaiting decision
Date Date not available

Prior approval for the installation of solar panels on to the existing flat roof canopy above the forecourt area of the service station.

Type Renewable energy
Status Unknown
Date Date not available

Creation of 2No. flats above shop; erection of two-storey rear extension following demolition of existing single storey extension involving ...

Type Change of use
Status Awaiting decision
Date Date not available

LDC for installation of solar panels on the pitched roof of a mobile home.

Type Renewable energy
Status Unknown
Date Date not available

Erection of 1 No 1-bedroom self build house with associated parking & private outdoor amenity space. This application is in CIL Zone 4 and i...

Type New housing
Status Unknown
Date Date not available

Single storey rear infill extension, removal of front porch and alterations to fenestration.

Type House extension
Status Unknown
Date Date not available

Reserved matters for 288 dwellings, SUDS, play space, landscaping, parking and roads.

Type New housing
Status Unknown
Date Date not available

Single-storey rear extension (affects Walberton Village Conservation Area).

Type House extension
Status Unknown
Date Date not available

Single storey front extension, removal of chimney, and alterations to fenestration.

Type House extension
Status Unknown
Date Date not available

Replacement of muddy grass surface with fully permeable gravel, retention of natural drainage (no membranes or grid systems used), installat...

Type Listed building
Status Unknown
Date Date not available

Extension of factory. This application is in CIL Zone 4 (Zero Rated) as other development.

Type Industrial
Status Unknown
Date Date not available

Single storey rear extension following removal of detached garage, erection of porch and amendments to fenestration.

Type House extension
Status Unknown
Date Date not available

Extension at rear of property, loft conversion and various changes to fenestration (This application may affect the character and appearance...

Type House extension
Status Unknown
Date Date not available

Reference P/2026/0067 Application type Hysbysiad ymlaen llaw: Amaethyddiaeth / coedwigaeth / Prior notification: Agricultural/Forestry Site ...

Type n/a
Status Unknown
Date Date not available
Plan thumbnail

Erection of sustainable self build dwelling with associated parking, landscaping and biodiversity enhancements

Type New housing
Status Awaiting decision
Date Date not available
Plan thumbnail

Erection of a self-build dwelling and detached garage following demolition of an agricultural building utilising the Class Q fallback positi...

Type New housing
Status Awaiting decision
Date Date not available
Plan thumbnail

Erection of five dwellings following demolition of agricultural buildings (Class Q fallback).

Type New housing
Status Awaiting decision
Date Date not available
Plan thumbnail

Create opening to connect longhouse section into annex to return property to one dwelling; erection of carport with solar panels on south fa...

Type House extension
Status Awaiting decision
Date Date not available
Plan thumbnail

Erect mixed-use building with three commercial units and eight residential units, plus access and landscaping.

Type New housing
Status Awaiting decision
Date Date not available

Erection of a dwelling with associated landscaping to replace existing temporary accommodation

Type New housing
Status Awaiting decision
Date Date not available

Erection of temporary rural workers’ dwelling and access track from existing farmyard (part-retrospective)

Type Agricultural
Status Teignbridge
Date Date not available

 Extension to dwelling approved by application 0281/24 (change of use of barn to dwelling)

Type House extension
Status South Hams
Date Date not available

Construction of a single storey rear extension, conversion of garage to habitable floor space and new porch entrance

Type House extension
Status Teignbridge
Date Date not available

Installation of velux roof windows into existing roof and the infill of open fronts to both of the outbuildings with glazed doors and screen...

Type Change of use
Status Teignbridge
Date Date not available

Demolition of conservatory and construction of single storey extension to rear elevation of dwelling

Type House extension
Status West Devon
Date Date not available

Outline planning permission (with all matters reserved apart from access) for the phased development of circa 75 dwellings, highway improvem...

Type New housing
Status South Hams
Date Date not available

Rebuilding of shippon and stable north east elevation; repair and rebuilding of pigsty range; glass link building between pigsty range and h...

Type House extension
Status West Devon
Date Date not available

Rebuilding of shippon and stable north east elevation; repair and rebuilding of pigsty range; glass link building between pigsty range and h...

Type House extension
Status West Devon
Date Date not available

Use of a dwelling (C3a) as a children's home for up to three children (C2), with a manager and three carers, two of whom will sleep overnigh...

Type Change of use
Status Pending Consideration
Date Date not available
Plan thumbnail

Single storey extension to public house to form kiosks, WCs and ancillary back-of-house and creation of managed external beer garden with fi...

Type Commercial
Status Pending Decision
Date Date not available
Plan thumbnail

Construction of single storey rear extension of the following dimensions: Depth of proposed extension from rear wall of original dwellinghou...

Type House extension
Status Unknown
Date Date not available

Non-Material Amendment- Amendment to the roof form and resolution of an error rectifying the illustration of missing windows on the existing...

Type n/a
Status Unknown
Date Date not available

Discharge of Condition 3.(Biodiversity Enhancement Details). for planning ref 2025/00296/FUL - Proposed removal of agricultural tie from the...

Type n/a
Status Unknown
Date Date not available

Discharge of Conditions 3.(further details of windows and doors etc) 5.(details of underpinning ) 8.(scheme of landscaping) for planning ref...

Type n/a
Status Unknown
Date Date not available

Reinstate a pedestrian gate within the existing hedge line and opening from the front garden of the property onto Twemlow Lane.

Type Other
Status Dane Valley
Date Date not available

Advertisement consent for updating of existing Bentley site signage to the new 'wings' logo.

Type Advertisement
Status Crewe St Barnabas
Date Date not available

The project involves the construction of a new external garage and storage facility designed to enhance the property's functionality and aes...

Type Other
Status Wistaston
Date Date not available

Resubmission of previously application 21/2901M - new rear extension with internal changes to existing house.

Type House extension
Status Mobberley
Date Date not available

Demolition of the existing single storey rear conservatory and erection of a single storey rear extension

Type House extension
Status Poynton East and Pott Shrigley
Date Date not available

Installation of 2.no 22kwh ev chargers to serve existing parking area.

Type Infrastructure
Status Macclesfield Central
Date Date not available

Demolish existing single-story outbuilding and erect new single-storey extension connected to the side elevation of house.

Type House extension
Status Gawsworth
Date Date not available

Conversion of barn to a 3 bedroom dwellinghouse. Two storey rear extension and dormer window to rear elevation.

Type Change of use
Status Prestbury
Date Date not available

Removal of existing ground floor conservatory to allow for a two storey rear extension to the property to provide a new modern ground floor ...

Type House extension
Status Odd Rode
Date Date not available

Conversion of basement/cellar into habitable living space, widening of existing window opening and alterations to the current light well to ...

Type House extension
Status Bollington
Date Date not available

Single story extension to existing sports centre to create new gym space.

Type Commercial
Status Bunbury
Date Date not available

I am applying for a permeable driveway off the existing road, onto my land.

Type Other
Status Wilmslow West and Chorley
Date Date not available

Change of use from a household garage to a dog grooming business. Will need to allow water/ waste water exit from garage and insulate curren...

Type Change of use
Status Shavington
Date Date not available

Retrospective application for the demolition of outbuilding G

Type Demolition
Status Poynton West and Adlington
Date Date not available

Single storey rear extension, dormer extension and detached garage.

Type House extension
Status Congleton West
Date Date not available

Prior Approval for change of use from a commercial premises to a single dwelling

Type Change of use
Status Macclesfield Central
Date Date not available

Erection of a flat roof rear dormer and front dormer, conversion of roof space to habitable use, with alterations to rear fenestration inclu...

Type House extension
Status Unknown
Date Date not available

Change of Use of ground floor to private hire booking office

Type Change of use
Status Current
Date Date not available

Conversion of existing vehicle workshop to a single dwelling, including demolition of later 1970s addition and construction of a two-storey ...

Type n/a
Status Unknown
Date Date not available

Retrospective change of use of first and second floors to one self contained dwelling and installation of bike store

Type Change of use
Status Current
Date Date not available

Change of use from Funeral Directors to self contained dwelling and hair salon use to ground floor with alterations including single storey ...

Type Change of use
Status Current
Date Date not available

Demolition of an existing detached garage to the rear of the property, and the construction of a proposed annexe in it's place.

Type Demolition
Status Unknown
Date Date not available

Single-storey rear extension and first-floor rear extension, with associated internal alterations, rooflights, and external works.

Type House extension
Status Unknown
Date Date not available

Change of use from C3 residential dwelling to C2 Childrens Residential Care Home

Type Change of use
Status Unknown
Date Date not available

Single storey rear extension, external rendering, replacement of pitched roof with flat roof and raising of existing flat roof, new storage ...

Type Other
Status Teignbridge
Date Date not available

Construction of a raised platform to create a level parking/garden area and the installation of oak front gates (part-retrospective)

Type Other
Status South Hams
Date Date not available

Retention of timber open-fronted agricultural building (9.6m x 4.5m x 3.2m) within farm yard; relocation of gated access from yard to adjace...

Type Agricultural
Status West Devon
Date Date not available

Formation of access track and associated works to serve residential property known as 'Shuna' and adjacent agricultural land

Type Infrastructure
Status South Hams
Date Date not available

Change of use from ex-South West Water yard to B8 storage use and erection of three buildings

Type Change of use
Status South Hams
Date Date not available

Regularise the relocation of mobile grower buildings, feed silos plus erection of an agricultural storage building. Access improvements, cre...

Type Agricultural
Status West Devon
Date Date not available

Construction of three dormers to roof of annexe of 2-bedroom property used as a 'holiday let'

Type House extension
Status West Devon
Date Date not available

Single storey extension and alterations, including rear dormer, with increased ridge height

Type House extension
Status Teignbridge
Date Date not available

Temporary use of land for film-making with associated temporary sets, supporting facilities vehicles, access, parking and storage

Type Change of use
Status Teignbridge
Date Date not available

Temporary use of land for film-making with associated temporary sets, supporting facilities vehicles, temporary works to track for access, p...

Type Change of use
Status West Devon
Date Date not available
Plan thumbnail

Single storey rear extension, conversion of garage to residential accommodation and additional parking space at front of property

Type House extension
Status Unknown
Date Date not available

Double storey side and rear extension, front porch, alterations to fenestration/openings and installation of rear external spiral staircase

Type House extension
Status Unknown
Date Date not available

Demolition of existing structures and removal of mobile home. Construction of new dwelling and associated new access

Type New housing
Status Pending Consideration
Date Date not available

Sub-divide land of birch house. Conversion of existing annexe to form an independent dwellinghouse, with second existing annexe retained for...

Type New housing
Status Pending Consideration
Date Date not available

Outline application for the demolition of existing garage and construction of a detached chalet-style dwelling. Access, scale and layout bei...

Type New housing
Status Pending Consideration
Date Date not available

Change of use and conversion of Boreham House and its ancillary buildings to provide new independent preparatory school and pre-prep facilit...

Type Change of use
Status Pending Consideration
Date Date not available

Change of use and conversion of Boreham House and its ancillary buildings to provide new independent preparatory school and pre-prep facilit...

Type Listed building
Status Pending Consideration
Date Date not available

Change of use from residential (C3) to specialist adult care home (C2).

Type Change of use
Status Application Permitted
Date Date not available

Erection of two detached dwellings with integrated garages, hard and soft landscaping and other associated works

Type New housing
Status Pending Consideration
Date Date not available

Convert the existing internal garage into a habitable room within the dwelling. The removal of the existing garage door and construction of ...

Type n/a
Status Unknown
Date Date not available

Demolition of original dwelling on site and construction of replacement dwelling and associated landscaping and works

Type n/a
Status Unknown
Date Date not available

Variation of Conditions 2, 10, 13, 16, 17 and 20 and Removal of Conditions 18, 19 and 21 of Planning Approval 2019/01031/RG3: Construction o...

Type n/a
Status Unknown
Date Date not available

To construct a steel and glass balustrade area on top of an existing flat roof to change it into a balcony.

Type n/a
Status Unknown
Date Date not available

New two storey front hipped extension and open porch, removal of front enclosed porch, rear chimney and hipped roof, new single storey rear ...

Type n/a
Status Unknown
Date Date not available

Construction, operation and decommissioning of a solar farm, with an installed capacity of up to 35 Mega-Watts (MW), and associated infrastr...

Type n/a
Status Unknown
Date Date not available

Change of use of land for the siting and residential use of 3 touring caravans, the siting of a mobile home, the construction of a track, ha...

Type Change of use
Status South Hams
Date Date not available

Change of use from grazing to equestrian, creation of a round pen with surface, creation of pond, and associated works

Type Change of use
Status West Devon
Date Date not available

Replace existing tile roof with natural slate, replacement windows and apply cladding house exterior

Type Other
Status Teignbridge
Date Date not available

Side and rear extensions, demolition of conservatory, double garage and side buildings, and improved vehicular access

Type House extension
Status South Hams
Date Date not available

Installation of two windows and a pitched roof window, and relocation of the stove and chimney flue

Type Other
Status Teignbridge
Date Date not available

Installation of Air Source Heat Pumps, roof PV panels and replacement windows and frames

Type Renewable energy
Status West Devon
Date Date not available

Alterations to existing workshop, cottage, and dwelling; erection of a garden pavilion; alterations to levels and hard landscaping; and inst...

Type Other
Status West Devon
Date Date not available

Change of ground floor from professional services (Class E) to one residential unit with alterations.

Type n/a
Status Pending Consideration
Date Date not available

Replace existing single glazed wood windows with double glazed wood composite sash style windows to front and double glazed wood composite t...

Type Other
Status Bollington
Date Date not available

New garage to replace old. Same width height and length. Same footprint. Only need to apply as in conservation area. 0% impact as replacing ...

Type House extension
Status Wilmslow Lacey Green
Date Date not available

Replacement of 6nr windows to the front facing elevation of 41 King Street and 5nr windows to the side facing elevation. Replacement of 1nr ...

Type Other
Status Macclesfield Central
Date Date not available

Listed Building Consent for the Change of use from public house (Sui Generis) to House of Multiple Occupation (Use Class C4) on ground floor...

Type Listed building
Status Macclesfield Central
Date Date not available

Change of use from public house (Sui Generis) to House of Multiple Occupation (Use Class C4) on ground floor and residential (Use Class C3) ...

Type Change of use
Status Macclesfield Central
Date Date not available

Conversion of existing out building into two self contained apartments

Type Change of use
Status Crewe Central
Date Date not available

Proposed 2-storey extension to existing semi-detached house.

Type House extension
Status Broken Cross and Upton
Date Date not available

Erection of 10 No Detached dwellinghouses and two storey building consisting of 10No Apartments on Land between 31 & 51 Moss Lane, Styal, Wi...

Type New housing
Status Wilmslow Lacey Green
Date Date not available

Increase in roof height to form additional living space on second floor extension, erection of dormer windows on front roof slope, erection ...

Type House extension
Status Bollington
Date Date not available

Outline application with all matters reserved for division of 13 Daisy Bank into two parts

Type New housing
Status Audlem
Date Date not available

Creation of an additional gated access / exit from Manchester Road to the property.

Type Other
Status Handforth
Date Date not available

Proposed Change of use from Public House to Convenience Store and Shopfront Alterations

Type Change of use
Status Macclesfield Central
Date Date not available

New dwelling. Resubmission following refusal for Non-Discharge of Conditions.

Type New housing
Status Poynton West and Adlington
Date Date not available

Permission in principle for redevelopment of previously developed land - residential development (up to 4 dwellings).

Type New housing
Status Prestbury
Date Date not available

Listed building consent for new external door and internal alterations to building.

Type Listed building
Status Sandbach Town
Date Date not available

Double-storey side extension with a raised roof to facilitate a loft conversion incorporating rear-facing dormers. Single-storey side and re...

Type House extension
Status Mobberley
Date Date not available

Advertisement Consent for the installation of fixed, non-digital printed advertising signs to improve the appearance of the existing wall.

Type Advertisement
Status Macclesfield Hurdsfield
Date Date not available

Replacement of existing rear door and window with a single, consolidated opening on rear elevation.

Type House extension
Status High Legh
Date Date not available

Proposed first floor extension to create 1 new apartment and refurbishment of existing first floor to create 2 apartments.

Type New housing
Status Congleton West
Date Date not available

Application for a change of use of part of the floorspace from Retail to Commercial Business and Service (pet care and treatment facility) (...

Type Change of use
Status Sutton
Date Date not available

Demolition of existing vacant building and proposed replacement building of same footprint - resubmission of lapsed application 21/4553M.

Type Demolition
Status Macclesfield Hurdsfield
Date Date not available

Erection of single storey garage positioned to the front of the existing property.

Type House extension
Status Sandbach Heath and East
Date Date not available

Single storey side and front extensions, loft conversion and construction of detached single garage.

Type House extension
Status Dane Valley
Date Date not available

Change of Use to form ancillary residential accommodation for gym and storage

Type Change of use
Status Mobberley
Date Date not available

Erection of single storey extension to side elevation, replacement roof and raising of the roof height to form loft conversion, installation...

Type House extension
Status Prestbury
Date Date not available

Small extension to front. Proposed dormers to rear. Internal alterations.

Type House extension
Status Wilmslow West and Chorley
Date Date not available

Installation of electric front gates to front of house with supporting gate posts.

Type Other
Status Brereton Rural
Date Date not available

Convert existing two‑storey flat into four flats with new windows and communal entry.

Type Change of use
Status Registered
Date Date not available

Change of use of existing domestic garage to use for dog grooming. Bricking up front of garage and addition of window to match existing hous...

Type Change of use
Status Registered
Date Date not available

Replacement windows to the squash clubhouse and adjacent on‑site residential house.

Type Commercial
Status Registered
Date Date not available

Erection of 1 detached dwelling with associated access, landscaping, parking and means of enclosure

Type New housing
Status Registered
Date Date not available

Erection of seven industrial/warehouse units (Use Classes B2/B8/E(g)ii/iii) incorporating photovoltaics and including engineering works, ret...

Type Industrial
Status Registered
Date Date not available

Demolition of the existing buildings on the site and the erection of a self-build 3-bedroom detached dwellinghouse with an ancillary curtila...

Type New housing
Status Registered
Date Date not available

Construction of a self-build two-storey detached dwellinghouse, detached garage/carport and construction of a vehicular access with associat...

Type New housing
Status Registered
Date Date not available

Change of use from dwelling house (C3) to (C4) 6 bed HMO and loft conversion with rear facing dormer

Type Change of use
Status Registered
Date Date not available

Conversion of garage from storage and utility for main house to ancillary accommodation including bedroom and study including changes to ext...

Type Change of use
Status Registered
Date Date not available

Erection of a three-storey, three-bedroom detached dwelling with associated landscaping and provision of off-street parking

Type New housing
Status Registered
Date Date not available

Outline planning permission for erection of up to 97 dwellings (of which 25% would be affordable homes), together with access and footways, ...

Type New housing
Status Registered
Date Date not available

Redevelopment of site to provide a detached dwelling served by an existing access

Type New housing
Status Registered
Date Date not available

Change of use of agricultural barn to a residential dwelling with associated works

Type Change of use
Status Registered
Date Date not available

Double-storey rear and front extension, internal alterations, installation of solar panels, and reconfiguration of the dwelling

Type House extension
Status Registered
Date Date not available

Reference APP/26/00095 Application type Householder planning permission Site address 5 Luard Court, Havant, PO9 2TN Description Conversion o...

Type House extension
Status Unknown
Date Date not available

Reference APP/26/00093 Application type Householder planning permission Site address 175 London Road, Cowplain, Waterlooville, PO8 8ER Descr...

Type House extension
Status Unknown
Date Date not available

Reference APP/26/00091 Application type Householder planning permission Site address 2 Ashley Close, Havant, PO9 3AP Description Single stor...

Type House extension
Status Unknown
Date Date not available

Reference APP/26/00079 Application type Householder planning permission Site address 3 New Cut, Hayling Island, PO11 0NB Description Extensi...

Type House extension
Status Unknown
Date Date not available

Reference APP/26/00060 Application type Householder planning permission Site address 3 Huntsman Close, Waterlooville, PO8 9GJ Description Pr...

Type House extension
Status Unknown
Date Date not available

Change of use of the existing building and associated facilities from a doctor surgery (Use Class E) to a place of worship (Use Class F) and...

Type Change of use
Status Unknown
Date Date not available

Change of use to B8 storage use and erection of building for B8 storage purposes in association with the applicant’s existing agricultural f...

Type Change of use
Status West Devon
Date Date not available

Alterations to converted barn, used as a single holiday let (approved under application 0338/09), including installation of rooflights, new ...

Type Change of use
Status West Devon
Date Date not available

Re-siting of existing driveway and entrance, replacement of single glazing to double glazing throughout main house, replacement guttering an...

Type Other
Status Teignbridge
Date Date not available

Retention of garden room on the site of former pole barn, to be used for ancillary purposes incidental to Higher Creason Farmhouse and adjac...

Type Other
Status West Devon
Date Date not available

Retention of existing structure used as welfare facilities in conjunction with tree works business

Type Commercial
Status Teignbridge
Date Date not available

Change of use of redundant barn to two self catering holiday cottages, demolition of lean-to structure and reconstruction, alterations to bu...

Type Change of use
Status Teignbridge
Date Date not available

Change of use of redundant barn to two self catering holiday cottages, demolition of lean-to structure and reconstruction, alterations to bu...

Type Change of use
Status Teignbridge
Date Date not available

Replace rear conservatory with single storey extension and patio/decking; replace flat with pitch roof plus skylight

Type House extension
Status West Devon
Date Date not available

Erection of an 80no. bedroom residential care home with associated access, parking and landscaping

Type n/a
Status Awaiting decision
Date Date not available

Change of use from Beauty Parlour (Class E) to fast food takeaway restaurant (Sui Generis) at ground floor and 2.no studio residential units...

Type n/a
Status Awaiting decision
Date Date not available

Single storey flat roof rear extension with rooflight Maximum length from original rear wall: 4.95m Maximum height: 3.10m (to eaves: 3m)

Type n/a
Status Awaiting decision
Date Date not available

Installation of black, 450mm railings on existing planter walls. This application affects the setting of a listed building, affects the char...

Type Listed building
Status Unknown
Date Date not available

Extensions to the ground, first and second floors. Removal of existing roof and replacement with a flat roof. Changes to existing fenestrati...

Type House extension
Status Unknown
Date Date not available

Ground floor rear bay window extension. (This application may affect the character and appearance of the Arundel Conservation Area).

Type House extension
Status Unknown
Date Date not available

Alterations to boundary treatments and internal alterations. (This application may affect the character and appearance of the Church Lane Co...

Type Other
Status Unknown
Date Date not available
Plan thumbnail

Erection of 34 residential dwellings with access, parking, landscaping and infrastructure.

Type New housing
Status Awaiting decision
Date Date not available

Change of use of garage to single dwelling together with increased roof height, 2 dormer windows to North East elevation, rooflight to South...

Type Change of use
Status Awaiting decision
Date Date not available

Outline application for up to 127 dwellings, landscaping, open space, SuDS, and associated works with access from Herne Bay Road and retaine...

Type New housing
Status Awaiting decision
Date Date not available
Plan thumbnail

Prior approval for a change of use from light industrial use to residential dwelling.

Type Change of use
Status Awaiting decision
Date Date not available
Plan thumbnail

Construction of a two storey side extension towards Rothsay Road and replacement of single storey accommodation at the rear, retaining exist...

Type House extension
Status Unknown
Date Date not available

Change of use from an existing House in Multiple Occupation (HMO, Use Class C4) to supported housing (Use Class C3(b) (Application site is a...

Type Change of use
Status Unknown
Date Date not available
Plan thumbnail

Demolition of the existing building and erection of part three, part four-storey building comprising of a House in Multiple Occupation (Sui ...

Type Demolition
Status Unknown
Date Date not available

Demolition of existing buildings and redevelopment of site to provide a mixed-use building comprising ground floor flexible Class E use and ...

Type n/a
Status Registered
Date Date not available

Installation of 9 solar panels pitched at 12 degrees and rising up 24cms from the garage flat roof. All ancillary equipment will be located ...

Type n/a
Status Registered
Date Date not available

33 Queens Road, Accrington, Lancashire, BB5 6AR | Householder | Householder: Erection of single storey rear extension (Retrospective) | Appl...

Type House extension
Status Unknown
Date Date not available
Plan thumbnail

Land at 169 New Lane, Oswaldtwistle, Lancashire, BB5 3QN | Permission in Principle (For Developers) | Permission in principle: Erection of o...

Type New housing
Status Unknown
Date Date not available
Plan thumbnail

26 Rutland Avenue, Oswaldtwistle, Lancashire, BB1 2DF | Householder | Householder: Erection of two storey side extension with single storey ...

Type House extension
Status Unknown
Date Date not available

Installation of 41no. Air Source Heat Pumps on the external faces of a block of flats.

Type n/a
Status Registered
Date Date not available

Mansard roof extension for 1 No 2-bed apartment with construction of an external staircase and window and door amendments to rear elevations...

Type House extension
Status Unknown
Date Date not available

Loft conversion including roof extensions, front dormer and rooflights, and garage conversion with alterations to fenestration.

Type House extension
Status Unknown
Date Date not available

Construction of single storey food technology teaching block consisting of two practical classrooms, prep room, office and toilets. As amend...

Type n/a
Status Registered
Date Date not available

Construction of two new single-storey dwellings (semi-detached) built in a bungalow structure within the existing plot at 4 Croydon Lane, wh...

Type n/a
Status Registered
Date Date not available

Copper Beech in front corner of garden (Corner of Evesham Road with Beaufort Close) - Reduce lateral branches in lower crown system up to 8m...

Type n/a
Status Registered
Date Date not available

The demolition of units 1 and 2 and construction of a single two-storey data centre accommodating four data halls and office block with asso...

Type n/a
Status Registered
Date Date not available

Retention of change of use of land to use as a residential caravan site for one Gypsy/Traveller family with two caravans, including no more ...

Type Change of use
Status Pending Consideration
Date Date not available

Application for the erection of 18 dwellings, with associated gardens and car parking on part of the site previously shown as Public Open Sp...

Type New housing
Status Pending Consideration
Date Date not available
Plan thumbnail

Outline application with all matters reserved for the erection of a replacement detached, self build dwelling with a detached garage.

Type n/a
Status Under consideration
Date Date not available
Plan thumbnail

Home House, 10 Church Street, Isleworth, TW7 6DA | PA: Commercial/Business/Service to Dwellinghouses | Prior Approval for the change of use ...

Type Change of use
Status Unknown
Date Date not available

158 Staines Road, Feltham, TW14 9ED | PF-Full Applications | Erection of a two storey side extension on both sides of the house, part two st...

Type House extension
Status Unknown
Date Date not available

45 Colonial Road, Feltham, TW14 8AA | PF-Full Applications | Retrospective permission for the conversion of the existing single family house...

Type Change of use
Status Unknown
Date Date not available

1 Gould Road, Feltham, TW14 8AB | PF-Full Applications | Change of use of the existing family house (C3) to a House in Multiple Occupation (...

Type Change of use
Status Unknown
Date Date not available

Wallis House, Great West Road, Brentford, TW8 0HE | PF-Full Applications | Installation of a lead capping system to the existing coping ston...

Type Other
Status Unknown
Date Date not available

Erection of 33 dwellings and associated works, including the formation of access roads, landscaping and associated infrastructure.

Type New housing
Status Pending Consideration
Date Date not available

Retrospective application for resurfacing of the existing driveway, removal of front porch (uPVC, not part of original house), removal of a ...

Type Other
Status Application Permitted
Date Date not available

Outline planning application, with all matters reserved except for vehicular access to the site from A53 Whitmore Road, for the construction...

Type New housing
Status Pending Consideration
Date Date not available

Outline Planning Application for 1no Self Built Dwelling and Access (All Other Matters Reserved). Located on an infill plot off Sandy Lane, ...

Type New housing
Status Pending Consideration
Date Date not available
Plan thumbnail

Erection of a three-storey rear extension to form an addition 3no. self contained 1 bedroom flats together with a catering/storage unit at g...

Type New housing
Status Awaiting decision
Date Date not available

Part-retrospective three-storey development of nine apartments with parking, cycle/bin storage and landscaping.

Type New housing
Status Awaiting decision
Date Date not available

Convert first floor shop storage and add new floors to form residential flats; rear dormer and extraction flue.

Type Change of use
Status Awaiting decision
Date Date not available
Plan thumbnail

Erection of 5no. 3-storey four-bedroom terraced houses together with associated car parking.

Type New housing
Status Awaiting decision
Date Date not available
Plan thumbnail

Enlargement of dwellinghouse consisting of a hip-to-gable loft conversion with a rear-facing dormer.

Type House extension
Status Awaiting decision
Date Date not available
Plan thumbnail

Convert single dwelling to six 1-bed apartments with 2.5-storey rear extension, parking and landscaping.

Type Change of use
Status Awaiting decision
Date Date not available
Plan thumbnail

To provide new stepped and lift access to the front of William Kay House to improve accessibility. Railings to basement to mitigate fall ris...

Type Other
Status Awaiting decision
Date Date not available
Plan thumbnail

Erection of a two storey side extension to dwelling and construction of a carport, garden shed, outdoor swimming pool and associated hard la...

Type n/a
Status Under consideration
Date Date not available
Plan thumbnail

Erection of 15 private and 15 affordable dwellings together with the provision of a new access onto the B4449, footway and cycle connections...

Type n/a
Status Under consideration
Date Date not available
Plan thumbnail

Erection of carport to side of dwelling, and erection of first floor extension over carport. Erection of front porch. Demolition and rebuild...

Type n/a
Status Awaiting decision
Date Date not available
Plan thumbnail

Refurbishment and part demolition of existing premises with new build extension, to form office accommodation and 1 bedroom apartment.

Type n/a
Status Under consideration
Date Date not available
Plan thumbnail

Internal and external alterations to refurbish and part demolish existing premises with new build extension, to form office accommodation an...

Type n/a
Status Under consideration
Date Date not available
Plan thumbnail

Change of use of first floor from commercial unit (use Class B8) to House in Multiple Occupation (use Class C4) for up to 5 occupants

Type n/a
Status Awaiting decision
Date Date not available
Plan thumbnail

Change of use from dwelling house (use Class C3) to House in Multiple Occupation (use Class C4) for up to 4 no. occupants

Type n/a
Status Awaiting decision
Date Date not available

Erection of single storey flat roof extension extending 7.95 metres beyond the rear wall of the original house, with a height to the eaves o...

Type n/a
Status Awaiting decision
Date Date not available

Erection of single storey extension extending 4.50 metres beyond the rear wall of the original house, with a height to the eaves of 2.80 met...

Type n/a
Status Awaiting decision
Date Date not available

Construction of a single storey rear extension and associated raised decking area, and the addition of a new front entrance porch to the exi...

Type n/a
Status Unknown
Date Date not available

Non Material Amendment - to alter the position of Plots 55 & 56 and the associated parking bay, position of roof lights on Plots 5, 6, 7, 53...

Type n/a
Status Unknown
Date Date not available

Single storey ground floor extension, attic conversion with flat roof dormer and part conversion of garage into gym. Removal of existing con...

Type n/a
Status Unknown
Date Date not available

Change of use of ground floor from use class A2 to A3 use - remodelling and extension of existing ground floor single storey extension. Crea...

Type n/a
Status Unknown
Date Date not available

Discharge of Condition 3 (Details/Additional Details) for Planning Ref 2024/00692/FUL: Demolition of internal walls & Partitions. Removal of...

Type n/a
Status Unknown
Date Date not available
Plan thumbnail

Prior Approval for enlargement of a dwellinghouse by construction of an additional storey, with proposed ridge height of 8.08m, under Class ...

Type House extension
Status Awaiting decision
Date Date not available
Plan thumbnail

Erection of 6 dwellings with associated access, parking, and landscaping

Type n/a
Status Awaiting decision
Date Date not available

Conditions 13 (noise insulation measures - dwellings), 16 (remediation strategy) and 30 (cycle parking) of 18/00017/OUTM

Type n/a
Status Awaiting decision
Date Date not available
Plan thumbnail

Change of use of public house (sui generis) to a cafe (use class E) at ground floor level and 1no. apartment (use class C3) to first floor l...

Type n/a
Status Awaiting decision
Date Date not available

Change of use from dwelling (Use Class C3) to a childrens day nursery (Use Class E) with associated external alterations

Type n/a
Status Awaiting decision
Date Date not available
Plan thumbnail

Change of use from 1no dwelling (Use Class C3) to a childrens day nursery (Use Class E) including forest school learning area with associate...

Type n/a
Status Awaiting decision
Date Date not available

Outline planning permission for the erection of two dwellings (with all matters reserved apart from access), creation of public amenity spac...

Type New housing
Status West Devon
Date Date not available

Refurbishment of the cottage including replacement windows, external doors, porch, rainwater goods and chimney flue. New underfloor heating ...

Type Other
Status Teignbridge
Date Date not available

Refurbishment of the cottage including replacement windows, external doors, porch, rainwater goods and chimney flue. New underfloor heating ...

Type Other
Status Teignbridge
Date Date not available

Change of use of former stable block to additional hotel accommodation (Class C1) together with associated internal and external alterations...

Type Change of use
Status Teignbridge
Date Date not available

Eco-retrofit, external insulation and timber cladding, rear roof dormer, porches to front and rear doors, timber deck and covered walkway wi...

Type House extension
Status Teignbridge
Date Date not available

To demolish the existing annex building and to replace it with a new "Granny Annex", an enlarged utility area, an additional bedroom, and th...

Type House extension
Status South Hams
Date Date not available

Enlargement of five existing windows, addition of one new first floor window and addition of a flat roof extension

Type House extension
Status West Devon
Date Date not available

Retention of field shelter, tape fencing, use of land and building in connection with horse training including hard surface area for horse w...

Type Agricultural
Status Teignbridge
Date Date not available

Reference 26/00540/HPA Received Date 11/2/2026 Application type Householder planning permission Site address 44 GREENWAYS, BECKENHAM, BR3 3N...

Type House extension
Status Unknown
Date Date not available

Reference 26/00505/HPA Received Date 10/2/2026 Application type Householder planning permission Site address 7 LESCOT PLACE, BROMLEY, BR2 9T...

Type House extension
Status Unknown
Date Date not available

Reference 26/00500/HPA Received Date 09/2/2026 Application type Householder planning permission Site address 421 SOUTHBOROUGH LANE, BROMLEY,...

Type House extension
Status Unknown
Date Date not available

Reference 26/00471/HPA Received Date 06/2/2026 Application type Householder planning permission Site address 17 CLEMENT ROAD, BECKENHAM, BR3...

Type House extension
Status Unknown
Date Date not available

Reference 26/00173/HPA Received Date 19/1/2026 Application type Householder planning permission Site address 5 ADDINGTON ROAD, WEST WICKHAM,...

Type House extension
Status Unknown
Date Date not available

Reference 26/00170/HPA Received Date 19/1/2026 Application type Householder planning permission Site address 80 SHIRLEY CRESCENT, BECKENHAM,...

Type House extension
Status Unknown
Date Date not available

Reference 26/00544/HPA Received Date 11/2/2026 Application type Householder planning permission Site address 12 EVERARD AVENUE, HAYES, BROML...

Type House extension
Status Unknown
Date Date not available

Reference 26/00520/HPA Received Date 10/2/2026 Application type Householder planning permission Site address 1 ORLESTONE GARDENS, ORPINGTON,...

Type House extension
Status Unknown
Date Date not available

Reference 26/00494/HPA Received Date 09/2/2026 Application type Householder planning permission Site address 8 OAKWOOD ROAD, ORPINGTON, BR6 ...

Type House extension
Status Unknown
Date Date not available

Reference 26/00362/HPA Received Date 02/2/2026 Application type Householder planning permission Site address 47 DOWNS HILL, BECKENHAM, BR3 5...

Type Other
Status Unknown
Date Date not available

Reference 26/00333/HPA Received Date 29/1/2026 Application type Householder planning permission Site address 1A DAWSON AVENUE, ORPINGTON, BR...

Type House extension
Status Unknown
Date Date not available

Reference 26/00307/FPA Received Date 27/1/2026 Application type Full planning permission Site address ST CHRISTOPHERS SCHOOL, 49 BROMLEY ROA...

Type Other
Status Unknown
Date Date not available

Reference 26/00169/HPA Received Date 19/1/2026 Application type Householder planning permission Site address 80 SHIRLEY CRESCENT, BECKENHAM,...

Type House extension
Status Unknown
Date Date not available

Reference 26/00061/FPA Received Date 08/1/2026 Application type Full planning permission Site address PHASE 4 UNIT 2, NEW MILL ROAD, ORPINGT...

Type Change of use
Status Unknown
Date Date not available

Ground floor to remain as current usage (Pharmacy). Change of use of first and second floors from storage to residential flats

Type n/a
Status Unknown
Date Date not available

Two storey 5-bedroom detached tied agricultural dwelling house with integral double garage and enclosed garden

Type n/a
Status Unknown
Date Date not available

Part single, part two storey side/rear extension and conversion of garage space to habitable use

Type House extension
Status Unknown
Date Date not available

Single storey rear extension with an overall depth of 4m, a maximum height of 3m, and an eaves height of 3m. (PRIOR APPROVAL)

Type House extension
Status Unknown
Date Date not available

Installation of new boundary walls with a sliding electric front gate and pocket door.

Type Other
Status Unknown
Date Date not available

Part single, part two storey front, sides and rear extensions and alterations to fenestration following demolition of existing garage

Type House extension
Status Unknown
Date Date not available
Plan thumbnail

Prior approval for change of use of part of ground floor, first floor and second floors from commercial to residential use to create 4 resid...

Type Change of use
Status Awaiting decision
Date Date not available
Plan thumbnail

Proposed alterations to fenestrations at ground and first floor levels of existing restaurant; replacement cladding; installation of new and...

Type Commercial
Status Awaiting decision
Date Date not available

Proposed demolition of redundant garage and replacement with 4 bedroom detached dwelling and detached garage, including retention of existin...

Type n/a
Status Unknown
Date Date not available

Demolition of existing conservatory and new single storey rear extension with first floor terrace from master bedroom. Creation of new porch...

Type n/a
Status Unknown
Date Date not available

Discharge of Conditions 3.(Materials Details) 4.(Windows and Doors) for planning ref 2024/00905/FUL - Proposed demolition of existing proper...

Type n/a
Status Unknown
Date Date not available

To demolish conservatory to rear and to build a single storey extension with flat roof in its place along the back of house. To extend groun...

Type n/a
Status Unknown
Date Date not available
Plan thumbnail

Erection of two-storey detached dwelling together with attached double garage with roof terrace above.

Type New housing
Status Awaiting decision
Date Date not available
Plan thumbnail

Outline application for 12 detached dwellings including access, landscaping and layout.

Type New housing
Status Awaiting decision
Date Date not available

Change of use of Augustine House (Use class F1(a)) to: a mixed education (Class F1(a)) and office (Class E(g)(i)).

Type Change of use
Status Awaiting decision
Date Date not available

Installation of a new electricity pole for the purpose of supplying a single dwelling, ref 8110220327.

Type Infrastructure
Status Awaiting decision
Date Date not available

Single storey rear extension, skylights and new window to side elevation

Type House extension
Status Unknown
Date Date not available

Outline planning application with some matters reserved for demolition of existing scaffolding storage and erection of a new warehouse build...

Type Industrial
Status Unknown
Date Date not available

Renovation of existing dwelling to include single-storey side extension and detached double garage.

Type House extension
Status Bunbury
Date Date not available

Erection of glass pergola in rear garden next to existing garage wall.

Type House extension
Status Wybunbury
Date Date not available

Partially retrospective erection of single storey rear extension and conversion of dwelling to 6 bed HMO.

Type Change of use
Status Handforth
Date Date not available

Prior change of use for the conversion of the single storey rear premises to a one bedroom dwelling (as illustrated on drawings APP 660.10 &...

Type Change of use
Status Macclesfield Central
Date Date not available

Removal of existing deteriorated single lane net facility located along the eastern boundary of the cricket ground, adjacent to Church Lane ...

Type Other
Status Wistaston
Date Date not available

Proposed Hard standing, Installation of Sewage Treatment Plant and Caravan to serve as Welfare Unit associate with the New Caravan Park for ...

Type Other
Status Wrenbury
Date Date not available

Change of Use from office to mixed use B1 offices, C1 overnight respite, D1 clinic and health centre and consulting rooms

Type Change of use
Status Mobberley
Date Date not available

Removal of part of the front wall, erection of dropped kerb to create a driveway to front of dwelling, rebuild remaining wall and create a c...

Type Other
Status Alsager
Date Date not available

Erection of a traditional oak-framed two car garage ancillary to Capstan House on previously developed woodland.

Type Other
Status Poynton East and Pott Shrigley
Date Date not available

Retrospective planning approval for equine/agricultural welfare buildings and facilities

Type Agricultural
Status Poynton West and Adlington
Date Date not available

Permission in Principle for Construction of up to 5 no. dwellings

Type New housing
Status Brereton Rural
Date Date not available

Retrospective application for external alterations comprising of; full roof repair and reinstatement of stone slates and the replacement of ...

Type Other
Status Bollington
Date Date not available

Demolition of existing dwelling house. Erection of replacement 2 storey dwelling house with associated landscape works.

Type Demolition
Status Prestbury
Date Date not available

Proposed single storey side and rear extension and front elevation canopy addition

Type House extension
Status Poynton East and Pott Shrigley
Date Date not available

Retrospective planning application for a replacement orangery extension and all associated works.

Type House extension
Status Bunbury
Date Date not available

Proposed demolition of existing detached garage, erection of single storey extension to rear / side and new first floor accommodation inc. a...

Type House extension
Status Sandbach Town
Date Date not available

Installation of a floor mounted electric vehicle charger.

Type Commercial
Status Macclesfield Central
Date Date not available

Temporary use of land for film-making with associated temporary sets, supporting facilities vehicles, access, parking and storage

Type Change of use
Status Teignbridge
Date Date not available

Demolition of the existing office building (Class E) and construction of a ground plus eightstorey building (9 storeys in total at a height ...

Type n/a
Status Registered
Date Date not available

Single storey rear extension and associated work ie air source heat pump, replacement double glazing and new side door

Type n/a
Status Registered
Date Date not available

Proposal is to repair the fractured the stone lintel in the south eastern corner of the basement. The works will involve installing two stai...

Type n/a
Status Registered
Date Date not available

Proposal comprises the installation of new air-conditioning to serve the ground-floor commercial unit, including internal ventilation altera...

Type n/a
Status Registered
Date Date not available

Proposed rooflights, internal alterations, floor plan redesign and other associated works

Type n/a
Status Registered
Date Date not available

Part retrospective part proposed change of use of lower ground floor, first floor, and second floor from Class E to HMO; with associated int...

Type n/a
Status Registered
Date Date not available

Retention of works carried out for internal alterations to Listed Building.

Type n/a
Status Registered
Date Date not available

Two storey roof extension to existing terrace property to a maximum height of 3.5m above existing ridge level of adjacent buildings.

Type n/a
Status Registered
Date Date not available

Proposed works to include the replacement of the existing roof-mounted and extract air handling units that serve the communal swimming pool ...

Type n/a
Status Registered
Date Date not available

Proposed works to include the replacement of the existing roof-mounted and extract air handling units that serve the communal swimming pool ...

Type n/a
Status Registered
Date Date not available

Demolition of existing dwelling and erection of a replacement dwelling, including formation of a secondary vehicle access with dropped kerb ...

Type n/a
Status Registered
Date Date not available

Erection of a two storey extension to side, rebuild of front extension/porch, demolition and rebuild of rear single storey extension to be r...

Type n/a
Status Registered
Date Date not available

Three external air source heat pump units mounted on the flat roof of the single storey garage/extension (retrospective)

Type n/a
Status Registered
Date Date not available

Proposed change of use of first floor from maisonette (Class C3) to ancillary storage and office space for existing restaurant premises (Cla...

Type n/a
Status Registered
Date Date not available

Subdivision of the plot and single storey extensions to facilitate the change of use from Class E(e) to 1 x 8-bedroom House in Multiple Occu...

Type n/a
Status Pending Consideration
Date Date not available

Construction of single storey rear extension of the following dimensions: Depth of proposed extension from rear wall of original dwellinghou...

Type House extension
Status Pending Consideration
Date Date not available
Plan thumbnail

Change of Use from C4 (Houses in Multiple Occupation) to more than six residents (Sui Generis)

Type n/a
Status Registered
Date Date not available
Plan thumbnail

Full Planning Permission for alteration works to the existing 2 self-contained flats, including the installation of two new roof lights to t...

Type n/a
Status Registered
Date Date not available
Plan thumbnail

Temporary change of use from drinking establishment (Sui Generis use class) to LGBTQ+ community space/ office use (F2/ E(g)(i) use class); p...

Type n/a
Status Registered
Date Date not available
Plan thumbnail

Proposed change of use from a single dwelling house (C3) into a small (HMO) for up to five people. Associated internal alterations.

Type n/a
Status Registered
Date Date not available

Works to T10 - Sambucus Nigra Tree - fell tree just to below the fruiting bodies on trunk to allow tree to regrow in the communal area.

Type n/a
Status Registered
Date Date not available

Proposed single storey side infill extension with roof lights

Type n/a
Status Registered
Date Date not available

The proposed telecommunications base station comprising the installation of a flagpole supporting 3no antennas on existing steelwork frame, ...

Type n/a
Status Registered
Date Date not available

The proposed telecommunications base station comprising the installation of a flagpole supporting 3no antennas on existing steelwork frame, ...

Type n/a
Status Registered
Date Date not available

Observation Request by London Borough of Southwark for Demolition of the existing buildings and redevelopment of the site to provide a 19-st...

Type n/a
Status Registered
Date Date not available

External alterations, including installation of new entrance and escape doors, steps, a ramp and vents.

Type n/a
Status Registered
Date Date not available

Retrospective installation of covered seating huts in garden

Type n/a
Status Registered
Date Date not available

External alterations including two new roof lights to the rear elevation and alteration of the side window of the rear extension in addition...

Type n/a
Status Registered
Date Date not available

Lower ground floor part width rear extension in matching facing brickwork with flat walk on tiled roof and external metal staircase, change ...

Type n/a
Status Registered
Date Date not available
Plan thumbnail

CHANGE OF USE FROM 3NO. DWELLINGS & 2 SELF CONTAINED APARTMENTS (USE CLASS C3) TO AN ADULT CARE FACILITY FOR A MAXIMUM OF 12NO. PERSONS (USE...

Type Change of use
Status Awaiting decision
Date Date not available

RESIDENTIAL DEVELOPMENT COMPRISING THE ERECTION OF UP TO 204 DWELLINGS WITH ASSOCIATED PARKING, CONSTRUCTION OF VEHICULAR AND PEDESTRIAN ACC...

Type New housing
Status Awaiting decision
Date Date not available

CHANGE OF USE FROM RESIDENTIAL GROUND FLOOR SITTING ROOM (USE CLASS C3) TO A HEARING TESTING CLINIC (USE CLASS E(Cii)) WITH ALTERATIONS TO F...

Type Change of use
Status Awaiting decision
Date Date not available
Plan thumbnail

RESIDENTIAL DEVELOPMENT COMPRISING 79 NO. NEW DWELLINGS TOGETHER WITH THE CONSTRUCTION OF ASSOCIATED VEHICULAR AND PEDESTRIAN ACCESS, SUB-ST...

Type New housing
Status Awaiting decision
Date Date not available
Plan thumbnail

MATERIAL CHANGE OF USE OF PROPERTY FROM C3 (DWELLING HOUSE) TO C2 (PROVISION OF RESIDENTIAL ACCOMMODATION AND CARE TO PEOPLE IN NEED OF CARE...

Type Change of use
Status Awaiting decision
Date Date not available

ERECTION OF 4NO 4 STOREY BLOCKS OF RESIDENTIAL AFFORDABLE APARTMENTS TO CREATE 90 UNITS IN TOTAL, 45X 1BEDROOM APARTMENTS & 45X 2BEDROOM APA...

Type New housing
Status Awaiting decision
Date Date not available

Construction of single storey rear extension of the following dimensions: Depth of proposed extension from rear wall of original dwellinghou...

Type House extension
Status Pending Consideration
Date Date not available
Plan thumbnail

Construction of single storey rear extension of the following dimensions: Depth of proposed extension from rear wall of original dwellinghou...

Type House extension
Status Pending Decision
Date Date not available
Plan thumbnail

Demolition of existing sun room. Construction of 2No new dormers and porch extension to north-western elevation. Addition of rendered finish...

Type House extension
Status Pending Decision
Date Date not available
Plan thumbnail

Construction of single storey rear extension of the following dimensions: Depth of proposed extension from rear wall of original dwellinghou...

Type House extension
Status Unknown
Date Date not available
Plan thumbnail

Construction of single storey rear extension of the following dimensions: Depth of proposed extension from rear wall of original dwelling ho...

Type House extension
Status Pending Decision
Date Date not available
Plan thumbnail

Application for a Lawful Development Certificate regarding the use of a house (Class C3a) as a children's home for up to two children, with ...

Type Change of use
Status Pending Consideration
Date Date not available

Permission in Principle for the construction of up to 2 no. dwellings.

Type New housing
Status Alderley Edge
Date Date not available

Demolition of existing dwelling and outbuildings, and erection of two new dwellings including access and associated works.

Type New housing
Status Wilmslow East
Date Date not available

Demolition of existing dwelling at 33 Adlington Road and creation of two new houses.

Type New housing
Status Wilmslow Dean Row
Date Date not available

Demolition of single storey extension and garage, construction of two storey side and rear extension.

Type House extension
Status Wybunbury
Date Date not available

Advertisement consent for Cheshire Constabulary police imagery vinyl signage applied to 1 no. external glazed door and 8 no. external window...

Type Advertisement
Status Nantwich North and West
Date Date not available

Extension of existing garage as per drawings, no alterations to access of existing house or change to streets. There will be new hardstandin...

Type House extension
Status Brereton Rural
Date Date not available

Conversion of existing garage into living space with the removal of the garage door, to be replaced with glazed sliding doors.

Type House extension
Status Knutsford
Date Date not available

Proposed single storey rear extension to form increased living accommodation and both external and internal alterations to suit including ex...

Type House extension
Status Sandbach Elworth
Date Date not available

Proposed two storey side elevation extension, first floor side elevation extension above existing garage, porch canopy roof and external alt...

Type House extension
Status Macclesfield East
Date Date not available

Permission in principle for the erection of up to 5 no. dwellings (Use Class C3) and associated infrastructure works.

Type New housing
Status Bunbury
Date Date not available

Proposed removal of existing asbestos cladding and roofing to the school sports hall. To be replaced with new steel plank profile roof and w...

Type Commercial
Status Macclesfield West and Ivy
Date Date not available

Proposed two storey side extension, single storey rear extension and addition of front porch.

Type House extension
Status Disley
Date Date not available

Reference BN/2526/0305 Application type Hysbysiad Adeiladu / Building Notice Site address MEADOW VIEW, SMITHY LANE, PENTRE BYCHAN, WREXHAM, ...

Type n/a
Status Unknown
Date Date not available

Reference BN/2526/0379 Application type Hysbysiad Adeiladu / Building Notice Site address 9 DEINIOL AVENUE, MARCHWIEL, WREXHAM, LL13 0SA Des...

Type n/a
Status Unknown
Date Date not available

Reference BN/2526/0398 Application type Hysbysiad Adeiladu / Building Notice Site address LAUREL BANK, HENRY STREET, RHOSTYLLEN, WREXHAM, LL...

Type n/a
Status Unknown
Date Date not available

Reference BN/2526/0399 Application type Hysbysiad Adeiladu / Building Notice Site address 29 DRWS Y COED, WREXHAM, LL13 7QB Description of W...

Type n/a
Status Unknown
Date Date not available

Reference FP/2526/0377 Application type Rheoliadau Adeiladu Llawn / Full Building Regulations Site address XPLORE, 17 HENBLAS STREET, WREXHA...

Type n/a
Status Unknown
Date Date not available

Reference FP/2526/0395 Application type Rheoliadau Adeiladu Llawn / Full Building Regulations Site address HOSTEL, PLAS Y WERN HOUSE, PLAS Y...

Type n/a
Status Unknown
Date Date not available

Reference FP/2526/0400 Application type Rheoliadau Adeiladu Llawn / Full Building Regulations Site address 7 AFONWEN, PONTFADOG, LLANGOLLEN,...

Type n/a
Status Unknown
Date Date not available

Reference FP/2526/0402 Application type Rheoliadau Adeiladu Llawn / Full Building Regulations Site address LINDAROSA, HALL STREET, RHOSLLANE...

Type n/a
Status Unknown
Date Date not available

Reference FP/2526/0403 Application type Rheoliadau Adeiladu Llawn / Full Building Regulations Site address 29 BRYN SIRIOL, COEDPOETH, WREXHA...

Type n/a
Status Unknown
Date Date not available

Reference PA/2526/0404 Application type Asesiad Partneriaeth / Partnership Assessment Site address 1 ROSE HILL, BAGILT, FLINTSHIRE, CH6 6LF ...

Type n/a
Status Unknown
Date Date not available

Conversion of existing detached garage to form annexe for use ancillary to the main dwelling; associated alterations to windows to both side...

Type Change of use
Status Current
Date Date not available

Change of use from a residential use (Class C3) into a short-term holiday letting/commercial (leisure or business)

Type Change of use
Status Current
Date Date not available

4.0m single storey rear extension, 3.0m to ridge height (flat roof)

Type House extension
Status Current
Date Date not available
Plan thumbnail

Change of use of vacant former public house to retail unit to the ground floor, with a two-storey extension to the rear and alterations to t...

Type Change of use
Status Awaiting decision
Date Date not available

Erection of first-floor rear extension to create additional office accommodation, alteration to car parking and installation of bike and bin...

Type Commercial
Status Awaiting decision
Date Date not available

Use of a dwellinghouse (Use Class C3) as a small, single occupancy children's care home (Use Class C2), accommodating one young person aged ...

Type Change of use
Status Awaiting decision
Date Date not available

Change of use from dwellinghouse (Use Class C3) to a residential care home (Use Class C2) for up to two children (aged 8-17 years), supporte...

Type Change of use
Status Awaiting decision
Date Date not available

Erection of 2no. dwelling houses, with associated bike store and bin store following demolition of commercial building.

Type New housing
Status Awaiting decision
Date Date not available

Erection of 50no. 2-storey dwellinghouses with associated car parking and landscaping.

Type New housing
Status Awaiting decision
Date Date not available
Plan thumbnail

Erection of 3-storey building to form 7no. apartments (Class C3) following demolition of existing semi-detached properties.

Type New housing
Status Awaiting decision
Date Date not available
Plan thumbnail

Erection of a two-storey (plus basement) building to comprise a 702 sqm GIA [750 sqm GEA] retail convenience food store at ground level, wit...

Type Commercial
Status Awaiting decision
Date Date not available

Erection of new apartment block comprising twelve self contained dwellings with associated works including new access, Parking provision and...

Type New housing
Status Current
Date Date not available

Change of use from public house (sui generis) to class E (B) restaurant with ancillary alcohol and takeaway sales; single storey side extens...

Type Change of use
Status Current
Date Date not available

Part two storey part single storey extension to front and side, including roof light to front; single storey rear extension; demolition of e...

Type House extension
Status Current
Date Date not available

New pitched roof replacing flat roof to rear; new roof lights to rear; bi folding doors/windows replacing back door and small window to rear...

Type House extension
Status Current
Date Date not available

Retention of alterations to 3 No listed buildings, extension of a listed building to create an office and warden's accommodation, erection o...

Type Mixed use
Status Unknown
Date Date not available

Extension of the existing driveway and new front boundary fence and gates. (This application may affect the character and appearance of the ...

Type House extension
Status Unknown
Date Date not available

Lawful development certificate for the proposed construction of a single storey rear/side extension.

Type House extension
Status Unknown
Date Date not available

Conversion of loft to habitable use with 1 No. rear dormer and 1 No. front rooflight.

Type Change of use
Status Unknown
Date Date not available

Change of use from Guest House to 4 No self contained apartments. This application is in CIL Zone 4 (Zero Rated) as flats.

Type Change of use
Status Unknown
Date Date not available

Conversion of the existing attached garage into habitable space, with roof lights, a single storey side extension.

Type Change of use
Status Unknown
Date Date not available

Single storey rear extension and conversion of existing detached garage with pitched roof and flat roof link to main dwelling.

Type House extension
Status Unknown
Date Date not available
Plan thumbnail

Erection of 2no. 4-bedroom detached dwellinghouses (Class C3) and associated works.

Type New housing
Status Awaiting decision
Date Date not available

Erection of part-single, part two-storey rear extension to 183 and first floor side extension to 185, together with rear roof dormers to bot...

Type House extension
Status Awaiting decision
Date Date not available

Use of dwellinghouse (Use Class C3) as a Children's Care Home (Use Class C2) providing care for 1 or 2 children with staff working on a rota...

Type Change of use
Status Awaiting decision
Date Date not available

Use of dwellinghouse (Use Class C3) as a Children's Care Home (Use Class C2) providing care for 1 or 2 children with staff working on a rota...

Type Change of use
Status Awaiting decision
Date Date not available

Use of dwellinghouse (Use Class C3) as a Children's Care Home (Use Class C2) providing care for 1 or 2 children with staff working on a rota...

Type Change of use
Status Awaiting decision
Date Date not available

Use of dwellinghouse (Use Class C3) as a Children's Care Home (Use Class C2) providing care for 1 or 2 children with staff working on a rota...

Type Change of use
Status Awaiting decision
Date Date not available

Use of dwellinghouse (Use Class C3) as a Children's Care Home (Use Class C2) providing care for 1 or 2 children with staff working on a rota...

Type Change of use
Status Awaiting decision
Date Date not available

Use of dwellinghouse (Use Class C3) as a Children's Care Home (Use Class C2) providing care for 1 or 2 children with staff working on a rota...

Type Change of use
Status Awaiting decision
Date Date not available
Plan thumbnail

Erection of a 16-storey building comprising 73 apartments (Use Class C3) with associated residential facilities (residents lounge and terrac...

Type New housing
Status Awaiting decision
Date Date not available

Erection of single-storey rear extension to form additional living accommodation in association with the conversion from a 6-bedroom House i...

Type House extension
Status Awaiting decision
Date Date not available

Erection of single-storey side extension with associated alterations, including replacement of existing roofs with a flat roof, changes to r...

Type House extension
Status Awaiting decision
Date Date not available

Reconfiguration of external staircase to basement; new external steel stair to access existing kitchen door at ground floor; 5no. glazed lig...

Type House extension
Status Awaiting decision
Date Date not available
Plan thumbnail

Erection of single-storey rear extension, rear and front flat roof dormers with alterations to existing elevations.

Type House extension
Status Awaiting decision
Date Date not available
Plan thumbnail

Change of use from a dwellinghouse (Class C3) to a 5-bedroom, 5-person House in Multiple Occupation (Class C4).

Type Change of use
Status Awaiting decision
Date Date not available

Erection of 14no. houses (Class C3) with associated highway, landscaping and parking.

Type New housing
Status Awaiting decision
Date Date not available

Change of Use from single dwellinghouse (Class C3) to 3-bedroom HMO (Class C4).

Type Change of use
Status Awaiting decision
Date Date not available
Plan thumbnail

Proposed cross boundary application (Stockport MBC and Manchester CC) seeking full Planning Permission for a residential development of up t...

Type New housing
Status Awaiting decision
Date Date not available
Plan thumbnail

Erection of two-storey building comprising 2no. two-bedroom apartments (Use Class C3) with associated car parking, cycle storage and waste s...

Type New housing
Status Awaiting decision
Date Date not available

Basements conversion to create one additional dwelling with installation of light wells to front and rear including car parking and bin and ...

Type New housing
Status Awaiting decision
Date Date not available

Change of Use of ground floor from residential to Class E (a) together with associated elevational alterations.

Type Change of use
Status Awaiting decision
Date Date not available

Change of use from existing guest house with ancillary private accommodation back to a single private dwellinghouse (Use Class C3), with no ...

Type Change of use
Status Unknown
Date Date not available

Application to approve details required under the Section 106 dated 07.09.21 (as amended) linked to BE/148/20/OUT (Nursery Fields Land to th...

Type Other
Status Unknown
Date Date not available

Notification under extended permitted development rights for a single storey rear flat roofed extension, extending 6m beyond the rear wall o...

Type House extension
Status Unknown
Date Date not available

Replacement of existing Portacabin with new single storey modular cabin for use as an ancillary building to the existing site, excavate grou...

Type Commercial
Status Unknown
Date Date not available

Single storey rear extension plus loft conversion including hip to gable and rear dormer.

Type House extension
Status Unknown
Date Date not available

Construction of a wooden shed/workshop, behind the existing brick built pump house; the two buildings would be inter connected via a doorway...

Type Industrial
Status Unknown
Date Date not available

Removal of the full 1969 extension, including the 20th century garage, leaving all 18th century masonry of the Blake era cottage intact. Thi...

Type Demolition
Status Unknown
Date Date not available

Change of use of A1 buildings & yard to B8 use with elevational alterations, including solar panels and changes to the parking layout. This ...

Type Change of use
Status Unknown
Date Date not available

Single storey rear/side extension, including the installation of solar panels. This application may affect the setting of a Listed Building.

Type House extension
Status Unknown
Date Date not available
Plan thumbnail

Erection of 2no. dwellings with associated access, landscaping and boundary treatment following demolition of existing stable building

Type n/a
Status Awaiting decision
Date Date not available
Plan thumbnail

Change of Use from a small House In Multiple Occupation (use class C4) to a large House In Multiple Occupation (sui generis)

Type n/a
Status Awaiting decision
Date Date not available

Erection of 1no. dwelling to side, following demolition of garage and outhouse

Type n/a
Status Awaiting decision
Date Date not available
Plan thumbnail

Erection of 1no. dwelling and garage with associated access from Rawcliffe Lane

Type n/a
Status Awaiting decision
Date Date not available
Plan thumbnail

Change of use from dwelling house (use Class C3) to House in Multiple Occupation (use Class C4) - retrospective

Type n/a
Status Awaiting decision
Date Date not available
Plan thumbnail

Erection of single storey extension extending 5.99 metres beyond the rear wall of the origional house, with a height to the eaves of 3.00 me...

Type n/a
Status Awaiting decision
Date Date not available
Plan thumbnail

External staircase and balcony to rear and installation of rooflights to first floor flat to form second floor.

Type n/a
Status Awaiting decision
Date Date not available

Demolition of existing buildings and construction of one detached dwelling. Single storey infill extensions to existing annex building.

Type New housing
Status Pending Consideration
Date Date not available

Conversion of existing chapel into 1 dwelling with Internal and external alterations.

Type Change of use
Status Pending Consideration
Date Date not available

Proposed demolition of existing dwelling and proposed new replacement dwelling

Type Demolition
Status Pending Consideration
Date Date not available

Erection of two storey dwellinghouse with associated access, landscaping, car parking, cycle parking and refuse storage.

Type New housing
Status Pending Consideration
Date Date not available

Demolition of 1 & 2 Hamberts Farm Cottages and redevelopment of the site to provide 8 x two bed flats in one three-storey block. Ancillary c...

Type New housing
Status Pending Consideration
Date Date not available

Outline planning application for the erection of up to 26 residential dwellings with new access, public open spaces, sustainable urban drain...

Type New housing
Status Pending Consideration
Date Date not available

Outline application for the development of 2 self build dwellings. All matters reserved.

Type New housing
Status Pending Consideration
Date Date not available

Erection of ten dwellings with associated garages, parking, access, amenity space and landscaping.

Type New housing
Status Pending Consideration
Date Date not available

The construction of a single storey rear extension, which would extend beyond the rear wall of the original house by a maximum depth of 5m, ...

Type House extension
Status Prior Approval Not Required
Date Date not available

Two storey rear, single storey rear and front porch extension with garage attached to house. Alterations to fenestration.

Type House extension
Status Pending Consideration
Date Date not available

Proposed subdivision of existing shop (Class E) into 2no. separate commercial units (Class E) at ground floor level with associated basement...

Type Change of use
Status Pending Consideration
Date Date not available

The construction of a single storey rear extension, which would extend beyond the rear wall of the original house by a maximum depth of 4m, ...

Type House extension
Status Pending Consideration
Date Date not available

Discharge of Condition 3.(Landscaping Scheme) for planning ref 2025/00646/FUL - Demolition of existing dwelling and new replacement dwelling...

Type n/a
Status Unknown
Date Date not available

Single storey rear extension, part first floor rear extension with garage conversion and new flank windows

Type House extension
Status Unknown
Date Date not available

Conversion of equestrian building to four dwellings including partial demolition, associated access and landscaping

Type n/a
Status Awaiting decision
Date Date not available

Erection of a new 3no. bedroom dwelling in the front garden of the existing Grade II listed building (No 27. Church Street)

Type n/a
Status Awaiting decision
Date Date not available

Permission in principle for the erection of up to 9 no. dwellings.

Type New housing
Status Poynton West and Adlington
Date Date not available

Demolition of the existing workshop and erection of 1 self-build detached dwelling

Type New housing
Status High Legh
Date Date not available

No Change of Use. Front, ground floor extension to replace existing conservatory and covered paving Service building to rear Replacement of ...

Type House extension
Status Dane Valley
Date Date not available

Application under S.106A of The Town and Country Planning Act 1990 for a Deed of Variation to the S.106 Agreement dated 5 October 1998 attac...

Type n/a
Status Pending Consideration
Date Date not available

Application for approval of details under Section 106 dated 3/4/2019 relating to Y/91/17/OUT in relation to Schedule 3 Clause 1.4 - definiti...

Type Other
Status Unknown
Date Date not available

Lawful development certificate for a proposed single storey side extension.

Type House extension
Status Unknown
Date Date not available

Single storey side and rear extension and loft conversion including 1 No. rear dormer and front rooflights and installation of solar panels.

Type House extension
Status Unknown
Date Date not available

Remove existing garage, proposed side extension, external and internal alterations. Reconfiguration of existing solar panels.

Type House extension
Status Unknown
Date Date not available

Proposed rear extension, alterations to front porch, internal and external repairs, alterations to fenestration, and addition of a dormer.

Type House extension
Status Unknown
Date Date not available

Erection of four detached houses with detached garages, formation of vehicular access and provision of new landscaping and refuse stores.

Type n/a
Status Registered
Date Date not available

Demolition of pergola and construction of single storey side extensions to dwelling

Type House extension
Status Pending Consideration
Date Date not available

The proposed erection of 2 no. three bedroomed self-build dwellings with garaging, landscaping and associated operational development

Type New housing
Status Pending Consideration
Date Date not available

The construction of a single storey rear extension, which would extend beyond the rear wall of the original house by a maximum depth of 6m, ...

Type House extension
Status Pending Consideration
Date Date not available

Single storey rear extension with a glazed balustrade balcony above. Alterations to garage roof with a conversion of garage roof space to en...

Type House extension
Status Pending Consideration
Date Date not available

Ramsden Park Farm Ramsden Park Road Ramsden Bellhouse Billericay - Erection of three detached dwellings with parking.

Type New housing
Status No Objection
Date Date not available

Demolition of storage buildings, construction of 6 new dwellings, conversion and extension of 2 curtilage listed buildings, to create a tota...

Type New housing
Status Pending Consideration
Date Date not available

Conversion and extension of two buildings to create dwellings.

Type Listed building
Status Pending Consideration
Date Date not available

Installation of garden stone patio with freestanding oak framed structure, and skylight in main house.

Type House extension
Status Registered
Date Date not available

The erection of a single storey rear extension, which would extend beyond the rear wall of the original house by 8m for which the maximum he...

Type House extension
Status Registered
Date Date not available

Construction of single storey rear extension of the following dimensions: Depth of proposed extension from rear wall of original dwellinghou...

Type House extension
Status Pending Consideration
Date Date not available

Construction of single storey rear extension of the following dimensions: Depth of proposed extension from rear wall of original dwellinghou...

Type House extension
Status Pending Consideration
Date Date not available

The proposal comprises minor residential development works, including: ? Demolition of an existing rear extension and construction of a new,...

Type n/a
Status Registered
Date Date not available

Works to Tree 1 ? Sycamore Tree (Acer pseudoplatanus) Proposed works: Crown reduction of approximately one-third (30?33%) to reduce overexte...

Type n/a
Status Registered
Date Date not available

Proposed like for like replacement of existing external doors, windows, and curtain walling. The works will not alter the appearance, materi...

Type n/a
Status Registered
Date Date not available

Removal of the enclosed office space and its associated stud walls. Removal of the existing staircase and reinstatement of the original 1988...

Type n/a
Status Registered
Date Date not available
Plan thumbnail

Rooftop extension to create 8 apartments, recladding and creation of car park with access.

Type New housing
Status Awaiting decision
Date Date not available
Plan thumbnail

Change of use from offices (Use Class E) to a mixed-use restaurant and shisha lounge (Sui Generis); alterations to the front elevation; erec...

Type Change of use
Status Awaiting decision
Date Date not available

Reference PL/26/0159 Application type Consent to display an advertisement Site address 97 KINGS ROAD, READING, RG1 3DD Description Proposed ...

Type n/a
Status Unknown
Date Date not available

Variation of Condition 2 (Plan Specification) of Planning Approval 2022/01085/FUL: Replacement dwelling and improved driveway access

Type n/a
Status Unknown
Date Date not available

Proposed single storey, flat roof, rear extension (previously approved) second storey side extension over existing structure (amended design...

Type n/a
Status Unknown
Date Date not available

Alterations to garage, gates and boundary wall. The addition of an open single storey carriage house to south side of garage, single storey ...

Type n/a
Status Unknown
Date Date not available

Variation of Condition 2 (Plan Specification) of Planning Permission 2024/00200/FUL - Conversion of former dairy house to high dependency yo...

Type n/a
Status Unknown
Date Date not available

Discharge of Condition 5.(Details of windows and doors) for planning ref 2024/00607/LBC - Revised scheme to recently approved extensions and...

Type n/a
Status Unknown
Date Date not available

Discharge of Conditions 3 (Window and Door Details) and 4 (Metal Window Proposals) of Planning Approval 2024/00633/LBC: External and interna...

Type n/a
Status Unknown
Date Date not available

We are proposing to build a chimney stack on the right handside of the house. It will be for an inglenook fireplace.

Type n/a
Status Unknown
Date Date not available

Alterations to garage, gates and boundary wall. The addition of an open single storey carriage house to south side of garage, single storey ...

Type n/a
Status Unknown
Date Date not available

Reference BC/BN/26/01687 Application type Building Notice Site address 42 BRAFORD GARDENS, SHENLEY BROOK END, MILTON KEYNES, MK5 7HY Descrip...

Type House extension
Status Unknown
Date Date not available

Reference BC/BN/26/01744 Application type Building Notice Site address 2 ASPLEY WOODS VIEW, BOW BRICKHILL, MILTON KEYNES, MK17 9FZ Descripti...

Type House extension
Status Unknown
Date Date not available

Reference BC/FP/26/01685 Application type Full Building Regulations Site address 2 NORTHCROFT, SHENLEY LODGE, MILTON KEYNES, MK5 7BE Descrip...

Type House extension
Status Unknown
Date Date not available

Reference BC/FP/26/01790 Application type Partnership Inspections Site address 2A BRADWELL ROAD, LOUGHTON, MILTON KEYNES, MK5 8AJ Descriptio...

Type House extension
Status Unknown
Date Date not available

New two-storey dwelling in the grounds of Treetops and landscape work. Existing outbuilding to be demolished, two new garages to serve exist...

Type n/a
Status Unknown
Date Date not available

Discharge of Condition 13 (Drainage Details) of Planning Approval 2025/00416/FUL: Variation of Condition 2 (Approved Plans and Documents) of...

Type n/a
Status Unknown
Date Date not available

Single storey replacement extension to side of existing dwelling to create home office and garden room, creation of decking area.

Type n/a
Status Unknown
Date Date not available

Renovation of existing property to include the addition of new dormers and a first-floor extension above an existing flat roof, a new two-st...

Type n/a
Status Unknown
Date Date not available

Proposed demolition of existing single storey sun room and replacement with larger single storey flat roof extension and construction of dor...

Type n/a
Status Unknown
Date Date not available

Proposed two storey rear extension with single storey link and associated works, double garage, ground mounted solar panels, retention of pe...

Type n/a
Status Unknown
Date Date not available

Full planning application for the partial demolition and conversion of the main building and demolition of all other buildings and structure...

Type New housing
Status Unknown
Date Date not available
Plan thumbnail

Erection of rear ground floor extension; 3x roof lights to the rear roof pitch of main house; Alterations to the front garden and front boun...

Type House extension
Status Unknown
Date Date not available

Change of use from a residential dwelling (Use Class C3) to short-term letting (Use Class C5) for use as serviced accommodation / Airbnb-sty...

Type Change of use
Status Unknown
Date Date not available

Proposed second floor rear extension, construction of a 2 storey roof extension to facilitate new third and fourth floors fronting Barking R...

Type New housing
Status Unknown
Date Date not available
Plan thumbnail

Proposed part first-floor rear extension, loft conversion with rear dormer extension including roof lights to the front to create 2 x 1-bedr...

Type House extension
Status Unknown
Date Date not available
Plan thumbnail

Proposal for the restoration and alteration of server room window, Restoration of external West facing wall, restoration of external north b...

Type Listed building
Status Unknown
Date Date not available

Estyniad llawr cyntaf fframwaith goed i estyniad gwaith maen unllawr presenol i gefn yr eiddo. First floor timber frame extension to an exis...

Type House extension
Status Unknown
Date Date not available

Application to approve details required under the Section 106 dated 13.07.2023 linked to F/4/20/OUT (Ford Airfield) relating to the First Sc...

Type S106 agreement
Status Unknown
Date Date not available

Notification under extended permitted development rights for a single storey rear extension with a flat roof, extending 4m beyond the rear w...

Type House extension
Status Unknown
Date Date not available

Demolition of existing side lobby/utility. Construction of single storey rear extension.

Type House extension
Status Unknown
Date Date not available

Installation of a proposed new Global street hub, including the associated display of advertisements on both sides of the unit

Type Advertisement
Status Unknown
Date Date not available

Lawful development certificate for a proposed hip to gable with box dormer to rear elevation, roof windows to north roof slope.

Type House extension
Status Unknown
Date Date not available

Demolition of existing garage/offices with associated hard standing and construction of 2 No residential building comprising of 3 No one bed...

Type New housing
Status Unknown
Date Date not available

Relocation of toilets including single storey extension to south/west elevation. This application is in CIL Zone 4 (Zero Rated) as other dev...

Type Commercial
Status Unknown
Date Date not available

Proposed roof extension and reorientation of roof position on single storey extension and alterations to fenestration (retrospective).

Type House extension
Status Unknown
Date Date not available

Lawful development certificate for the proposed conversion of existing attached garage to habitable space.

Type Change of use
Status Unknown
Date Date not available

137 Heston Road,Hounslow,TW5 0RD | PF-Full Applications | Change of use of the existing ground floor from a beauty salon (Sui Generis) to a ...

Type Change of use
Status Unknown
Date Date not available
Plan thumbnail

360 Staines Road, Hounslow, TW4 5BD | PF-Full Applications | Change of use of the ground floor from a beauty salon (Sui Generis) to a one-be...

Type Change of use
Status Unknown
Date Date not available

56A Hounslow Road, Feltham, TW14 9DG | PF-Full Applications | Retrospective application for the side extension to be used as a flat | Applic...

Type House extension
Status Unknown
Date Date not available
Plan thumbnail

277 Whalley Road, Clayton-Le-Moors, Accrington BB5 5QU | Full Planning Application | Full: Change of Use of First and Second Floor into a S...

Type Change of use
Status Unknown
Date Date not available

259 - 263 Union Road, Oswaldtwistle, BB5 3HU | Full Planning Application | Full: Rear First Floor Extension to Create 1no. Self Contained Fl...

Type House extension
Status Unknown Appeal
Date Date not available
Plan thumbnail

St James Church, St James Road, Church, Lancashire, BB5 4JP | Full Planning Application | Full: Change of use of place of worship to office ...

Type Change of use
Status Unknown
Date Date not available
Plan thumbnail

158A Hounslow Road, Hanworth, TW13 6AA | PF-Full Applications | Creation of a first floor extension to create a 1 bedroom 2 person self cont...

Type House extension
Status Unknown
Date Date not available

Bus Shelter, Pavement Outside 324 Chiswick High Road, Chiswick, London, W4 5TA | Advertisement Application | Installation of an internally i...

Type Advertisement
Status Unknown
Date Date not available

Bus Shelter ,Pavement Outside 378 Chiswick High Road,Chiswick,London,W4 5TF | Advertisement Application | Installation of internally illumin...

Type Advertisement
Status Unknown
Date Date not available

Application Reference FP/0032/26 Application Type Full Building Regulations Site Address 31 Hillcrest Road, Loughton, IG10 4QH Proposal Sing...

Type House extension
Status Unknown
Date Date not available

Application Reference FP/0039/26 Application Type Full Building Regulations Site Address Wind Hill Cottage, Wind Hill, Magdalen Laver, Ongar...

Type House extension
Status Unknown
Date Date not available

Application Reference NOT/1140/26 Application Type Initial Notice Site Address 2 Silver Street, Waltham Abbey, EN9 1RJ Proposal Initial Noti...

Type New housing
Status Unknown
Date Date not available

Application Reference NOT/1139/26 Application Type Initial Notice Site Address 12 Bradwell Road, Buckhurst Hill, IG9 6BY Proposal Initial No...

Type House extension
Status Unknown
Date Date not available

Application Reference NOT/1137/26 Application Type Initial Notice Site Address Salfords, Sedge Green, Roydon, Harlow, CM19 5JR Proposal Init...

Type House extension
Status Unknown
Date Date not available

Application Reference NOT/1141/26 Application Type Initial Notice Site Address Daws Hill Nursery, Daws Hill, Waltham Abbey, E4 7RD Proposal ...

Type New housing
Status Unknown
Date Date not available

Application Reference NOT/1138/26 Application Type Initial Notice Site Address 55 Colebrook Lane, Loughton, IG10 2HL Proposal Initial Notice...

Type Change of use
Status Unknown
Date Date not available

Application Reference FP/0043/26 Application Type Full Building Regulations Site Address Alderaan, Pedlars End, Moreton, Ongar, CM5 0LR Prop...

Type House extension
Status Unknown
Date Date not available

Application Reference FP/0027/26 Application Type Full Building Regulations Site Address Forest Lodge, Wood Mead, Epping, CM16 6TD Proposal ...

Type Other
Status Unknown
Date Date not available

Application Reference RC/0021/26 Application Type Regularisation Application Site Address 7 Devon Close, Buckhurst Hill, IG9 5LF Proposal El...

Type House extension
Status Unknown
Date Date not available

Application Reference NOT/1125/26 Application Type Initial Notice Site Address 11 Bury Road, Epping, CM16 5ET Proposal Initial Notice -- Dou...

Type House extension
Status Unknown
Date Date not available

Application Reference NOT/1127/26 Application Type Initial Notice Site Address 130 Manor Road, Chigwell, IG7 5PR Proposal Initial Notice -- ...

Type House extension
Status Unknown
Date Date not available

Application Reference FP/0013/26 Application Type Full Building Regulations Site Address 46 The Avenue, Loughton, IG10 4PX Proposal Garage c...

Type House extension
Status Unknown
Date Date not available

Application Reference FP/0011/26 Application Type Full Building Regulations Site Address 11 Brooklyn Avenue, Loughton, IG10 1BL Proposal Ext...

Type House extension
Status Unknown
Date Date not available

Application Reference BN/0034/26 Application Type Building Notice Site Address 77 Goldings Road, Loughton, IG10 2QW Proposal Loft conversion...

Type House extension
Status Unknown
Date Date not available

Application Reference NOT/1006/26 Application Type Initial Notice Site Address 6 Stonehall Grove, Downhall Road, Matching Green, Harlow, CM1...

Type House extension
Status Unknown
Date Date not available

Application Reference NOT/1022/26 Application Type Initial Notice Site Address 27 Allnutts Road, Epping, CM16 7BE Proposal Initial Notice --...

Type House extension
Status Unknown
Date Date not available

Application Reference NOT/1009/26 Application Type Initial Notice Site Address 97 Lushes Road, Loughton, IG10 3QD Proposal Initial Notice --...

Type House extension
Status Unknown
Date Date not available

Application Reference NOT/1023/26 Application Type Initial Notice Site Address Laurel Cottage, 5A Rainbow Road, Matching Tye, Harlow, CM17 0...

Type House extension
Status Unknown
Date Date not available

Application Reference NOT/1021/26 Application Type Initial Notice Site Address 137 Greensted Road, Loughton, IG10 3DJ Proposal Initial Notic...

Type House extension
Status Unknown
Date Date not available

Application Reference NOT/1008/26 Application Type Initial Notice Site Address 56 Coolgardie Avenue, Chigwell, IG7 5AY Proposal Initial Noti...

Type House extension
Status Unknown
Date Date not available

Application Reference NOT/1007/26 Application Type Initial Notice Site Address Unit 6a OC Tanner Ltd, Imprimo Park, Lenthall Road, Loughton ...

Type Industrial
Status Unknown
Date Date not available

Application Reference NOT/1024/26 Application Type Initial Notice Site Address 15 Rookwood Gardens, Loughton, IG10 2DQ Proposal Initial Noti...

Type House extension
Status Unknown
Date Date not available

Application Reference NOT/1020/26 Application Type Initial Notice Site Address Old Bank Chambers, 287-291 High Street, Epping, CM16 4DA Prop...

Type New housing
Status Unknown
Date Date not available

Application Reference BN/0040/26 Application Type Building Notice Site Address 21 Parkmead, Loughton, IG10 3JW Proposal Loft and rear extens...

Type House extension
Status Unknown
Date Date not available

Application Reference FP/0014/26 Application Type Full Building Regulations Site Address The Nook, Norwood End, Fyfield, Ongar, CM5 0RW Prop...

Type House extension
Status Unknown
Date Date not available

Application Reference FP/0019/26 Application Type Full Building Regulations Site Address 54 Algers Road, Loughton, IG10 4NG Proposal Single ...

Type House extension
Status Unknown
Date Date not available

Application Reference FP/0010/26 Application Type Full Building Regulations Site Address 2 Kilnfield, Ongar, CM5 9TL Proposal Front elevatio...

Type Other
Status Unknown
Date Date not available

Application Reference NOT/0946/26 Application Type Initial Notice Site Address New City College, Epping Forest College, Borders Lane, Lought...

Type Other
Status Unknown
Date Date not available

Application Reference FP/0003/26 Application Type Full Building Regulations Site Address 2 Prescott Green, Loughton, IG10 2AQ Proposal Loft ...

Type House extension
Status Unknown
Date Date not available

Application Reference OT/0017/26 Application Type Reversion Application Site Address Fairmead, 48 Church Lane, Loughton, IG10 1PD Proposal P...

Type House extension
Status Unknown
Date Date not available

Application Reference OT/0012/26 Application Type Reversion Application Site Address 74 Church Hill, Loughton, IG10 1LB Proposal Hip to gabl...

Type House extension
Status Unknown
Date Date not available

Application Reference FP/0002/26 Application Type Full Building Regulations Site Address 18 Bassett Gardens, North Weald Bassett, Epping, CM...

Type House extension
Status Unknown
Date Date not available

Application Reference OT/0015/26 Application Type Reversion Application Site Address 34 Lower Swaines, Epping, CM16 5ES Proposal Single Stor...

Type House extension
Status Unknown
Date Date not available

Application Reference NOT/0942/26 Application Type Initial Notice Site Address 29 Highbridge Street, Waltham Abbey, EN9 1BZ Proposal Initial...

Type Change of use
Status Unknown
Date Date not available

Application Reference OT/0014/26 Application Type Reversion Application Site Address 6 Landview Gardens, Ongar, CM5 9EQ Proposal Single stor...

Type House extension
Status Unknown
Date Date not available

Application Reference OT/0016/26 Application Type Reversion Application Site Address 83 Queens Road, Buckhurst Hill, IG9 5BW Proposal The Co...

Type New housing
Status Unknown
Date Date not available

Application Reference OT/0018/26 Application Type Reversion Application Site Address 29 Church Hill, Loughton, IG10 1QP Proposal Single stor...

Type House extension
Status Unknown
Date Date not available

Application Reference OT/0011/26 Application Type Reversion Application Site Address 13 Hemnall Street, Epping, CM16 4LS Proposal Single sto...

Type House extension
Status Unknown
Date Date not available

Application Reference FP/0016/26 Application Type Full Building Regulations Site Address Elm House, Matching Green, Matching, Harlow, CM17 0...

Type Other
Status Unknown
Date Date not available

Application Reference OT/0010/26 Application Type Reversion Application Site Address 9 Fairbank Close, Ongar, CM5 9HX Proposal Loft conversi...

Type House extension
Status Unknown
Date Date not available

Application Reference OT/0013/26 Application Type Reversion Application Site Address 2 Dossetts Retreat, The Green, Theydon Bois, Epping, CM...

Type House extension
Status Unknown
Date Date not available

Application Reference BN/0473/25 Application Type Building Notice Site Address 4 College Place, Coppice Row, Theydon Bois, Epping, CM16 7DR ...

Type House extension
Status Unknown
Date Date not available

Application Reference BN/1187/17 Application Type Building Notice Site Address 24 Hornbeam Road Theydon Bois Epping Essex CM16 7JX Proposal ...

Type House extension
Status Unknown
Date Date not available

Application Reference BN/0037/26 Application Type Building Notice Site Address 21 Sunnyside Road, Epping, CM16 4JP Proposal Removal of load ...

Type Other
Status Unknown
Date Date not available

Application Reference NOT/0924/26 Application Type Demolition Notice Site Address Davenant Foundation School, Chester Road, Loughton, IG10 2...

Type Demolition
Status Unknown
Date Date not available

Application Reference NOT/0923/26 Application Type Initial Notice Site Address 1 Campions, Loughton, IG10 2SG Proposal Initial Notice - Loft...

Type House extension
Status Unknown
Date Date not available

Application Reference NOT/0922/26 Application Type Initial Notice Site Address 39 Orchard Gardens, Waltham Abbey, EN9 1RS Proposal Initial N...

Type Change of use
Status Unknown
Date Date not available

Application Reference BN/0030/26 Application Type Building Notice Site Address Threeways, Epping Road, Roydon, Harlow, CM19 5DA Proposal Gar...

Type House extension
Status Unknown
Date Date not available

Application Reference BN/0017/26 Application Type Building Notice Site Address 24 Sandford Avenue, Loughton, IG10 2AJ Proposal Installation ...

Type Other
Status Unknown
Date Date not available

Application Reference BN/0024/26 Application Type Building Notice Site Address 44 Buckingham Road, Epping, CM16 5AG Proposal Creation of ope...

Type Other
Status Unknown
Date Date not available

Application Reference BN/0023/26 Application Type Building Notice Site Address 36 Kettlebury Way, Ongar, CM5 9EX Proposal Removal of load be...

Type Other
Status Unknown
Date Date not available

Application Reference NOT/0662/26 Application Type Initial Notice Site Address 1 Colebrook Path, Loughton, IG10 2HW Proposal Initial Notice ...

Type House extension
Status Unknown
Date Date not available

Application Reference NOT/0663/26 Application Type Initial Notice Site Address 16 Dukes Avenue, Theydon Bois, Epping, CM16 7HE Proposal Init...

Type House extension
Status Unknown
Date Date not available

Application Reference BN/0033/26 Application Type Building Notice Site Address 12 Stradbroke Grove, Buckhurst Hill, IG9 5PD Proposal Removal...

Type Other
Status Unknown
Date Date not available

Application Reference NOT/0674/26 Application Type Initial Notice Site Address Camelot, Common Road, Nazeing, Waltham Abbey, EN9 2DF Proposa...

Type House extension
Status Unknown
Date Date not available

Application Reference NOT/0664/26 Application Type Initial Notice Site Address 63 Queens Road, North Weald Bassett, Epping, CM16 6JF Proposa...

Type House extension
Status Unknown
Date Date not available

Application Reference BN/0471/25 Application Type Building Notice Site Address Orange Lodge, Chambers Manor Farm Lane, Epping Upland, Epping...

Type Other
Status Unknown
Date Date not available

Application Reference NOT/0652/26 Application Type Initial Notice Site Address 46 Rodney Road, Ongar, CM5 9HN Proposal Initial Notice - Sing...

Type House extension
Status Unknown
Date Date not available

Application Reference NOT/0651/26 Application Type Initial Notice Site Address 13 Hilltop, Loughton, IG10 1PX Proposal Initial Notice - Inst...

Type Renewable energy
Status Unknown
Date Date not available

Application Reference NOT/0649/26 Application Type Initial Notice Site Address 51 Algers Road, Loughton, IG10 4NF Proposal Initial Notice - ...

Type House extension
Status Unknown
Date Date not available

Application Reference NOT/0650/26 Application Type Initial Notice Site Address 97 Oakwood Hill, Loughton, IG10 3ER Proposal Initial Notice -...

Type House extension
Status Unknown
Date Date not available

Application Reference OT/0004/26 Application Type Reversion Application Site Address 27 Cunningham Rise, North Weald Bassett, Epping, CM16 6...

Type House extension
Status Unknown
Date Date not available

Application Reference OT/0007/26 Application Type Reversion Application Site Address 3 The Chase, Chigwell, IG7 5EY Proposal Double storey r...

Type House extension
Status Unknown
Date Date not available

Application Reference OT/0006/26 Application Type Reversion Application Site Address 20 Woodside, Buckhurst Hill, IG9 5DR Proposal Single st...

Type House extension
Status Unknown
Date Date not available

Application Reference OT/0005/26 Application Type Reversion Application Site Address 113 Church Hill, Loughton, IG10 1QR Proposal New build ...

Type New housing
Status Unknown
Date Date not available

Application Reference NOT/0476/26 Application Type Initial Notice Site Address 33 Chapel Road, Epping, CM16 5DS Proposal Initial Notice - De...

Type New housing
Status Unknown
Date Date not available

Application Reference NOT/0478/26 Application Type Demolition Notice Site Address 17-18 Maynard Court, Waltham Abbey, EN9 3DU Proposal Demol...

Type Demolition
Status Unknown
Date Date not available

Application Reference NOT/0477/26 Application Type Initial Notice Site Address Green Elms, Middle Street, Nazeing, Waltham Abbey, EN9 2LH Pr...

Type House extension
Status Unknown
Date Date not available

Application Reference NOT/0480/26 Application Type Initial Notice Site Address Premier Garage, Chelmsford Road, High Ongar, Ongar, CM5 9NW P...

Type Commercial
Status Unknown
Date Date not available

Application Reference NOT/0468/26 Application Type Initial Notice Site Address Maynard Court Surgery, 17-18 Maynard Court, Waltham Abbey, EN...

Type Commercial
Status Unknown
Date Date not available

Application Reference NOT/0456/26 Application Type Initial Notice Site Address 64 Ardmore Lane, Buckhurst Hill, IG9 5SA Proposal Initial Not...

Type House extension
Status Unknown
Date Date not available

Application Reference NOT/0461/26 Application Type Initial Notice Site Address 123 Whitehills Road, Loughton, IG10 1TU Proposal Initial Noti...

Type House extension
Status Unknown
Date Date not available

Application Reference NOT/0459/26 Application Type Initial Notice Site Address 73 Avondale Drive, Loughton, IG10 3DE Proposal Initial Notice...

Type House extension
Status Unknown
Date Date not available

Application Reference NOT/0457/26 Application Type Initial Notice Site Address Oakleigh House, Hamlet Hill, Roydon, Harlow, CM19 5JZ Proposa...

Type Other
Status Unknown
Date Date not available

Application Reference NOT/0351/26 Application Type Initial Notice Site Address Stoneleigh, Hemnall Street, Epping, CM16 4LR Proposal Amended...

Type House extension
Status Unknown
Date Date not available

Application Reference RC/0295/25 Application Type Regularisation Application Site Address Adult Training Centre, Torrington Drive, Loughton,...

Type Other
Status Unknown
Date Date not available

Application Reference NOT/0345/26 Application Type Initial Notice Site Address 126 High Road, North Weald Bassett, Epping, CM16 6BY Proposal...

Type House extension
Status Unknown
Date Date not available

Application Reference NOT/0325/26 Application Type Initial Notice Site Address Land Adjoining to 66A Bower Hill, Epping, CM16 7AW Proposal I...

Type New housing
Status Unknown
Date Date not available

Application Reference NOT/0324/26 Application Type Initial Notice Site Address 66 Dukes Avenue, Theydon Bois, Epping, CM16 7HF Proposal Init...

Type House extension
Status Unknown
Date Date not available

Application Reference NOT/0326/26 Application Type Initial Notice Site Address Premier Garage (Greggs), Chelmsford Road, High Ongar, Ongar, ...

Type Commercial
Status Unknown
Date Date not available

Application Reference NOT/0310/26 Application Type Initial Notice Site Address Lavender Cottage, 32 Forest Glade, North Weald Bassett, Eppin...

Type House extension
Status Unknown
Date Date not available

Application Reference NOT/0309/26 Application Type Initial Notice Site Address 52 Hansells Mead, Roydon, Harlow, CM19 5HZ Proposal Initial N...

Type House extension
Status Unknown
Date Date not available

Application Reference FP/0447/25 Application Type Full Building Regulations Site Address Harleen, Stapleford Road, Stapleford Abbotts, Romfo...

Type House extension
Status Unknown
Date Date not available

Application Reference NOT/0213/26 Application Type Initial Notice Site Address 16A Western Avenue, Epping, CM16 4JR Proposal Initial Notice ...

Type House extension
Status Unknown
Date Date not available

Application Reference NOT/0203/26 Application Type Initial Notice Site Address 97 Theydon Park Road, Theydon Bois, Epping, CM16 7LS Proposal...

Type House extension
Status Unknown
Date Date not available

Application Reference NOT/0204/26 Application Type Initial Notice Site Address 112 Borders Lane, Loughton, IG10 3SB Proposal Initial Notice ...

Type House extension
Status Unknown
Date Date not available

Application Reference NOT/0205/26 Application Type Initial Notice Site Address 15 Roding Gardens, Loughton, IG10 3NH Proposal Initial Notice...

Type House extension
Status Unknown
Date Date not available

Application Reference NOT/0145/26 Application Type Initial Notice Site Address The Firs, Epping Road, Nazeing, Waltham Abbey, EN9 2DH Propos...

Type House extension
Status Unknown
Date Date not available

Application Reference NOT/0147/26 Application Type Initial Notice Site Address 31 Albany Court, Epping, CM16 5ED Proposal Initial Notice - G...

Type Other
Status Unknown
Date Date not available

Application Reference NOT/0148/26 Application Type Initial Notice Site Address Stones Throw, Keysers Road, Nazeing, Waltham Abbey, EN10 6RE ...

Type House extension
Status Unknown
Date Date not available

Application Reference FP/0467/25 Application Type Full Building Regulations Site Address Greensted Croft, Greensted Road, Ongar, CM5 9LA Pro...

Type House extension
Status Unknown
Date Date not available

Application Reference NOT/0149/26 Application Type Initial Notice Site Address 36 Brook Road, Loughton, IG10 1BP Proposal Initial Notice - T...

Type House extension
Status Unknown
Date Date not available

Application Reference NOT/0146/26 Application Type Initial Notice Site Address St Dunstans Farm, Moreton Road, Fyfield, Ongar, CM5 0HU Propo...

Type House extension
Status Unknown
Date Date not available

Application Reference NOT/0124/26 Application Type Demolition Notice Site Address 43 Alderton Hill, Loughton, IG10 3JD Proposal Demolition o...

Type Demolition
Status Unknown
Date Date not available

Application Reference FP/0464/25 Application Type Outside Partnering Site Address 40 Pishiobury Drive Sawbridgeworth Herts CM21 0AE Proposal...

Type House extension
Status Unknown
Date Date not available

Application Reference NOT/0125/26 Application Type Initial Notice Site Address 2 Nevill Way, Loughton, IG10 3BG Proposal Initial Notice - Lo...

Type House extension
Status Unknown
Date Date not available

Application Reference FP/0459/25 Application Type Full Building Regulations Site Address 32 Sedley Rise, Loughton, IG10 1LT Proposal Ground ...

Type House extension
Status Unknown
Date Date not available

Application Reference FP/0462/25 Application Type Full Building Regulations Site Address 63 The Drive, Loughton, IG10 1HG Proposal Erection ...

Type House extension
Status Unknown
Date Date not available

Application Reference NOT/7361/25 Application Type Initial Notice Site Address WEST COTTAGE, Back Lane, Nazeing, Waltham Abbey, EN9 2DN Prop...

Type House extension
Status Unknown
Date Date not available

Application Reference NOT/7360/25 Application Type Initial Notice Site Address 21 Primley Lane, Sheering, Harlow, Bishops Stortford, CM22 7N...

Type House extension
Status Unknown
Date Date not available

Application Reference FP/0436/25 Application Type Full Building Regulations Site Address 142 Buckhurst Way, Buckhurst Hill, IG9 6HP Proposal...

Type New housing
Status Unknown
Date Date not available

Application Reference NOT/7359/25 Application Type Initial Notice Site Address 127 Sheering Road, Sheering, Harlow, CM17 0JP Proposal Initia...

Type House extension
Status Unknown
Date Date not available

Application Reference NOT/7362/25 Application Type Initial Notice Site Address (New City College) Epping Forest College, Borders Lane, Lough...

Type Other
Status Unknown
Date Date not available

Application Reference NOT/7354/25 Application Type Initial Notice Site Address 179 Smarts Lane, Loughton, IG10 4BW Proposal Initial Notice -...

Type House extension
Status Unknown
Date Date not available

Application Reference BN/0455/25 Application Type Building Notice Site Address 13 Nicholl Road, Epping, CM16 4HX Proposal Garage conversion ...

Type House extension
Status Unknown
Date Date not available

Application Reference BN/0425/25 Application Type Building Notice Site Address 4 Hurst Road, Buckhurst Hill, IG9 6AB Proposal Single storey ...

Type House extension
Status Unknown
Date Date not available

Application Reference RC/0466/25 Application Type Regularisation Application Site Address 2 Conybury Close, Waltham Abbey, EN9 3PN Proposal ...

Type Other
Status Unknown
Date Date not available

Application Reference FP/0446/25 Application Type Full Building Regulations Site Address 171-177 High Street, Epping, CM16 4BL Proposal Phas...

Type Commercial
Status Unknown
Date Date not available

Application Reference FP/0461/25 Application Type Full Building Regulations Site Address 29 Green Walk, Ongar, CM5 9HR Proposal Garage conve...

Type House extension
Status Unknown
Date Date not available

Application Reference BN/0465/25 Application Type Building Notice Site Address 17 Field Close, Lambourne, Abridge, RM4 1DL Proposal Garage c...

Type House extension
Status Unknown
Date Date not available

Application Reference RC/0463/25 Application Type Regularisation Application Site Address 34 Stonyshotts, Waltham Abbey, EN9 3DF Proposal Si...

Type House extension
Status Unknown
Date Date not available

Application Reference BN/0458/25 Application Type Building Notice Site Address 16 Dunmow Close, Loughton, IG10 3AS Proposal Removal of load ...

Type Other
Status Unknown
Date Date not available

Application Reference BN/0450/25 Application Type Building Notice Site Address 1A Murtwell Drive, Chigwell, IG7 5ED Proposal Garage conversi...

Type House extension
Status Unknown
Date Date not available

Application Reference BN/0460/25 Application Type Building Notice Site Address 41 Roding Gardens, Loughton, IG10 3NH Proposal Garage convers...

Type House extension
Status Unknown
Date Date not available

Application Reference FP/0438/25 Application Type Full Building Regulations Site Address 20 Ormonde Rise, Buckhurst Hill, IG9 5QQ Proposal P...

Type House extension
Status Unknown
Date Date not available

Application Reference NOT/7179/25 Application Type Initial Notice Site Address Topgolf, Abridge Road, Chigwell, IG7 6BX Proposal Initial Not...

Type Commercial
Status Unknown
Date Date not available

Application Reference NOT/7169/25 Application Type Initial Notice Site Address 73 Tycehurst Hill, Loughton, IG10 1BZ Proposal Initial Notice...

Type House extension
Status Unknown
Date Date not available

Application Reference BN/0448/25 Application Type Building Notice Site Address 36 Knights Walk, Lambourne, Abridge, RM4 1DR Proposal Install...

Type Other
Status Unknown
Date Date not available

Application Reference FP/0453/25 Application Type Partnership Application Site Address 41 Wellfields, Loughton, IG10 1PA Proposal Two-storey...

Type House extension
Status Unknown
Date Date not available

Application Reference BN/0457/25 Application Type Building Notice Site Address 66 Theydon Grove, Epping, CM16 4QA Proposal Garage conversion...

Type House extension
Status Unknown
Date Date not available

Application Reference OT/0125/25 Application Type Reversion Application Site Address 22 Westbury Lane, Buckhurst Hill, IG9 5PL Proposal Sing...

Type House extension
Status Unknown
Date Date not available

Application Reference OT/0128/25 Application Type Reversion Application Site Address 33 Marle Gardens, Waltham Abbey, EN9 2DZ Proposal Singl...

Type House extension
Status Unknown
Date Date not available

Application Reference OT/0126/25 Application Type Reversion Application Site Address 31 Hycliffe Gardens, Chigwell, IG7 5HJ Proposal Hip to ...

Type House extension
Status Unknown
Date Date not available

Application Reference OT/0127/25 Application Type Reversion Application Site Address 57 Grange Crescent, Chigwell, IG7 5JD Proposal Part sin...

Type House extension
Status Unknown
Date Date not available

Application Reference OT/0124/25 Application Type Reversion Application Site Address 110 Swanshope, Loughton, IG10 2NB Proposal Double store...

Type House extension
Status Unknown
Date Date not available

Application Reference NOT/7141/25 Application Type Initial Notice Site Address 13 Hobbs Cross Cottages, Hobbs Cross Road, Theydon Garnon, Ep...

Type House extension
Status Unknown
Date Date not available

Application Reference OT/0121/25 Application Type Reversion Application Site Address Langley, 96 High Road, Chigwell, IG7 6PJ Proposal Demol...

Type Demolition
Status Unknown
Date Date not available

Application Reference OT/0130/25 Application Type Reversion Application Site Address 1 Rookwood Gardens, Loughton, IG10 2DQ Proposal Single ...

Type House extension
Status Unknown
Date Date not available

Application Reference OT/0129/25 Application Type Reversion Application Site Address 89 Manor Road, Chigwell, IG7 5PN Proposal Construction ...

Type New housing
Status Unknown
Date Date not available

Application Reference NOT/7135/25 Application Type Initial Notice Site Address 6 Theydon Place, Epping, CM16 4NH Proposal Initial Notice - I...

Type Renewable energy
Status Unknown
Date Date not available

Application Reference OT/0123/25 Application Type Reversion Application Site Address 23 Holly Close, Buckhurst Hill, IG9 6HT Proposal Single...

Type House extension
Status Unknown
Date Date not available

Application Reference BN/0456/25 Application Type Building Notice Site Address 88 Grosvenor Drive, Loughton, IG10 2LE Proposal Replacing til...

Type Other
Status Unknown
Date Date not available

Application Reference FP/0449/25 Application Type Full Building Regulations Site Address 5 St Albans Road, Coopersale, Epping, CM16 7RD Prop...

Type House extension
Status Unknown
Date Date not available

Application Reference OT/0122/25 Application Type Reversion Application Site Address The Clees, Wellington Hill, Loughton, IG10 4AG Proposal...

Type Other
Status Unknown
Date Date not available

Application Reference NOT/7134/25 Application Type Initial Notice Site Address 24A High Beech Road, Loughton, IG10 4BL Proposal Initial Noti...

Type House extension
Status Unknown
Date Date not available

Application Reference NOT/7028/25 Application Type Initial Notice Site Address 4 Barrington Road, Loughton, IG10 2AY Proposal Initial Notice...

Type Change of use
Status Unknown
Date Date not available

Application Reference OT/0042/25 Application Type Reversion Application Site Address 54 Roding Road, Loughton, IG10 3EF Proposal Proposed lo...

Type House extension
Status Unknown
Date Date not available

Application Reference NOT/7023/25 Application Type Initial Notice Site Address 65 Millwell Crescent, Chigwell, IG7 5HX Proposal Initial Noti...

Type House extension
Status Unknown
Date Date not available

Application Reference NOT/7024/25 Application Type Initial Notice Site Address 30 Hycliffe Gardens, Chigwell, IG7 5HJ Proposal Initial Notic...

Type House extension
Status Unknown
Date Date not available

Application Reference NOT/7019/25 Application Type Initial Notice Site Address BRAESIDE, 28 Piercing Hill, Theydon Bois, Epping, CM16 7JW Pr...

Type House extension
Status Unknown
Date Date not available

Application Reference NOT/7020/25 Application Type Initial Notice Site Address 56 Tycehurst Hill, Loughton, IG10 1DA Proposal Initial Notice...

Type New housing
Status Unknown
Date Date not available

Application Reference NOT/6988/25 Application Type Initial Notice Site Address Greensted Hall, Greensted Church Lane, Ongar, CM5 9LD Proposa...

Type New housing
Status Unknown
Date Date not available

Application Reference NOT/6990/25 Application Type Initial Notice Site Address Unit 3 & 4, Epping Forest Shopping Park, Langston Road, Lough...

Type Commercial
Status Unknown
Date Date not available

Application Reference NOT/6991/25 Application Type Initial Notice Site Address 7 Stradbroke Park, Tomswood Road, Chigwell, IG7 5QL Proposal ...

Type House extension
Status Unknown
Date Date not available

Application Reference NOT/6989/25 Application Type Initial Notice Site Address 25 Stradbroke Drive, Chigwell, IG7 5RB Proposal Initial Notic...

Type House extension
Status Unknown
Date Date not available

Application Reference FP/0422/25 Application Type Full Building Regulations Site Address 112 Old Nazeing Road, Nazeing, Waltham Abbey, Broxb...

Type House extension
Status Unknown
Date Date not available

Application Reference OT/0112/25 Application Type Reversion Application Site Address 149 Grosvenor Drive, Loughton, IG10 2LB Proposal Single...

Type House extension
Status Unknown
Date Date not available

Application Reference OT/0117/25 Application Type Reversion Application Site Address 86 Lushes Road, Loughton, IG10 3QB Proposal Single stor...

Type House extension
Status Unknown
Date Date not available

Application Reference OT/0111/25 Application Type Reversion Application Site Address 40 London Road, Lambourne, Romford, RM4 1UX Proposal Si...

Type House extension
Status Unknown
Date Date not available

Application Reference OT/0119/25 Application Type Reversion Application Site Address 47 Stradbroke Drive, Chigwell, IG7 5RA Proposal Demolit...

Type New housing
Status Unknown
Date Date not available

Application Reference OT/0113/25 Application Type Reversion Application Site Address 33 Chapel Road, Epping, CM16 5DS Proposal Part double, ...

Type House extension
Status Unknown
Date Date not available

Application Reference OT/0114/25 Application Type Reversion Application Site Address 13 Whitehall Close, Chigwell, IG7 6EQ Proposal Initial ...

Type House extension
Status Unknown
Date Date not available

Application Reference FP/0430/25 Application Type Full Building Regulations Site Address 46 Upper Park, Loughton, IG10 4EQ Proposal Removal ...

Type House extension
Status Unknown
Date Date not available

Application Reference OT/0110/25 Application Type Reversion Application Site Address Elmbridge House, Potash Road, Matching Green, Harlow, C...

Type House extension
Status Unknown
Date Date not available

Application Reference NOT/6815/25 Application Type Initial Notice Site Address HADWEN, Oak Hill Road, Stapleford Abbotts, Romford, RM4 1EH P...

Type House extension
Status Unknown
Date Date not available

Application Reference NOT/6814/25 Application Type Initial Notice Site Address Land between 25 and 33 Westbury Lane, Westbury Lane, Buckhurs...

Type New housing
Status Unknown
Date Date not available

Application Reference NOT/6812/25 Application Type Initial Notice Site Address 40 Roundmead Avenue, Loughton, IG10 1QB Proposal Initial Noti...

Type House extension
Status Unknown
Date Date not available

Application Reference NOT/6799/25 Application Type Initial Notice Site Address Land at Greensted Road, Chipping Ongar, CM5 9LA Proposal Init...

Type New housing
Status Unknown
Date Date not available

Application Reference BN/0437/25 Application Type Building Notice Site Address Rostellan, Carpenters Arms Lane, Thornwood, Epping, CM16 6LR ...

Type Other
Status Unknown
Date Date not available

Application Reference NOT/6800/25 Application Type Initial Notice Site Address Gladwyns Farm, Hamlet Hill, Roydon, Harlow, CM19 5JY Proposal...

Type House extension
Status Unknown
Date Date not available

Application Reference NOT/6796/25 Application Type Initial Notice Site Address Warlies Gardens, Horseshoe Hill, Waltham Abbey, EN9 3SL Propo...

Type House extension
Status Unknown
Date Date not available

Application Reference FP/0433/25 Application Type Full Building Regulations Site Address Brambles Tye, Vicarage Lane, North Weald Bassett, E...

Type House extension
Status Unknown
Date Date not available

Application Reference NOT/6698/25 Application Type Initial Notice Site Address 7 Highwood Lane, Loughton, IG10 3LS Proposal Initial Notice -...

Type House extension
Status Unknown
Date Date not available

Application Reference NOT/6699/25 Application Type Initial Notice Site Address 45 Pyrles Lane, Loughton, IG10 2NW Proposal Initial Notice - ...

Type House extension
Status Unknown
Date Date not available

Application Reference NOT/6696/25 Application Type Initial Notice Site Address 67 Ivy Chimneys, Epping, CM16 4EP Proposal Initial Notice - L...

Type House extension
Status Unknown
Date Date not available

Application Reference NOT/6697/25 Application Type Initial Notice Site Address 58 Bracken Drive, Chigwell, IG7 5RD Proposal Initial Notice -...

Type House extension
Status Unknown
Date Date not available

Application Reference NOT/6695/25 Application Type Initial Notice Site Address 6 Westmede, Chigwell, IG7 5LR Proposal Initial Notice - Garag...

Type Other
Status Unknown
Date Date not available

Application Reference FP/0419/25 Application Type Full Building Regulations Site Address 4A Albert Road, Buckhurst Hill, IG9 6EH Proposal Pr...

Type New housing
Status Unknown
Date Date not available

Application Reference BN/0434/25 Application Type Building Notice Site Address 29 Woburn Avenue, Theydon Bois, Epping, CM16 7JR Proposal Lof...

Type House extension
Status Unknown
Date Date not available

Application Reference FP/0429/25 Application Type Full Building Regulations Site Address 31 Ely Place, Chigwell, IG8 8AG Proposal Two storey...

Type House extension
Status Unknown
Date Date not available

Application Reference BN/0428/25 Application Type Building Notice Site Address 12 Buckhurst Way, Buckhurst Hill, IG9 6HJ Proposal Garage con...

Type House extension
Status Unknown
Date Date not available

Application Reference BN/0444/25 Application Type Building Notice Site Address 2 Manor Farm, Mott Street, High Beech, Loughton, IG10 4AP Pro...

Type Other
Status Unknown
Date Date not available

Application Reference FP/0431/25 Application Type Full Building Regulations Site Address Charnell, Avenue Road, Roydon, Harlow, Hoddesdon, E...

Type House extension
Status Unknown
Date Date not available

Application Reference FP/0423/25 Application Type Full Building Regulations Site Address 16 Coteford Close, Loughton, IG10 2NT Proposal Demo...

Type House extension
Status Unknown
Date Date not available

Application Reference BN/0427/25 Application Type Building Notice Site Address Lynton House, Hastingwood Road, Hastingwood, Harlow, CM17 9JU...

Type House extension
Status Unknown
Date Date not available

Application Reference BN/0442/25 Application Type Building Notice Site Address 18 Harrier Way, Waltham Abbey, EN9 3JQ Proposal Removal of lo...

Type Other
Status Unknown
Date Date not available

Application Reference FP/0424/25 Application Type Full Building Regulations Site Address The Yard, 1 Hill Farm, Hamlet Hill, Roydon, Harlow,...

Type House extension
Status Unknown
Date Date not available

Application Reference NOT/6667/25 Application Type Initial Notice Site Address 10 King Street, High Ongar, Ongar, CM5 9NS Proposal Initial N...

Type House extension
Status Unknown
Date Date not available

Application Reference OT/0104/25 Application Type Reversion Application Site Address Land Between 42 And 44, Ongar Road, Lambourne, RM4 1UH ...

Type New housing
Status Unknown
Date Date not available

Application Reference OT/0107/25 Application Type Reversion Application Site Address 7 The Greens Close, Loughton, IG10 1QE Proposal Structu...

Type Other
Status Unknown
Date Date not available

Application Reference OT/0105/25 Application Type Reversion Application Site Address 1A Farm Close, Buckhurst Hill, IG9 5AJ Proposal Single ...

Type House extension
Status Unknown
Date Date not available

Application Reference OT/0106/25 Application Type Reversion Application Site Address 9 Parkside, Buckhurst Hill, IG9 5TB Proposal Extension ...

Type Other
Status Unknown
Date Date not available

Application Reference NOT/6557/25 Application Type Initial Notice Site Address 12 The Avenue, Loughton, IG10 4PT Proposal Initial Notice - D...

Type House extension
Status Unknown
Date Date not available

Application Reference FP/0426/25 Application Type Outside Partnering Site Address 238 Beechfield, Hoddesdon, Herts. EN11 9QF Proposal Propos...

Type House extension
Status Unknown
Date Date not available

Application Reference OT/0099/25 Application Type Reversion Application Site Address 33 Onslow Gardens, Ongar, CM5 9BG Proposal Single store...

Type House extension
Status Unknown
Date Date not available

Application Reference OT/0103/25 Application Type Reversion Application Site Address 4 Kendal Avenue, Epping, CM16 4PN Proposal Two storey f...

Type House extension
Status Unknown
Date Date not available

Application Reference OT/0022/26 Application Type Reversion Application Site Address 26 Station Road, Loughton, IG10 4NX Proposal Hip to gab...

Type House extension
Status Unknown
Date Date not available

Application Reference OT/0020/26 Application Type Reversion Application Site Address 51 Chestnut Avenue, Buckhurst Hill, IG9 6EN Proposal Si...

Type House extension
Status Unknown
Date Date not available

Application Reference FP/0046/26 Application Type Full Building Regulations Site Address 112 Crooked Mile, Waltham Abbey, EN9 1QR Proposal S...

Type House extension
Status Unknown
Date Date not available

Application Reference OT/0019/26 Application Type Reversion Application Site Address 36 Coopersale Street, Epping, CM16 7QJ Proposal Convers...

Type Other
Status Unknown
Date Date not available

Application Reference FP/0036/26 Application Type Full Building Regulations Site Address 63 Lower Swaines, Epping, CM16 5ES Proposal Garage ...

Type House extension
Status Unknown
Date Date not available

Application Reference OT/0021/26 Application Type Reversion Application Site Address 60 Sheering Lower Road, Sheering, Harlow, Sawbridgewort...

Type Other
Status Unknown
Date Date not available

Application Reference BN/0048/26 Application Type Building Notice Site Address 8 Westall Road, Loughton, IG10 2AR Proposal Chimney and inter...

Type Other
Status Unknown
Date Date not available

Application Reference RC/0042/26 Application Type Regularisation Application Site Address 121 Grosvenor Drive, Loughton, IG10 2LB Proposal R...

Type Other
Status Unknown
Date Date not available

Application Reference NOT/1143/26 Application Type Initial Notice Site Address 3 Rodney Road, Ongar, CM5 9HN Proposal Initial Notice - Singl...

Type House extension
Status Unknown
Date Date not available

Application Reference FP/0050/26 Application Type Full Building Regulations Site Address Homefield, Woodside, Thornwood, Epping, CM16 6LE Pr...

Type House extension
Status Unknown
Date Date not available

Reference BC/26/0809 Application type Initial Notice Site address 44 DORSET STREET, READING, RG30 1JU Description of works Single storey rea...

Type n/a
Status Unknown
Date Date not available

Reference BC/26/0811 Application type Initial Notice Site address 156 SHINFIELD ROAD, READING, RG2 7DT Description of works Part single stor...

Type n/a
Status Unknown
Date Date not available

Reference BC/26/0813 Application type Initial Notice Site address Ground Floor East, 250, Green Park, Longwater Avenue, Reading, RG2 6GP Des...

Type n/a
Status Unknown
Date Date not available

Reference BC/26/0814 Application type Initial Notice Site address Suite 14, Second Floor, 100, East Wing, Green Park, Longwater Avenue, Read...

Type n/a
Status Unknown
Date Date not available
Plan thumbnail

2 Ivy Road,Hounslow,TW3 2DH | PF-Full Applications | Demolition of the existing two storey side extension and part-single, part two storey r...

Type New housing
Status Unknown
Date Date not available

13 Thistleworth Close, Isleworth, TW7 4QQ | PF-Full Applications | Retrospective application for the installation of an air conditioning uni...

Type Other
Status Unknown
Date Date not available

Alterations to ground floor to include new entrance lobby infill, new entrance canopy, new windows and cladding, blocking up of existing bin...

Type Commercial
Status Unknown
Date Date not available

Re-purposing existing car parking spaces for use as parking spaces for recharging of electric vehicles, including the installation of 4 upst...

Type Infrastructure
Status Unknown
Date Date not available

Creation of 1 no. new dwelling (Use Class C3) and alterations to frontage of no. 161 Cherry Tree Drive and associated works

Type New housing
Status Unknown
Date Date not available

Change of use of in part the community/education area to a restaurant use (Use Class E(b) with a maximum of 129 covers.

Type Change of use
Status Unknown
Date Date not available

Installation of external wall insulation (EWI) and mix of render and Artbrick finish, including associated roofline adaption works as requir...

Type Other
Status Unknown
Date Date not available

Installation of external wall insulation (EWI) and mix of render and Artbrick finish, including associated roofline adaption works as requir...

Type Other
Status Unknown
Date Date not available

Front garden removed and replaced with block paving driveway, with flowerbed and fence fitted down boundary line. (Retrospective)

Type Other
Status Unknown Appeal
Date Date not available

Gosod caban cludadwy i wneud gwaith ymchwil fel gorlif o brif Adeilad SEECS. The installation of a portable cabin to under take overspill re...

Type Commercial
Status Unknown
Date Date not available

Cais ôl-weithredol am fodurdy/gweithdy ar wahân gyda 2 stabl ac ystafell 'tack'. Retrospective application for a detached garage/workshop wi...

Type Agricultural
Status Unknown
Date Date not available

Newid defnydd o Swyddfa B1 (defnydd busnes) i Swyddfa / Clinig Prawf Llygaid (rhan B1, rhan D1 - sefydliadau dibreswyl) Change of use from O...

Type Change of use
Status Unknown
Date Date not available

Estyniad i greu fwy o le cadw ar adeilad arddangos ceginau ac ymolchfeydd bresennol / Extension to provide additional storage space to exist...

Type Commercial
Status Unknown
Date Date not available

Newid defnydd 7 Stryd y Dŵr (a Siop Isa 7a Water Street) o un annedd 4 ystafell wely a siop i ddau annedd dau ystafell wely ynghyd a newidia...

Type Change of use
Status Unknown
Date Date not available

Cais ôl-weithredol i osod pwmp gwres i gefn eiddo / Retrospective application for the installation of a heat pump on rear of property.

Type Renewable energy
Status Unknown
Date Date not available

Single storey rear extension. New pitched roof to existing flat roof to existing side extension and garage conversion

Type House extension
Status Unknown
Date Date not available

Extension to existing concrete slurry store and associated works in line with SSAFO regs.

Type Agricultural
Status Unknown
Date Date not available

Construct concrete walls, floor and form an effluent channel and effluent pipes to create a new silage clamp within an existing agricultural

Type Agricultural
Status Unknown
Date Date not available
Plan thumbnail

Proposed Conversion of an Existing Agricultural Barn to a Trampoline Park and Associated Parking

Type Change of use
Status Unknown
Date Date not available

Timber building with sedum roof for storage of football club pitch maintenance equipment

Type Commercial
Status Unknown
Date Date not available

CHANGE OF USE OF EXISTING PART A3 TO HOLIDAY ACCOMMODATION (USE CLASS C6) INCLUDING EXTERNAL ALTERATIONS AND ASSOCIATED WORKS

Type Change of use
Status Unknown
Date Date not available
Plan thumbnail

Proposed garage conversion with new windows & part render finish to front elevation. Proposed single storey flat roof rear extension.

Type House extension
Status Unknown
Date Date not available
Plan thumbnail

Rear and side extension to existing dwelling. Alterations and Refurbishments to existing dwelling.

Type House extension
Status Unknown
Date Date not available
Plan thumbnail

Change of use from holiday accommodation to communal and hostel accommodation and associated works.

Type Change of use
Status Unknown
Date Date not available

The works proposed are for the external refurbishment of 12nr midrise residential blocks, comprising of 11nr 3 story blocks and 1nr 4 story ...

Type Other
Status Unknown
Date Date not available

The works proposed are for the external refurbishment of 12nr midrise residential blocks, comprising of 11nr 3 story blocks and 1nr 4 story ...

Type Other
Status Unknown
Date Date not available

Side extension and new roof to create first floor with front and rear dormers, new bay window and porch.

Type House extension
Status Unknown
Date Date not available

Erection of a two-storey, two-bedroom end-of-terrace house with parking, refuse and cycle storage.

Type New housing
Status Unknown
Date Date not available

Retrospective extension and conversion from dwelling to supported living for up to seven residents.

Type Change of use
Status Unknown
Date Date not available

Erect one two-storey three-bedroom end terrace dwelling with landscaping, parking and new crossover.

Type New housing
Status Unknown
Date Date not available

Front porch, single-storey front and mixed two-/single-storey side/rear extensions following garage demolition.

Type House extension
Status Unknown
Date Date not available

Convert vacant Class E commercial premises into two one-bedroom residential units.

Type Change of use
Status Unknown
Date Date not available

Loft conversion with rear dormer, front roof light and rear pergola to ground floor

Type House extension
Status Unknown
Date Date not available

Change of use of lower ground (rear), ground (rear), first and second floors from care home (Class C2) to provide 12no. HMO units (Sui Gener...

Type n/a
Status Unknown
Date Date not available

Lawful Development Certificate for the Existing Use of building as a residential dwelling at first floor and regularisation of fenestration ...

Type n/a
Status Unknown
Date Date not available

Conversion of existing main entrance lobby to form revised entrance lobby and 1 bed self-contained flat. (Retrospective)

Type n/a
Status Unknown
Date Date not available

Replacement of existing single storey garage (attached), with two storey side extension including a continuation of the pitched roof. Single...

Type n/a
Status Unknown
Date Date not available

Change of Use of a C3a Dwelling House to a Children's home for a maximum of three adolescents aged 11-18 with complex needs, with associated...

Type n/a
Status Unknown
Date Date not available

Proposed alterations to external fenestration, internal alterations and replacement of timber fence with new garden wall.

Type n/a
Status Unknown
Date Date not available

Proposed alterations to external fenestration, internal alterations and replacement of timber fence with new garden wall.

Type n/a
Status Unknown
Date Date not available

Repainting of brickwork on front elevation to beige. Repainting front dormer cheeks, shop front and front door to dark brown. Removal of met...

Type n/a
Status Unknown
Date Date not available

Change of use from x2 residential flats C3 to x1 residential house (C2 residential children's care).

Type n/a
Status Unknown
Date Date not available

Rebuilding of pitched roofed structure, rebuilding to larger footprint of flat roofed side extension, house refurbishment including replacem...

Type n/a
Status Unknown
Date Date not available

To partially remove mezzanine floor and associated staircase, create internal connecting doorway and carry out minor internal alterations.

Type Commercial
Status Unknown
Date Date not available
Plan thumbnail

To erect single storey extension to rear and new porch/front extension; to install external steps from property to rear garden area

Type House extension
Status Unknown
Date Date not available
Plan thumbnail

To erect single storey extensions to side and rear, new porch to front and make alterations to the existing front hardstanding

Type House extension
Status Unknown
Date Date not available
Plan thumbnail

To erect single storey extension to side and rear of property.

Type House extension
Status Unknown
Date Date not available
Plan thumbnail

To erect two storey extension to rear, porch at front and pitched roof over existing flat roofed two storey side extension.

Type House extension
Status Unknown
Date Date not available

To erect single storey side extension and a canopy entrance to front; Install gates and hardstanding to front and an EV charging point to si...

Type House extension
Status Unknown
Date Date not available

To erect dormer extension to rear, alter fenestration to side and rear in connection with change of use from 5 bed to 7 bed HMO and erect as...

Type Change of use
Status Unknown Appeal
Date Date not available

Removal of a partition wall and replacement of all windows to double glazed units.

Type Other
Status Unknown
Date Date not available

Removal of a partition wall and replacement of all windows to double glazed units.

Type Other
Status Unknown
Date Date not available

To erect two storey extension at side and single storey linked porch / forwards extension

Type House extension
Status Unknown
Date Date not available

To erect single storey extension to the rear and alterations to the existing side extension

Type House extension
Status Unknown
Date Date not available

To erect front facing first floor and roof extension incorporating no. 2 front dormers and no. 1 rear dormer with associated internal and ex...

Type House extension
Status Unknown
Date Date not available

To change use from cafe (Use Class A3) to hot food take-away, with casual inside dining (Sui Generis), installation of ventilation and extra...

Type Change of use
Status Unknown
Date Date not available

Planning Application for temporary use of land for open air storage of cars until 22/03/2027; installation of 2m high paladin fence to part ...

Type Change of use
Status Unknown
Date Date not available

Proposed extension to rear elevation (to replace existing extension) and side extension to existing domestic dwellinghouse

Type n/a
Status Unknown
Date Date not available

Non Material Amendment - An amendment to have composite cladding on the exterior walls above the double garages instead of concrete render ....

Type n/a
Status Unknown
Date Date not available

Non Material Amendment - An amendment to the Removal of condition 31 in relation to means of enclosure. for planning ref 2014/01505/OUT - de...

Type n/a
Status Unknown
Date Date not available
Plan thumbnail

Proposed removal of existing side first floor extension and replacement with full depth side first floor extension over existing ground floo...

Type n/a
Status Unknown
Date Date not available
Plan thumbnail

Relocation of existing open fronted machinery shed of approximately 80sqm. Clad in corrugated sheeting painted black.

Type n/a
Status Unknown
Date Date not available

Change of use from convent to residential (C3) for adults with learning difficulties and autism, minor external changes.

Type Change of use
Status Unknown
Date Date not available

Demolish rear extension and build two-storey rear extension to enlarge shop, add first-floor office/storage and alter shopfront.

Type Commercial
Status Unknown Appeal
Date Date not available

Siting of 18 seasonal shepherds huts within approved campsite, with associated groundworks and landscaping.

Type Other
Status Unknown
Date Date not available

Single storey rear extension, widen rear dormer window & re-clad dormer in coloured composite cladding. New small dormer to north elevation.

Type House extension
Status Unknown
Date Date not available

Installation of front porch canopy, raise existing garage flat roof to facilitate conversion to habitable use, conversion of loft to habitab...

Type House extension
Status Unknown
Date Date not available

Demolish garage and construct one new semi-detached dwelling with landscaping and parking.

Type New housing
Status Unknown
Date Date not available

Convert residence and commercial space into three residential units (net gain two) with extensions.

Type Change of use
Status Unknown
Date Date not available

Convert Studio 2 to residential accommodation connected to existing dwelling.

Type Change of use
Status Unknown
Date Date not available

Single storey rear extension. This application may affect the setting of a listed building.

Type House extension
Status Unknown
Date Date not available

Discharge of Condition 23 (Hard and Soft Landscaping). Planning permission ref: 2018/00482/HYB - Hybrid planning application as an 'enabling...

Type n/a
Status Unknown
Date Date not available

Discharge of Condition 4. (Materials Details) for planning ref 2022/00792/FUL - Proposed residential development of 7 dwellings and associat...

Type n/a
Status Unknown
Date Date not available

Discharge of Conditions 16.(Biodiversity enhancement) 19.(Means of Enclosure) 20.( Materials Details) for planning ref: 2021/01081/FUL - Res...

Type n/a
Status Unknown
Date Date not available

Provision of 2no. short term let holiday studio rooms to first floor extension served by new staircase extension to existing public house.

Type n/a
Status Unknown
Date Date not available

Application to facilitate the continued restoration of Fonmon Castle and Estate, comprising of the following: Site 1: Full Application: for ...

Type n/a
Status Unknown
Date Date not available

Discharge of Conditions 4. (Flooring Details) 5.(Window and Doors) 6. (Material Sample Office Roof) 7.(Drainage and ventilitation) for plann...

Type n/a
Status Unknown
Date Date not available

Roof extension with a front/rear dormer, raised roof ridge and part-first floor side extension.

Type House extension
Status Unknown Appeal
Date Date not available

Installation of vacuum double-glazing panes to all front and rear elevation windows; and replacement of mansard non-historical windows with ...

Type Other
Status Unknown
Date Date not available

Installation of vacuum double-glazing panes to all front and rear elevation windows; and replacement of mansard non-historical windows with ...

Type Other
Status Unknown
Date Date not available

Proposed side and rear extension, rear air Source Heat Pump and solar PV panels.

Type House extension
Status Unknown
Date Date not available

Replacement of existing fibre cement roof with insulated roof sheeting on pitted sections; replacement of existing roof lights with flush fi...

Type Industrial
Status Unknown
Date Date not available

Single storey side extension and part single storey, part two storey rear extension

Type House extension
Status Unknown
Date Date not available

Rear dormer extension to first-floor flat and associated internal alterations.

Type House extension
Status Unknown
Date Date not available

Advertisement consent for the display of 1 no. internally illuminated portrait LED advertisement digital screen, 4m(w) x 6m(h) on the southe...

Type Advertisement
Status Unknown
Date Date not available

Temporary installation of non-illuminated shroud screening with an advertisement area of 49m2.

Type Advertisement
Status Unknown Appeal
Date Date not available

Roof extension on the rear section of the building to provide one additional bedroom, a study and a bathroom.

Type House extension
Status Unknown Appeal
Date Date not available

Part single, part two storey side and rear extensions, conversion of garage to habitable use, hip to mansard roof extension with dormers, an...

Type House extension
Status Unknown
Date Date not available

Retrospective application for alterations to garage and utility roof; including raising front of roof by 700mm, sloping backwards to existin...

Type House extension
Status Unknown
Date Date not available

Single storey rear extension and small single storey side extension. New rooflights to the main roof. One new obscured window to the first f...

Type House extension
Status Unknown
Date Date not available

Change of use of the existing building (Use Class E(a)) to a self-storage facility (Use Class B8) including reconfiguration of part of the e...

Type Change of use
Status Unknown
Date Date not available

Change of use of each dwelling from 4-bedroom HMO (Use Class C4) to a 7-bedroom (Sui Generis) HMO, including a two-storey rear extension and...

Type Change of use
Status Unknown
Date Date not available

Change of use from 4-bedroom HMO to a 6 bedroom HMO, including two-storey rear extension, single-storey front extension, installation of ext...

Type Change of use
Status Unknown
Date Date not available

Proposed single-storey side and rear extensions. Proposed front roof dormer and rear roof dormer. front extension.

Type House extension
Status Unknown
Date Date not available

Prior Approval application for change of use of part of the building to create 12no. residential units

Type Change of use
Status Unknown
Date Date not available

Change of use from Assisted/Supported Living Accommodation for up to three persons plus carer (Use Class C2), to a children's home for up to...

Type Change of use
Status Unknown
Date Date not available

Outline application with all matters reserved except for access for the redevelopment of land to form up to eight residential dwellings

Type New housing
Status Unknown
Date Date not available

Outline application with all matters reserved except for access, scale and layout parameters for: redevelopment of land to form C2 or C3 acc...

Type New housing
Status Unknown
Date Date not available

Application under Prior Approval for single storey rear extension. The extension will be 4.00 metres away from the original rear wall of the...

Type House extension
Status Unknown
Date Date not available
Plan thumbnail

Demolition of existing barn and replaced with a single dwelling (C3) using the same footprint and massing.

Type New housing
Status Current
Date Date not available

Demolition of vacant building and erection of a two-storey (with basement) two-bedroom dwellinghouse.

Type New housing
Status Unknown
Date Date not available

Single-storey rear extension with internal and external alterations, including chimney removal.

Type House extension
Status Unknown
Date Date not available

Application Reference HGY/2025/3572 Proposal Erection of single storey rear extension Application Status Decision Made Site Address 11 Courc...

Type House extension
Status Unknown
Date Date not available

Application Reference HGY/2025/03572 Proposal Prior Approval for Photovoltaic (PV) installation of a solar PV carport over an existing carpa...

Type Renewable energy
Status Unknown
Date Date not available

Application Reference HGY/2025/3537 Proposal Replacement of existing slate roof with new slate covering. Repairs to chimney stack by repoint...

Type Other
Status Unknown
Date Date not available

Application Reference HGY/2025/3536 Proposal Replace the windows throughout, replace the rear door, repair boundary walls and paving (revise...

Type Other
Status Unknown
Date Date not available

Application Reference HGY/2025/3553 Proposal Conversion of loft to a habitable room including the installation of 2 rooflights on the rear r...

Type House extension
Status Unknown
Date Date not available

Application Reference HGY/2025/3527 Proposal Erection of single-storey rear extension; new rooflight on the front roof slope; solar photovol...

Type House extension
Status Unknown
Date Date not available

Application Reference HGY/2025/3548 Proposal Replace the main flat roof covering, existing upvc rainwater goods, windows throughout with upv...

Type Other
Status Unknown
Date Date not available

Application Reference HGY/2025/3495 Proposal Change of use from 5-bedroom single dwellinghouse (Class C3) to a 6-bed 6-person House in Multi...

Type Change of use
Status Unknown
Date Date not available

Application Reference HGY/2025/3501 Proposal Advertisement consent for the alteration to the shopfront including the replacement of the pain...

Type Advertisement
Status Unknown
Date Date not available

Application Reference HGY/2025/3498 Proposal (Retrospective) Erection of a new build “community hub” and flat pack self-assembled metal stor...

Type Other
Status Unknown
Date Date not available

Application Reference HGY/2025/3494 Proposal Installation of 1 additional CCTV security camera to South West corner of Bruce Castle Museum. ...

Type Other
Status Unknown
Date Date not available

Application Reference HGY/2025/3491 Proposal Formation of additional storey on existing single-storey Studio/Workshop and erection of attach...

Type Commercial
Status Unknown
Date Date not available

Application Reference HGY/2025/3482 Proposal The Installation of an Air Source Heat Pump and small lightweight slatted timber enclosure, in ...

Type Renewable energy
Status Unknown
Date Date not available

Application Reference HGY/2025/3481 Proposal New external staircase to upper floor flat. Internal alterations to the upper floor flat. Appli...

Type Other
Status Unknown
Date Date not available

Application Reference HGY/2025/3385 Proposal Erection of ground floor wraparound extension Application Status Decision Made Site Address 137...

Type House extension
Status Unknown
Date Date not available

Application Reference HGY/2025/2309 Proposal Removal of existing two-storey rear outriggers and erection of a single storey rear extension t...

Type New housing
Status Unknown
Date Date not available

Application Reference HGY/2025/2627 Proposal Erection of ground floor single storey front extension with flat green roof and 1no. rooflight ...

Type House extension
Status Unknown
Date Date not available

Application Reference HGY/2025/2423 Proposal Demolition of existing rear timber terrace structure & stairs. Erection two-storey rear ground ...

Type House extension
Status Unknown
Date Date not available

Application Reference HGY/2025/1620 Proposal Replacement of the existing roof slates with new natural slates, replacement of the porch roof ...

Type Other
Status Unknown
Date Date not available

Application Reference HGY/2025/1298 Proposal Full planning application for the temporary change of use (until 31 December 2028) to provide c...

Type Change of use
Status Unknown
Date Date not available

Application Reference HGY/2025/0514 Proposal Construct a new retaining wall, extending 6.m into to the rear garden and replacing the retaini...

Type Other
Status Unknown
Date Date not available

Estyniad cefn un llawr to fflat a mewnlenwi ochr ynghyd â ffenestr gromen arfaethedig i flaen a chefn yr eiddo. Proposed Single storey flat ...

Type House extension
Status Unknown
Date Date not available

Estyniad i ochr yr uned amaethyddol bresennol. Extension to side of existing agricultural unit

Type Agricultural
Status Unknown
Date Date not available

Estyniad arfaethedig i modurdy masnachol presennol. Proposed extension to existing commercial garage.

Type Commercial
Status Unknown
Date Date not available

Cais am ddau bwmp Gwresogi Aer 'Riello' / Application for the Installation of two 'Riello' air source Heat Pumps

Type Renewable energy
Status Unknown
Date Date not available

Estyniad ac addasiadau i'r eiddo gwreiddiol Extension and alterations to existing dwelling

Type House extension
Status Unknown
Date Date not available

Cais ôl-weithredol ar gyfer estyniad cegin i anecs Retrospective application for kitchen extension to annexe

Type House extension
Status Unknown
Date Date not available

Newid defnydd o delicatessen (A1) i fwyty (A3). Change of use from delicatessen (A1) to restaurant (A3).

Type Change of use
Status Unknown
Date Date not available

Gosod Pwmp Gwres Ffynhonnell Aer Riello Installation of a Riello Air Source Heat Pump

Type Renewable energy
Status Unknown
Date Date not available

Newid defnydd adeilad amaethyddol i ffurfio anecs yn gysylltiedig a'r ty, gosod carafan a container dros dro a chais ol-weithredol i greu tr...

Type Change of use
Status Unknown
Date Date not available

Erection of a single storey side extension within the permitted development rights for extensions to a single dwelling house. Proposal inclu...

Type n/a
Status Unknown
Date Date not available

Demolition of the existing outhouses to erect a Single storey side extension with associated works Condition 6 - Details of fenestration

Type n/a
Status Unknown
Date Date not available

Discharge of Conditions 21. (Ground Gas Assessment) 22. (Contaminated Land 1) 23. (Contaminated Land - Remediation & Verification) for plann...

Type n/a
Status Unknown
Date Date not available

Partial discharge of Conditions 26.(Importation of Soils) 27. (Importation of Aggregates) 28. (Use of Site Won Materials) for planning ref:2...

Type n/a
Status Unknown
Date Date not available

Discharge of Conditions 11.(new window/door openings and lintel details) 13.( no additional flues, vents etc_ for planning ref: 2023/01057/L...

Type n/a
Status Unknown
Date Date not available
Plan thumbnail

Alterations to exiting butchers shop to extend in to adjacent premises. Alterations include replacement aluminium shopfronts and awnings, as...

Type Commercial
Status Unknown
Date Date not available

Proposed single storey rear extension in addition to flat roof replacement with additional flat roof light over the existing kitchen.

Type House extension
Status Unknown
Date Date not available

Proposed flat roof extension to rear of dwelling and proposed annexe to side. Proposed extension to existing garage

Type House extension
Status Unknown
Date Date not available

Prior Approval proposed rear extension Elevations comprising of a sliding patio door, gable window frame and brickwork. Glazed roof. 3.61m w...

Type House extension
Status Unknown
Date Date not available

Ground floor rear extension, front porch, rooflights, new basement with lightwell and internal alterations.

Type House extension
Status Unknown
Date Date not available

Single storey flat roof rear extension, - Garage roof raised by 600mm to form bedroom over garage - 2x dormers added garage roof

Type House extension
Status Unknown
Date Date not available

Proposed replacement shops (A1) at ground floor level to include new chip shop (A3) & residential flat to first floor.

Type Commercial
Status Unknown
Date Date not available

Site refurbishment works including extension to existing hardstanding, reconfiguration of car parking, installation of boundary fencing and ...

Type Industrial
Status Unknown
Date Date not available

Install a 30 metre lattice tower with 4no. antennas, 1no. GPS node, 2no. equipment cabinets, 1no. meter cabinet, proposed compound and 1.8m ...

Type Infrastructure
Status Unknown
Date Date not available

Alterations and Extensions to form Dining Room and En-suite Bedroom

Type House extension
Status Unknown
Date Date not available

Change of use to equestrian menage in assocation with existing stables approval A210905 for private use (not commercial) (Resubmission A2405...

Type Change of use
Status Unknown
Date Date not available

First floor rear extension to existing solicitors' practice (office accommodation).

Type Commercial
Status Unknown
Date Date not available

Part single and part two storey rear extension and loft conversion with rear dormer including 3no roof windows and basement

Type House extension
Status Unknown
Date Date not available

Proposed conversion of agricultural building into holiday accommodation to include installation of package treatment plant and alterations t...

Type Change of use
Status Unknown
Date Date not available

Proposed installation of solar PV panels and associated infrastructure on flat roof of existing office building.

Type Renewable energy
Status Unknown
Date Date not available

Retrospective planning permission for an existing agricultural barn. Retention of vehicular access, provision of hard and soft landscaping i...

Type Agricultural
Status Unknown
Date Date not available

Loft conversion with rear dormer and velux windows to the existing side and front roofslopes

Type House extension
Status Unknown
Date Date not available
Plan thumbnail

Retrospective application for change of use to large house in multiple occupation (HMO).

Type Change of use
Status Unknown Appeal
Date Date not available
Plan thumbnail

Replace existing dwelling with two flats (one 1-bed, one 2-bed) with associated access works.

Type New housing
Status Unknown
Date Date not available
Plan thumbnail

Construct two-storey building containing four self-contained one-bedroom flats; add three rear windows.

Type New housing
Status Unknown
Date Date not available
Plan thumbnail

Prior approval to convert single-storey commercial building into two one-bedroom flats.

Type Change of use
Status Unknown
Date Date not available

Subdivision of retail space into two separate units at ground floor, including adjustments to existing shopfront façade and partial change o...

Type Commercial
Status Unknown
Date Date not available
Plan thumbnail

Proposed change of use from a residential unit (C3) to short-term let accommodation (Use Class Sui generis). (amended description)

Type Change of use
Status Unknown
Date Date not available
Plan thumbnail

Change of use from office (Use Class E(g)(i)) to temporary accommodation (Use Class Sui Generis) with ancillary supported services with loft...

Type Change of use
Status Unknown
Date Date not available

Reference 26/00487/HPA Received Date 09/2/2026 Application type Householder planning permission Site address 67 CAMBRIDGE ROAD, PENGE, LONDO...

Type House extension
Status Unknown
Date Date not available

Reference 26/00449/HPA Received Date 05/2/2026 Application type Householder planning permission Site address 84 MANOR WAY, BECKENHAM, BR3 3L...

Type House extension
Status Unknown
Date Date not available

Reference 26/00400/HPA Received Date 03/2/2026 Application type Householder planning permission Site address 7 ROSE DALE, ORPINGTON, BR6 8LD...

Type House extension
Status Unknown
Date Date not available
Plan thumbnail

Replace existing side extension roof with a flat roof and glass roof panels, replace extension side windows and door, new window to front of...

Type House extension
Status Unknown
Date Date not available

Application Reference EPF/0262/26 Site Address Denver Lodge, Waltham Road, Nazeing, Waltham Abbey, EN9 2EB Proposal Erection of 2no annexe b...

Type Other
Status Unknown
Date Date not available

Application Reference EPF/0261/26 Site Address Land adjacent Chaulkfield Nursery, south side of Sedge Green Road Proposal Retrospective cons...

Type Change of use
Status Unknown
Date Date not available

Application Reference EPF/2032/25 Site Address 12, Nursery Rise, Waltham Abbey, EN9 3FB Proposal Retrospective consent for garage conversion...

Type House extension
Status Unknown
Date Date not available

Application Reference EPF/0208/26 Site Address Coopers, 84 Coopers Hill, Ongar, CM5 9EF Proposal Proposed freestanding treehouse. Received D...

Type Other
Status Unknown
Date Date not available

Application Reference EPF/0284/26 Site Address The Mole Trap Ph, Annexe, Tawney Common, Stapleford Tawney, Romford, CM16 7PU Proposal Replac...

Type Other
Status Unknown
Date Date not available

Application Reference EPF/0242/26 Site Address 12, Starling Close, Buckhurst Hill, IG9 5TN Proposal Demolition of existing garage and format...

Type House extension
Status Unknown
Date Date not available

Application Reference EPF/0279/26 Site Address Unit 4 Bansons Yard Bansons Yard High Street Ongar CM5 9AA Proposal Prior approval for change...

Type Change of use
Status Unknown
Date Date not available

Application Reference EPF/0273/26 Site Address 51, River Way, Loughton, IG10 3LJ Proposal Single storey rear extension. Received Date 11/2/2...

Type House extension
Status Unknown
Date Date not available

Application Reference EPF/0203/26 Site Address Nash Hall, The Street, High Ongar, Ongar, CM5 9NL Proposal Retrospective application - Constr...

Type Other
Status Unknown
Date Date not available

Application Reference EPF/0204/26 Site Address Nash Hall, The Street, High Ongar, Ongar, CM5 9NL Proposal Change of use of agricultural buil...

Type Change of use
Status Unknown
Date Date not available

Application Reference EPF/0274/26 Site Address 2 Warden Hall Cottages, Fyfield Road, Willingale, Ongar, CM5 0QB Proposal Demolition of exist...

Type House extension
Status Unknown
Date Date not available

Application Reference EPF/2379/25 Site Address Bellevue, Hoe Lane, Nazeing, Waltham Abbey, EN9 2RJ Proposal Creation of 2no. Self-build dwel...

Type New housing
Status Unknown
Date Date not available

Application Reference EPF/0270/26 Site Address 1 White Cottage Woodredon Farm, Woodredon Farm Lane, Waltham Abbey, EN9 3SX Proposal Erection...

Type House extension
Status Unknown
Date Date not available

Application Reference EPF/0260/26 Site Address Blue Boar Public House, Market Place, Lambourne, Romford, RM4 1UA Proposal Advertisement cons...

Type Advertisement
Status Unknown
Date Date not available

Application Reference EPF/0163/26 Site Address North Cottage, Epping Road, Nazeing, Waltham Abbey, EN9 2DH Proposal Single Storey Rear exten...

Type House extension
Status Unknown
Date Date not available

Application Reference EPF/0271/26 Site Address 2 White Cottage Woodredon Farm, Woodredon Farm Lane, Waltham Abbey, EN9 3SX Proposal Proposed...

Type House extension
Status Unknown
Date Date not available

Application Reference EPF/0263/26 Site Address Land at Paynes Lane, Waltham Abbey, EN9 2EZ Proposal Proposed Erection of Private Stable Bloc...

Type Agricultural
Status Unknown
Date Date not available

Application Reference EPF/0254/26 Site Address 29, Algers Road, Loughton, IG10 4NG Proposal Extension of existing dropped kerb, loft convers...

Type House extension
Status Unknown
Date Date not available

Application Reference EPF/0237/26 Site Address 29, Princes Close, North Weald Bassett, Epping, CM16 6EW Proposal Two storey side extension. ...

Type House extension
Status Unknown
Date Date not available

Application Reference EPF/0250/26 Site Address Fairmead Plot 3, Church Road , Loughton, IG10 4AJ Proposal Erection of a detached self-build ...

Type New housing
Status Unknown
Date Date not available

To use the premises as an extension to an already establish gymnasium.

Type n/a
Status Unknown
Date Date not available

A single storey rear extension with rendered walls to match the existing, a roof light, and a singular window on the side elevations.

Type n/a
Status Unknown
Date Date not available

The installation of a 1.46 metre high boundary fence and pedestrian gate (retrospective) and the proposed installation of a vehicular gate t...

Type n/a
Status Unknown
Date Date not available

Amendments to the retention of the wall-as-built, gate and gate posts.

Type n/a
Status Unknown
Date Date not available

Lawful Development Certificate (Proposed) - Construction of dormer roof extension to main rear roof, together with installation of two roof ...

Type n/a
Status Unknown
Date Date not available

Lawful Development Certificate (Proposed) - Construction of dormer roof extension to main rear roof (with French doors and safety railings) ...

Type n/a
Status Unknown
Date Date not available

Prior approval for the construction of a single storey rear extension that would extend 6.00m with a maximum height of 3.00m and an eaves he...

Type n/a
Status Unknown
Date Date not available

Lawful Development Certificate (Proposed) - Construction of a hip to gable side roof extension, and dormer roof extension to main rear roof,...

Type n/a
Status Unknown
Date Date not available

Prior approval for the construction of a single storey rear extension which would extend 6.00m beyond the rear wall of the existing dwelling...

Type n/a
Status Unknown
Date Date not available

Lawful Development Certificate (Proposed) - Construction of dormer roof extension to main rear roof, with extension above two storey outrigg...

Type n/a
Status Unknown
Date Date not available

Lawful Development Certificate (Proposed) Construction of dormer roof extension to main rear roof (with French doors and safety railings) , ...

Type n/a
Status Unknown
Date Date not available

Construction of a two storey side infill extension at ground and first floor level and single storey rear extension at ground floor level to...

Type n/a
Status Unknown
Date Date not available

  Lawful Development Certificate (Proposed) Conversion of garage into a bathroom including replacement of garage door and height increase.

Type n/a
Status Unknown
Date Date not available

Lawful Development Certificate (Proposed) - Construction of dormer roof extension to main rear roof, together with installation of two roof ...

Type n/a
Status Unknown
Date Date not available

Lawful Development Certificate (Proposed) - (1) Construction of a hip to gable side roof extension, and dormer roof extension to main rear r...

Type n/a
Status Unknown
Date Date not available

Construction of a mansard roof extension with rear facing dormer and two rooflights to the front, together with a single storey rear wraparo...

Type n/a
Status Unknown
Date Date not available

Prior approval for the construction of a single storey rear extension which would extend 6.00m beyond the rear wall of the existing dwelling...

Type n/a
Status Unknown
Date Date not available

Prior approval for the construction of a single storey rear extension which would extend 5.28m beyond the rear wall of the existing dwelling...

Type n/a
Status Unknown
Date Date not available

Lawful Development Certificate (Proposed) - Construction of dormer roof extension to main rear roof, and roof extension above two storey out...

Type n/a
Status Unknown
Date Date not available

New permanent PRV building to improve existing water treatment facilities.

Type Infrastructure
Status Unknown
Date Date not available

Application to approve S106 affordable housing clauses related to BE/148/20/OUT.

Type Other
Status Unknown
Date Date not available

Application to approve S106 affordable housing clause related to P/140/16/OUT.

Type Affordable housing
Status Unknown
Date Date not available

Lawful development certificate for conversion of garage into home office and shower room.

Type Change of use
Status Unknown
Date Date not available

Remove bay window and garage; construct single-storey rear extension, first-floor front extension and attached garage.

Type House extension
Status Unknown
Date Date not available

Extend the height of existing brick boundary wall by adding a 1.2m high green twin mesh fence, to sit above existing wall between the bounda...

Type Other
Status Unknown
Date Date not available

Demolish garage; single-storey rear and side extensions; replace flat roof with pitched roof.

Type House extension
Status Unknown
Date Date not available

Installation of one internally illuminated sign (retrospective).

Type Advertisement
Status Unknown
Date Date not available

Installation of 1 No. new communications kiosk with integrated defibrillator and advertising display. This application is in CIL Zone 4 (Zer...

Type Advertisement
Status Unknown Appeal
Date Date not available

Installation of 1 No. illuminated advertising display within communications kiosk with integrated defibrillator.

Type Advertisement
Status Unknown
Date Date not available

Installation of 1 No. new communications kiosk with integrated defibrillator and advertising display. This application is in CIL Zone 4 (Zer...

Type Advertisement
Status Unknown Appeal
Date Date not available

Installation of 1 No. illuminated advertising display within communications kiosk with integrated defibrillator.

Type Advertisement
Status Unknown
Date Date not available

Installation of 1 No. new communications Kiosk with integrated defibrillator and illuminated advertising display. This application is in CIL...

Type Advertisement
Status Unknown Appeal
Date Date not available

Installation of 1 No. illuminated advertising display within communications kiosk with integrated defibrillator.

Type Advertisement
Status Unknown
Date Date not available

Installation of 1 No. new communications kiosk with integrated defibrillator and advertising display. This application is in CIL Zone 4 (Zer...

Type Advertisement
Status Unknown Appeal
Date Date not available

Installation of 1 No. illuminated advertising display within communications kiosk with integrated defibrillator.

Type Advertisement
Status Unknown
Date Date not available
Plan thumbnail

Application to determine whether prior approval is required for the installation of replacement apparatus & pole.

Type n/a
Status Unknown
Date Date not available

Single storey rear extension to include removal of existing sun room, existing windows replaced and positions adjusted to facilitate interna...

Type n/a
Status Unknown
Date Date not available

Proposed replacement of existing frontage fence and gate with new rendered wall, personnel gate and sliding gate.

Type n/a
Status Unknown
Date Date not available

Proposed loft conversion with roof extension from hip to gable and dormer to create first floor living accommodation.

Type n/a
Status Unknown
Date Date not available

Extension of southern roof to create external covered terrace area to the rear of the property. Creation of small western canopy to provide ...

Type n/a
Status Unknown
Date Date not available

Proposed installation of larger gable window and two roof lights to improve the first-floor accommodation within the detached garage roof sp...

Type n/a
Status Unknown
Date Date not available

Conversion of the former Cowbridge Police Station into over 55's affordable residential apartments, alongside the demolition and re-developm...

Type n/a
Status Unknown
Date Date not available

Change of use of part of ground floor from residential (flat) to sale of food and drink for consumption mainly on premises. Alterations to s...

Type n/a
Status Unknown
Date Date not available

Discharge of Condition 1. (Historic Buiding Recording) for planning ref; 2024/00641/LBC - Remove/Re-new a defective lead flat roof and rotte...

Type n/a
Status Unknown
Date Date not available

Ground floor rear extension, a hip-to-gable roof conversion, and the addition of three front gable dormers along with a rear flat roof dorme...

Type n/a
Status Unknown
Date Date not available

Erection of one self-build chalet bungalow in garden of 275 Goring Way; partial rear extension removal.

Type New housing
Status Unknown
Date Date not available