← Back to Adur & Worthing Councils

Status

Registered Change of use
Received
08 Sep 2025
New dwellings
0

Full Proposal

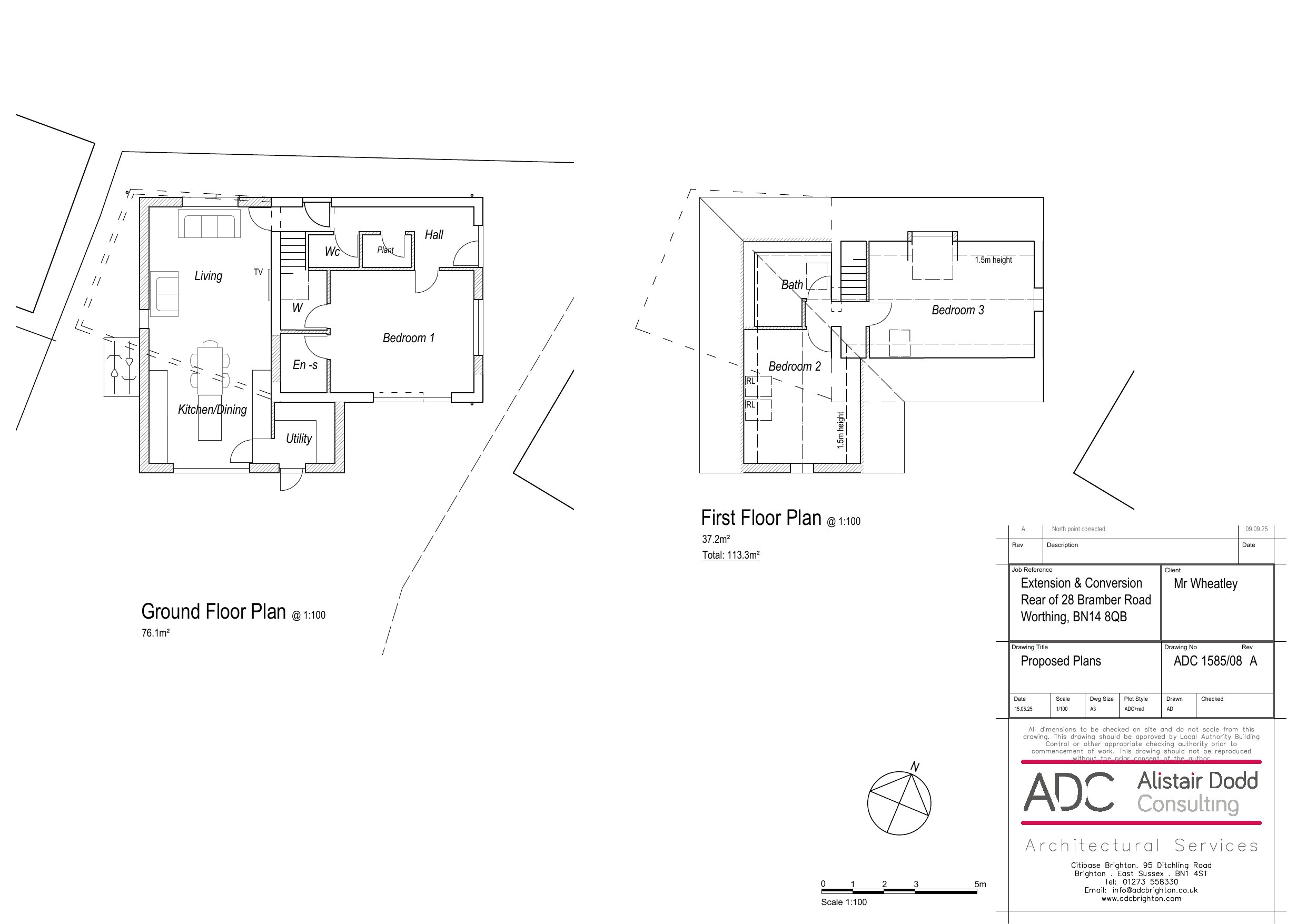
Change of use of a garage into a dwelling, including demolition of rear lean to and construction of a two-storey rear extension, side dormer, rooflights and associated alterations.

Documents

APPLICATION FORM
Application Form
Not archived · Council Link
ELEVATIONS AS EXISTING
Latest plan
Not archived · Council Link
Letter
Consultation Response
Not archived · Council Link
Map
Consultation Response
Not archived · Council Link
PLANNING STATEMENT
Supporting Statement
Not archived · Council Link
PLANS AS EXISITING
Latest plan
Not archived · Council Link
PROPOSED ELEVATIONS
Latest plan
Not archived · Council Link
Latest plan
Archived · Council Link
PROPOSED SITE LAYOUT
Latest plan
Not archived · Council Link
Site Location/Block Plan
Archived · Council Link
WSCC Highways
Consultation Response
Not archived · Council Link
WSP
Consultation Response
Not archived · Council Link

Take Action

Make your voice heard. Authorities need to hear from people who support new homes.

✉️ Write Email in Support View on Council Portal