← Back to Ashfield District Council

Status

Unknown status Other
Received
n/a
New dwellings
0

Full Proposal

Planning Application - Valid From 04/11/2025

Documents

Application Form - ApplicationFormRedacted
Document
Not archived · Council Link
Approved Elevations - Proposed - Stack-23716 12200 x 3400 WC Sports Changing Elevations
Document
Not archived · Council Link
Approved Floor Plans - Proposed - Stack-23716 12200 x 3400 WC Sports Changing
Document
Not archived · Council Link
Approved Material Details - 4d358239-a3f7-4759-b053-80d3fe857019 (2)
Document
Not archived · Council Link
Approved Material Details - b61262ba-5bba-4730-8f39-1ce208527c3d (1)
Document
Not archived · Council Link
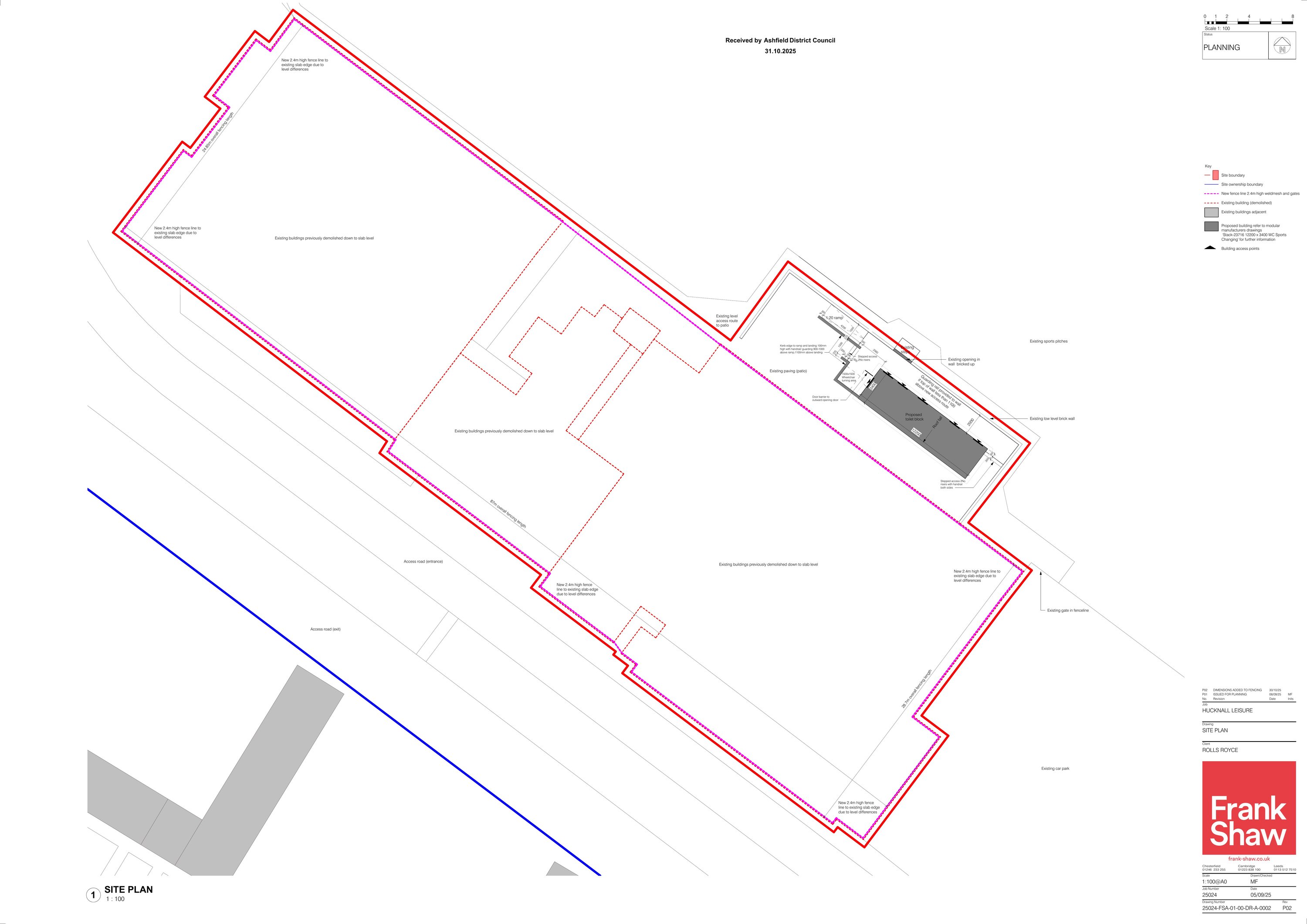
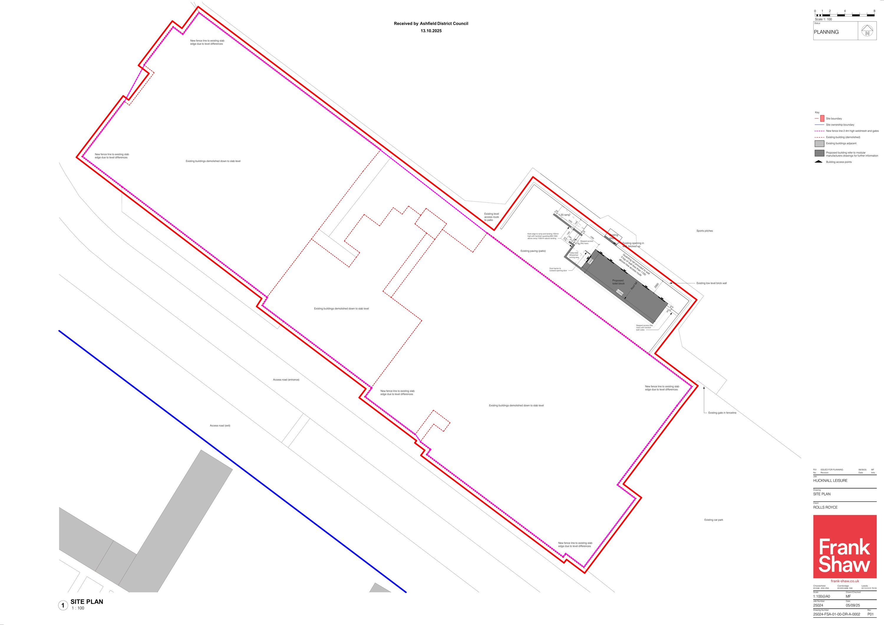
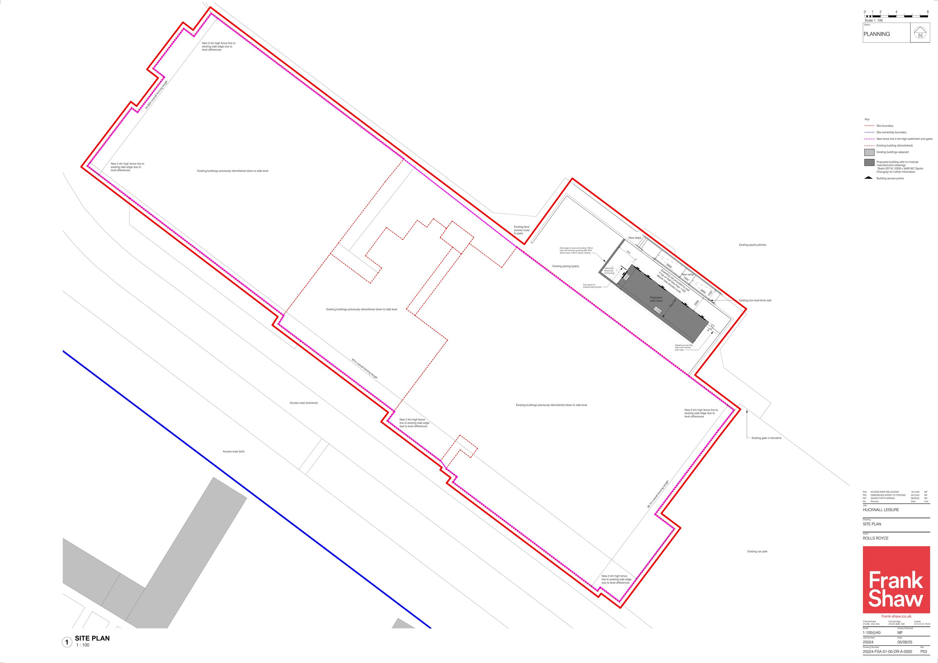
Approved Site and Block Plan - FW: [EXTERNAL]:RE: V/2025/0579 - The Engine Rooms, Watnall Road Aerodrome
Document
Not archived · Council Link
Decision Notice - V20250579_10070853268_DECNNOTE_23122025_Redacted
Document
Not archived · Council Link
Delegated Report - V20250579_10070853268_OFFCRLTR_23122025_Redacted
Document
Not archived · Council Link
Design & Access Statement - Hucknall Sports Club Design Access Statement
Document
Not archived · Council Link
Flood Risk Plan - flood-map-planning-2025-09-03T15_06_24.175Z
Document
Not archived · Council Link
Heritage Statement - 25024-FSA-XX-XX-RP-A-0001-P01_Heritage statement
Document
Not archived · Council Link
Superseded Site and Block Plan - 25024-FSA-01-00-DR-A-0001-P01-SITE LOCATION AND BLOCK PLAN
Document
Not archived · Council Link
Superseded Site and Block Plan - 25024-FSA-01-00-DR-A-0001-P02-SITE LOCATION AND BLOCK PLAN-
Document
Not archived · Council Link

Take Action

Make your voice heard. Authorities need to hear from people who support new homes.

✉️ Write Email in Support View on Council Portal