← Back to Ashfield District Council

Status

Unknown status New housing
Received
n/a
New dwellings
0

Full Proposal

Planning Application - Valid From 28/01/2026

Documents

A.D.C. - Ecology - Ecology V_2026_0014
Document
Not archived · Council Link
A.D.C. - Environmental Protection - V_2026_0014 EP_Redacted
Document
Not archived · Council Link
Application Form - ApplicationFormRedacted
Document
Not archived · Council Link
Biodiversity Metric - BNG
Document
Not archived · Council Link
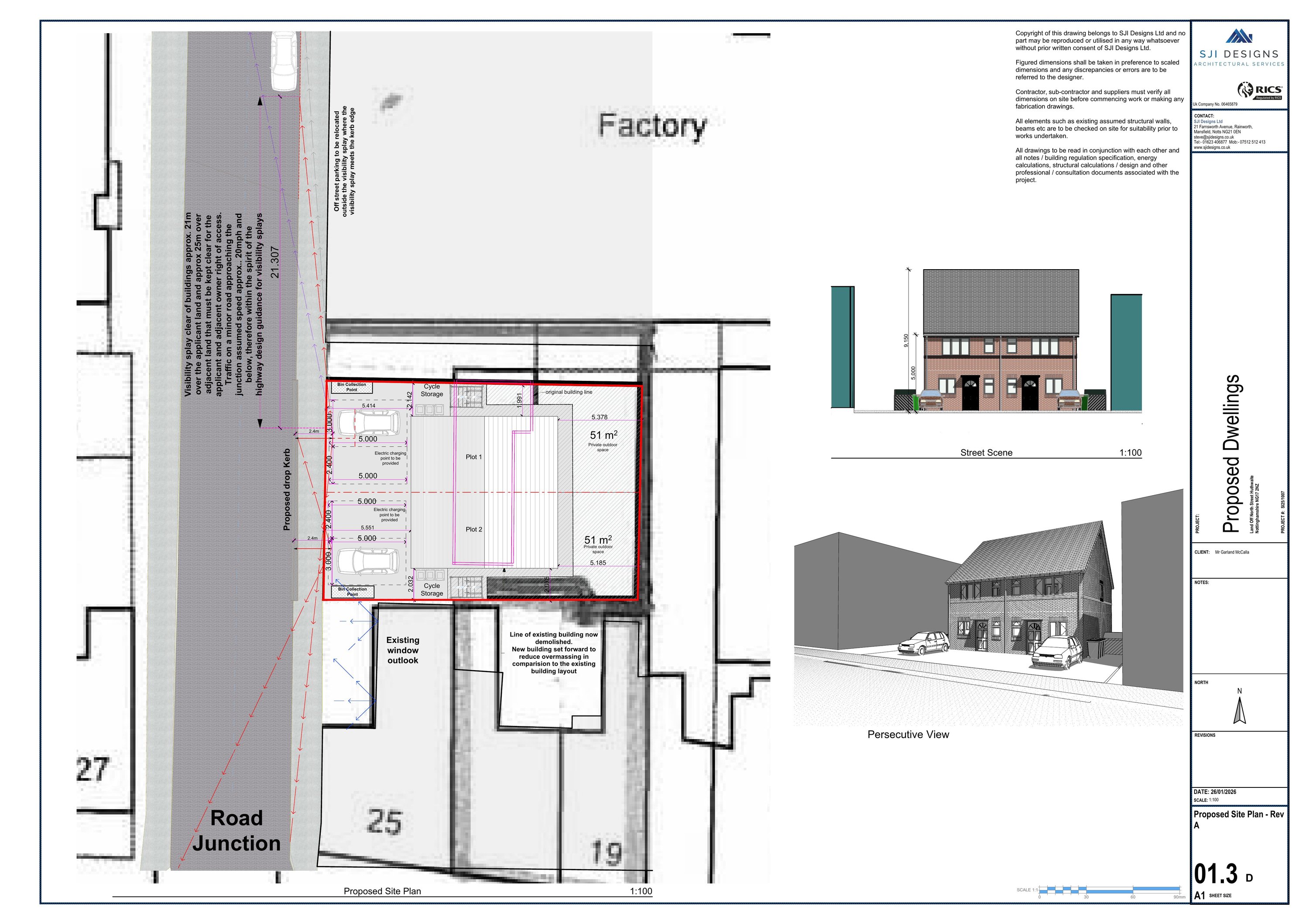
Elevations and Floor Plans - Proposed - 01.2 Proposed Elevations and Gorund Floor Layout
Document
Not archived · Council Link
Elevations and Floor Plans - Proposed - [EXTERNAL]:Re: V/2026/0014
Document
Not archived · Council Link
Nottinghamshire County Council - Highways - V-2026-0014
Document
Not archived · Council Link
Planning Statement
Document
Not archived · Council Link
Site Notice Photo - IMG_20260210_141325
Document
Not archived · Council Link
Site Notice Photo - IMG_20260210_141343
Document
Not archived · Council Link
Swepth Path Analysis - 01.4 Swept Path Car Access
Document
Not archived · Council Link

Take Action

Make your voice heard. Authorities need to hear from people who support new homes.

✉️ Write Email in Support View on Council Portal