← Back to Babergh Mid Suffolk Council

Status

Awaiting decision Change of use
Received
08 Dec 2025
New dwellings
2

Full Proposal

Full Planning Application - Change of use of first floor to 2no. C3 residential flats. Internal and external alterations to The Ram Public House, erection of single storey courtyard extension.

Documents

6031_THE RAM_INVESTIGATION WORKS
Report
Not archived · Council Link
APPLICATION FORM
Application Form
Not archived · Council Link
DESIGN AND ACCESS STATEMENT
Report
Not archived · Council Link
ENV. RESPONSE - LAND CONTAMINATION
Consultee Comment
Not archived · Council Link
ENVIRONMENTAL HEALTH (NOISE/ODOUR/LIGHT/SMOKE) RESPONSE
Consultee Comment
Not archived · Council Link
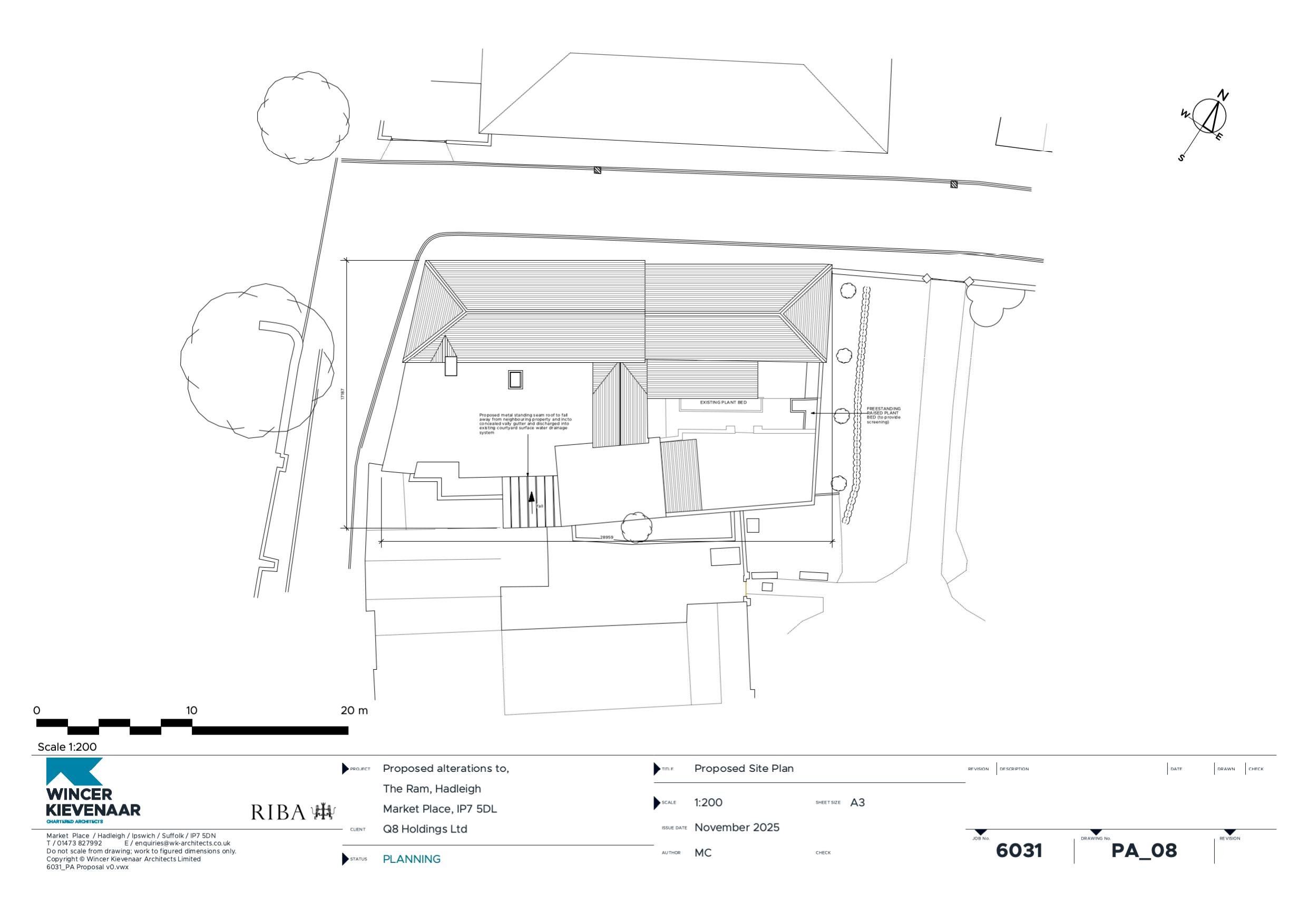
EXISTING AND PROPOSED FLOOR DETAILS 6031_PA_07
Drawing
Not archived · Council Link
EXISTING PLANS AND ELEVATIONS 6031_SU_01A
Drawing
Not archived · Council Link
EXISTING ROOF PLAN 6031_SU_03
Drawing
Not archived · Council Link
FIRE AND RESCUE RESPONSE
Consultee Comment
Not archived · Council Link
FIRE AND RESCUE SPRINKLER LETTER
Consultee Comment
Not archived · Council Link
HADLEIGH TOWN COUNCIL RESPONSE
Consultee Comment
Not archived · Council Link
HERITAGE ASSESSMENT
Report
Not archived · Council Link
NOISE REPORT THE RAM HADLEIGH 2523289 ESS
Report
Not archived · Council Link
PROPOSED ELEVATIONS 6031_PA_03
Drawing
Not archived · Council Link
PROPOSED ELEVATIONS 6031_PA_04
Drawing
Not archived · Council Link
PROPOSED ELEVATIONS 6031_PA_05
Drawing
Not archived · Council Link
PROPOSED FIRST FLOOR 6031_PA_02
Drawing
Not archived · Council Link
PROPOSED GROUND FLOOR 6031_PA_01
Drawing
Not archived · Council Link
PROPOSED ROOF PLAN 6031_PA_06
Drawing
Not archived · Council Link
REP25015 BAT ROOST ASSESSMENT THE RAM HADLEIGH
Report
Not archived · Council Link
SCC HIGHWAYS RESPONSE
Consultee Comment
Not archived · Council Link
SUPPLEMENTARY HERITAGE ASSESSMENT
Report
Not archived · Council Link
THE HADLEIGH SOCIETY RESPONSE
Consultee Comment
Not archived · Council Link
TOPOGRAPHICAL SURVEY 73653IPLS-01A
Drawing
Not archived · Council Link

Take Action

Make your voice heard. Authorities need to hear from people who support new homes.

✉️ Write Email in Support View on Council Portal