← Back to London Borough of Barking and Dagenham

Status

Unknown status Commercial
Received
n/a
New dwellings
0

Full Proposal

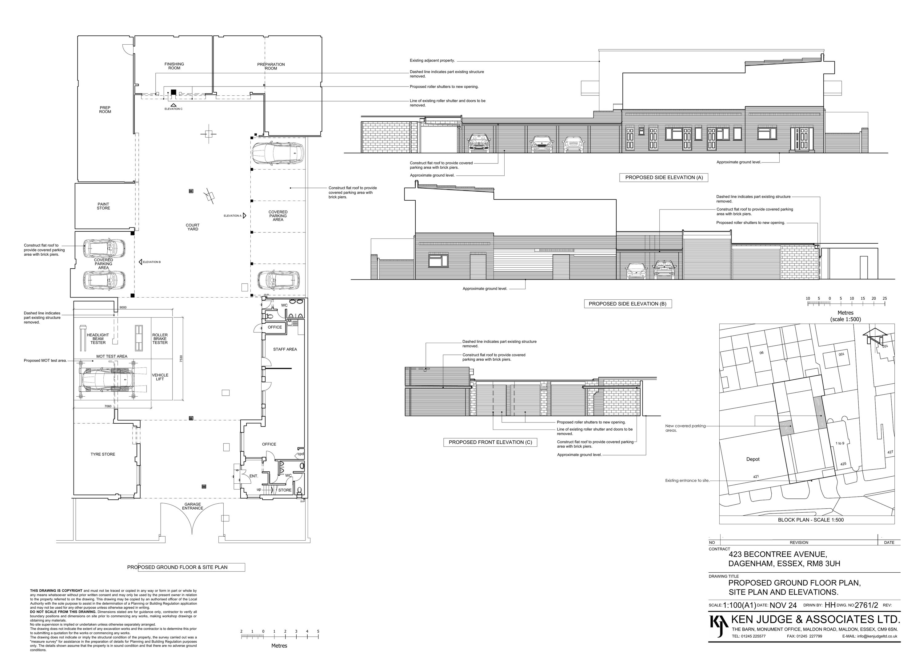
Installation of an MOT test centre within existing car repair site and proposed canopy to parking areas

Documents

Application Form Redacted
Application Form / Certificate of Ownership
Not archived · Council Link
BF Decision - FULL+HSE Granted
Decision Notice
Not archived · Council Link
Design and Access Statement
Applicant Correspondence
Not archived · Council Link
Officer Report
Officer Report
Not archived · Council Link
Planning Statement
Planning Statement
Not archived · Council Link
Transport Statement
Transport Assessment / Statement
Not archived · Council Link

Take Action

Make your voice heard. Authorities need to hear from people who support new homes.

✉️ Write Email in Support View on Council Portal