← Back to London Borough of Barnet

Status

Pending Consideration New housing
Received
30 Jun 2025
New dwellings
2

Summary

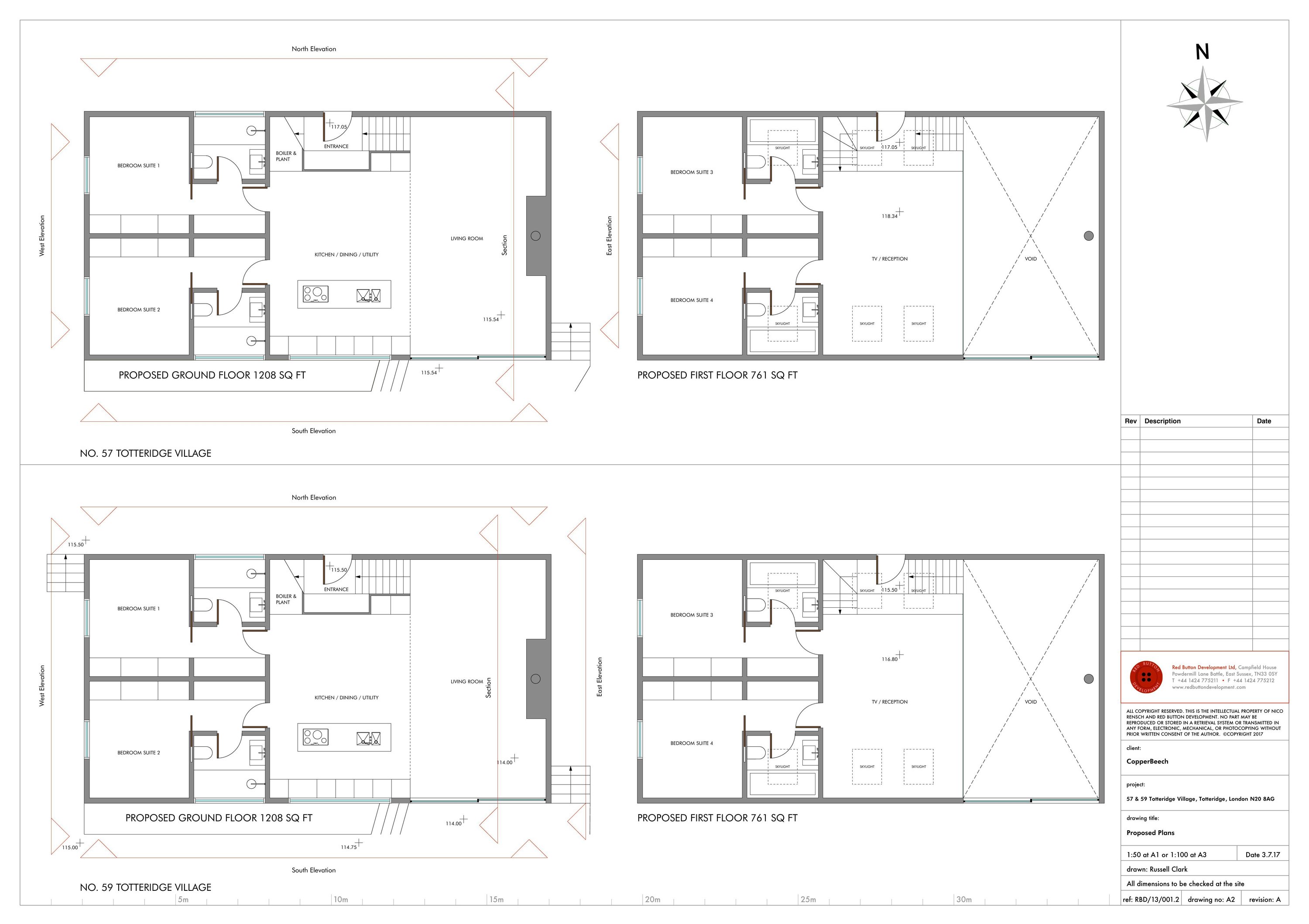
Demolish existing units and garage; build two single‑storey dwellings with mezzanines.

Full Proposal

Demolition of existing single storey dwellings and garage and redevelopment to provide 2no. single storey dwellinghouses with mezzanine levels

Documents

APPLICATION FORM - WITHOUT PERSONAL DATA
Application Form
Not archived · Council Link
ARBORICULTURAL IMPACT ASSESSMENT
Application Document
Not archived · Council Link
ARBORICULTURAL METHOD STATEMENT
Application Document
Not archived · Council Link
BASELINE ECOLOGY - PLAN
Application Document
Not archived · Council Link
BIKE AND REFUSE STORAGE DETAILS
Drawing
Not archived · Council Link
BIODIVERSITY NET GAIN (BNG)/BIOLOGICAL IMPACT ASSESSMENT (BIA)
Application Document
Not archived · Council Link
BLOCK PLAN
Drawing
Not archived · Council Link
BNG METRIC
Application Document
Not archived · Council Link
BNG METRIC II
Application Document
Not archived · Council Link
CAVAT ASSESSMENT REPORT COTTAGES 57 & 59, TOTTERIDGE VILLAGE
Application Document
Not archived · Council Link
CIL FORM
CIL Document
Not archived · Council Link
DESIGN & ACCESS STATEMENT
Design and Access Statement
Not archived · Council Link
DOCUMENT LIST
Application Document
Not archived · Council Link
ECOLOGICAL APPRAISAL 2023
Application Document
Not archived · Council Link
EMERGENCE 2024
Application Document
Not archived · Council Link
EXISTING / PROPOSED ELEVATIONS
Drawing
Not archived · Council Link
EXISTING FLOOR PLANS
Drawing
Not archived · Council Link
Drawing
Archived · Council Link
FINAL FULL REPTILE SURVEY 2023
Application Document
Not archived · Council Link
FOSTERS WYKEHAM RISE
Public Comment
Not archived · Council Link
FOSTERS WYKENHAM RISE N20
Public Comment
Not archived · Council Link
LANDSCAPE PROPOSALS - COTTAGE 57
Drawing
Not archived · Council Link
LANDSCAPE PROPOSALS - COTTAGE 59
Drawing
Not archived · Council Link
LANDSCAPE REPORT
Application Document
Not archived · Council Link
PROPOSED BLOCK PLAN
Drawing
Not archived · Council Link
PROPOSED BNG - PLAN
Application Document
Not archived · Council Link
Drawing
Archived · Council Link
Site Location Plan
Archived · Council Link
TREE REMOVAL / PROTECTION SURVEY
Application Document
Not archived · Council Link
TREE SURVEY - SOUTH
Application Document
Not archived · Council Link

Take Action

Make your voice heard. Authorities need to hear from people who support new homes.

✉️ Write Email in Support View on Council Portal