← Back to London Borough of Barnet

Status

Pending Consideration New housing
Received
11 Sep 2025
New dwellings
9

Summary

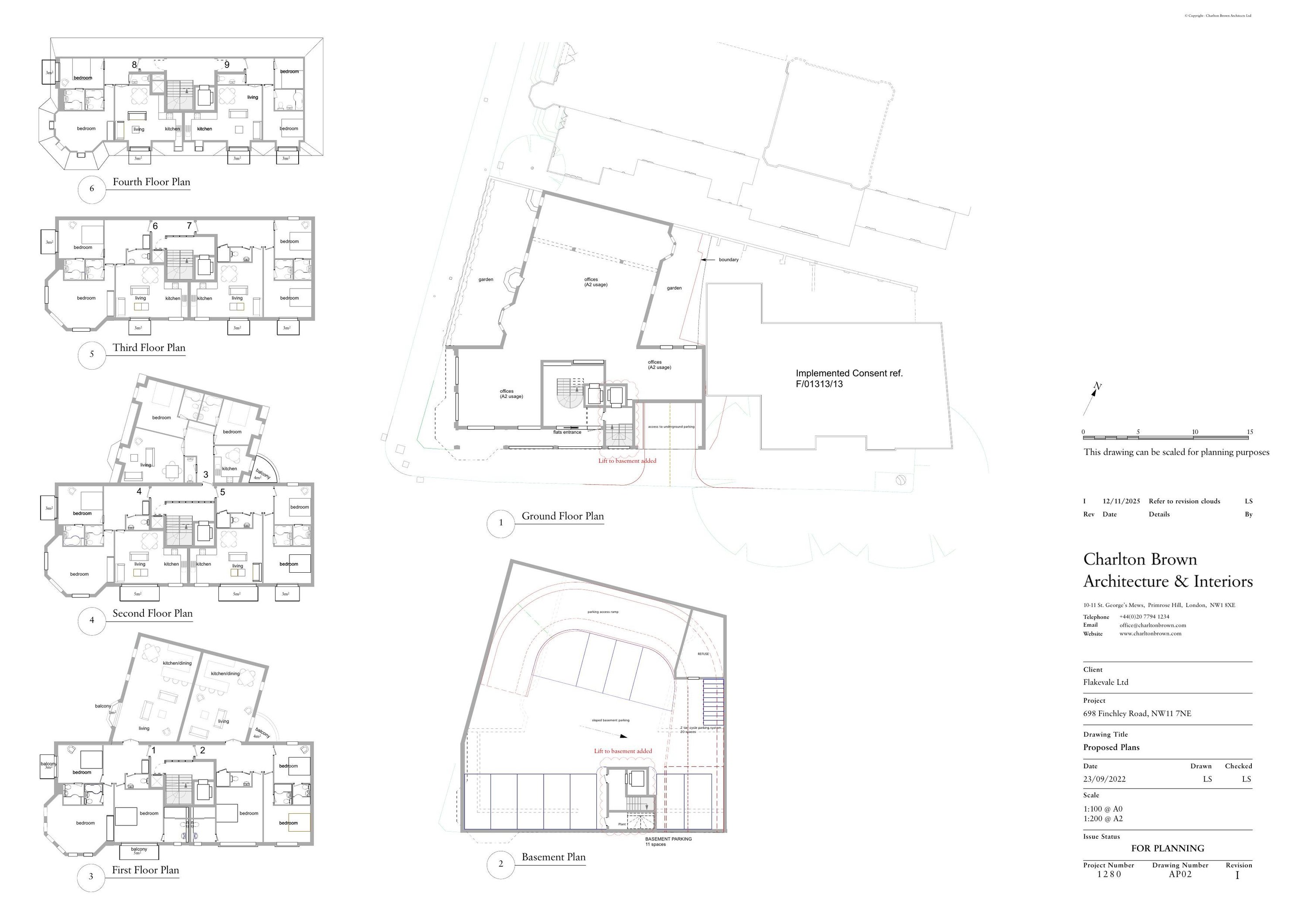
Redevelopment to provide ground-floor office and nine flats above, with basement parking, refuse and cycle storage.

Full Proposal

Phased development for the demolition of the existing building and erection of a part single, part two and part five storey building comprising of office space at ground floor level with 9no. self-contained flats (comprising of 7x 2 bed & 2 x 3 bed units) on the upper floors; and 11 car parking spaces at basement level accessed via Hoop Lane associated amenity space, refuse storage and cycle parking

Documents

APPLICATION FORM - WITHOUT PERSONAL DATA
Application Form
Not archived · Council Link
AREA HABITAT SUMMARY
Application Document
Not archived · Council Link
AREA HABITAT SUMMARY
Application Document
Not archived · Council Link
COMMUNITY INFRASTRUCTURE LEVY - COMPLETED FORM
CIL Document
Not archived · Council Link
DELEGATED REPORT
Report
Not archived · Council Link
FIRE STATEMENT
Application Document
Not archived · Council Link
HEDGEROW SUMMARY
Application Document
Not archived · Council Link
HEDGEROW SUMMARY
Application Document
Not archived · Council Link
PHASING PLAN
Drawing
Not archived · Council Link
PHASING PLAN
Additional plans
Not archived · Council Link
PLANNING STATEMENT
Planning statement
Not archived · Council Link
PRELIMINARY ECOLOGICAL APPRAISAL & BIODIVERSITY NET GAIN ASSESSMENT
Application Document
Not archived · Council Link
PROPOSED ELEVATIONS
Drawing
Not archived · Council Link
Drawing
Archived · Council Link
Revised Drawing
Archived · Council Link
Site Location Plan
Archived · Council Link
Drawing
Archived · Council Link
ST EDWARD THE CONFESSOR ROMAN CATHOLIC CHURCH, 700 FINCHLEY ROAD
Public Comment
Not archived · Council Link
ST EDWARD THE CONFESSOR ROMAN CATHOLIC CHURCH, 700 FINCHLEY ROAD_2
Public Comment
Not archived · Council Link
SURVEY ELEVATIONS
Drawing
Not archived · Council Link
SURVEY PLANS
Drawing
Not archived · Council Link
THE STATUTORY BIODIVERSITY METRIC START PAGE
Application Document
Not archived · Council Link

Take Action

Make your voice heard. Authorities need to hear from people who support new homes.

✉️ Write Email in Support View on Council Portal