← Back to Basildon Council

Status

Awaiting decision New housing
Received
09 Sep 2024
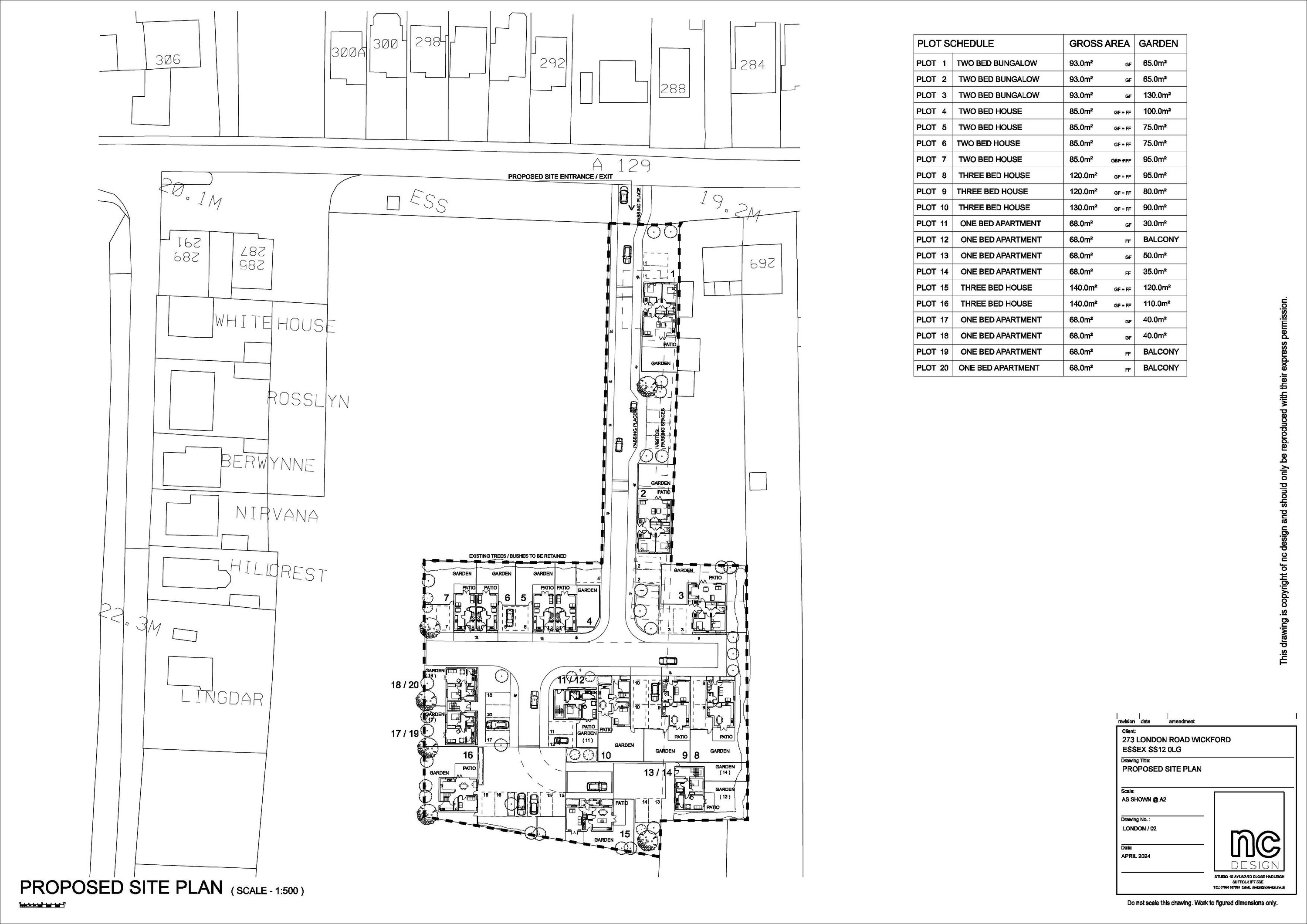
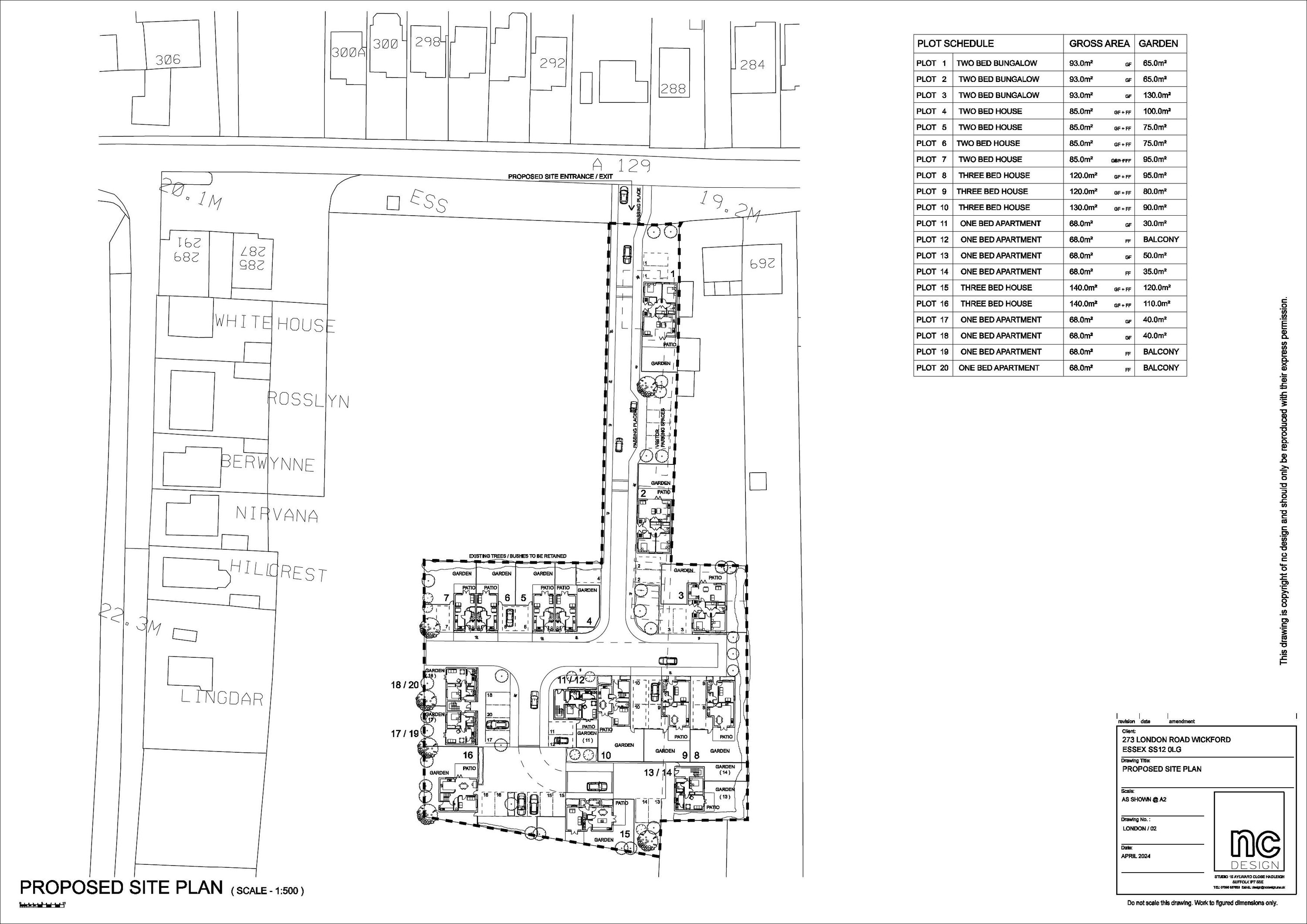
New dwellings
20

Summary

Outline (access only) demolition and redevelopment to provide 20 residential dwellings.

Full Proposal

Outline application with all matters reserved apart from access, for the demolition of the existing dwelling and buildings associated with the Kennels business and redevelopment of the site for 20 residential dwellings including 35% affordable housing provision

Documents

APPLICATION FORM - WITHOUT PERSONAL DATA
Application Form
Not archived · Council Link
BASELINE HABITAT CONDITION ASSESSMENT AND ECOLOGICAL WALKOVER SURVEY
BackGround Papers - Redacted
Not archived · Council Link
BIODIVERSITY NET GAIN ASSESSMNET
BackGround Papers - Redacted
Not archived · Council Link
EXISTING SITE AND LOCATION PLAN
Drawing
Not archived · Council Link
HISTORIC APPEAL DECISION
BackGround Papers - Redacted
Not archived · Council Link
HISTORIC OFFICER REPORT
BackGround Papers - Redacted
Not archived · Council Link
PLANNING STATEMENT
BackGround Papers - Redacted
Not archived · Council Link
PRELIMINARY ECOLOGICAL APPRAISAL
BackGround Papers - Redacted
Not archived · Council Link
REFUSE VEHICLE ENTRY TRACKING DETAILS
Drawing
Not archived · Council Link
REFUSE VEHICLE EXIT TRACKING DETAILS
Drawing
Not archived · Council Link
SUPERSEDED DRAINAGE DETAILS
BackGround Papers - Redacted
Not archived · Council Link
SUPERSEDED DRAINAGE SCHEDULES
BackGround Papers - Redacted
Not archived · Council Link
SUPERSEDED PROPOSED DRAINAGE LAYOUT
Drawing
Not archived · Council Link
SUPERSEDED PROPOSED FRA AND DRAINAGE STRATEGY
BackGround Papers - Redacted
Not archived · Council Link
TREE SURVEY
BackGround Papers - Redacted
Not archived · Council Link
UPDATED DRAINAGE DETAILS
BackGround Papers - Redacted
Not archived · Council Link
UPDATED DRAINAGE DETAILS
BackGround Papers - Redacted
Not archived · Council Link
UPDATED DRAINAGE LAYOUT
BackGround Papers - Redacted
Not archived · Council Link
UPDATED FRA AND DRAINAGE STRATEGY
BackGround Papers - Redacted
Not archived · Council Link

Take Action

Make your voice heard. Authorities need to hear from people who support new homes.

✉️ Write Email in Support View on Council Portal