← Back to Basildon Council

Status

Unknown New housing
Received
05 Feb 2025
New dwellings
1

Summary

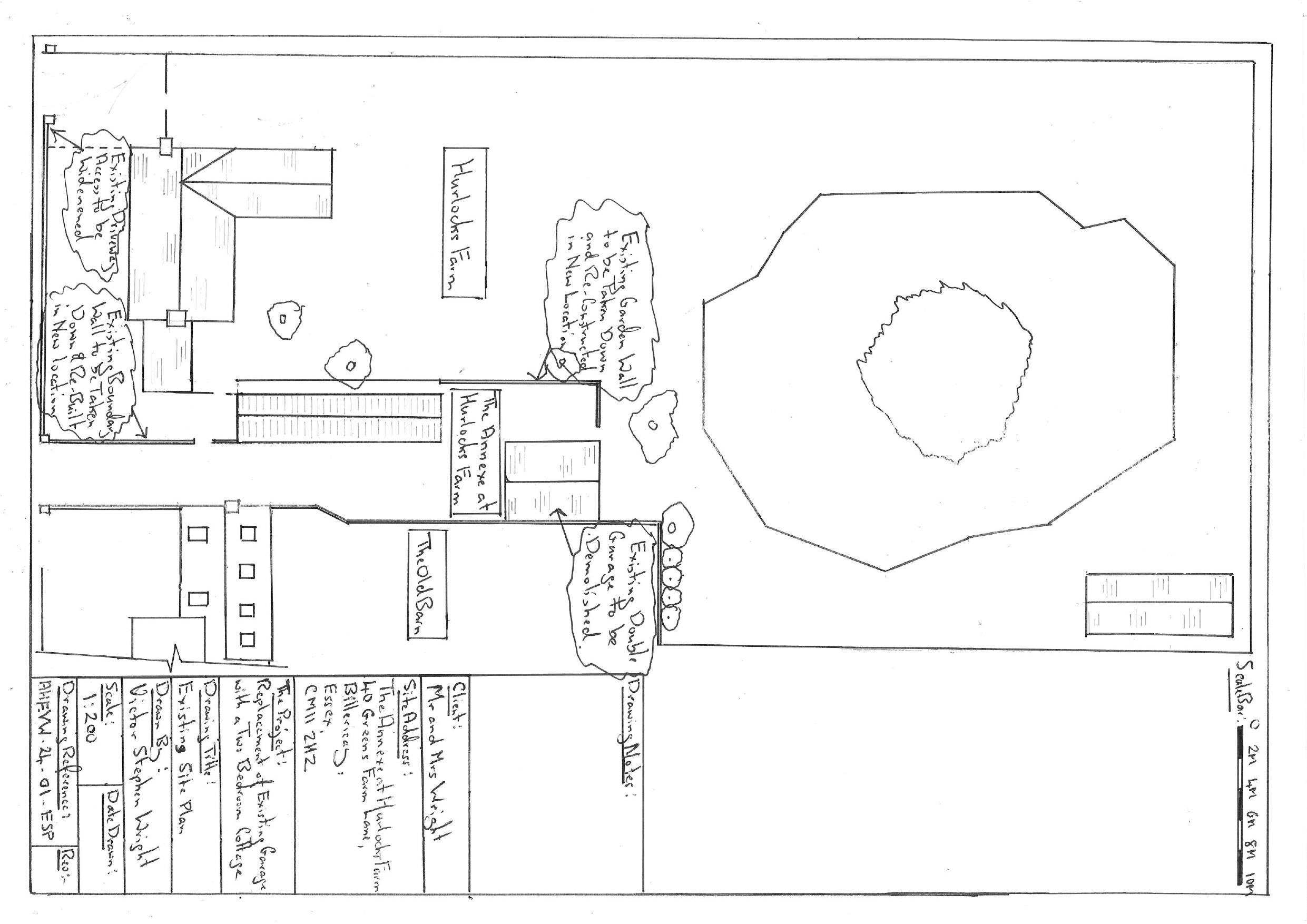
Outline for detached chalet dwelling replacing garage with new boundary walls, crossover and widened drive.

Full Proposal

Outline planning application, with approval being sought for all matters apart from landscaping (to include access, appearance, layout and scale), for the demolition of existing detached double garage and construction of a detached chalet dwellinghouse with new boundary walls, extended vehicular crossover and widened driveways (Self-build/Custom build)

Documents

ACCESS STATEMENT
BackGround Papers - Redacted
Not archived · Council Link
ACOUSTIC ENCLOSURE
BackGround Papers - Redacted
Not archived · Council Link
APPLICATION FORM WITHOUT PERSONAL DATA
Application Form
Not archived · Council Link
DECISION NOTICE
Decision
Not archived · Council Link
ENVIRONMENTAL STATEMENT
BackGround Papers - Redacted
Not archived · Council Link
EXISTING GARAGE ELEVATIONS
Drawing
Not archived · Council Link
EXISTING GARAGE PLANS
Drawing
Not archived · Council Link
EXISTING ISONMETRIC VIEW
Drawing
Not archived · Council Link
Drawing
Archived · Council Link
HEAT PUMP PROXIMITY PLAN
Drawing
Not archived · Council Link
HEAT PUMP TECH LITERATURE
BackGround Papers - Redacted
Not archived · Council Link
HERITAGE STATEMENT
BackGround Papers - Redacted
Not archived · Council Link
LINE OF SITE FROM DRIVEWAY
Drawing
Not archived · Council Link
LINE OF SITE FROM HURLOCK FARM
Drawing
Not archived · Council Link
NOISE IMPACT STATEMENT
BackGround Papers - Redacted
Not archived · Council Link
OUTLINE SCOPE OF WORKS AND SPECIFICATION
BackGround Papers - Redacted
Not archived · Council Link
PROPERTY ACCESS FOR EMERGENCY VEHICLE
Drawing
Not archived · Council Link
PROPERTY ACCESS FOR EMERGENCY VEHICLE
Drawing
Not archived · Council Link
PROPOSED CAR TURNING CIRCLE
Drawing
Not archived · Council Link
PROPOSED FIRST FLOOR PLAN
Drawing
Not archived · Council Link
PROPOSED FRONT ELEVATION
Drawing
Not archived · Council Link
PROPOSED GROUND FLOOR PLAN
Drawing
Not archived · Council Link
PROPOSED ISONMETRIC VIEW
Drawing
Not archived · Council Link
PROPOSED REAR ELEVATION
Drawing
Not archived · Council Link
PROPOSED ROOF PLAN
Drawing
Not archived · Council Link
PROPOSED SECTIONS
Drawing
Not archived · Council Link
PROPOSED SIDE ELEVATION
Drawing
Not archived · Council Link
PROPOSED SIDE ELEVATION 2
Drawing
Not archived · Council Link
PROPOSED SITE BOUNDARY
Drawing
Not archived · Council Link
Drawing
Archived · Council Link
REPORT
Officer Report
Not archived · Council Link
STREET VIEW (EXISTING + PROPOSED)
Drawing
Not archived · Council Link
THE LOCATION PLAN
Drawing
Not archived · Council Link

Take Action

Make your voice heard. Authorities need to hear from people who support new homes.

✉️ Write Email in Support View on Council Portal