← Back to Basildon Council

Status

Awaiting decision New housing
Received
02 Jul 2025
New dwellings
2

Summary

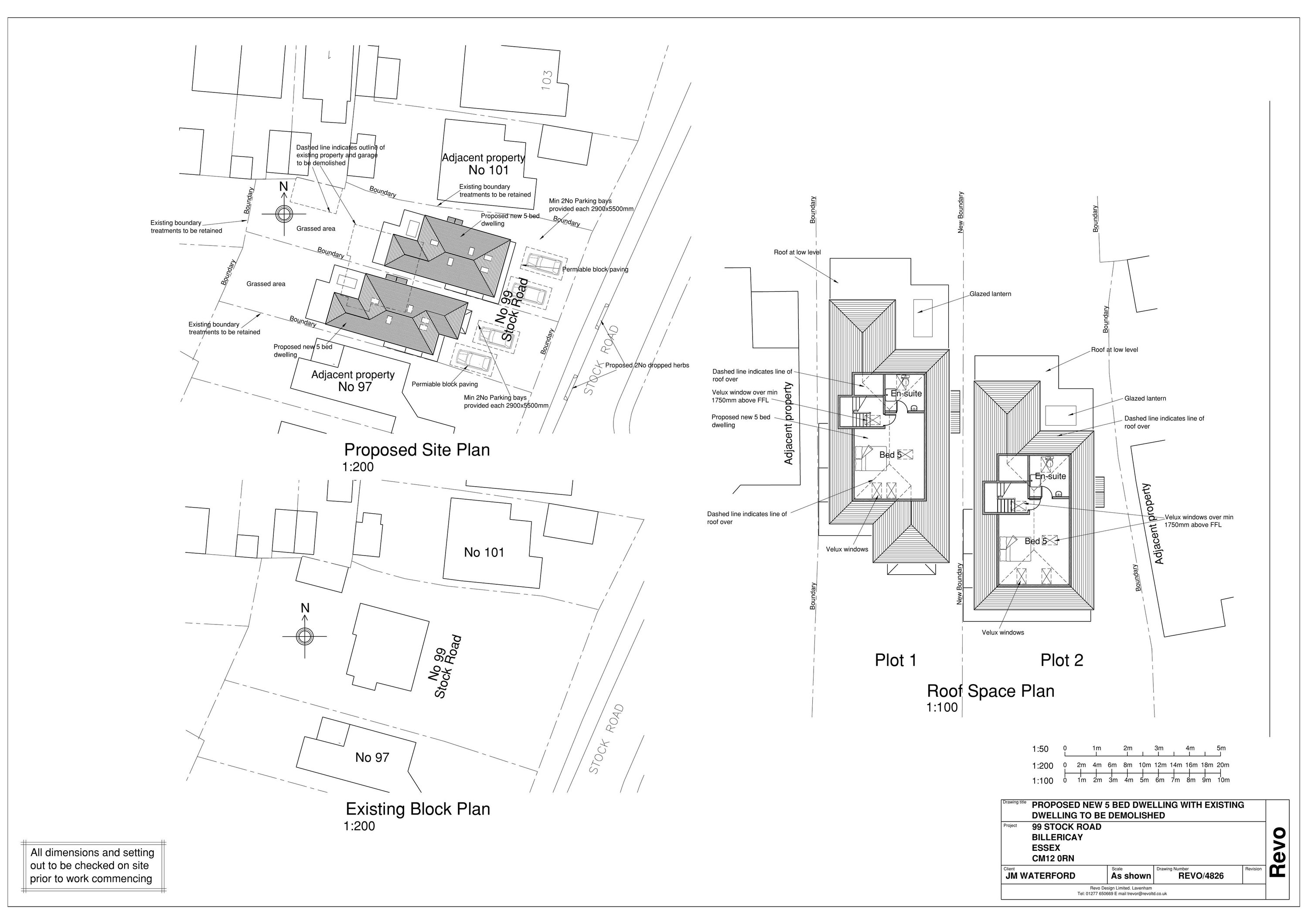
Demolition and construction of two dwellings with parking and amenity space.

Full Proposal

Demolition of existing dwelling and construction of 2no. dwellings, layout parking and amenity space

Documents

APPLICATION FORM - WITHOUT PERSONAL DATA
Application Form
Not archived · Council Link
BIODIVERSITY ASSESSMENT
BackGround Papers - Redacted
Not archived · Council Link
BLOCK PLAN AND ROOFSPACE PLAN
Drawing
Not archived · Council Link
ELEVATIONS
Drawing
Not archived · Council Link
FLOOR PLANS
Drawing
Not archived · Council Link
PLANNING STATEMENT
BackGround Papers - Redacted
Not archived · Council Link
Drawing
Archived · Council Link
Drawing
Archived · Council Link
THE LOCATION PLAN
Drawing
Not archived · Council Link
TREE SURVEY
BackGround Papers - Redacted
Not archived · Council Link
TREE SURVEY
Drawing
Not archived · Council Link

Take Action

Make your voice heard. Authorities need to hear from people who support new homes.

✉️ Write Email in Support View on Council Portal