← Back to Basildon Council

Status

Awaiting decision New housing
Received
20 Aug 2025
New dwellings
5

Full Proposal

Erection of 5 bedroom dwelling.

Documents

APPLICATION FORM - WITHOUT PERSONAL DATA
Application Form
Not archived · Council Link
ARBORICULTURAL IMPACT ASSESSMENT
BackGround Papers - Redacted
Not archived · Council Link
BIODIVERSITY NET GAIN PLAN
BackGround Papers - Redacted
Not archived · Council Link
BNG MATRIX
BNG
Not archived · Council Link
EXISTING & PROPOSED FRONT ELEVATION AA
Drawing
Not archived · Council Link
EXISTING & PROPOSED SIDE ELEVATION CC
Drawing
Not archived · Council Link
EXISTING & PROPOSED SIDE ELEVATIONS CC
Drawing
Not archived · Council Link
EXISTING AND PROPOSED REAR ELEVATIONS
Drawing
Not archived · Council Link
EXISTING FIRST FLOOR PLAN
Drawing
Not archived · Council Link
EXISTING GROUND FLOOR PLAN
Drawing
Not archived · Council Link
EXISTING LOFT PLAN
Drawing
Not archived · Council Link
EXISTING ROOF PLAN
Drawing
Not archived · Council Link
Drawing
Archived · Council Link
PLANNING STATEMENT
BackGround Papers - Redacted
Not archived · Council Link
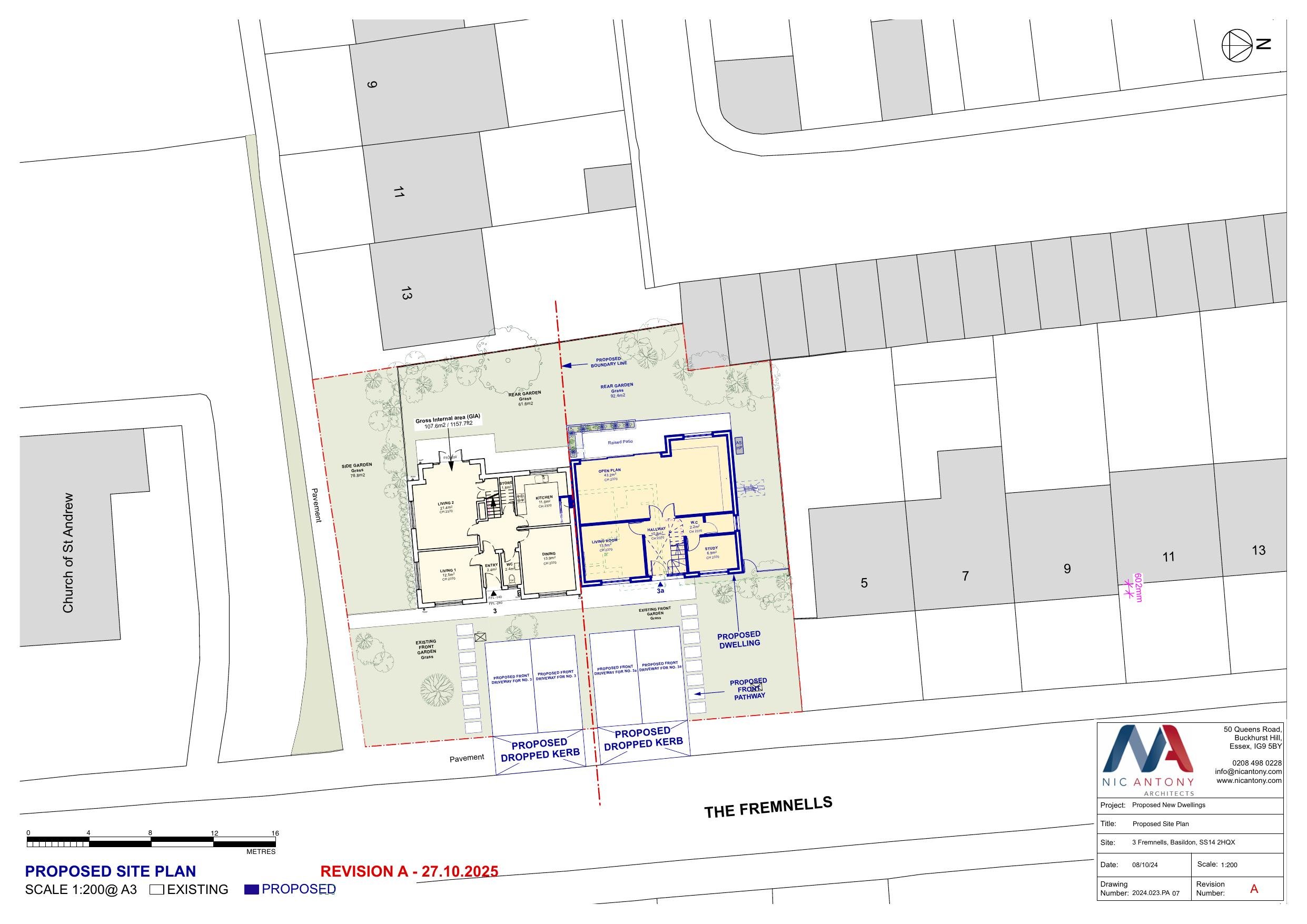
PROPOSED BLOCK PLAN
Drawing
Not archived · Council Link
PROPOSED FIRST FLOOR PLAN
Drawing
Not archived · Council Link
PROPOSED LOFT PLAN
Drawing
Not archived · Council Link
PROPOSED ROOF PLAN
Drawing
Not archived · Council Link
PROPOSED SECTION DD
Drawing
Not archived · Council Link
Drawing
Archived · Council Link
REVISED PROPOSED GROUND FLOOR PLAN
Revised Drawing
Not archived · Council Link
Revised Drawing
Archived · Council Link
SUPERSEDED PROPOSED GROUND FLOOR PLAN
Drawing
Not archived · Council Link
THE LOCATION PLAN
Drawing
Not archived · Council Link
THE STATUTORY BIODIVERSITY METRIC
BackGround Papers - Redacted
Not archived · Council Link

Take Action

Make your voice heard. Authorities need to hear from people who support new homes.

✉️ Write Email in Support View on Council Portal