← Back to Basildon Council

Status

Awaiting decision Demolition
Received
08 Dec 2025
New dwellings
0

Summary

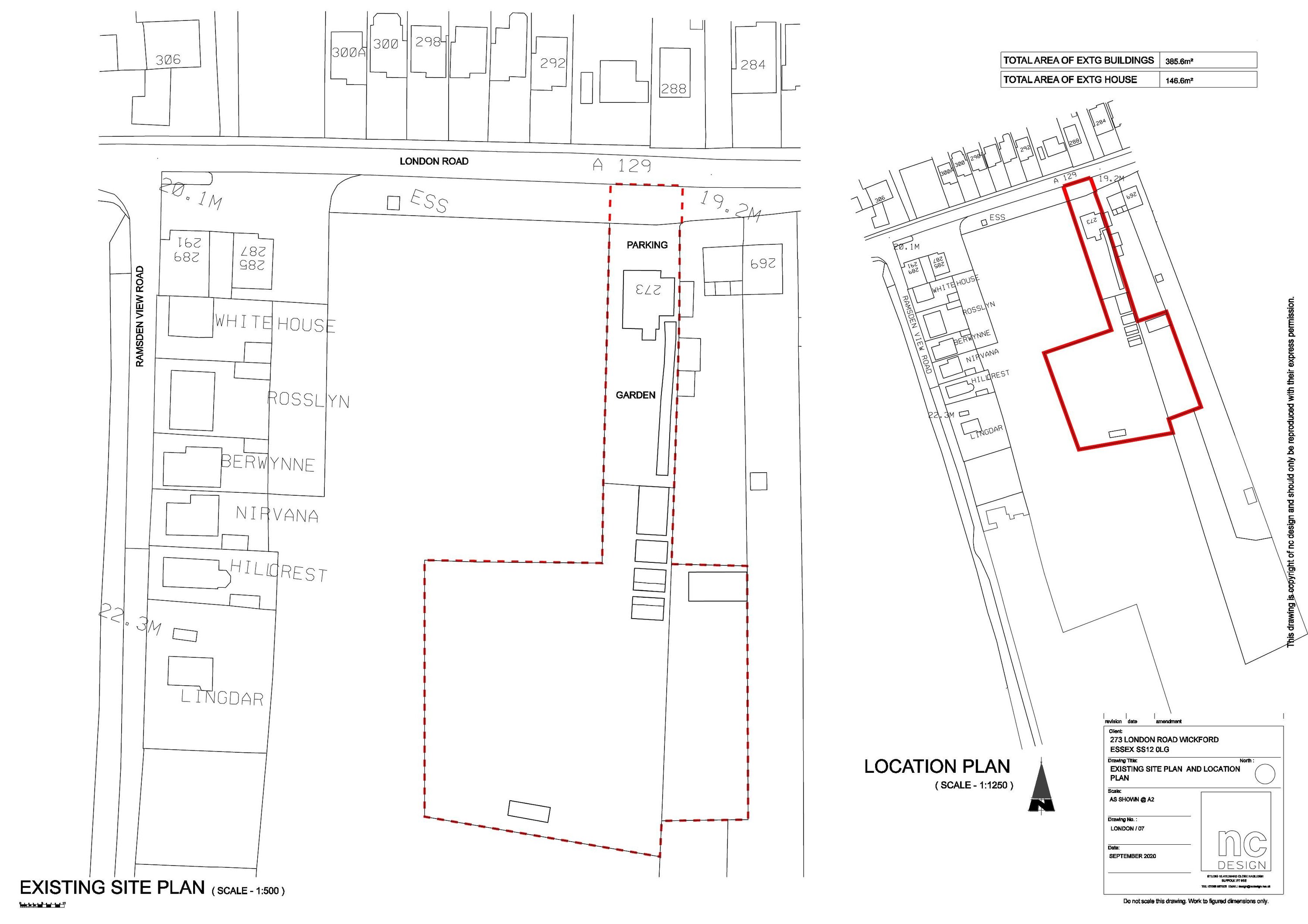
Demolition of existing dwelling and kennels and redevelopment for nine detached dwellings (outline).

Full Proposal

Outline application with all matters reserved (except for access), for the demolition of existing dwelling and kennels business and redevelopment for 9 detached dwellings.

Documents

APPLICATION FORM - WITHOUT PERSONAL DATA
Application Form
Not archived · Council Link
BIODIVERSITY SURVEY AND REPORT
BackGround Papers - Redacted
Not archived · Council Link
PLANNING STATEMENT
BackGround Papers - Redacted
Not archived · Council Link
PRELIMINARY ECOLOGICAL APPRAISAL
BackGround Papers - Redacted
Not archived · Council Link
Drawing
Archived · Council Link
TREE SURVEY
BackGround Papers - Redacted
Not archived · Council Link

Take Action

Make your voice heard. Authorities need to hear from people who support new homes.

✉️ Write Email in Support View on Council Portal