← Back to Basildon Council

Status

Awaiting decision Industrial
Received
18 Dec 2025
New dwellings
0

Full Proposal

Demolish 2no. existing warehouse buildings and associated structures and erect a new storage and distribution warehouse building including associated office space, loading bays, and canopy, including new surfacing, and new layout parking.

Documents

APPLICATION FORM - WITHOUT PERSONAL DATA
Application Form
Not archived · Council Link
APPLICATION FORM REDACTED
Application Form
Not archived · Council Link
ARBORICULTURAL IMPACT ASSESSMENT & METHOD STATEMENT
BackGround Papers - Redacted
Not archived · Council Link
BIODIVERSITY NET GAIN STATEMENT
BackGround Papers - Redacted
Not archived · Council Link
BIODIVERSITY NET GAIN STATEMENT
BackGround Papers - Redacted
Not archived · Council Link
BUSINESS SUMMARY
BackGround Papers - Redacted
Not archived · Council Link
CIL FORM
BackGround Papers - Redacted
Not archived · Council Link
CONTAMINATION REPORT
BackGround Papers - Redacted
Not archived · Council Link
DESIGN & ACCESS & PLANNING STATEMENT
BackGround Papers - Redacted
Not archived · Council Link
DESIGN ACCESS AND PLANNING STATEMENT
BackGround Papers - Redacted
Not archived · Council Link
DRAINAGE STRATEGY AND SUDS REV0
BackGround Papers - Redacted
Not archived · Council Link
ESSEX_COUNTY_COUNCIL_SUDS_CHECKLIST-DETAILED-DRAINAGEV5.2
BackGround Papers - Redacted
Not archived · Council Link
EXISTING ELEVATIONS PLAN
Drawing
Not archived · Council Link
Drawing
Archived · Council Link
FLOOD RISK ASSESSMENT
BackGround Papers - Redacted
Not archived · Council Link
FLOOR RISK ASSESSMENT
BackGround Papers - Redacted
Not archived · Council Link
LAND CONTAMINATON ASSESSMENT
BackGround Papers - Redacted
Not archived · Council Link
PLANNING STATEMENT
BackGround Papers - Redacted
Not archived · Council Link
PROPOSED ELEVATIONS
Drawing
Not archived · Council Link
PROPOSED ELEVATIONS & SECTIONS
Drawing
Not archived · Council Link
PROPOSED FIRST FLOOR PLAN
Drawing
Not archived · Council Link
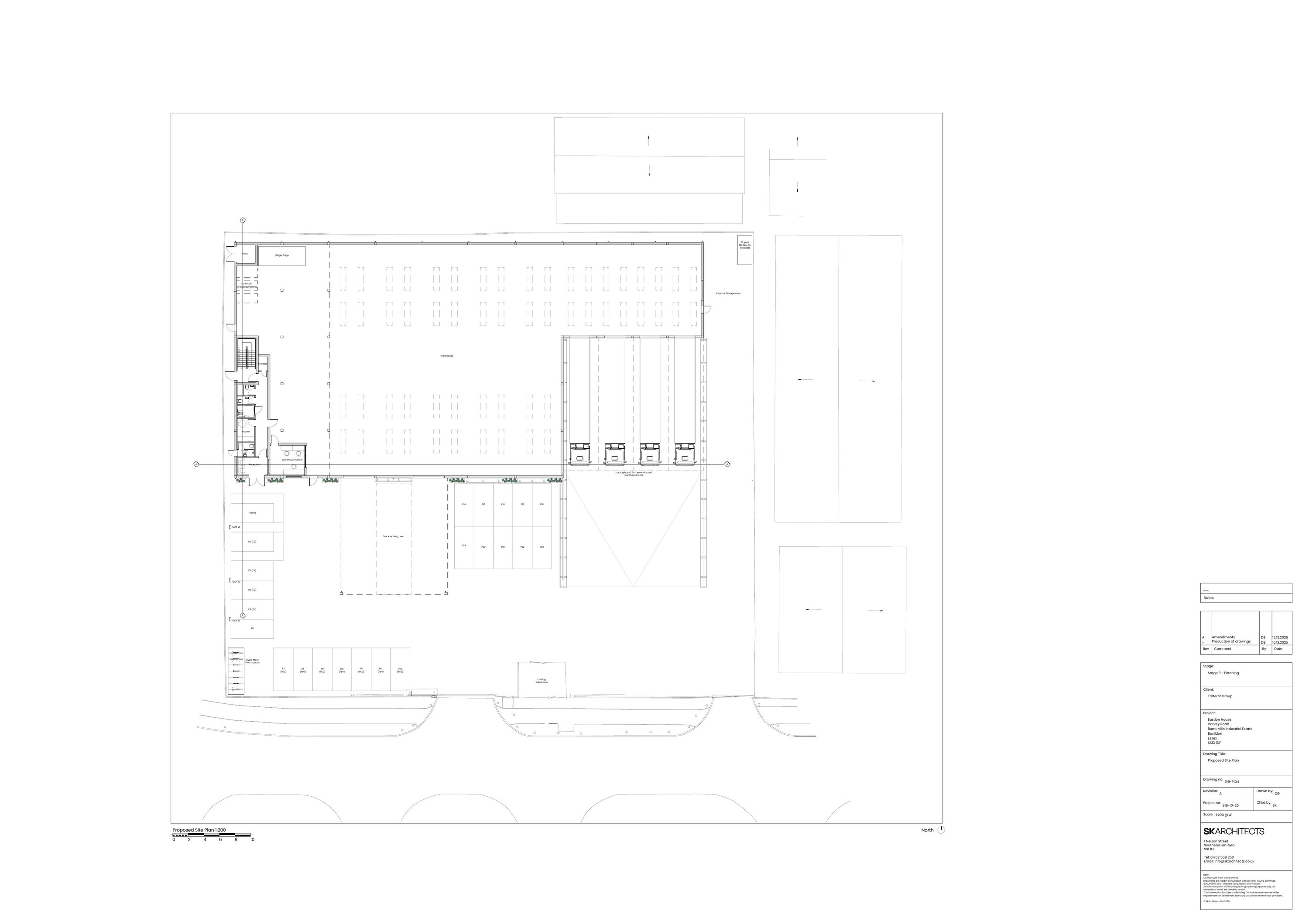
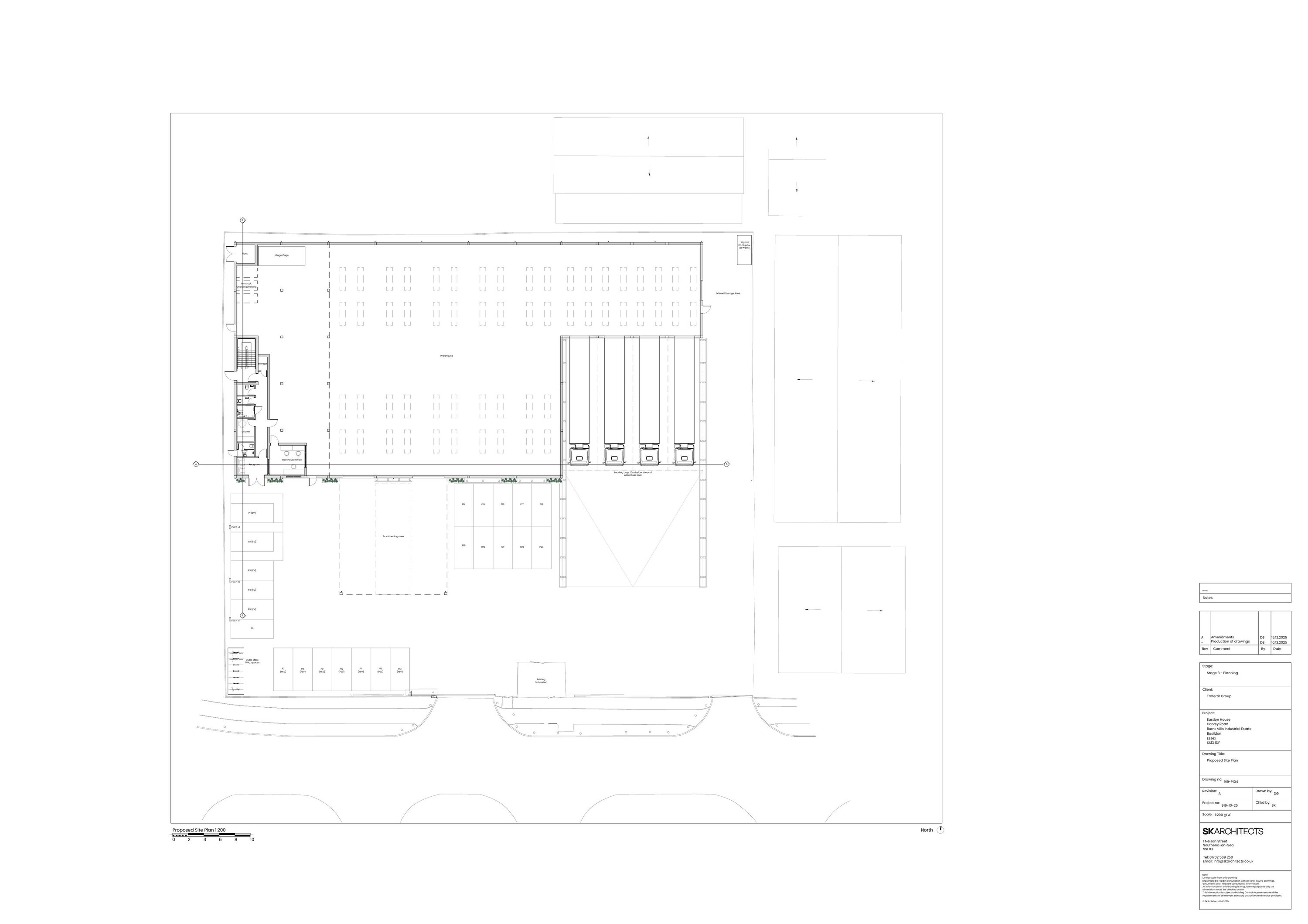
PROPOSED GROUND FLOOR PLAN
Drawing
Not archived · Council Link
PROPOSED ROOF PLAN
Drawing
Not archived · Council Link
Drawing
Archived · Council Link
Drawing
Archived · Council Link
SITE LOCATION & BLOCK PLAN
Drawing
Not archived · Council Link
SITE WASTE MANAGEMENT PLAN
BackGround Papers - Redacted
Not archived · Council Link
THE LOCATION PLAN
Drawing
Not archived · Council Link
TRANSPORT ASSESSMENT
BackGround Papers - Redacted
Not archived · Council Link
TRANSPORT ASSESSMENT
BackGround Papers - Redacted
Not archived · Council Link
TRANSPORT STATEMENT
BackGround Papers - Redacted
Not archived · Council Link
TREE SURVEY
BackGround Papers - Redacted
Not archived · Council Link

Take Action

Make your voice heard. Authorities need to hear from people who support new homes.

✉️ Write Email in Support View on Council Portal