← Back to Basildon Council

Status

Awaiting decision New housing
Received
Last week
New dwellings
3

Full Proposal

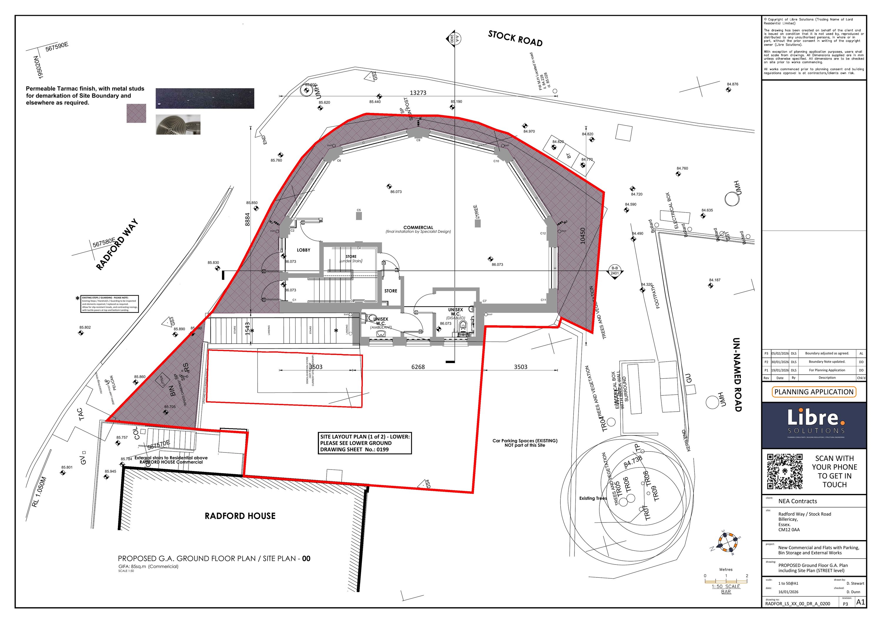
Construction of a four storey building comprising ground floor commercial space (Class E), 2 no. two bed flats and 1 no. one bed flat, and two basement car parking spaces.

Documents

APPLICATION FORM - WITHOUT PERSONAL DATA
Application Form
Not archived · Council Link
PLANNING STATEMENT
BackGround Papers - Redacted
Not archived · Council Link
PROPOSED FIRST FLOOR G.A. PLAN
Drawing
Not archived · Council Link
PROPOSED G.A. CROSS-SECTIONS
Drawing
Not archived · Council Link
PROPOSED G.A. CROSS-SECTIONS
Drawing
Not archived · Council Link
PROPOSED G.A. ELEVATIONS SHEET 1 OF 2
Drawing
Not archived · Council Link
PROPOSED G.A. ELEVATIONS SHEET 2 OF 2
Drawing
Not archived · Council Link
PROPOSED ROOF G.A. PLAN
Drawing
Not archived · Council Link
PROPOSED SECOND FLOOR G.A. PLAN
Drawing
Not archived · Council Link
PROPOSED STREET SCENE ELEVATION
Drawing
Not archived · Council Link
PROPOSED THIRD FLOOR G.A. PLAN
Drawing
Not archived · Council Link
THE LOCATION PLAN
Drawing
Not archived · Council Link

Take Action

Make your voice heard. Authorities need to hear from people who support new homes.

✉️ Write Email in Support View on Council Portal