← Back to Basingstoke and Deane Borough Council
25/02841/FUL
Basingstoke and Deane Borough Council · IDOX
Status
Registered
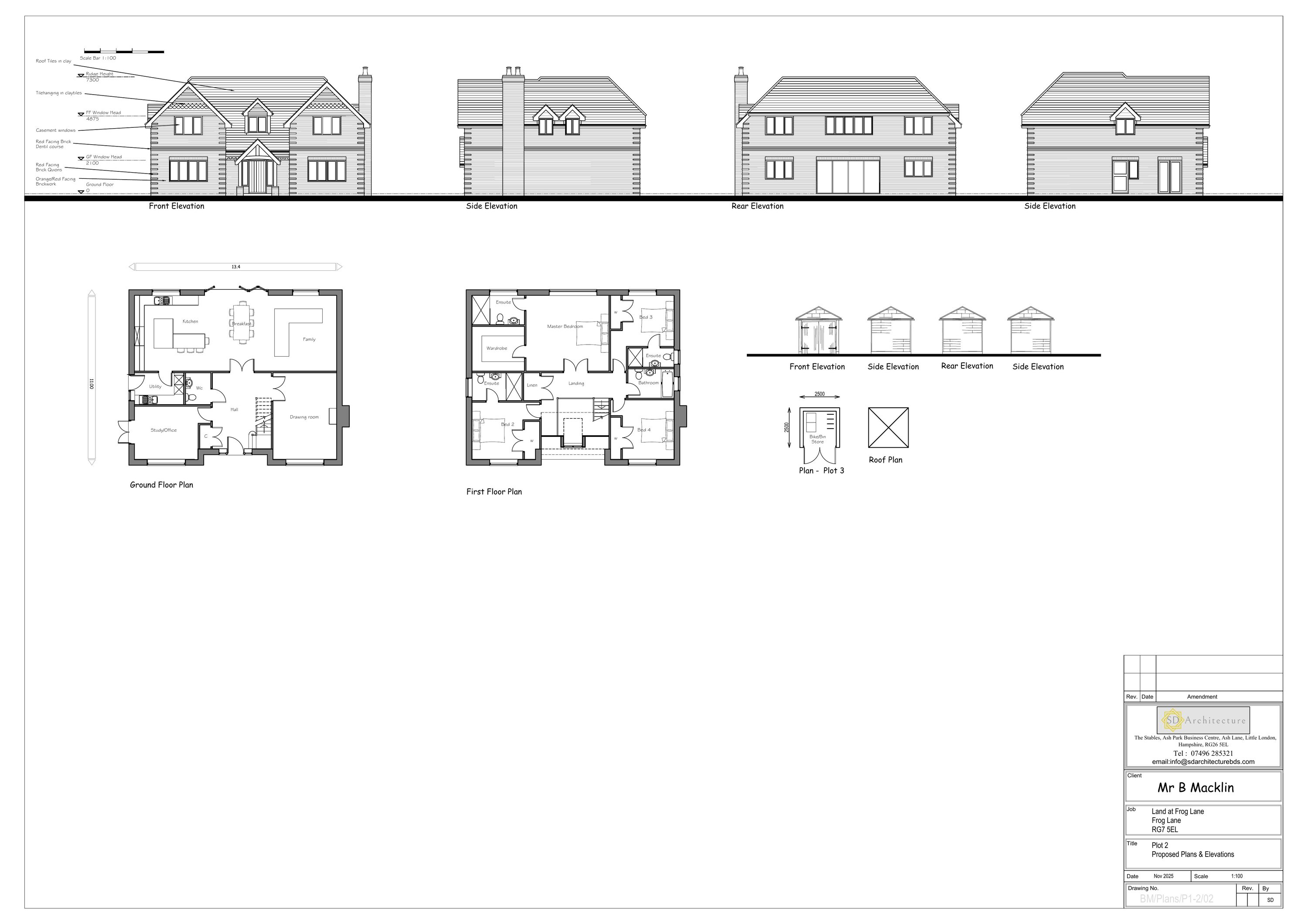
New housing
Received
02 Dec 2025
New dwellings
2
Full Proposal
Erection of 2no. new dwellings with garden/bin/bike stores
Documents
Take Action
Make your voice heard. Authorities need to hear from people who support new homes.