← Back to Bassetlaw District Council

Status

Awaiting decision New housing
Received
Last month
New dwellings
0

Full Proposal

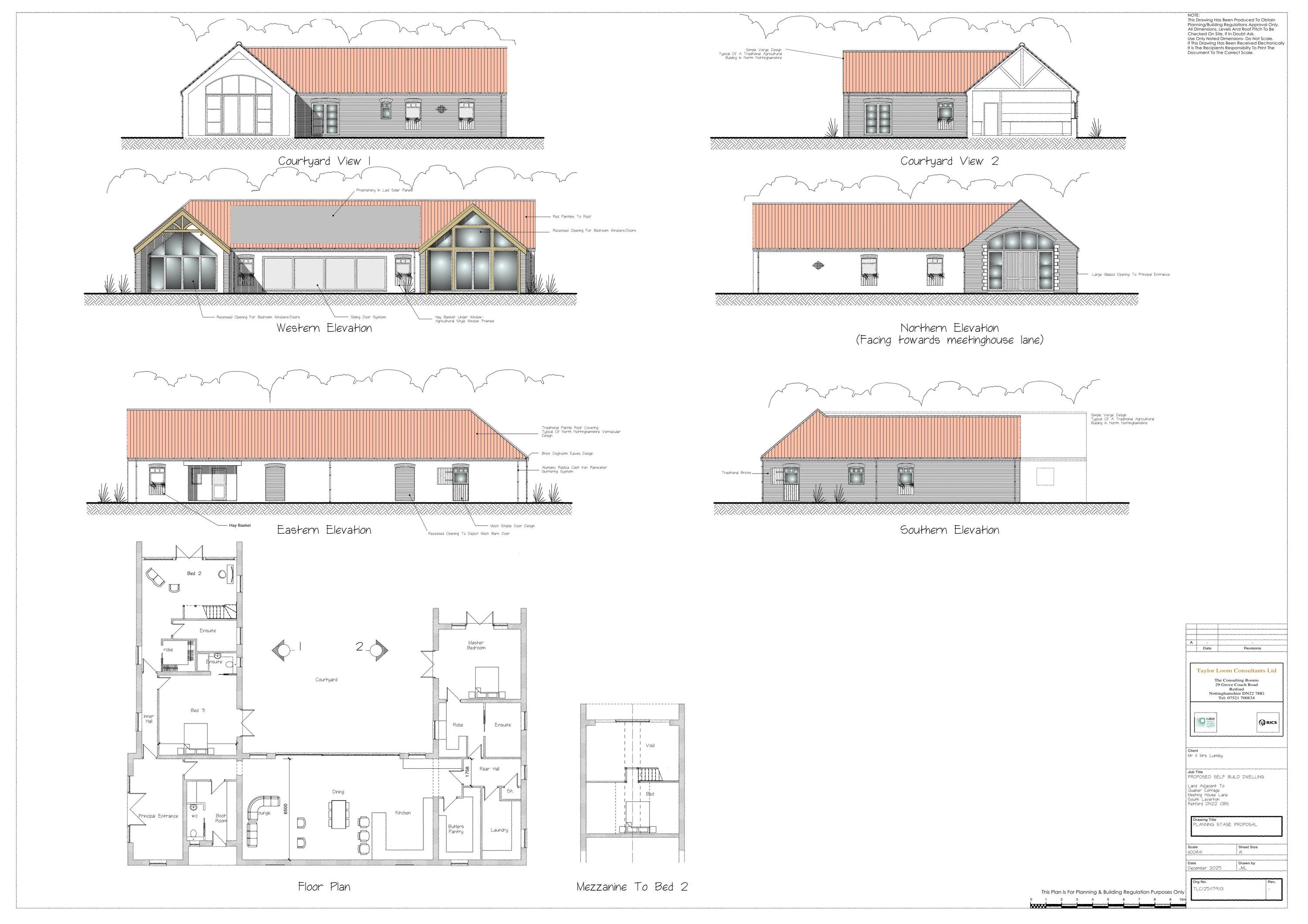
Erect New Single Storey Dwelling (Self Build) and Construct New Access for Quaker Cottage

Documents

APPLICATION FORM - WITHOUT PERSONAL DATA
Application Form
Not archived · Council Link
DESIGN AND ACCESS STATEMENT
Design & Access Statement
Not archived · Council Link
ECOLOGICAL APPRAISAL
Ecological Assessment
Not archived · Council Link
EXISTING ANCILLARY BUILDING
Drawing
Not archived · Council Link
Drawing
Archived · Council Link
PARISH COUNCIL 3.2.26
Consultation Replies
Not archived · Council Link
Drawing
Archived · Council Link
PROTECTED SPECIES REPORT
Protected Species Report
Not archived · Council Link
SURVEY PLAN
Drawing
Not archived · Council Link
THE LOCATION PLAN
Drawing
Not archived · Council Link
TOPOGRAPHICAL SURVEY
Drawing
Not archived · Council Link
TREE SURVEY
Tree Survey
Not archived · Council Link
TREE SURVEY 3 0F 3
Tree Survey
Not archived · Council Link

Take Action

Make your voice heard. Authorities need to hear from people who support new homes.

✉️ Write Email in Support View on Council Portal