← Back to Bexley

Status

With Case Officer New housing
Received
11 Aug 2025
New dwellings
0

Summary

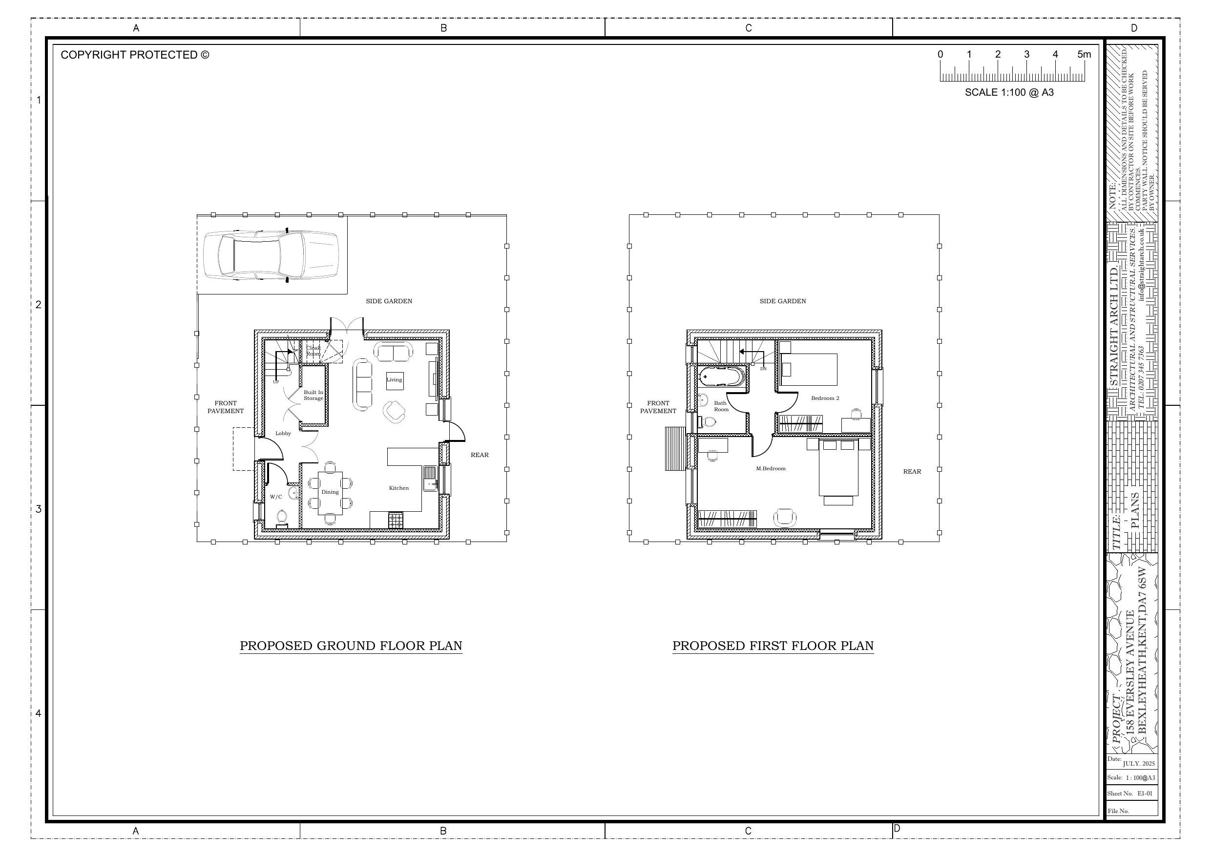
Erection of a detached two-storey dwelling with refuse storage and front parking.

Full Proposal

Erection of a detached two storey dwelling with refuse storage and parking to the front.

Documents

APPLICATION FORM
Application Form - Public
Not archived · Council Link
BLOCK PLANS
Drawing
Not archived · Council Link
BNG METRIC CALCULATIONS
Supporting Document
Not archived · Council Link
BNG METRIC CALCULATIONS
Supporting Document
Not archived · Council Link
DESIGN & ACCESS STATEMENT
Statement/Assessment
Not archived · Council Link
FIRE STATEMENT
Statement/Assessment
Not archived · Council Link
FLOOD RISK ASSESSMENT
Statement/Assessment
Not archived · Council Link
PRELIMINARY ECOLOGICAL APPRAISAL (REDACTED)
Supporting Document
Not archived · Council Link
Drawing
Archived · Council Link
PROPOSED FRONT & REAR ELEVATIONS
Drawing
Not archived · Council Link
PROPOSED GROUND & FIRST FLOOR PLANS
Drawing
Not archived · Council Link
PROPOSED ROOF PLAN
Drawing
Not archived · Council Link
PROPOSED SECTION
Drawing
Not archived · Council Link
PROPOSED SIDE ELEVATIONS
Drawing
Not archived · Council Link
Drawing
Archived · Council Link
TREE REMOVAL PROPOSALS
Drawing
Not archived · Council Link
TREE REPORT
Supporting Document
Not archived · Council Link

Take Action

Make your voice heard. Authorities need to hear from people who support new homes.

✉️ Write Email in Support View on Council Portal