← Back to Bexley

Status

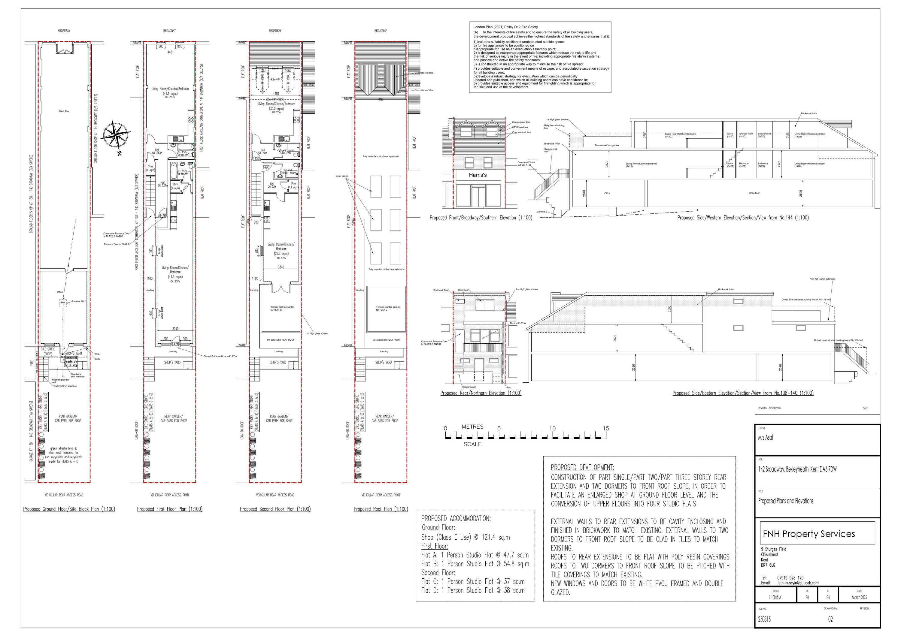
Granted with Conditions House extension
Received
19 Mar 2025
New dwellings
4

Summary

Rear extensions and roof conversion including dormers to create four residential units with cycle storage.

Full Proposal

Erection of part one/part two/part three storey rear extension and conversion of roof space including front dormer extensions to provide 4 residential units along with associated cycle storage.

Documents

APPLICATION FORM
Application Form - Public
Not archived · Council Link
CASE SHEET
Officer Report - Public
Not archived · Council Link
CYCLE STORAGE DETAILS
Drawing
Not archived · Council Link
DESIGN AND ACCESS STATEMENT
Statement/Assessment
Not archived · Council Link
EXISTING BLOCK PLAN
Drawing
Not archived · Council Link
EXISTING FLOOR PLANS AND ELEVATIONS
Drawing
Not archived · Council Link
FIRE SAFETY STATEMENT
Statement/Assessment
Not archived · Council Link
FIRE STRATEGY PLAN
Drawing
Not archived · Council Link
PEFULZ
Decision
Not archived · Council Link
PROPOSED BLOCK PLAN
Drawing
Not archived · Council Link
Drawing
Archived · Council Link

Take Action

Make your voice heard. Authorities need to hear from people who support new homes.

✉️ Write Email in Support View on Council Portal