← Back to Bexley

Status

With Case Officer Change of use
Received
22 Apr 2025
New dwellings
0

Summary

Change of use from dwellinghouse (Class C3) to House in Multiple Occupation (Class C4) for up to six persons.

Full Proposal

Change of use from dwellinghouse (Class C3) to House of Multiple Occupation (Class C4) for up to 6 persons.

Documents

APPLICATION FORM
Application Form - Public
Not archived · Council Link
BLOCK PLANS
Drawing
Not archived · Council Link
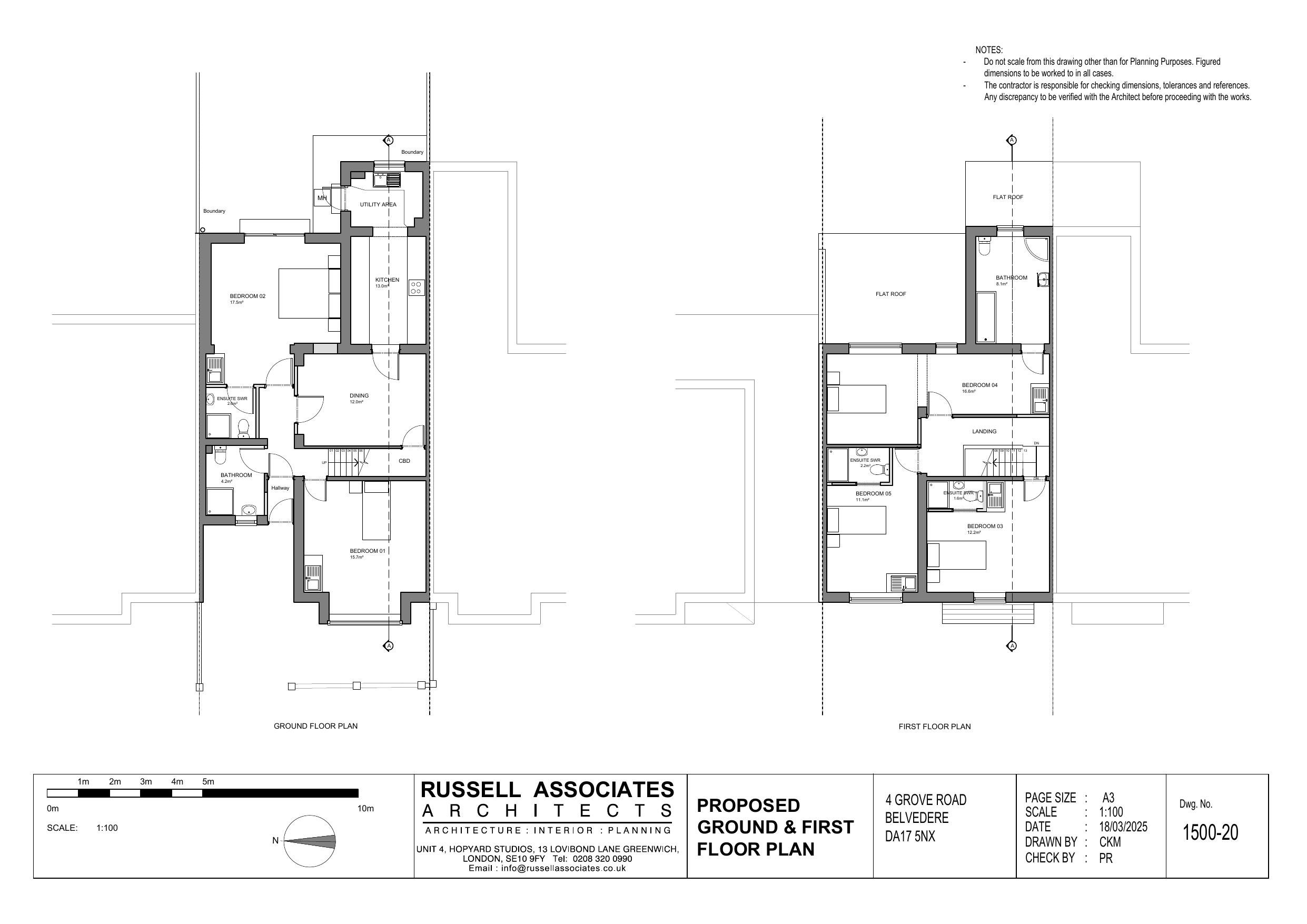
EXISTING FLOOR PLANS
Drawing
Not archived · Council Link
FLOOD RISK MAP
Supporting Document
Not archived · Council Link
PLANNING STATEMENT
Statement/Assessment
Not archived · Council Link
Drawing
Archived · Council Link
PTAL REPORT
Supporting Document
Not archived · Council Link
Drawing
Archived · Council Link

Take Action

Make your voice heard. Authorities need to hear from people who support new homes.

✉️ Write Email in Support View on Council Portal