← Back to Bexley

Status

Refused New housing
Received
29 May 2025
New dwellings
4

Summary

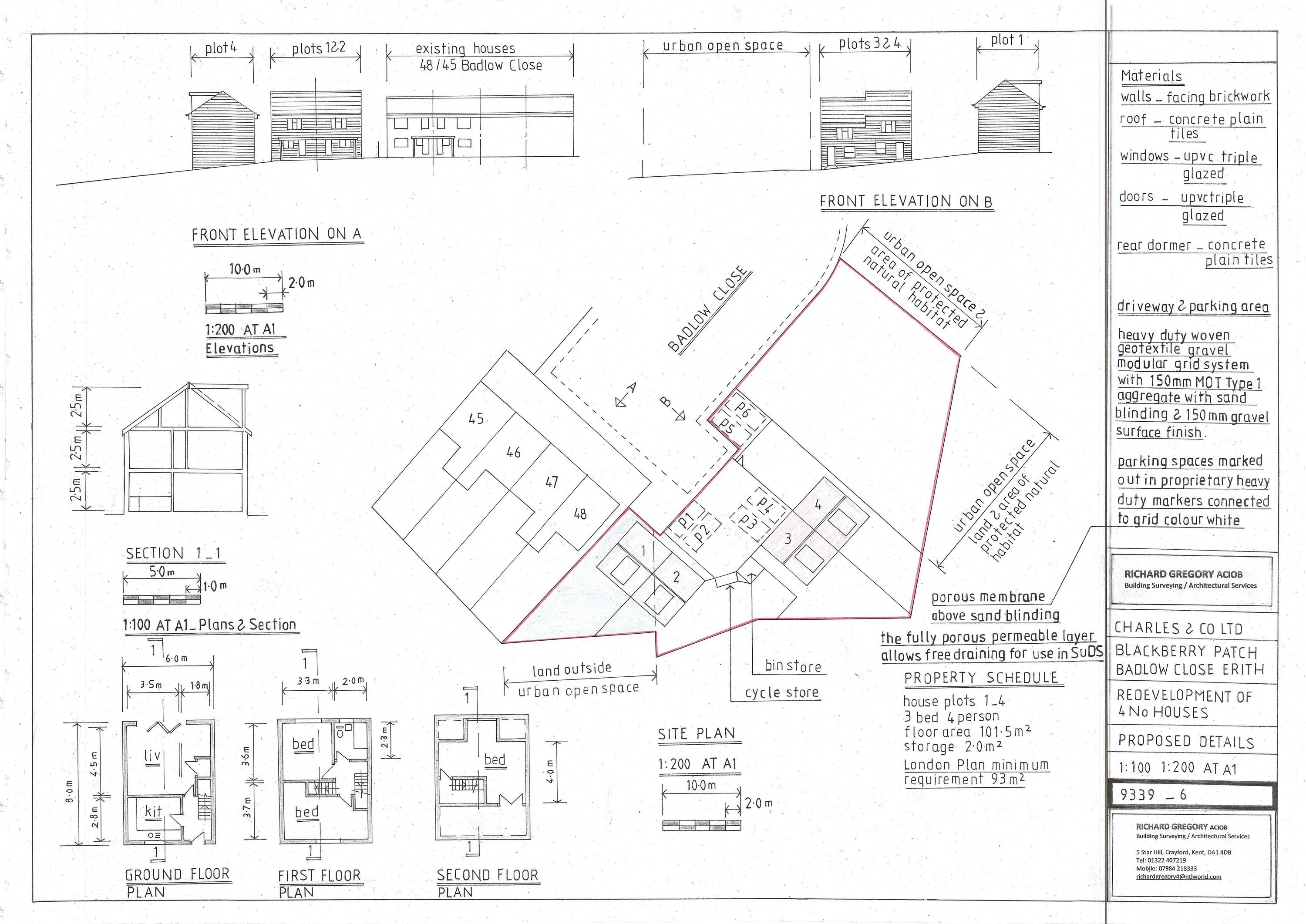
Build four two-storey dwellings with refuse storage and front parking.

Full Proposal

Erection of x 4 two storey dwellings with refuse storage and parking to the front.

Documents

APPLICATION FORM PUBLIC
Application Form - Public
Not archived · Council Link
BIODIVERSITY NET GAIN ASSESSMENT
Supporting Document
Not archived · Council Link
DESIGN AND ACCESS STATMENT
Supporting Document
Not archived · Council Link
DRAINAGE
Supporting Document
Not archived · Council Link
EXISTING BLOCK PLAN
Drawing
Not archived · Council Link
FIRE STATEMENT
Supporting Document
Not archived · Council Link
PROPOSED HABITAT PLAN
Supporting Document
Not archived · Council Link
Drawing
Archived · Council Link
REAR ELEVATIONS
Drawing
Not archived · Council Link
REFULZ
Decision
Not archived · Council Link
Drawing
Archived · Council Link

Take Action

Make your voice heard. Authorities need to hear from people who support new homes.

✉️ Write Email in Support View on Council Portal