← Back to Bexley

Status

Refused Change of use
Received
14 Aug 2025
New dwellings
0

Summary

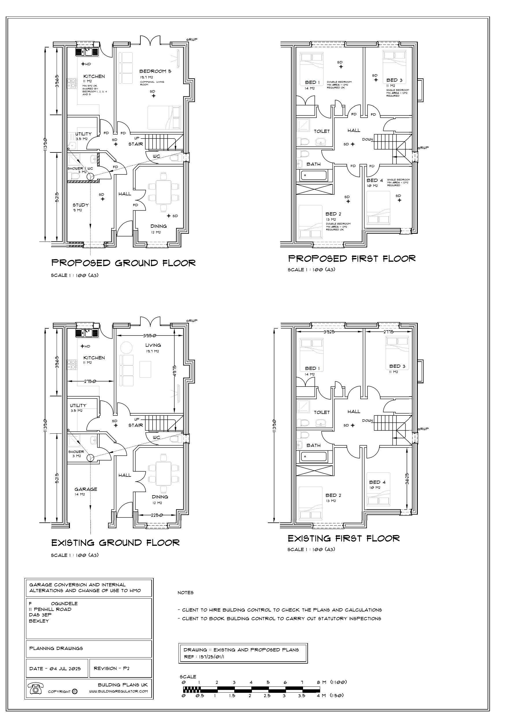
Change of use from single dwelling (C3) to 5-person HMO (C4) and garage conversion to habitable room.

Full Proposal

Change of use from Residential Dwelling (Class C3) to HMO (House of Multiple Occupation) (Class C4) for a maximum of 5 people and conversion of garage to habitable room.

Documents

APPLICATION FORM PUBLIC
Application Form - Public
Not archived · Council Link
CASE SHEET
Officer Report - Public
Not archived · Council Link
EXISTING AND PROPOSED BLOCK PLAN.
Drawing
Not archived · Council Link
EXISTING ELEVATIONS
Drawing
Not archived · Council Link
PLANNING DESIGN AND ACCESS STATEMENT
Drawing
Not archived · Council Link
PROPERTY-LICENSING-STANDARDS
Supporting Document
Not archived · Council Link
PROPOSED ELEVATIONS
Drawing
Not archived · Council Link
REFULZ
Decision
Not archived · Council Link
Drawing
Archived · Council Link

Take Action

Make your voice heard. Authorities need to hear from people who support new homes.

✉️ Write Email in Support View on Council Portal