← Back to Bexley

Status

Granted with Conditions New housing
Received
29 Sep 2025
New dwellings
2

Summary

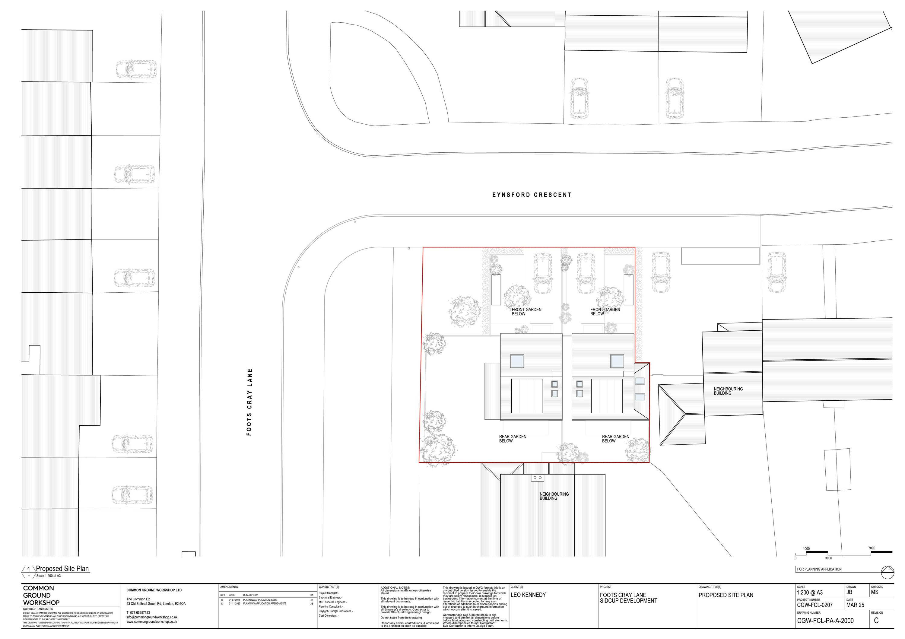
Two detached two-storey dwellings with parking, refuse and cycle storage and EV charging point.

Full Proposal

Erection of 2 detached two storey dwellings with refuse/cycle storage and electric charging point with parking to the front, following demolition of existing bungalow.

Documents

APPLICATION FORM PUBLIC
Application Form - Public
Not archived · Council Link
CASE SHEET
Officer Report - Public
Not archived · Council Link
DAYLIGHT SUNLIGHT REPORT
Supporting Document
Not archived · Council Link
DEMOLITION PLAN
Drawing
Not archived · Council Link
DESIGN AND ACCCESS STATEMENT - PART 1
Supporting Document
Not archived · Council Link
DESIGN AND ACCCESS STATEMENT - PART 2
Supporting Document
Not archived · Council Link
DESIGN AND ACCCESS STATEMENT - PART 3
Supporting Document
Not archived · Council Link
EXISTING BLOCK PLAN
Drawing
Not archived · Council Link
EXISTING ELEVATION A NORTH ELEVATION
Drawing
Not archived · Council Link
EXISTING ELEVATION B WEST ELEVATION
Drawing
Not archived · Council Link
EXISTING ELEVATION C EAST ELEVATION
Drawing
Not archived · Council Link
EXISTING ELEVATION C SOUTH ELEVATION
Drawing
Not archived · Council Link
EXISTING GROUND FLOOR PLAN
Drawing
Not archived · Council Link
EXISTING ROOF PLAN
Drawing
Not archived · Council Link
FIRE SAFETY STATEMENT PLAN
Drawing
Not archived · Council Link
PEFULZ
Decision
Not archived · Council Link
PLANNING FIRE SAFETY STATEMENT PLAN.
Superseded Drawing
Not archived · Council Link
PLANNING STATEMENT
Supporting Document
Not archived · Council Link
PROPOSED BLOCK PLAN
Superseded Drawing
Not archived · Council Link
PROPOSED ELEVATION A NORTH ELEVATION
Superseded Drawing
Not archived · Council Link
PROPOSED ELEVATION A NORTH ELEVATION
Drawing
Not archived · Council Link
PROPOSED ELEVATION B WEST ELEVATION
Drawing
Not archived · Council Link
PROPOSED ELEVATION B WEST ELEVATION
Superseded Drawing
Not archived · Council Link
PROPOSED ELEVATION C EAST ELEVATION
Drawing
Not archived · Council Link
PROPOSED ELEVATION C SOUTH ELEVATION
Drawing
Not archived · Council Link
PROPOSED ELEVATION C SOUTH ELEVATION
Superseded Drawing
Not archived · Council Link
PROPOSED ELEVATION C WEST ELEVATION
Superseded Drawing
Not archived · Council Link
PROPOSED ELEVATION EAST ELEVATION
Superseded Drawing
Not archived · Council Link
PROPOSED FIRST FLOOR PLAN
Drawing
Not archived · Council Link
PROPOSED FIRST FLOOR PLAN
Superseded Drawing
Not archived · Council Link
PROPOSED GROUND FLOOR PLAN
Superseded Drawing
Not archived · Council Link
PROPOSED GROUND FLOOR PLAN
Drawing
Not archived · Council Link
PROPOSED ROOF PLAN
Superseded Drawing
Not archived · Council Link
PROPOSED ROOF PLAN
Drawing
Not archived · Council Link
PROPOSED SECOND FLOOR PLAN
Superseded Drawing
Not archived · Council Link
PROPOSED SECOND FLOOR PLAN
Drawing
Not archived · Council Link
PROPOSED SECTION A-A
Superseded Drawing
Not archived · Council Link
PROPOSED SECTION A-A
Superseded Drawing
Not archived · Council Link
PROPOSED SECTION A-A
Drawing
Not archived · Council Link
Drawing
Archived · Council Link
Drawing
Archived · Council Link

Take Action

Make your voice heard. Authorities need to hear from people who support new homes.

✉️ Write Email in Support View on Council Portal