← Back to Bexley

Status

With Case Officer Change of use
Received
01 Dec 2025
New dwellings
0

Full Proposal

Conversion of roof space to provide self-contained residential unit.

Documents

APPLICATION FORM REDACTED
Application Form - Public
Not archived · Council Link
BNG STATEMENT
Supporting Document
Not archived · Council Link
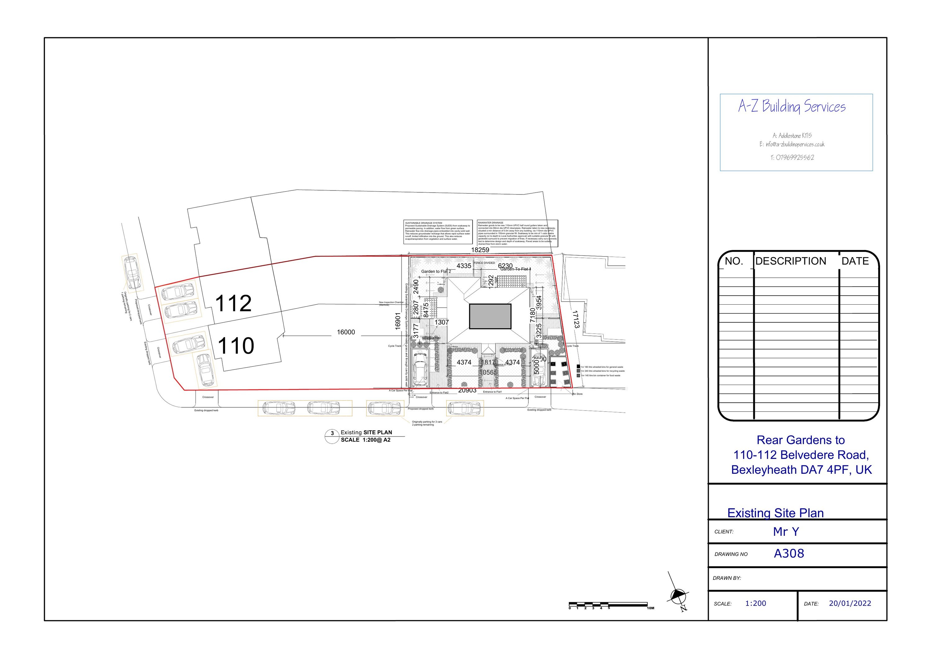
EXISTING ELEVATIONS
Drawing
Not archived · Council Link
EXISTING FIRST FLOOR PLAN
Drawing
Not archived · Council Link
EXISTING LOFT PLAN
Drawing
Not archived · Council Link
EXISTING ROOF PLAN
Drawing
Not archived · Council Link
Drawing
Archived · Council Link
GROUND FLOOR PLAN
Drawing
Not archived · Council Link
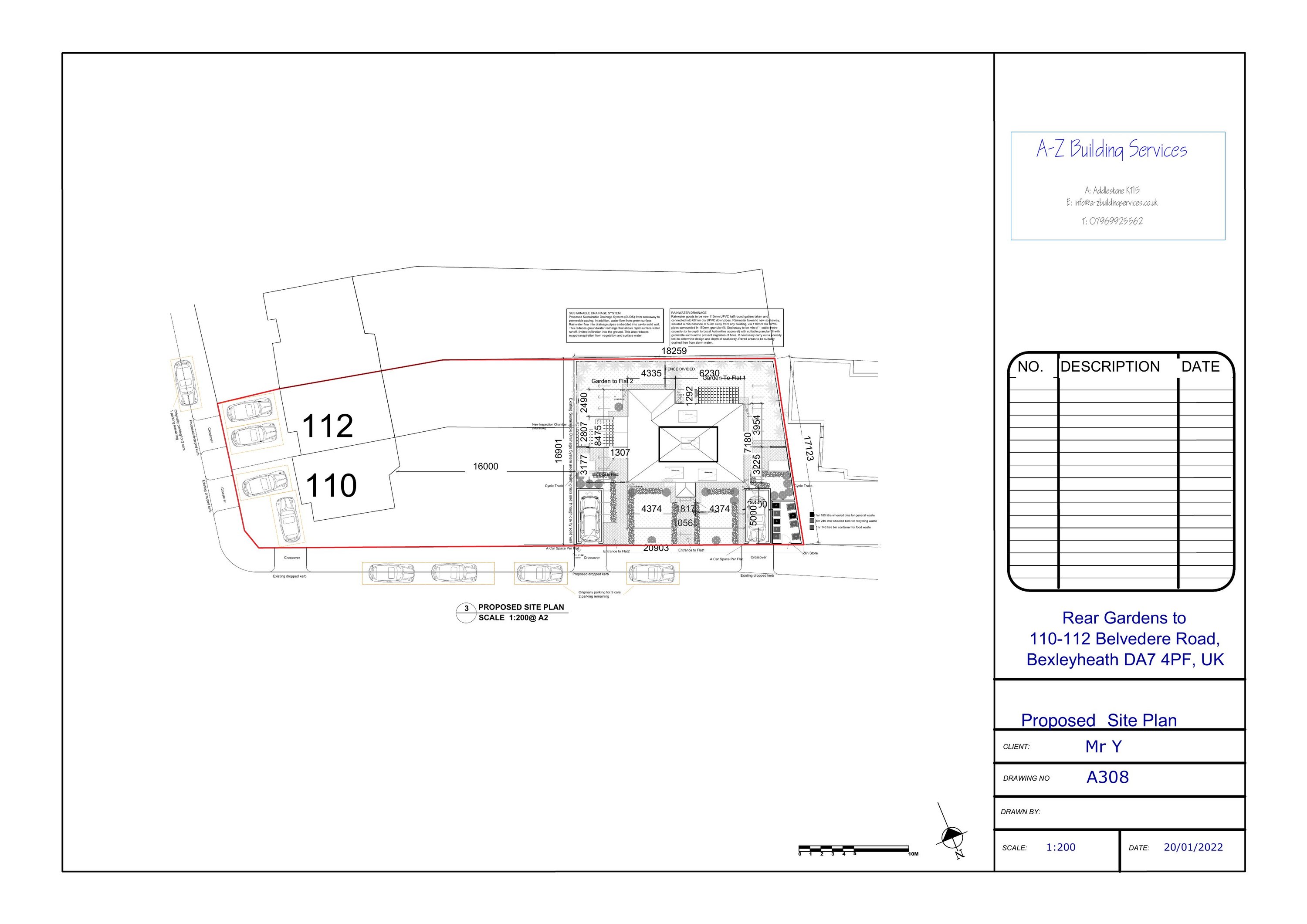
PROPOSED ELEVATIONS
Drawing
Not archived · Council Link
PROPOSED FIRST FLOOR PLAN
Drawing
Not archived · Council Link
PROPOSED GROUND FLOOR PLAN
Drawing
Not archived · Council Link
PROPOSED LOFT PLAN
Drawing
Not archived · Council Link
PROPOSED ROOF PLAN
Drawing
Not archived · Council Link
PROPOSED SECTIONS
Drawing
Not archived · Council Link
Drawing
Archived · Council Link

Take Action

Make your voice heard. Authorities need to hear from people who support new homes.

✉️ Write Email in Support View on Council Portal