← Back to Bexley

Status

With Case Officer House extension
Received
19 Dec 2025
New dwellings
0

Full Proposal

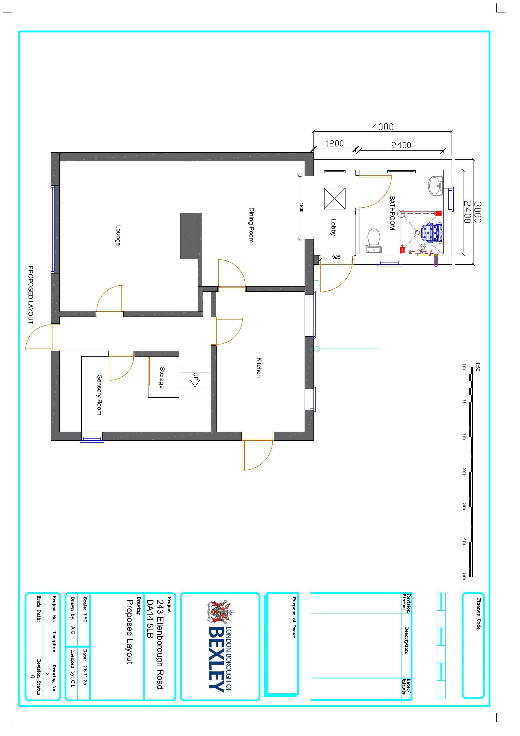
The erection of a single storey rear extension which in total (inc previous enlargements) would extend beyond the rear wall of the original house by 4.00 metres, for which the max height would be 3.00 metres, and for which the height of the eaves would be 2.60 metres.

Documents

APPLICATION FORM PUBLIC
Application Form - Public
Not archived · Council Link
BLOCK PLAN (EXISTING & PROPOSED)
Drawing
Not archived · Council Link
EXISTING FLOOR PLANS
Drawing
Not archived · Council Link
Drawing
Archived · Council Link
Drawing
Archived · Council Link

Take Action

Make your voice heard. Authorities need to hear from people who support new homes.

✉️ Write Email in Support View on Council Portal