← Back to Bexley

Status

With Case Officer House extension
Received
Last month
New dwellings
0

Full Proposal

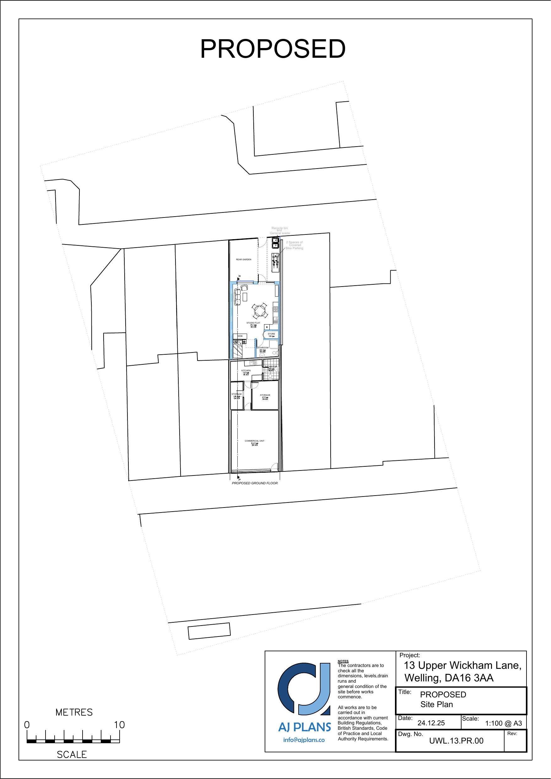
Erection of a single storey rear extension to provide a self-contained residential unit.

Documents

APPLICATION FORM REDACTED
Application Form - Public
Not archived · Council Link
DAYLIGHT REPORT
Supporting Document
Not archived · Council Link
DESIGN AND ACCESS STATEMENT
Supporting Document
Not archived · Council Link
EXISTING BLOCK PLAN
Drawing
Not archived · Council Link
EXISTING FRONT AND REAR ELEVATIONS AND SECTIONS
Drawing
Not archived · Council Link
EXISTING GROUND FLOOR AND FIRST FLOOR PLANS
Drawing
Not archived · Council Link
EXISTING SECOND FLOOR AND ROOF PLANS
Drawing
Not archived · Council Link
EXISTING SIDE ELEVATIONS
Drawing
Not archived · Council Link
FIRE STATEMENT
Supporting Document
Not archived · Council Link
PROPOSED BLOCK PLAN
Drawing
Not archived · Council Link
PROPOSED FIRST FLOOR AND ROOF PLANS
Drawing
Not archived · Council Link
PROPOSED FRONT AND REAR ELEVATIONS AND SECTIONS
Drawing
Not archived · Council Link
PROPOSED GROUND AND FIRST FLOOR PLANS
Drawing
Not archived · Council Link
PROPOSED SIDE ELEVATIONS
Drawing
Not archived · Council Link
Drawing
Archived · Council Link
Drawing
Archived · Council Link

Take Action

Make your voice heard. Authorities need to hear from people who support new homes.

✉️ Write Email in Support View on Council Portal