← Back to Bexley

Status

With Case Officer Change of use
Received
Last month
New dwellings
0

Full Proposal

Change of use from a 6-Person HMO (Class C4) to Larger House of Multiple Occupation (Sui Generis).

Documents

APPLICATION FORM REDACTED
Application Form - Public
Not archived · Council Link
BIKE SHED SPEC
Supporting Document
Not archived · Council Link
BIN SHED SPEC
Supporting Document
Not archived · Council Link
COMMUNICATIONS WITH COUNCIL
Supporting Document
Not archived · Council Link
DESIGN AND ACCESS STATEMENT
Supporting Document
Not archived · Council Link
ENVIRONMENTAL NOISE SURVEY ASSESSMENT
Supporting Document
Not archived · Council Link
EXISTING AND PROPOSED STREET SCENE
Drawing
Not archived · Council Link
EXISTING ELEVATIONS (NO CHANGE)
Drawing
Not archived · Council Link
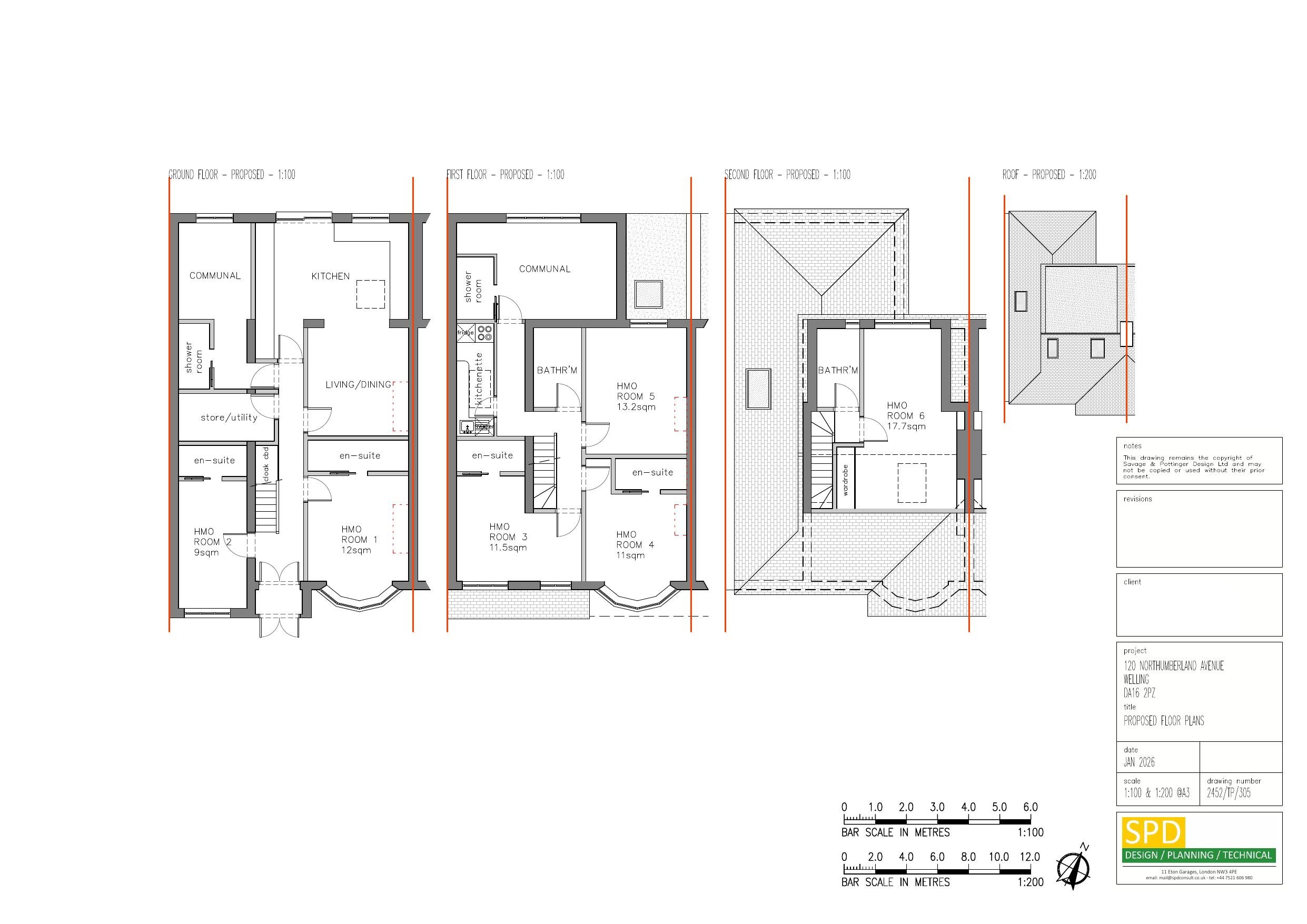
EXISTING FLOOR PLANS
Drawing
Not archived · Council Link
Drawing
Archived · Council Link
FIRE SAFETY INFORMATION
Supporting Document
Not archived · Council Link
HMO MANAGEMENT PLAN
Supporting Document
Not archived · Council Link
Drawing
Archived · Council Link
PROPOSED PARKING AND REFUSE CYCLE STORE
Drawing
Not archived · Council Link
Drawing
Archived · Council Link
Drawing
Archived · Council Link
SOUND INSULATION TEST REPORT
Supporting Document
Not archived · Council Link
TRANSPORT NOTE
Supporting Document
Not archived · Council Link
TRANSPORT NOTE EXCEL
Supporting Document
Not archived · Council Link

Take Action

Make your voice heard. Authorities need to hear from people who support new homes.

✉️ Write Email in Support View on Council Portal