← Back to Bexley

Status

With Case Officer House extension
Received
22 days ago
New dwellings
2

Full Proposal

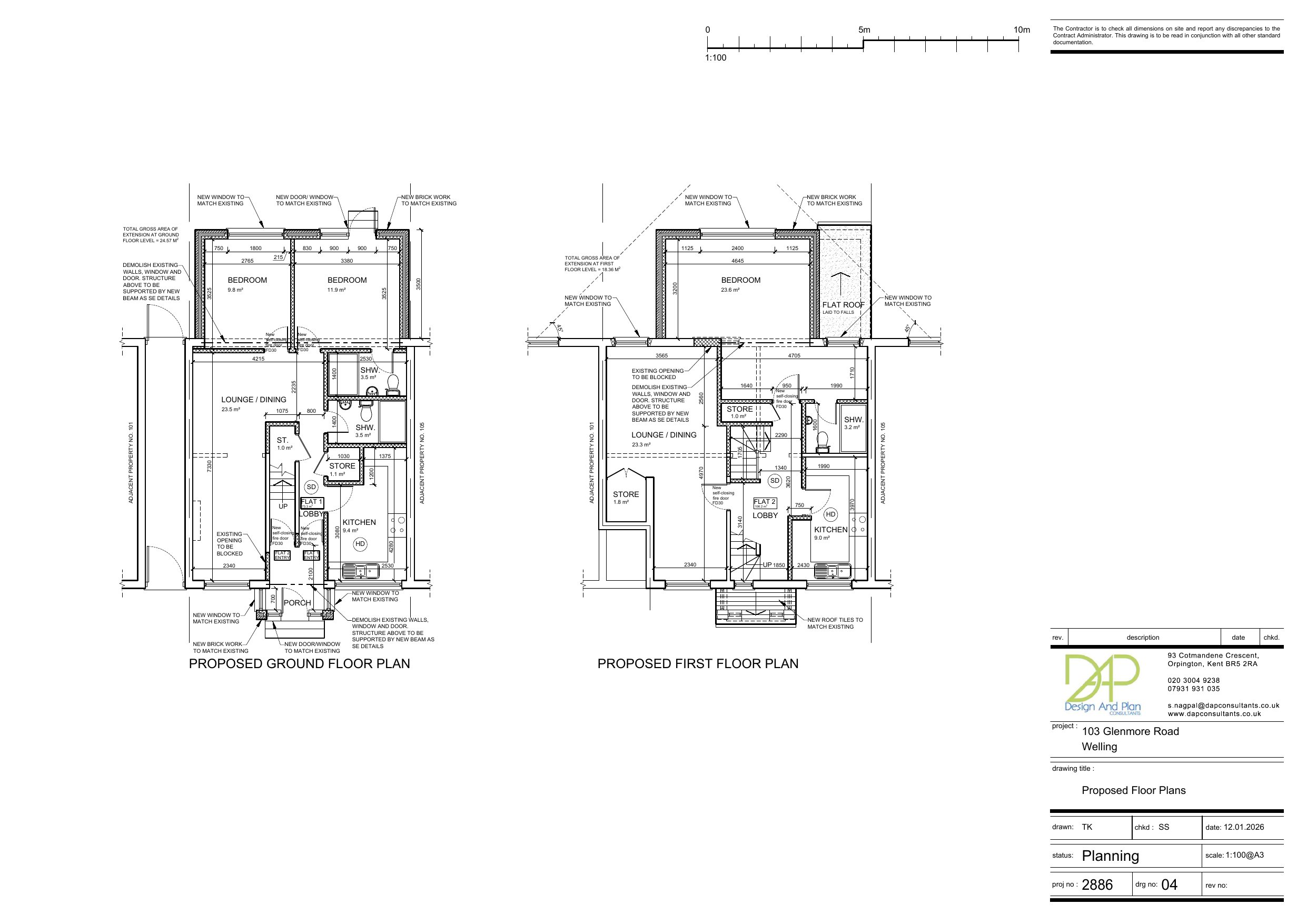
Conversion of the existing property to provide two self-contained residential units, involving the erection of a two storey rear extension and front porch. Creation of refuse and cycle storage.

Documents

APPLICATION FORM
Application Form - Public
Not archived · Council Link
DESIGN AND ACCESS STATEMENT
Supporting Document
Not archived · Council Link
EXISTING ELEVATIONS
Drawing
Not archived · Council Link
EXISTING FLOOR PLANS
Drawing
Not archived · Council Link
PROPOSED ELEVATIONS
Drawing
Not archived · Council Link
Drawing
Archived · Council Link
PROPOSED ROOF PLAN
Drawing
Not archived · Council Link
PROPOSED SITE AND BLOCK PLAN
Drawing
Not archived · Council Link

Take Action

Make your voice heard. Authorities need to hear from people who support new homes.

✉️ Write Email in Support View on Council Portal