← Back to Blackpool Council

Status

Unknown Change of use
Received
30 Oct 2025
New dwellings
0

Full Proposal

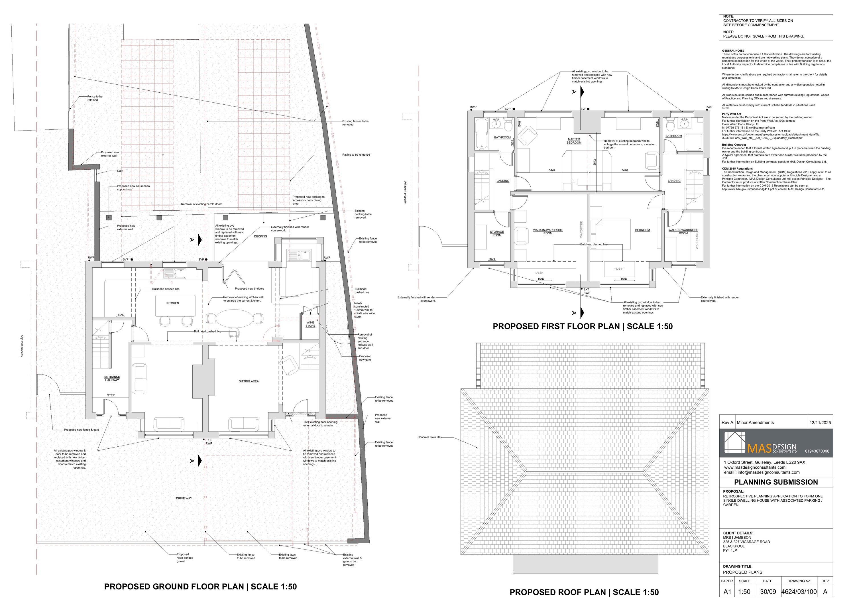
External alterations including replacement of existing windows with timber windows, removal of set of doors and installation of window to rear, erection of decking and canopy roofing to rear, erection of fencing, and rendering of all elevations and use of property as altered as a single private dwelling house. (Retrospective Application)

Documents

Application form
Application Form
Not archived · Council Link
Blackpool airport
Comment - Statutory Consultee
Not archived · Council Link
Environmental protection
Comment - Statutory Consultee
Not archived · Council Link
Existing elevations
Plans
Not archived · Council Link
Existing floor plans
Plans
Not archived · Council Link
Plan - Location
Archived · Council Link
Proposed elevations and section
Plans
Not archived · Council Link
Proposed street scape and front elevation
Plans
Not archived · Council Link
Superseded existing elevations
Plans - Superseded
Not archived · Council Link
Superseded existing floor plans
Plans - Superseded
Not archived · Council Link
Superseded location plan
Plans - Superseded
Not archived · Council Link
Superseded proposed elevations
Plans - Superseded
Not archived · Council Link
Superseded proposed elevations
Plans - Superseded
Not archived · Council Link
Plans - Superseded
Archived · Council Link
Plans - Superseded
Archived · Council Link
Plans - Superseded
Archived · Council Link
Superseded proposed street scape and front elevation
Plans - Superseded
Not archived · Council Link

Take Action

Make your voice heard. Authorities need to hear from people who support new homes.

✉️ Write Email in Support View on Council Portal