← Back to Blackpool Council

Status

Registered House extension
Received
Last week
New dwellings
0

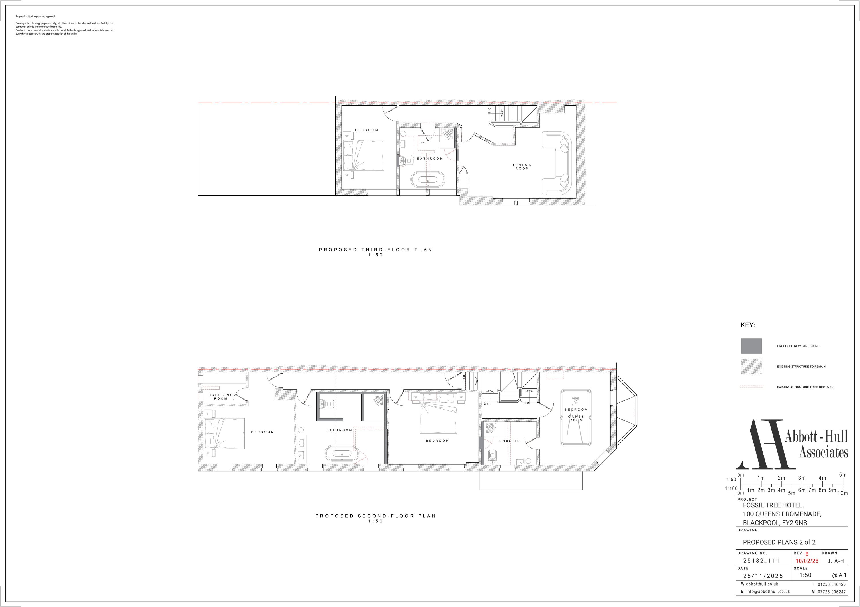
Full Proposal

Erection of a single storey extension to front elevation with balcony above and use of premises as altered as a single private dwelling house following demolition of front, side and rear extensions.

Documents

Application form
Application Form
Not archived · Council Link
Existing elevations
Plans
Not archived · Council Link
Existing floor plans 1 of 2
Plans
Not archived · Council Link
Existing floor plans 2 of 2
Plans
Not archived · Council Link
Plan - Site Layout
Archived · Council Link
Location plan
Plan - Location
Not archived · Council Link
Proposed elevations
Plans
Not archived · Council Link
Plan - Site Layout
Archived · Council Link

Take Action

Make your voice heard. Authorities need to hear from people who support new homes.

✉️ Write Email in Support View on Council Portal