← Back to Bolsover District Council

Status

In Progress Change of use
Received
24 Oct 2025
New dwellings
0

Full Proposal

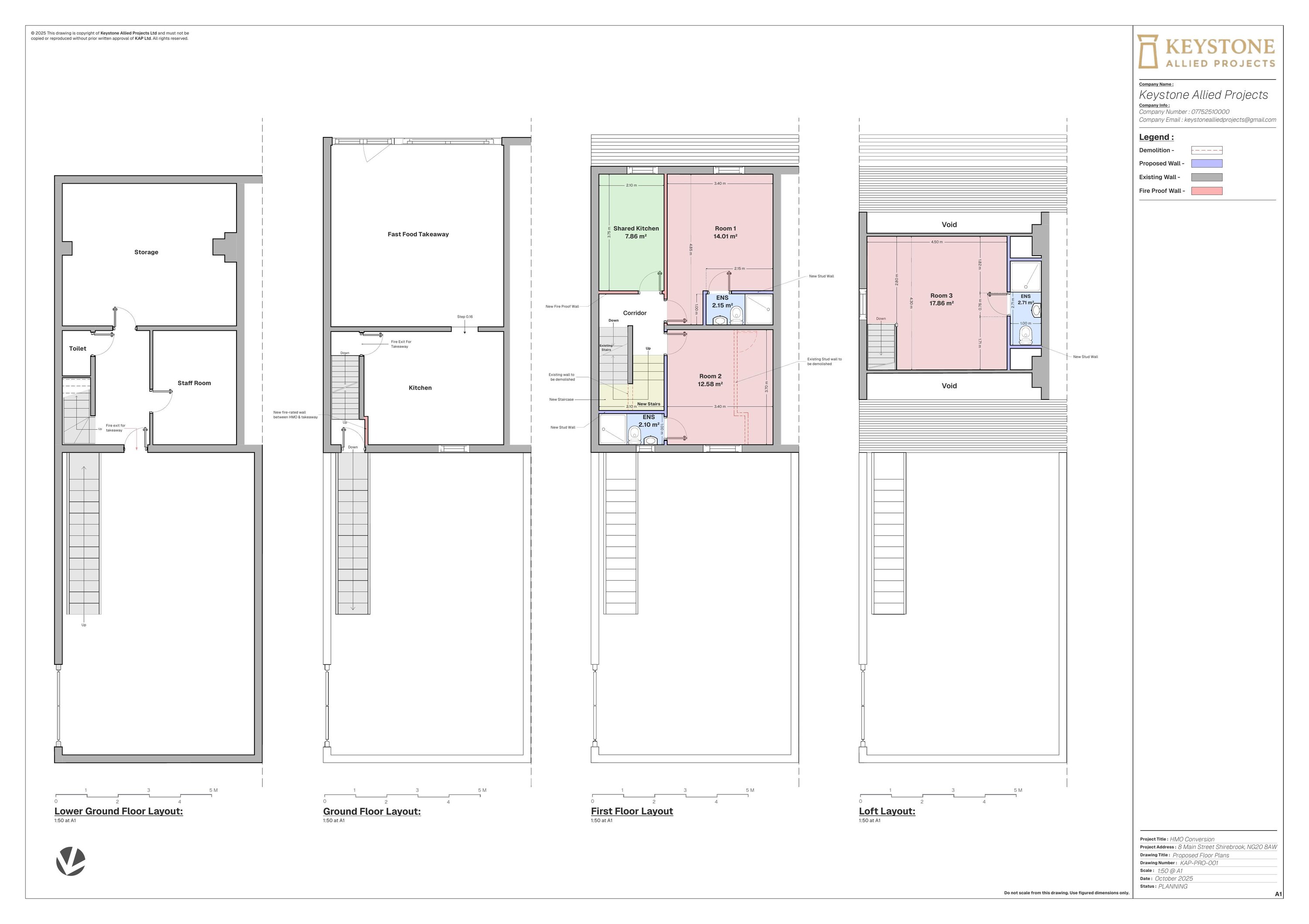
Change of use of the first and second floors from ancillary accommodation (previously used in association with the existing ground-floor takeaway) to a 3-bedroom House in Multiple Occupation (Use Class C4).

Documents

APPLICATION FORM - WITHOUT PERSONAL DATA
Application Form
Not archived · Council Link
BARBER
Public Comment
Not archived · Council Link
BURNS
Public Comment
Not archived · Council Link
DCC HIGHWAYS
Consultee Comment
Not archived · Council Link
EH POLLUTION
Consultee Comment
Not archived · Council Link
EHO RESPONSE TO NOISE AND ODOUR ASSESSMENT
Consultee Comment
Not archived · Council Link
EXISTING FLOOR PLANS
Drawing
Not archived · Council Link
EXISTING FRONT AND REAR ELEVATIONS
Drawing
Not archived · Council Link
EXTENSION OF TIME - 19.02.2025
Correspondence
Not archived · Council Link
FLOYDE
Public Comment
Not archived · Council Link
FRITCHLEY
Public Comment
Not archived · Council Link
GOUGH
Public Comment
Not archived · Council Link
JONES
Public Comment
Not archived · Council Link
KIRK
Public Comment
Not archived · Council Link
NOISE IMPACT ASSESSMENT
BackGround Papers
Not archived · Council Link
ODOUR IMPACT ASSESSMENT
BackGround Papers
Not archived · Council Link
Drawing
Archived · Council Link
REANEY - COUNTY COUNCILLOR FOR SHIREBROOK AND PLEASLEY
Public Comment
Not archived · Council Link
SITE NOTICE
Correspondence
Not archived · Council Link
SMITH
Public Comment
Not archived · Council Link
STEVENS
Public Comment
Not archived · Council Link
STEVENS - PHOTOS
Public Comment
Not archived · Council Link
STEVENS - PHOTOS
Public Comment
Not archived · Council Link
STEVENS - PHOTOS
Public Comment
Not archived · Council Link
STEVENS - PHOTOS
Public Comment
Not archived · Council Link
THE LOCATION PLAN
Drawing
Not archived · Council Link
WABY
Public Comment
Not archived · Council Link
WEBB
Public Comment
Not archived · Council Link
WEBB
Public Comment
Not archived · Council Link
WOOTTON
Public Comment
Not archived · Council Link

Take Action

Make your voice heard. Authorities need to hear from people who support new homes.

✉️ Write Email in Support View on Council Portal