← Back to Bolton Council

Status

Deposited Change of use
Received
Last month
New dwellings
0

Full Proposal

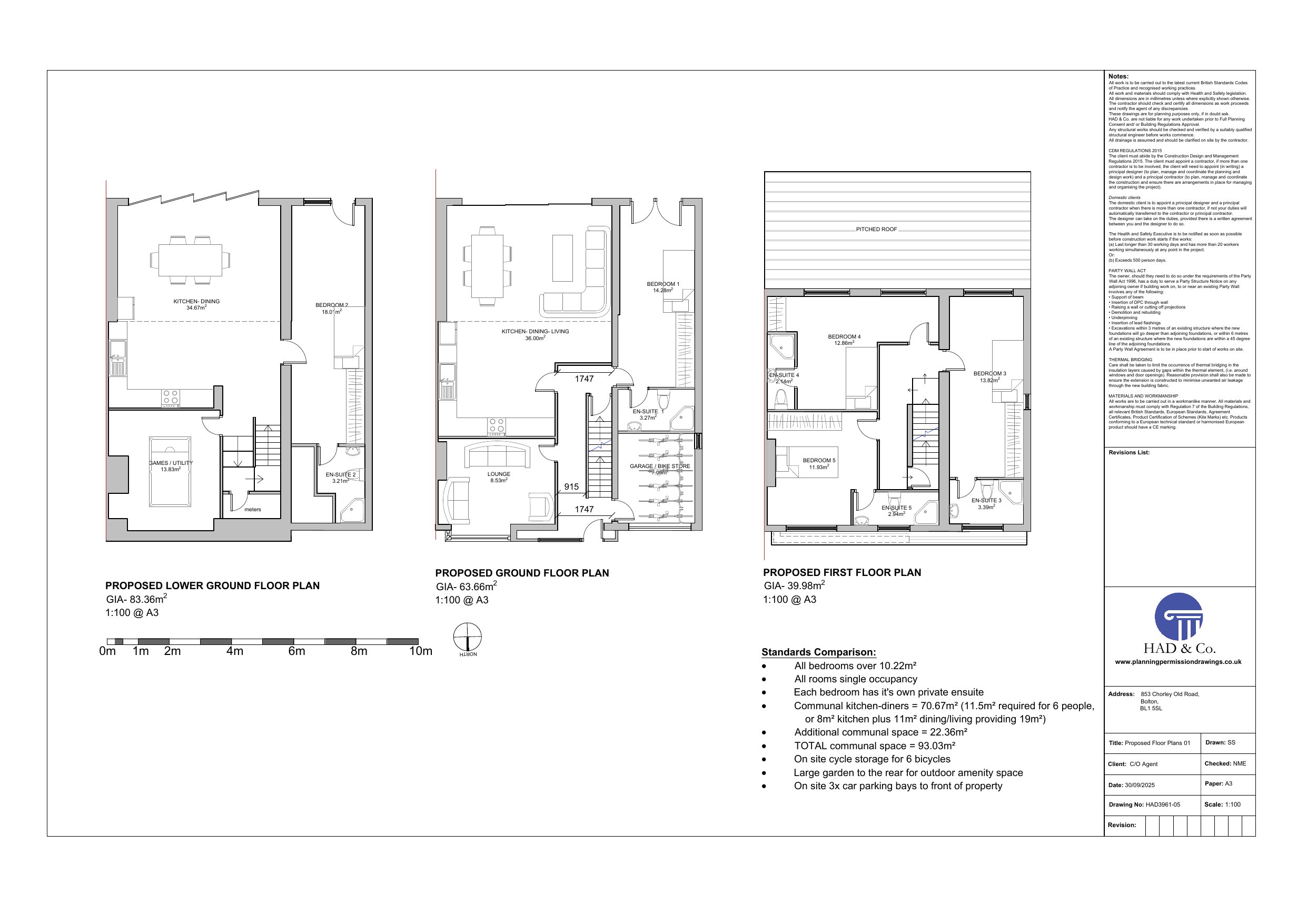
CHANGE OF USE FROM DWELLING (C3) TO 6 NO. BEDROOM HMO FOR 6 OCCUPANTS (CLASS C4)

Documents

ACCESS AND ADAPTABILITY STATEMENT V1
Application Submission Details
Not archived · Council Link
APPLICATION FORM REDACTED
Application Form
Not archived · Council Link
Design for Security
Consultee Comment
Not archived · Council Link
ELEVATIONS
Application Submission Details
Not archived · Council Link
EXISTING FLOOR PLANS
Application Submission Details
Not archived · Council Link
EXISTING ROOF PLAN
Application Submission Details
Not archived · Council Link
FIRE SAFETY PLANS
Application Submission Details
Not archived · Council Link
FIRE SAFETY PLANS
Application Submission Details
Not archived · Council Link
GREEN BELT JUSTIFICATION STATEMENT
Application Submission Details
Not archived · Council Link
Highways Engineering
Consultee Comment
Not archived · Council Link
Application Submission Details
Archived · Council Link
LOCATION PLAN
Application Submission Details
Not archived · Council Link
Application Submission Details
Archived · Council Link
PROPOSED ROOF PLAN
Application Submission Details
Not archived · Council Link
REFUSE AND GARDEN PLANS
Application Submission Details
Not archived · Council Link
RESIDENTIAL STANDARDS V1
Application Submission Details
Not archived · Council Link
TRAVEL PLAN
Application Submission Details
Not archived · Council Link

Take Action

Make your voice heard. Authorities need to hear from people who support new homes.

✉️ Write Email in Support View on Council Portal