← Back to Bolton Council

Status

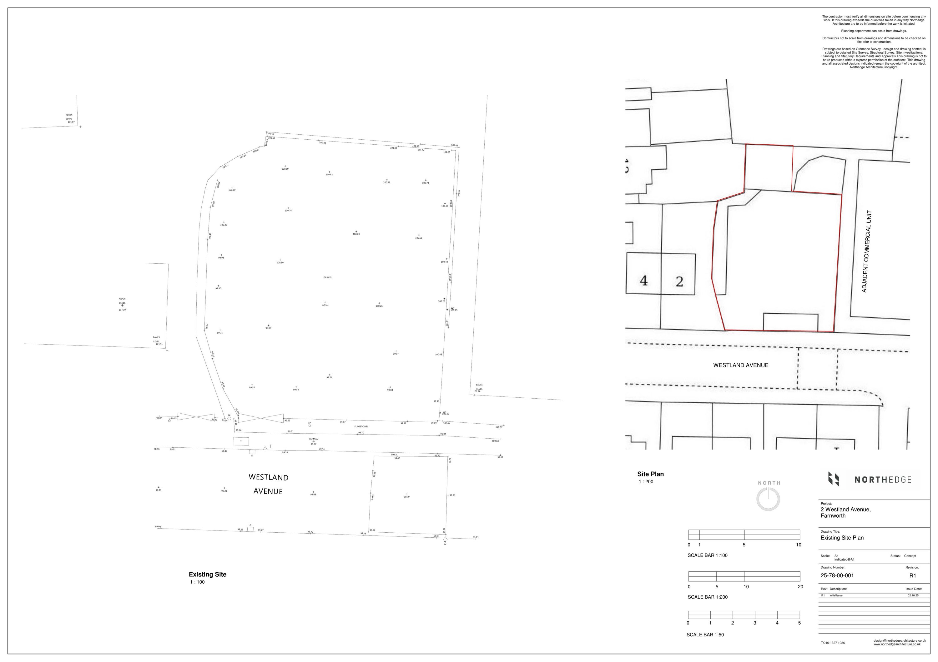
Deposited New housing
Received
Last month
New dwellings
9

Full Proposal

OUTLINE APPLICATION FOR THE ERECTION OF 1 NO. TWO STOREY RESIDENTIAL BUILDING COMPRISING OF NO. 9 SELF CONTAINED APARTMENTS WITH ASSOCIATED CAR PARKING AND COMMUNAL GARDEN (ACCESS, APPEARANCE, LAYOUT AND SCALE DETAILS ONLY)

Documents

ACCESSIBILITY AND ADAPTABILITY STATEMENT
Application Submission Details
Not archived · Council Link
APPLICATION FORM REDACTED
Application Form
Not archived · Council Link
Application Submission Details
Archived · Council Link
Highways Engineering
Consultee Comment
Not archived · Council Link
Neighbour Consultation Plan
Other
Not archived · Council Link
NOISE IMPACT ASSESSMENT
Application Submission Details
Not archived · Council Link
PROPOSED ELEVATIONS 01
Application Submission Details
Not archived · Council Link
PROPOSED ELEVATIONS 02
Application Submission Details
Not archived · Council Link
PROPOSED FIRST FLOOR PLAN
Application Submission Details
Not archived · Council Link
Application Submission Details
Archived · Council Link
RESIDENTIAL STANDARDS STATEMENT
Application Submission Details
Not archived · Council Link
Application Submission Details
Archived · Council Link
SUDS PROFORMA
Application Submission Details
Not archived · Council Link
SUSTAINABILITY - CARBON AND ENERGY STATEMENT
Application Submission Details
Not archived · Council Link
Application Submission Details
Archived · Council Link
United Utilities
Consultee Comment
Not archived · Council Link

Take Action

Make your voice heard. Authorities need to hear from people who support new homes.

✉️ Write Email in Support View on Council Portal