← Back to Bolton Council

Status

Decided Change of use
Received
23 Jan 2025
New dwellings
0

Summary

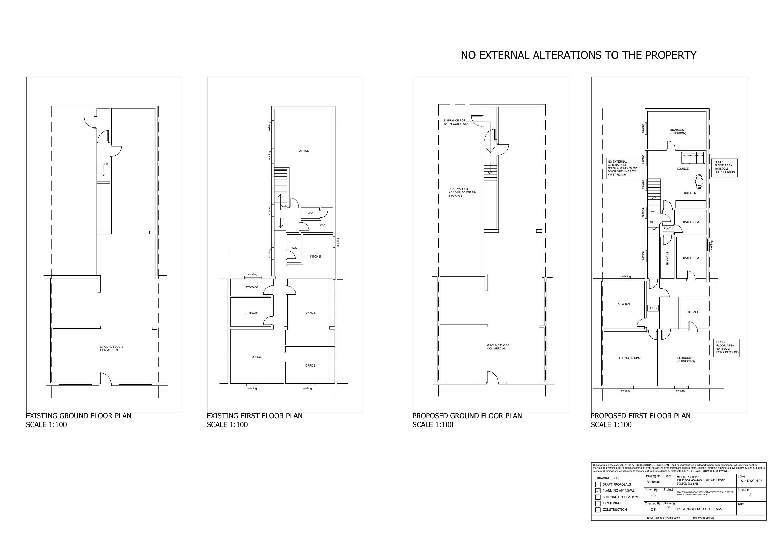
Prior approval for conversion of first-floor office into two residential flats.

Full Proposal

PRIOR APPROVAL FOR THE CHANGE OF USE OF A FIRST FLOOR OFFICE INTO 2No. FLATS

Documents

ApplicationFormRedacted
Application Form
Not archived · Council Link
Decision Notice
Decision
Not archived · Council Link
Application Submission Details
Archived · Council Link
Location Plan
Application Submission Details
Not archived · Council Link
Officer Report
Officer Report
Not archived · Council Link
PLANNING STATEMENT
Application Submission Details
Not archived · Council Link
Application Submission Details
Archived · Council Link

Take Action

Make your voice heard. Authorities need to hear from people who support new homes.

✉️ Write Email in Support View on Council Portal