← Back to Bolton Council

Status

Deposited House extension
Received
24 Feb 2025
New dwellings
0

Summary

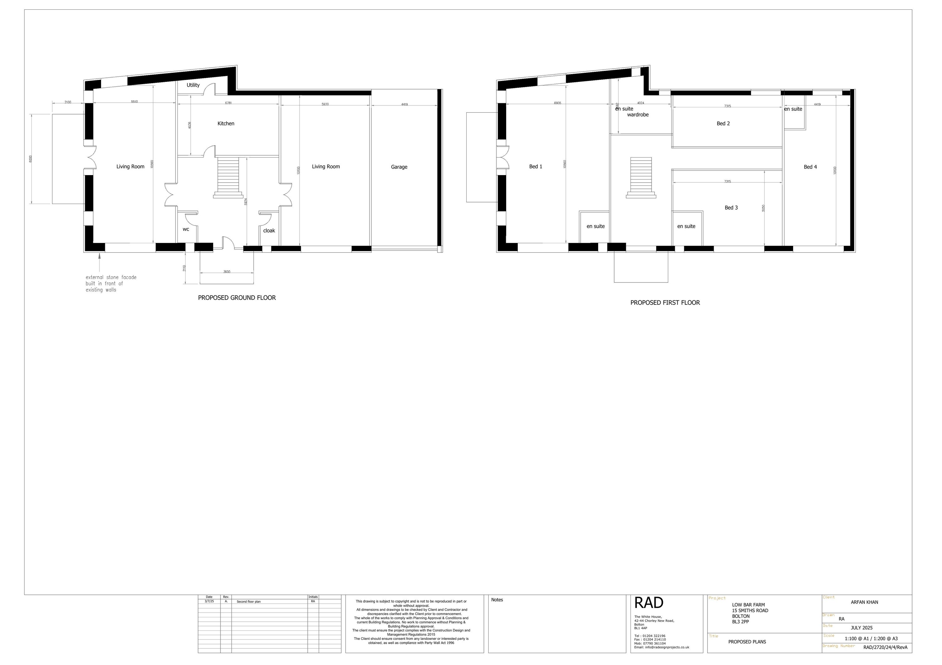
First-floor extension to create a two-storey dwelling, with balconies and new boundary wall.

Full Proposal

ERECTION OF A FIRST FLOOR EXTENSION TO CREATE TWO STOREY DWELLING, BALCONIES TO FRONT AND SIDE AND ALTERATION TO EXISTING EXTERNAL MATERIALS TOGETHER WITH A NEW BOUNDARY WALL

Documents

AIA
Tree Survey
Not archived · Council Link
AMS
Tree Survey
Not archived · Council Link
ApplicationFormRedacted
Application Form
Not archived · Council Link
ARBORICULTURAL IMPLICATIONS ASSESSMENT
Amended Drawing
Not archived · Council Link
ARBORICULTURAL METHOD STATEMENT
Amended Drawing
Not archived · Council Link
Bat survey
Consultee Comment
Not archived · Council Link
Comments from ecologist - bat survey
Consultee Comment
Not archived · Council Link
EXISTING ELEVATIONS
Amended Drawing
Not archived · Council Link
EXISTING FLOOR PLANS
Amended Drawing
Not archived · Council Link
External material options
Amended Drawing
Not archived · Council Link
Greater Manchester Ecology Unit
Consultee Comment
Not archived · Council Link
NEIGHBOUR CONSULTATION PLAN
Consultation Plan
Not archived · Council Link
Proposed elevations
Amended Drawing
Not archived · Council Link
PROPOSED ELEVATIONS
Amended Drawing
Not archived · Council Link
Amended Drawing
Archived · Council Link
Amended Drawing
Archived · Council Link
REDACTED APPLICATION FORM
Amended Drawing
Not archived · Council Link
RESPONSE - HIGHWAYS & ENGINEERING
Consultee Comment
Not archived · Council Link
SITE AND LOCATION PLANS
Amended Drawing
Not archived · Council Link
Tree Officer's comment
Consultee Comment
Not archived · Council Link

Take Action

Make your voice heard. Authorities need to hear from people who support new homes.

✉️ Write Email in Support View on Council Portal