← Back to Bolton Council

Status

Deposited Demolition
Received
20 May 2025
New dwellings
3

Summary

Demolition of existing dwelling and erection of three new houses.

Full Proposal

DEMOLITION OF EXISTING DWELLING TOGETHER WITH THE ERECTION OF 3No. DWELLINGHOUSES

Documents

4472_M4(2) COMPLIANCE REPORT
Application Submission Details
Not archived · Council Link
4472_NDSS COMPLIANCE FORM
Application Submission Details
Not archived · Council Link
ApplicationFormRedacted
Application Form
Not archived · Council Link
Bat Survey
Application Submission Details
Not archived · Council Link
BNG Assessment Report
Other
Not archived · Council Link
BNG EXEMPTION LETTER_DOBB ROW
Application Submission Details
Not archived · Council Link
BNG Metric Tool 1.0.4
Other
Not archived · Council Link
Boundary Treatment Plan
Application Submission Details
Not archived · Council Link
DESIGN AND ACCESS STATEMENT
Application Submission Details
Not archived · Council Link
Design for Security
Consultee Comment
Not archived · Council Link
Environmental Health
Consultee Comment
Not archived · Council Link
Existing Elevation
Application Submission Details
Not archived · Council Link
Application Submission Details
Archived · Council Link
Highways Engineering
Consultee Comment
Not archived · Council Link
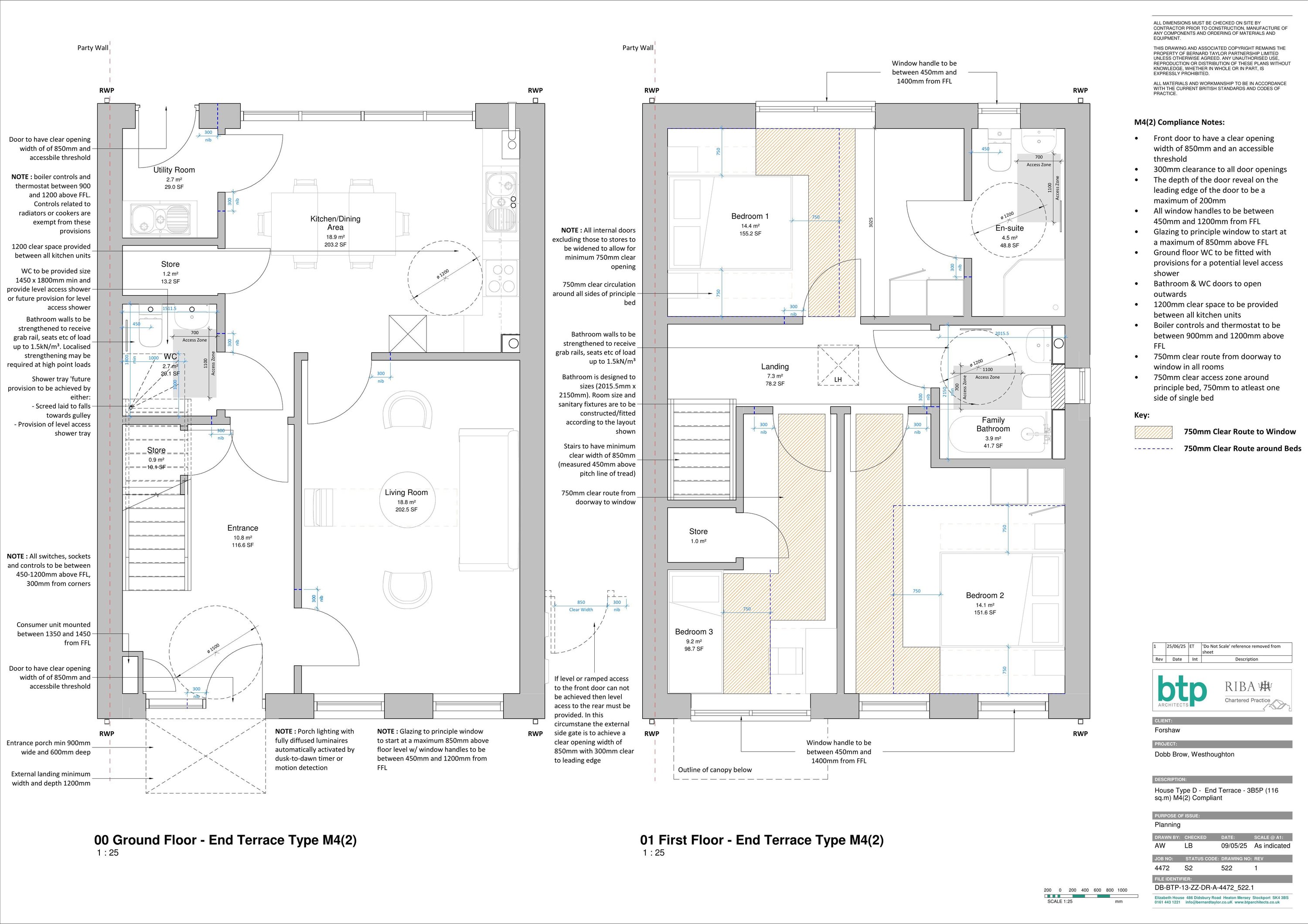
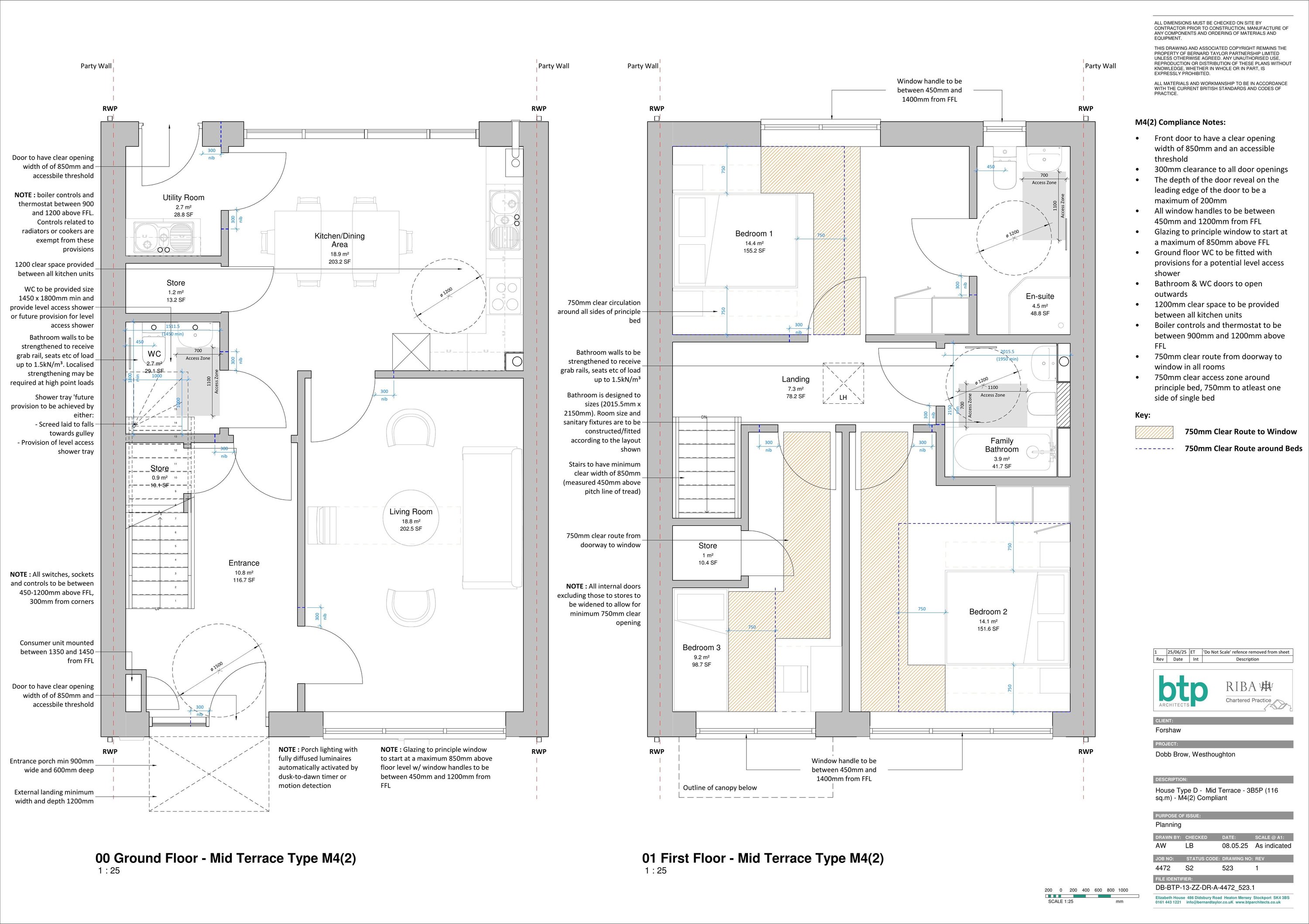
HOUSE TYPE D - END TERRACE - PLANS AND ELEVATIONS
Application Submission Details
Not archived · Council Link
Location Plan
Application Submission Details
Not archived · Council Link
Mr Paul Hodges
Consultee Comment
Not archived · Council Link
Neighbour Consultation Plan
Other
Not archived · Council Link
Preliminary Risk Assessment
Application Submission Details
Not archived · Council Link
Application Submission Details
Archived · Council Link
Application Submission Details
Archived · Council Link
Application Submission Details
Archived · Council Link
Application Submission Details
Archived · Council Link
Application Submission Details
Archived · Council Link
Site Clearance Plan
Application Submission Details
Not archived · Council Link
Street Elevations
Application Submission Details
Not archived · Council Link
Tree officer comments
Consultee Comment
Not archived · Council Link
Updated Location Plan
Amended Drawing
Not archived · Council Link
Westhoughton Town Council
Consultee Comment
Not archived · Council Link

Take Action

Make your voice heard. Authorities need to hear from people who support new homes.

✉️ Write Email in Support View on Council Portal