← Back to Bolton Council

Status

Decided Change of use
Received
29 May 2025
New dwellings
0

Summary

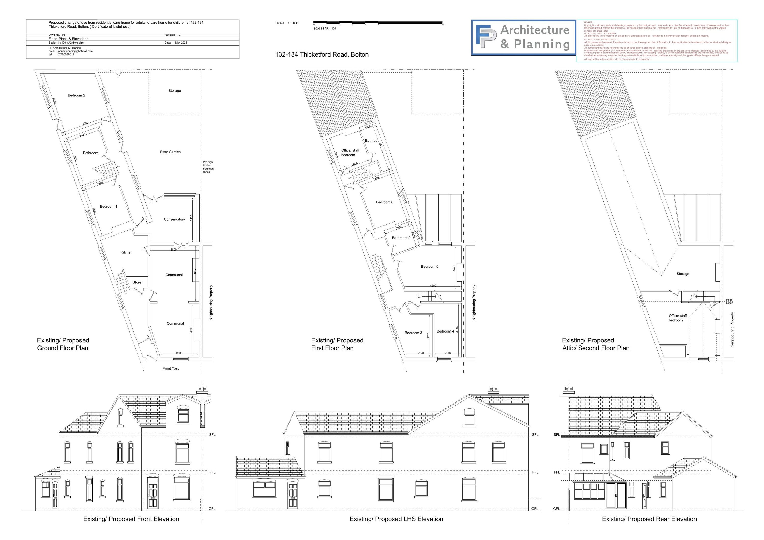
Change of use from adult residential care home to children's residential care home.

Full Proposal

CERTIFICATE OF LAWFUL DEVELOPMENT (S192) FOR THE PROPOSED CHANGE OF USE FROM A RESIDENTIAL CARE HOME FOR ADULTS TO A RESIDENTIAL CARE HOME FOR CHILDREN

Documents

APPLICATIONFORMREDACTED
Application Submission Details
Not archived · Council Link
Decision Notice
Decision
Not archived · Council Link
Application Submission Details
Archived · Council Link
LOCATIONPLAN
Application Submission Details
Not archived · Council Link
Officer Report
Officer Report
Not archived · Council Link
Application Submission Details
Archived · Council Link

Take Action

Make your voice heard. Authorities need to hear from people who support new homes.

✉️ Write Email in Support View on Council Portal