← Back to Bolton Council

Status

Deposited Change of use
Received
01 Aug 2025
New dwellings
0

Summary

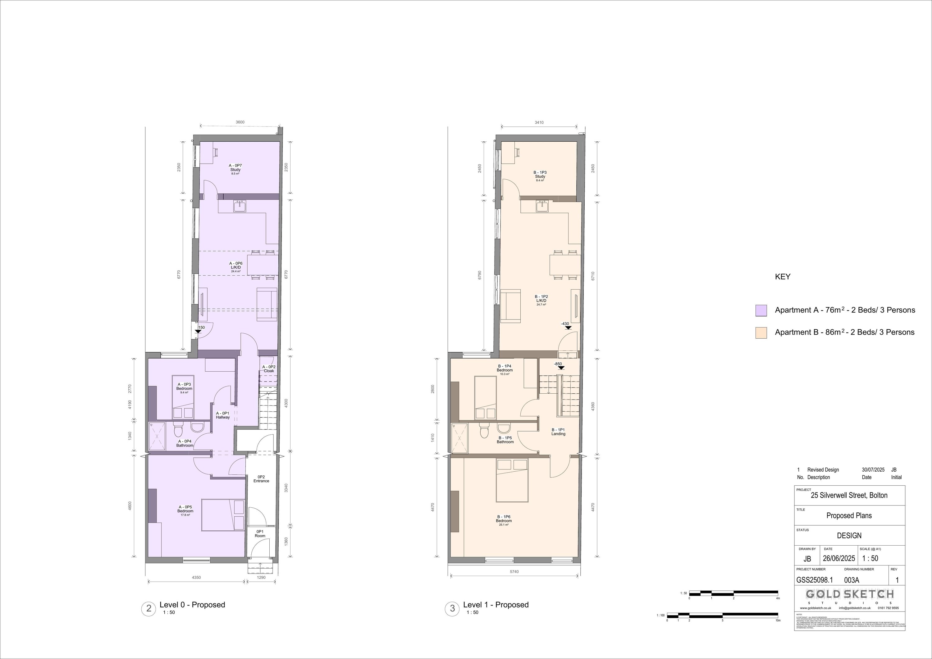
Change of use of offices to two self-contained apartments.

Full Proposal

CHANGE OF USE FROM OFFICES TO 2 NO. SELF CONTAINED APARTMENTS.

Documents

APPLICATION FORM REDACTED
Application Submission Details
Not archived · Council Link
ApplicationFormRedacted
Application Form
Not archived · Council Link
BIKE STORAGE ELEVATIONS
Application Submission Details
Not archived · Council Link
BIKE STORAGE SPEC
Application Submission Details
Not archived · Council Link
Decision
Amended Drawing
Not archived · Council Link
DESIGN AND ACCESS STATEMENT
Application Submission Details
Not archived · Council Link
Design for Security
Consultee Comment
Not archived · Council Link
Environmental Health
Consultee Comment
Not archived · Council Link
Application Submission Details
Archived · Council Link
EXISTING ELEVATIONS
Application Submission Details
Not archived · Council Link
EXISTING PLANS
Application Submission Details
Not archived · Council Link
HERITAGE STATEMENT
Application Submission Details
Not archived · Council Link
LOCATION PLAN
Application Submission Details
Not archived · Council Link
Mr Paul Hodges
Consultee Comment
Not archived · Council Link
Neighbour Consultation Plan
Other
Not archived · Council Link
NOISE ASSESSMENT
Other
Not archived · Council Link
PROPOSED ELEVATIONS
Application Submission Details
Not archived · Council Link
Application Submission Details
Archived · Council Link
RESIDENTIAL STANDARDS STATEMENT
Application Submission Details
Not archived · Council Link

Take Action

Make your voice heard. Authorities need to hear from people who support new homes.

✉️ Write Email in Support View on Council Portal