← Back to Bolton Council

Status

Decided Change of use
Received
29 Sep 2025
New dwellings
0

Summary

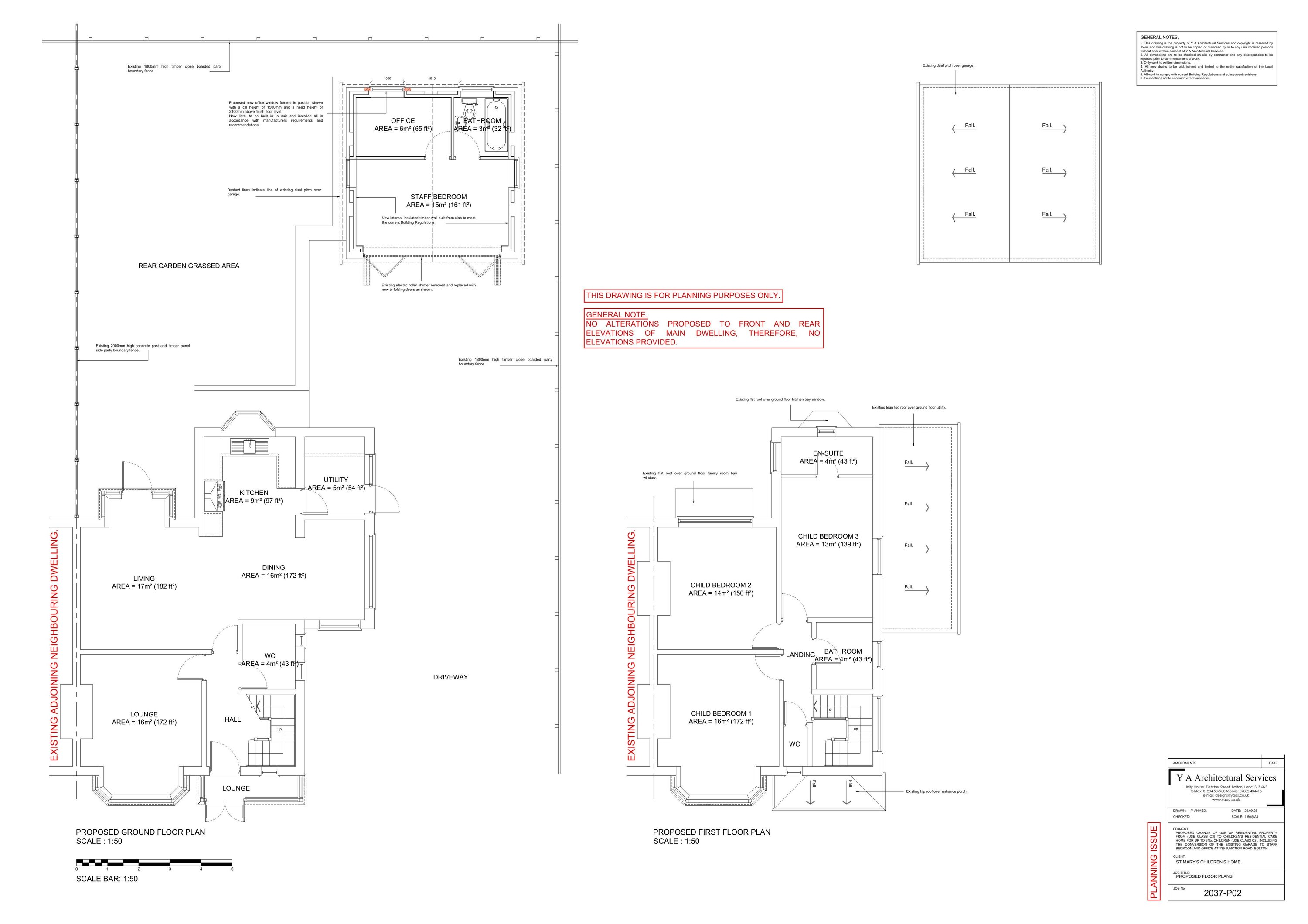
Change of use from dwelling (C3) to children's home (C2) for up to 3 children; garage conversion.

Full Proposal

CHANGE OF USE FROM DWELLING (C3) TO RESIDENTIAL CHILDRENS FACILITY/HOME (C2) FOR UP TO 3 NO. CHILDREN/YOUNG PERSONS TOGETHER WITH GARAGE CONVERSION TO HABITABLE ROOM.

Documents

APPLICATION FORM REDACTED
Application Form
Not archived · Council Link
Decision Notice
Decision
Not archived · Council Link
Application Submission Details
Archived · Council Link
LOCATION PLAN
Application Submission Details
Not archived · Council Link
Officer Report
Officer Report
Not archived · Council Link
PLANNING STATEMENT
Application Submission Details
Not archived · Council Link
Application Submission Details
Archived · Council Link
Application Submission Details
Archived · Council Link

Take Action

Make your voice heard. Authorities need to hear from people who support new homes.

✉️ Write Email in Support View on Council Portal