← Back to Bolton Council

Status

Deposited Demolition
Received
06 Oct 2025
New dwellings
0

Full Proposal

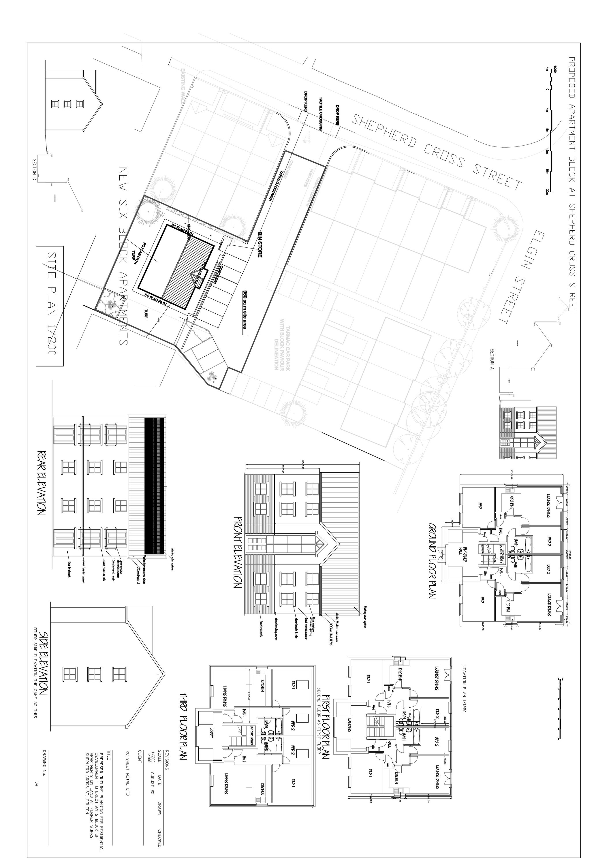
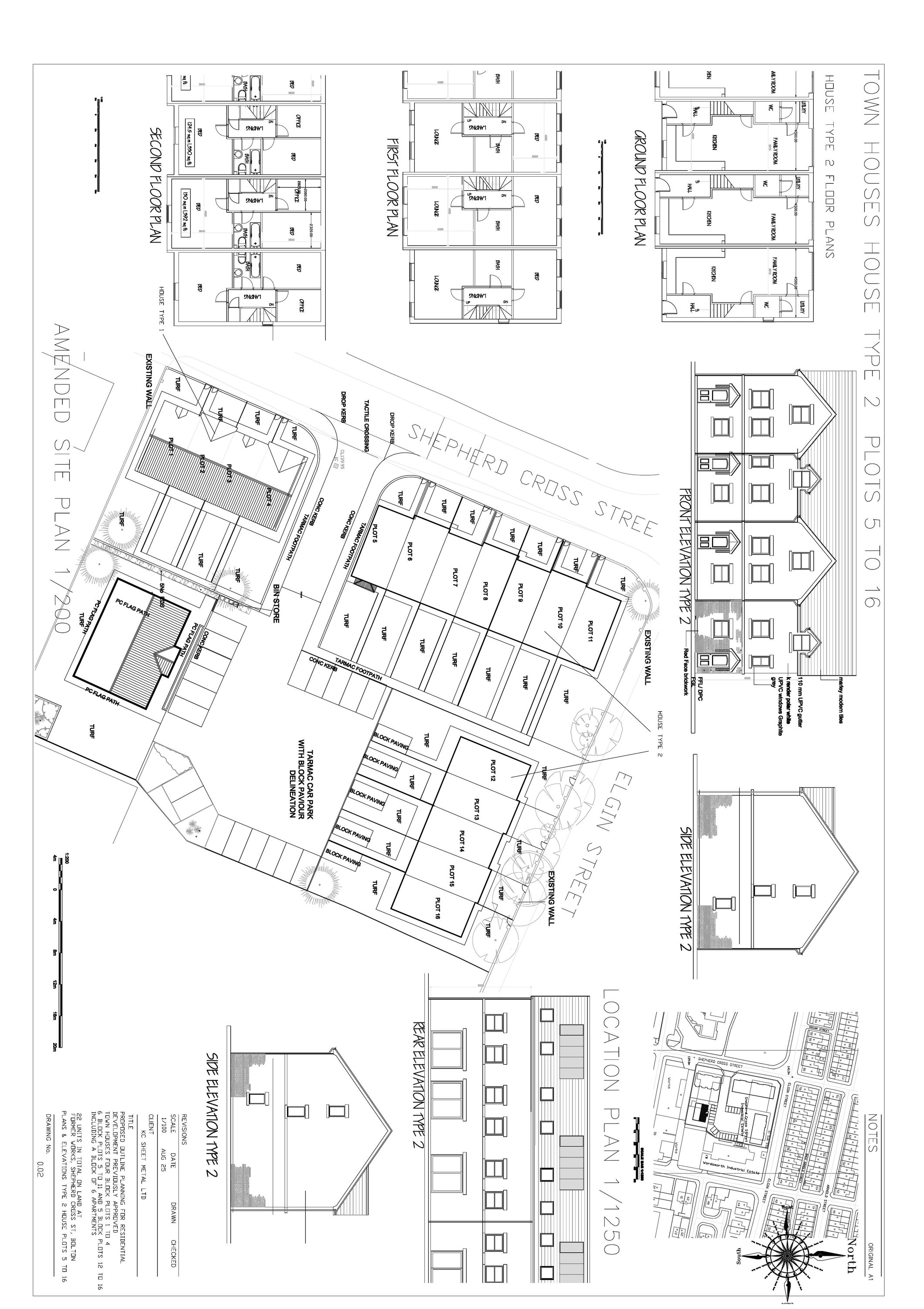
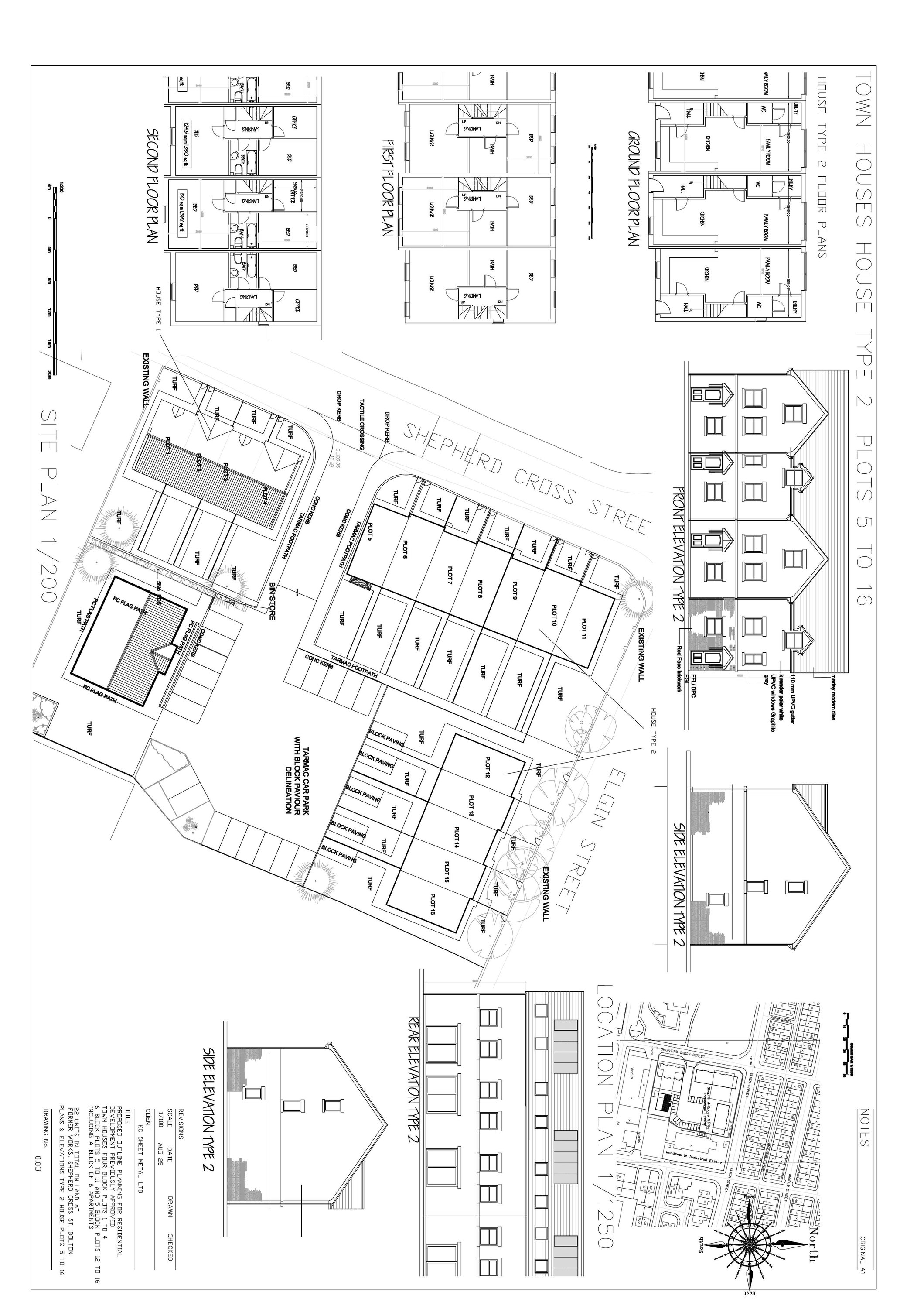
OUTLINE APPLICATION FOR THE DEMOLITION OF INDUSTRIAL UNITS AND ERECTION OF NO. 22 DWELLINGS (ACCESS, APPEARANCE, LAYOUT AND SCALE DETAILS ONLY)

Documents

. Flood Risk Team.
Consultee Comment
Not archived · Council Link
Application Submission Details
Archived · Council Link
APPLICATION FORM REDACTED
Application Submission Details
Not archived · Council Link
ASBESTOS MANAGEMENT SURVEY
Application Submission Details
Not archived · Council Link
BIODIVERSITY NET GAIN ASSESSMENT
Application Submission Details
Not archived · Council Link
BIODIVERSITY STATUTORY REPORT
Application Submission Details
Not archived · Council Link
BNG METRIC
Application Submission Details
Not archived · Council Link
Coal Authority
Consultee Comment
Not archived · Council Link
CRIME IMPACT STATEMENT
Application Submission Details
Not archived · Council Link
Application Submission Details
Archived · Council Link
DESIGN AND ACCESS STATEMENT
Application Submission Details
Not archived · Council Link
Application Submission Details
Archived · Council Link
Application Submission Details
Archived · Council Link
ECOLOGICAL IMPACT ASSESSMENT
Application Submission Details
Not archived · Council Link
ECOLOGICAL IMPACT ASSESSMENT
Application Submission Details
Not archived · Council Link
Environmental agency comments
Consultee Comment
Not archived · Council Link
EXISTING PLANS
Application Submission Details
Not archived · Council Link
GIA COVER LETTER
Application Submission Details
Not archived · Council Link
Greater Manchester Ecology Unit
Consultee Comment
Not archived · Council Link
Highways Engineering
Consultee Comment
Not archived · Council Link
LOCATION PLAN
Application Submission Details
Not archived · Council Link
Neighbour Consultation Plan
Other
Not archived · Council Link
NOISE IMPACT ASSESSMENT
Application Submission Details
Not archived · Council Link
PHASE 1 DESK TOP STUDY
Application Submission Details
Not archived · Council Link
PRELIMINARY BAT ROOST ASSESSMENT
Application Submission Details
Not archived · Council Link
PRELIMINARY RISK ASSESSMENT
Application Submission Details
Not archived · Council Link
Press Advert
Other
Not archived · Council Link
Application Submission Details
Archived · Council Link
Application Submission Details
Archived · Council Link
Application Submission Details
Archived · Council Link
Application Submission Details
Archived · Council Link
SECTION 106 AGREEMENT/DRAFT HEAD OF TERMS
Application Submission Details
Not archived · Council Link
SUSTAINABLE DRAINAGE STATEMENT/FLOOD RISK ASSESSMENT
Application Submission Details
Not archived · Council Link
Application Submission Details
Archived · Council Link
TRANSPORT STATEMENT
Application Submission Details
Not archived · Council Link
United Utilities
Consultee Comment
Not archived · Council Link
Application Submission Details
Archived · Council Link

Take Action

Make your voice heard. Authorities need to hear from people who support new homes.

✉️ Write Email in Support View on Council Portal