21390/25
Bolton Council · IDOX
Status
Decided
Change of use
Received
14 Nov 2025
New dwellings
0
Summary
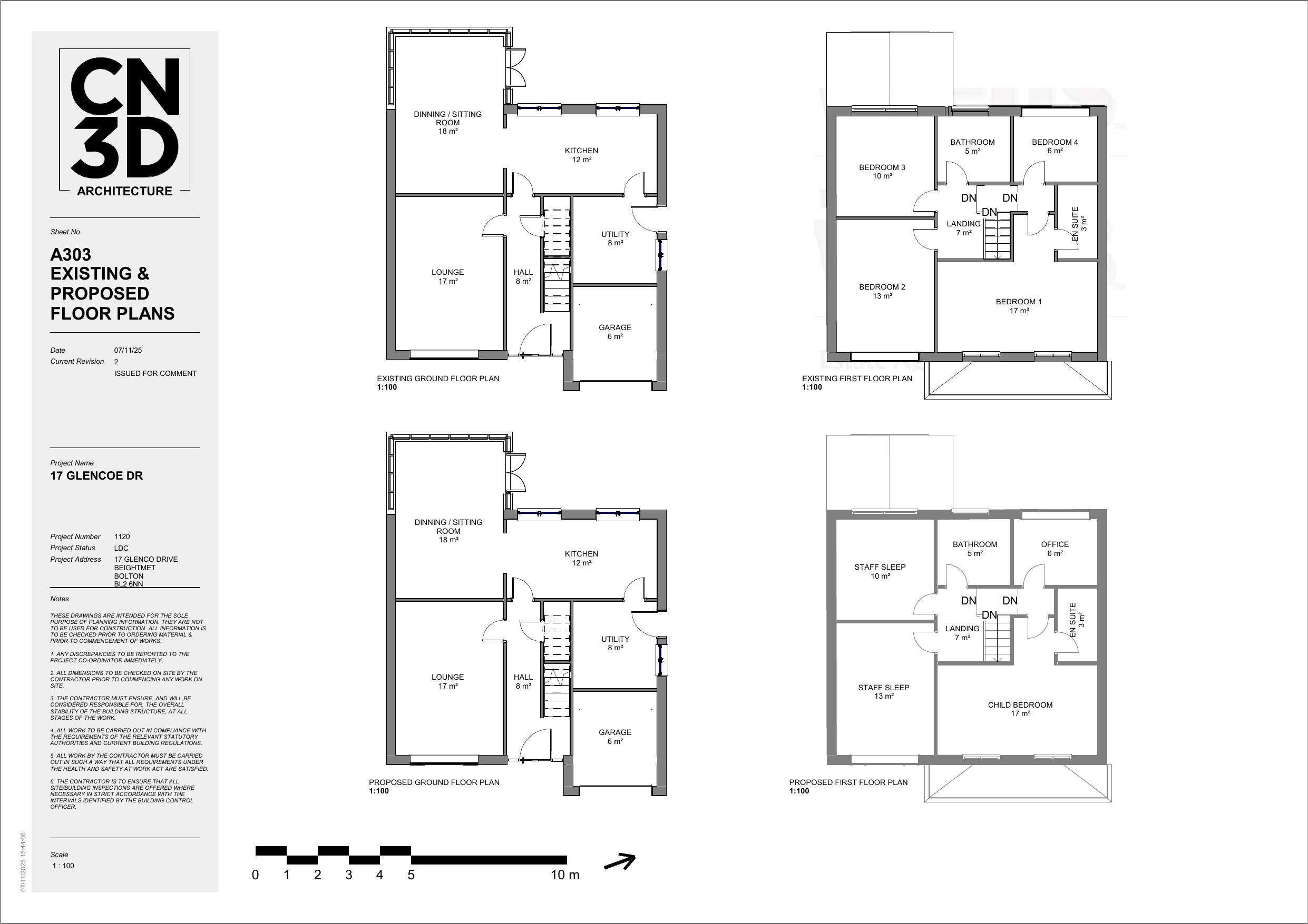
Change of use from dwelling (C3) to residential children's home (C2) for one young person.
Full Proposal
CERTIFICATE OF LAWFUL DEVELOPMENT (S192) FOR THE PROPOSED CHANGE OF USE FROM DWELLING (C3) TO RESIDENTIAL CHILDREN'S HOME (C2) FOR UP TO 1 YOUNG PERSON.
Documents
Take Action
Make your voice heard. Authorities need to hear from people who support new homes.