← Back to Bolton Council

Status

Deposited New housing
Received
24 Nov 2025
New dwellings
1

Full Proposal

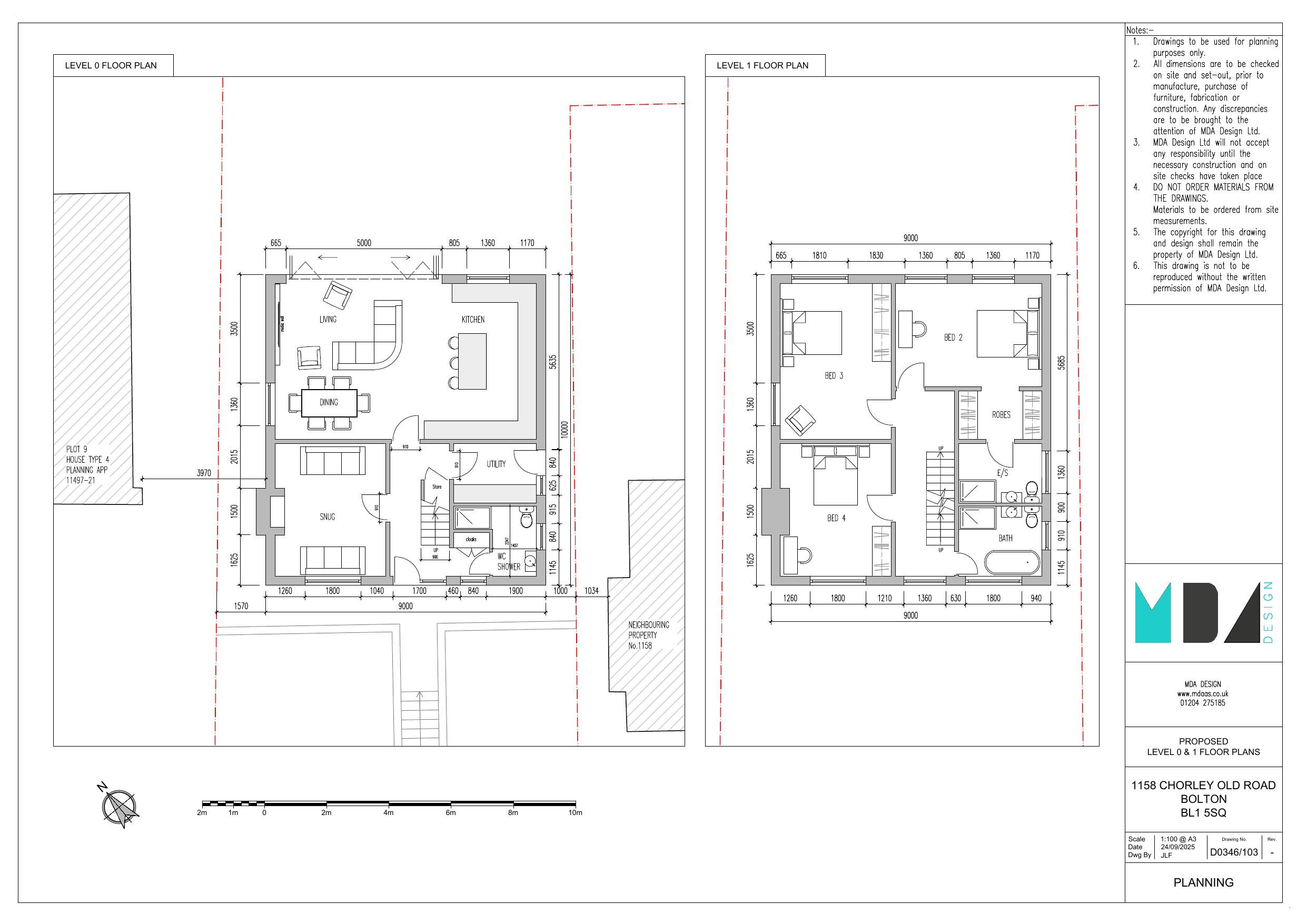
ERECTION OF 1 NO. DWELLING TOGETHER WITH ASSOCIATED ACCESS, PARKING AND LANDSCAPING.

Documents

. Flood Risk Team.
Consultee Comment
Not archived · Council Link
ACCESSIBILITY AND ADAPTABILITY STATEMENT
Application Submission Details
Not archived · Council Link
APPLICATION FORM REDACTED
Application Form
Not archived · Council Link
BIODIVERSITY NET GAIN ASSESSMENT
Application Submission Details
Not archived · Council Link
BNG CONDITION ASSESSMENT
Application Submission Details
Not archived · Council Link
BNG METRIC
Application Submission Details
Not archived · Council Link
DESIGN AND ACCESS STATEMENT
Application Submission Details
Not archived · Council Link
Design for Security
Consultee Comment
Not archived · Council Link
Environmental Health
Consultee Comment
Not archived · Council Link
Application Submission Details
Archived · Council Link
GMECOL Comments
Consultee Comment
Not archived · Council Link
Highways Engineering
Consultee Comment
Not archived · Council Link
Landscape Development Unit
Consultee Comment
Not archived · Council Link
LANDSCAPE PROPOSALS
Application Submission Details
Not archived · Council Link
LOCATION PLAN
Application Submission Details
Not archived · Council Link
Mr Andy Taylor
Consultee Comment
Not archived · Council Link
Neighbour Consultation Plan
Other
Not archived · Council Link
PLANNING STATEMENT
Application Submission Details
Not archived · Council Link
PRELIMINARY RISK ASSESSMENT
Application Submission Details
Not archived · Council Link
PROPOSED ELEVATIONS
Application Submission Details
Not archived · Council Link
Application Submission Details
Archived · Council Link
Application Submission Details
Archived · Council Link
PROPOSED SECTION A
Application Submission Details
Not archived · Council Link
Application Submission Details
Archived · Council Link
PROPOSED SITE SECTION
Application Submission Details
Not archived · Council Link
PROPOSED SITE SECTION B
Application Submission Details
Not archived · Council Link
PROPOSED STREET SCENE
Application Submission Details
Not archived · Council Link
RESIDENTIAL STANDARDS STATEMENT
Application Submission Details
Not archived · Council Link
REVISED TREE OFFICER COMMENTS FROM APPLICANT
Amended Drawing
Not archived · Council Link
SUSTAINABILITY - CARBON ENERGY STATEMENT
Application Submission Details
Not archived · Council Link
TOPOGRAPHICAL SURVEY
Application Submission Details
Not archived · Council Link
Tree Constraints Plan
Application Submission Details
Not archived · Council Link
Tree Officer comments
Consultee Comment
Not archived · Council Link
Tree officer revised comments
Consultee Comment
Not archived · Council Link
TREE PROTECTION PLAN
Application Submission Details
Not archived · Council Link
Tree Protection Plan
Application Submission Details
Not archived · Council Link
United Utilities
Consultee Comment
Not archived · Council Link

Take Action

Make your voice heard. Authorities need to hear from people who support new homes.

✉️ Write Email in Support View on Council Portal