← Back to Bracknell Forest Council

Status

Pending Consideration Commercial
Received
n/a
New dwellings
0

Full Proposal

Erection of a new community hub building at Priory Field, Newell Green, Warfield, Bracknell (RG42 6DW), including cafe, flexible multi-use spaces, sports hall, dance/fitness studio, meeting rooms, new offices for Warfield Parish Council, associated car parking and cycle stands, childrenss play area, enhancements to existing sports pitches, and provision of improved greenway and bridleway connections. The development will be built to high environmental standards, targeting operational net zero and BREEAM Excellent.

Documents

1 CHIME CLOSE WARFIELD WARFIELD BRACKNELL(FULL)
Public Comment
Not archived · Council Link
1 TRUSSELL ROAD WARFIELD BRACKNELL BERKSHIRE(FULL)
Objection Comment
Not archived · Council Link
1 TRUSSELL ROAD WARFIELD BRACKNELL(FULL)
Objection Comment
Not archived · Council Link
12 PATRICK GARDENS WARFIELD(FULL)
Objection Comment
Not archived · Council Link
8 BELL CROFT WARFIELD BRACKNELL(FULL)
Objection Comment
Not archived · Council Link
8 BELL CROFT WARFIELD BRACKNELL(FULL)
Objection Comment
Not archived · Council Link
ADDITIONAL GROUND INVESTIGATION REPORT
Report
Not archived · Council Link
APPENDIX A. EXISTING DRAINAGE PLANS
Report
Not archived · Council Link
APPENDIX B. PROPOSED DRAINAGE PLANS
Report
Not archived · Council Link
APPENDIX C. EXISTING IMPERMEABLE AREAS
Report
Not archived · Council Link
APPENDIX D. PROPOSED IMPERMEABLE AREAS
Report
Not archived · Council Link
APPENDIX E. EXISTING FLOOD EXCEEDANCE PLAN
Report
Not archived · Council Link
APPENDIX F. PROPOSED FLOOD EXCEEDANCE PLAN
Report
Not archived · Council Link
APPENDIX G. THAMES WATER ASSET PLAN
Report
Not archived · Council Link
APPENDIX H. THAMES WATER CORRESPONDENCE
Report
Not archived · Council Link
APPENDIX I. SOAKAWAY TEST RESULTS
Report
Not archived · Council Link
APPENDIX J. EXISTING GREENFIELD RUN-OFF RATES
Report
Not archived · Council Link
APPENDIX L. DRAINAGE MAINTENANCE STRATEGY
Report
Not archived · Council Link
Application Form
Application Form
Not archived · Council Link
ARBORICULTURAL IMPACT ASSESSMENT
Report
Not archived · Council Link
ARCHAEOLOGICAL DESKBASED ASSESSMENT - PART 1
Report
Not archived · Council Link
ARCHAEOLOGICAL DESKBASED ASSESSMENT - PART 2
Report
Not archived · Council Link
BAT SURVEY REPORT ISSUE
Report
Not archived · Council Link
BERKSHIRE ARCHAEOLOGY
Consultee
Not archived · Council Link
BIODIVERSITY NET GAIN ASSESSMENT: DESIGN STAGE
Report
Not archived · Council Link
BIODIVERSITY NET GAIN ASSESSMENT: DESIGN STAGE
Report
Not archived · Council Link
BREEAM V6 SUMMARY TRACKER
Report
Not archived · Council Link
COMMUNITY HUB DAS - PART 1
Design Access Statement
Not archived · Council Link
COMMUNITY HUB DAS - PART 2
Design Access Statement
Not archived · Council Link
CONSTRUCTION ENVIRONMENTAL MANAGEMENT PLAN - BIODIVERSITY
Report
Not archived · Council Link
CONSTRUCTION TRAFFIC MANAGEMENT PLAN
Report
Not archived · Council Link
CONSTRUCTION, TRAFFIC AND ENVIRONMENTAL MANAGEMENT PLAN
Report
Not archived · Council Link
DRAINAGE NOTES
Related Drawing
Not archived · Council Link
DRAINAGE STATEMENT FOR PLANNING
Report
Not archived · Council Link
ECOLOGICAL IMPACT ASSESSMENT
Report
Not archived · Council Link
ELEVATIONS - EAST AND WEST
Related Drawing
Not archived · Council Link
ELEVATIONS - NORTH AND SOUTH
Related Drawing
Not archived · Council Link
ENERGY STATEMENT
Report
Not archived · Council Link
ENLARGED EXISTING DRAINAGE PLAN - SHEET 1
Related Drawing
Not archived · Council Link
ENLARGED EXISTING DRAINAGE PLAN - SHEET 2
Related Drawing
Not archived · Council Link
ENLARGED EXISTING DRAINAGE PLAN - SHEET 3
Related Drawing
Not archived · Council Link
ENLARGED EXISTING DRAINAGE PLAN - SHEET 4
Related Drawing
Not archived · Council Link
ENLARGED PROPOSED DRAINAGE PLAN - SHEET 1
Related Drawing
Not archived · Council Link
ENLARGED PROPOSED DRAINAGE PLAN - SHEET 2
Related Drawing
Not archived · Council Link
ENLARGED PROPOSED DRAINAGE PLAN - SHEET 3
Related Drawing
Not archived · Council Link
ENLARGED PROPOSED DRAINAGE PLAN - SHEET 4
Related Drawing
Not archived · Council Link
EXISTING DRAINAGE PLAN
Related Drawing
Not archived · Council Link
EXISTING DRAINAGE TO BE ABANDONED PLAN
Related Drawing
Not archived · Council Link
EXISTING FLOOD EXCEEDANCE PLAN
Related Drawing
Not archived · Council Link
EXISTING IMPERMEABLE AREA PLAN
Related Drawing
Not archived · Council Link
EXISTING SITE SECTIONS
Related Drawing
Not archived · Council Link
FIRST FLOOR PLAN
Related Drawing
Not archived · Council Link
FORM 1 - ADDITIONAL INFORMATION
Community Infrastructure Levy
Not archived · Council Link
GCN SURVEY REPORT ISSUE
Report
Not archived · Council Link
GROUND FLOOR PLAN
Related Drawing
Not archived · Council Link
HARD AND SOFT GENERAL ARRANGEMENT PLAN - SHEET 1 OF 6
Related Drawing
Not archived · Council Link
HARD AND SOFT GENERAL ARRANGEMENT PLAN - SHEET 2 OF 6
Related Drawing
Not archived · Council Link
HARD AND SOFT GENERAL ARRANGEMENT PLAN - SHEET 3 OF 6
Related Drawing
Not archived · Council Link
HARD AND SOFT GENERAL ARRANGEMENT PLAN - SHEET 4 OF 6
Related Drawing
Not archived · Council Link
HARD AND SOFT GENERAL ARRANGEMENT PLAN - SHEET 5 OF 6
Related Drawing
Not archived · Council Link
HARD AND SOFT GENERAL ARRANGEMENT PLAN - SHEET 6 OF 6
Related Drawing
Not archived · Council Link
HERITAGE STATEMENT
Report
Not archived · Council Link
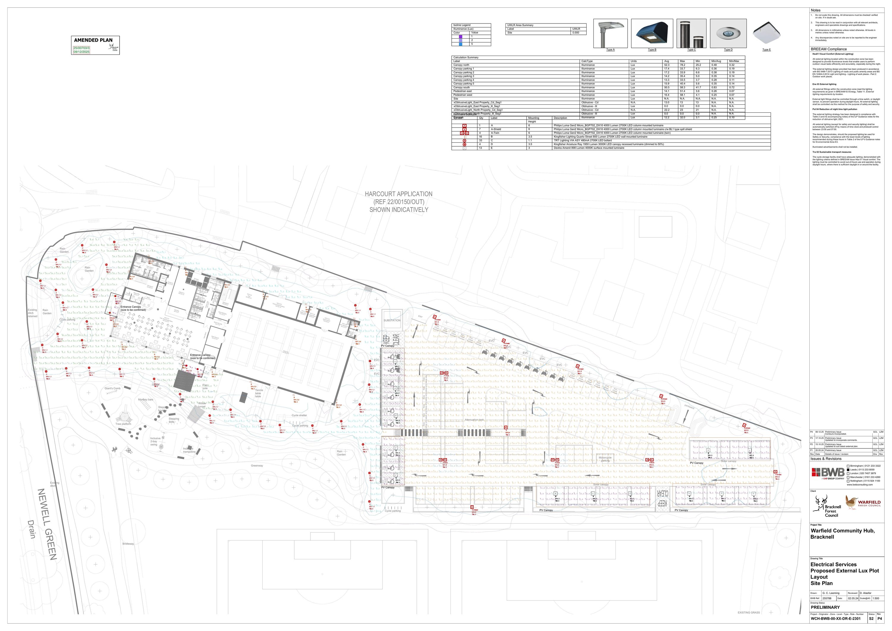
ILLUSTRATIVE IMAGES
Related Drawing
Not archived · Council Link
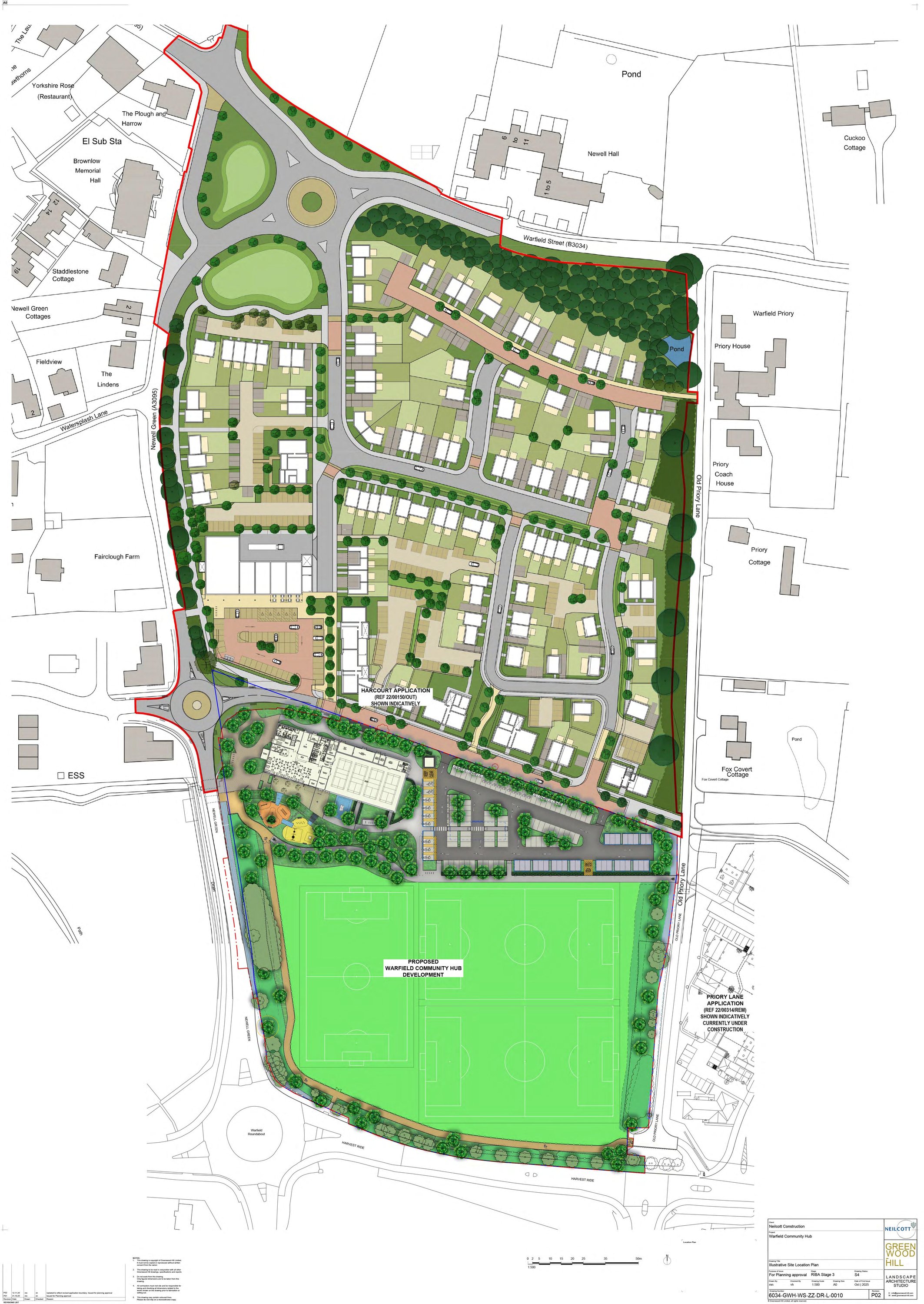
ILLUSTRATIVE LANDSCAPE MASTERPLAN
Related Drawing
Not archived · Council Link
ILLUSTRATIVE LANDSCAPE MASTERPLAN
Related Drawing
Not archived · Council Link
Related Drawing
Archived · Council Link
LANDSCAPE DAS - PART 1
Design Access Statement
Not archived · Council Link
LANDSCAPE DAS - PART 2
Design Access Statement
Not archived · Council Link
LANDSCAPE DAS - PART 3
Design Access Statement
Not archived · Council Link
LANDSCAPE MAINTENANCE AND MANAGEMENT PLAN
Report
Not archived · Council Link
LANDSCAPE SECTIONS - SHEET 1 OF 2
Related Drawing
Not archived · Council Link
LANDSCAPE SECTIONS - SHEET 2 OF 2
Related Drawing
Not archived · Council Link
LEVELS PLAN - SHEET 1 OF 6
Related Drawing
Not archived · Council Link
LEVELS PLAN - SHEET 2 OF 6
Related Drawing
Not archived · Council Link
LEVELS PLAN - SHEET 3 OF 6
Related Drawing
Not archived · Council Link
LEVELS PLAN - SHEET 4 OF 6
Related Drawing
Not archived · Council Link
LEVELS PLAN - SHEET 5 OF 6
Related Drawing
Not archived · Council Link
LEVELS PLAN - SHEET 6 OF 6
Related Drawing
Not archived · Council Link
LOCATION PLAN
Related Drawing
Not archived · Council Link
NEWSPAPER CLIPPING PROOF
Press Publication
Not archived · Council Link
NOTICE LETTER AND FORM TO LLFA
Correspondence Received
Not archived · Council Link
OPERATIONAL HOURS
Correspondence Received
Not archived · Council Link
PAVING AND KERBS TYPICAL DETAILS
Related Drawing
Not archived · Council Link
PHASE I AND PHASE II GROUND INVESTIGATION PART - 1
Report
Not archived · Council Link
PHASE I AND PHASE II GROUND INVESTIGATION PART - 2
Report
Not archived · Council Link
PHASE I AND PHASE II GROUND INVESTIGATION PART - 2
Report
Not archived · Council Link
PHASE II GEO ENVIRONMENTAL AND GEOTECHNICAL SITE INVESTIGATION REPORT
Report
Not archived · Council Link
PLANTING PLAN - SHEET 1 OF 6
Related Drawing
Not archived · Council Link
PLANTING PLAN - SHEET 2 OF 6
Related Drawing
Not archived · Council Link
PLANTING PLAN - SHEET 3 OF 6
Related Drawing
Not archived · Council Link
PLANTING PLAN - SHEET 4 OF 6
Related Drawing
Not archived · Council Link
PLANTING PLAN - SHEET 5 OF 6
Related Drawing
Not archived · Council Link
PLANTING PLAN - SHEET 6 OF 6
Related Drawing
Not archived · Council Link
PLANTING SCHEDULE
Related Drawing
Not archived · Council Link
PLAYING FIELDS - PROPOSED LAYOUT OPTION 2
Related Drawing
Not archived · Council Link
PROPOSED CIVILS DETAILS - SHEET 1
Related Drawing
Not archived · Council Link
PROPOSED DRAINAGE PLAN
Related Drawing
Not archived · Council Link
PROPOSED DRAINAGE SECTIONS - SHEET 1
Related Drawing
Not archived · Council Link
PROPOSED DRAINAGE SECTIONS - SHEET 2
Related Drawing
Not archived · Council Link
PROPOSED FLOOD EXCEEDANCE PLAN
Related Drawing
Not archived · Council Link
PROPOSED IMPERMEABLE AREA PLAN
Related Drawing
Not archived · Council Link
PROPOSED MANHOLE SCHEDULE
Related Drawing
Not archived · Council Link
Related Drawing
Archived · Council Link
REPTILE SURVEY REPORT ISSUE
Report
Not archived · Council Link
ROOF PLAN
Related Drawing
Not archived · Council Link
ROSEWOOD WATERSPLASH LANE BRACKNELL(FULL)
Objection Comment
Not archived · Council Link
SCHEDULE OF ACCOMMODATION
Related Drawing
Not archived · Council Link
SECTIONS
Related Drawing
Not archived · Council Link
SITE ACCESS GENERAL ARRANGEMENT
Related Drawing
Not archived · Council Link
SOFT LANDSCAPE TYPICAL DETAIL
Related Drawing
Not archived · Council Link
SPORT ENGLAND
Consultee
Not archived · Council Link
SPORT ENGLAND RESPONSE LETTER
Correspondence Received
Not archived · Council Link
STAGE 1 ROAD SAFETY AUDIT
Report
Not archived · Council Link
STAGE 1 ROAD SAFETY AUDIT
Report
Not archived · Council Link
STAGE 1 ROAD SAFETY AUDIT RESPONSE REPORT
Report
Not archived · Council Link
STAGE 3 FIRE SAFETY STRATEGY REPORT
Report
Not archived · Council Link
STATUTORY METRIC
Report
Not archived · Council Link
STREET ELEVATIONS - EAST AND WEST
Related Drawing
Not archived · Council Link
STREET ELEVATIONS - NORTH AND SOUTH
Related Drawing
Not archived · Council Link
SWEPT PATH ANALYSIS - LARGE CAR
Related Drawing
Not archived · Council Link
SWEPT PATH ANALYSIS - SERVICING VEHICLES
Related Drawing
Not archived · Council Link
TOPOGRAPHICAL SURVEY - SHEET 1 OF 4
Related Drawing
Not archived · Council Link
TOPOGRAPHICAL SURVEY - SHEET 2 OF 4
Related Drawing
Not archived · Council Link
TOPOGRAPHICAL SURVEY - SHEET 3 OF 4
Related Drawing
Not archived · Council Link
TOPOGRAPHICAL SURVEY - SHEET 4 OF 4
Related Drawing
Not archived · Council Link
TRANSPORT ASSESSMENT
Report
Not archived · Council Link
TRAVEL PLAN
Report
Not archived · Council Link
TRAVEL PLAN
Report
Not archived · Council Link
TREE PIT TYPICAL DETAILS
Related Drawing
Not archived · Council Link
UTILITIES SEARCH REPORT - PART 1
Report
Not archived · Council Link
UTILITIES SEARCH REPORT - PART 2
Report
Not archived · Council Link
UTILITY SURVEY - SHEET 1 OF 4
Related Drawing
Not archived · Council Link
UTILITY SURVEY - SHEET 2 OF 4
Related Drawing
Not archived · Council Link
UTILITY SURVEY - SHEET 3 OF 4
Related Drawing
Not archived · Council Link
UTILITY SURVEY - SHEET 4 OF 4
Related Drawing
Not archived · Council Link
VISUAL IMPACT VIEWS
Related Drawing
Not archived · Council Link
WARFIELD PARISH COUNCIL
Consultee
Not archived · Council Link

Take Action

Make your voice heard. Authorities need to hear from people who support new homes.

✉️ Write Email in Support View on Council Portal