← Back to Bradford Metropolitan District Council

Status

Pending Consideration New housing
Received
n/a
New dwellings
0

Summary

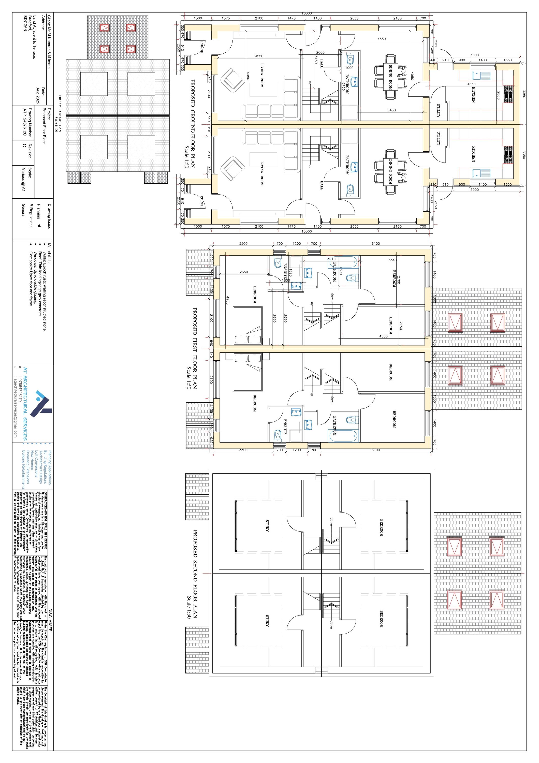
Construction of two semi-detached dwellings.

Full Proposal

Construction of semi-detatched dwellings

Documents

Revised Drawing
Archived · Council Link
APPLICATION FORM REDACTED
Application Form
Not archived · Council Link
CERT B NOTICE
Supporting Information
Not archived · Council Link
CIL FORM 1: ADDITIONAL INFORMATION
Application Form
Not archived · Council Link
CONSULTEE: CHRIS HUGHES - WEST YORKSHIRE POLICE - DOCO
Consultee Comment
Not archived · Council Link
CONSULTEE: ENVIRONMENTAL HEALTH LAND CONTAMINATION
Consultee Comment
Not archived · Council Link
DESIGN AND ACCESS STATEMENT
Supporting Information
Not archived · Council Link
HIGHWAYS CONSULTATION RESPONSE
Consultee Comment
Not archived · Council Link
HIGHWAYS CONSULTATION RESPONSE
Consultee Comment
Not archived · Council Link
LOCATION PLAN
OS Extract
Not archived · Council Link
MINERALS AND WASTE TEAM
Consultee Comment
Not archived · Council Link
Superseded Drawings
Archived · Council Link
PROPOSED FLOOR AND ROOF PLANS
Superseded Drawings
Not archived · Council Link
SITE NOTICE
Publicity
Not archived · Council Link

Take Action

Make your voice heard. Authorities need to hear from people who support new homes.

✉️ Write Email in Support View on Council Portal