← Back to Bradford Metropolitan District Council

Status

Pending Consideration New housing
Received
n/a
New dwellings
0

Summary

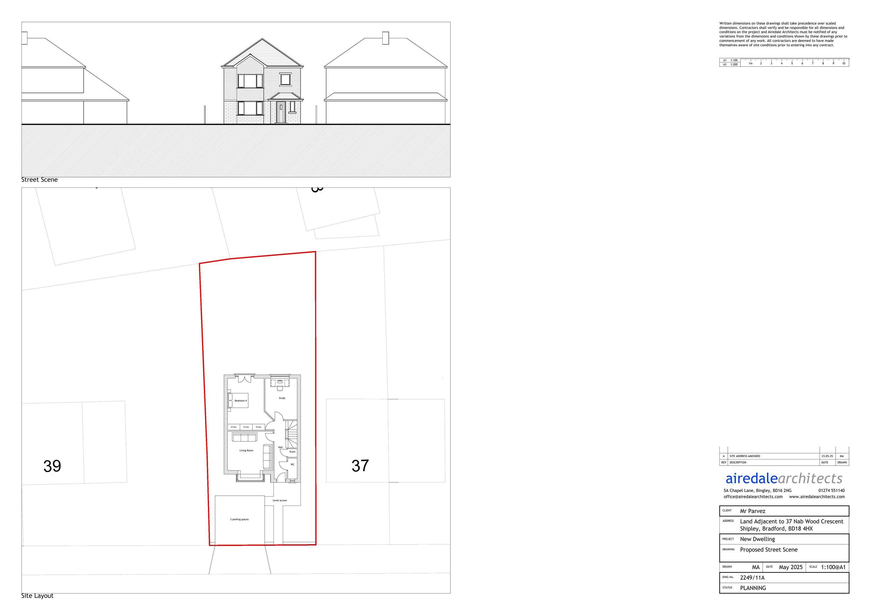
Construction of a detached single dwelling.

Full Proposal

Construction of detached dwelling

Documents

APPLICATION FORM REDACTED
Application Form
Not archived · Council Link
BIODIVERSITY ACCOUNTING ASSESSMENT REPORT
Supporting Information
Not archived · Council Link
COAL MINING RISK ASSESSMENT
Supporting Information
Not archived · Council Link
CONSULTEE: BIODIVERSITY TEAM
Consultee Comment
Not archived · Council Link
CONSULTEE: CHRIS HUGHES - WEST YORKSHIRE POLICE - DOCO
Consultee Comment
Not archived · Council Link
CONSULTEE: CIL OFFICER
Consultee Comment
Not archived · Council Link
CONSULTEE: CONSERVATION TEAM
Consultee Comment
Not archived · Council Link
CONSULTEE: DRAINAGE CONSULTATIONS
Consultee Comment
Not archived · Council Link
CONSULTEE: SHIPLEY TOWN COUNCIL
Consultee Comment
Not archived · Council Link
CONSULTEE: TREES TEAM
Consultee Comment
Not archived · Council Link
HABITAT MITIGATION AGREEMENT
Habitat Mitigation Form
Not archived · Council Link
HIGHWAYS CONSULTATION RESPONSE
Consultee Comment
Not archived · Council Link
PRELIMINARY ECOLOGICAL APPRAISAL
Supporting Information
Not archived · Council Link
STATUTORY BIODIVERSITY METRIC CONDITION ASSESSMENTS
Supporting Information
Not archived · Council Link
THE COAL AUTHORITY
Consultee Comment
Not archived · Council Link
YORKSHIRE WATER
Consultee Comment
Not archived · Council Link

Take Action

Make your voice heard. Authorities need to hear from people who support new homes.

✉️ Write Email in Support View on Council Portal