← Back to Bradford Metropolitan District Council

Status

Unknown House extension
Received
n/a
New dwellings
0

Summary

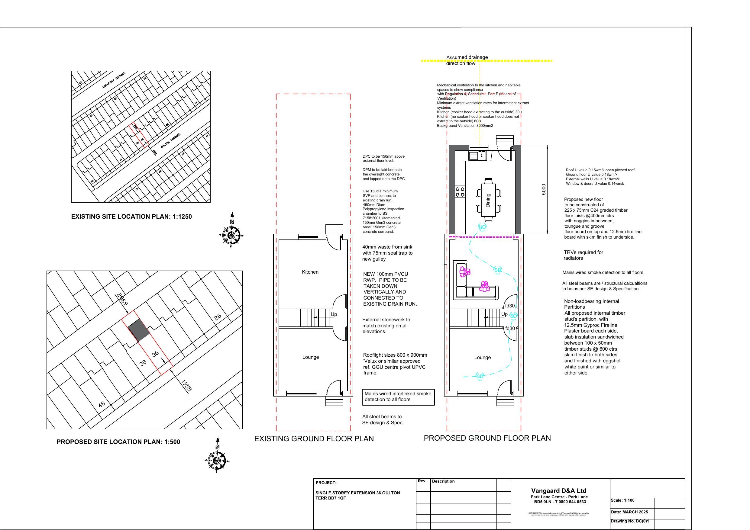
Single-storey rear extension: 5m depth, 4m max height, 3.3m eaves height.

Full Proposal

Construction of single storey rear extension of the following dimensions: Depth of proposed extension from rear wall of original dwelling house: 5 metres Maximum height of proposed extension: 4 metres Height to eaves of proposed extension: 3.3 metres

Documents

DECISION LETTER
Decision
Not archived · Council Link
EXISTING AND PROPOSED FRONT AND REAR ELEVATIONS
Drawing
Not archived · Council Link
EXISTING AND PROPOSED SIDE ELEVATIONS
Drawing
Not archived · Council Link
OFFICER REPORT - HOUSEHOLDER
Planning Officer Report
Not archived · Council Link
SPECIFICATIONS 1
Drawing
Not archived · Council Link
SPECIFICATIONS 2
Drawing
Not archived · Council Link

Take Action

Make your voice heard. Authorities need to hear from people who support new homes.

✉️ Write Email in Support View on Council Portal