← Back to Bradford Metropolitan District Council

Status

Pending Consideration Change of use
Received
n/a
New dwellings
0

Summary

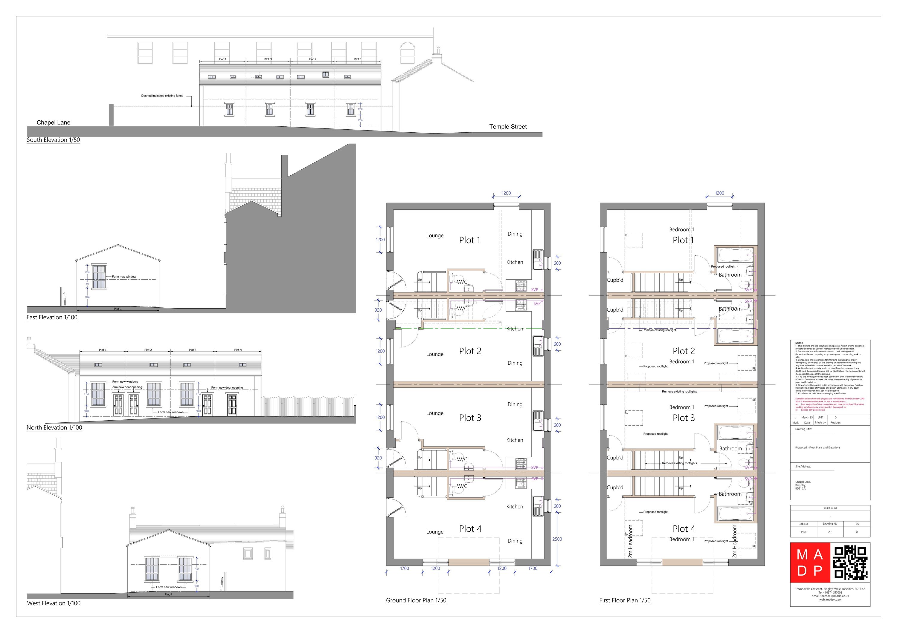
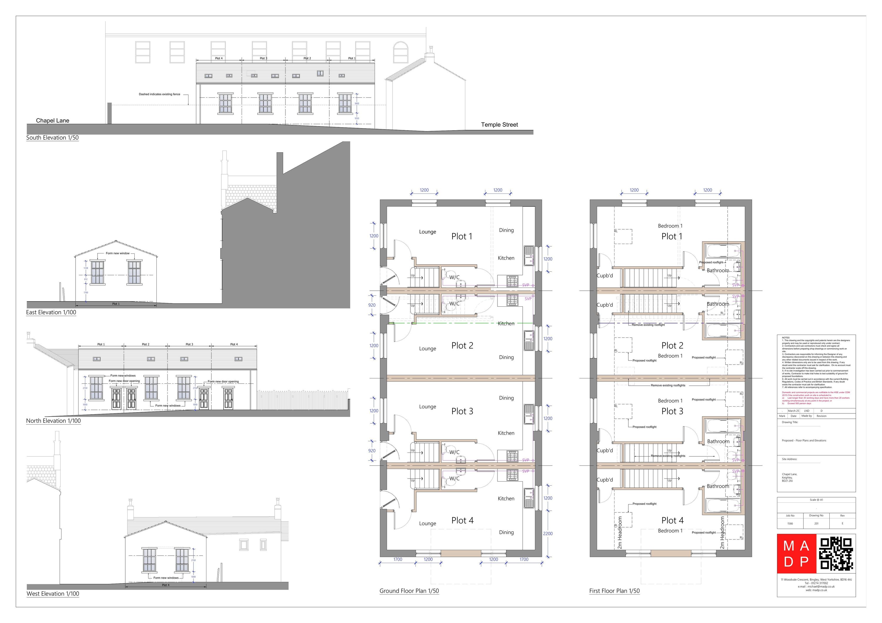
Change of use from B8 commercial to four one-bedroom apartments.

Full Proposal

Change of use from commercial building (Use Class B8) to four one-bed apartments (Use Class C3)

Documents

APPLICATION FORM REDACTED
Application Form
Not archived · Council Link
CONSULTEE: CHRIS HUGHES - WEST YORKSHIRE POLICE - DOCO
Consultee Comment
Not archived · Council Link
CONSULTEE: CONSERVATION OFFICER
Consultee Comment
Not archived · Council Link
COVERING LETTER
Supporting Information
Not archived · Council Link
DESIGN AND ACCESS STATEMENT
Supporting Information
Not archived · Council Link
EXISTING PLANS, ELEVATIONS AND LOCATION PLAN
Drawing
Not archived · Council Link
Drawing
Archived · Council Link
HIGHWAYS CONSULTATION RESPONSE
Consultee Comment
Not archived · Council Link
MR SHONU MIAH
Consultee Comment
Not archived · Council Link
PLANNING AND HERITAGE STATEMENT
Supporting Information
Not archived · Council Link
Superseded Drawings
Archived · Council Link
Drawing
Archived · Council Link
SITE NOTICE
Publicity
Not archived · Council Link

Take Action

Make your voice heard. Authorities need to hear from people who support new homes.

✉️ Write Email in Support View on Council Portal