← Back to Bradford Metropolitan District Council
25/01842/FUL
Bradford Metropolitan District Council · IDOX
Status
Pending Consideration
New housing
Received
n/a
New dwellings
2
Summary
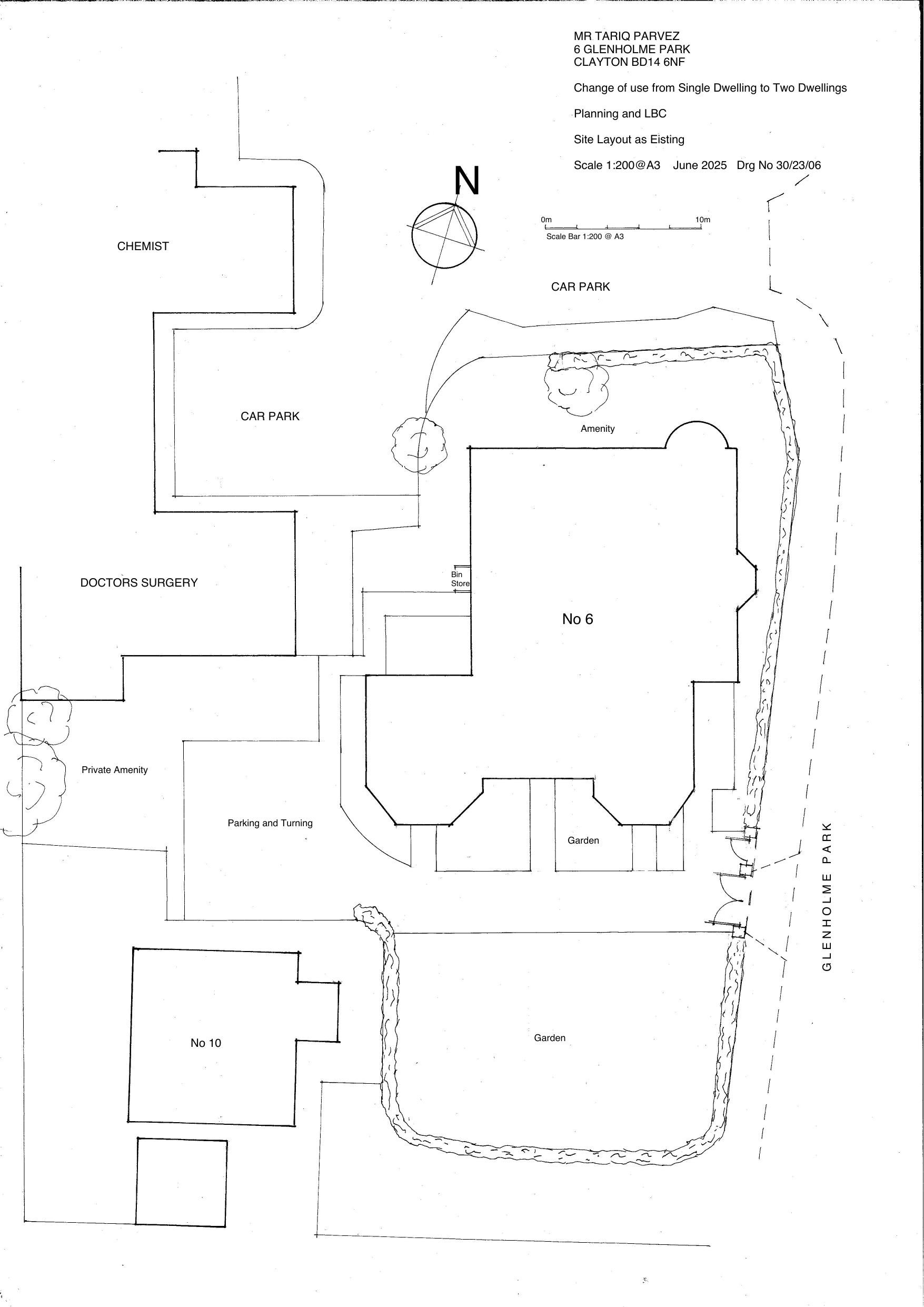
Subdivide dwelling into two houses with 2 EV points, parking, turning area and dividing walls/fencing.
Full Proposal
Sub-division of dwellinghouse to form 2 No dwellinghouses; 2 No EV charging points; parking and turning area to front; and associated stone walling and fencing to separate properties
Documents
Take Action
Make your voice heard. Authorities need to hear from people who support new homes.