← Back to Bradford Metropolitan District Council

Status

Pending Consideration New housing
Received
n/a
New dwellings
2

Summary

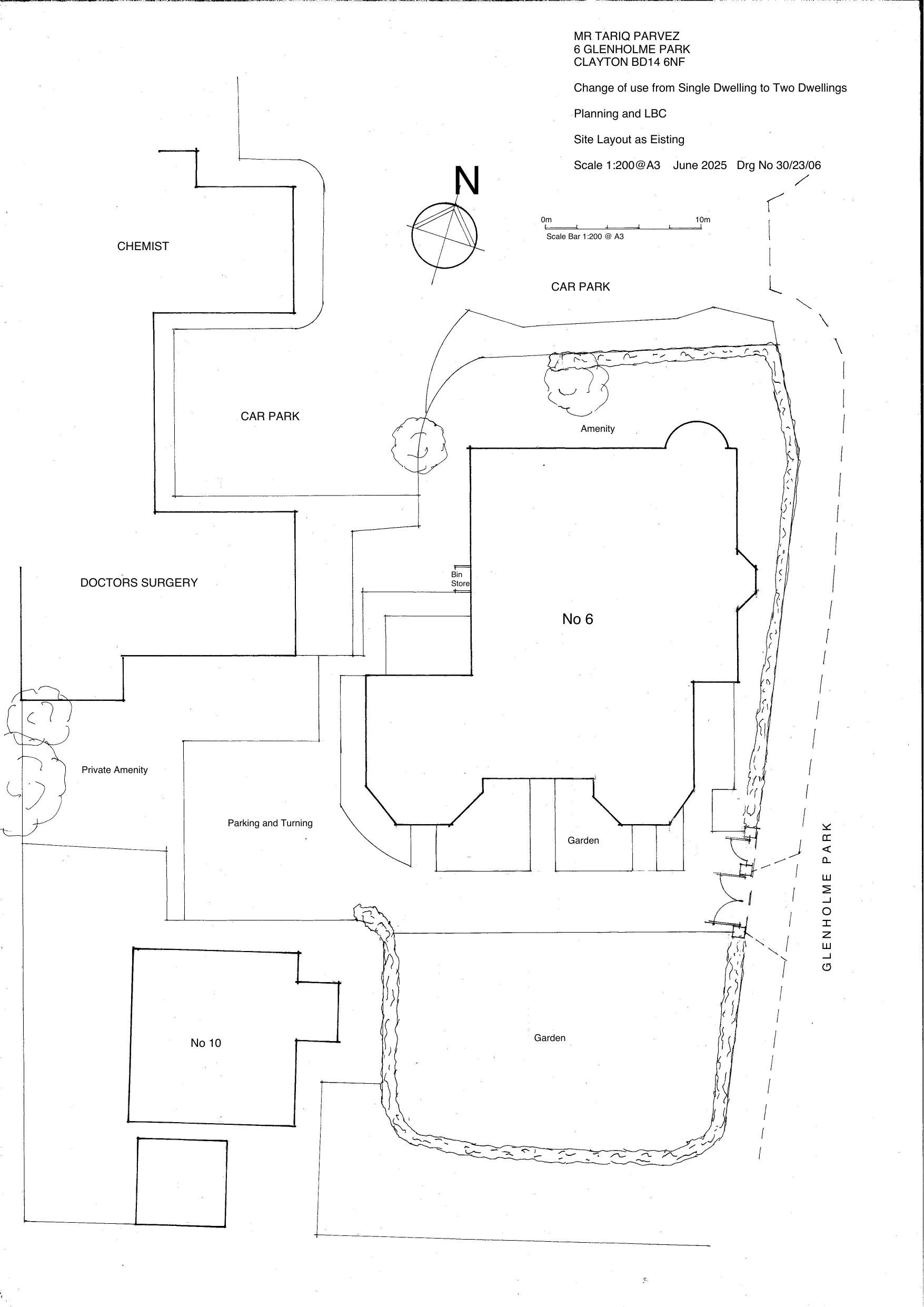
Subdivide dwelling into two houses with 2 EV points, parking, turning area and dividing walls/fencing.

Full Proposal

Sub-division of dwellinghouse to form 2 No dwellinghouses; 2 No EV charging points; parking and turning area to front; and associated stone walling and fencing to separate properties

Documents

ACCESS DESIGN AND HERITAGE STATEMENT
Supporting Information
Not archived · Council Link
APPLICATION FORM REDACTED
Application Form
Not archived · Council Link
CIL APPLICATION FORM
Supporting Information
Not archived · Council Link
CONSULTEE: CONSERVATION TEAM
Consultee Comment
Not archived · Council Link
EXISTING GROUND FLOOR PLAN
Drawing
Not archived · Council Link
EXISTING PLANS
Drawing
Not archived · Council Link
Drawing
Archived · Council Link
MRS CLAIRE HEPTON
Consultee Comment
Not archived · Council Link
PROPOSED GROUND FLOOR PLAN
Drawing
Not archived · Council Link
Drawing
Archived · Council Link
Drawing
Archived · Council Link
OS Extract
Archived · Council Link
SITE NOTICE
Publicity
Not archived · Council Link

Take Action

Make your voice heard. Authorities need to hear from people who support new homes.

✉️ Write Email in Support View on Council Portal